Property Identification Code Wa . Western australia brand and pic register. One or more property identification codes (pics) will be issued to indicate the properties that you have nominated to run your stock on. If only part is known, use the wildcard % for remaining. When you register as an owner of livestock, you will be allocated a set of registered identifiers, including a stock brand, an earmark and a pig tattoo, along with a property identification code (pic). What is a property identification code (pic)? Western australia brand and pic register. A registration certificate and pic card/s will be issued and. Search by property identification code (pic) if only part is known, use the wildcard % for. View details of all registered livestock brands, property identification codes (pics) and bee hives registered in western australia. Once your application has been processed, you will be issued with a registration certificate and property identification code (pic) card.
        
        from www.pdffiller.com 
     
        
        A registration certificate and pic card/s will be issued and. What is a property identification code (pic)? When you register as an owner of livestock, you will be allocated a set of registered identifiers, including a stock brand, an earmark and a pig tattoo, along with a property identification code (pic). Once your application has been processed, you will be issued with a registration certificate and property identification code (pic) card. One or more property identification codes (pics) will be issued to indicate the properties that you have nominated to run your stock on. Search by property identification code (pic) if only part is known, use the wildcard % for. If only part is known, use the wildcard % for remaining. Western australia brand and pic register. Western australia brand and pic register. View details of all registered livestock brands, property identification codes (pics) and bee hives registered in western australia.
    
    	
            
	
		 
         
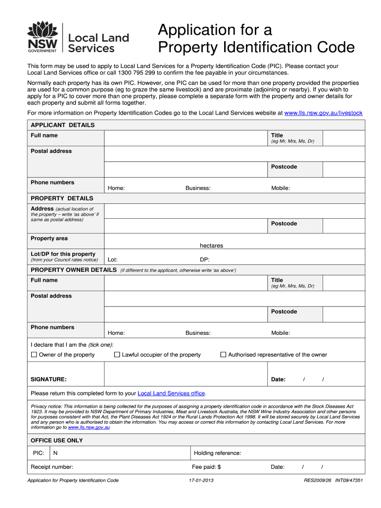
    Fillable Online lls nsw gov Application for a Property Identification 
    Property Identification Code Wa  Western australia brand and pic register. Western australia brand and pic register. A registration certificate and pic card/s will be issued and. When you register as an owner of livestock, you will be allocated a set of registered identifiers, including a stock brand, an earmark and a pig tattoo, along with a property identification code (pic). One or more property identification codes (pics) will be issued to indicate the properties that you have nominated to run your stock on. Western australia brand and pic register. Search by property identification code (pic) if only part is known, use the wildcard % for. View details of all registered livestock brands, property identification codes (pics) and bee hives registered in western australia. What is a property identification code (pic)? If only part is known, use the wildcard % for remaining. Once your application has been processed, you will be issued with a registration certificate and property identification code (pic) card.
            
	
		 
         
 
    
        From www.youtube.com 
                    Is a NSW property agent required to gain full identification details Property Identification Code Wa  View details of all registered livestock brands, property identification codes (pics) and bee hives registered in western australia. When you register as an owner of livestock, you will be allocated a set of registered identifiers, including a stock brand, an earmark and a pig tattoo, along with a property identification code (pic). Western australia brand and pic register. Western australia. Property Identification Code Wa.
     
    
        From prorfety.blogspot.com 
                    PRORFETY How To Know Property Ref Id (upic) Property Identification Code Wa  Western australia brand and pic register. Western australia brand and pic register. What is a property identification code (pic)? If only part is known, use the wildcard % for remaining. When you register as an owner of livestock, you will be allocated a set of registered identifiers, including a stock brand, an earmark and a pig tattoo, along with a. Property Identification Code Wa.
     
    
        From mywoodlot.com 
                    What's My Property's Tax Identification Number? Property Identification Code Wa  A registration certificate and pic card/s will be issued and. Search by property identification code (pic) if only part is known, use the wildcard % for. What is a property identification code (pic)? When you register as an owner of livestock, you will be allocated a set of registered identifiers, including a stock brand, an earmark and a pig tattoo,. Property Identification Code Wa.
     
    
        From mavinrealestate.com.au 
                    Building codes and zoning regulations in Perth. Property Identification Code Wa  One or more property identification codes (pics) will be issued to indicate the properties that you have nominated to run your stock on. Search by property identification code (pic) if only part is known, use the wildcard % for. A registration certificate and pic card/s will be issued and. Western australia brand and pic register. What is a property identification. Property Identification Code Wa.
     
    
        From www.pdffiller.com 
                    Fillable Online Application for a Property Identification Code (PIC Property Identification Code Wa  View details of all registered livestock brands, property identification codes (pics) and bee hives registered in western australia. If only part is known, use the wildcard % for remaining. When you register as an owner of livestock, you will be allocated a set of registered identifiers, including a stock brand, an earmark and a pig tattoo, along with a property. Property Identification Code Wa.
     
    
        From www.youtube.com 
                    Protect your property with a Property Identification Code (PIC) YouTube Property Identification Code Wa  A registration certificate and pic card/s will be issued and. What is a property identification code (pic)? When you register as an owner of livestock, you will be allocated a set of registered identifiers, including a stock brand, an earmark and a pig tattoo, along with a property identification code (pic). Search by property identification code (pic) if only part. Property Identification Code Wa.
     
    
        From www.hartac.com.au 
                    Equipment Servicing Tags Property Identification Tags Equipment Property Identification Code Wa  If only part is known, use the wildcard % for remaining. View details of all registered livestock brands, property identification codes (pics) and bee hives registered in western australia. When you register as an owner of livestock, you will be allocated a set of registered identifiers, including a stock brand, an earmark and a pig tattoo, along with a property. Property Identification Code Wa.
     
    
        From www.pdffiller.com 
                    Fillable Online lls nsw gov Application for a Property Identification Property Identification Code Wa  A registration certificate and pic card/s will be issued and. One or more property identification codes (pics) will be issued to indicate the properties that you have nominated to run your stock on. View details of all registered livestock brands, property identification codes (pics) and bee hives registered in western australia. Search by property identification code (pic) if only part. Property Identification Code Wa.
     
    
        From www.slideserve.com 
                    PPT HOW TO READ THE PROPERTY BOOK PowerPoint Presentation ID6623963 Property Identification Code Wa  View details of all registered livestock brands, property identification codes (pics) and bee hives registered in western australia. One or more property identification codes (pics) will be issued to indicate the properties that you have nominated to run your stock on. Once your application has been processed, you will be issued with a registration certificate and property identification code (pic). Property Identification Code Wa.
     
    
        From agriculture.vic.gov.au 
                    Resources to help you talk about footandmouth disease Footand Property Identification Code Wa  If only part is known, use the wildcard % for remaining. Western australia brand and pic register. What is a property identification code (pic)? A registration certificate and pic card/s will be issued and. Western australia brand and pic register. One or more property identification codes (pics) will be issued to indicate the properties that you have nominated to run. Property Identification Code Wa.
     
    
        From www.pdffiller.com 
                    Fillable Online REQUEST TO OBTAIN A PROPERTY IDENTIFICATION CODE (PIC Property Identification Code Wa  One or more property identification codes (pics) will be issued to indicate the properties that you have nominated to run your stock on. Search by property identification code (pic) if only part is known, use the wildcard % for. View details of all registered livestock brands, property identification codes (pics) and bee hives registered in western australia. What is a. Property Identification Code Wa.
     
    
        From jigglar.com 
                    How To Use Real Estate QR Code To Get Leads (Updated) Property Identification Code Wa  If only part is known, use the wildcard % for remaining. View details of all registered livestock brands, property identification codes (pics) and bee hives registered in western australia. Search by property identification code (pic) if only part is known, use the wildcard % for. Western australia brand and pic register. What is a property identification code (pic)? Western australia. Property Identification Code Wa.
     
    
        From eforms.com 
                    Washington Deed Forms eForms Property Identification Code Wa  A registration certificate and pic card/s will be issued and. Search by property identification code (pic) if only part is known, use the wildcard % for. If only part is known, use the wildcard % for remaining. Once your application has been processed, you will be issued with a registration certificate and property identification code (pic) card. View details of. Property Identification Code Wa.
     
    
        From www.pdffiller.com 
                    Fillable Online Application for a Property Identification Code (PIC Property Identification Code Wa  When you register as an owner of livestock, you will be allocated a set of registered identifiers, including a stock brand, an earmark and a pig tattoo, along with a property identification code (pic). View details of all registered livestock brands, property identification codes (pics) and bee hives registered in western australia. One or more property identification codes (pics) will. Property Identification Code Wa.
     
    
        From www.subdivisionexperts.com.au 
                    Residential Design Codes WA Using Variations Subdivision Experts Property Identification Code Wa  One or more property identification codes (pics) will be issued to indicate the properties that you have nominated to run your stock on. View details of all registered livestock brands, property identification codes (pics) and bee hives registered in western australia. Once your application has been processed, you will be issued with a registration certificate and property identification code (pic). Property Identification Code Wa.
     
    
        From www.mpac.ca 
                    Reading Your Property Assessment Notice MPAC Property Identification Code Wa  A registration certificate and pic card/s will be issued and. Western australia brand and pic register. When you register as an owner of livestock, you will be allocated a set of registered identifiers, including a stock brand, an earmark and a pig tattoo, along with a property identification code (pic). View details of all registered livestock brands, property identification codes. Property Identification Code Wa.
     
    
        From www.subdivisionexperts.com.au 
                    The R Codes WA What You Need to Know Subdivision Experts Property Identification Code Wa  A registration certificate and pic card/s will be issued and. View details of all registered livestock brands, property identification codes (pics) and bee hives registered in western australia. Western australia brand and pic register. When you register as an owner of livestock, you will be allocated a set of registered identifiers, including a stock brand, an earmark and a pig. Property Identification Code Wa.
     
    
        From propertywizards.com.au 
                    The New Medium Density Design Codes Property Wizards Buyers Agents Property Identification Code Wa  Western australia brand and pic register. Once your application has been processed, you will be issued with a registration certificate and property identification code (pic) card. Search by property identification code (pic) if only part is known, use the wildcard % for. What is a property identification code (pic)? One or more property identification codes (pics) will be issued to. Property Identification Code Wa.
     
    
        From www.pdffiller.com 
                    Fillable Online nt gov Registration form NT Property Identification Property Identification Code Wa  One or more property identification codes (pics) will be issued to indicate the properties that you have nominated to run your stock on. Western australia brand and pic register. Once your application has been processed, you will be issued with a registration certificate and property identification code (pic) card. If only part is known, use the wildcard % for remaining.. Property Identification Code Wa.
     
    
        From www.youtube.com 
                    How to update your Property Identification Code (PIC) YouTube Property Identification Code Wa  Western australia brand and pic register. One or more property identification codes (pics) will be issued to indicate the properties that you have nominated to run your stock on. Western australia brand and pic register. Once your application has been processed, you will be issued with a registration certificate and property identification code (pic) card. When you register as an. Property Identification Code Wa.
     
    
        From www.dpi.nsw.gov.au 
                    Property Identification Codes Department of Primary Industries Property Identification Code Wa  A registration certificate and pic card/s will be issued and. What is a property identification code (pic)? Western australia brand and pic register. If only part is known, use the wildcard % for remaining. One or more property identification codes (pics) will be issued to indicate the properties that you have nominated to run your stock on. When you register. Property Identification Code Wa.
     
    
        From www.pdffiller.com 
                    Fillable Online Property Identification Codes (PIC)Farm management Fax Property Identification Code Wa  One or more property identification codes (pics) will be issued to indicate the properties that you have nominated to run your stock on. If only part is known, use the wildcard % for remaining. A registration certificate and pic card/s will be issued and. When you register as an owner of livestock, you will be allocated a set of registered. Property Identification Code Wa.
     
    
        From www.researchgate.net 
                    Reference PIC regions, South Australia. Numbers indicate property Property Identification Code Wa  What is a property identification code (pic)? Search by property identification code (pic) if only part is known, use the wildcard % for. Once your application has been processed, you will be issued with a registration certificate and property identification code (pic) card. View details of all registered livestock brands, property identification codes (pics) and bee hives registered in western. Property Identification Code Wa.
     
    
        From www.myassettag.com 
                    Property Tag Barcode Number Labels (Pack of 1000), SKU ATB4PROPERTY Property Identification Code Wa  Search by property identification code (pic) if only part is known, use the wildcard % for. What is a property identification code (pic)? One or more property identification codes (pics) will be issued to indicate the properties that you have nominated to run your stock on. A registration certificate and pic card/s will be issued and. Western australia brand and. Property Identification Code Wa.
     
    
        From mavink.com 
                    What Is Property Id Property Identification Code Wa  Western australia brand and pic register. Search by property identification code (pic) if only part is known, use the wildcard % for. View details of all registered livestock brands, property identification codes (pics) and bee hives registered in western australia. One or more property identification codes (pics) will be issued to indicate the properties that you have nominated to run. Property Identification Code Wa.
     
    
        From www.youtube.com 
                    Applying for a Property Identification Code (PIC) YouTube Property Identification Code Wa  Western australia brand and pic register. View details of all registered livestock brands, property identification codes (pics) and bee hives registered in western australia. Search by property identification code (pic) if only part is known, use the wildcard % for. Once your application has been processed, you will be issued with a registration certificate and property identification code (pic) card.. Property Identification Code Wa.
     
    
        From texashistory.unt.edu 
                    Unclaimed Property Reporting Instructions Page 37 The Portal to Property Identification Code Wa  Once your application has been processed, you will be issued with a registration certificate and property identification code (pic) card. One or more property identification codes (pics) will be issued to indicate the properties that you have nominated to run your stock on. Western australia brand and pic register. When you register as an owner of livestock, you will be. Property Identification Code Wa.
     
    
        From studylib.net 
                    application for a livestock property identification code (pic) Property Identification Code Wa  When you register as an owner of livestock, you will be allocated a set of registered identifiers, including a stock brand, an earmark and a pig tattoo, along with a property identification code (pic). View details of all registered livestock brands, property identification codes (pics) and bee hives registered in western australia. If only part is known, use the wildcard. Property Identification Code Wa.
     
    
        From www.youtube.com 
                    What are Property Identification Codes (PICs)? YouTube Property Identification Code Wa  One or more property identification codes (pics) will be issued to indicate the properties that you have nominated to run your stock on. A registration certificate and pic card/s will be issued and. Western australia brand and pic register. When you register as an owner of livestock, you will be allocated a set of registered identifiers, including a stock brand,. Property Identification Code Wa.
     
    
        From www.thefarmerslot.com.au 
                    Property Identification Code for livestock biosecurity in Australia Property Identification Code Wa  Search by property identification code (pic) if only part is known, use the wildcard % for. Once your application has been processed, you will be issued with a registration certificate and property identification code (pic) card. A registration certificate and pic card/s will be issued and. Western australia brand and pic register. What is a property identification code (pic)? If. Property Identification Code Wa.
     
    
        From minrui.en.alibaba.com 
                    Custom Personal Property Identification Labels with Company Name and Property Identification Code Wa  View details of all registered livestock brands, property identification codes (pics) and bee hives registered in western australia. Search by property identification code (pic) if only part is known, use the wildcard % for. When you register as an owner of livestock, you will be allocated a set of registered identifiers, including a stock brand, an earmark and a pig. Property Identification Code Wa.
     
    
        From www.pdffiller.com 
                    Fillable Online Property Identification Code (PIC) of this property Fax Property Identification Code Wa  Search by property identification code (pic) if only part is known, use the wildcard % for. View details of all registered livestock brands, property identification codes (pics) and bee hives registered in western australia. When you register as an owner of livestock, you will be allocated a set of registered identifiers, including a stock brand, an earmark and a pig. Property Identification Code Wa.
     
    
        From www.obaconsulting.com.au 
                    New Property Identification Code OBA Consulting Property Identification Code Wa  Once your application has been processed, you will be issued with a registration certificate and property identification code (pic) card. Western australia brand and pic register. When you register as an owner of livestock, you will be allocated a set of registered identifiers, including a stock brand, an earmark and a pig tattoo, along with a property identification code (pic).. Property Identification Code Wa.
     
    
        From www.theurbanist.org 
                    Decode the Rainbow Utility Markings and Washington 811 The Urbanist Property Identification Code Wa  Once your application has been processed, you will be issued with a registration certificate and property identification code (pic) card. If only part is known, use the wildcard % for remaining. When you register as an owner of livestock, you will be allocated a set of registered identifiers, including a stock brand, an earmark and a pig tattoo, along with. Property Identification Code Wa.
     
    
        From www.pinterest.com 
                    The 5 Best Places to Use QR Codes for Real Estate Real estate, Qr Property Identification Code Wa  If only part is known, use the wildcard % for remaining. Western australia brand and pic register. Search by property identification code (pic) if only part is known, use the wildcard % for. Western australia brand and pic register. One or more property identification codes (pics) will be issued to indicate the properties that you have nominated to run your. Property Identification Code Wa.