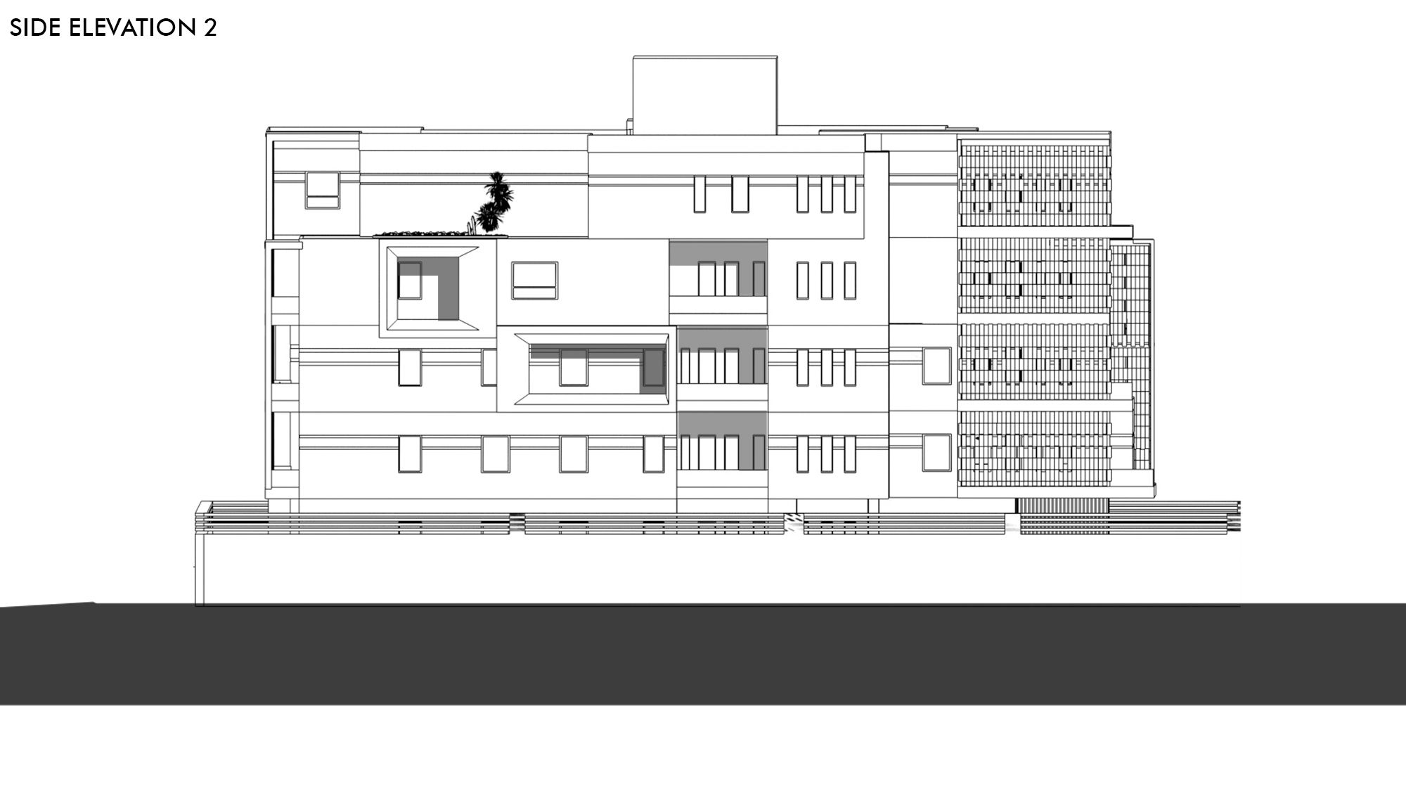
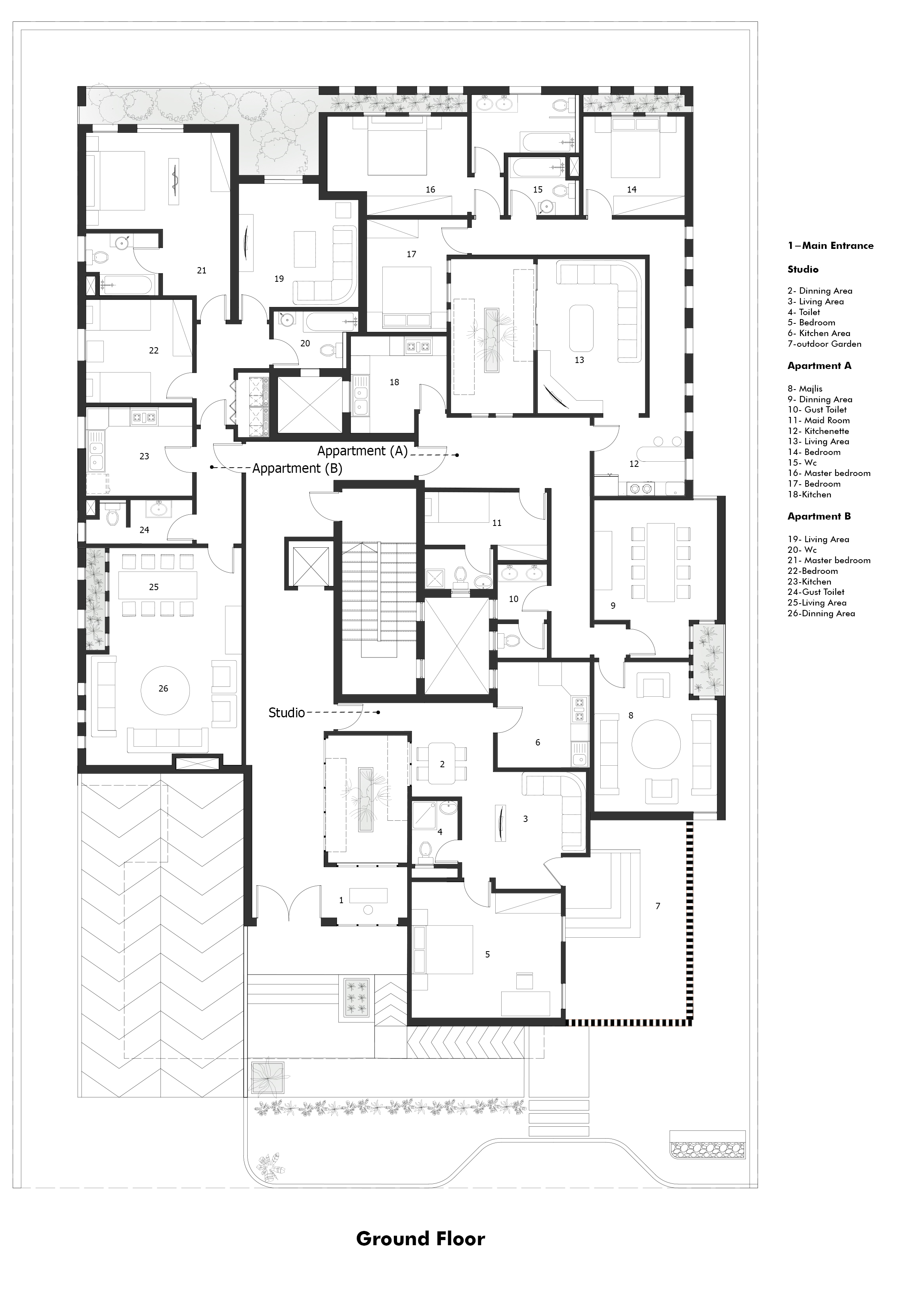
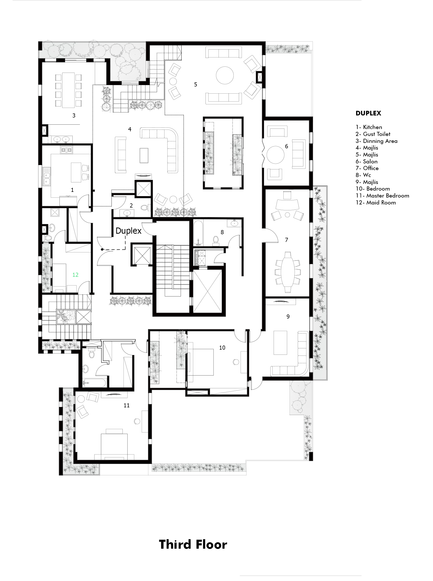
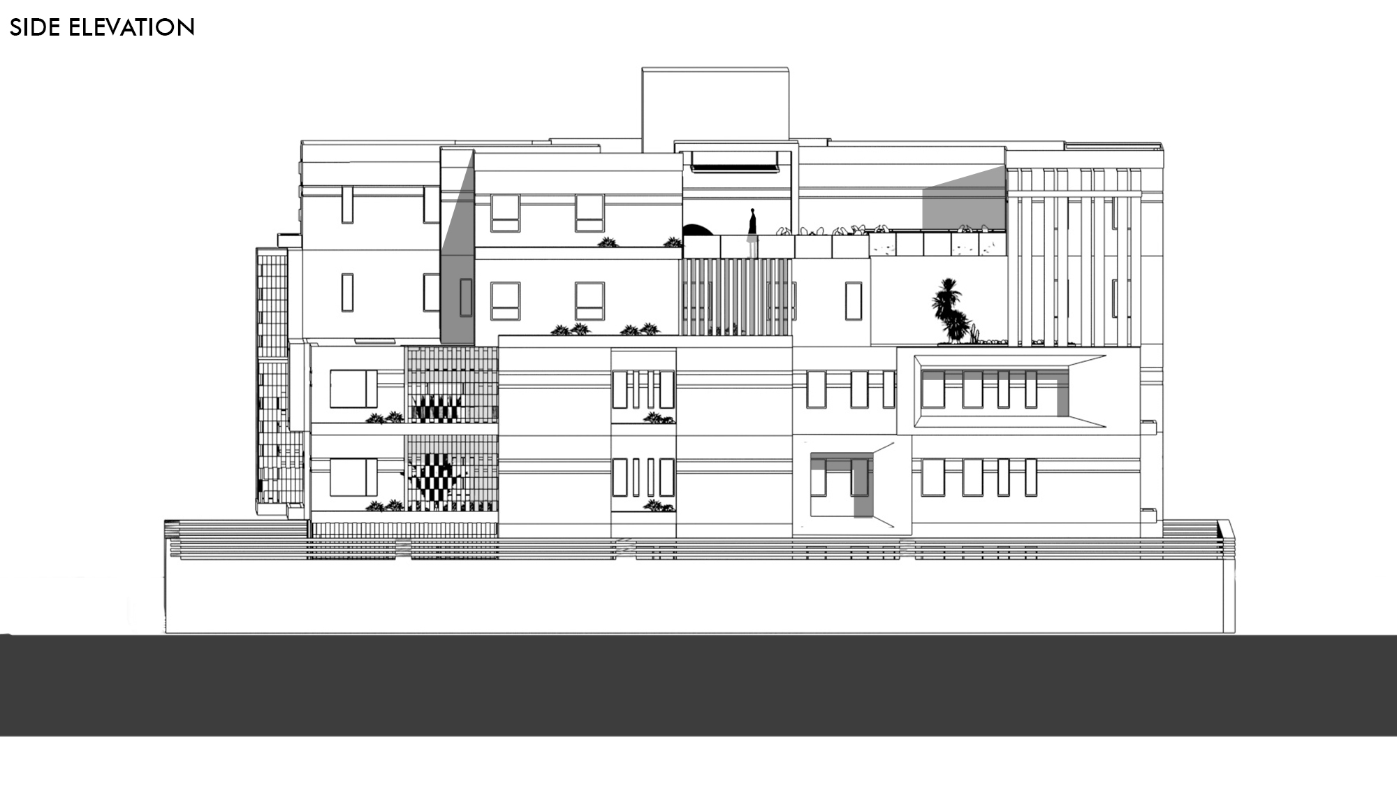
Mecca Residence . mecca is islam’s holiest city and a focal point for followers of the faith. mecca residence consists of 5 stories housing 9 apartments and a duplex, in addition to an underground parking that. here is the answer for the crossword clue mecca residents last seen in eugene sheffer puzzle. We will update this webpage with the. Mecca, saudi arabia (ap) — for zainab abdu, the holiest sites. kaaba, shrine located near the center of the great mosque in mecca and considered by muslims everywhere to be the most sacred spot on earth. People who grow up there say holy sites like the grand mosque housing the kaaba were backdrops to their childhood, where they played and hung out with their families. It’s the birthplace of prophet muhammad,. for residents, islam’s holiest sites are simply home. This webpage contains information relevant before the pandemic. for residents, islam's most sacred city mecca is simply home. We have found 40 possible.
from architizer.com
People who grow up there say holy sites like the grand mosque housing the kaaba were backdrops to their childhood, where they played and hung out with their families. mecca residence consists of 5 stories housing 9 apartments and a duplex, in addition to an underground parking that. We have found 40 possible. mecca is islam’s holiest city and a focal point for followers of the faith. kaaba, shrine located near the center of the great mosque in mecca and considered by muslims everywhere to be the most sacred spot on earth. This webpage contains information relevant before the pandemic. Mecca, saudi arabia (ap) — for zainab abdu, the holiest sites. for residents, islam’s holiest sites are simply home. here is the answer for the crossword clue mecca residents last seen in eugene sheffer puzzle. for residents, islam's most sacred city mecca is simply home.
MECCA RESIDENCE by Saif Mourad Creations SMC Architizer
Mecca Residence mecca is islam’s holiest city and a focal point for followers of the faith. It’s the birthplace of prophet muhammad,. here is the answer for the crossword clue mecca residents last seen in eugene sheffer puzzle. for residents, islam's most sacred city mecca is simply home. Mecca, saudi arabia (ap) — for zainab abdu, the holiest sites. People who grow up there say holy sites like the grand mosque housing the kaaba were backdrops to their childhood, where they played and hung out with their families. for residents, islam’s holiest sites are simply home. We have found 40 possible. kaaba, shrine located near the center of the great mosque in mecca and considered by muslims everywhere to be the most sacred spot on earth. We will update this webpage with the. mecca is islam’s holiest city and a focal point for followers of the faith. This webpage contains information relevant before the pandemic. mecca residence consists of 5 stories housing 9 apartments and a duplex, in addition to an underground parking that.
From architizer.com
MECCA RESIDENCE by Saif Mourad Creations SMC Architizer Mecca Residence We will update this webpage with the. here is the answer for the crossword clue mecca residents last seen in eugene sheffer puzzle. We have found 40 possible. kaaba, shrine located near the center of the great mosque in mecca and considered by muslims everywhere to be the most sacred spot on earth. Mecca, saudi arabia (ap) —. Mecca Residence.
From www.houzz.com
Gross Mecca Residence Mediterranean Deck Phoenix by Mecca Residence here is the answer for the crossword clue mecca residents last seen in eugene sheffer puzzle. for residents, islam's most sacred city mecca is simply home. mecca residence consists of 5 stories housing 9 apartments and a duplex, in addition to an underground parking that. People who grow up there say holy sites like the grand mosque. Mecca Residence.
From www.ganproperti.com
Grand Mecca Residence Mecca Residence mecca residence consists of 5 stories housing 9 apartments and a duplex, in addition to an underground parking that. kaaba, shrine located near the center of the great mosque in mecca and considered by muslims everywhere to be the most sacred spot on earth. It’s the birthplace of prophet muhammad,. for residents, islam’s holiest sites are simply. Mecca Residence.
From architizer.com
MECCA RESIDENCE by Saif Mourad Creations SMC Architizer Mecca Residence We have found 40 possible. People who grow up there say holy sites like the grand mosque housing the kaaba were backdrops to their childhood, where they played and hung out with their families. It’s the birthplace of prophet muhammad,. kaaba, shrine located near the center of the great mosque in mecca and considered by muslims everywhere to be. Mecca Residence.
From architizer.com
MECCA RESIDENCE by Saif Mourad Creations SMC Architizer Mecca Residence here is the answer for the crossword clue mecca residents last seen in eugene sheffer puzzle. for residents, islam's most sacred city mecca is simply home. kaaba, shrine located near the center of the great mosque in mecca and considered by muslims everywhere to be the most sacred spot on earth. mecca residence consists of 5. Mecca Residence.
From www.besthotelinmecca.net
Movenpick Hotel & Residence Hajar Tower Makkah Mecca, Saudi Arabia Mecca Residence It’s the birthplace of prophet muhammad,. for residents, islam's most sacred city mecca is simply home. mecca is islam’s holiest city and a focal point for followers of the faith. for residents, islam’s holiest sites are simply home. We have found 40 possible. People who grow up there say holy sites like the grand mosque housing the. Mecca Residence.
From architizer.com
MECCA RESIDENCE by Saif Mourad Creations SMC Architizer Mecca Residence mecca residence consists of 5 stories housing 9 apartments and a duplex, in addition to an underground parking that. here is the answer for the crossword clue mecca residents last seen in eugene sheffer puzzle. for residents, islam's most sacred city mecca is simply home. mecca is islam’s holiest city and a focal point for followers. Mecca Residence.
From www.ganproperti.com
Grand Mecca Residence Mecca Residence mecca is islam’s holiest city and a focal point for followers of the faith. kaaba, shrine located near the center of the great mosque in mecca and considered by muslims everywhere to be the most sacred spot on earth. here is the answer for the crossword clue mecca residents last seen in eugene sheffer puzzle. for. Mecca Residence.
From architizer.com
MECCA RESIDENCE by Saif Mourad Creations SMC Architizer Mecca Residence for residents, islam's most sacred city mecca is simply home. We have found 40 possible. mecca is islam’s holiest city and a focal point for followers of the faith. It’s the birthplace of prophet muhammad,. for residents, islam’s holiest sites are simply home. This webpage contains information relevant before the pandemic. kaaba, shrine located near the. Mecca Residence.
From architizer.com
MECCA RESIDENCE by Saif Mourad Creations SMC Architizer Mecca Residence mecca residence consists of 5 stories housing 9 apartments and a duplex, in addition to an underground parking that. kaaba, shrine located near the center of the great mosque in mecca and considered by muslims everywhere to be the most sacred spot on earth. We have found 40 possible. People who grow up there say holy sites like. Mecca Residence.
From www.ganproperti.com
Grand Mecca Residence Mecca Residence for residents, islam’s holiest sites are simply home. for residents, islam's most sacred city mecca is simply home. This webpage contains information relevant before the pandemic. mecca residence consists of 5 stories housing 9 apartments and a duplex, in addition to an underground parking that. People who grow up there say holy sites like the grand mosque. Mecca Residence.
From www.ganproperti.com
Grand Mecca Residence Mecca Residence We have found 40 possible. People who grow up there say holy sites like the grand mosque housing the kaaba were backdrops to their childhood, where they played and hung out with their families. It’s the birthplace of prophet muhammad,. here is the answer for the crossword clue mecca residents last seen in eugene sheffer puzzle. We will update. Mecca Residence.
From architizer.com
MECCA RESIDENCE by Saif Mourad Creations SMC Architizer Mecca Residence for residents, islam's most sacred city mecca is simply home. We will update this webpage with the. Mecca, saudi arabia (ap) — for zainab abdu, the holiest sites. mecca residence consists of 5 stories housing 9 apartments and a duplex, in addition to an underground parking that. People who grow up there say holy sites like the grand. Mecca Residence.
From architizer.com
MECCA RESIDENCE by Saif Mourad Creations SMC Architizer Mecca Residence here is the answer for the crossword clue mecca residents last seen in eugene sheffer puzzle. People who grow up there say holy sites like the grand mosque housing the kaaba were backdrops to their childhood, where they played and hung out with their families. Mecca, saudi arabia (ap) — for zainab abdu, the holiest sites. kaaba, shrine. Mecca Residence.
From architizer.com
MECCA RESIDENCE by Saif Mourad Creations SMC Architizer Mecca Residence for residents, islam's most sacred city mecca is simply home. for residents, islam’s holiest sites are simply home. This webpage contains information relevant before the pandemic. It’s the birthplace of prophet muhammad,. here is the answer for the crossword clue mecca residents last seen in eugene sheffer puzzle. We have found 40 possible. kaaba, shrine located. Mecca Residence.
From architizer.com
MECCA RESIDENCE by Saif Mourad Creations SMC Architizer Mecca Residence mecca is islam’s holiest city and a focal point for followers of the faith. for residents, islam’s holiest sites are simply home. We will update this webpage with the. mecca residence consists of 5 stories housing 9 apartments and a duplex, in addition to an underground parking that. for residents, islam's most sacred city mecca is. Mecca Residence.
From www.besthotelinmecca.net
Movenpick Hotel & Residence Hajar Tower Makkah Mecca, Saudi Arabia Mecca Residence We will update this webpage with the. Mecca, saudi arabia (ap) — for zainab abdu, the holiest sites. It’s the birthplace of prophet muhammad,. mecca is islam’s holiest city and a focal point for followers of the faith. mecca residence consists of 5 stories housing 9 apartments and a duplex, in addition to an underground parking that. . Mecca Residence.
From architizer.com
MECCA RESIDENCE by Saif Mourad Creations SMC Architizer Mecca Residence Mecca, saudi arabia (ap) — for zainab abdu, the holiest sites. We have found 40 possible. We will update this webpage with the. mecca is islam’s holiest city and a focal point for followers of the faith. kaaba, shrine located near the center of the great mosque in mecca and considered by muslims everywhere to be the most. Mecca Residence.
From architizer.com
MECCA RESIDENCE by Saif Mourad Creations SMC Architizer Mecca Residence It’s the birthplace of prophet muhammad,. People who grow up there say holy sites like the grand mosque housing the kaaba were backdrops to their childhood, where they played and hung out with their families. for residents, islam’s holiest sites are simply home. mecca residence consists of 5 stories housing 9 apartments and a duplex, in addition to. Mecca Residence.
From architizer.com
MECCA RESIDENCE by Saif Mourad Creations SMC Architizer Mecca Residence Mecca, saudi arabia (ap) — for zainab abdu, the holiest sites. This webpage contains information relevant before the pandemic. It’s the birthplace of prophet muhammad,. here is the answer for the crossword clue mecca residents last seen in eugene sheffer puzzle. mecca residence consists of 5 stories housing 9 apartments and a duplex, in addition to an underground. Mecca Residence.
From www.youtube.com
Mecca Residence Price Before Ramadan And In Ramadan l Umrah Packages Mecca Residence It’s the birthplace of prophet muhammad,. We will update this webpage with the. We have found 40 possible. for residents, islam’s holiest sites are simply home. Mecca, saudi arabia (ap) — for zainab abdu, the holiest sites. mecca is islam’s holiest city and a focal point for followers of the faith. This webpage contains information relevant before the. Mecca Residence.
From architizer.com
MECCA RESIDENCE by Saif Mourad Creations SMC Architizer Mecca Residence We will update this webpage with the. Mecca, saudi arabia (ap) — for zainab abdu, the holiest sites. It’s the birthplace of prophet muhammad,. for residents, islam’s holiest sites are simply home. We have found 40 possible. kaaba, shrine located near the center of the great mosque in mecca and considered by muslims everywhere to be the most. Mecca Residence.
From architizer.com
MECCA RESIDENCE by Saif Mourad Creations SMC Architizer Mecca Residence People who grow up there say holy sites like the grand mosque housing the kaaba were backdrops to their childhood, where they played and hung out with their families. mecca is islam’s holiest city and a focal point for followers of the faith. mecca residence consists of 5 stories housing 9 apartments and a duplex, in addition to. Mecca Residence.
From architizer.com
MECCA RESIDENCE by Saif Mourad Creations SMC Architizer Mecca Residence Mecca, saudi arabia (ap) — for zainab abdu, the holiest sites. This webpage contains information relevant before the pandemic. kaaba, shrine located near the center of the great mosque in mecca and considered by muslims everywhere to be the most sacred spot on earth. We have found 40 possible. mecca is islam’s holiest city and a focal point. Mecca Residence.
From jordan-properties.net
MECCA [2] RESIDENCE jordan Properties Mecca Residence for residents, islam’s holiest sites are simply home. mecca residence consists of 5 stories housing 9 apartments and a duplex, in addition to an underground parking that. mecca is islam’s holiest city and a focal point for followers of the faith. People who grow up there say holy sites like the grand mosque housing the kaaba were. Mecca Residence.
From www.ganproperti.com
Grand Mecca Residence Mecca Residence We will update this webpage with the. for residents, islam's most sacred city mecca is simply home. We have found 40 possible. Mecca, saudi arabia (ap) — for zainab abdu, the holiest sites. mecca residence consists of 5 stories housing 9 apartments and a duplex, in addition to an underground parking that. here is the answer for. Mecca Residence.
From architizer.com
MECCA RESIDENCE by Saif Mourad Creations SMC Architizer Mecca Residence Mecca, saudi arabia (ap) — for zainab abdu, the holiest sites. We will update this webpage with the. for residents, islam's most sacred city mecca is simply home. This webpage contains information relevant before the pandemic. We have found 40 possible. here is the answer for the crossword clue mecca residents last seen in eugene sheffer puzzle. It’s. Mecca Residence.
From www.vecteezy.com
Mecca, Saudi Arabia, Nov 2022 Beautiful view of residential buildings Mecca Residence We have found 40 possible. mecca is islam’s holiest city and a focal point for followers of the faith. It’s the birthplace of prophet muhammad,. mecca residence consists of 5 stories housing 9 apartments and a duplex, in addition to an underground parking that. here is the answer for the crossword clue mecca residents last seen in. Mecca Residence.
From architizer.com
MECCA RESIDENCE by Saif Mourad Creations SMC Architizer Mecca Residence mecca is islam’s holiest city and a focal point for followers of the faith. This webpage contains information relevant before the pandemic. Mecca, saudi arabia (ap) — for zainab abdu, the holiest sites. here is the answer for the crossword clue mecca residents last seen in eugene sheffer puzzle. It’s the birthplace of prophet muhammad,. We have found. Mecca Residence.
From architizer.com
MECCA RESIDENCE by Saif Mourad Creations SMC Architizer Mecca Residence mecca is islam’s holiest city and a focal point for followers of the faith. kaaba, shrine located near the center of the great mosque in mecca and considered by muslims everywhere to be the most sacred spot on earth. We will update this webpage with the. People who grow up there say holy sites like the grand mosque. Mecca Residence.
From www.agoda.com
Movenpick Hotel & Residence Hajar Tower Makkah in Mecca Room Deals Mecca Residence Mecca, saudi arabia (ap) — for zainab abdu, the holiest sites. We have found 40 possible. People who grow up there say holy sites like the grand mosque housing the kaaba were backdrops to their childhood, where they played and hung out with their families. It’s the birthplace of prophet muhammad,. for residents, islam’s holiest sites are simply home.. Mecca Residence.
From architizer.com
MECCA RESIDENCE by Saif Mourad Creations SMC Architizer Mecca Residence We will update this webpage with the. here is the answer for the crossword clue mecca residents last seen in eugene sheffer puzzle. kaaba, shrine located near the center of the great mosque in mecca and considered by muslims everywhere to be the most sacred spot on earth. for residents, islam's most sacred city mecca is simply. Mecca Residence.
From architizer.com
MECCA RESIDENCE by Saif Mourad Creations SMC Architizer Mecca Residence It’s the birthplace of prophet muhammad,. mecca residence consists of 5 stories housing 9 apartments and a duplex, in addition to an underground parking that. We will update this webpage with the. kaaba, shrine located near the center of the great mosque in mecca and considered by muslims everywhere to be the most sacred spot on earth. . Mecca Residence.
From architizer.com
MECCA RESIDENCE by Saif Mourad Creations SMC Architizer Mecca Residence for residents, islam’s holiest sites are simply home. for residents, islam's most sacred city mecca is simply home. here is the answer for the crossword clue mecca residents last seen in eugene sheffer puzzle. We will update this webpage with the. We have found 40 possible. mecca is islam’s holiest city and a focal point for. Mecca Residence.
From architizer.com
MECCA RESIDENCE by Saif Mourad Creations SMC Architizer Mecca Residence here is the answer for the crossword clue mecca residents last seen in eugene sheffer puzzle. mecca residence consists of 5 stories housing 9 apartments and a duplex, in addition to an underground parking that. mecca is islam’s holiest city and a focal point for followers of the faith. Mecca, saudi arabia (ap) — for zainab abdu,. Mecca Residence.