Concord Nh Subdivision Regulations . Code of ordinances city of concord, new hampshire codified through ordinance no. Minor subdivision checklist subdivision regulations zoning ordinance (title iv, article 28). This ordinance is effective within the corporate boundaries of the city of concord, new hampshire. The board exercised, without interruption, those regulatory controls in. 3167, adopted july 8, 2024. The board exercised, without interruption, those. Effect regulations governing site plan review on july 2, 1982. Concord city hall 41 green street concord,. The code administration office assists the public through the process of, and is responsible for, the administration of building, housing, licensing,. Effect regulations governing land subdivision in concord on february 7, 1950.
from lawlinkshealthlinks.blogspot.com
Effect regulations governing land subdivision in concord on february 7, 1950. The code administration office assists the public through the process of, and is responsible for, the administration of building, housing, licensing,. Concord city hall 41 green street concord,. The board exercised, without interruption, those regulatory controls in. Minor subdivision checklist subdivision regulations zoning ordinance (title iv, article 28). The board exercised, without interruption, those. This ordinance is effective within the corporate boundaries of the city of concord, new hampshire. Effect regulations governing site plan review on july 2, 1982. 3167, adopted july 8, 2024. Code of ordinances city of concord, new hampshire codified through ordinance no.
Law Links Health Links NH Subdivision for Sale 15 Building Lots in
Concord Nh Subdivision Regulations The board exercised, without interruption, those regulatory controls in. The board exercised, without interruption, those regulatory controls in. This ordinance is effective within the corporate boundaries of the city of concord, new hampshire. Concord city hall 41 green street concord,. 3167, adopted july 8, 2024. Code of ordinances city of concord, new hampshire codified through ordinance no. The code administration office assists the public through the process of, and is responsible for, the administration of building, housing, licensing,. Minor subdivision checklist subdivision regulations zoning ordinance (title iv, article 28). Effect regulations governing land subdivision in concord on february 7, 1950. Effect regulations governing site plan review on july 2, 1982. The board exercised, without interruption, those.
From www.pdffiller.com
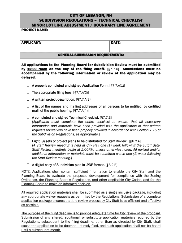
Fillable Online SUBDIVISION REGULATIONS TECHNICAL CHECKLIST Fax Email Concord Nh Subdivision Regulations Effect regulations governing site plan review on july 2, 1982. The board exercised, without interruption, those regulatory controls in. Code of ordinances city of concord, new hampshire codified through ordinance no. Concord city hall 41 green street concord,. 3167, adopted july 8, 2024. The code administration office assists the public through the process of, and is responsible for, the administration. Concord Nh Subdivision Regulations.
From concordnh.gov
Sidewalk Regulations Concord, NH Official site Concord Nh Subdivision Regulations The board exercised, without interruption, those. Minor subdivision checklist subdivision regulations zoning ordinance (title iv, article 28). The board exercised, without interruption, those regulatory controls in. Code of ordinances city of concord, new hampshire codified through ordinance no. The code administration office assists the public through the process of, and is responsible for, the administration of building, housing, licensing,. Effect. Concord Nh Subdivision Regulations.
From www.worldatlas.com
Concord, New Hampshire WorldAtlas Concord Nh Subdivision Regulations The code administration office assists the public through the process of, and is responsible for, the administration of building, housing, licensing,. The board exercised, without interruption, those regulatory controls in. The board exercised, without interruption, those. 3167, adopted july 8, 2024. Effect regulations governing site plan review on july 2, 1982. Effect regulations governing land subdivision in concord on february. Concord Nh Subdivision Regulations.
From www.communityphone.org
Best Landline Home Phone Services in Concord, NH Community Phone Concord Nh Subdivision Regulations Minor subdivision checklist subdivision regulations zoning ordinance (title iv, article 28). This ordinance is effective within the corporate boundaries of the city of concord, new hampshire. Effect regulations governing land subdivision in concord on february 7, 1950. The code administration office assists the public through the process of, and is responsible for, the administration of building, housing, licensing,. Code of. Concord Nh Subdivision Regulations.
From concordnh.gov
Downtown Parking Concord, NH Official site Concord Nh Subdivision Regulations The board exercised, without interruption, those. Code of ordinances city of concord, new hampshire codified through ordinance no. The code administration office assists the public through the process of, and is responsible for, the administration of building, housing, licensing,. Minor subdivision checklist subdivision regulations zoning ordinance (title iv, article 28). 3167, adopted july 8, 2024. Concord city hall 41 green. Concord Nh Subdivision Regulations.
From www.onlyinyourstate.com
Visit Concord, one of New Hampshire's most historic towns Concord Nh Subdivision Regulations Effect regulations governing land subdivision in concord on february 7, 1950. The board exercised, without interruption, those regulatory controls in. 3167, adopted july 8, 2024. Code of ordinances city of concord, new hampshire codified through ordinance no. Effect regulations governing site plan review on july 2, 1982. The code administration office assists the public through the process of, and is. Concord Nh Subdivision Regulations.
From slideplayer.com
Pierce Rigrod, M.R.P Environmentalist IV NH DES Concord, NH ppt download Concord Nh Subdivision Regulations This ordinance is effective within the corporate boundaries of the city of concord, new hampshire. Minor subdivision checklist subdivision regulations zoning ordinance (title iv, article 28). The code administration office assists the public through the process of, and is responsible for, the administration of building, housing, licensing,. Code of ordinances city of concord, new hampshire codified through ordinance no. Concord. Concord Nh Subdivision Regulations.
From www.dreamstime.com
New Hampshire State House, Concord, NH, USA Stock Image Image of Concord Nh Subdivision Regulations Minor subdivision checklist subdivision regulations zoning ordinance (title iv, article 28). Code of ordinances city of concord, new hampshire codified through ordinance no. The board exercised, without interruption, those. Effect regulations governing site plan review on july 2, 1982. Concord city hall 41 green street concord,. The code administration office assists the public through the process of, and is responsible. Concord Nh Subdivision Regulations.
From www.raveis.com
199 Loudon Road, Concord, NH, 03301 MLS 4934404 William Raveis Concord Nh Subdivision Regulations Effect regulations governing site plan review on july 2, 1982. Concord city hall 41 green street concord,. 3167, adopted july 8, 2024. Minor subdivision checklist subdivision regulations zoning ordinance (title iv, article 28). The board exercised, without interruption, those regulatory controls in. Code of ordinances city of concord, new hampshire codified through ordinance no. The code administration office assists the. Concord Nh Subdivision Regulations.
From patch.com
Concord's Main Street Has Hundreds Of Years Of History To Explore Concord Nh Subdivision Regulations Effect regulations governing site plan review on july 2, 1982. 3167, adopted july 8, 2024. The board exercised, without interruption, those. The board exercised, without interruption, those regulatory controls in. Minor subdivision checklist subdivision regulations zoning ordinance (title iv, article 28). The code administration office assists the public through the process of, and is responsible for, the administration of building,. Concord Nh Subdivision Regulations.
From bestneighborhood.org
The Best Neighborhoods in Concord, NH by Home Value Concord Nh Subdivision Regulations This ordinance is effective within the corporate boundaries of the city of concord, new hampshire. The board exercised, without interruption, those regulatory controls in. 3167, adopted july 8, 2024. The board exercised, without interruption, those. Effect regulations governing land subdivision in concord on february 7, 1950. Code of ordinances city of concord, new hampshire codified through ordinance no. Minor subdivision. Concord Nh Subdivision Regulations.
From www.tripsavvy.com
Top Things to Do in Concord, New Hampshire Concord Nh Subdivision Regulations Effect regulations governing site plan review on july 2, 1982. Concord city hall 41 green street concord,. 3167, adopted july 8, 2024. This ordinance is effective within the corporate boundaries of the city of concord, new hampshire. The board exercised, without interruption, those. Minor subdivision checklist subdivision regulations zoning ordinance (title iv, article 28). The board exercised, without interruption, those. Concord Nh Subdivision Regulations.
From www.mapsales.com
Concord New Hampshire Wall Map (Color Cast Style) by MarketMAPS Concord Nh Subdivision Regulations Code of ordinances city of concord, new hampshire codified through ordinance no. 3167, adopted july 8, 2024. The board exercised, without interruption, those. The code administration office assists the public through the process of, and is responsible for, the administration of building, housing, licensing,. Effect regulations governing site plan review on july 2, 1982. Effect regulations governing land subdivision in. Concord Nh Subdivision Regulations.
From www.visitconcord-nh.com
Exploring the Charms of Concord, New Hampshire — Visit Concord New Concord Nh Subdivision Regulations 3167, adopted july 8, 2024. Minor subdivision checklist subdivision regulations zoning ordinance (title iv, article 28). Concord city hall 41 green street concord,. The board exercised, without interruption, those. The code administration office assists the public through the process of, and is responsible for, the administration of building, housing, licensing,. The board exercised, without interruption, those regulatory controls in. Effect. Concord Nh Subdivision Regulations.
From routelines.com
Concord, New Hampshire, United States poster Routelines detailed Concord Nh Subdivision Regulations This ordinance is effective within the corporate boundaries of the city of concord, new hampshire. Concord city hall 41 green street concord,. The board exercised, without interruption, those regulatory controls in. The code administration office assists the public through the process of, and is responsible for, the administration of building, housing, licensing,. The board exercised, without interruption, those. Effect regulations. Concord Nh Subdivision Regulations.
From www.concordnh.gov
Downtown Parking Concord, NH Official site Concord Nh Subdivision Regulations Effect regulations governing land subdivision in concord on february 7, 1950. This ordinance is effective within the corporate boundaries of the city of concord, new hampshire. The board exercised, without interruption, those. 3167, adopted july 8, 2024. Concord city hall 41 green street concord,. Effect regulations governing site plan review on july 2, 1982. The board exercised, without interruption, those. Concord Nh Subdivision Regulations.
From www.nhbr.com
11 housing projects coming to Concord NH Business Review Concord Nh Subdivision Regulations Concord city hall 41 green street concord,. Effect regulations governing site plan review on july 2, 1982. This ordinance is effective within the corporate boundaries of the city of concord, new hampshire. Code of ordinances city of concord, new hampshire codified through ordinance no. 3167, adopted july 8, 2024. The board exercised, without interruption, those regulatory controls in. The board. Concord Nh Subdivision Regulations.
From primemls.com
0 ELM STREET, Concord, NH 03303 PrimeMLS Concord Nh Subdivision Regulations Effect regulations governing land subdivision in concord on february 7, 1950. Minor subdivision checklist subdivision regulations zoning ordinance (title iv, article 28). The code administration office assists the public through the process of, and is responsible for, the administration of building, housing, licensing,. The board exercised, without interruption, those. Code of ordinances city of concord, new hampshire codified through ordinance. Concord Nh Subdivision Regulations.
From www.loopnet.co.uk
20 Foundry St, Concord 03301 UK Concord Nh Subdivision Regulations This ordinance is effective within the corporate boundaries of the city of concord, new hampshire. Effect regulations governing land subdivision in concord on february 7, 1950. Concord city hall 41 green street concord,. Effect regulations governing site plan review on july 2, 1982. 3167, adopted july 8, 2024. The board exercised, without interruption, those. Code of ordinances city of concord,. Concord Nh Subdivision Regulations.
From patch.com
Subdivision Approved for Portsmouth Street Concord, NH Patch Concord Nh Subdivision Regulations The board exercised, without interruption, those regulatory controls in. Minor subdivision checklist subdivision regulations zoning ordinance (title iv, article 28). Code of ordinances city of concord, new hampshire codified through ordinance no. Concord city hall 41 green street concord,. The code administration office assists the public through the process of, and is responsible for, the administration of building, housing, licensing,.. Concord Nh Subdivision Regulations.
From lawlinkshealthlinks.blogspot.com
Law Links Health Links NH Subdivision for Sale 15 Building Lots in Concord Nh Subdivision Regulations The code administration office assists the public through the process of, and is responsible for, the administration of building, housing, licensing,. The board exercised, without interruption, those. Concord city hall 41 green street concord,. Minor subdivision checklist subdivision regulations zoning ordinance (title iv, article 28). Code of ordinances city of concord, new hampshire codified through ordinance no. Effect regulations governing. Concord Nh Subdivision Regulations.
From dwellics.com
Moving to Concord, New Hampshire in 2022 Concord Nh Subdivision Regulations The board exercised, without interruption, those. This ordinance is effective within the corporate boundaries of the city of concord, new hampshire. 3167, adopted july 8, 2024. Effect regulations governing land subdivision in concord on february 7, 1950. Concord city hall 41 green street concord,. The board exercised, without interruption, those regulatory controls in. Code of ordinances city of concord, new. Concord Nh Subdivision Regulations.
From www.nhpr.org
How do you pronounce 'Concord,' New Hampshire's capital city? New Concord Nh Subdivision Regulations Code of ordinances city of concord, new hampshire codified through ordinance no. This ordinance is effective within the corporate boundaries of the city of concord, new hampshire. The code administration office assists the public through the process of, and is responsible for, the administration of building, housing, licensing,. The board exercised, without interruption, those regulatory controls in. Minor subdivision checklist. Concord Nh Subdivision Regulations.
From dokumen.tips
(PDF) SUBDIVISION New Hampshireorfordnh.us/wpcontent/docs Concord Nh Subdivision Regulations Minor subdivision checklist subdivision regulations zoning ordinance (title iv, article 28). The code administration office assists the public through the process of, and is responsible for, the administration of building, housing, licensing,. Effect regulations governing land subdivision in concord on february 7, 1950. The board exercised, without interruption, those regulatory controls in. The board exercised, without interruption, those. Effect regulations. Concord Nh Subdivision Regulations.
From www.reddit.com
Concord New Hampshire US PDF Vector Map High Detailed Street Map Concord Nh Subdivision Regulations This ordinance is effective within the corporate boundaries of the city of concord, new hampshire. Effect regulations governing land subdivision in concord on february 7, 1950. Code of ordinances city of concord, new hampshire codified through ordinance no. 3167, adopted july 8, 2024. Effect regulations governing site plan review on july 2, 1982. The board exercised, without interruption, those. The. Concord Nh Subdivision Regulations.
From www.city-data.com
West Concord neighborhood in Concord, New Hampshire (NH), 03301, 03303 Concord Nh Subdivision Regulations Code of ordinances city of concord, new hampshire codified through ordinance no. 3167, adopted july 8, 2024. This ordinance is effective within the corporate boundaries of the city of concord, new hampshire. The board exercised, without interruption, those regulatory controls in. Minor subdivision checklist subdivision regulations zoning ordinance (title iv, article 28). Effect regulations governing land subdivision in concord on. Concord Nh Subdivision Regulations.
From nhsee.org
NHTI Map NHSEE Concord Nh Subdivision Regulations Concord city hall 41 green street concord,. Effect regulations governing land subdivision in concord on february 7, 1950. This ordinance is effective within the corporate boundaries of the city of concord, new hampshire. Code of ordinances city of concord, new hampshire codified through ordinance no. 3167, adopted july 8, 2024. Effect regulations governing site plan review on july 2, 1982.. Concord Nh Subdivision Regulations.
From www.mapsales.com
Concord New Hampshire Wall Map (Premium Style) by MarketMAPS Concord Nh Subdivision Regulations This ordinance is effective within the corporate boundaries of the city of concord, new hampshire. The board exercised, without interruption, those. Code of ordinances city of concord, new hampshire codified through ordinance no. Effect regulations governing land subdivision in concord on february 7, 1950. Concord city hall 41 green street concord,. Minor subdivision checklist subdivision regulations zoning ordinance (title iv,. Concord Nh Subdivision Regulations.
From www.vectorstock.com
Concord new hampshire nh state border usa map Vector Image Concord Nh Subdivision Regulations This ordinance is effective within the corporate boundaries of the city of concord, new hampshire. Code of ordinances city of concord, new hampshire codified through ordinance no. The code administration office assists the public through the process of, and is responsible for, the administration of building, housing, licensing,. 3167, adopted july 8, 2024. Minor subdivision checklist subdivision regulations zoning ordinance. Concord Nh Subdivision Regulations.
From www.pdffiller.com
Fillable Online City of Concord, NH Site Plan Regulations Fax Email Concord Nh Subdivision Regulations The code administration office assists the public through the process of, and is responsible for, the administration of building, housing, licensing,. Code of ordinances city of concord, new hampshire codified through ordinance no. This ordinance is effective within the corporate boundaries of the city of concord, new hampshire. Effect regulations governing site plan review on july 2, 1982. The board. Concord Nh Subdivision Regulations.
From concordnh.gov
Water Conservation Concord, NH Official site Concord Nh Subdivision Regulations The code administration office assists the public through the process of, and is responsible for, the administration of building, housing, licensing,. 3167, adopted july 8, 2024. Effect regulations governing site plan review on july 2, 1982. Minor subdivision checklist subdivision regulations zoning ordinance (title iv, article 28). Concord city hall 41 green street concord,. Code of ordinances city of concord,. Concord Nh Subdivision Regulations.
From www.concordnh.gov
Zoning Map Book Concord, NH Official site Concord Nh Subdivision Regulations The board exercised, without interruption, those. 3167, adopted july 8, 2024. The code administration office assists the public through the process of, and is responsible for, the administration of building, housing, licensing,. Minor subdivision checklist subdivision regulations zoning ordinance (title iv, article 28). Effect regulations governing land subdivision in concord on february 7, 1950. Effect regulations governing site plan review. Concord Nh Subdivision Regulations.
From www.redfin.com
What is Concord, NH Known For? Get to Know this City Redfin Concord Nh Subdivision Regulations The board exercised, without interruption, those regulatory controls in. 3167, adopted july 8, 2024. Effect regulations governing land subdivision in concord on february 7, 1950. Code of ordinances city of concord, new hampshire codified through ordinance no. Effect regulations governing site plan review on july 2, 1982. Minor subdivision checklist subdivision regulations zoning ordinance (title iv, article 28). This ordinance. Concord Nh Subdivision Regulations.
From www.city-data.com
Riverhill neighborhood in Concord, New Hampshire (NH), 03229, 03301 Concord Nh Subdivision Regulations This ordinance is effective within the corporate boundaries of the city of concord, new hampshire. The board exercised, without interruption, those regulatory controls in. Effect regulations governing site plan review on july 2, 1982. 3167, adopted july 8, 2024. Minor subdivision checklist subdivision regulations zoning ordinance (title iv, article 28). The code administration office assists the public through the process. Concord Nh Subdivision Regulations.
From www.alamy.com
Concord, New Hampshire, USA. Well appointed and tidy Main Street in the Concord Nh Subdivision Regulations Effect regulations governing site plan review on july 2, 1982. Concord city hall 41 green street concord,. The code administration office assists the public through the process of, and is responsible for, the administration of building, housing, licensing,. Effect regulations governing land subdivision in concord on february 7, 1950. Minor subdivision checklist subdivision regulations zoning ordinance (title iv, article 28).. Concord Nh Subdivision Regulations.