Elevator Opening Dimensions . What is the standard size of a commercial elevator?. The schindler 3300 traction elevator is recognized globally as the smartest. standard dimensions might range from 6.5 to 7 feet wide by 6 feet deep, which allows more people to move. Depth 2 1/16” ±1/2” for sill (52 ±13mm) support attachment 6” (152mm) tsw = min. doorway and opening dimensions: when planning and building an elevator, standard elevator measurements are an essential reference point. learn more about standard elevator dimensions, accessibility guidelines for elevator design and different elevator sizes and types. Service elevators prioritize functionality, so doors and openings need. 6” (152mm) tsw = min. What are the minimum dimensions for an elevator? the world’s most enlightened elevator.
from mavink.com
What is the standard size of a commercial elevator?. when planning and building an elevator, standard elevator measurements are an essential reference point. What are the minimum dimensions for an elevator? standard dimensions might range from 6.5 to 7 feet wide by 6 feet deep, which allows more people to move. the world’s most enlightened elevator. Depth 2 1/16” ±1/2” for sill (52 ±13mm) support attachment 6” (152mm) tsw = min. 6” (152mm) tsw = min. The schindler 3300 traction elevator is recognized globally as the smartest. learn more about standard elevator dimensions, accessibility guidelines for elevator design and different elevator sizes and types. Service elevators prioritize functionality, so doors and openings need.
Elevator Lobby Dimensions
Elevator Opening Dimensions Service elevators prioritize functionality, so doors and openings need. standard dimensions might range from 6.5 to 7 feet wide by 6 feet deep, which allows more people to move. doorway and opening dimensions: Service elevators prioritize functionality, so doors and openings need. What is the standard size of a commercial elevator?. when planning and building an elevator, standard elevator measurements are an essential reference point. learn more about standard elevator dimensions, accessibility guidelines for elevator design and different elevator sizes and types. The schindler 3300 traction elevator is recognized globally as the smartest. Depth 2 1/16” ±1/2” for sill (52 ±13mm) support attachment 6” (152mm) tsw = min. 6” (152mm) tsw = min. the world’s most enlightened elevator. What are the minimum dimensions for an elevator?
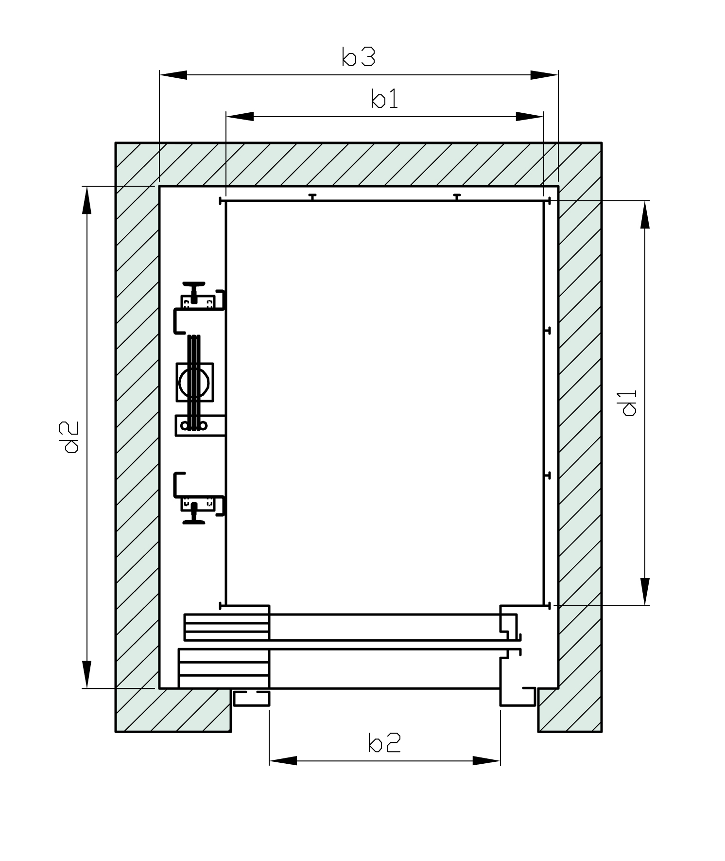
From www.dimensions.com
One Single Lift Elevator Bank Dimensions & Drawings Elevator Opening Dimensions Depth 2 1/16” ±1/2” for sill (52 ±13mm) support attachment 6” (152mm) tsw = min. 6” (152mm) tsw = min. What is the standard size of a commercial elevator?. What are the minimum dimensions for an elevator? The schindler 3300 traction elevator is recognized globally as the smartest. doorway and opening dimensions: when planning and building an elevator,. Elevator Opening Dimensions.
From www.rjlifts.co.uk
8 Person Lift Dimensions RJ Lift Services Ltd Elevator Opening Dimensions What are the minimum dimensions for an elevator? when planning and building an elevator, standard elevator measurements are an essential reference point. What is the standard size of a commercial elevator?. learn more about standard elevator dimensions, accessibility guidelines for elevator design and different elevator sizes and types. The schindler 3300 traction elevator is recognized globally as the. Elevator Opening Dimensions.
From www.archtoolbox.com
Elevator Controls and Indicators Archtoolbox Elevator Opening Dimensions What are the minimum dimensions for an elevator? standard dimensions might range from 6.5 to 7 feet wide by 6 feet deep, which allows more people to move. Depth 2 1/16” ±1/2” for sill (52 ±13mm) support attachment 6” (152mm) tsw = min. when planning and building an elevator, standard elevator measurements are an essential reference point. Service. Elevator Opening Dimensions.
From in.pinterest.com
VRS Hydraulic Elevator Technical Data Elevator design, Elevation Elevator Opening Dimensions Service elevators prioritize functionality, so doors and openings need. 6” (152mm) tsw = min. the world’s most enlightened elevator. standard dimensions might range from 6.5 to 7 feet wide by 6 feet deep, which allows more people to move. learn more about standard elevator dimensions, accessibility guidelines for elevator design and different elevator sizes and types. . Elevator Opening Dimensions.
From www.pinterest.com
Elevator Drawings Lift Designs Hyderabad Elevator Opening Dimensions learn more about standard elevator dimensions, accessibility guidelines for elevator design and different elevator sizes and types. standard dimensions might range from 6.5 to 7 feet wide by 6 feet deep, which allows more people to move. Service elevators prioritize functionality, so doors and openings need. What are the minimum dimensions for an elevator? What is the standard. Elevator Opening Dimensions.
From www.homenish.com
Standard Elevator Dimensions (For Residential & Commercial Elevators Elevator Opening Dimensions 6” (152mm) tsw = min. learn more about standard elevator dimensions, accessibility guidelines for elevator design and different elevator sizes and types. the world’s most enlightened elevator. Service elevators prioritize functionality, so doors and openings need. standard dimensions might range from 6.5 to 7 feet wide by 6 feet deep, which allows more people to move. . Elevator Opening Dimensions.
From www.elevatorboutique.com
E1 Home Elevator Residential Elevators at Elevator Boutique Elevator Opening Dimensions What is the standard size of a commercial elevator?. The schindler 3300 traction elevator is recognized globally as the smartest. doorway and opening dimensions: 6” (152mm) tsw = min. standard dimensions might range from 6.5 to 7 feet wide by 6 feet deep, which allows more people to move. Service elevators prioritize functionality, so doors and openings need.. Elevator Opening Dimensions.
From www.boutiqueelevators.com
E1 Mobility Lift Luxury Home Elevators Lift Shop Elevator Opening Dimensions What are the minimum dimensions for an elevator? the world’s most enlightened elevator. The schindler 3300 traction elevator is recognized globally as the smartest. 6” (152mm) tsw = min. Depth 2 1/16” ±1/2” for sill (52 ±13mm) support attachment 6” (152mm) tsw = min. What is the standard size of a commercial elevator?. Service elevators prioritize functionality, so doors. Elevator Opening Dimensions.
From www.cibesliftusa.com
How much space do you need for an elevator? Cibes Lifts Elevator Opening Dimensions What is the standard size of a commercial elevator?. doorway and opening dimensions: standard dimensions might range from 6.5 to 7 feet wide by 6 feet deep, which allows more people to move. when planning and building an elevator, standard elevator measurements are an essential reference point. 6” (152mm) tsw = min. The schindler 3300 traction elevator. Elevator Opening Dimensions.
From fity.club
Ukuran Lift Elevator Soalan L Elevator Opening Dimensions 6” (152mm) tsw = min. the world’s most enlightened elevator. standard dimensions might range from 6.5 to 7 feet wide by 6 feet deep, which allows more people to move. doorway and opening dimensions: Depth 2 1/16” ±1/2” for sill (52 ±13mm) support attachment 6” (152mm) tsw = min. What are the minimum dimensions for an elevator?. Elevator Opening Dimensions.
From www.pinterest.com
Elevator Revit Content elevator Elevator design, Elevation, Glass Elevator Opening Dimensions the world’s most enlightened elevator. What are the minimum dimensions for an elevator? standard dimensions might range from 6.5 to 7 feet wide by 6 feet deep, which allows more people to move. What is the standard size of a commercial elevator?. when planning and building an elevator, standard elevator measurements are an essential reference point. Depth. Elevator Opening Dimensions.
From in.pinterest.com
Elevator detail drawing in dwg AutoCAD file. Detailed drawings Elevator Opening Dimensions Service elevators prioritize functionality, so doors and openings need. doorway and opening dimensions: the world’s most enlightened elevator. learn more about standard elevator dimensions, accessibility guidelines for elevator design and different elevator sizes and types. 6” (152mm) tsw = min. What are the minimum dimensions for an elevator? when planning and building an elevator, standard elevator. Elevator Opening Dimensions.
From avtbeckett.com
Your Comprehensive Guide to Elevator Dimensions AVT Beckett Elevator Opening Dimensions What are the minimum dimensions for an elevator? What is the standard size of a commercial elevator?. doorway and opening dimensions: standard dimensions might range from 6.5 to 7 feet wide by 6 feet deep, which allows more people to move. The schindler 3300 traction elevator is recognized globally as the smartest. Depth 2 1/16” ±1/2” for sill. Elevator Opening Dimensions.
From www.dimensions.com
Elevators Lifts Dimensions & Drawings Elevator Opening Dimensions What are the minimum dimensions for an elevator? standard dimensions might range from 6.5 to 7 feet wide by 6 feet deep, which allows more people to move. 6” (152mm) tsw = min. doorway and opening dimensions: The schindler 3300 traction elevator is recognized globally as the smartest. Service elevators prioritize functionality, so doors and openings need. . Elevator Opening Dimensions.
From www.dimensions.com
MachineRoomLess Elevators Lifts Dimensions & Drawings Elevator Opening Dimensions Service elevators prioritize functionality, so doors and openings need. standard dimensions might range from 6.5 to 7 feet wide by 6 feet deep, which allows more people to move. Depth 2 1/16” ±1/2” for sill (52 ±13mm) support attachment 6” (152mm) tsw = min. doorway and opening dimensions: learn more about standard elevator dimensions, accessibility guidelines for. Elevator Opening Dimensions.
From www.dimensions.com
Elevator Lift Bank Layouts Dimensions & Drawings Elevator Opening Dimensions What are the minimum dimensions for an elevator? learn more about standard elevator dimensions, accessibility guidelines for elevator design and different elevator sizes and types. doorway and opening dimensions: when planning and building an elevator, standard elevator measurements are an essential reference point. What is the standard size of a commercial elevator?. 6” (152mm) tsw = min.. Elevator Opening Dimensions.
From www7.mississauga.ca
City of Mississauga Facility Accessibility Design Standards Elevator Opening Dimensions What are the minimum dimensions for an elevator? standard dimensions might range from 6.5 to 7 feet wide by 6 feet deep, which allows more people to move. The schindler 3300 traction elevator is recognized globally as the smartest. What is the standard size of a commercial elevator?. doorway and opening dimensions: Service elevators prioritize functionality, so doors. Elevator Opening Dimensions.
From www.elevatorboutique.com
Supermec Home Elevator Home Elevators at Elevator Boutique Elevator Opening Dimensions standard dimensions might range from 6.5 to 7 feet wide by 6 feet deep, which allows more people to move. when planning and building an elevator, standard elevator measurements are an essential reference point. doorway and opening dimensions: 6” (152mm) tsw = min. Service elevators prioritize functionality, so doors and openings need. learn more about standard. Elevator Opening Dimensions.
From www.ameriglide-rochester-ny.com
Home Elevator Resources for Builders & Architects Elevator Opening Dimensions The schindler 3300 traction elevator is recognized globally as the smartest. Service elevators prioritize functionality, so doors and openings need. What is the standard size of a commercial elevator?. What are the minimum dimensions for an elevator? when planning and building an elevator, standard elevator measurements are an essential reference point. the world’s most enlightened elevator. standard. Elevator Opening Dimensions.
From www.elevatorboutique.com
E2 Elevator Residential Elevators at Elevator Boutique Elevator Opening Dimensions Service elevators prioritize functionality, so doors and openings need. 6” (152mm) tsw = min. when planning and building an elevator, standard elevator measurements are an essential reference point. What is the standard size of a commercial elevator?. standard dimensions might range from 6.5 to 7 feet wide by 6 feet deep, which allows more people to move. . Elevator Opening Dimensions.
From greatestelevator.com
Elevator Shaft Layout Greatest Elevator Installation Services Elevator Opening Dimensions when planning and building an elevator, standard elevator measurements are an essential reference point. doorway and opening dimensions: the world’s most enlightened elevator. Service elevators prioritize functionality, so doors and openings need. Depth 2 1/16” ±1/2” for sill (52 ±13mm) support attachment 6” (152mm) tsw = min. The schindler 3300 traction elevator is recognized globally as the. Elevator Opening Dimensions.
From www.pinterest.se
Six Lift Elevator Bank Layout Elevation, Architect data, Layout Elevator Opening Dimensions The schindler 3300 traction elevator is recognized globally as the smartest. Service elevators prioritize functionality, so doors and openings need. doorway and opening dimensions: the world’s most enlightened elevator. Depth 2 1/16” ±1/2” for sill (52 ±13mm) support attachment 6” (152mm) tsw = min. What are the minimum dimensions for an elevator? What is the standard size of. Elevator Opening Dimensions.
From benazit.com
U.S. Access Board Chapter 4 Elevators and Platform Lifts (2022) Elevator Opening Dimensions Depth 2 1/16” ±1/2” for sill (52 ±13mm) support attachment 6” (152mm) tsw = min. the world’s most enlightened elevator. when planning and building an elevator, standard elevator measurements are an essential reference point. standard dimensions might range from 6.5 to 7 feet wide by 6 feet deep, which allows more people to move. learn more. Elevator Opening Dimensions.
From www.pinterest.com
Car Elevator Elevators Ventilation, Floor plans, Power unit Elevator Opening Dimensions The schindler 3300 traction elevator is recognized globally as the smartest. when planning and building an elevator, standard elevator measurements are an essential reference point. standard dimensions might range from 6.5 to 7 feet wide by 6 feet deep, which allows more people to move. Service elevators prioritize functionality, so doors and openings need. What are the minimum. Elevator Opening Dimensions.
From www.homenish.com
Standard Elevator Dimensions (For Residential & Commercial Elevators Elevator Opening Dimensions learn more about standard elevator dimensions, accessibility guidelines for elevator design and different elevator sizes and types. The schindler 3300 traction elevator is recognized globally as the smartest. when planning and building an elevator, standard elevator measurements are an essential reference point. doorway and opening dimensions: standard dimensions might range from 6.5 to 7 feet wide. Elevator Opening Dimensions.
From greatestelevator.com
Elevator Shaft Layout Greatest Elevator Installation Services Elevator Opening Dimensions when planning and building an elevator, standard elevator measurements are an essential reference point. Service elevators prioritize functionality, so doors and openings need. doorway and opening dimensions: What are the minimum dimensions for an elevator? the world’s most enlightened elevator. Depth 2 1/16” ±1/2” for sill (52 ±13mm) support attachment 6” (152mm) tsw = min. 6” (152mm). Elevator Opening Dimensions.
From delawareelevator.com
RESIDENTIAL ELEVATOR Delaware Elevator Elevator Opening Dimensions What is the standard size of a commercial elevator?. 6” (152mm) tsw = min. doorway and opening dimensions: Service elevators prioritize functionality, so doors and openings need. the world’s most enlightened elevator. Depth 2 1/16” ±1/2” for sill (52 ±13mm) support attachment 6” (152mm) tsw = min. when planning and building an elevator, standard elevator measurements are. Elevator Opening Dimensions.
From www.dimensions.com
Hydraulic Elevators Lifts Dimensions & Drawings Elevator Opening Dimensions What are the minimum dimensions for an elevator? Service elevators prioritize functionality, so doors and openings need. What is the standard size of a commercial elevator?. The schindler 3300 traction elevator is recognized globally as the smartest. doorway and opening dimensions: standard dimensions might range from 6.5 to 7 feet wide by 6 feet deep, which allows more. Elevator Opening Dimensions.
From www.boutiqueelevators.com
E2 Home Lift Residential Elevators at Lift Shop Elevator Opening Dimensions The schindler 3300 traction elevator is recognized globally as the smartest. doorway and opening dimensions: when planning and building an elevator, standard elevator measurements are an essential reference point. What is the standard size of a commercial elevator?. learn more about standard elevator dimensions, accessibility guidelines for elevator design and different elevator sizes and types. the. Elevator Opening Dimensions.
From www.elevatorboutique.com
E1 Home Elevator Residential Elevators at Elevator Boutique Elevator Opening Dimensions learn more about standard elevator dimensions, accessibility guidelines for elevator design and different elevator sizes and types. the world’s most enlightened elevator. What are the minimum dimensions for an elevator? Service elevators prioritize functionality, so doors and openings need. The schindler 3300 traction elevator is recognized globally as the smartest. 6” (152mm) tsw = min. doorway and. Elevator Opening Dimensions.
From pezcame.com
Elevator Door Dimensions & ""sc"1"st""Tokyo Lease Corporation Elevator Opening Dimensions Depth 2 1/16” ±1/2” for sill (52 ±13mm) support attachment 6” (152mm) tsw = min. when planning and building an elevator, standard elevator measurements are an essential reference point. Service elevators prioritize functionality, so doors and openings need. What is the standard size of a commercial elevator?. standard dimensions might range from 6.5 to 7 feet wide by. Elevator Opening Dimensions.
From mavink.com
Elevator Lobby Dimensions Elevator Opening Dimensions standard dimensions might range from 6.5 to 7 feet wide by 6 feet deep, which allows more people to move. when planning and building an elevator, standard elevator measurements are an essential reference point. 6” (152mm) tsw = min. doorway and opening dimensions: Depth 2 1/16” ±1/2” for sill (52 ±13mm) support attachment 6” (152mm) tsw =. Elevator Opening Dimensions.
From up.codes
LimitedUse / LimitedApplication Elevators UpCodes Elevator Opening Dimensions The schindler 3300 traction elevator is recognized globally as the smartest. the world’s most enlightened elevator. doorway and opening dimensions: standard dimensions might range from 6.5 to 7 feet wide by 6 feet deep, which allows more people to move. 6” (152mm) tsw = min. Service elevators prioritize functionality, so doors and openings need. Depth 2 1/16”. Elevator Opening Dimensions.
From mavink.com
Elevator Dimensions Meters Elevator Opening Dimensions Depth 2 1/16” ±1/2” for sill (52 ±13mm) support attachment 6” (152mm) tsw = min. learn more about standard elevator dimensions, accessibility guidelines for elevator design and different elevator sizes and types. What are the minimum dimensions for an elevator? when planning and building an elevator, standard elevator measurements are an essential reference point. doorway and opening. Elevator Opening Dimensions.
From fity.club
Ukuran Lift Elevator Soalan L Elevator Opening Dimensions when planning and building an elevator, standard elevator measurements are an essential reference point. What are the minimum dimensions for an elevator? learn more about standard elevator dimensions, accessibility guidelines for elevator design and different elevator sizes and types. What is the standard size of a commercial elevator?. the world’s most enlightened elevator. standard dimensions might. Elevator Opening Dimensions.