Parent Child Exclusion California Form . For transfers occurring on or before february 15, 2021,. this claim form is for transfers occurring on or after february 16, 2021. — the requirements, as of february 16, 2021, for proposition 19 exclusion include, but are not limited to:. They are also available by calling or writing the. claim forms are available to view and/or print by clicking below. claim for reassessment exclusion for transfer between parent and child. this exclusion applies to a principal residence and up to $1,000,000 (taxable value) of additional real estate. Revenue and taxation code, section 63.1. california state law allows property to be excluded from reappraisal when transferred between grandparent and grandchild,.
from www.mcdlawyers.net
— the requirements, as of february 16, 2021, for proposition 19 exclusion include, but are not limited to:. They are also available by calling or writing the. this exclusion applies to a principal residence and up to $1,000,000 (taxable value) of additional real estate. claim forms are available to view and/or print by clicking below. Revenue and taxation code, section 63.1. this claim form is for transfers occurring on or after february 16, 2021. For transfers occurring on or before february 15, 2021,. california state law allows property to be excluded from reappraisal when transferred between grandparent and grandchild,. claim for reassessment exclusion for transfer between parent and child.
Say Goodbye To (Most Of) The Reassessment Exclusion for ParentToChild Transfers of California
Parent Child Exclusion California Form this claim form is for transfers occurring on or after february 16, 2021. claim for reassessment exclusion for transfer between parent and child. Revenue and taxation code, section 63.1. For transfers occurring on or before february 15, 2021,. this exclusion applies to a principal residence and up to $1,000,000 (taxable value) of additional real estate. They are also available by calling or writing the. claim forms are available to view and/or print by clicking below. california state law allows property to be excluded from reappraisal when transferred between grandparent and grandchild,. — the requirements, as of february 16, 2021, for proposition 19 exclusion include, but are not limited to:. this claim form is for transfers occurring on or after february 16, 2021.
From www.templateroller.com
Form BOE19P Fill Out, Sign Online and Download Fillable PDF, California Templateroller Parent Child Exclusion California Form claim for reassessment exclusion for transfer between parent and child. They are also available by calling or writing the. claim forms are available to view and/or print by clicking below. this claim form is for transfers occurring on or after february 16, 2021. — the requirements, as of february 16, 2021, for proposition 19 exclusion include,. Parent Child Exclusion California Form.
From www.pdffiller.com
Fillable Online slocounty ca Parent to Child Exclusion Fax Email Print pdfFiller Parent Child Exclusion California Form — the requirements, as of february 16, 2021, for proposition 19 exclusion include, but are not limited to:. They are also available by calling or writing the. claim forms are available to view and/or print by clicking below. claim for reassessment exclusion for transfer between parent and child. Revenue and taxation code, section 63.1. this exclusion. Parent Child Exclusion California Form.
From propertytaxnews.org
CA Prop 19 ParentChild Exclusion California Property Tax NewsCalifornia Property Tax News Parent Child Exclusion California Form this claim form is for transfers occurring on or after february 16, 2021. california state law allows property to be excluded from reappraisal when transferred between grandparent and grandchild,. They are also available by calling or writing the. this exclusion applies to a principal residence and up to $1,000,000 (taxable value) of additional real estate. Revenue and. Parent Child Exclusion California Form.
From www.templateroller.com
Form LIC995D Fill Out, Sign Online and Download Printable PDF, California Templateroller Parent Child Exclusion California Form For transfers occurring on or before february 15, 2021,. this claim form is for transfers occurring on or after february 16, 2021. california state law allows property to be excluded from reappraisal when transferred between grandparent and grandchild,. this exclusion applies to a principal residence and up to $1,000,000 (taxable value) of additional real estate. —. Parent Child Exclusion California Form.
From propertytaxnews.org
CA Prop 58 Parent to Child Exclusion From Current Market Reassessment Archives California Parent Child Exclusion California Form this claim form is for transfers occurring on or after february 16, 2021. — the requirements, as of february 16, 2021, for proposition 19 exclusion include, but are not limited to:. They are also available by calling or writing the. claim for reassessment exclusion for transfer between parent and child. this exclusion applies to a principal. Parent Child Exclusion California Form.
From www.templateroller.com
Form PERSEAMD139 Download Fillable PDF or Fill Online Notice of Exclusion From CalPERS Parent Child Exclusion California Form this claim form is for transfers occurring on or after february 16, 2021. claim for reassessment exclusion for transfer between parent and child. this exclusion applies to a principal residence and up to $1,000,000 (taxable value) of additional real estate. claim forms are available to view and/or print by clicking below. Revenue and taxation code, section. Parent Child Exclusion California Form.
From www.mcdlawyers.net
Say Goodbye To (Most Of) The Reassessment Exclusion for ParentToChild Transfers of California Parent Child Exclusion California Form For transfers occurring on or before february 15, 2021,. Revenue and taxation code, section 63.1. california state law allows property to be excluded from reappraisal when transferred between grandparent and grandchild,. — the requirements, as of february 16, 2021, for proposition 19 exclusion include, but are not limited to:. claim for reassessment exclusion for transfer between parent. Parent Child Exclusion California Form.
From www.templateroller.com
Form BOE19P Fill Out, Sign Online and Download Printable PDF, California Templateroller Parent Child Exclusion California Form — the requirements, as of february 16, 2021, for proposition 19 exclusion include, but are not limited to:. claim forms are available to view and/or print by clicking below. They are also available by calling or writing the. this claim form is for transfers occurring on or after february 16, 2021. claim for reassessment exclusion for. Parent Child Exclusion California Form.
From www.templateroller.com
Form BOE19P Fill Out, Sign Online and Download Printable PDF, California Templateroller Parent Child Exclusion California Form claim forms are available to view and/or print by clicking below. They are also available by calling or writing the. For transfers occurring on or before february 15, 2021,. this claim form is for transfers occurring on or after february 16, 2021. this exclusion applies to a principal residence and up to $1,000,000 (taxable value) of additional. Parent Child Exclusion California Form.
From www.formsbank.com
Fillable Family Child Care Home Addendum To Notification Of Parents' Rights (Regarding Removal Parent Child Exclusion California Form claim for reassessment exclusion for transfer between parent and child. california state law allows property to be excluded from reappraisal when transferred between grandparent and grandchild,. this claim form is for transfers occurring on or after february 16, 2021. They are also available by calling or writing the. claim forms are available to view and/or print. Parent Child Exclusion California Form.
From propertytaxnews.org
Prop 19 (Prop 58) ParentChild Exclusion California Property Tax NewsCalifornia Property Tax News Parent Child Exclusion California Form Revenue and taxation code, section 63.1. — the requirements, as of february 16, 2021, for proposition 19 exclusion include, but are not limited to:. For transfers occurring on or before february 15, 2021,. this claim form is for transfers occurring on or after february 16, 2021. claim forms are available to view and/or print by clicking below.. Parent Child Exclusion California Form.
From www.templateroller.com
Form BOE62R Fill Out, Sign Online and Download Fillable PDF, California Templateroller Parent Child Exclusion California Form They are also available by calling or writing the. this exclusion applies to a principal residence and up to $1,000,000 (taxable value) of additional real estate. claim forms are available to view and/or print by clicking below. For transfers occurring on or before february 15, 2021,. claim for reassessment exclusion for transfer between parent and child. Revenue. Parent Child Exclusion California Form.
From www.templateroller.com
Form BOE58AH Fill Out, Sign Online and Download Printable PDF, California Templateroller Parent Child Exclusion California Form They are also available by calling or writing the. claim forms are available to view and/or print by clicking below. this exclusion applies to a principal residence and up to $1,000,000 (taxable value) of additional real estate. claim for reassessment exclusion for transfer between parent and child. For transfers occurring on or before february 15, 2021,. Revenue. Parent Child Exclusion California Form.
From www.templateroller.com
Form BOE58AH Fill Out, Sign Online and Download Fillable PDF, California Templateroller Parent Child Exclusion California Form They are also available by calling or writing the. this claim form is for transfers occurring on or after february 16, 2021. For transfers occurring on or before february 15, 2021,. claim forms are available to view and/or print by clicking below. california state law allows property to be excluded from reappraisal when transferred between grandparent and. Parent Child Exclusion California Form.
From www.templateroller.com
Form BOE58AH Fill Out, Sign Online and Download Printable PDF, California Templateroller Parent Child Exclusion California Form For transfers occurring on or before february 15, 2021,. california state law allows property to be excluded from reappraisal when transferred between grandparent and grandchild,. claim for reassessment exclusion for transfer between parent and child. claim forms are available to view and/or print by clicking below. They are also available by calling or writing the. —. Parent Child Exclusion California Form.
From www.templateroller.com
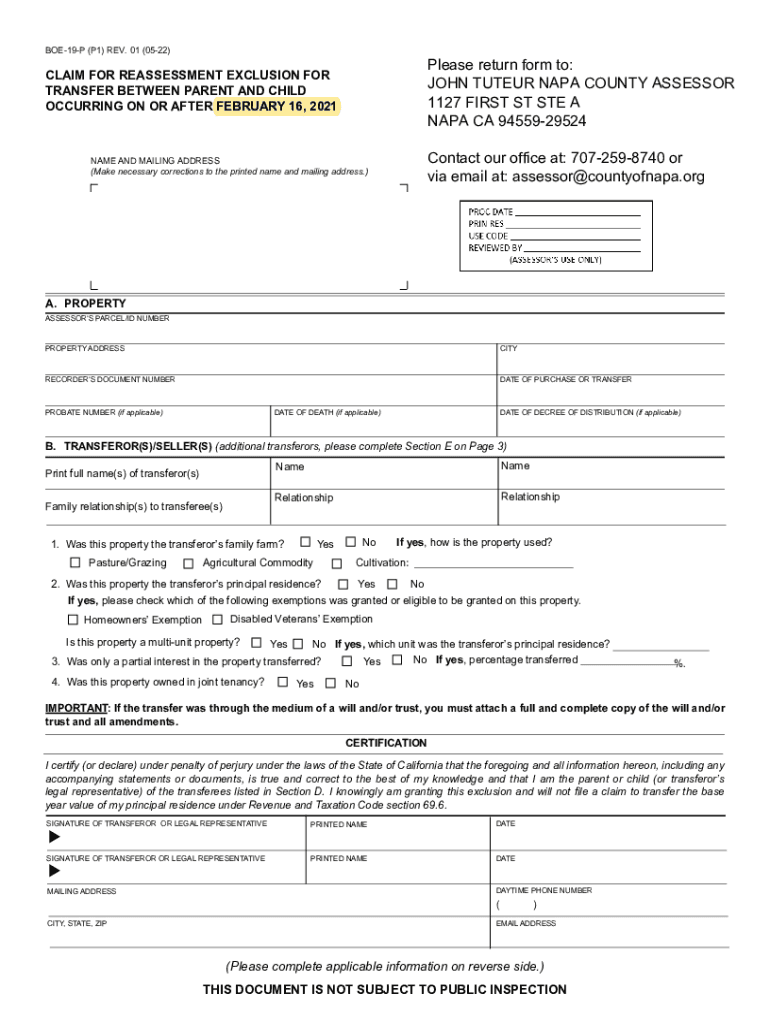
Form BOE19P Download Fillable PDF or Fill Online Claim for Reassessment Exclusion for Transfer Parent Child Exclusion California Form Revenue and taxation code, section 63.1. this claim form is for transfers occurring on or after february 16, 2021. — the requirements, as of february 16, 2021, for proposition 19 exclusion include, but are not limited to:. this exclusion applies to a principal residence and up to $1,000,000 (taxable value) of additional real estate. claim for. Parent Child Exclusion California Form.
From www.uslegalforms.com
UT Parental Exclusion From State Assessments Form Elementary State Assessments 20202022 Fill Parent Child Exclusion California Form this claim form is for transfers occurring on or after february 16, 2021. They are also available by calling or writing the. california state law allows property to be excluded from reappraisal when transferred between grandparent and grandchild,. — the requirements, as of february 16, 2021, for proposition 19 exclusion include, but are not limited to:. . Parent Child Exclusion California Form.
From www.templateroller.com
Form BOE19P Fill Out, Sign Online and Download Fillable PDF, California Templateroller Parent Child Exclusion California Form claim for reassessment exclusion for transfer between parent and child. They are also available by calling or writing the. claim forms are available to view and/or print by clicking below. Revenue and taxation code, section 63.1. For transfers occurring on or before february 15, 2021,. this exclusion applies to a principal residence and up to $1,000,000 (taxable. Parent Child Exclusion California Form.
From propertytaxnews.org
Prop 58 and its' ParentChild Exclusion California Property Tax NewsCalifornia Property Tax News Parent Child Exclusion California Form Revenue and taxation code, section 63.1. this exclusion applies to a principal residence and up to $1,000,000 (taxable value) of additional real estate. They are also available by calling or writing the. — the requirements, as of february 16, 2021, for proposition 19 exclusion include, but are not limited to:. california state law allows property to be. Parent Child Exclusion California Form.
From www.templateroller.com
Form BOE58AH Fill Out, Sign Online and Download Printable PDF, California Templateroller Parent Child Exclusion California Form For transfers occurring on or before february 15, 2021,. california state law allows property to be excluded from reappraisal when transferred between grandparent and grandchild,. — the requirements, as of february 16, 2021, for proposition 19 exclusion include, but are not limited to:. claim forms are available to view and/or print by clicking below. They are also. Parent Child Exclusion California Form.
From www.templateroller.com
Form BOE58AH Fill Out, Sign Online and Download Fillable PDF, County of San Diego Parent Child Exclusion California Form this exclusion applies to a principal residence and up to $1,000,000 (taxable value) of additional real estate. Revenue and taxation code, section 63.1. They are also available by calling or writing the. For transfers occurring on or before february 15, 2021,. — the requirements, as of february 16, 2021, for proposition 19 exclusion include, but are not limited. Parent Child Exclusion California Form.
From jmvlaw.com
California ParentChild Property Tax Exclusions JMV Law Group Parent Child Exclusion California Form Revenue and taxation code, section 63.1. — the requirements, as of february 16, 2021, for proposition 19 exclusion include, but are not limited to:. claim for reassessment exclusion for transfer between parent and child. For transfers occurring on or before february 15, 2021,. this exclusion applies to a principal residence and up to $1,000,000 (taxable value) of. Parent Child Exclusion California Form.
From patch.com
Free Guide for Walnut Creek Neighbors Prop. 19 Parent/Child Exclusion Walnut Creek, CA Patch Parent Child Exclusion California Form claim forms are available to view and/or print by clicking below. Revenue and taxation code, section 63.1. For transfers occurring on or before february 15, 2021,. claim for reassessment exclusion for transfer between parent and child. They are also available by calling or writing the. this claim form is for transfers occurring on or after february 16,. Parent Child Exclusion California Form.
From www.templateroller.com
Download Instructions for Form BOE58AH Claim for Reassessment Exclusion for Transfer Between Parent Child Exclusion California Form claim forms are available to view and/or print by clicking below. this exclusion applies to a principal residence and up to $1,000,000 (taxable value) of additional real estate. For transfers occurring on or before february 15, 2021,. Revenue and taxation code, section 63.1. They are also available by calling or writing the. claim for reassessment exclusion for. Parent Child Exclusion California Form.
From calestateplanning.blogspot.com
Estate Planning in California ParentChild Exclusion and Rental Property Parent Child Exclusion California Form claim forms are available to view and/or print by clicking below. For transfers occurring on or before february 15, 2021,. — the requirements, as of february 16, 2021, for proposition 19 exclusion include, but are not limited to:. california state law allows property to be excluded from reappraisal when transferred between grandparent and grandchild,. this claim. Parent Child Exclusion California Form.
From www.templateroller.com
Form CGCCCH706 Download Fillable PDF or Fill Online Selfexclusion Removal Request, California Parent Child Exclusion California Form They are also available by calling or writing the. claim forms are available to view and/or print by clicking below. this claim form is for transfers occurring on or after february 16, 2021. — the requirements, as of february 16, 2021, for proposition 19 exclusion include, but are not limited to:. For transfers occurring on or before. Parent Child Exclusion California Form.
From www.daycareenrollmentforms.com
Daycare Enrollment Forms Child Care Registration Forms & Templates Download, Save, Print Parent Child Exclusion California Form Revenue and taxation code, section 63.1. this claim form is for transfers occurring on or after february 16, 2021. claim forms are available to view and/or print by clicking below. For transfers occurring on or before february 15, 2021,. california state law allows property to be excluded from reappraisal when transferred between grandparent and grandchild,. —. Parent Child Exclusion California Form.
From templatelab.com
50 Printable Parental Consent Form & Templates ᐅ TemplateLab Parent Child Exclusion California Form claim forms are available to view and/or print by clicking below. They are also available by calling or writing the. — the requirements, as of february 16, 2021, for proposition 19 exclusion include, but are not limited to:. california state law allows property to be excluded from reappraisal when transferred between grandparent and grandchild,. this claim. Parent Child Exclusion California Form.
From www.pdffiller.com
Fillable Online 2023 Claim for Reassessment Exclusion for Transfer Between Parent and Child Fax Parent Child Exclusion California Form this exclusion applies to a principal residence and up to $1,000,000 (taxable value) of additional real estate. — the requirements, as of february 16, 2021, for proposition 19 exclusion include, but are not limited to:. claim forms are available to view and/or print by clicking below. Revenue and taxation code, section 63.1. claim for reassessment exclusion. Parent Child Exclusion California Form.
From www.signnow.com
Megan's Law Exclusion California 20052024 Form Fill Out and Sign Printable PDF Template Parent Child Exclusion California Form california state law allows property to be excluded from reappraisal when transferred between grandparent and grandchild,. this exclusion applies to a principal residence and up to $1,000,000 (taxable value) of additional real estate. They are also available by calling or writing the. claim forms are available to view and/or print by clicking below. this claim form. Parent Child Exclusion California Form.
From www.sierracounty.ca.gov
Parent Child / Grandparent Grandchild Exclusion Sierra County, CA Official site Parent Child Exclusion California Form They are also available by calling or writing the. For transfers occurring on or before february 15, 2021,. claim for reassessment exclusion for transfer between parent and child. claim forms are available to view and/or print by clicking below. this exclusion applies to a principal residence and up to $1,000,000 (taxable value) of additional real estate. . Parent Child Exclusion California Form.
From www.formsbank.com
Document Of NonParental Support Exclusion Of Parent Information On Fafsa Form Vcu Parent Child Exclusion California Form claim forms are available to view and/or print by clicking below. Revenue and taxation code, section 63.1. california state law allows property to be excluded from reappraisal when transferred between grandparent and grandchild,. For transfers occurring on or before february 15, 2021,. this claim form is for transfers occurring on or after february 16, 2021. —. Parent Child Exclusion California Form.
From propertytaxnews.org
Prop 19 ParenttoChild Exclusion California Property Tax NewsCalifornia Property Tax News Parent Child Exclusion California Form claim for reassessment exclusion for transfer between parent and child. Revenue and taxation code, section 63.1. this claim form is for transfers occurring on or after february 16, 2021. claim forms are available to view and/or print by clicking below. this exclusion applies to a principal residence and up to $1,000,000 (taxable value) of additional real. Parent Child Exclusion California Form.
From www.youtube.com
California Parent to Child Exclusion Form Instructions YouTube Parent Child Exclusion California Form — the requirements, as of february 16, 2021, for proposition 19 exclusion include, but are not limited to:. For transfers occurring on or before february 15, 2021,. this claim form is for transfers occurring on or after february 16, 2021. this exclusion applies to a principal residence and up to $1,000,000 (taxable value) of additional real estate.. Parent Child Exclusion California Form.
From www.templateroller.com
Form BOE62R Fill Out, Sign Online and Download Fillable PDF, California Templateroller Parent Child Exclusion California Form Revenue and taxation code, section 63.1. california state law allows property to be excluded from reappraisal when transferred between grandparent and grandchild,. — the requirements, as of february 16, 2021, for proposition 19 exclusion include, but are not limited to:. They are also available by calling or writing the. claim forms are available to view and/or print. Parent Child Exclusion California Form.