Belt Conveyor Design Autocad Drawing . Modeling of a conveyor belt with components and structures: Modular plastic belt conveyors (for easy cleaning) features: Download cad block in dwg. Rollers, truss, beams and drive motor. Format dwg file size 1.62 mb Download cad block in dwg. Autocad dwg file available for free download that features a detailed design of a conveyor lifting belt, including both plan and elevation 2d views. Detail of structures, of conveyor belts. Utilize the design center to access a wide range of 2d conveyor belt cad blocks and drawings,. Development of a conveyor belt design for industries. Also known as an inclined belt. Various width and length options. It presents a plan, longitudinal section, transversal section, view and detail with specifications and designations.
from grabcad.com
Also known as an inclined belt. Download cad block in dwg. It presents a plan, longitudinal section, transversal section, view and detail with specifications and designations. Download cad block in dwg. Modeling of a conveyor belt with components and structures: Rollers, truss, beams and drive motor. Autocad dwg file available for free download that features a detailed design of a conveyor lifting belt, including both plan and elevation 2d views. Detail of structures, of conveyor belts. Format dwg file size 1.62 mb Development of a conveyor belt design for industries.
Belt conveyor 3D CAD Model Library GrabCAD
Belt Conveyor Design Autocad Drawing Modular plastic belt conveyors (for easy cleaning) features: Development of a conveyor belt design for industries. Modular plastic belt conveyors (for easy cleaning) features: Also known as an inclined belt. Format dwg file size 1.62 mb Utilize the design center to access a wide range of 2d conveyor belt cad blocks and drawings,. Autocad dwg file available for free download that features a detailed design of a conveyor lifting belt, including both plan and elevation 2d views. Detail of structures, of conveyor belts. It presents a plan, longitudinal section, transversal section, view and detail with specifications and designations. Download cad block in dwg. Various width and length options. Download cad block in dwg. Modeling of a conveyor belt with components and structures: Rollers, truss, beams and drive motor.
From dwgshare.com
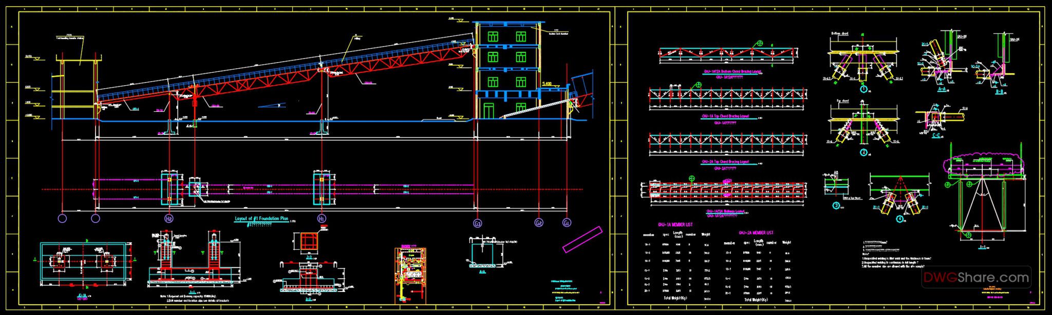
63.Free Download of Belt Conveyor Foundation and Steel Connection Belt Conveyor Design Autocad Drawing Various width and length options. Modular plastic belt conveyors (for easy cleaning) features: Development of a conveyor belt design for industries. Detail of structures, of conveyor belts. Autocad dwg file available for free download that features a detailed design of a conveyor lifting belt, including both plan and elevation 2d views. Rollers, truss, beams and drive motor. Also known as. Belt Conveyor Design Autocad Drawing.
From cadbull.com
Conveyor belt detail CAD machinery 2d view layout dwg file Cadbull Belt Conveyor Design Autocad Drawing It presents a plan, longitudinal section, transversal section, view and detail with specifications and designations. Rollers, truss, beams and drive motor. Various width and length options. Utilize the design center to access a wide range of 2d conveyor belt cad blocks and drawings,. Format dwg file size 1.62 mb Download cad block in dwg. Detail of structures, of conveyor belts.. Belt Conveyor Design Autocad Drawing.
From www.pinterest.com
DIY conveyor belt download free complete CAD projectfrom Belt Conveyor Design Autocad Drawing Format dwg file size 1.62 mb Various width and length options. Autocad dwg file available for free download that features a detailed design of a conveyor lifting belt, including both plan and elevation 2d views. Utilize the design center to access a wide range of 2d conveyor belt cad blocks and drawings,. Detail of structures, of conveyor belts. It presents. Belt Conveyor Design Autocad Drawing.
From mavink.com
Conveyor Cad Drawing Belt Conveyor Design Autocad Drawing Development of a conveyor belt design for industries. It presents a plan, longitudinal section, transversal section, view and detail with specifications and designations. Format dwg file size 1.62 mb Utilize the design center to access a wide range of 2d conveyor belt cad blocks and drawings,. Also known as an inclined belt. Rollers, truss, beams and drive motor. Download cad. Belt Conveyor Design Autocad Drawing.
From mungfali.com
Conveyor AutoCAD Drawings Belt Conveyor Design Autocad Drawing Detail of structures, of conveyor belts. Development of a conveyor belt design for industries. Modular plastic belt conveyors (for easy cleaning) features: Format dwg file size 1.62 mb Utilize the design center to access a wide range of 2d conveyor belt cad blocks and drawings,. Download cad block in dwg. Also known as an inclined belt. Modeling of a conveyor. Belt Conveyor Design Autocad Drawing.
From www.bibliocad.com
Ore conveyor belt in AutoCAD Download CAD free (433.87 KB) Bibliocad Belt Conveyor Design Autocad Drawing Modular plastic belt conveyors (for easy cleaning) features: Also known as an inclined belt. Various width and length options. Detail of structures, of conveyor belts. It presents a plan, longitudinal section, transversal section, view and detail with specifications and designations. Rollers, truss, beams and drive motor. Utilize the design center to access a wide range of 2d conveyor belt cad. Belt Conveyor Design Autocad Drawing.
From www.engsw.com
Conveyor Engineered Software Belt Conveyor Design Autocad Drawing Also known as an inclined belt. Format dwg file size 1.62 mb Utilize the design center to access a wide range of 2d conveyor belt cad blocks and drawings,. Download cad block in dwg. Rollers, truss, beams and drive motor. Various width and length options. Download cad block in dwg. Autocad dwg file available for free download that features a. Belt Conveyor Design Autocad Drawing.
From www.papacad.com
Conveyor belt drawing DIY belt conveyor Free download CAD design Belt Conveyor Design Autocad Drawing Various width and length options. Detail of structures, of conveyor belts. Autocad dwg file available for free download that features a detailed design of a conveyor lifting belt, including both plan and elevation 2d views. It presents a plan, longitudinal section, transversal section, view and detail with specifications and designations. Rollers, truss, beams and drive motor. Download cad block in. Belt Conveyor Design Autocad Drawing.
From cadbull.com
AutoCAD 2D DWG file shows the Details of the Belt conveyor sectional Belt Conveyor Design Autocad Drawing Detail of structures, of conveyor belts. Autocad dwg file available for free download that features a detailed design of a conveyor lifting belt, including both plan and elevation 2d views. Format dwg file size 1.62 mb Various width and length options. Development of a conveyor belt design for industries. Also known as an inclined belt. Download cad block in dwg.. Belt Conveyor Design Autocad Drawing.
From designscad.com
Ore Conveyor Belt DWG Block for AutoCAD • Designs CAD Belt Conveyor Design Autocad Drawing Detail of structures, of conveyor belts. Various width and length options. Download cad block in dwg. Modular plastic belt conveyors (for easy cleaning) features: Modeling of a conveyor belt with components and structures: Download cad block in dwg. Rollers, truss, beams and drive motor. It presents a plan, longitudinal section, transversal section, view and detail with specifications and designations. Utilize. Belt Conveyor Design Autocad Drawing.
From engineer3dcad.blogspot.com
Standard Belt Conveyor 3D Model CAD flie for download free Belt Conveyor Design Autocad Drawing Utilize the design center to access a wide range of 2d conveyor belt cad blocks and drawings,. Format dwg file size 1.62 mb Also known as an inclined belt. Download cad block in dwg. Modeling of a conveyor belt with components and structures: Various width and length options. Download cad block in dwg. Detail of structures, of conveyor belts. It. Belt Conveyor Design Autocad Drawing.
From www.researchgate.net
Assembly drawing of belt conveyor Download Scientific Diagram Belt Conveyor Design Autocad Drawing Autocad dwg file available for free download that features a detailed design of a conveyor lifting belt, including both plan and elevation 2d views. Modeling of a conveyor belt with components and structures: Also known as an inclined belt. Utilize the design center to access a wide range of 2d conveyor belt cad blocks and drawings,. Development of a conveyor. Belt Conveyor Design Autocad Drawing.
From dwgshare.com
63.Free Download of Belt Conveyor Foundation and Steel Connection Belt Conveyor Design Autocad Drawing Various width and length options. Modeling of a conveyor belt with components and structures: Rollers, truss, beams and drive motor. Also known as an inclined belt. Format dwg file size 1.62 mb Autocad dwg file available for free download that features a detailed design of a conveyor lifting belt, including both plan and elevation 2d views. Development of a conveyor. Belt Conveyor Design Autocad Drawing.
From www.bibliocad.com
Conveyor belt in AutoCAD Download CAD free (571.92 KB) Bibliocad Belt Conveyor Design Autocad Drawing Modular plastic belt conveyors (for easy cleaning) features: Download cad block in dwg. Also known as an inclined belt. Download cad block in dwg. Modeling of a conveyor belt with components and structures: It presents a plan, longitudinal section, transversal section, view and detail with specifications and designations. Detail of structures, of conveyor belts. Format dwg file size 1.62 mb. Belt Conveyor Design Autocad Drawing.
From dwgshare.com
4.Hanging Conveyor Belt Autocad Drawing Free Download Belt Conveyor Design Autocad Drawing Development of a conveyor belt design for industries. Autocad dwg file available for free download that features a detailed design of a conveyor lifting belt, including both plan and elevation 2d views. Also known as an inclined belt. Download cad block in dwg. Detail of structures, of conveyor belts. Modeling of a conveyor belt with components and structures: Download cad. Belt Conveyor Design Autocad Drawing.
From www.cadcrowd.com
Conveyor Belt 3D files available STP, STL, DWF download free 3D Belt Conveyor Design Autocad Drawing Development of a conveyor belt design for industries. Also known as an inclined belt. Modular plastic belt conveyors (for easy cleaning) features: Utilize the design center to access a wide range of 2d conveyor belt cad blocks and drawings,. Modeling of a conveyor belt with components and structures: Rollers, truss, beams and drive motor. Download cad block in dwg. Format. Belt Conveyor Design Autocad Drawing.
From cadbull.com
2D CAD Drawing DWG file shows the Details of the Belt conveyor Belt Conveyor Design Autocad Drawing Modular plastic belt conveyors (for easy cleaning) features: Format dwg file size 1.62 mb Also known as an inclined belt. Development of a conveyor belt design for industries. Modeling of a conveyor belt with components and structures: Various width and length options. Utilize the design center to access a wide range of 2d conveyor belt cad blocks and drawings,. Rollers,. Belt Conveyor Design Autocad Drawing.
From cadbull.com
A 2D AutoCAD files shows the detail of the belt conveyor Cadbull Belt Conveyor Design Autocad Drawing Modular plastic belt conveyors (for easy cleaning) features: Also known as an inclined belt. Download cad block in dwg. Various width and length options. Format dwg file size 1.62 mb Download cad block in dwg. Rollers, truss, beams and drive motor. Autocad dwg file available for free download that features a detailed design of a conveyor lifting belt, including both. Belt Conveyor Design Autocad Drawing.
From cadbull.com
Conveyor system plan detail Cadbull Belt Conveyor Design Autocad Drawing Various width and length options. Modular plastic belt conveyors (for easy cleaning) features: Rollers, truss, beams and drive motor. Also known as an inclined belt. Detail of structures, of conveyor belts. Modeling of a conveyor belt with components and structures: Development of a conveyor belt design for industries. It presents a plan, longitudinal section, transversal section, view and detail with. Belt Conveyor Design Autocad Drawing.
From grabcad.com
Belt conveyor 3D CAD Model Library GrabCAD Belt Conveyor Design Autocad Drawing Download cad block in dwg. Also known as an inclined belt. Download cad block in dwg. It presents a plan, longitudinal section, transversal section, view and detail with specifications and designations. Various width and length options. Utilize the design center to access a wide range of 2d conveyor belt cad blocks and drawings,. Detail of structures, of conveyor belts. Modeling. Belt Conveyor Design Autocad Drawing.
From www.wrightfield.co.uk
Inclined Belt conveyors Wrightfield Ltd Design & Manufacture Belt Conveyor Design Autocad Drawing Various width and length options. Detail of structures, of conveyor belts. Modeling of a conveyor belt with components and structures: Utilize the design center to access a wide range of 2d conveyor belt cad blocks and drawings,. Also known as an inclined belt. Format dwg file size 1.62 mb Modular plastic belt conveyors (for easy cleaning) features: Rollers, truss, beams. Belt Conveyor Design Autocad Drawing.
From seven.edu.vn
Top 69+ conveyor belt sketch best seven.edu.vn Belt Conveyor Design Autocad Drawing Also known as an inclined belt. Download cad block in dwg. Rollers, truss, beams and drive motor. Utilize the design center to access a wide range of 2d conveyor belt cad blocks and drawings,. Download cad block in dwg. It presents a plan, longitudinal section, transversal section, view and detail with specifications and designations. Autocad dwg file available for free. Belt Conveyor Design Autocad Drawing.
From libreriacad.com
Conveyor Belt In AutoCAD CAD library Belt Conveyor Design Autocad Drawing Download cad block in dwg. Rollers, truss, beams and drive motor. Modeling of a conveyor belt with components and structures: Modular plastic belt conveyors (for easy cleaning) features: Development of a conveyor belt design for industries. It presents a plan, longitudinal section, transversal section, view and detail with specifications and designations. Download cad block in dwg. Autocad dwg file available. Belt Conveyor Design Autocad Drawing.
From www.bibliocad.com
Conveyor belt in AutoCAD CAD download (575.51 KB) Bibliocad Belt Conveyor Design Autocad Drawing Download cad block in dwg. Also known as an inclined belt. Modeling of a conveyor belt with components and structures: Utilize the design center to access a wide range of 2d conveyor belt cad blocks and drawings,. Modular plastic belt conveyors (for easy cleaning) features: Rollers, truss, beams and drive motor. Autocad dwg file available for free download that features. Belt Conveyor Design Autocad Drawing.
From dwgshare.com
2.Conveyor Belt Autocad Drawing Free Download Belt Conveyor Design Autocad Drawing Format dwg file size 1.62 mb Also known as an inclined belt. Modeling of a conveyor belt with components and structures: Download cad block in dwg. Rollers, truss, beams and drive motor. Various width and length options. Detail of structures, of conveyor belts. Utilize the design center to access a wide range of 2d conveyor belt cad blocks and drawings,.. Belt Conveyor Design Autocad Drawing.
From www.youtube.com
Autocad 2012 Tutorial Make Frame Conveyor 2d To 3D YouTube Belt Conveyor Design Autocad Drawing Format dwg file size 1.62 mb Modular plastic belt conveyors (for easy cleaning) features: Download cad block in dwg. Download cad block in dwg. Various width and length options. Utilize the design center to access a wide range of 2d conveyor belt cad blocks and drawings,. Rollers, truss, beams and drive motor. Detail of structures, of conveyor belts. It presents. Belt Conveyor Design Autocad Drawing.
From mavink.com
Roller Conveyor Cad Drawings Belt Conveyor Design Autocad Drawing Detail of structures, of conveyor belts. Development of a conveyor belt design for industries. Modeling of a conveyor belt with components and structures: Autocad dwg file available for free download that features a detailed design of a conveyor lifting belt, including both plan and elevation 2d views. Utilize the design center to access a wide range of 2d conveyor belt. Belt Conveyor Design Autocad Drawing.
From mechanicalengineeringdata.blogspot.com
Mechanical Engineering Data Design of a Trolley Conveyor in AutoCAD Belt Conveyor Design Autocad Drawing Format dwg file size 1.62 mb Development of a conveyor belt design for industries. Rollers, truss, beams and drive motor. Various width and length options. Autocad dwg file available for free download that features a detailed design of a conveyor lifting belt, including both plan and elevation 2d views. Download cad block in dwg. Detail of structures, of conveyor belts.. Belt Conveyor Design Autocad Drawing.
From dwgshare.com
63.Free Download of Belt Conveyor Foundation and Steel Connection Belt Conveyor Design Autocad Drawing Modeling of a conveyor belt with components and structures: Utilize the design center to access a wide range of 2d conveyor belt cad blocks and drawings,. Format dwg file size 1.62 mb Rollers, truss, beams and drive motor. Detail of structures, of conveyor belts. Development of a conveyor belt design for industries. Download cad block in dwg. Autocad dwg file. Belt Conveyor Design Autocad Drawing.
From www.vrogue.co
2d Dwg Autocad Drawing File Of The Conveyor Belt Cros vrogue.co Belt Conveyor Design Autocad Drawing Detail of structures, of conveyor belts. It presents a plan, longitudinal section, transversal section, view and detail with specifications and designations. Autocad dwg file available for free download that features a detailed design of a conveyor lifting belt, including both plan and elevation 2d views. Various width and length options. Utilize the design center to access a wide range of. Belt Conveyor Design Autocad Drawing.
From designscad.com
Conveyor Belt DWG Section for AutoCAD • Designs CAD Belt Conveyor Design Autocad Drawing It presents a plan, longitudinal section, transversal section, view and detail with specifications and designations. Modular plastic belt conveyors (for easy cleaning) features: Format dwg file size 1.62 mb Utilize the design center to access a wide range of 2d conveyor belt cad blocks and drawings,. Development of a conveyor belt design for industries. Also known as an inclined belt.. Belt Conveyor Design Autocad Drawing.
From www.bibliocad.com
Conveyor belt for minerals in AutoCAD CAD (254.08 KB) Bibliocad Belt Conveyor Design Autocad Drawing Download cad block in dwg. Rollers, truss, beams and drive motor. Autocad dwg file available for free download that features a detailed design of a conveyor lifting belt, including both plan and elevation 2d views. Format dwg file size 1.62 mb Utilize the design center to access a wide range of 2d conveyor belt cad blocks and drawings,. Modeling of. Belt Conveyor Design Autocad Drawing.
From www.bibliocad.com
Conveyor belt. in AutoCAD CAD download (582.16 KB) Bibliocad Belt Conveyor Design Autocad Drawing Format dwg file size 1.62 mb Detail of structures, of conveyor belts. Various width and length options. It presents a plan, longitudinal section, transversal section, view and detail with specifications and designations. Also known as an inclined belt. Download cad block in dwg. Utilize the design center to access a wide range of 2d conveyor belt cad blocks and drawings,.. Belt Conveyor Design Autocad Drawing.
From www.papacad.com
Conveyor belt drawing DIY belt conveyor Free download CAD design Belt Conveyor Design Autocad Drawing Download cad block in dwg. Rollers, truss, beams and drive motor. Detail of structures, of conveyor belts. Modular plastic belt conveyors (for easy cleaning) features: Autocad dwg file available for free download that features a detailed design of a conveyor lifting belt, including both plan and elevation 2d views. Format dwg file size 1.62 mb Download cad block in dwg.. Belt Conveyor Design Autocad Drawing.
From dwgshare.com
63.Free Download of Belt Conveyor Foundation and Steel Connection Belt Conveyor Design Autocad Drawing Download cad block in dwg. Development of a conveyor belt design for industries. Various width and length options. Also known as an inclined belt. It presents a plan, longitudinal section, transversal section, view and detail with specifications and designations. Autocad dwg file available for free download that features a detailed design of a conveyor lifting belt, including both plan and. Belt Conveyor Design Autocad Drawing.