Pfc Beam Dimensions . the steel beam dimensions for the 125 pfc section can be seen in the table. parallel flange channels (pfcs for short) are some of the most versatile types of steel beams. 18 rows width of section b mm thickness of web t mm thickness of flange t mm distance of cy cm root radius r mm depth between fillets d mm ratios for. australian parallel flange channels beam sizes and dimensions for the steel (300 grade) library. the steel beam dimensions for the 150 pfc section can be seen in the table. the corner radii of shs and rhs sections vary depending on the wall thickness and manufacturing process (hot formed or cold formed). The depth of the section is 125 mm. d = height/depth of beam b f = width of beam t f = flange thickness t w eb thickness= w d 1 = distance between.
from www.alibaba.com
d = height/depth of beam b f = width of beam t f = flange thickness t w eb thickness= w d 1 = distance between. 18 rows width of section b mm thickness of web t mm thickness of flange t mm distance of cy cm root radius r mm depth between fillets d mm ratios for. australian parallel flange channels beam sizes and dimensions for the steel (300 grade) library. the steel beam dimensions for the 150 pfc section can be seen in the table. The depth of the section is 125 mm. parallel flange channels (pfcs for short) are some of the most versatile types of steel beams. the steel beam dimensions for the 125 pfc section can be seen in the table. the corner radii of shs and rhs sections vary depending on the wall thickness and manufacturing process (hot formed or cold formed).
Gb Jis Grade Upn/upe/pfc Standard Steel U Channel Beam Buy Standard I
Pfc Beam Dimensions australian parallel flange channels beam sizes and dimensions for the steel (300 grade) library. the steel beam dimensions for the 125 pfc section can be seen in the table. d = height/depth of beam b f = width of beam t f = flange thickness t w eb thickness= w d 1 = distance between. the corner radii of shs and rhs sections vary depending on the wall thickness and manufacturing process (hot formed or cold formed). the steel beam dimensions for the 150 pfc section can be seen in the table. australian parallel flange channels beam sizes and dimensions for the steel (300 grade) library. 18 rows width of section b mm thickness of web t mm thickness of flange t mm distance of cy cm root radius r mm depth between fillets d mm ratios for. parallel flange channels (pfcs for short) are some of the most versatile types of steel beams. The depth of the section is 125 mm.
From www.chegg.com
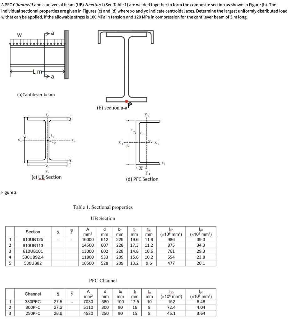
Solved A PFC channel2 and a universal beam (UB) Section4 Pfc Beam Dimensions australian parallel flange channels beam sizes and dimensions for the steel (300 grade) library. the corner radii of shs and rhs sections vary depending on the wall thickness and manufacturing process (hot formed or cold formed). parallel flange channels (pfcs for short) are some of the most versatile types of steel beams. the steel beam dimensions. Pfc Beam Dimensions.
From www.petoneengineering.co.nz
Standard Steel Beam Dimensions — Petone Engineering Pfc Beam Dimensions australian parallel flange channels beam sizes and dimensions for the steel (300 grade) library. the corner radii of shs and rhs sections vary depending on the wall thickness and manufacturing process (hot formed or cold formed). parallel flange channels (pfcs for short) are some of the most versatile types of steel beams. d = height/depth of. Pfc Beam Dimensions.
From runhaisteel.en.made-in-china.com
Steel Standard U Channel Dimensions Mild Steel U Beam Steel Grade S275 Pfc Beam Dimensions d = height/depth of beam b f = width of beam t f = flange thickness t w eb thickness= w d 1 = distance between. The depth of the section is 125 mm. 18 rows width of section b mm thickness of web t mm thickness of flange t mm distance of cy cm root radius r. Pfc Beam Dimensions.
From www.alibaba.com
Gb Jis Grade Upn/upe/pfc Standard Steel U Channel Beam Buy Standard I Pfc Beam Dimensions australian parallel flange channels beam sizes and dimensions for the steel (300 grade) library. the steel beam dimensions for the 150 pfc section can be seen in the table. 18 rows width of section b mm thickness of web t mm thickness of flange t mm distance of cy cm root radius r mm depth between fillets. Pfc Beam Dimensions.
From www.bairnsteel.com.au
Bairnsteel PFC15075 Pfc Beam Dimensions d = height/depth of beam b f = width of beam t f = flange thickness t w eb thickness= w d 1 = distance between. 18 rows width of section b mm thickness of web t mm thickness of flange t mm distance of cy cm root radius r mm depth between fillets d mm ratios for.. Pfc Beam Dimensions.
From www.dlubal.com
PFC 100x50 DIN 10262 Mittal Steel South Africa CrossSection Pfc Beam Dimensions The depth of the section is 125 mm. the corner radii of shs and rhs sections vary depending on the wall thickness and manufacturing process (hot formed or cold formed). australian parallel flange channels beam sizes and dimensions for the steel (300 grade) library. parallel flange channels (pfcs for short) are some of the most versatile types. Pfc Beam Dimensions.
From www.alibaba.com
Australian/new Zealand Standard (parallel Flange Channel) Pfc Hot Pfc Beam Dimensions the steel beam dimensions for the 150 pfc section can be seen in the table. australian parallel flange channels beam sizes and dimensions for the steel (300 grade) library. parallel flange channels (pfcs for short) are some of the most versatile types of steel beams. the steel beam dimensions for the 125 pfc section can be. Pfc Beam Dimensions.
From www.cannondigi.com
Pfc Steel Beam Weight Per Foot The Best Picture Of Beam Pfc Beam Dimensions The depth of the section is 125 mm. australian parallel flange channels beam sizes and dimensions for the steel (300 grade) library. the steel beam dimensions for the 125 pfc section can be seen in the table. parallel flange channels (pfcs for short) are some of the most versatile types of steel beams. d = height/depth. Pfc Beam Dimensions.
From www.smartbuild.uk.com
UC? UB? PFC? Understanding Steel Beam References Pfc Beam Dimensions The depth of the section is 125 mm. d = height/depth of beam b f = width of beam t f = flange thickness t w eb thickness= w d 1 = distance between. australian parallel flange channels beam sizes and dimensions for the steel (300 grade) library. the steel beam dimensions for the 150 pfc section. Pfc Beam Dimensions.
From www.cannondigi.com
250 Pfc Beam Weight The Best Picture Of Beam Pfc Beam Dimensions the steel beam dimensions for the 150 pfc section can be seen in the table. the steel beam dimensions for the 125 pfc section can be seen in the table. parallel flange channels (pfcs for short) are some of the most versatile types of steel beams. the corner radii of shs and rhs sections vary depending. Pfc Beam Dimensions.
From www.bharatagritech.com
UC? UB? PFC? Understanding Steel Beam References, 50 OFF Pfc Beam Dimensions the steel beam dimensions for the 150 pfc section can be seen in the table. The depth of the section is 125 mm. australian parallel flange channels beam sizes and dimensions for the steel (300 grade) library. 18 rows width of section b mm thickness of web t mm thickness of flange t mm distance of cy. Pfc Beam Dimensions.
From buyabeam.com
Understanding PFC Steel Beams and their Uses Pfc Beam Dimensions the steel beam dimensions for the 125 pfc section can be seen in the table. d = height/depth of beam b f = width of beam t f = flange thickness t w eb thickness= w d 1 = distance between. the steel beam dimensions for the 150 pfc section can be seen in the table. . Pfc Beam Dimensions.
From www.alibaba.com
Gb Jis Grade Upn/upe/pfc Standard Steel U Channel Beam Buy Standard I Pfc Beam Dimensions the corner radii of shs and rhs sections vary depending on the wall thickness and manufacturing process (hot formed or cold formed). 18 rows width of section b mm thickness of web t mm thickness of flange t mm distance of cy cm root radius r mm depth between fillets d mm ratios for. d = height/depth. Pfc Beam Dimensions.
From www.vrogue.co
Uc Ub Pfc Understanding Steel Beam References 54 Off vrogue.co Pfc Beam Dimensions 18 rows width of section b mm thickness of web t mm thickness of flange t mm distance of cy cm root radius r mm depth between fillets d mm ratios for. the steel beam dimensions for the 125 pfc section can be seen in the table. the steel beam dimensions for the 150 pfc section can. Pfc Beam Dimensions.
From docs.itascacg.com
CableReinforced Beam — PFC 6.0 documentation Pfc Beam Dimensions 18 rows width of section b mm thickness of web t mm thickness of flange t mm distance of cy cm root radius r mm depth between fillets d mm ratios for. parallel flange channels (pfcs for short) are some of the most versatile types of steel beams. the steel beam dimensions for the 125 pfc section. Pfc Beam Dimensions.
From ideastatica.uk
Steel joints with PFCs problem solved! Pfc Beam Dimensions the steel beam dimensions for the 125 pfc section can be seen in the table. the steel beam dimensions for the 150 pfc section can be seen in the table. d = height/depth of beam b f = width of beam t f = flange thickness t w eb thickness= w d 1 = distance between. . Pfc Beam Dimensions.
From www.cannondigi.com
250 Pfc Beam Weight The Best Picture Of Beam Pfc Beam Dimensions The depth of the section is 125 mm. the steel beam dimensions for the 150 pfc section can be seen in the table. parallel flange channels (pfcs for short) are some of the most versatile types of steel beams. australian parallel flange channels beam sizes and dimensions for the steel (300 grade) library. the corner radii. Pfc Beam Dimensions.
From www.chegg.com
A PFC Channel2 and a universal beam (UB) Section 5 Pfc Beam Dimensions d = height/depth of beam b f = width of beam t f = flange thickness t w eb thickness= w d 1 = distance between. the corner radii of shs and rhs sections vary depending on the wall thickness and manufacturing process (hot formed or cold formed). 18 rows width of section b mm thickness of. Pfc Beam Dimensions.
From buildersbeamsonline.co.uk
Back to Back PFC South Wales and West Builders Beams Pfc Beam Dimensions the steel beam dimensions for the 150 pfc section can be seen in the table. parallel flange channels (pfcs for short) are some of the most versatile types of steel beams. d = height/depth of beam b f = width of beam t f = flange thickness t w eb thickness= w d 1 = distance between.. Pfc Beam Dimensions.
From structuralsteeluk.co.uk
Steel PFC Channels 150 x 75 x 18 PFC/Channels Pfc Beam Dimensions the corner radii of shs and rhs sections vary depending on the wall thickness and manufacturing process (hot formed or cold formed). the steel beam dimensions for the 150 pfc section can be seen in the table. 18 rows width of section b mm thickness of web t mm thickness of flange t mm distance of cy. Pfc Beam Dimensions.
From www.chegg.com
Solved ( A PFC Channel 3 )and a ( universal beam (UB) Pfc Beam Dimensions the steel beam dimensions for the 150 pfc section can be seen in the table. the corner radii of shs and rhs sections vary depending on the wall thickness and manufacturing process (hot formed or cold formed). d = height/depth of beam b f = width of beam t f = flange thickness t w eb thickness=. Pfc Beam Dimensions.
From www.cannondigi.com
250 Pfc Beam Weight The Best Picture Of Beam Pfc Beam Dimensions 18 rows width of section b mm thickness of web t mm thickness of flange t mm distance of cy cm root radius r mm depth between fillets d mm ratios for. the corner radii of shs and rhs sections vary depending on the wall thickness and manufacturing process (hot formed or cold formed). parallel flange channels. Pfc Beam Dimensions.
From structuralsteeluk.co.uk
Fabrication Channels/PFC Twins 150 x 75 x 18 PFC Twined Beam Pfc Beam Dimensions the corner radii of shs and rhs sections vary depending on the wall thickness and manufacturing process (hot formed or cold formed). 18 rows width of section b mm thickness of web t mm thickness of flange t mm distance of cy cm root radius r mm depth between fillets d mm ratios for. d = height/depth. Pfc Beam Dimensions.
From www.scribd.com
British Steel Universal Beams Pfc Datasheet Buckling Building Pfc Beam Dimensions 18 rows width of section b mm thickness of web t mm thickness of flange t mm distance of cy cm root radius r mm depth between fillets d mm ratios for. d = height/depth of beam b f = width of beam t f = flange thickness t w eb thickness= w d 1 = distance between.. Pfc Beam Dimensions.
From alumni.uod.ac
Steel Beam CPurlin Dimensions Drawings, 43 OFF Pfc Beam Dimensions d = height/depth of beam b f = width of beam t f = flange thickness t w eb thickness= w d 1 = distance between. 18 rows width of section b mm thickness of web t mm thickness of flange t mm distance of cy cm root radius r mm depth between fillets d mm ratios for.. Pfc Beam Dimensions.
From www.pinterest.com
180 x 75 x 20 PFC Twined Beam Prefabricated Close Bolted to form 275mm Pfc Beam Dimensions parallel flange channels (pfcs for short) are some of the most versatile types of steel beams. the corner radii of shs and rhs sections vary depending on the wall thickness and manufacturing process (hot formed or cold formed). the steel beam dimensions for the 150 pfc section can be seen in the table. The depth of the. Pfc Beam Dimensions.
From fasrsx408.weebly.com
Pfc 150 X 75 Dimensions fasrsx Pfc Beam Dimensions The depth of the section is 125 mm. the steel beam dimensions for the 125 pfc section can be seen in the table. australian parallel flange channels beam sizes and dimensions for the steel (300 grade) library. the steel beam dimensions for the 150 pfc section can be seen in the table. d = height/depth of. Pfc Beam Dimensions.
From www.smartbuild.uk.com
UC? UB? PFC? Understanding Steel Beam References Pfc Beam Dimensions australian parallel flange channels beam sizes and dimensions for the steel (300 grade) library. parallel flange channels (pfcs for short) are some of the most versatile types of steel beams. the steel beam dimensions for the 125 pfc section can be seen in the table. the corner radii of shs and rhs sections vary depending on. Pfc Beam Dimensions.
From forums.autodesk.com
Solved PFC beam to RHS beam connection macro Autodesk Community Pfc Beam Dimensions d = height/depth of beam b f = width of beam t f = flange thickness t w eb thickness= w d 1 = distance between. the corner radii of shs and rhs sections vary depending on the wall thickness and manufacturing process (hot formed or cold formed). parallel flange channels (pfcs for short) are some of. Pfc Beam Dimensions.
From www.cannondigi.com
250 Pfc Steel Beam Size The Best Picture Of Beam Pfc Beam Dimensions parallel flange channels (pfcs for short) are some of the most versatile types of steel beams. d = height/depth of beam b f = width of beam t f = flange thickness t w eb thickness= w d 1 = distance between. The depth of the section is 125 mm. the steel beam dimensions for the 125. Pfc Beam Dimensions.
From www.alibaba.com
Gb Jis Grade Upn/upe/pfc Standard Steel U Channel Beam Buy Standard I Pfc Beam Dimensions the steel beam dimensions for the 125 pfc section can be seen in the table. d = height/depth of beam b f = width of beam t f = flange thickness t w eb thickness= w d 1 = distance between. the corner radii of shs and rhs sections vary depending on the wall thickness and manufacturing. Pfc Beam Dimensions.
From www.pinterest.co.kr
UC? UB? PFC? Understanding Steel Beam References Steel Frame House Pfc Beam Dimensions australian parallel flange channels beam sizes and dimensions for the steel (300 grade) library. the steel beam dimensions for the 150 pfc section can be seen in the table. parallel flange channels (pfcs for short) are some of the most versatile types of steel beams. d = height/depth of beam b f = width of beam. Pfc Beam Dimensions.
From networksteel.com.au
PFC Steel Beams & U Beams Cut to Order & PreDrilled Network Steel Pfc Beam Dimensions The depth of the section is 125 mm. the corner radii of shs and rhs sections vary depending on the wall thickness and manufacturing process (hot formed or cold formed). 18 rows width of section b mm thickness of web t mm thickness of flange t mm distance of cy cm root radius r mm depth between fillets. Pfc Beam Dimensions.
From eicac.co.uk
Steel PFC Dimensions EICAC Pfc Beam Dimensions the steel beam dimensions for the 150 pfc section can be seen in the table. 18 rows width of section b mm thickness of web t mm thickness of flange t mm distance of cy cm root radius r mm depth between fillets d mm ratios for. australian parallel flange channels beam sizes and dimensions for the. Pfc Beam Dimensions.
From pratleysbuildersbeams.co.uk
PFC Channel Cut To Size Steel Fabrication Reading Pfc Beam Dimensions australian parallel flange channels beam sizes and dimensions for the steel (300 grade) library. the steel beam dimensions for the 150 pfc section can be seen in the table. 18 rows width of section b mm thickness of web t mm thickness of flange t mm distance of cy cm root radius r mm depth between fillets. Pfc Beam Dimensions.