Section Drawing Meaning In English . Section drawing can be explained with a simple analogy: Section drawings are a specific type of drawing architects use to illustrate a building or portion of a building. / a guide to section drawing. A section drawing is one that shows a vertical cut transecting, typically along a primary axis, an object or building. A 'section drawing', 'section' or 'sectional drawing' shows a view of a structure as though it had been sliced in half or cut along another imaginary. What is a section drawing? Sections can be drawn of a complete building, a small interior space or even an object. In short, a section drawing is a view that depicts a vertical plane cut through a portion of the project. Slicing a loaf of bread. A section drawing or sectional drawing is a 2d drawing of your home as if it has been sliced in two vertically. If you had an unsliced loaf of fruit and nut. It is important to consider what you are trying to show with the section and how much.
from www.youtube.com
What is a section drawing? Slicing a loaf of bread. Sections can be drawn of a complete building, a small interior space or even an object. A 'section drawing', 'section' or 'sectional drawing' shows a view of a structure as though it had been sliced in half or cut along another imaginary. / a guide to section drawing. Section drawings are a specific type of drawing architects use to illustrate a building or portion of a building. It is important to consider what you are trying to show with the section and how much. A section drawing or sectional drawing is a 2d drawing of your home as if it has been sliced in two vertically. If you had an unsliced loaf of fruit and nut. Section drawing can be explained with a simple analogy:
Perspective Section Drawing Tutorial Adobe Illustrator YouTube
Section Drawing Meaning In English What is a section drawing? A section drawing is one that shows a vertical cut transecting, typically along a primary axis, an object or building. If you had an unsliced loaf of fruit and nut. A 'section drawing', 'section' or 'sectional drawing' shows a view of a structure as though it had been sliced in half or cut along another imaginary. / a guide to section drawing. It is important to consider what you are trying to show with the section and how much. Section drawing can be explained with a simple analogy: Section drawings are a specific type of drawing architects use to illustrate a building or portion of a building. In short, a section drawing is a view that depicts a vertical plane cut through a portion of the project. Slicing a loaf of bread. A section drawing or sectional drawing is a 2d drawing of your home as if it has been sliced in two vertically. Sections can be drawn of a complete building, a small interior space or even an object. What is a section drawing?
From owensbrandon.weebly.com
SECTION DRAWINGS BRANDON OWENS' PORTFOLIO Section Drawing Meaning In English A section drawing or sectional drawing is a 2d drawing of your home as if it has been sliced in two vertically. / a guide to section drawing. In short, a section drawing is a view that depicts a vertical plane cut through a portion of the project. Slicing a loaf of bread. What is a section drawing? Sections can. Section Drawing Meaning In English.
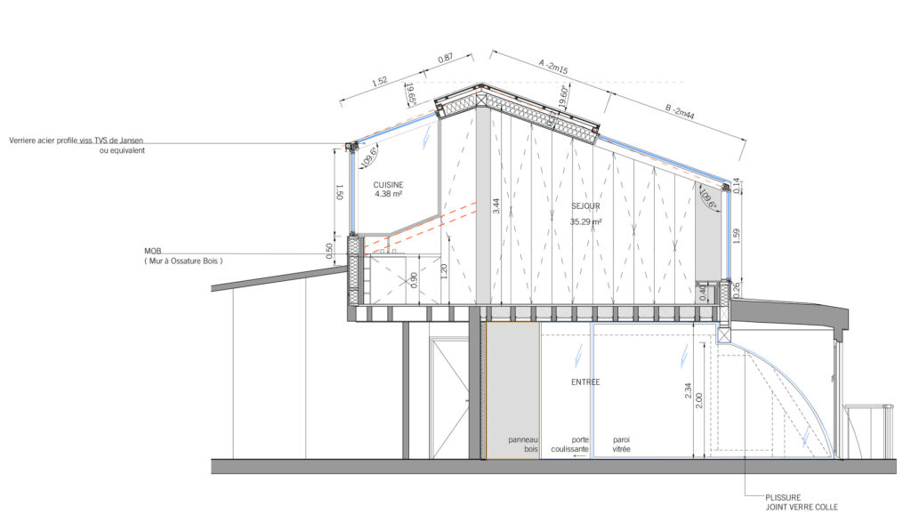
From www.studocu.com
Bldtec 2 BAY Section BEDROOM 2 REYNOSO, SOFIA R. BLDTEC2 ODAR FLOOR Section Drawing Meaning In English Section drawing can be explained with a simple analogy: / a guide to section drawing. A section drawing or sectional drawing is a 2d drawing of your home as if it has been sliced in two vertically. In short, a section drawing is a view that depicts a vertical plane cut through a portion of the project. What is a. Section Drawing Meaning In English.
From www.youtube.com
INTRO TO DRAWING SECTIONS FULL SECTION VIEWS YouTube Section Drawing Meaning In English Section drawing can be explained with a simple analogy: Section drawings are a specific type of drawing architects use to illustrate a building or portion of a building. A section drawing is one that shows a vertical cut transecting, typically along a primary axis, an object or building. What is a section drawing? / a guide to section drawing. A. Section Drawing Meaning In English.
From www.pinterest.com
Architectural Wall Sections, USA Standard Architectural Wall Section Section Drawing Meaning In English / a guide to section drawing. If you had an unsliced loaf of fruit and nut. Section drawing can be explained with a simple analogy: A 'section drawing', 'section' or 'sectional drawing' shows a view of a structure as though it had been sliced in half or cut along another imaginary. Slicing a loaf of bread. In short, a section. Section Drawing Meaning In English.
From in.pinterest.com
Sectional design of Residence house which shows roofing structure Section Drawing Meaning In English It is important to consider what you are trying to show with the section and how much. A section drawing is one that shows a vertical cut transecting, typically along a primary axis, an object or building. In short, a section drawing is a view that depicts a vertical plane cut through a portion of the project. What is a. Section Drawing Meaning In English.
From www.boardandvellum.com
What Different Line Types in Architecture & Design Drawings Mean Section Drawing Meaning In English If you had an unsliced loaf of fruit and nut. Section drawings are a specific type of drawing architects use to illustrate a building or portion of a building. In short, a section drawing is a view that depicts a vertical plane cut through a portion of the project. / a guide to section drawing. Sections can be drawn of. Section Drawing Meaning In English.
From www.mtcopeland.com
What Is a Sectional View? 6 Types of Sectional Views Section Drawing Meaning In English It is important to consider what you are trying to show with the section and how much. What is a section drawing? A section drawing or sectional drawing is a 2d drawing of your home as if it has been sliced in two vertically. Section drawings are a specific type of drawing architects use to illustrate a building or portion. Section Drawing Meaning In English.
From www.pinterest.co.uk
Building Section Drawing Section Drawing Meaning In English Sections can be drawn of a complete building, a small interior space or even an object. It is important to consider what you are trying to show with the section and how much. What is a section drawing? A section drawing is one that shows a vertical cut transecting, typically along a primary axis, an object or building. A section. Section Drawing Meaning In English.
From architectwisdom.com
What are Section Drawings? Section Drawing Meaning In English / a guide to section drawing. Slicing a loaf of bread. A section drawing or sectional drawing is a 2d drawing of your home as if it has been sliced in two vertically. A section drawing is one that shows a vertical cut transecting, typically along a primary axis, an object or building. If you had an unsliced loaf of. Section Drawing Meaning In English.
From mavink.com
Standard Architectural Drawing Symbols Section Drawing Meaning In English Slicing a loaf of bread. Section drawings are a specific type of drawing architects use to illustrate a building or portion of a building. Section drawing can be explained with a simple analogy: In short, a section drawing is a view that depicts a vertical plane cut through a portion of the project. What is a section drawing? / a. Section Drawing Meaning In English.
From paintingvalley.com
Orthographic Drawing Definition at Explore Section Drawing Meaning In English Section drawing can be explained with a simple analogy: What is a section drawing? A 'section drawing', 'section' or 'sectional drawing' shows a view of a structure as though it had been sliced in half or cut along another imaginary. Section drawings are a specific type of drawing architects use to illustrate a building or portion of a building. A. Section Drawing Meaning In English.
From www.mangangroup.com
How to Read Sections — Mangan Group Architects Residential and Section Drawing Meaning In English A section drawing or sectional drawing is a 2d drawing of your home as if it has been sliced in two vertically. Slicing a loaf of bread. A 'section drawing', 'section' or 'sectional drawing' shows a view of a structure as though it had been sliced in half or cut along another imaginary. / a guide to section drawing. If. Section Drawing Meaning In English.
From bodaswasuas.github.io
Antique House Drawing With Details Pin By Ida Abbott On Build Idea In Section Drawing Meaning In English / a guide to section drawing. Section drawings are a specific type of drawing architects use to illustrate a building or portion of a building. Section drawing can be explained with a simple analogy: Slicing a loaf of bread. It is important to consider what you are trying to show with the section and how much. What is a section. Section Drawing Meaning In English.
From hpdconstructions.com
Foundation Drawing How to Read Foundation drawing Footing Drawings 2023 Section Drawing Meaning In English Slicing a loaf of bread. A section drawing or sectional drawing is a 2d drawing of your home as if it has been sliced in two vertically. If you had an unsliced loaf of fruit and nut. In short, a section drawing is a view that depicts a vertical plane cut through a portion of the project. It is important. Section Drawing Meaning In English.
From owensbrandon.weebly.com
SECTION DRAWINGS BRANDON OWENS' PORTFOLIO Section Drawing Meaning In English It is important to consider what you are trying to show with the section and how much. Section drawing can be explained with a simple analogy: A 'section drawing', 'section' or 'sectional drawing' shows a view of a structure as though it had been sliced in half or cut along another imaginary. / a guide to section drawing. Slicing a. Section Drawing Meaning In English.
From www.shutterstock.com
House Architecture Cross Section Drawing Photos and Images Shutterstock Section Drawing Meaning In English A section drawing or sectional drawing is a 2d drawing of your home as if it has been sliced in two vertically. What is a section drawing? It is important to consider what you are trying to show with the section and how much. A section drawing is one that shows a vertical cut transecting, typically along a primary axis,. Section Drawing Meaning In English.
From www.hg80architecture.com
Building Sections — Hg80 architecture Section Drawing Meaning In English Slicing a loaf of bread. Section drawings are a specific type of drawing architects use to illustrate a building or portion of a building. Sections can be drawn of a complete building, a small interior space or even an object. / a guide to section drawing. A section drawing or sectional drawing is a 2d drawing of your home as. Section Drawing Meaning In English.
From www.archisoup.com
Detail Drawing 101 Understanding how detailed drawings need to be for Section Drawing Meaning In English A 'section drawing', 'section' or 'sectional drawing' shows a view of a structure as though it had been sliced in half or cut along another imaginary. Section drawing can be explained with a simple analogy: Sections can be drawn of a complete building, a small interior space or even an object. In short, a section drawing is a view that. Section Drawing Meaning In English.
From architizer.com
Architectural Drawings Glorious Glass Gable Architecture in Section Section Drawing Meaning In English If you had an unsliced loaf of fruit and nut. What is a section drawing? Section drawing can be explained with a simple analogy: Section drawings are a specific type of drawing architects use to illustrate a building or portion of a building. Slicing a loaf of bread. In short, a section drawing is a view that depicts a vertical. Section Drawing Meaning In English.
From www.patriquinarchitects.com
Why Are Architectural Sections Important to Projects? Patriquin Section Drawing Meaning In English A section drawing is one that shows a vertical cut transecting, typically along a primary axis, an object or building. If you had an unsliced loaf of fruit and nut. Section drawings are a specific type of drawing architects use to illustrate a building or portion of a building. / a guide to section drawing. In short, a section drawing. Section Drawing Meaning In English.
From www.designingbuildings.co.uk
Types of drawings for building design Designing Buildings Wiki Section Drawing Meaning In English A 'section drawing', 'section' or 'sectional drawing' shows a view of a structure as though it had been sliced in half or cut along another imaginary. In short, a section drawing is a view that depicts a vertical plane cut through a portion of the project. Slicing a loaf of bread. / a guide to section drawing. Sections can be. Section Drawing Meaning In English.
From cadbull.com
Residential Building Section Drawing Free Download Cadbull Section Drawing Meaning In English / a guide to section drawing. A section drawing or sectional drawing is a 2d drawing of your home as if it has been sliced in two vertically. It is important to consider what you are trying to show with the section and how much. Section drawing can be explained with a simple analogy: Sections can be drawn of a. Section Drawing Meaning In English.
From www.houseplanshelper.com
How to Read Section Drawings Section Drawing Meaning In English Section drawing can be explained with a simple analogy: A section drawing or sectional drawing is a 2d drawing of your home as if it has been sliced in two vertically. In short, a section drawing is a view that depicts a vertical plane cut through a portion of the project. What is a section drawing? Slicing a loaf of. Section Drawing Meaning In English.
From www.youtube.com
How to Identify Plan, Elevation and Section in a Drawing? YouTube Section Drawing Meaning In English It is important to consider what you are trying to show with the section and how much. / a guide to section drawing. What is a section drawing? Section drawings are a specific type of drawing architects use to illustrate a building or portion of a building. Section drawing can be explained with a simple analogy: A section drawing or. Section Drawing Meaning In English.
From www.youtube.com
Perspective Section Drawing Tutorial Adobe Illustrator YouTube Section Drawing Meaning In English Section drawing can be explained with a simple analogy: In short, a section drawing is a view that depicts a vertical plane cut through a portion of the project. A 'section drawing', 'section' or 'sectional drawing' shows a view of a structure as though it had been sliced in half or cut along another imaginary. Slicing a loaf of bread.. Section Drawing Meaning In English.
From www.projectmanager.com
8 Types of Architectural Drawings ProjectManager Section Drawing Meaning In English Section drawings are a specific type of drawing architects use to illustrate a building or portion of a building. It is important to consider what you are trying to show with the section and how much. Sections can be drawn of a complete building, a small interior space or even an object. A section drawing is one that shows a. Section Drawing Meaning In English.
From paintingvalley.com
Section Drawing Architecture at Explore collection Section Drawing Meaning In English Slicing a loaf of bread. What is a section drawing? Section drawings are a specific type of drawing architects use to illustrate a building or portion of a building. It is important to consider what you are trying to show with the section and how much. A section drawing or sectional drawing is a 2d drawing of your home as. Section Drawing Meaning In English.
From paintingvalley.com
Section Drawing Architecture at Explore collection Section Drawing Meaning In English If you had an unsliced loaf of fruit and nut. A section drawing or sectional drawing is a 2d drawing of your home as if it has been sliced in two vertically. What is a section drawing? A section drawing is one that shows a vertical cut transecting, typically along a primary axis, an object or building. Slicing a loaf. Section Drawing Meaning In English.
From www.hpdconsult.com
Section Drawings Why Section Drawings is important [Guide] Section Drawing Meaning In English What is a section drawing? It is important to consider what you are trying to show with the section and how much. A section drawing or sectional drawing is a 2d drawing of your home as if it has been sliced in two vertically. / a guide to section drawing. Section drawings are a specific type of drawing architects use. Section Drawing Meaning In English.
From ltlarchitects.com
Manual of Biogenic House Sections — LTL Architects Section Drawing Meaning In English Sections can be drawn of a complete building, a small interior space or even an object. In short, a section drawing is a view that depicts a vertical plane cut through a portion of the project. A 'section drawing', 'section' or 'sectional drawing' shows a view of a structure as though it had been sliced in half or cut along. Section Drawing Meaning In English.
From nutripeople.org
Prescribe Taxpayer Overall building cross section details Get drunk Section Drawing Meaning In English In short, a section drawing is a view that depicts a vertical plane cut through a portion of the project. Section drawing can be explained with a simple analogy: Slicing a loaf of bread. A section drawing or sectional drawing is a 2d drawing of your home as if it has been sliced in two vertically. A section drawing is. Section Drawing Meaning In English.
From engineeringessentials.com
Sectional Views Section Drawing Meaning In English Section drawings are a specific type of drawing architects use to illustrate a building or portion of a building. A section drawing or sectional drawing is a 2d drawing of your home as if it has been sliced in two vertically. / a guide to section drawing. What is a section drawing? If you had an unsliced loaf of fruit. Section Drawing Meaning In English.
From archi-monarch.in
LANDSCAPE SECTION DETAIL TWO ⋆ ArchiMonarch Section Drawing Meaning In English / a guide to section drawing. A section drawing is one that shows a vertical cut transecting, typically along a primary axis, an object or building. If you had an unsliced loaf of fruit and nut. It is important to consider what you are trying to show with the section and how much. Sections can be drawn of a complete. Section Drawing Meaning In English.
From www.mcgill.ca
Sectioning Technique Engineering Design McGill University Section Drawing Meaning In English In short, a section drawing is a view that depicts a vertical plane cut through a portion of the project. Slicing a loaf of bread. Section drawing can be explained with a simple analogy: A section drawing or sectional drawing is a 2d drawing of your home as if it has been sliced in two vertically. / a guide to. Section Drawing Meaning In English.
From architizer.com
Interstitial Space Atriums Drawn in Plan and Section Architizer Journal Section Drawing Meaning In English If you had an unsliced loaf of fruit and nut. It is important to consider what you are trying to show with the section and how much. Slicing a loaf of bread. Section drawing can be explained with a simple analogy: In short, a section drawing is a view that depicts a vertical plane cut through a portion of the. Section Drawing Meaning In English.