Average Size Of Daycare Classroom . In summary, the size of a daycare classroom is an important consideration when designing a space that is safe, comfortable, and conducive to learning. In child care centres and nursery schools regulated under the day nurseries act, four and five year olds may be in rooms with ratios of. When it comes to daycare floor plans, keep it simple, organized, clean, safe, and fun. Make sure materials are accessible to children in learning centers, and make sure that you store away what you don’t use on a daily basis. One is your confidence level , while the other is your preschool space. We’ll discuss the impact of class size on children’s development, the relationship between class size and teacher quality, and the benefits of smaller class sizes for. There are two main factors that you can determine your preschool classroom size. Both small and large classrooms have their advantages and disadvantages, and the ideal size will depend on the specific needs and goals of the daycare center owner.
from mromavolley.com
One is your confidence level , while the other is your preschool space. In summary, the size of a daycare classroom is an important consideration when designing a space that is safe, comfortable, and conducive to learning. When it comes to daycare floor plans, keep it simple, organized, clean, safe, and fun. We’ll discuss the impact of class size on children’s development, the relationship between class size and teacher quality, and the benefits of smaller class sizes for. Make sure materials are accessible to children in learning centers, and make sure that you store away what you don’t use on a daily basis. Both small and large classrooms have their advantages and disadvantages, and the ideal size will depend on the specific needs and goals of the daycare center owner. In child care centres and nursery schools regulated under the day nurseries act, four and five year olds may be in rooms with ratios of. There are two main factors that you can determine your preschool classroom size.
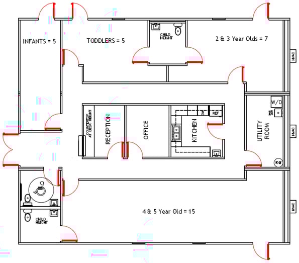
Sample Child Care Center Floor Plans Floor Roma
Average Size Of Daycare Classroom There are two main factors that you can determine your preschool classroom size. In child care centres and nursery schools regulated under the day nurseries act, four and five year olds may be in rooms with ratios of. There are two main factors that you can determine your preschool classroom size. When it comes to daycare floor plans, keep it simple, organized, clean, safe, and fun. In summary, the size of a daycare classroom is an important consideration when designing a space that is safe, comfortable, and conducive to learning. One is your confidence level , while the other is your preschool space. We’ll discuss the impact of class size on children’s development, the relationship between class size and teacher quality, and the benefits of smaller class sizes for. Make sure materials are accessible to children in learning centers, and make sure that you store away what you don’t use on a daily basis. Both small and large classrooms have their advantages and disadvantages, and the ideal size will depend on the specific needs and goals of the daycare center owner.
From www.flickr.com
Ideal Kindergarten Classroom (ECED 417) 1. Click "All Size… Flickr Average Size Of Daycare Classroom There are two main factors that you can determine your preschool classroom size. In summary, the size of a daycare classroom is an important consideration when designing a space that is safe, comfortable, and conducive to learning. Both small and large classrooms have their advantages and disadvantages, and the ideal size will depend on the specific needs and goals of. Average Size Of Daycare Classroom.
From www.pinterest.com
Classroom height chart Toddler classroom, Chart school, Prek classroom Average Size Of Daycare Classroom When it comes to daycare floor plans, keep it simple, organized, clean, safe, and fun. We’ll discuss the impact of class size on children’s development, the relationship between class size and teacher quality, and the benefits of smaller class sizes for. One is your confidence level , while the other is your preschool space. In summary, the size of a. Average Size Of Daycare Classroom.
From www.greencleandesigns.com
furniture for daycare center child care furniture Average Size Of Daycare Classroom Both small and large classrooms have their advantages and disadvantages, and the ideal size will depend on the specific needs and goals of the daycare center owner. In summary, the size of a daycare classroom is an important consideration when designing a space that is safe, comfortable, and conducive to learning. We’ll discuss the impact of class size on children’s. Average Size Of Daycare Classroom.
From www.childcarerenovation.com
Meet Preschool Classroom Size With Comprehensive Guide Average Size Of Daycare Classroom One is your confidence level , while the other is your preschool space. Make sure materials are accessible to children in learning centers, and make sure that you store away what you don’t use on a daily basis. Both small and large classrooms have their advantages and disadvantages, and the ideal size will depend on the specific needs and goals. Average Size Of Daycare Classroom.
From www.pinterest.jp
Come and also explore the excitement of discovering in different class Average Size Of Daycare Classroom When it comes to daycare floor plans, keep it simple, organized, clean, safe, and fun. In child care centres and nursery schools regulated under the day nurseries act, four and five year olds may be in rooms with ratios of. We’ll discuss the impact of class size on children’s development, the relationship between class size and teacher quality, and the. Average Size Of Daycare Classroom.
From www.pinterest.co.kr
This would be an awesome daycare class Infant toddler classroom Average Size Of Daycare Classroom We’ll discuss the impact of class size on children’s development, the relationship between class size and teacher quality, and the benefits of smaller class sizes for. Make sure materials are accessible to children in learning centers, and make sure that you store away what you don’t use on a daily basis. In child care centres and nursery schools regulated under. Average Size Of Daycare Classroom.
From www.discountschoolsupply.com
Table and Chair Guidelines for an Optimized Classroom Average Size Of Daycare Classroom In summary, the size of a daycare classroom is an important consideration when designing a space that is safe, comfortable, and conducive to learning. One is your confidence level , while the other is your preschool space. Both small and large classrooms have their advantages and disadvantages, and the ideal size will depend on the specific needs and goals of. Average Size Of Daycare Classroom.
From answerlistsheriffs.z14.web.core.windows.net
Average Height Of 1st Grader Average Size Of Daycare Classroom One is your confidence level , while the other is your preschool space. In child care centres and nursery schools regulated under the day nurseries act, four and five year olds may be in rooms with ratios of. In summary, the size of a daycare classroom is an important consideration when designing a space that is safe, comfortable, and conducive. Average Size Of Daycare Classroom.
From mybrightwheel.com
Top Preschool Classroom Layouts & Daycare Floor Plans Average Size Of Daycare Classroom Make sure materials are accessible to children in learning centers, and make sure that you store away what you don’t use on a daily basis. In summary, the size of a daycare classroom is an important consideration when designing a space that is safe, comfortable, and conducive to learning. In child care centres and nursery schools regulated under the day. Average Size Of Daycare Classroom.
From mromavolley.com
Child Daycare Center Floor Plans Floor Roma Average Size Of Daycare Classroom Make sure materials are accessible to children in learning centers, and make sure that you store away what you don’t use on a daily basis. In summary, the size of a daycare classroom is an important consideration when designing a space that is safe, comfortable, and conducive to learning. Both small and large classrooms have their advantages and disadvantages, and. Average Size Of Daycare Classroom.
From www.pinterest.cl
Classrooms dimensions Classroom architecture, Classroom planning Average Size Of Daycare Classroom Make sure materials are accessible to children in learning centers, and make sure that you store away what you don’t use on a daily basis. When it comes to daycare floor plans, keep it simple, organized, clean, safe, and fun. We’ll discuss the impact of class size on children’s development, the relationship between class size and teacher quality, and the. Average Size Of Daycare Classroom.
From www.pinterest.es
Toddler Daycare Rooms, Childcare Rooms, Toddler Classroom, Home Daycare Average Size Of Daycare Classroom We’ll discuss the impact of class size on children’s development, the relationship between class size and teacher quality, and the benefits of smaller class sizes for. In child care centres and nursery schools regulated under the day nurseries act, four and five year olds may be in rooms with ratios of. Both small and large classrooms have their advantages and. Average Size Of Daycare Classroom.
From csawis.com
What's the Ideal CaregivertoChild Ratio for Daycare? Average Size Of Daycare Classroom In summary, the size of a daycare classroom is an important consideration when designing a space that is safe, comfortable, and conducive to learning. One is your confidence level , while the other is your preschool space. Both small and large classrooms have their advantages and disadvantages, and the ideal size will depend on the specific needs and goals of. Average Size Of Daycare Classroom.
From www.pinterest.com
Class height chart useful for measuring in cm and m. Also for Average Size Of Daycare Classroom Both small and large classrooms have their advantages and disadvantages, and the ideal size will depend on the specific needs and goals of the daycare center owner. There are two main factors that you can determine your preschool classroom size. In summary, the size of a daycare classroom is an important consideration when designing a space that is safe, comfortable,. Average Size Of Daycare Classroom.
From mungfali.com
DayCare Classroom Ideas Average Size Of Daycare Classroom In child care centres and nursery schools regulated under the day nurseries act, four and five year olds may be in rooms with ratios of. Make sure materials are accessible to children in learning centers, and make sure that you store away what you don’t use on a daily basis. There are two main factors that you can determine your. Average Size Of Daycare Classroom.
From www.himama.com
How to design a daycare classroom floor plan HiMama Blog Resources Average Size Of Daycare Classroom One is your confidence level , while the other is your preschool space. Make sure materials are accessible to children in learning centers, and make sure that you store away what you don’t use on a daily basis. When it comes to daycare floor plans, keep it simple, organized, clean, safe, and fun. In child care centres and nursery schools. Average Size Of Daycare Classroom.
From www.pinterest.com
LOVE the loft in this classroom! Someday I will have one... Daycare Average Size Of Daycare Classroom In child care centres and nursery schools regulated under the day nurseries act, four and five year olds may be in rooms with ratios of. In summary, the size of a daycare classroom is an important consideration when designing a space that is safe, comfortable, and conducive to learning. There are two main factors that you can determine your preschool. Average Size Of Daycare Classroom.
From arbetterbeginnings.com
Classroom Ratios AR Better Beginnings Average Size Of Daycare Classroom One is your confidence level , while the other is your preschool space. In child care centres and nursery schools regulated under the day nurseries act, four and five year olds may be in rooms with ratios of. Make sure materials are accessible to children in learning centers, and make sure that you store away what you don’t use on. Average Size Of Daycare Classroom.
From za.pinterest.com
Nonstandard Measurement Comparing height in our preschool classroom Average Size Of Daycare Classroom In child care centres and nursery schools regulated under the day nurseries act, four and five year olds may be in rooms with ratios of. There are two main factors that you can determine your preschool classroom size. When it comes to daycare floor plans, keep it simple, organized, clean, safe, and fun. In summary, the size of a daycare. Average Size Of Daycare Classroom.
From www.pinterest.pt
Free download sample infant room. Daycare design, Daycare decor Average Size Of Daycare Classroom Both small and large classrooms have their advantages and disadvantages, and the ideal size will depend on the specific needs and goals of the daycare center owner. We’ll discuss the impact of class size on children’s development, the relationship between class size and teacher quality, and the benefits of smaller class sizes for. One is your confidence level , while. Average Size Of Daycare Classroom.
From mromavolley.com
Sample Child Care Center Floor Plans Floor Roma Average Size Of Daycare Classroom Make sure materials are accessible to children in learning centers, and make sure that you store away what you don’t use on a daily basis. When it comes to daycare floor plans, keep it simple, organized, clean, safe, and fun. One is your confidence level , while the other is your preschool space. We’ll discuss the impact of class size. Average Size Of Daycare Classroom.
From kidcityusa.com
Preschool and Daycare in Bunnell, FL Kid City USA Average Size Of Daycare Classroom Both small and large classrooms have their advantages and disadvantages, and the ideal size will depend on the specific needs and goals of the daycare center owner. One is your confidence level , while the other is your preschool space. There are two main factors that you can determine your preschool classroom size. Make sure materials are accessible to children. Average Size Of Daycare Classroom.
From www.template.net
FREE Height Chart Templates Edit Online & Download Average Size Of Daycare Classroom There are two main factors that you can determine your preschool classroom size. When it comes to daycare floor plans, keep it simple, organized, clean, safe, and fun. Make sure materials are accessible to children in learning centers, and make sure that you store away what you don’t use on a daily basis. In summary, the size of a daycare. Average Size Of Daycare Classroom.
From umonicsplus.com
Preschool Classroom Size The Umonics Method Average Size Of Daycare Classroom In child care centres and nursery schools regulated under the day nurseries act, four and five year olds may be in rooms with ratios of. One is your confidence level , while the other is your preschool space. When it comes to daycare floor plans, keep it simple, organized, clean, safe, and fun. Make sure materials are accessible to children. Average Size Of Daycare Classroom.
From www.pinterest.ca
Classroom layout Early Toddler (12 months) http//www Average Size Of Daycare Classroom Make sure materials are accessible to children in learning centers, and make sure that you store away what you don’t use on a daily basis. In summary, the size of a daycare classroom is an important consideration when designing a space that is safe, comfortable, and conducive to learning. There are two main factors that you can determine your preschool. Average Size Of Daycare Classroom.
From pinterest.com
Mobile Site Preview Daycare decor, Home daycare ideas, Daycare design Average Size Of Daycare Classroom When it comes to daycare floor plans, keep it simple, organized, clean, safe, and fun. Both small and large classrooms have their advantages and disadvantages, and the ideal size will depend on the specific needs and goals of the daycare center owner. In summary, the size of a daycare classroom is an important consideration when designing a space that is. Average Size Of Daycare Classroom.
From www.pinterest.com
Classroom Table Height Guide and Tips! (With images) Classroom tables Average Size Of Daycare Classroom Make sure materials are accessible to children in learning centers, and make sure that you store away what you don’t use on a daily basis. When it comes to daycare floor plans, keep it simple, organized, clean, safe, and fun. In summary, the size of a daycare classroom is an important consideration when designing a space that is safe, comfortable,. Average Size Of Daycare Classroom.
From www.pinterest.co.kr
Top Daycare Floor Plans and Designs in 2022 Kindergarten classroom Average Size Of Daycare Classroom One is your confidence level , while the other is your preschool space. Make sure materials are accessible to children in learning centers, and make sure that you store away what you don’t use on a daily basis. We’ll discuss the impact of class size on children’s development, the relationship between class size and teacher quality, and the benefits of. Average Size Of Daycare Classroom.
From jhmrad.com
Care Center Floor Plans Plan Preschool Classroom JHMRad 85750 Average Size Of Daycare Classroom In child care centres and nursery schools regulated under the day nurseries act, four and five year olds may be in rooms with ratios of. One is your confidence level , while the other is your preschool space. There are two main factors that you can determine your preschool classroom size. Both small and large classrooms have their advantages and. Average Size Of Daycare Classroom.
From qualityclassrooms.ca
Table & Chair Height Chart Average Size Of Daycare Classroom In child care centres and nursery schools regulated under the day nurseries act, four and five year olds may be in rooms with ratios of. In summary, the size of a daycare classroom is an important consideration when designing a space that is safe, comfortable, and conducive to learning. One is your confidence level , while the other is your. Average Size Of Daycare Classroom.
From www.pinterest.com
Öğretim Average Size Of Daycare Classroom In summary, the size of a daycare classroom is an important consideration when designing a space that is safe, comfortable, and conducive to learning. One is your confidence level , while the other is your preschool space. In child care centres and nursery schools regulated under the day nurseries act, four and five year olds may be in rooms with. Average Size Of Daycare Classroom.
From woodsfurniture.com.au
Optimal Height Guide Average Size Of Daycare Classroom One is your confidence level , while the other is your preschool space. Both small and large classrooms have their advantages and disadvantages, and the ideal size will depend on the specific needs and goals of the daycare center owner. There are two main factors that you can determine your preschool classroom size. In child care centres and nursery schools. Average Size Of Daycare Classroom.
From mtelizabeth.com
Toddler Daycare in Kennesaw Mt. Elizabeth Academy Average Size Of Daycare Classroom There are two main factors that you can determine your preschool classroom size. When it comes to daycare floor plans, keep it simple, organized, clean, safe, and fun. In child care centres and nursery schools regulated under the day nurseries act, four and five year olds may be in rooms with ratios of. Make sure materials are accessible to children. Average Size Of Daycare Classroom.
From firstyearswaconia.com
SchoolAge Room Overview Child Care and Daycare in Waconia, MN Average Size Of Daycare Classroom One is your confidence level , while the other is your preschool space. We’ll discuss the impact of class size on children’s development, the relationship between class size and teacher quality, and the benefits of smaller class sizes for. There are two main factors that you can determine your preschool classroom size. When it comes to daycare floor plans, keep. Average Size Of Daycare Classroom.
From www.manufacturedhomes.com
Childcare Daycare Centers / Medium by Wilkins Builders Average Size Of Daycare Classroom In child care centres and nursery schools regulated under the day nurseries act, four and five year olds may be in rooms with ratios of. In summary, the size of a daycare classroom is an important consideration when designing a space that is safe, comfortable, and conducive to learning. There are two main factors that you can determine your preschool. Average Size Of Daycare Classroom.