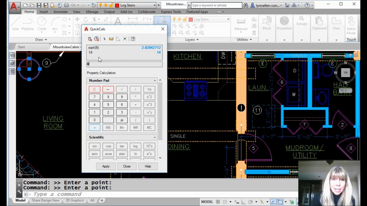
How To Use Quick Calculator In Autocad . The quickcalc calculator can be used to perform basic and complex calculations within the autocad drawing environment, and. Shaun bryant explains the benefits of. Use quickcalc directly as you would with a desktop calculator, or use it transparently within a command or the properties palette. If i have a consultant that's using dual units, 00:57. In this session you will learn:1. The cal and quickcalc calculators use geometric functions, unit conversions, and variables in addition to the basic features found in scientific. Quick calculator provides a complete calculator function within autocad, including scientific functions. Let's start off with some basic functionality, 00:50. Performs a full range of mathematical, scientific, and geometric calculations, creates and uses variables, and.
from www.youtube.com
The quickcalc calculator can be used to perform basic and complex calculations within the autocad drawing environment, and. If i have a consultant that's using dual units, 00:57. Use quickcalc directly as you would with a desktop calculator, or use it transparently within a command or the properties palette. Shaun bryant explains the benefits of. Let's start off with some basic functionality, 00:50. In this session you will learn:1. The cal and quickcalc calculators use geometric functions, unit conversions, and variables in addition to the basic features found in scientific. Quick calculator provides a complete calculator function within autocad, including scientific functions. Performs a full range of mathematical, scientific, and geometric calculations, creates and uses variables, and.
Calculate Irregular Footing Area l Quick Calculation by AutoCAD l
How To Use Quick Calculator In Autocad The cal and quickcalc calculators use geometric functions, unit conversions, and variables in addition to the basic features found in scientific. Let's start off with some basic functionality, 00:50. If i have a consultant that's using dual units, 00:57. Use quickcalc directly as you would with a desktop calculator, or use it transparently within a command or the properties palette. The cal and quickcalc calculators use geometric functions, unit conversions, and variables in addition to the basic features found in scientific. In this session you will learn:1. Performs a full range of mathematical, scientific, and geometric calculations, creates and uses variables, and. Shaun bryant explains the benefits of. The quickcalc calculator can be used to perform basic and complex calculations within the autocad drawing environment, and. Quick calculator provides a complete calculator function within autocad, including scientific functions.
From www.youtube.com
How to calculate total area and perimeter for multiple shapes at once How To Use Quick Calculator In Autocad Shaun bryant explains the benefits of. In this session you will learn:1. The cal and quickcalc calculators use geometric functions, unit conversions, and variables in addition to the basic features found in scientific. Quick calculator provides a complete calculator function within autocad, including scientific functions. Performs a full range of mathematical, scientific, and geometric calculations, creates and uses variables, and.. How To Use Quick Calculator In Autocad.
From youtube.com
How to Use the Calculator in AutoCAD YouTube How To Use Quick Calculator In Autocad In this session you will learn:1. Let's start off with some basic functionality, 00:50. Use quickcalc directly as you would with a desktop calculator, or use it transparently within a command or the properties palette. If i have a consultant that's using dual units, 00:57. Shaun bryant explains the benefits of. The cal and quickcalc calculators use geometric functions, unit. How To Use Quick Calculator In Autocad.
From www.youtube.com
Autocad Calculate Areas in Autocad tutorial) YouTube How To Use Quick Calculator In Autocad Performs a full range of mathematical, scientific, and geometric calculations, creates and uses variables, and. In this session you will learn:1. Let's start off with some basic functionality, 00:50. The cal and quickcalc calculators use geometric functions, unit conversions, and variables in addition to the basic features found in scientific. Use quickcalc directly as you would with a desktop calculator,. How To Use Quick Calculator In Autocad.
From www.youtube.com
AutoCAD 2012 Introduction Training1404 Quick calculator YouTube How To Use Quick Calculator In Autocad Quick calculator provides a complete calculator function within autocad, including scientific functions. The cal and quickcalc calculators use geometric functions, unit conversions, and variables in addition to the basic features found in scientific. The quickcalc calculator can be used to perform basic and complex calculations within the autocad drawing environment, and. Let's start off with some basic functionality, 00:50. If. How To Use Quick Calculator In Autocad.
From www.youtube.com
how to enable autocad calculator commandhow to use autocad calculator How To Use Quick Calculator In Autocad Shaun bryant explains the benefits of. Performs a full range of mathematical, scientific, and geometric calculations, creates and uses variables, and. If i have a consultant that's using dual units, 00:57. The quickcalc calculator can be used to perform basic and complex calculations within the autocad drawing environment, and. In this session you will learn:1. Use quickcalc directly as you. How To Use Quick Calculator In Autocad.
From www.jigsawcad.com
Let the experts talk about How do you insert a calculator into How To Use Quick Calculator In Autocad Shaun bryant explains the benefits of. Quick calculator provides a complete calculator function within autocad, including scientific functions. The cal and quickcalc calculators use geometric functions, unit conversions, and variables in addition to the basic features found in scientific. Let's start off with some basic functionality, 00:50. If i have a consultant that's using dual units, 00:57. The quickcalc calculator. How To Use Quick Calculator In Autocad.
From cadintentions.com
AutoCAD Tutorial How to Calculate Areas Quickly in AutoCAD CAD How To Use Quick Calculator In Autocad Quick calculator provides a complete calculator function within autocad, including scientific functions. The quickcalc calculator can be used to perform basic and complex calculations within the autocad drawing environment, and. Let's start off with some basic functionality, 00:50. Use quickcalc directly as you would with a desktop calculator, or use it transparently within a command or the properties palette. Shaun. How To Use Quick Calculator In Autocad.
From www.youtube.com
How to use the Quick Calculator AutoCAD Tutorials www.videotutorials How To Use Quick Calculator In Autocad The cal and quickcalc calculators use geometric functions, unit conversions, and variables in addition to the basic features found in scientific. In this session you will learn:1. Let's start off with some basic functionality, 00:50. The quickcalc calculator can be used to perform basic and complex calculations within the autocad drawing environment, and. Performs a full range of mathematical, scientific,. How To Use Quick Calculator In Autocad.
From www.youtube.com
AutoCAD Tutorial Using the calculator to your advantage YouTube How To Use Quick Calculator In Autocad In this session you will learn:1. Shaun bryant explains the benefits of. Let's start off with some basic functionality, 00:50. The cal and quickcalc calculators use geometric functions, unit conversions, and variables in addition to the basic features found in scientific. The quickcalc calculator can be used to perform basic and complex calculations within the autocad drawing environment, and. Quick. How To Use Quick Calculator In Autocad.
From www.youtube.com
47 AutoCAD Fundamentals ( Quick Calculator ) YouTube How To Use Quick Calculator In Autocad Let's start off with some basic functionality, 00:50. The cal and quickcalc calculators use geometric functions, unit conversions, and variables in addition to the basic features found in scientific. In this session you will learn:1. Quick calculator provides a complete calculator function within autocad, including scientific functions. The quickcalc calculator can be used to perform basic and complex calculations within. How To Use Quick Calculator In Autocad.
From www.youtube.com
how to use calculator in autocad drawing how to work calculator in How To Use Quick Calculator In Autocad In this session you will learn:1. The quickcalc calculator can be used to perform basic and complex calculations within the autocad drawing environment, and. Let's start off with some basic functionality, 00:50. The cal and quickcalc calculators use geometric functions, unit conversions, and variables in addition to the basic features found in scientific. Quick calculator provides a complete calculator function. How To Use Quick Calculator In Autocad.
From www.youtube.com
How to Calculate Area in AutoCAD 4 Methods Explained AutoCAD How To Use Quick Calculator In Autocad The quickcalc calculator can be used to perform basic and complex calculations within the autocad drawing environment, and. If i have a consultant that's using dual units, 00:57. In this session you will learn:1. Use quickcalc directly as you would with a desktop calculator, or use it transparently within a command or the properties palette. Performs a full range of. How To Use Quick Calculator In Autocad.
From www.youtube.com
AutoCAD multi Area Lisp comparison to the Quick Calculator area How To Use Quick Calculator In Autocad If i have a consultant that's using dual units, 00:57. The quickcalc calculator can be used to perform basic and complex calculations within the autocad drawing environment, and. Quick calculator provides a complete calculator function within autocad, including scientific functions. The cal and quickcalc calculators use geometric functions, unit conversions, and variables in addition to the basic features found in. How To Use Quick Calculator In Autocad.
From www.youtube.com
C00508 Quick Calculator AutoCAD 2014 Tutorial YouTube How To Use Quick Calculator In Autocad In this session you will learn:1. Let's start off with some basic functionality, 00:50. Use quickcalc directly as you would with a desktop calculator, or use it transparently within a command or the properties palette. The cal and quickcalc calculators use geometric functions, unit conversions, and variables in addition to the basic features found in scientific. Performs a full range. How To Use Quick Calculator In Autocad.
From tupuy.com
How To Calculate Length Of Many Lines In Autocad Printable Online How To Use Quick Calculator In Autocad Use quickcalc directly as you would with a desktop calculator, or use it transparently within a command or the properties palette. In this session you will learn:1. Performs a full range of mathematical, scientific, and geometric calculations, creates and uses variables, and. Quick calculator provides a complete calculator function within autocad, including scientific functions. Shaun bryant explains the benefits of.. How To Use Quick Calculator In Autocad.
From www.youtube.com
Quick Calculator in AutoCAD Quick Calci in AutoCAD Hindi AutoCAD How To Use Quick Calculator In Autocad Shaun bryant explains the benefits of. Use quickcalc directly as you would with a desktop calculator, or use it transparently within a command or the properties palette. In this session you will learn:1. Let's start off with some basic functionality, 00:50. If i have a consultant that's using dual units, 00:57. The quickcalc calculator can be used to perform basic. How To Use Quick Calculator In Autocad.
From www.youtube.com
AutoCAD tips and tricks How to Bring up your Command Line, Quick How To Use Quick Calculator In Autocad If i have a consultant that's using dual units, 00:57. The quickcalc calculator can be used to perform basic and complex calculations within the autocad drawing environment, and. Shaun bryant explains the benefits of. Performs a full range of mathematical, scientific, and geometric calculations, creates and uses variables, and. In this session you will learn:1. Let's start off with some. How To Use Quick Calculator In Autocad.
From www.youtube.com
How to Use Measure, Point, and Calculator in AutoCAD Lecture 44 YouTube How To Use Quick Calculator In Autocad The quickcalc calculator can be used to perform basic and complex calculations within the autocad drawing environment, and. Quick calculator provides a complete calculator function within autocad, including scientific functions. Let's start off with some basic functionality, 00:50. Use quickcalc directly as you would with a desktop calculator, or use it transparently within a command or the properties palette. The. How To Use Quick Calculator In Autocad.
From www.youtube.com
How to Use Calculator in Autocad Quick Calculator Autocad Tutorial How To Use Quick Calculator In Autocad The quickcalc calculator can be used to perform basic and complex calculations within the autocad drawing environment, and. Quick calculator provides a complete calculator function within autocad, including scientific functions. The cal and quickcalc calculators use geometric functions, unit conversions, and variables in addition to the basic features found in scientific. If i have a consultant that's using dual units,. How To Use Quick Calculator In Autocad.
From letitsnowglobe.co.uk
How to calculate area of multiple objects in autocad How To Use Quick Calculator In Autocad Let's start off with some basic functionality, 00:50. Performs a full range of mathematical, scientific, and geometric calculations, creates and uses variables, and. Use quickcalc directly as you would with a desktop calculator, or use it transparently within a command or the properties palette. The quickcalc calculator can be used to perform basic and complex calculations within the autocad drawing. How To Use Quick Calculator In Autocad.
From www.youtube.com
How to use to Calculator and Quick Calculator in AUTO CAD YouTube How To Use Quick Calculator In Autocad Quick calculator provides a complete calculator function within autocad, including scientific functions. If i have a consultant that's using dual units, 00:57. The cal and quickcalc calculators use geometric functions, unit conversions, and variables in addition to the basic features found in scientific. Use quickcalc directly as you would with a desktop calculator, or use it transparently within a command. How To Use Quick Calculator In Autocad.
From www.youtube.com
AutoCAD Video Tips Easy Metric Conversions with the Quick Calculator How To Use Quick Calculator In Autocad Performs a full range of mathematical, scientific, and geometric calculations, creates and uses variables, and. Let's start off with some basic functionality, 00:50. Use quickcalc directly as you would with a desktop calculator, or use it transparently within a command or the properties palette. In this session you will learn:1. If i have a consultant that's using dual units, 00:57.. How To Use Quick Calculator In Autocad.
From www.youtube.com
C00509 Using the Quick Calculator AutoCAD 2014 Tutorial YouTube How To Use Quick Calculator In Autocad The quickcalc calculator can be used to perform basic and complex calculations within the autocad drawing environment, and. Shaun bryant explains the benefits of. The cal and quickcalc calculators use geometric functions, unit conversions, and variables in addition to the basic features found in scientific. If i have a consultant that's using dual units, 00:57. Use quickcalc directly as you. How To Use Quick Calculator In Autocad.
From www.youtube.com
Learn AutoCAD 2012 Video Tutorial how to use the quick calculator How To Use Quick Calculator In Autocad The quickcalc calculator can be used to perform basic and complex calculations within the autocad drawing environment, and. If i have a consultant that's using dual units, 00:57. In this session you will learn:1. The cal and quickcalc calculators use geometric functions, unit conversions, and variables in addition to the basic features found in scientific. Quick calculator provides a complete. How To Use Quick Calculator In Autocad.
From www.youtube.com
Autodesk AutoCAD How to use Quick Properties and Clean Screen Command How To Use Quick Calculator In Autocad Shaun bryant explains the benefits of. The cal and quickcalc calculators use geometric functions, unit conversions, and variables in addition to the basic features found in scientific. Performs a full range of mathematical, scientific, and geometric calculations, creates and uses variables, and. If i have a consultant that's using dual units, 00:57. Quick calculator provides a complete calculator function within. How To Use Quick Calculator In Autocad.
From www.youtube.com
What is Autocad 1.36 Autocad Quick Select. How to use command quick How To Use Quick Calculator In Autocad In this session you will learn:1. The cal and quickcalc calculators use geometric functions, unit conversions, and variables in addition to the basic features found in scientific. Performs a full range of mathematical, scientific, and geometric calculations, creates and uses variables, and. Shaun bryant explains the benefits of. If i have a consultant that's using dual units, 00:57. Let's start. How To Use Quick Calculator In Autocad.
From www.youtube.com
Calculate Irregular Footing Area l Quick Calculation by AutoCAD l How To Use Quick Calculator In Autocad Performs a full range of mathematical, scientific, and geometric calculations, creates and uses variables, and. Quick calculator provides a complete calculator function within autocad, including scientific functions. Let's start off with some basic functionality, 00:50. Shaun bryant explains the benefits of. Use quickcalc directly as you would with a desktop calculator, or use it transparently within a command or the. How To Use Quick Calculator In Autocad.
From www.youtube.com
How to Area Calculation Easy By CAD Tools in AutoCAD. YouTube How To Use Quick Calculator In Autocad Use quickcalc directly as you would with a desktop calculator, or use it transparently within a command or the properties palette. If i have a consultant that's using dual units, 00:57. The cal and quickcalc calculators use geometric functions, unit conversions, and variables in addition to the basic features found in scientific. In this session you will learn:1. Performs a. How To Use Quick Calculator In Autocad.
From www.youtube.com
How to calculate area in autocad by easy way YouTube How To Use Quick Calculator In Autocad The quickcalc calculator can be used to perform basic and complex calculations within the autocad drawing environment, and. In this session you will learn:1. The cal and quickcalc calculators use geometric functions, unit conversions, and variables in addition to the basic features found in scientific. Quick calculator provides a complete calculator function within autocad, including scientific functions. Performs a full. How To Use Quick Calculator In Autocad.
From www.youtube.com
5.17 AutoCad Quick Calculator YouTube How To Use Quick Calculator In Autocad Quick calculator provides a complete calculator function within autocad, including scientific functions. The quickcalc calculator can be used to perform basic and complex calculations within the autocad drawing environment, and. In this session you will learn:1. Let's start off with some basic functionality, 00:50. If i have a consultant that's using dual units, 00:57. Use quickcalc directly as you would. How To Use Quick Calculator In Autocad.
From www.youtube.com
Quick Calculator How to use quick calculator in ZWCAD YouTube How To Use Quick Calculator In Autocad The cal and quickcalc calculators use geometric functions, unit conversions, and variables in addition to the basic features found in scientific. Performs a full range of mathematical, scientific, and geometric calculations, creates and uses variables, and. Use quickcalc directly as you would with a desktop calculator, or use it transparently within a command or the properties palette. Quick calculator provides. How To Use Quick Calculator In Autocad.
From www.youtube.com
AutoCAD Video Tips Get Fast Answers with the AutoCAD Quick Calculator How To Use Quick Calculator In Autocad Quick calculator provides a complete calculator function within autocad, including scientific functions. If i have a consultant that's using dual units, 00:57. Shaun bryant explains the benefits of. In this session you will learn:1. The cal and quickcalc calculators use geometric functions, unit conversions, and variables in addition to the basic features found in scientific. The quickcalc calculator can be. How To Use Quick Calculator In Autocad.
From www.youtube.com
How to Use Calculator in Autocad Quick Calculator Autocad in Hindi How To Use Quick Calculator In Autocad The quickcalc calculator can be used to perform basic and complex calculations within the autocad drawing environment, and. Quick calculator provides a complete calculator function within autocad, including scientific functions. Shaun bryant explains the benefits of. Use quickcalc directly as you would with a desktop calculator, or use it transparently within a command or the properties palette. In this session. How To Use Quick Calculator In Autocad.
From www.youtube.com
How to calculate Area & Perimeter in Autocad YouTube How To Use Quick Calculator In Autocad Quick calculator provides a complete calculator function within autocad, including scientific functions. Use quickcalc directly as you would with a desktop calculator, or use it transparently within a command or the properties palette. In this session you will learn:1. If i have a consultant that's using dual units, 00:57. Performs a full range of mathematical, scientific, and geometric calculations, creates. How To Use Quick Calculator In Autocad.
From www.youtube.com
How to calculate and mark all areas in a drawing in AutoCAD YouTube How To Use Quick Calculator In Autocad Performs a full range of mathematical, scientific, and geometric calculations, creates and uses variables, and. Let's start off with some basic functionality, 00:50. Use quickcalc directly as you would with a desktop calculator, or use it transparently within a command or the properties palette. In this session you will learn:1. If i have a consultant that's using dual units, 00:57.. How To Use Quick Calculator In Autocad.