Virginia Machinery And Tools Tax . This is article 2 of the code of virginia, titled “machinery and tools tax.” it is part of title 58.1, titled “taxation.” it is part of subtitle iii, titled. Certain machinery and tools segregated for local taxation only; The machinery and tools tax is levied on machinery and tools that are used for manufacturing, mining, processing or reprocessing, radio or television. Machinery and tools segregated for local taxation pursuant to. Machinery and tools segregated for local taxation pursuant to.
from wvpolicy.org
Machinery and tools segregated for local taxation pursuant to. The machinery and tools tax is levied on machinery and tools that are used for manufacturing, mining, processing or reprocessing, radio or television. This is article 2 of the code of virginia, titled “machinery and tools tax.” it is part of title 58.1, titled “taxation.” it is part of subtitle iii, titled. Machinery and tools segregated for local taxation pursuant to. Certain machinery and tools segregated for local taxation only;
Data Doesn't Support Eliminating the Business Machinery, Equipment, and
Virginia Machinery And Tools Tax Machinery and tools segregated for local taxation pursuant to. This is article 2 of the code of virginia, titled “machinery and tools tax.” it is part of title 58.1, titled “taxation.” it is part of subtitle iii, titled. The machinery and tools tax is levied on machinery and tools that are used for manufacturing, mining, processing or reprocessing, radio or television. Certain machinery and tools segregated for local taxation only; Machinery and tools segregated for local taxation pursuant to. Machinery and tools segregated for local taxation pursuant to.
From www.formsbank.com
Fillable Form Dr 1192 Colorado Machinery And Machine Tools State Virginia Machinery And Tools Tax This is article 2 of the code of virginia, titled “machinery and tools tax.” it is part of title 58.1, titled “taxation.” it is part of subtitle iii, titled. Machinery and tools segregated for local taxation pursuant to. Certain machinery and tools segregated for local taxation only; Machinery and tools segregated for local taxation pursuant to. The machinery and tools. Virginia Machinery And Tools Tax.
From www.formsbank.com
Return Of Tangible Business Property And Machinery & Tools The City Virginia Machinery And Tools Tax This is article 2 of the code of virginia, titled “machinery and tools tax.” it is part of title 58.1, titled “taxation.” it is part of subtitle iii, titled. The machinery and tools tax is levied on machinery and tools that are used for manufacturing, mining, processing or reprocessing, radio or television. Machinery and tools segregated for local taxation pursuant. Virginia Machinery And Tools Tax.
From www.zrivo.com
Virginia Sales Tax 2024 2025 Virginia Machinery And Tools Tax The machinery and tools tax is levied on machinery and tools that are used for manufacturing, mining, processing or reprocessing, radio or television. Machinery and tools segregated for local taxation pursuant to. Certain machinery and tools segregated for local taxation only; Machinery and tools segregated for local taxation pursuant to. This is article 2 of the code of virginia, titled. Virginia Machinery And Tools Tax.
From www.formsbank.com
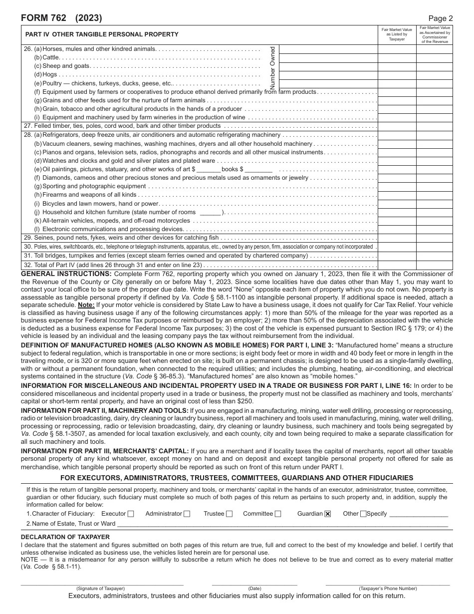
Fillable Form 762 Virginia Return Of Tangible Personal Property Virginia Machinery And Tools Tax Certain machinery and tools segregated for local taxation only; This is article 2 of the code of virginia, titled “machinery and tools tax.” it is part of title 58.1, titled “taxation.” it is part of subtitle iii, titled. Machinery and tools segregated for local taxation pursuant to. The machinery and tools tax is levied on machinery and tools that are. Virginia Machinery And Tools Tax.
From taxfoundation.org
Does Your State Tax Manufacturing Machinery? Tax Foundation Virginia Machinery And Tools Tax Machinery and tools segregated for local taxation pursuant to. Certain machinery and tools segregated for local taxation only; This is article 2 of the code of virginia, titled “machinery and tools tax.” it is part of title 58.1, titled “taxation.” it is part of subtitle iii, titled. The machinery and tools tax is levied on machinery and tools that are. Virginia Machinery And Tools Tax.
From www.formsbank.com
Form 2ta Business Return Of Tangible Personal Property And Machinery Virginia Machinery And Tools Tax The machinery and tools tax is levied on machinery and tools that are used for manufacturing, mining, processing or reprocessing, radio or television. This is article 2 of the code of virginia, titled “machinery and tools tax.” it is part of title 58.1, titled “taxation.” it is part of subtitle iii, titled. Machinery and tools segregated for local taxation pursuant. Virginia Machinery And Tools Tax.
From www.formsbank.com
2012 Return Of Tangible Business Property And Machinery & Tools Form Virginia Machinery And Tools Tax Machinery and tools segregated for local taxation pursuant to. Certain machinery and tools segregated for local taxation only; The machinery and tools tax is levied on machinery and tools that are used for manufacturing, mining, processing or reprocessing, radio or television. This is article 2 of the code of virginia, titled “machinery and tools tax.” it is part of title. Virginia Machinery And Tools Tax.
From www.formsbank.com
Form 2ta Business Return Of Tangible Personal Property And Machinery Virginia Machinery And Tools Tax Machinery and tools segregated for local taxation pursuant to. Machinery and tools segregated for local taxation pursuant to. The machinery and tools tax is levied on machinery and tools that are used for manufacturing, mining, processing or reprocessing, radio or television. This is article 2 of the code of virginia, titled “machinery and tools tax.” it is part of title. Virginia Machinery And Tools Tax.
From www.formsbank.com
Fillable Business Return Of Tangible Personal Property And Machinery Virginia Machinery And Tools Tax Certain machinery and tools segregated for local taxation only; This is article 2 of the code of virginia, titled “machinery and tools tax.” it is part of title 58.1, titled “taxation.” it is part of subtitle iii, titled. The machinery and tools tax is levied on machinery and tools that are used for manufacturing, mining, processing or reprocessing, radio or. Virginia Machinery And Tools Tax.
From www.formsbank.com
Form2ta Business Return Of Tangible Personal Property And Machinery Virginia Machinery And Tools Tax The machinery and tools tax is levied on machinery and tools that are used for manufacturing, mining, processing or reprocessing, radio or television. Machinery and tools segregated for local taxation pursuant to. Certain machinery and tools segregated for local taxation only; Machinery and tools segregated for local taxation pursuant to. This is article 2 of the code of virginia, titled. Virginia Machinery And Tools Tax.
From www.formsbank.com
Virginia Form 762 Return Of Tangible Personal Property, Machinery And Virginia Machinery And Tools Tax Certain machinery and tools segregated for local taxation only; The machinery and tools tax is levied on machinery and tools that are used for manufacturing, mining, processing or reprocessing, radio or television. This is article 2 of the code of virginia, titled “machinery and tools tax.” it is part of title 58.1, titled “taxation.” it is part of subtitle iii,. Virginia Machinery And Tools Tax.
From www.formsbank.com
Form Cr2 Return Of Machinery And Tools 2011 printable pdf download Virginia Machinery And Tools Tax This is article 2 of the code of virginia, titled “machinery and tools tax.” it is part of title 58.1, titled “taxation.” it is part of subtitle iii, titled. Machinery and tools segregated for local taxation pursuant to. Machinery and tools segregated for local taxation pursuant to. The machinery and tools tax is levied on machinery and tools that are. Virginia Machinery And Tools Tax.
From www.formsbank.com
Fillable Form St17 Commonwealth Of Virginia Sales And Use Tax Virginia Machinery And Tools Tax The machinery and tools tax is levied on machinery and tools that are used for manufacturing, mining, processing or reprocessing, radio or television. Machinery and tools segregated for local taxation pursuant to. Certain machinery and tools segregated for local taxation only; Machinery and tools segregated for local taxation pursuant to. This is article 2 of the code of virginia, titled. Virginia Machinery And Tools Tax.
From printables.it.com
Virginia Printable 1099 Form Free Printable Download Virginia Machinery And Tools Tax This is article 2 of the code of virginia, titled “machinery and tools tax.” it is part of title 58.1, titled “taxation.” it is part of subtitle iii, titled. The machinery and tools tax is levied on machinery and tools that are used for manufacturing, mining, processing or reprocessing, radio or television. Certain machinery and tools segregated for local taxation. Virginia Machinery And Tools Tax.
From www.formsbank.com
Business Return Of Tangible Personal Property, Machinery And Tools Form Virginia Machinery And Tools Tax The machinery and tools tax is levied on machinery and tools that are used for manufacturing, mining, processing or reprocessing, radio or television. This is article 2 of the code of virginia, titled “machinery and tools tax.” it is part of title 58.1, titled “taxation.” it is part of subtitle iii, titled. Certain machinery and tools segregated for local taxation. Virginia Machinery And Tools Tax.
From patch.com
2023 Tax Season Opens In VA When To File 2022 Returns With IRS Virginia Machinery And Tools Tax Machinery and tools segregated for local taxation pursuant to. Certain machinery and tools segregated for local taxation only; The machinery and tools tax is levied on machinery and tools that are used for manufacturing, mining, processing or reprocessing, radio or television. This is article 2 of the code of virginia, titled “machinery and tools tax.” it is part of title. Virginia Machinery And Tools Tax.
From www.formsbank.com
Form 2 Ta Business Return Of Tangible Personal Property And Machinery Virginia Machinery And Tools Tax Machinery and tools segregated for local taxation pursuant to. This is article 2 of the code of virginia, titled “machinery and tools tax.” it is part of title 58.1, titled “taxation.” it is part of subtitle iii, titled. Certain machinery and tools segregated for local taxation only; Machinery and tools segregated for local taxation pursuant to. The machinery and tools. Virginia Machinery And Tools Tax.
From www.templateroller.com
Form 770 2019 Fill Out, Sign Online and Download Fillable PDF Virginia Machinery And Tools Tax The machinery and tools tax is levied on machinery and tools that are used for manufacturing, mining, processing or reprocessing, radio or television. This is article 2 of the code of virginia, titled “machinery and tools tax.” it is part of title 58.1, titled “taxation.” it is part of subtitle iii, titled. Machinery and tools segregated for local taxation pursuant. Virginia Machinery And Tools Tax.
From www.templateroller.com
Form 762 Download Fillable PDF or Fill Online Return of Tangible Virginia Machinery And Tools Tax Certain machinery and tools segregated for local taxation only; The machinery and tools tax is levied on machinery and tools that are used for manufacturing, mining, processing or reprocessing, radio or television. This is article 2 of the code of virginia, titled “machinery and tools tax.” it is part of title 58.1, titled “taxation.” it is part of subtitle iii,. Virginia Machinery And Tools Tax.
From www.templateroller.com
Form DEQ5011 Download Printable PDF or Fill Online Recycling Machinery Virginia Machinery And Tools Tax The machinery and tools tax is levied on machinery and tools that are used for manufacturing, mining, processing or reprocessing, radio or television. Machinery and tools segregated for local taxation pursuant to. This is article 2 of the code of virginia, titled “machinery and tools tax.” it is part of title 58.1, titled “taxation.” it is part of subtitle iii,. Virginia Machinery And Tools Tax.
From barbadosemployers.teachable.com
Tools, Machines and Appliances Barbados Employers' Confederation Virginia Machinery And Tools Tax Certain machinery and tools segregated for local taxation only; This is article 2 of the code of virginia, titled “machinery and tools tax.” it is part of title 58.1, titled “taxation.” it is part of subtitle iii, titled. Machinery and tools segregated for local taxation pursuant to. The machinery and tools tax is levied on machinery and tools that are. Virginia Machinery And Tools Tax.
From www.formsbank.com
Form2ta Business Return Of Tangible Personal Property And Machinery Virginia Machinery And Tools Tax Machinery and tools segregated for local taxation pursuant to. Certain machinery and tools segregated for local taxation only; This is article 2 of the code of virginia, titled “machinery and tools tax.” it is part of title 58.1, titled “taxation.” it is part of subtitle iii, titled. The machinery and tools tax is levied on machinery and tools that are. Virginia Machinery And Tools Tax.
From www.vedp.org
Commercial and Industrial Sales & Use Tax Exemption Virginia Economic Virginia Machinery And Tools Tax Machinery and tools segregated for local taxation pursuant to. This is article 2 of the code of virginia, titled “machinery and tools tax.” it is part of title 58.1, titled “taxation.” it is part of subtitle iii, titled. Machinery and tools segregated for local taxation pursuant to. Certain machinery and tools segregated for local taxation only; The machinery and tools. Virginia Machinery And Tools Tax.
From www.formsbank.com
Virginia Form 762 Return Of Tangible Personal Property, Machinery And Virginia Machinery And Tools Tax Machinery and tools segregated for local taxation pursuant to. Certain machinery and tools segregated for local taxation only; This is article 2 of the code of virginia, titled “machinery and tools tax.” it is part of title 58.1, titled “taxation.” it is part of subtitle iii, titled. The machinery and tools tax is levied on machinery and tools that are. Virginia Machinery And Tools Tax.
From zamp.com
Ultimate Virginia Sales Tax Guide Zamp Virginia Machinery And Tools Tax This is article 2 of the code of virginia, titled “machinery and tools tax.” it is part of title 58.1, titled “taxation.” it is part of subtitle iii, titled. Machinery and tools segregated for local taxation pursuant to. Certain machinery and tools segregated for local taxation only; The machinery and tools tax is levied on machinery and tools that are. Virginia Machinery And Tools Tax.
From www.templateroller.com
Form 500EC Download Fillable PDF or Fill Online Virginia Electric Virginia Machinery And Tools Tax The machinery and tools tax is levied on machinery and tools that are used for manufacturing, mining, processing or reprocessing, radio or television. Machinery and tools segregated for local taxation pursuant to. Machinery and tools segregated for local taxation pursuant to. Certain machinery and tools segregated for local taxation only; This is article 2 of the code of virginia, titled. Virginia Machinery And Tools Tax.
From www.formsbank.com
Fillable Form Va6 Employer'S Annual Or Final Summary Of Virginia Virginia Machinery And Tools Tax This is article 2 of the code of virginia, titled “machinery and tools tax.” it is part of title 58.1, titled “taxation.” it is part of subtitle iii, titled. Machinery and tools segregated for local taxation pursuant to. The machinery and tools tax is levied on machinery and tools that are used for manufacturing, mining, processing or reprocessing, radio or. Virginia Machinery And Tools Tax.
From wvpolicy.org
Data Doesn't Support Eliminating the Business Machinery, Equipment, and Virginia Machinery And Tools Tax The machinery and tools tax is levied on machinery and tools that are used for manufacturing, mining, processing or reprocessing, radio or television. Machinery and tools segregated for local taxation pursuant to. This is article 2 of the code of virginia, titled “machinery and tools tax.” it is part of title 58.1, titled “taxation.” it is part of subtitle iii,. Virginia Machinery And Tools Tax.
From www.templateroller.com
Form 762 Download Fillable PDF or Fill Online Return of Tangible Virginia Machinery And Tools Tax This is article 2 of the code of virginia, titled “machinery and tools tax.” it is part of title 58.1, titled “taxation.” it is part of subtitle iii, titled. Machinery and tools segregated for local taxation pursuant to. The machinery and tools tax is levied on machinery and tools that are used for manufacturing, mining, processing or reprocessing, radio or. Virginia Machinery And Tools Tax.
From issuu.com
City Demographics and Statistics Issuu Virginia Machinery And Tools Tax This is article 2 of the code of virginia, titled “machinery and tools tax.” it is part of title 58.1, titled “taxation.” it is part of subtitle iii, titled. Machinery and tools segregated for local taxation pursuant to. The machinery and tools tax is levied on machinery and tools that are used for manufacturing, mining, processing or reprocessing, radio or. Virginia Machinery And Tools Tax.
From wvpolicy.org
Data Doesn't Support Eliminating the Business Machinery, Equipment, and Virginia Machinery And Tools Tax The machinery and tools tax is levied on machinery and tools that are used for manufacturing, mining, processing or reprocessing, radio or television. Certain machinery and tools segregated for local taxation only; Machinery and tools segregated for local taxation pursuant to. Machinery and tools segregated for local taxation pursuant to. This is article 2 of the code of virginia, titled. Virginia Machinery And Tools Tax.
From www.vedp.org
Commercial and Industrial Sales & Use Tax Exemption Virginia Economic Virginia Machinery And Tools Tax The machinery and tools tax is levied on machinery and tools that are used for manufacturing, mining, processing or reprocessing, radio or television. Certain machinery and tools segregated for local taxation only; Machinery and tools segregated for local taxation pursuant to. This is article 2 of the code of virginia, titled “machinery and tools tax.” it is part of title. Virginia Machinery And Tools Tax.
From www.roanokecountyva.gov
News Flash • Roanoke County, VA • CivicEngage Virginia Machinery And Tools Tax Certain machinery and tools segregated for local taxation only; Machinery and tools segregated for local taxation pursuant to. The machinery and tools tax is levied on machinery and tools that are used for manufacturing, mining, processing or reprocessing, radio or television. Machinery and tools segregated for local taxation pursuant to. This is article 2 of the code of virginia, titled. Virginia Machinery And Tools Tax.
From www.formsbank.com
Business Return Of Tangible Personal Property, Machinery And Tools Form Virginia Machinery And Tools Tax Machinery and tools segregated for local taxation pursuant to. Certain machinery and tools segregated for local taxation only; This is article 2 of the code of virginia, titled “machinery and tools tax.” it is part of title 58.1, titled “taxation.” it is part of subtitle iii, titled. Machinery and tools segregated for local taxation pursuant to. The machinery and tools. Virginia Machinery And Tools Tax.
From www.uslegalforms.com
VA 763S 1996 Fill out Tax Template Online US Legal Forms Virginia Machinery And Tools Tax Certain machinery and tools segregated for local taxation only; Machinery and tools segregated for local taxation pursuant to. Machinery and tools segregated for local taxation pursuant to. This is article 2 of the code of virginia, titled “machinery and tools tax.” it is part of title 58.1, titled “taxation.” it is part of subtitle iii, titled. The machinery and tools. Virginia Machinery And Tools Tax.