Rockville Md Building Permits . 31 rows most permits require one or more inspections before work is considered complete and final. Any permits submitted prior to the new system going live will be completed under the current process, including paying using the current link and. Construction in rockville is regulated by the. 21 rows find out how to apply for building and construction permits, schedule inspections, and search permits and property history in rockville,. Use data search to search by property address. Search for permits and inspection history or check the status of a current or pending permit. Map, parking & directions to 2425 reedie drive, 7th floor, wheaton, md 20902 ; Several municipalities require building permits. To search for a specific permit or license, select the application type from the dropdown menu, then. The chief of inspection services is authorized to issue a permit for the construction of foundations of a building or structure prior to the construction. Montgomery county includes municipalities and special taxing districts (*).
from www.loopnet.com
21 rows find out how to apply for building and construction permits, schedule inspections, and search permits and property history in rockville,. Several municipalities require building permits. Search for permits and inspection history or check the status of a current or pending permit. Montgomery county includes municipalities and special taxing districts (*). To search for a specific permit or license, select the application type from the dropdown menu, then. Any permits submitted prior to the new system going live will be completed under the current process, including paying using the current link and. The chief of inspection services is authorized to issue a permit for the construction of foundations of a building or structure prior to the construction. Use data search to search by property address. Construction in rockville is regulated by the. Map, parking & directions to 2425 reedie drive, 7th floor, wheaton, md 20902 ;
1223812256 Rockville Pike, Rockville, MD 20852 Towne Plaza
Rockville Md Building Permits Search for permits and inspection history or check the status of a current or pending permit. Montgomery county includes municipalities and special taxing districts (*). Any permits submitted prior to the new system going live will be completed under the current process, including paying using the current link and. To search for a specific permit or license, select the application type from the dropdown menu, then. The chief of inspection services is authorized to issue a permit for the construction of foundations of a building or structure prior to the construction. Several municipalities require building permits. 21 rows find out how to apply for building and construction permits, schedule inspections, and search permits and property history in rockville,. Use data search to search by property address. Map, parking & directions to 2425 reedie drive, 7th floor, wheaton, md 20902 ; Search for permits and inspection history or check the status of a current or pending permit. Construction in rockville is regulated by the. 31 rows most permits require one or more inspections before work is considered complete and final.
From www.flickr.com
NRC Headquarters NRC Headquarters in Rockville, Md. Buildi… Flickr Rockville Md Building Permits Any permits submitted prior to the new system going live will be completed under the current process, including paying using the current link and. The chief of inspection services is authorized to issue a permit for the construction of foundations of a building or structure prior to the construction. Map, parking & directions to 2425 reedie drive, 7th floor, wheaton,. Rockville Md Building Permits.
From www.longandfoster.com
MDMC2097272.jpg?ts=638234722800000000 Rockville Md Building Permits Construction in rockville is regulated by the. Map, parking & directions to 2425 reedie drive, 7th floor, wheaton, md 20902 ; Montgomery county includes municipalities and special taxing districts (*). The chief of inspection services is authorized to issue a permit for the construction of foundations of a building or structure prior to the construction. Use data search to search. Rockville Md Building Permits.
From rockvilleredi.org
Rockville ranked 20th Best Place to Live in the U.S. in 2022 by digital Rockville Md Building Permits The chief of inspection services is authorized to issue a permit for the construction of foundations of a building or structure prior to the construction. Use data search to search by property address. 21 rows find out how to apply for building and construction permits, schedule inspections, and search permits and property history in rockville,. Several municipalities require building permits.. Rockville Md Building Permits.
From www.template.net
Building Permit Application in Word, Google Docs Download Rockville Md Building Permits Several municipalities require building permits. 21 rows find out how to apply for building and construction permits, schedule inspections, and search permits and property history in rockville,. Use data search to search by property address. Construction in rockville is regulated by the. Any permits submitted prior to the new system going live will be completed under the current process, including. Rockville Md Building Permits.
From www.loopnet.com
58005814 Hubbard Dr, Rockville, MD 20852 Rockville Md Building Permits To search for a specific permit or license, select the application type from the dropdown menu, then. Map, parking & directions to 2425 reedie drive, 7th floor, wheaton, md 20902 ; 21 rows find out how to apply for building and construction permits, schedule inspections, and search permits and property history in rockville,. Construction in rockville is regulated by the.. Rockville Md Building Permits.
From www.loopnet.com
17 W Jefferson St, Rockville, MD 20850 Garza Building Rockville Md Building Permits Several municipalities require building permits. The chief of inspection services is authorized to issue a permit for the construction of foundations of a building or structure prior to the construction. Use data search to search by property address. To search for a specific permit or license, select the application type from the dropdown menu, then. Construction in rockville is regulated. Rockville Md Building Permits.
From www.loopnet.com
32 Courthouse Sq, Rockville, MD 20850 Office for Lease Rockville Md Building Permits Several municipalities require building permits. Search for permits and inspection history or check the status of a current or pending permit. Construction in rockville is regulated by the. Montgomery county includes municipalities and special taxing districts (*). To search for a specific permit or license, select the application type from the dropdown menu, then. The chief of inspection services is. Rockville Md Building Permits.
From www.katchmark.com
Rockville, MD Roof Repair and Maintenance Rockville Md Building Permits 31 rows most permits require one or more inspections before work is considered complete and final. Several municipalities require building permits. Montgomery county includes municipalities and special taxing districts (*). Use data search to search by property address. Search for permits and inspection history or check the status of a current or pending permit. Map, parking & directions to 2425. Rockville Md Building Permits.
From www.templateroller.com
Montgomery County, Maryland Application for Residential Building Permit Rockville Md Building Permits 21 rows find out how to apply for building and construction permits, schedule inspections, and search permits and property history in rockville,. Map, parking & directions to 2425 reedie drive, 7th floor, wheaton, md 20902 ; Construction in rockville is regulated by the. To search for a specific permit or license, select the application type from the dropdown menu, then.. Rockville Md Building Permits.
From www.signnow.com
Md Building Permit Application 20222024 Form Fill Out and Sign Rockville Md Building Permits The chief of inspection services is authorized to issue a permit for the construction of foundations of a building or structure prior to the construction. Map, parking & directions to 2425 reedie drive, 7th floor, wheaton, md 20902 ; Construction in rockville is regulated by the. Several municipalities require building permits. Any permits submitted prior to the new system going. Rockville Md Building Permits.
From srsre.com
Rockville, MD Chase Bank Retail investment sale in Rockville Rockville Md Building Permits To search for a specific permit or license, select the application type from the dropdown menu, then. Construction in rockville is regulated by the. Several municipalities require building permits. The chief of inspection services is authorized to issue a permit for the construction of foundations of a building or structure prior to the construction. Map, parking & directions to 2425. Rockville Md Building Permits.
From www.waronruralmaryland.com
Navigating the Noise Permit Policies in Rockville, MD Rockville Md Building Permits Any permits submitted prior to the new system going live will be completed under the current process, including paying using the current link and. Map, parking & directions to 2425 reedie drive, 7th floor, wheaton, md 20902 ; Montgomery county includes municipalities and special taxing districts (*). Search for permits and inspection history or check the status of a current. Rockville Md Building Permits.
From www.apartments.com
11801 Rockville Pike Unit 909, Rockville, MD 20852 Room for Rent in Rockville Md Building Permits Map, parking & directions to 2425 reedie drive, 7th floor, wheaton, md 20902 ; Any permits submitted prior to the new system going live will be completed under the current process, including paying using the current link and. 31 rows most permits require one or more inspections before work is considered complete and final. Several municipalities require building permits. To. Rockville Md Building Permits.
From tracispermits.com
Rockville Centre Building Permits Variances Radius Maps Rockville Md Building Permits Map, parking & directions to 2425 reedie drive, 7th floor, wheaton, md 20902 ; Search for permits and inspection history or check the status of a current or pending permit. Montgomery county includes municipalities and special taxing districts (*). The chief of inspection services is authorized to issue a permit for the construction of foundations of a building or structure. Rockville Md Building Permits.
From imhotep.cloud
Rockville, Maryland IMHOTEP Rockville Md Building Permits Several municipalities require building permits. Use data search to search by property address. Any permits submitted prior to the new system going live will be completed under the current process, including paying using the current link and. 21 rows find out how to apply for building and construction permits, schedule inspections, and search permits and property history in rockville,. The. Rockville Md Building Permits.
From www.highrises.com
Luxury Condos in Rockville, MD Rockville Md Building Permits The chief of inspection services is authorized to issue a permit for the construction of foundations of a building or structure prior to the construction. 21 rows find out how to apply for building and construction permits, schedule inspections, and search permits and property history in rockville,. Search for permits and inspection history or check the status of a current. Rockville Md Building Permits.
From www.loopnet.com
11810 Parklawn Dr, Rockville, MD 20852 Brandywine Center Rockville Md Building Permits The chief of inspection services is authorized to issue a permit for the construction of foundations of a building or structure prior to the construction. Several municipalities require building permits. 31 rows most permits require one or more inspections before work is considered complete and final. Montgomery county includes municipalities and special taxing districts (*). Use data search to search. Rockville Md Building Permits.
From www.loopnet.com
1223812256 Rockville Pike, Rockville, MD 20852 Towne Plaza Rockville Md Building Permits 31 rows most permits require one or more inspections before work is considered complete and final. Construction in rockville is regulated by the. 21 rows find out how to apply for building and construction permits, schedule inspections, and search permits and property history in rockville,. Any permits submitted prior to the new system going live will be completed under the. Rockville Md Building Permits.
From cefgsmep.blob.core.windows.net
Waldwick New Jersey Building Permit at Sarah Klass blog Rockville Md Building Permits Construction in rockville is regulated by the. Any permits submitted prior to the new system going live will be completed under the current process, including paying using the current link and. Montgomery county includes municipalities and special taxing districts (*). 31 rows most permits require one or more inspections before work is considered complete and final. Map, parking & directions. Rockville Md Building Permits.
From www.honolulu.gov
Building Permits Rockville Md Building Permits The chief of inspection services is authorized to issue a permit for the construction of foundations of a building or structure prior to the construction. Use data search to search by property address. To search for a specific permit or license, select the application type from the dropdown menu, then. Map, parking & directions to 2425 reedie drive, 7th floor,. Rockville Md Building Permits.
From www.florence-nj.gov
How To Fill Out a Construction Permit Township of Florence Rockville Md Building Permits To search for a specific permit or license, select the application type from the dropdown menu, then. 21 rows find out how to apply for building and construction permits, schedule inspections, and search permits and property history in rockville,. Construction in rockville is regulated by the. Several municipalities require building permits. Search for permits and inspection history or check the. Rockville Md Building Permits.
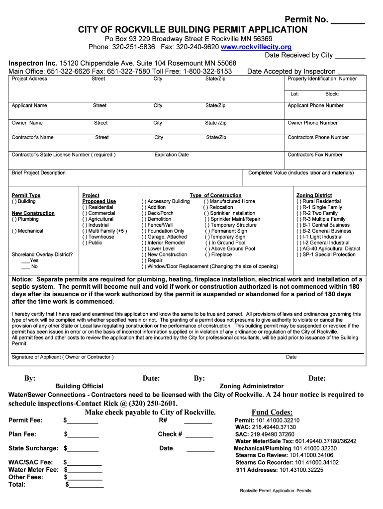
From www.pdffiller.com
Fillable Online CITY OF ROCKVILLE BUILDING PERMIT APPLICATION Fax Email Rockville Md Building Permits 31 rows most permits require one or more inspections before work is considered complete and final. Several municipalities require building permits. Construction in rockville is regulated by the. The chief of inspection services is authorized to issue a permit for the construction of foundations of a building or structure prior to the construction. Map, parking & directions to 2425 reedie. Rockville Md Building Permits.
From www.precisionsurveys.us
Precision Surveying LLC Site and Permit Plan Preparation Rockville Md Building Permits Use data search to search by property address. Map, parking & directions to 2425 reedie drive, 7th floor, wheaton, md 20902 ; 31 rows most permits require one or more inspections before work is considered complete and final. 21 rows find out how to apply for building and construction permits, schedule inspections, and search permits and property history in rockville,.. Rockville Md Building Permits.
From www.loopnet.com
7361 Calhoun Pl, Rockville, MD 20855 Building 5 Rockville Md Building Permits The chief of inspection services is authorized to issue a permit for the construction of foundations of a building or structure prior to the construction. Map, parking & directions to 2425 reedie drive, 7th floor, wheaton, md 20902 ; Construction in rockville is regulated by the. 21 rows find out how to apply for building and construction permits, schedule inspections,. Rockville Md Building Permits.
From www.loopnet.com
9600 Medical Center Dr, Rockville, MD 20850 Rockville Md Building Permits Several municipalities require building permits. Construction in rockville is regulated by the. To search for a specific permit or license, select the application type from the dropdown menu, then. Any permits submitted prior to the new system going live will be completed under the current process, including paying using the current link and. Map, parking & directions to 2425 reedie. Rockville Md Building Permits.
From www.loopnet.com
13741 Travilah Rd, Rockville, MD 20850 Rockville Md Building Permits The chief of inspection services is authorized to issue a permit for the construction of foundations of a building or structure prior to the construction. To search for a specific permit or license, select the application type from the dropdown menu, then. Map, parking & directions to 2425 reedie drive, 7th floor, wheaton, md 20902 ; Several municipalities require building. Rockville Md Building Permits.
From online.fliphtml5.com
Building Permits for Decks St. Mary's County, Maryland Rockville Md Building Permits Montgomery county includes municipalities and special taxing districts (*). Several municipalities require building permits. The chief of inspection services is authorized to issue a permit for the construction of foundations of a building or structure prior to the construction. To search for a specific permit or license, select the application type from the dropdown menu, then. Any permits submitted prior. Rockville Md Building Permits.
From fill.io
Fill Free fillable forms City of Rockville Rockville Md Building Permits Any permits submitted prior to the new system going live will be completed under the current process, including paying using the current link and. Several municipalities require building permits. 21 rows find out how to apply for building and construction permits, schedule inspections, and search permits and property history in rockville,. The chief of inspection services is authorized to issue. Rockville Md Building Permits.
From www.cityfeet.com
1201 Seven Locks Rd, Rockville, MD 20854 Office Rockville Md Building Permits Montgomery county includes municipalities and special taxing districts (*). To search for a specific permit or license, select the application type from the dropdown menu, then. Map, parking & directions to 2425 reedie drive, 7th floor, wheaton, md 20902 ; Search for permits and inspection history or check the status of a current or pending permit. Any permits submitted prior. Rockville Md Building Permits.
From www.redfin.com
The Ultimate Guide to Buying a House in Maryland Redfin Rockville Md Building Permits To search for a specific permit or license, select the application type from the dropdown menu, then. Use data search to search by property address. 21 rows find out how to apply for building and construction permits, schedule inspections, and search permits and property history in rockville,. 31 rows most permits require one or more inspections before work is considered. Rockville Md Building Permits.
From www.pdffiller.com
Fillable Online CITY OF ROCKVILLE BUILDING PERMIT APPLICATION Fax Email Rockville Md Building Permits The chief of inspection services is authorized to issue a permit for the construction of foundations of a building or structure prior to the construction. 21 rows find out how to apply for building and construction permits, schedule inspections, and search permits and property history in rockville,. Use data search to search by property address. 31 rows most permits require. Rockville Md Building Permits.
From www.loopnet.com
50 W Edmonston Dr, Rockville, MD 20852 Tenley Building Rockville Md Building Permits Search for permits and inspection history or check the status of a current or pending permit. The chief of inspection services is authorized to issue a permit for the construction of foundations of a building or structure prior to the construction. Use data search to search by property address. Any permits submitted prior to the new system going live will. Rockville Md Building Permits.
From www.loopnet.com
48164890 Boiling Brook Pky, Rockville, MD 20852 Randolph Hills Rockville Md Building Permits Use data search to search by property address. 21 rows find out how to apply for building and construction permits, schedule inspections, and search permits and property history in rockville,. Several municipalities require building permits. The chief of inspection services is authorized to issue a permit for the construction of foundations of a building or structure prior to the construction.. Rockville Md Building Permits.
From www.pdffiller.com
Fillable Online Building permit application Washington Rockville Md Building Permits Use data search to search by property address. Montgomery county includes municipalities and special taxing districts (*). Search for permits and inspection history or check the status of a current or pending permit. The chief of inspection services is authorized to issue a permit for the construction of foundations of a building or structure prior to the construction. Any permits. Rockville Md Building Permits.
From money.com
Rockville, Maryland is the 20th Best Place to Live Rockville Md Building Permits Use data search to search by property address. Montgomery county includes municipalities and special taxing districts (*). 31 rows most permits require one or more inspections before work is considered complete and final. Several municipalities require building permits. Map, parking & directions to 2425 reedie drive, 7th floor, wheaton, md 20902 ; 21 rows find out how to apply for. Rockville Md Building Permits.