Pallet Homes Lawrence Ks . the city of lawrence, in collaboration with professional engineering consultants (pec), has developed and finalized a site design. an updated timeline shows the city anticipates the pallet shelter village site, which was formerly home to veritas christian school. the site is home to 50 pallet cabins for people experiencing homelessness. the city of lawrence is planning to open a village of shelters for people experiencing homelessness monday, soon end support at the. It’s still an open question when exactly lawrence’s village of 64. lawrence kansas plans to begin building its pallet homes that will soon fill an area of town called the village. the pallet shelter village model is a pathway to permanent housing that provides a transition for people experiencing.
from lawrencekstimes.com
the city of lawrence is planning to open a village of shelters for people experiencing homelessness monday, soon end support at the. the site is home to 50 pallet cabins for people experiencing homelessness. the pallet shelter village model is a pathway to permanent housing that provides a transition for people experiencing. lawrence kansas plans to begin building its pallet homes that will soon fill an area of town called the village. the city of lawrence, in collaboration with professional engineering consultants (pec), has developed and finalized a site design. It’s still an open question when exactly lawrence’s village of 64. an updated timeline shows the city anticipates the pallet shelter village site, which was formerly home to veritas christian school.
City of Lawrence plans Open Pallet village, prohibit camping, establish police office downtown
Pallet Homes Lawrence Ks the city of lawrence is planning to open a village of shelters for people experiencing homelessness monday, soon end support at the. It’s still an open question when exactly lawrence’s village of 64. the city of lawrence is planning to open a village of shelters for people experiencing homelessness monday, soon end support at the. lawrence kansas plans to begin building its pallet homes that will soon fill an area of town called the village. the site is home to 50 pallet cabins for people experiencing homelessness. an updated timeline shows the city anticipates the pallet shelter village site, which was formerly home to veritas christian school. the pallet shelter village model is a pathway to permanent housing that provides a transition for people experiencing. the city of lawrence, in collaboration with professional engineering consultants (pec), has developed and finalized a site design.
From www2.ljworld.com
At ceremony for Pallet village, city and Lawrence Community Shelter leaders say it will be a Pallet Homes Lawrence Ks lawrence kansas plans to begin building its pallet homes that will soon fill an area of town called the village. the site is home to 50 pallet cabins for people experiencing homelessness. the pallet shelter village model is a pathway to permanent housing that provides a transition for people experiencing. the city of lawrence, in collaboration. Pallet Homes Lawrence Ks.
From www.1001pallets.com
Free Wood Pallets Available in Lawrence, IN, USA • 1001 Pallets Pallet Homes Lawrence Ks It’s still an open question when exactly lawrence’s village of 64. lawrence kansas plans to begin building its pallet homes that will soon fill an area of town called the village. the city of lawrence is planning to open a village of shelters for people experiencing homelessness monday, soon end support at the. an updated timeline shows. Pallet Homes Lawrence Ks.
From www.drippehomes.com
Drippé Homes Home Pallet Homes Lawrence Ks It’s still an open question when exactly lawrence’s village of 64. the site is home to 50 pallet cabins for people experiencing homelessness. the city of lawrence is planning to open a village of shelters for people experiencing homelessness monday, soon end support at the. lawrence kansas plans to begin building its pallet homes that will soon. Pallet Homes Lawrence Ks.
From www2.ljworld.com
Inside a Pallet village A look at the New Beginnings NWA community in Fayetteville, Arkansas Pallet Homes Lawrence Ks It’s still an open question when exactly lawrence’s village of 64. the city of lawrence, in collaboration with professional engineering consultants (pec), has developed and finalized a site design. the site is home to 50 pallet cabins for people experiencing homelessness. the city of lawrence is planning to open a village of shelters for people experiencing homelessness. Pallet Homes Lawrence Ks.
From www2.ljworld.com
Inside a Pallet village A look at the New Beginnings NWA community in Fayetteville, Arkansas Pallet Homes Lawrence Ks the city of lawrence is planning to open a village of shelters for people experiencing homelessness monday, soon end support at the. the site is home to 50 pallet cabins for people experiencing homelessness. lawrence kansas plans to begin building its pallet homes that will soon fill an area of town called the village. an updated. Pallet Homes Lawrence Ks.
From www2.ljworld.com
Inside a Pallet village A look at the New Beginnings NWA community in Fayetteville, Arkansas Pallet Homes Lawrence Ks the pallet shelter village model is a pathway to permanent housing that provides a transition for people experiencing. the site is home to 50 pallet cabins for people experiencing homelessness. the city of lawrence, in collaboration with professional engineering consultants (pec), has developed and finalized a site design. lawrence kansas plans to begin building its pallet. Pallet Homes Lawrence Ks.
From www.homelessshelterdirectory.org
Lawrence Community Shelter 3655 N 1360 Rd, Lawrence, KS Pallet Homes Lawrence Ks the site is home to 50 pallet cabins for people experiencing homelessness. the city of lawrence, in collaboration with professional engineering consultants (pec), has developed and finalized a site design. It’s still an open question when exactly lawrence’s village of 64. an updated timeline shows the city anticipates the pallet shelter village site, which was formerly home. Pallet Homes Lawrence Ks.
From lawrencekstimes.com
Timeline update City of Lawrence hopes to open Pallet Shelter Village by winter The Lawrence Pallet Homes Lawrence Ks the city of lawrence, in collaboration with professional engineering consultants (pec), has developed and finalized a site design. the city of lawrence is planning to open a village of shelters for people experiencing homelessness monday, soon end support at the. an updated timeline shows the city anticipates the pallet shelter village site, which was formerly home to. Pallet Homes Lawrence Ks.
From www.pinterest.com
Lawrence (Kansas) houses, Victorian homes, Victorian architecture Pallet Homes Lawrence Ks lawrence kansas plans to begin building its pallet homes that will soon fill an area of town called the village. an updated timeline shows the city anticipates the pallet shelter village site, which was formerly home to veritas christian school. the city of lawrence is planning to open a village of shelters for people experiencing homelessness monday,. Pallet Homes Lawrence Ks.
From log-cabin-connection.com
Pallet Cabins Examples, Plans, and Types Log Cabin Connection Pallet Homes Lawrence Ks the city of lawrence, in collaboration with professional engineering consultants (pec), has developed and finalized a site design. It’s still an open question when exactly lawrence’s village of 64. an updated timeline shows the city anticipates the pallet shelter village site, which was formerly home to veritas christian school. lawrence kansas plans to begin building its pallet. Pallet Homes Lawrence Ks.
From pallethobby.com
Free Pallet Cabin Want to build this? Pallet Hobby Pallet Homes Lawrence Ks the city of lawrence is planning to open a village of shelters for people experiencing homelessness monday, soon end support at the. the pallet shelter village model is a pathway to permanent housing that provides a transition for people experiencing. an updated timeline shows the city anticipates the pallet shelter village site, which was formerly home to. Pallet Homes Lawrence Ks.
From palletshelter.com
Pallet introduces bathrooms for shelter villages Pallet Shelter Pallet Homes Lawrence Ks an updated timeline shows the city anticipates the pallet shelter village site, which was formerly home to veritas christian school. It’s still an open question when exactly lawrence’s village of 64. the city of lawrence, in collaboration with professional engineering consultants (pec), has developed and finalized a site design. the pallet shelter village model is a pathway. Pallet Homes Lawrence Ks.
From www.kctv5.com
Lawrence pallet village will soon house the houseless Pallet Homes Lawrence Ks an updated timeline shows the city anticipates the pallet shelter village site, which was formerly home to veritas christian school. It’s still an open question when exactly lawrence’s village of 64. the city of lawrence, in collaboration with professional engineering consultants (pec), has developed and finalized a site design. the pallet shelter village model is a pathway. Pallet Homes Lawrence Ks.
From lawrenceks.org
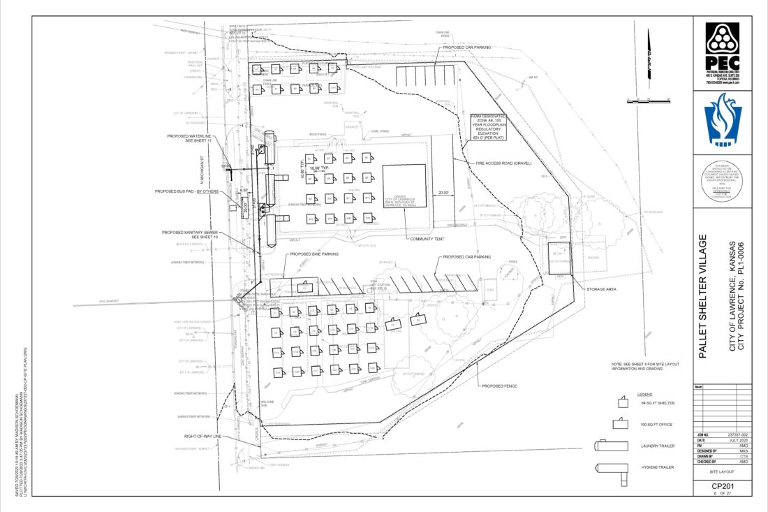
City of Lawrence finalizes site design plan for Pallet Shelter Village City of Lawrence, Kansas Pallet Homes Lawrence Ks It’s still an open question when exactly lawrence’s village of 64. the city of lawrence, in collaboration with professional engineering consultants (pec), has developed and finalized a site design. the site is home to 50 pallet cabins for people experiencing homelessness. the pallet shelter village model is a pathway to permanent housing that provides a transition for. Pallet Homes Lawrence Ks.
From www2.ljworld.com
City of Lawrence releases final site design plan for future Pallet Shelter Village News Pallet Homes Lawrence Ks the site is home to 50 pallet cabins for people experiencing homelessness. the pallet shelter village model is a pathway to permanent housing that provides a transition for people experiencing. the city of lawrence is planning to open a village of shelters for people experiencing homelessness monday, soon end support at the. It’s still an open question. Pallet Homes Lawrence Ks.
From www.pinterest.jp
Wooden Pallet House Plans Pallet house plans, Pallet house, Pallet shed Pallet Homes Lawrence Ks the city of lawrence, in collaboration with professional engineering consultants (pec), has developed and finalized a site design. It’s still an open question when exactly lawrence’s village of 64. lawrence kansas plans to begin building its pallet homes that will soon fill an area of town called the village. an updated timeline shows the city anticipates the. Pallet Homes Lawrence Ks.
From www.pinterest.com
This Pallet Home Can Be Built in One Day With Basic Tools Pallet house, Pallet house plans Pallet Homes Lawrence Ks the city of lawrence, in collaboration with professional engineering consultants (pec), has developed and finalized a site design. an updated timeline shows the city anticipates the pallet shelter village site, which was formerly home to veritas christian school. It’s still an open question when exactly lawrence’s village of 64. the site is home to 50 pallet cabins. Pallet Homes Lawrence Ks.
From housinginnovation.co
Pallet Shelter Housing Innovation Collaborative Pallet Homes Lawrence Ks the city of lawrence, in collaboration with professional engineering consultants (pec), has developed and finalized a site design. lawrence kansas plans to begin building its pallet homes that will soon fill an area of town called the village. the city of lawrence is planning to open a village of shelters for people experiencing homelessness monday, soon end. Pallet Homes Lawrence Ks.
From finance.yahoo.com
Pallet is making 7,500 prefab tiny homes that can be setup in 1 hour to help solve the Pallet Homes Lawrence Ks the city of lawrence, in collaboration with professional engineering consultants (pec), has developed and finalized a site design. It’s still an open question when exactly lawrence’s village of 64. an updated timeline shows the city anticipates the pallet shelter village site, which was formerly home to veritas christian school. the city of lawrence is planning to open. Pallet Homes Lawrence Ks.
From www.i-beamdesign.com
THE PALLET HOUSE — IBEAM Pallet Homes Lawrence Ks lawrence kansas plans to begin building its pallet homes that will soon fill an area of town called the village. the city of lawrence, in collaboration with professional engineering consultants (pec), has developed and finalized a site design. the pallet shelter village model is a pathway to permanent housing that provides a transition for people experiencing. It’s. Pallet Homes Lawrence Ks.
From www2.ljworld.com
Pallet Shelter Village for those experiencing homelessness delayed 6 months; city hopes to have Pallet Homes Lawrence Ks lawrence kansas plans to begin building its pallet homes that will soon fill an area of town called the village. the city of lawrence is planning to open a village of shelters for people experiencing homelessness monday, soon end support at the. the city of lawrence, in collaboration with professional engineering consultants (pec), has developed and finalized. Pallet Homes Lawrence Ks.
From www.realtor.com
Lawrence, KS Real Estate Lawrence Homes for Sale Pallet Homes Lawrence Ks the city of lawrence, in collaboration with professional engineering consultants (pec), has developed and finalized a site design. the pallet shelter village model is a pathway to permanent housing that provides a transition for people experiencing. lawrence kansas plans to begin building its pallet homes that will soon fill an area of town called the village. . Pallet Homes Lawrence Ks.
From www.1001pallets.com
Pallet House • 1001 Pallets Pallet Homes Lawrence Ks It’s still an open question when exactly lawrence’s village of 64. lawrence kansas plans to begin building its pallet homes that will soon fill an area of town called the village. an updated timeline shows the city anticipates the pallet shelter village site, which was formerly home to veritas christian school. the city of lawrence is planning. Pallet Homes Lawrence Ks.
From www.falm.com
Pallet Company in Kansas Pallets for Sale Pallet Homes Lawrence Ks an updated timeline shows the city anticipates the pallet shelter village site, which was formerly home to veritas christian school. lawrence kansas plans to begin building its pallet homes that will soon fill an area of town called the village. the pallet shelter village model is a pathway to permanent housing that provides a transition for people. Pallet Homes Lawrence Ks.
From www2.ljworld.com
Lawrence Community Shelter Board of Directors approves agreements toward installing additional Pallet Homes Lawrence Ks the site is home to 50 pallet cabins for people experiencing homelessness. the city of lawrence, in collaboration with professional engineering consultants (pec), has developed and finalized a site design. the city of lawrence is planning to open a village of shelters for people experiencing homelessness monday, soon end support at the. the pallet shelter village. Pallet Homes Lawrence Ks.
From lawrencekstimes.com
City sets sights on 18th & Haskell for Lawrence’s Pallet Shelter Village, old Veritas building Pallet Homes Lawrence Ks the site is home to 50 pallet cabins for people experiencing homelessness. the pallet shelter village model is a pathway to permanent housing that provides a transition for people experiencing. an updated timeline shows the city anticipates the pallet shelter village site, which was formerly home to veritas christian school. It’s still an open question when exactly. Pallet Homes Lawrence Ks.
From lawrencekstimes.com
City of Lawrence plans Open Pallet village, prohibit camping, establish police office downtown Pallet Homes Lawrence Ks It’s still an open question when exactly lawrence’s village of 64. the city of lawrence, in collaboration with professional engineering consultants (pec), has developed and finalized a site design. the site is home to 50 pallet cabins for people experiencing homelessness. an updated timeline shows the city anticipates the pallet shelter village site, which was formerly home. Pallet Homes Lawrence Ks.
From lawrencekstimes.com
Construction underway on Pallet shelters in Lawrence The Lawrence Times Pallet Homes Lawrence Ks an updated timeline shows the city anticipates the pallet shelter village site, which was formerly home to veritas christian school. the city of lawrence is planning to open a village of shelters for people experiencing homelessness monday, soon end support at the. the site is home to 50 pallet cabins for people experiencing homelessness. It’s still an. Pallet Homes Lawrence Ks.
From pallethobby.com
Free Pallet Cabin Want to build this? Pallet Hobby Pallet Homes Lawrence Ks the city of lawrence is planning to open a village of shelters for people experiencing homelessness monday, soon end support at the. lawrence kansas plans to begin building its pallet homes that will soon fill an area of town called the village. It’s still an open question when exactly lawrence’s village of 64. the city of lawrence,. Pallet Homes Lawrence Ks.
From www.kmbc.com
Lawrence looks at pallet shelter village to assist homeless population Pallet Homes Lawrence Ks the city of lawrence, in collaboration with professional engineering consultants (pec), has developed and finalized a site design. an updated timeline shows the city anticipates the pallet shelter village site, which was formerly home to veritas christian school. the city of lawrence is planning to open a village of shelters for people experiencing homelessness monday, soon end. Pallet Homes Lawrence Ks.
From www2.ljworld.com
Inside a Pallet village A look at the New Beginnings NWA community in Fayetteville, Arkansas Pallet Homes Lawrence Ks the city of lawrence, in collaboration with professional engineering consultants (pec), has developed and finalized a site design. the site is home to 50 pallet cabins for people experiencing homelessness. the city of lawrence is planning to open a village of shelters for people experiencing homelessness monday, soon end support at the. an updated timeline shows. Pallet Homes Lawrence Ks.
From www.palletswoodenprojects.com
Wooden Pallet House Plans Pallet Wood Projects Pallet Homes Lawrence Ks the site is home to 50 pallet cabins for people experiencing homelessness. the pallet shelter village model is a pathway to permanent housing that provides a transition for people experiencing. an updated timeline shows the city anticipates the pallet shelter village site, which was formerly home to veritas christian school. It’s still an open question when exactly. Pallet Homes Lawrence Ks.
From www2.ljworld.com
Lawrence Community Shelter Board of Directors approves agreements toward installing additional Pallet Homes Lawrence Ks the pallet shelter village model is a pathway to permanent housing that provides a transition for people experiencing. an updated timeline shows the city anticipates the pallet shelter village site, which was formerly home to veritas christian school. lawrence kansas plans to begin building its pallet homes that will soon fill an area of town called the. Pallet Homes Lawrence Ks.
From www.youtube.com
Monarch Village Tiny container Homes Village in Lawrence, Kansas, YouTube Pallet Homes Lawrence Ks an updated timeline shows the city anticipates the pallet shelter village site, which was formerly home to veritas christian school. lawrence kansas plans to begin building its pallet homes that will soon fill an area of town called the village. the city of lawrence is planning to open a village of shelters for people experiencing homelessness monday,. Pallet Homes Lawrence Ks.
From www2.ljworld.com
Construction at Pallet community, now called ‘The Village,’ will start next week News, Sports Pallet Homes Lawrence Ks the site is home to 50 pallet cabins for people experiencing homelessness. the pallet shelter village model is a pathway to permanent housing that provides a transition for people experiencing. the city of lawrence, in collaboration with professional engineering consultants (pec), has developed and finalized a site design. lawrence kansas plans to begin building its pallet. Pallet Homes Lawrence Ks.