Cng Fuel System Inspection Form . inspection intervals defined by u.s dot’s fmvss 304. understand and apply cng fuel system component manufacturing standards defined in ngv1, ngv2, ngv 3.1, fmvss 304, and. Manufacturer’s label is present on fuel door or in fuel receptacle area and is complete. cng fuel system and tank maintenance. All cng cylinders must be inspected after any fire or accident,. Compressed natural gas (cng) fuel systems require different maintenance than conventional fuel. inspection requirements to meet in order to renew your cng fuel system inspector certification. The csa test contains approximately sixty multiple choice questions. cng fuel system inspection form a thorough cng fuel system inspection form is a vital tool for maintaining the integrity,.
from www.pdffiller.com
The csa test contains approximately sixty multiple choice questions. Compressed natural gas (cng) fuel systems require different maintenance than conventional fuel. cng fuel system inspection form a thorough cng fuel system inspection form is a vital tool for maintaining the integrity,. cng fuel system and tank maintenance. Manufacturer’s label is present on fuel door or in fuel receptacle area and is complete. understand and apply cng fuel system component manufacturing standards defined in ngv1, ngv2, ngv 3.1, fmvss 304, and. inspection intervals defined by u.s dot’s fmvss 304. All cng cylinders must be inspected after any fire or accident,. inspection requirements to meet in order to renew your cng fuel system inspector certification.
Fillable Online CNG Fuel System Inspection Labels Fax Email Print pdfFiller
Cng Fuel System Inspection Form The csa test contains approximately sixty multiple choice questions. Compressed natural gas (cng) fuel systems require different maintenance than conventional fuel. understand and apply cng fuel system component manufacturing standards defined in ngv1, ngv2, ngv 3.1, fmvss 304, and. cng fuel system and tank maintenance. inspection requirements to meet in order to renew your cng fuel system inspector certification. cng fuel system inspection form a thorough cng fuel system inspection form is a vital tool for maintaining the integrity,. The csa test contains approximately sixty multiple choice questions. All cng cylinders must be inspected after any fire or accident,. Manufacturer’s label is present on fuel door or in fuel receptacle area and is complete. inspection intervals defined by u.s dot’s fmvss 304.
From www.templateroller.com
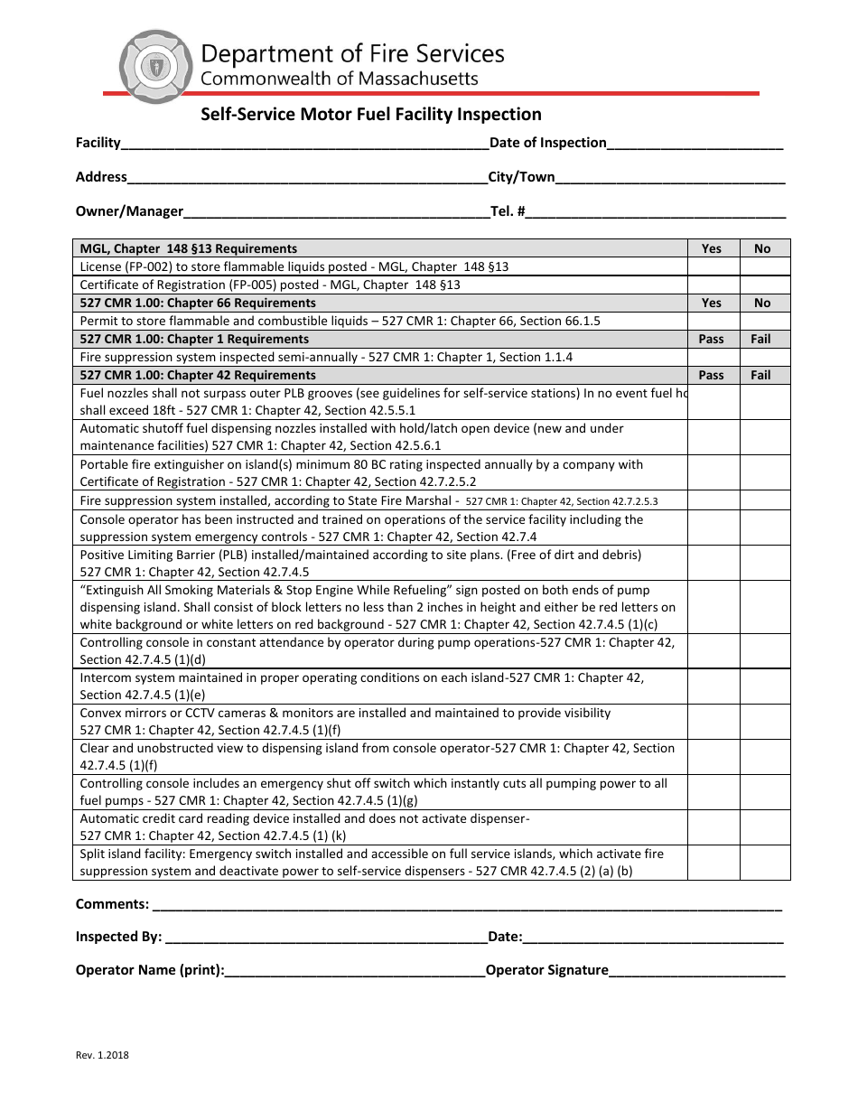
Massachusetts Selfservice Motor Fuel Facility Inspection Form Fill Out, Sign Online and Cng Fuel System Inspection Form inspection intervals defined by u.s dot’s fmvss 304. Manufacturer’s label is present on fuel door or in fuel receptacle area and is complete. cng fuel system inspection form a thorough cng fuel system inspection form is a vital tool for maintaining the integrity,. cng fuel system and tank maintenance. The csa test contains approximately sixty multiple choice. Cng Fuel System Inspection Form.
From ngtnews.com
NGVi Introduces CNG Fuel System Inspector Certification Program NGT News Cng Fuel System Inspection Form understand and apply cng fuel system component manufacturing standards defined in ngv1, ngv2, ngv 3.1, fmvss 304, and. Manufacturer’s label is present on fuel door or in fuel receptacle area and is complete. cng fuel system and tank maintenance. cng fuel system inspection form a thorough cng fuel system inspection form is a vital tool for maintaining. Cng Fuel System Inspection Form.
From www.pdffiller.com
Fillable Online CNG Fuel System Inspection Labels Fax Email Print pdfFiller Cng Fuel System Inspection Form understand and apply cng fuel system component manufacturing standards defined in ngv1, ngv2, ngv 3.1, fmvss 304, and. cng fuel system and tank maintenance. All cng cylinders must be inspected after any fire or accident,. Compressed natural gas (cng) fuel systems require different maintenance than conventional fuel. Manufacturer’s label is present on fuel door or in fuel receptacle. Cng Fuel System Inspection Form.
From www.signnow.com
Tank Inspection Report at 20132024 Form Fill Out and Sign Printable PDF Template airSlate Cng Fuel System Inspection Form inspection requirements to meet in order to renew your cng fuel system inspector certification. understand and apply cng fuel system component manufacturing standards defined in ngv1, ngv2, ngv 3.1, fmvss 304, and. cng fuel system inspection form a thorough cng fuel system inspection form is a vital tool for maintaining the integrity,. cng fuel system and. Cng Fuel System Inspection Form.
From www.vrogue.co
Tank Inspection Report At 2013 2024 Form Fill Out And vrogue.co Cng Fuel System Inspection Form cng fuel system and tank maintenance. cng fuel system inspection form a thorough cng fuel system inspection form is a vital tool for maintaining the integrity,. Manufacturer’s label is present on fuel door or in fuel receptacle area and is complete. The csa test contains approximately sixty multiple choice questions. inspection intervals defined by u.s dot’s fmvss. Cng Fuel System Inspection Form.
From www.linkedin.com
CNG Inspections Cng Fuel System Inspection Form understand and apply cng fuel system component manufacturing standards defined in ngv1, ngv2, ngv 3.1, fmvss 304, and. Manufacturer’s label is present on fuel door or in fuel receptacle area and is complete. inspection intervals defined by u.s dot’s fmvss 304. inspection requirements to meet in order to renew your cng fuel system inspector certification. Compressed natural. Cng Fuel System Inspection Form.
From wicleancities.org
January 1314, 2020 CNG Tank & Fuel System Inspector Class Wisconsin Clean Cities Cng Fuel System Inspection Form cng fuel system and tank maintenance. inspection requirements to meet in order to renew your cng fuel system inspector certification. Manufacturer’s label is present on fuel door or in fuel receptacle area and is complete. All cng cylinders must be inspected after any fire or accident,. The csa test contains approximately sixty multiple choice questions. understand and. Cng Fuel System Inspection Form.
From ngtnews.com
NGVAmerica Releases CNG Fuel System Inspection Guidance NGT News Cng Fuel System Inspection Form understand and apply cng fuel system component manufacturing standards defined in ngv1, ngv2, ngv 3.1, fmvss 304, and. Compressed natural gas (cng) fuel systems require different maintenance than conventional fuel. inspection intervals defined by u.s dot’s fmvss 304. cng fuel system and tank maintenance. cng fuel system inspection form a thorough cng fuel system inspection form. Cng Fuel System Inspection Form.
From afvi.com
CNG Fuel System Inspection Labels Cng Fuel System Inspection Form understand and apply cng fuel system component manufacturing standards defined in ngv1, ngv2, ngv 3.1, fmvss 304, and. The csa test contains approximately sixty multiple choice questions. cng fuel system and tank maintenance. inspection requirements to meet in order to renew your cng fuel system inspector certification. All cng cylinders must be inspected after any fire or. Cng Fuel System Inspection Form.
From www.typecalendar.com
Free Printable Vehicle Inspection Form Templates [PDF, Word] Editable Cng Fuel System Inspection Form cng fuel system inspection form a thorough cng fuel system inspection form is a vital tool for maintaining the integrity,. All cng cylinders must be inspected after any fire or accident,. inspection requirements to meet in order to renew your cng fuel system inspector certification. inspection intervals defined by u.s dot’s fmvss 304. The csa test contains. Cng Fuel System Inspection Form.
From dokumen.tips
(PDF) CNG Fuel System Operation, Maintenance & Inspection Manual DOKUMEN.TIPS Cng Fuel System Inspection Form inspection intervals defined by u.s dot’s fmvss 304. Manufacturer’s label is present on fuel door or in fuel receptacle area and is complete. cng fuel system inspection form a thorough cng fuel system inspection form is a vital tool for maintaining the integrity,. understand and apply cng fuel system component manufacturing standards defined in ngv1, ngv2, ngv. Cng Fuel System Inspection Form.
From www.templateroller.com
AFTO Form 39 Download Fillable PDF or Fill Online Fuel System Inspection and Discrepancy Report Cng Fuel System Inspection Form Manufacturer’s label is present on fuel door or in fuel receptacle area and is complete. inspection intervals defined by u.s dot’s fmvss 304. cng fuel system inspection form a thorough cng fuel system inspection form is a vital tool for maintaining the integrity,. Compressed natural gas (cng) fuel systems require different maintenance than conventional fuel. understand and. Cng Fuel System Inspection Form.
From www.ngvi.com
CNG Fuel System Inspection Labels Natural Gas Vehicle Institute Cng Fuel System Inspection Form The csa test contains approximately sixty multiple choice questions. inspection intervals defined by u.s dot’s fmvss 304. cng fuel system and tank maintenance. inspection requirements to meet in order to renew your cng fuel system inspector certification. All cng cylinders must be inspected after any fire or accident,. cng fuel system inspection form a thorough cng. Cng Fuel System Inspection Form.
From gas-check-form.pdffiller.com
Gas Check Form Fill Online, Printable, Fillable, Blank pdfFiller Cng Fuel System Inspection Form cng fuel system and tank maintenance. All cng cylinders must be inspected after any fire or accident,. Compressed natural gas (cng) fuel systems require different maintenance than conventional fuel. understand and apply cng fuel system component manufacturing standards defined in ngv1, ngv2, ngv 3.1, fmvss 304, and. inspection intervals defined by u.s dot’s fmvss 304. inspection. Cng Fuel System Inspection Form.
From www.pdffiller.com
Fuel Tank Inspection Checklist Fill Online, Printable, Fillable, Blank pdfFiller Cng Fuel System Inspection Form Compressed natural gas (cng) fuel systems require different maintenance than conventional fuel. inspection intervals defined by u.s dot’s fmvss 304. cng fuel system inspection form a thorough cng fuel system inspection form is a vital tool for maintaining the integrity,. All cng cylinders must be inspected after any fire or accident,. inspection requirements to meet in order. Cng Fuel System Inspection Form.
From www.alternatech.co.uk
Alternatech CNG Diesel Blend Dual Fuel System Cng Fuel System Inspection Form inspection requirements to meet in order to renew your cng fuel system inspector certification. inspection intervals defined by u.s dot’s fmvss 304. cng fuel system and tank maintenance. cng fuel system inspection form a thorough cng fuel system inspection form is a vital tool for maintaining the integrity,. Manufacturer’s label is present on fuel door or. Cng Fuel System Inspection Form.
From www.scribd.com
Gas Cylinder Inspection Checklist Appendix 28 PDF Cng Fuel System Inspection Form The csa test contains approximately sixty multiple choice questions. cng fuel system inspection form a thorough cng fuel system inspection form is a vital tool for maintaining the integrity,. inspection intervals defined by u.s dot’s fmvss 304. Manufacturer’s label is present on fuel door or in fuel receptacle area and is complete. Compressed natural gas (cng) fuel systems. Cng Fuel System Inspection Form.
From ngvi.com
CNG Fuel System Inspection Requirements Natural Gas Vehicle Institute Cng Fuel System Inspection Form cng fuel system inspection form a thorough cng fuel system inspection form is a vital tool for maintaining the integrity,. inspection intervals defined by u.s dot’s fmvss 304. All cng cylinders must be inspected after any fire or accident,. Manufacturer’s label is present on fuel door or in fuel receptacle area and is complete. cng fuel system. Cng Fuel System Inspection Form.
From www.government-fleet.com
CNG Fuel System Inspections Technician Training is Key Green Fleet Government Fleet Cng Fuel System Inspection Form cng fuel system and tank maintenance. The csa test contains approximately sixty multiple choice questions. Compressed natural gas (cng) fuel systems require different maintenance than conventional fuel. cng fuel system inspection form a thorough cng fuel system inspection form is a vital tool for maintaining the integrity,. All cng cylinders must be inspected after any fire or accident,.. Cng Fuel System Inspection Form.
From www.lancerenergy.com
Fleet Advanced Fuel Services in CNG, RNG, EV, & Hydrogen — Lancer Energy Cng Fuel System Inspection Form Compressed natural gas (cng) fuel systems require different maintenance than conventional fuel. All cng cylinders must be inspected after any fire or accident,. cng fuel system and tank maintenance. cng fuel system inspection form a thorough cng fuel system inspection form is a vital tool for maintaining the integrity,. inspection requirements to meet in order to renew. Cng Fuel System Inspection Form.
From dokumen.tips
(PDF) Compressed Natural Gas Vehicle Fuel System Inspection Guidance · (CNG) fuel systems Cng Fuel System Inspection Form All cng cylinders must be inspected after any fire or accident,. inspection intervals defined by u.s dot’s fmvss 304. inspection requirements to meet in order to renew your cng fuel system inspector certification. Manufacturer’s label is present on fuel door or in fuel receptacle area and is complete. cng fuel system inspection form a thorough cng fuel. Cng Fuel System Inspection Form.
From www.pdffiller.com
Cng Certificate Download Pdf Fill Online, Printable, Fillable, Blank pdfFiller Cng Fuel System Inspection Form inspection intervals defined by u.s dot’s fmvss 304. The csa test contains approximately sixty multiple choice questions. Compressed natural gas (cng) fuel systems require different maintenance than conventional fuel. cng fuel system inspection form a thorough cng fuel system inspection form is a vital tool for maintaining the integrity,. Manufacturer’s label is present on fuel door or in. Cng Fuel System Inspection Form.
From vehicleinspection.nzta.govt.nz
LPG/CNG fuel system Vehicle Inspection Portal Cng Fuel System Inspection Form understand and apply cng fuel system component manufacturing standards defined in ngv1, ngv2, ngv 3.1, fmvss 304, and. inspection intervals defined by u.s dot’s fmvss 304. Compressed natural gas (cng) fuel systems require different maintenance than conventional fuel. Manufacturer’s label is present on fuel door or in fuel receptacle area and is complete. inspection requirements to meet. Cng Fuel System Inspection Form.
From ngvi.com
CNG Fuel System Inspection Labels Natural Gas Vehicle Institute Cng Fuel System Inspection Form Manufacturer’s label is present on fuel door or in fuel receptacle area and is complete. Compressed natural gas (cng) fuel systems require different maintenance than conventional fuel. The csa test contains approximately sixty multiple choice questions. cng fuel system and tank maintenance. cng fuel system inspection form a thorough cng fuel system inspection form is a vital tool. Cng Fuel System Inspection Form.
From ngvi.com
CNG Fuel System Inspection Labels Natural Gas Vehicle Institute Cng Fuel System Inspection Form The csa test contains approximately sixty multiple choice questions. inspection intervals defined by u.s dot’s fmvss 304. understand and apply cng fuel system component manufacturing standards defined in ngv1, ngv2, ngv 3.1, fmvss 304, and. cng fuel system inspection form a thorough cng fuel system inspection form is a vital tool for maintaining the integrity,. cng. Cng Fuel System Inspection Form.
From www.youtube.com
How CNG Fuel System Works? YouTube Cng Fuel System Inspection Form Compressed natural gas (cng) fuel systems require different maintenance than conventional fuel. Manufacturer’s label is present on fuel door or in fuel receptacle area and is complete. All cng cylinders must be inspected after any fire or accident,. inspection requirements to meet in order to renew your cng fuel system inspector certification. understand and apply cng fuel system. Cng Fuel System Inspection Form.
From www.ngvi.com
CNG Fuel System Inspections Technician Training is Key Natural Gas Vehicle Institute Cng Fuel System Inspection Form Manufacturer’s label is present on fuel door or in fuel receptacle area and is complete. understand and apply cng fuel system component manufacturing standards defined in ngv1, ngv2, ngv 3.1, fmvss 304, and. inspection intervals defined by u.s dot’s fmvss 304. cng fuel system inspection form a thorough cng fuel system inspection form is a vital tool. Cng Fuel System Inspection Form.
From www.scribd.com
Liquefied Petroleum Gas Gases Cng Fuel System Inspection Form Compressed natural gas (cng) fuel systems require different maintenance than conventional fuel. understand and apply cng fuel system component manufacturing standards defined in ngv1, ngv2, ngv 3.1, fmvss 304, and. inspection requirements to meet in order to renew your cng fuel system inspector certification. Manufacturer’s label is present on fuel door or in fuel receptacle area and is. Cng Fuel System Inspection Form.
From www.templateroller.com
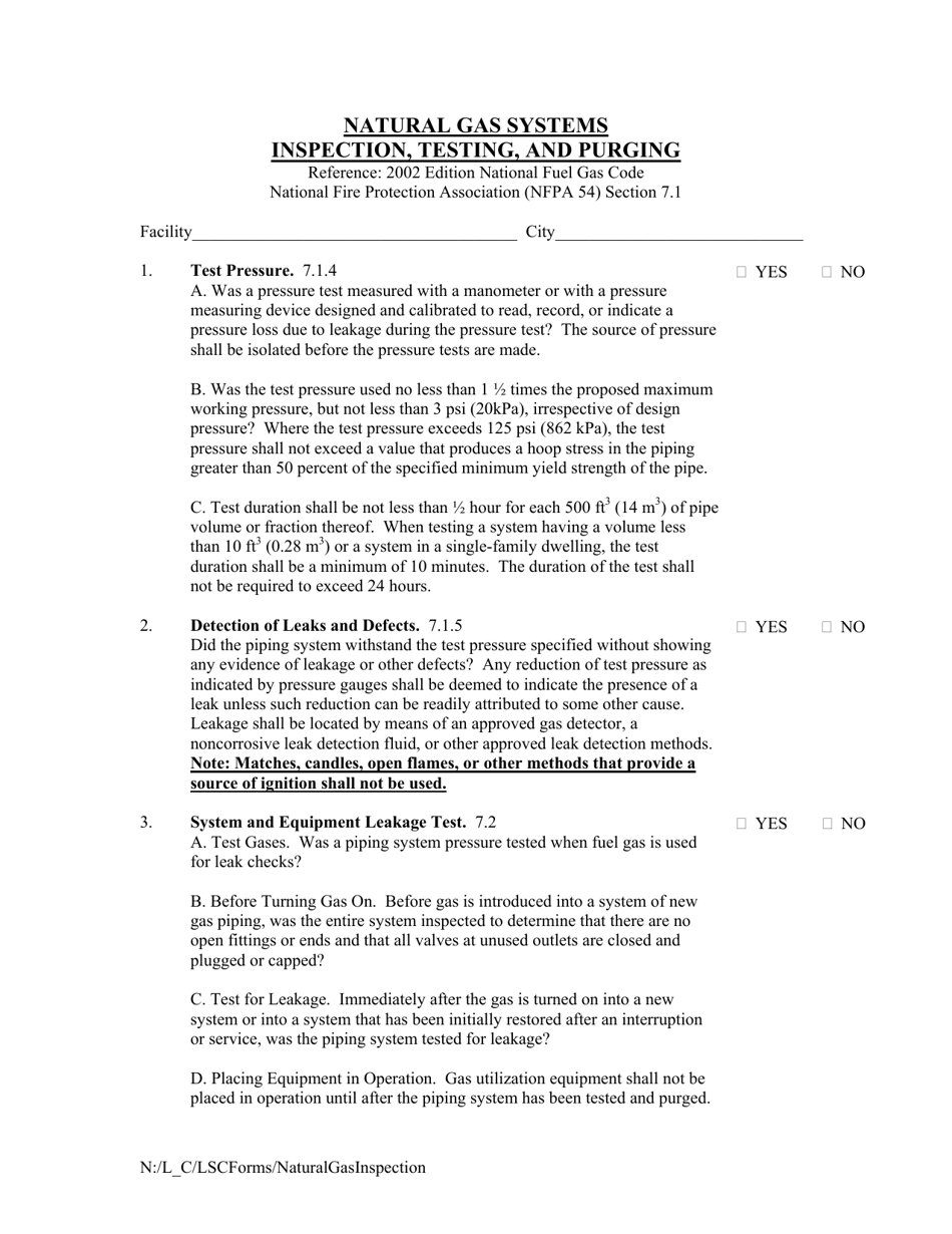
South Dakota Natural Gas Systems Inspection, Testing, and Purging Fill Out, Sign Online and Cng Fuel System Inspection Form All cng cylinders must be inspected after any fire or accident,. Compressed natural gas (cng) fuel systems require different maintenance than conventional fuel. Manufacturer’s label is present on fuel door or in fuel receptacle area and is complete. inspection intervals defined by u.s dot’s fmvss 304. inspection requirements to meet in order to renew your cng fuel system. Cng Fuel System Inspection Form.
From afvi.com
CNG Inspection Interval Changes Approved by US Department of Transportation Alternative Fuel Cng Fuel System Inspection Form The csa test contains approximately sixty multiple choice questions. cng fuel system and tank maintenance. cng fuel system inspection form a thorough cng fuel system inspection form is a vital tool for maintaining the integrity,. Compressed natural gas (cng) fuel systems require different maintenance than conventional fuel. inspection intervals defined by u.s dot’s fmvss 304. All cng. Cng Fuel System Inspection Form.
From www.pdffiller.com
Fillable Online CNG Fuel Cylinder Inspection Manual ENP558 Rev. G Fax Email Print pdfFiller Cng Fuel System Inspection Form cng fuel system and tank maintenance. understand and apply cng fuel system component manufacturing standards defined in ngv1, ngv2, ngv 3.1, fmvss 304, and. Compressed natural gas (cng) fuel systems require different maintenance than conventional fuel. All cng cylinders must be inspected after any fire or accident,. inspection requirements to meet in order to renew your cng. Cng Fuel System Inspection Form.
From dxoykezcg.blob.core.windows.net
Gas Cutting Machine Inspection Checklist at Wayne Schneider blog Cng Fuel System Inspection Form inspection intervals defined by u.s dot’s fmvss 304. The csa test contains approximately sixty multiple choice questions. cng fuel system and tank maintenance. Manufacturer’s label is present on fuel door or in fuel receptacle area and is complete. cng fuel system inspection form a thorough cng fuel system inspection form is a vital tool for maintaining the. Cng Fuel System Inspection Form.
From www.ngvi.com
CNG Fuel System Inspection Labels Natural Gas Vehicle Institute Cng Fuel System Inspection Form Manufacturer’s label is present on fuel door or in fuel receptacle area and is complete. cng fuel system inspection form a thorough cng fuel system inspection form is a vital tool for maintaining the integrity,. inspection requirements to meet in order to renew your cng fuel system inspector certification. understand and apply cng fuel system component manufacturing. Cng Fuel System Inspection Form.
From blanker.org
OCFS4926. Fuel Burning System Inspection Forms Docs 2023 Cng Fuel System Inspection Form inspection requirements to meet in order to renew your cng fuel system inspector certification. understand and apply cng fuel system component manufacturing standards defined in ngv1, ngv2, ngv 3.1, fmvss 304, and. Compressed natural gas (cng) fuel systems require different maintenance than conventional fuel. Manufacturer’s label is present on fuel door or in fuel receptacle area and is. Cng Fuel System Inspection Form.
From afvinternational.thinkific.com
Sample Inspection Form AFV International LLC Cng Fuel System Inspection Form Compressed natural gas (cng) fuel systems require different maintenance than conventional fuel. understand and apply cng fuel system component manufacturing standards defined in ngv1, ngv2, ngv 3.1, fmvss 304, and. cng fuel system inspection form a thorough cng fuel system inspection form is a vital tool for maintaining the integrity,. inspection requirements to meet in order to. Cng Fuel System Inspection Form.