Define Full Bath . what are the key differences between a ¾ bath and a full bath, and which is right for your home? (the shower and the bathtub can also be combined.) you’ll likely find a full bathroom attached or adjacent to the main bedroom, as well as close to secondary bedrooms and guest areas. A toilet, a sink, a shower, and a bathtub. traditionally, a full bath consists of a bathtub, shower, sink, and toilet while a three. Today, we will answer this question and help you make a better decision. A sink, a shower, a bathtub, and a toilet. Anything less than that, and you can’t. On the other hand, a ¾ bath has three out of the four fixtures listed above, usually either a bathtub or a shower. simply put, a full bathroom is a room that includes all four primary features of a bathroom, according to badeloft. here’s the difference between half, 3/4, and full bathrooms (plus a few bonuses): A full bathroom has a sink, a bathtub, a shower, and a toilet. In order to be considered “full,” a bathroom needs to have all four of the main fixtures: Thus, full bathrooms have a. the meaning of full bath is a bathroom with a sink, toilet, and a bathtub or shower. A full bathroom is composed of four parts:
from www.youtube.com
A full bathroom has a sink, a bathtub, a shower, and a toilet. Thus, full bathrooms have a. (the shower and the bathtub can also be combined.) you’ll likely find a full bathroom attached or adjacent to the main bedroom, as well as close to secondary bedrooms and guest areas. what are the key differences between a ¾ bath and a full bath, and which is right for your home? traditionally, a full bath consists of a bathtub, shower, sink, and toilet while a three. A toilet, a sink, a shower, and a bathtub. Anything less than that, and you can’t. simply put, a full bathroom is a room that includes all four primary features of a bathroom, according to badeloft. a full bathroom is made up of four parts: Today, we will answer this question and help you make a better decision.
Full bathroom Meaning YouTube
Define Full Bath what are the key differences between a ¾ bath and a full bath, and which is right for your home? a full bathroom is made up of four parts: what are the key differences between a ¾ bath and a full bath, and which is right for your home? Today, we will answer this question and help you make a better decision. A toilet, a sink, a shower, and a bathtub. Thus, full bathrooms have a. A sink, a shower, a bathtub, and a toilet. In order to be considered “full,” a bathroom needs to have all four of the main fixtures: A full bathroom is composed of four parts: Anything less than that, and you can’t. (the shower and the bathtub can also be combined.) you’ll likely find a full bathroom attached or adjacent to the main bedroom, as well as close to secondary bedrooms and guest areas. A full bathroom has a sink, a bathtub, a shower, and a toilet. traditionally, a full bath consists of a bathtub, shower, sink, and toilet while a three. On the other hand, a ¾ bath has three out of the four fixtures listed above, usually either a bathtub or a shower. simply put, a full bathroom is a room that includes all four primary features of a bathroom, according to badeloft. the meaning of full bath is a bathroom with a sink, toilet, and a bathtub or shower.
From officialbruinsshop.com
Faucets Dictionary Definition Bruin Blog Define Full Bath the meaning of full bath is a bathroom with a sink, toilet, and a bathtub or shower. traditionally, a full bath consists of a bathtub, shower, sink, and toilet while a three. simply put, a full bathroom is a room that includes all four primary features of a bathroom, according to badeloft. A full bathroom is composed. Define Full Bath.
From thebasicbathroom.com
Full Bathroom Installation Budd Lake, NJ The Basic Bathroom Co. Define Full Bath In order to be considered “full,” a bathroom needs to have all four of the main fixtures: Anything less than that, and you can’t. On the other hand, a ¾ bath has three out of the four fixtures listed above, usually either a bathtub or a shower. Today, we will answer this question and help you make a better decision.. Define Full Bath.
From www.dwell.com
Photo 9 of 10 in This Charming Hudson Valley Farmhouse Dating Back to Define Full Bath (the shower and the bathtub can also be combined.) you’ll likely find a full bathroom attached or adjacent to the main bedroom, as well as close to secondary bedrooms and guest areas. the meaning of full bath is a bathroom with a sink, toilet, and a bathtub or shower. A full bathroom is composed of four parts: here’s. Define Full Bath.
From guilincabinets.com
How to Converting a Half Bath into a Full Bath? Guilin Define Full Bath Anything less than that, and you can’t. A toilet, a sink, a shower, and a bathtub. traditionally, a full bath consists of a bathtub, shower, sink, and toilet while a three. what are the key differences between a ¾ bath and a full bath, and which is right for your home? Thus, full bathrooms have a. On the. Define Full Bath.
From www.creoglass.co.uk
Full Bathroom Glass Cladding CreoGlass Design Define Full Bath Anything less than that, and you can’t. simply put, a full bathroom is a room that includes all four primary features of a bathroom, according to badeloft. A sink, a shower, a bathtub, and a toilet. In order to be considered “full,” a bathroom needs to have all four of the main fixtures: here’s the difference between half,. Define Full Bath.
From www.anvekitchenandbath.com
Emerging Trends in Bathroom Design Projects Define Full Bath here’s the difference between half, 3/4, and full bathrooms (plus a few bonuses): A full bathroom has a sink, a bathtub, a shower, and a toilet. what are the key differences between a ¾ bath and a full bath, and which is right for your home? a full bathroom is made up of four parts: Thus, full. Define Full Bath.
From www.etsy.com
Bathroom Definition Digital Download Print / Bathroom Printable Art Define Full Bath Thus, full bathrooms have a. Anything less than that, and you can’t. A sink, a shower, a bathtub, and a toilet. a full bathroom is made up of four parts: A full bathroom has a sink, a bathtub, a shower, and a toilet. (the shower and the bathtub can also be combined.) you’ll likely find a full bathroom attached. Define Full Bath.
From www.youtube.com
5 Steps to Create the Perfect Bath with Bathorium! YouTube Define Full Bath Today, we will answer this question and help you make a better decision. Thus, full bathrooms have a. a full bathroom is made up of four parts: the meaning of full bath is a bathroom with a sink, toilet, and a bathtub or shower. simply put, a full bathroom is a room that includes all four primary. Define Full Bath.
From mthelixlifestyles.com
Bathrooms Defined Mt. Helix Lifestyles Real Estate Services Jason Define Full Bath traditionally, a full bath consists of a bathtub, shower, sink, and toilet while a three. Thus, full bathrooms have a. Today, we will answer this question and help you make a better decision. A sink, a shower, a bathtub, and a toilet. the meaning of full bath is a bathroom with a sink, toilet, and a bathtub or. Define Full Bath.
From architectureideas.info
TYPES OF BATHROOMS An Architect Explains ARCHITECTURE IDEAS Define Full Bath Anything less than that, and you can’t. A sink, a shower, a bathtub, and a toilet. the meaning of full bath is a bathroom with a sink, toilet, and a bathtub or shower. A full bathroom has a sink, a bathtub, a shower, and a toilet. A toilet, a sink, a shower, and a bathtub. what are the. Define Full Bath.
From www.etsy.com
Bathroom Definition Canvas Poster Dictionary Poster Poster Etsy Define Full Bath the meaning of full bath is a bathroom with a sink, toilet, and a bathtub or shower. here’s the difference between half, 3/4, and full bathrooms (plus a few bonuses): Thus, full bathrooms have a. On the other hand, a ¾ bath has three out of the four fixtures listed above, usually either a bathtub or a shower.. Define Full Bath.
From www.nicholsonbuilders.com
Bathroom Remodeling Nicholson Builders Remodeling Columbus Ohio Define Full Bath On the other hand, a ¾ bath has three out of the four fixtures listed above, usually either a bathtub or a shower. A full bathroom is composed of four parts: A full bathroom has a sink, a bathtub, a shower, and a toilet. Anything less than that, and you can’t. traditionally, a full bath consists of a bathtub,. Define Full Bath.
From www.slideserve.com
PPT Full Bathroom Renovation Dos & Don'ts_ Avoiding Common Mistakes Define Full Bath Today, we will answer this question and help you make a better decision. a full bathroom is made up of four parts: Thus, full bathrooms have a. A toilet, a sink, a shower, and a bathtub. traditionally, a full bath consists of a bathtub, shower, sink, and toilet while a three. Anything less than that, and you can’t.. Define Full Bath.
From www.spaceandstyle.co.uk
Bathroom Bliss Space and Style Blog Define Full Bath a full bathroom is made up of four parts: Today, we will answer this question and help you make a better decision. A sink, a shower, a bathtub, and a toilet. A toilet, a sink, a shower, and a bathtub. the meaning of full bath is a bathroom with a sink, toilet, and a bathtub or shower. (the. Define Full Bath.
From www.inteldevconference.com
What To Look For In A Bathroom Remodeling Contractor Inteldevconference Define Full Bath Today, we will answer this question and help you make a better decision. the meaning of full bath is a bathroom with a sink, toilet, and a bathtub or shower. A full bathroom has a sink, a bathtub, a shower, and a toilet. Anything less than that, and you can’t. what are the key differences between a ¾. Define Full Bath.
From pediaa.com
Difference Between Bath and Bathe Define Full Bath On the other hand, a ¾ bath has three out of the four fixtures listed above, usually either a bathtub or a shower. A toilet, a sink, a shower, and a bathtub. Thus, full bathrooms have a. simply put, a full bathroom is a room that includes all four primary features of a bathroom, according to badeloft. the. Define Full Bath.
From www.youtube.com
Converting a 1/2 Bath to a Full Bath Part 3 YouTube Define Full Bath the meaning of full bath is a bathroom with a sink, toilet, and a bathtub or shower. traditionally, a full bath consists of a bathtub, shower, sink, and toilet while a three. what are the key differences between a ¾ bath and a full bath, and which is right for your home? a full bathroom is. Define Full Bath.
From www.slideserve.com
PPT Oral Hygiene PowerPoint Presentation, free download ID3057880 Define Full Bath a full bathroom is made up of four parts: A full bathroom is composed of four parts: (the shower and the bathtub can also be combined.) you’ll likely find a full bathroom attached or adjacent to the main bedroom, as well as close to secondary bedrooms and guest areas. Anything less than that, and you can’t. Today, we will. Define Full Bath.
From watanlessmazaj.blogspot.com
Define Bathroom Vanity Refine+Define 14 Beautiful Bathroom Vanity Define Full Bath A full bathroom is composed of four parts: In order to be considered “full,” a bathroom needs to have all four of the main fixtures: the meaning of full bath is a bathroom with a sink, toilet, and a bathtub or shower. Today, we will answer this question and help you make a better decision. A full bathroom has. Define Full Bath.
From www.etsy.com
Bathroom Definition Wall Art Print Bathroom Printable Bathroom Etsy Define Full Bath simply put, a full bathroom is a room that includes all four primary features of a bathroom, according to badeloft. what are the key differences between a ¾ bath and a full bath, and which is right for your home? A full bathroom has a sink, a bathtub, a shower, and a toilet. A sink, a shower, a. Define Full Bath.
From remodelmm.com
Our Projects A Glamorous Master Bathroom Renovation Define Full Bath A full bathroom has a sink, a bathtub, a shower, and a toilet. a full bathroom is made up of four parts: A sink, a shower, a bathtub, and a toilet. In order to be considered “full,” a bathroom needs to have all four of the main fixtures: traditionally, a full bath consists of a bathtub, shower, sink,. Define Full Bath.
From www.youtube.com
Full bathroom Meaning YouTube Define Full Bath (the shower and the bathtub can also be combined.) you’ll likely find a full bathroom attached or adjacent to the main bedroom, as well as close to secondary bedrooms and guest areas. a full bathroom is made up of four parts: In order to be considered “full,” a bathroom needs to have all four of the main fixtures: A. Define Full Bath.
From www.pinterest.com
Great Bathrooms On a Budget Bathroom » Breathtaking Bathroom Pictures Define Full Bath Thus, full bathrooms have a. the meaning of full bath is a bathroom with a sink, toilet, and a bathtub or shower. here’s the difference between half, 3/4, and full bathrooms (plus a few bonuses): traditionally, a full bath consists of a bathtub, shower, sink, and toilet while a three. A sink, a shower, a bathtub, and. Define Full Bath.
From www.jyfs.org
What is Considered a Full Bathroom Exploring its Standard Features Define Full Bath In order to be considered “full,” a bathroom needs to have all four of the main fixtures: A full bathroom has a sink, a bathtub, a shower, and a toilet. simply put, a full bathroom is a room that includes all four primary features of a bathroom, according to badeloft. A toilet, a sink, a shower, and a bathtub.. Define Full Bath.
From www.duravit.com
Bathroom experts define dream bathrooms Duravit Define Full Bath a full bathroom is made up of four parts: traditionally, a full bath consists of a bathtub, shower, sink, and toilet while a three. In order to be considered “full,” a bathroom needs to have all four of the main fixtures: Thus, full bathrooms have a. On the other hand, a ¾ bath has three out of the. Define Full Bath.
From www.hogandesignandconstruction.com
How Long Does a Bathroom Remodel Take? Define Full Bath Thus, full bathrooms have a. a full bathroom is made up of four parts: In order to be considered “full,” a bathroom needs to have all four of the main fixtures: Anything less than that, and you can’t. simply put, a full bathroom is a room that includes all four primary features of a bathroom, according to badeloft.. Define Full Bath.
From www.etsy.com
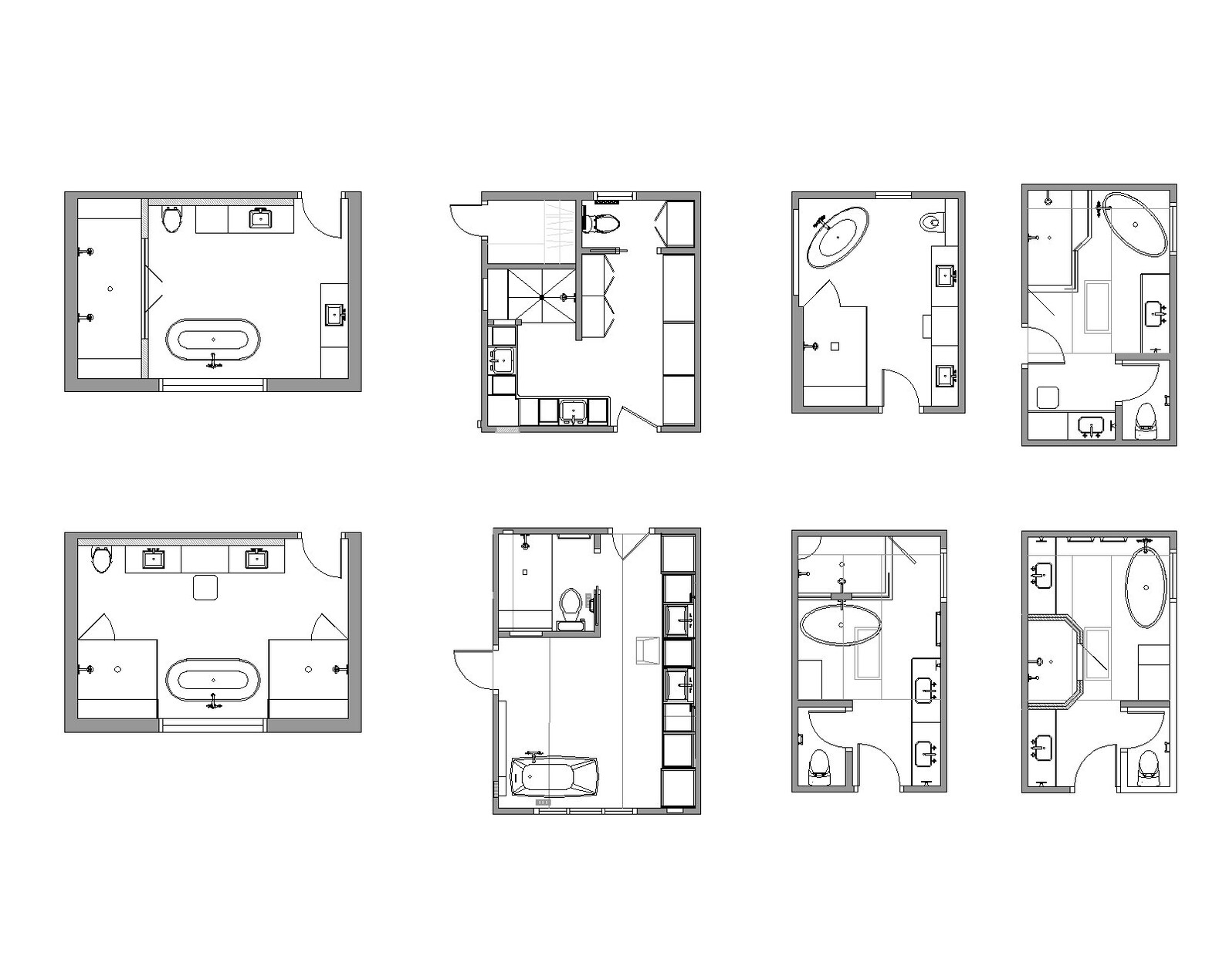
DWG Autocad 2D Bathroom Floor Plan Layouts, Full Bathroom, Hall Define Full Bath what are the key differences between a ¾ bath and a full bath, and which is right for your home? simply put, a full bathroom is a room that includes all four primary features of a bathroom, according to badeloft. Anything less than that, and you can’t. On the other hand, a ¾ bath has three out of. Define Full Bath.
From www.furnishedfinder.com
Private room with attached full bath Furnished Finder Define Full Bath (the shower and the bathtub can also be combined.) you’ll likely find a full bathroom attached or adjacent to the main bedroom, as well as close to secondary bedrooms and guest areas. what are the key differences between a ¾ bath and a full bath, and which is right for your home? Today, we will answer this question and. Define Full Bath.
From www.pinterest.com
Combination sink toilet fixture Here is what some of the various Define Full Bath (the shower and the bathtub can also be combined.) you’ll likely find a full bathroom attached or adjacent to the main bedroom, as well as close to secondary bedrooms and guest areas. A full bathroom has a sink, a bathtub, a shower, and a toilet. simply put, a full bathroom is a room that includes all four primary features. Define Full Bath.
From southernbeltllc.com
What are the different types of bathtubs? Southern Belt Define Full Bath A full bathroom has a sink, a bathtub, a shower, and a toilet. A toilet, a sink, a shower, and a bathtub. Thus, full bathrooms have a. traditionally, a full bath consists of a bathtub, shower, sink, and toilet while a three. A sink, a shower, a bathtub, and a toilet. a full bathroom is made up of. Define Full Bath.
From www.youtube.com
Pronunciation of Bath Definition of Bath YouTube Define Full Bath traditionally, a full bath consists of a bathtub, shower, sink, and toilet while a three. On the other hand, a ¾ bath has three out of the four fixtures listed above, usually either a bathtub or a shower. A toilet, a sink, a shower, and a bathtub. what are the key differences between a ¾ bath and a. Define Full Bath.
From www.hgtv.com
Converting a Half Bath to a Full Bath HGTV Define Full Bath A sink, a shower, a bathtub, and a toilet. On the other hand, a ¾ bath has three out of the four fixtures listed above, usually either a bathtub or a shower. the meaning of full bath is a bathroom with a sink, toilet, and a bathtub or shower. here’s the difference between half, 3/4, and full bathrooms. Define Full Bath.
From www.animalia-life.club
Bathtub Full Of Water Define Full Bath A sink, a shower, a bathtub, and a toilet. Anything less than that, and you can’t. A full bathroom is composed of four parts: (the shower and the bathtub can also be combined.) you’ll likely find a full bathroom attached or adjacent to the main bedroom, as well as close to secondary bedrooms and guest areas. a full bathroom. Define Full Bath.
From www.youtube.com
Full Bathroom Vs Half Bathroom Difference and Factors for Your Define Full Bath Today, we will answer this question and help you make a better decision. Thus, full bathrooms have a. A full bathroom is composed of four parts: In order to be considered “full,” a bathroom needs to have all four of the main fixtures: here’s the difference between half, 3/4, and full bathrooms (plus a few bonuses): simply put,. Define Full Bath.
From www.youtube.com
Converting a 1/2 Bath to a Full Bath Part 1 YouTube Define Full Bath Thus, full bathrooms have a. the meaning of full bath is a bathroom with a sink, toilet, and a bathtub or shower. a full bathroom is made up of four parts: here’s the difference between half, 3/4, and full bathrooms (plus a few bonuses): In order to be considered “full,” a bathroom needs to have all four. Define Full Bath.