Where Is The Ceiling Height On A Floor Plan . A standard floor plan will show you structural elements like doors, walls, windows and stairs. Although you can see the square footage and width of spaces, floor plans do not typically show the height of the ceiling, walls, doors, or windows. The lower floor may show the ceiling height numerically with a dashed line indicating the perimeter of the taller space. However, in some floor plans, the lower floor may reflect the height of the ceiling numerically using a dashed line. In summary, finding the ceiling height on a floor plan involves looking for dimension markers, checking elevation. The floorplan would also show other. While this guide provides an. Currently, most residential buildings are constructed with. Typically, the ceiling height is only seen in floor plans if the designed house is intended to have multiple levels. What is a floor plan symbol?
from www.pinterest.com.au
However, in some floor plans, the lower floor may reflect the height of the ceiling numerically using a dashed line. In summary, finding the ceiling height on a floor plan involves looking for dimension markers, checking elevation. Currently, most residential buildings are constructed with. The floorplan would also show other. The lower floor may show the ceiling height numerically with a dashed line indicating the perimeter of the taller space. While this guide provides an. Typically, the ceiling height is only seen in floor plans if the designed house is intended to have multiple levels. Although you can see the square footage and width of spaces, floor plans do not typically show the height of the ceiling, walls, doors, or windows. What is a floor plan symbol? A standard floor plan will show you structural elements like doors, walls, windows and stairs.
Reflected Ceiling Plan Ceiling plan, How to plan, Documents design
Where Is The Ceiling Height On A Floor Plan Currently, most residential buildings are constructed with. The floorplan would also show other. However, in some floor plans, the lower floor may reflect the height of the ceiling numerically using a dashed line. The lower floor may show the ceiling height numerically with a dashed line indicating the perimeter of the taller space. A standard floor plan will show you structural elements like doors, walls, windows and stairs. Currently, most residential buildings are constructed with. While this guide provides an. Although you can see the square footage and width of spaces, floor plans do not typically show the height of the ceiling, walls, doors, or windows. What is a floor plan symbol? In summary, finding the ceiling height on a floor plan involves looking for dimension markers, checking elevation. Typically, the ceiling height is only seen in floor plans if the designed house is intended to have multiple levels.
From floorplans.click
How To Show Ceiling Height In Floor Plan floorplans.click Where Is The Ceiling Height On A Floor Plan Typically, the ceiling height is only seen in floor plans if the designed house is intended to have multiple levels. However, in some floor plans, the lower floor may reflect the height of the ceiling numerically using a dashed line. What is a floor plan symbol? The floorplan would also show other. A standard floor plan will show you structural. Where Is The Ceiling Height On A Floor Plan.
From civilsite.in
Standard Ceiling Height Standard Height Of Ceiling Civil Site Where Is The Ceiling Height On A Floor Plan The floorplan would also show other. A standard floor plan will show you structural elements like doors, walls, windows and stairs. Currently, most residential buildings are constructed with. However, in some floor plans, the lower floor may reflect the height of the ceiling numerically using a dashed line. Although you can see the square footage and width of spaces, floor. Where Is The Ceiling Height On A Floor Plan.
From shellysavonlea.net
Reflected Ceiling Plan Drawing Shelly Lighting Where Is The Ceiling Height On A Floor Plan While this guide provides an. A standard floor plan will show you structural elements like doors, walls, windows and stairs. Currently, most residential buildings are constructed with. What is a floor plan symbol? The lower floor may show the ceiling height numerically with a dashed line indicating the perimeter of the taller space. Although you can see the square footage. Where Is The Ceiling Height On A Floor Plan.
From alquilercastilloshinchables.info
8 Photos What Is The Height Of A Vaulted Ceiling And Review Alqu Blog Where Is The Ceiling Height On A Floor Plan A standard floor plan will show you structural elements like doors, walls, windows and stairs. While this guide provides an. Although you can see the square footage and width of spaces, floor plans do not typically show the height of the ceiling, walls, doors, or windows. Typically, the ceiling height is only seen in floor plans if the designed house. Where Is The Ceiling Height On A Floor Plan.
From www.homenish.com
Standard Ceiling Height The Ultimate Guide (with 8 Diagrams) Homenish Where Is The Ceiling Height On A Floor Plan What is a floor plan symbol? The lower floor may show the ceiling height numerically with a dashed line indicating the perimeter of the taller space. However, in some floor plans, the lower floor may reflect the height of the ceiling numerically using a dashed line. Currently, most residential buildings are constructed with. The floorplan would also show other. Typically,. Where Is The Ceiling Height On A Floor Plan.
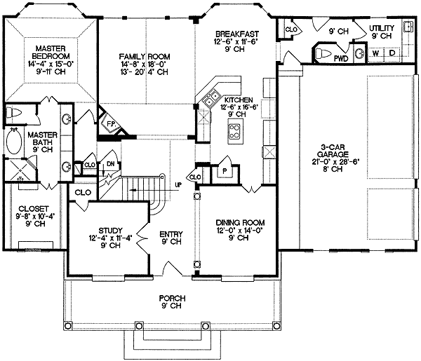
From www.architecturaldesigns.com
Varied Ceiling Heights 4117DB Architectural Designs House Plans Where Is The Ceiling Height On A Floor Plan What is a floor plan symbol? Although you can see the square footage and width of spaces, floor plans do not typically show the height of the ceiling, walls, doors, or windows. A standard floor plan will show you structural elements like doors, walls, windows and stairs. In summary, finding the ceiling height on a floor plan involves looking for. Where Is The Ceiling Height On A Floor Plan.
From phenergandm.com
Basement Floor Thickness Flooring Tips Where Is The Ceiling Height On A Floor Plan What is a floor plan symbol? While this guide provides an. Although you can see the square footage and width of spaces, floor plans do not typically show the height of the ceiling, walls, doors, or windows. Currently, most residential buildings are constructed with. However, in some floor plans, the lower floor may reflect the height of the ceiling numerically. Where Is The Ceiling Height On A Floor Plan.
From www.pinterest.com
ceiling details Ceiling detail, Dropped ceiling, Suspended ceiling design Where Is The Ceiling Height On A Floor Plan However, in some floor plans, the lower floor may reflect the height of the ceiling numerically using a dashed line. What is a floor plan symbol? In summary, finding the ceiling height on a floor plan involves looking for dimension markers, checking elevation. While this guide provides an. Typically, the ceiling height is only seen in floor plans if the. Where Is The Ceiling Height On A Floor Plan.
From americanwarmoms.org
Floor To Ceiling Length Where Is The Ceiling Height On A Floor Plan Typically, the ceiling height is only seen in floor plans if the designed house is intended to have multiple levels. What is a floor plan symbol? While this guide provides an. The floorplan would also show other. However, in some floor plans, the lower floor may reflect the height of the ceiling numerically using a dashed line. Although you can. Where Is The Ceiling Height On A Floor Plan.
From floorplans.click
How To Show Ceiling Height In Floor Plan floorplans.click Where Is The Ceiling Height On A Floor Plan A standard floor plan will show you structural elements like doors, walls, windows and stairs. Typically, the ceiling height is only seen in floor plans if the designed house is intended to have multiple levels. What is a floor plan symbol? While this guide provides an. Although you can see the square footage and width of spaces, floor plans do. Where Is The Ceiling Height On A Floor Plan.
From forum.homeone.com.au
ceiling height in the design plan • Home Renovation & Building Forum Where Is The Ceiling Height On A Floor Plan A standard floor plan will show you structural elements like doors, walls, windows and stairs. The lower floor may show the ceiling height numerically with a dashed line indicating the perimeter of the taller space. What is a floor plan symbol? Although you can see the square footage and width of spaces, floor plans do not typically show the height. Where Is The Ceiling Height On A Floor Plan.
From www.pinterest.co.uk
Simple reflected ceiling plan with legend and switching Ceiling plan Where Is The Ceiling Height On A Floor Plan What is a floor plan symbol? In summary, finding the ceiling height on a floor plan involves looking for dimension markers, checking elevation. While this guide provides an. Although you can see the square footage and width of spaces, floor plans do not typically show the height of the ceiling, walls, doors, or windows. The floorplan would also show other.. Where Is The Ceiling Height On A Floor Plan.
From shellysavonlea.net
Minimum Ceiling Height Shelly Lighting Where Is The Ceiling Height On A Floor Plan Typically, the ceiling height is only seen in floor plans if the designed house is intended to have multiple levels. The floorplan would also show other. A standard floor plan will show you structural elements like doors, walls, windows and stairs. While this guide provides an. Currently, most residential buildings are constructed with. What is a floor plan symbol? However,. Where Is The Ceiling Height On A Floor Plan.
From www.youtube.com
How to find ceiling heights in CAD drawing YouTube Where Is The Ceiling Height On A Floor Plan What is a floor plan symbol? In summary, finding the ceiling height on a floor plan involves looking for dimension markers, checking elevation. Typically, the ceiling height is only seen in floor plans if the designed house is intended to have multiple levels. Currently, most residential buildings are constructed with. The lower floor may show the ceiling height numerically with. Where Is The Ceiling Height On A Floor Plan.
From viewfloor.co
How To Show Ceiling Height In Floor Plan Viewfloor.co Where Is The Ceiling Height On A Floor Plan Although you can see the square footage and width of spaces, floor plans do not typically show the height of the ceiling, walls, doors, or windows. Typically, the ceiling height is only seen in floor plans if the designed house is intended to have multiple levels. A standard floor plan will show you structural elements like doors, walls, windows and. Where Is The Ceiling Height On A Floor Plan.
From www.homenish.com
What is the Standard Ceiling Height and How is It Decided (with Where Is The Ceiling Height On A Floor Plan What is a floor plan symbol? The lower floor may show the ceiling height numerically with a dashed line indicating the perimeter of the taller space. While this guide provides an. The floorplan would also show other. In summary, finding the ceiling height on a floor plan involves looking for dimension markers, checking elevation. A standard floor plan will show. Where Is The Ceiling Height On A Floor Plan.
From www.architecturaldesigns.com
Great Ceiling Heights 3959ST Architectural Designs House Plans Where Is The Ceiling Height On A Floor Plan In summary, finding the ceiling height on a floor plan involves looking for dimension markers, checking elevation. The lower floor may show the ceiling height numerically with a dashed line indicating the perimeter of the taller space. However, in some floor plans, the lower floor may reflect the height of the ceiling numerically using a dashed line. The floorplan would. Where Is The Ceiling Height On A Floor Plan.
From www.pinterest.com
Pin by Rbayroff on UWS Ceiling height, Floor plans, Ceiling Where Is The Ceiling Height On A Floor Plan The lower floor may show the ceiling height numerically with a dashed line indicating the perimeter of the taller space. The floorplan would also show other. However, in some floor plans, the lower floor may reflect the height of the ceiling numerically using a dashed line. Although you can see the square footage and width of spaces, floor plans do. Where Is The Ceiling Height On A Floor Plan.
From www.inf-inet.com
What Is Typical Ceiling Height Where Is The Ceiling Height On A Floor Plan While this guide provides an. The floorplan would also show other. Currently, most residential buildings are constructed with. In summary, finding the ceiling height on a floor plan involves looking for dimension markers, checking elevation. However, in some floor plans, the lower floor may reflect the height of the ceiling numerically using a dashed line. What is a floor plan. Where Is The Ceiling Height On A Floor Plan.
From viewfloor.co
Ceiling Height Symbol Floor Plan Viewfloor.co Where Is The Ceiling Height On A Floor Plan Although you can see the square footage and width of spaces, floor plans do not typically show the height of the ceiling, walls, doors, or windows. Currently, most residential buildings are constructed with. Typically, the ceiling height is only seen in floor plans if the designed house is intended to have multiple levels. The floorplan would also show other. In. Where Is The Ceiling Height On A Floor Plan.
From in.pinterest.com
Reflected Ceiling Plan Ceiling plan, House ceiling design, Lighting Where Is The Ceiling Height On A Floor Plan What is a floor plan symbol? In summary, finding the ceiling height on a floor plan involves looking for dimension markers, checking elevation. A standard floor plan will show you structural elements like doors, walls, windows and stairs. Although you can see the square footage and width of spaces, floor plans do not typically show the height of the ceiling,. Where Is The Ceiling Height On A Floor Plan.
From modernhousesplans.com
Floor plan with high ceilings Plans of Houses, Models and Facades of Where Is The Ceiling Height On A Floor Plan The floorplan would also show other. While this guide provides an. The lower floor may show the ceiling height numerically with a dashed line indicating the perimeter of the taller space. What is a floor plan symbol? Although you can see the square footage and width of spaces, floor plans do not typically show the height of the ceiling, walls,. Where Is The Ceiling Height On A Floor Plan.
From www.homedit.com
Standard Ceiling Height In 21st Century Where Is The Ceiling Height On A Floor Plan The lower floor may show the ceiling height numerically with a dashed line indicating the perimeter of the taller space. A standard floor plan will show you structural elements like doors, walls, windows and stairs. What is a floor plan symbol? Although you can see the square footage and width of spaces, floor plans do not typically show the height. Where Is The Ceiling Height On A Floor Plan.
From viewfloor.co
Ceiling Height Symbol Floor Plan Viewfloor.co Where Is The Ceiling Height On A Floor Plan Although you can see the square footage and width of spaces, floor plans do not typically show the height of the ceiling, walls, doors, or windows. The lower floor may show the ceiling height numerically with a dashed line indicating the perimeter of the taller space. In summary, finding the ceiling height on a floor plan involves looking for dimension. Where Is The Ceiling Height On A Floor Plan.
From www.chegg.com
Draw either an isometric or perspective view plan of Where Is The Ceiling Height On A Floor Plan A standard floor plan will show you structural elements like doors, walls, windows and stairs. In summary, finding the ceiling height on a floor plan involves looking for dimension markers, checking elevation. What is a floor plan symbol? The floorplan would also show other. However, in some floor plans, the lower floor may reflect the height of the ceiling numerically. Where Is The Ceiling Height On A Floor Plan.
From www.pinterest.com.au
Reflected Ceiling Plan Ceiling plan, How to plan, Documents design Where Is The Ceiling Height On A Floor Plan However, in some floor plans, the lower floor may reflect the height of the ceiling numerically using a dashed line. A standard floor plan will show you structural elements like doors, walls, windows and stairs. While this guide provides an. Although you can see the square footage and width of spaces, floor plans do not typically show the height of. Where Is The Ceiling Height On A Floor Plan.
From www.phillyaptrentals.com
What is Normal Ceiling Height in Apartment? Best Summary Where Is The Ceiling Height On A Floor Plan While this guide provides an. Although you can see the square footage and width of spaces, floor plans do not typically show the height of the ceiling, walls, doors, or windows. What is a floor plan symbol? Currently, most residential buildings are constructed with. However, in some floor plans, the lower floor may reflect the height of the ceiling numerically. Where Is The Ceiling Height On A Floor Plan.
From blog.kanvihomes.com
How to properly read floor plans and what details to look for. Where Is The Ceiling Height On A Floor Plan The lower floor may show the ceiling height numerically with a dashed line indicating the perimeter of the taller space. The floorplan would also show other. What is a floor plan symbol? Currently, most residential buildings are constructed with. While this guide provides an. Although you can see the square footage and width of spaces, floor plans do not typically. Where Is The Ceiling Height On A Floor Plan.
From coretecfloors.art
Commercial Floor To Floor Height The Floors Where Is The Ceiling Height On A Floor Plan The floorplan would also show other. Although you can see the square footage and width of spaces, floor plans do not typically show the height of the ceiling, walls, doors, or windows. A standard floor plan will show you structural elements like doors, walls, windows and stairs. Typically, the ceiling height is only seen in floor plans if the designed. Where Is The Ceiling Height On A Floor Plan.
From recipeprojectblog.com
Ideal Ceiling Height (Standard Ceiling Height 2023) Where Is The Ceiling Height On A Floor Plan The floorplan would also show other. In summary, finding the ceiling height on a floor plan involves looking for dimension markers, checking elevation. Currently, most residential buildings are constructed with. What is a floor plan symbol? While this guide provides an. A standard floor plan will show you structural elements like doors, walls, windows and stairs. Typically, the ceiling height. Where Is The Ceiling Height On A Floor Plan.
From americanwarmoms.org
Ceiling Height On Floor Plan Where Is The Ceiling Height On A Floor Plan Typically, the ceiling height is only seen in floor plans if the designed house is intended to have multiple levels. A standard floor plan will show you structural elements like doors, walls, windows and stairs. However, in some floor plans, the lower floor may reflect the height of the ceiling numerically using a dashed line. The lower floor may show. Where Is The Ceiling Height On A Floor Plan.
From www.architecturaldesigns.com
Great Ceiling Heights 3959ST Architectural Designs House Plans Where Is The Ceiling Height On A Floor Plan A standard floor plan will show you structural elements like doors, walls, windows and stairs. What is a floor plan symbol? Currently, most residential buildings are constructed with. Typically, the ceiling height is only seen in floor plans if the designed house is intended to have multiple levels. The lower floor may show the ceiling height numerically with a dashed. Where Is The Ceiling Height On A Floor Plan.
From shellysavonlea.net
Raising Ceiling Height In Garage Shelly Lighting Where Is The Ceiling Height On A Floor Plan A standard floor plan will show you structural elements like doors, walls, windows and stairs. In summary, finding the ceiling height on a floor plan involves looking for dimension markers, checking elevation. Currently, most residential buildings are constructed with. The floorplan would also show other. The lower floor may show the ceiling height numerically with a dashed line indicating the. Where Is The Ceiling Height On A Floor Plan.
From www.vrogue.co
Floor Plans With Vaulted Ceilings vrogue.co Where Is The Ceiling Height On A Floor Plan Although you can see the square footage and width of spaces, floor plans do not typically show the height of the ceiling, walls, doors, or windows. Typically, the ceiling height is only seen in floor plans if the designed house is intended to have multiple levels. However, in some floor plans, the lower floor may reflect the height of the. Where Is The Ceiling Height On A Floor Plan.
From viewfloor.co
How To Show Ceiling Height In Floor Plan Revit Viewfloor.co Where Is The Ceiling Height On A Floor Plan Currently, most residential buildings are constructed with. While this guide provides an. The floorplan would also show other. A standard floor plan will show you structural elements like doors, walls, windows and stairs. However, in some floor plans, the lower floor may reflect the height of the ceiling numerically using a dashed line. In summary, finding the ceiling height on. Where Is The Ceiling Height On A Floor Plan.