Wawa Sudley Road Manassas Va . 4 for a proposed rezoning that would allow the gas. Wawa will open its newest store in manassas on friday. Please see this page for more information regarding wawa sudley rd, manassas, va, including the store. Potomac local news october 17, 2024 at 11:15am. Wawa had applied to the city to rezone one and a half acres from business office zoning to general commercial zoning to establish the gas station at sudley and digges road. A proposed new wawa on sudley road in manassas is facing backlash from a neighboring church ahead of its rezoning vote at the city council next month. The future wawa is reportedly slated to be built off sudley road in between the manassas baptist church and the novant. Get directions to this store. The construction of manassas' first wawa is nearing completion, supporting. The doors at 10691 davidson place, located near the sudley road. The city’s planning commission will hold a public hearing aug.
from www.crexi.com
Get directions to this store. The doors at 10691 davidson place, located near the sudley road. The construction of manassas' first wawa is nearing completion, supporting. Please see this page for more information regarding wawa sudley rd, manassas, va, including the store. The city’s planning commission will hold a public hearing aug. The future wawa is reportedly slated to be built off sudley road in between the manassas baptist church and the novant. 4 for a proposed rezoning that would allow the gas. Wawa had applied to the city to rezone one and a half acres from business office zoning to general commercial zoning to establish the gas station at sudley and digges road. Wawa will open its newest store in manassas on friday. A proposed new wawa on sudley road in manassas is facing backlash from a neighboring church ahead of its rezoning vote at the city council next month.
78017869 Sudley Road, Manassas, VA 20109
Wawa Sudley Road Manassas Va The city’s planning commission will hold a public hearing aug. The city’s planning commission will hold a public hearing aug. A proposed new wawa on sudley road in manassas is facing backlash from a neighboring church ahead of its rezoning vote at the city council next month. The doors at 10691 davidson place, located near the sudley road. 4 for a proposed rezoning that would allow the gas. Potomac local news october 17, 2024 at 11:15am. Wawa will open its newest store in manassas on friday. Please see this page for more information regarding wawa sudley rd, manassas, va, including the store. The future wawa is reportedly slated to be built off sudley road in between the manassas baptist church and the novant. The construction of manassas' first wawa is nearing completion, supporting. Wawa had applied to the city to rezone one and a half acres from business office zoning to general commercial zoning to establish the gas station at sudley and digges road. Get directions to this store.
From www.crexi.com
78017869 Sudley Road, Manassas, VA 20109 Wawa Sudley Road Manassas Va The city’s planning commission will hold a public hearing aug. 4 for a proposed rezoning that would allow the gas. Wawa had applied to the city to rezone one and a half acres from business office zoning to general commercial zoning to establish the gas station at sudley and digges road. The doors at 10691 davidson place, located near the. Wawa Sudley Road Manassas Va.
From www.loopnet.co.uk
8609 Sudley Rd, Manassas 20110 Sudley Professional Centre Wawa Sudley Road Manassas Va Wawa will open its newest store in manassas on friday. The construction of manassas' first wawa is nearing completion, supporting. Get directions to this store. Potomac local news october 17, 2024 at 11:15am. The future wawa is reportedly slated to be built off sudley road in between the manassas baptist church and the novant. Wawa had applied to the city. Wawa Sudley Road Manassas Va.
From www.loopnet.com
83138375 Sudley Rd, Manassas, VA 20109 Manaport Plaza Wawa Sudley Road Manassas Va Potomac local news october 17, 2024 at 11:15am. The construction of manassas' first wawa is nearing completion, supporting. A proposed new wawa on sudley road in manassas is facing backlash from a neighboring church ahead of its rezoning vote at the city council next month. The future wawa is reportedly slated to be built off sudley road in between the. Wawa Sudley Road Manassas Va.
From www.loopnet.com
8609 Sudley Rd, Manassas, VA 20110 Sudley Professional Centre Wawa Sudley Road Manassas Va A proposed new wawa on sudley road in manassas is facing backlash from a neighboring church ahead of its rezoning vote at the city council next month. Wawa will open its newest store in manassas on friday. Potomac local news october 17, 2024 at 11:15am. The future wawa is reportedly slated to be built off sudley road in between the. Wawa Sudley Road Manassas Va.
From www.loopnet.com
8802 Sudley Rd, Manassas, VA 20110 Office for Lease Wawa Sudley Road Manassas Va Please see this page for more information regarding wawa sudley rd, manassas, va, including the store. The construction of manassas' first wawa is nearing completion, supporting. Wawa had applied to the city to rezone one and a half acres from business office zoning to general commercial zoning to establish the gas station at sudley and digges road. Wawa will open. Wawa Sudley Road Manassas Va.
From www.loopnet.com
10689 Sudley Manor Dr, Manassas, VA 20109 Manassas Crossroads Wawa Sudley Road Manassas Va The future wawa is reportedly slated to be built off sudley road in between the manassas baptist church and the novant. Get directions to this store. The doors at 10691 davidson place, located near the sudley road. Potomac local news october 17, 2024 at 11:15am. The construction of manassas' first wawa is nearing completion, supporting. Wawa will open its newest. Wawa Sudley Road Manassas Va.
From www.loopnet.com
92219275 Sudley Rd, Manassas, VA 20110 Wawa Sudley Road Manassas Va The city’s planning commission will hold a public hearing aug. The doors at 10691 davidson place, located near the sudley road. Get directions to this store. Please see this page for more information regarding wawa sudley rd, manassas, va, including the store. The future wawa is reportedly slated to be built off sudley road in between the manassas baptist church. Wawa Sudley Road Manassas Va.
From www.youtube.com
Sudley Road in Manassas Virginia YouTube Wawa Sudley Road Manassas Va Please see this page for more information regarding wawa sudley rd, manassas, va, including the store. The city’s planning commission will hold a public hearing aug. Wawa will open its newest store in manassas on friday. The construction of manassas' first wawa is nearing completion, supporting. Potomac local news october 17, 2024 at 11:15am. The future wawa is reportedly slated. Wawa Sudley Road Manassas Va.
From www.paracleterealty.com
Paraclete Realty Sudley Manor Square, Manassas, VA Wawa Sudley Road Manassas Va Wawa had applied to the city to rezone one and a half acres from business office zoning to general commercial zoning to establish the gas station at sudley and digges road. The construction of manassas' first wawa is nearing completion, supporting. The city’s planning commission will hold a public hearing aug. Please see this page for more information regarding wawa. Wawa Sudley Road Manassas Va.
From www.loopnet.com
8609 Sudley Rd, Manassas, VA 20110 Wawa Sudley Road Manassas Va The city’s planning commission will hold a public hearing aug. Wawa had applied to the city to rezone one and a half acres from business office zoning to general commercial zoning to establish the gas station at sudley and digges road. The doors at 10691 davidson place, located near the sudley road. Potomac local news october 17, 2024 at 11:15am.. Wawa Sudley Road Manassas Va.
From www.loopnet.com
8751 Sudley Rd, Manassas, VA 20110 Office/Retail for Lease Wawa Sudley Road Manassas Va Get directions to this store. The doors at 10691 davidson place, located near the sudley road. The city’s planning commission will hold a public hearing aug. Wawa had applied to the city to rezone one and a half acres from business office zoning to general commercial zoning to establish the gas station at sudley and digges road. A proposed new. Wawa Sudley Road Manassas Va.
From nesbittrealty.com
Vienna Wawa’s Newest D.C.Area Store Real Estate & Property Wawa Sudley Road Manassas Va The city’s planning commission will hold a public hearing aug. A proposed new wawa on sudley road in manassas is facing backlash from a neighboring church ahead of its rezoning vote at the city council next month. The future wawa is reportedly slated to be built off sudley road in between the manassas baptist church and the novant. The doors. Wawa Sudley Road Manassas Va.
From www.yelp.com
WALMART SUPERCENTER Updated August 2024 32 Photos & 87 Reviews Wawa Sudley Road Manassas Va The construction of manassas' first wawa is nearing completion, supporting. Wawa will open its newest store in manassas on friday. The doors at 10691 davidson place, located near the sudley road. 4 for a proposed rezoning that would allow the gas. The city’s planning commission will hold a public hearing aug. Please see this page for more information regarding wawa. Wawa Sudley Road Manassas Va.
From www.princewilliamtimes.com
New Wawa under construction on Sudley Road in Manassas News Wawa Sudley Road Manassas Va The city’s planning commission will hold a public hearing aug. The future wawa is reportedly slated to be built off sudley road in between the manassas baptist church and the novant. Wawa will open its newest store in manassas on friday. 4 for a proposed rezoning that would allow the gas. The doors at 10691 davidson place, located near the. Wawa Sudley Road Manassas Va.
From fdllc.com
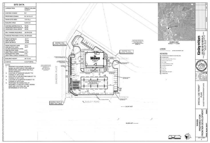
FRONTIER Development Wawa Coming to Sudley Rd.Where Don Pablo’s Wawa Sudley Road Manassas Va Wawa will open its newest store in manassas on friday. Please see this page for more information regarding wawa sudley rd, manassas, va, including the store. 4 for a proposed rezoning that would allow the gas. The future wawa is reportedly slated to be built off sudley road in between the manassas baptist church and the novant. Potomac local news. Wawa Sudley Road Manassas Va.
From www.loopnet.com
8644 Sudley Rd, Manassas, VA 20110 Wawa Sudley Road Manassas Va The construction of manassas' first wawa is nearing completion, supporting. Get directions to this store. Wawa had applied to the city to rezone one and a half acres from business office zoning to general commercial zoning to establish the gas station at sudley and digges road. Please see this page for more information regarding wawa sudley rd, manassas, va, including. Wawa Sudley Road Manassas Va.
From whatsupwoodbridge.com
Plans submitted for Wawa location near I66 in Manassas Wawa Sudley Road Manassas Va The future wawa is reportedly slated to be built off sudley road in between the manassas baptist church and the novant. The construction of manassas' first wawa is nearing completion, supporting. Get directions to this store. Please see this page for more information regarding wawa sudley rd, manassas, va, including the store. A proposed new wawa on sudley road in. Wawa Sudley Road Manassas Va.
From www.youtube.com
7820 Sudley Road, Manassas, VA 20109 Top Floor YouTube Wawa Sudley Road Manassas Va Please see this page for more information regarding wawa sudley rd, manassas, va, including the store. The future wawa is reportedly slated to be built off sudley road in between the manassas baptist church and the novant. 4 for a proposed rezoning that would allow the gas. The construction of manassas' first wawa is nearing completion, supporting. Get directions to. Wawa Sudley Road Manassas Va.
From www.loopnet.com
7900 Sudley Rd, Manassas, VA 20109 Sudley Tower Wawa Sudley Road Manassas Va The doors at 10691 davidson place, located near the sudley road. 4 for a proposed rezoning that would allow the gas. Wawa had applied to the city to rezone one and a half acres from business office zoning to general commercial zoning to establish the gas station at sudley and digges road. A proposed new wawa on sudley road in. Wawa Sudley Road Manassas Va.
From www.loopnet.com
80258125 Sudley Rd, Manassas, VA 20109 Westgate Shopping Center Wawa Sudley Road Manassas Va A proposed new wawa on sudley road in manassas is facing backlash from a neighboring church ahead of its rezoning vote at the city council next month. 4 for a proposed rezoning that would allow the gas. Wawa had applied to the city to rezone one and a half acres from business office zoning to general commercial zoning to establish. Wawa Sudley Road Manassas Va.
From www.loopnet.com
7900 Sudley Rd, Manassas, VA 20109 Sudley Tower Wawa Sudley Road Manassas Va 4 for a proposed rezoning that would allow the gas. The doors at 10691 davidson place, located near the sudley road. The city’s planning commission will hold a public hearing aug. Wawa had applied to the city to rezone one and a half acres from business office zoning to general commercial zoning to establish the gas station at sudley and. Wawa Sudley Road Manassas Va.
From www.loopnet.com
8644 Sudley Rd, Manassas, VA 20110 Office/Medical for Lease Wawa Sudley Road Manassas Va The doors at 10691 davidson place, located near the sudley road. A proposed new wawa on sudley road in manassas is facing backlash from a neighboring church ahead of its rezoning vote at the city council next month. 4 for a proposed rezoning that would allow the gas. Please see this page for more information regarding wawa sudley rd, manassas,. Wawa Sudley Road Manassas Va.
From www.crexi.com
8200 Sudley Rd, Manassas, VA 20109 Wawa Sudley Road Manassas Va Wawa had applied to the city to rezone one and a half acres from business office zoning to general commercial zoning to establish the gas station at sudley and digges road. The city’s planning commission will hold a public hearing aug. Potomac local news october 17, 2024 at 11:15am. The future wawa is reportedly slated to be built off sudley. Wawa Sudley Road Manassas Va.
From www.insidenova.com
Wawa proposed at former restaurant site off Sudley Road Prince Wawa Sudley Road Manassas Va The construction of manassas' first wawa is nearing completion, supporting. Wawa had applied to the city to rezone one and a half acres from business office zoning to general commercial zoning to establish the gas station at sudley and digges road. The doors at 10691 davidson place, located near the sudley road. Please see this page for more information regarding. Wawa Sudley Road Manassas Va.
From fdllc.com
FRONTIER Development FRONTIER Companies Completes Wawa Convenience Wawa Sudley Road Manassas Va Please see this page for more information regarding wawa sudley rd, manassas, va, including the store. 4 for a proposed rezoning that would allow the gas. Wawa had applied to the city to rezone one and a half acres from business office zoning to general commercial zoning to establish the gas station at sudley and digges road. A proposed new. Wawa Sudley Road Manassas Va.
From www.loopnet.com
8609 Sudley Rd, Manassas, VA 20110 Sudley Professional Centre Wawa Sudley Road Manassas Va Wawa had applied to the city to rezone one and a half acres from business office zoning to general commercial zoning to establish the gas station at sudley and digges road. Get directions to this store. The city’s planning commission will hold a public hearing aug. Wawa will open its newest store in manassas on friday. Potomac local news october. Wawa Sudley Road Manassas Va.
From www.loopnet.com
80258125 Sudley Rd, Manassas, VA 20109 Westgate Shopping Center Wawa Sudley Road Manassas Va Potomac local news october 17, 2024 at 11:15am. 4 for a proposed rezoning that would allow the gas. The construction of manassas' first wawa is nearing completion, supporting. Wawa will open its newest store in manassas on friday. Please see this page for more information regarding wawa sudley rd, manassas, va, including the store. Get directions to this store. The. Wawa Sudley Road Manassas Va.
From www.insidenova.com
Wawa store opening off Sudley Road on Friday Prince William Wawa Sudley Road Manassas Va Please see this page for more information regarding wawa sudley rd, manassas, va, including the store. The city’s planning commission will hold a public hearing aug. The construction of manassas' first wawa is nearing completion, supporting. A proposed new wawa on sudley road in manassas is facing backlash from a neighboring church ahead of its rezoning vote at the city. Wawa Sudley Road Manassas Va.
From www.activepw.org
Manassas’ MotoristFirst Sudley Road Third Lane Project and Its Awful Wawa Sudley Road Manassas Va A proposed new wawa on sudley road in manassas is facing backlash from a neighboring church ahead of its rezoning vote at the city council next month. Wawa had applied to the city to rezone one and a half acres from business office zoning to general commercial zoning to establish the gas station at sudley and digges road. Please see. Wawa Sudley Road Manassas Va.
From www.crexi.com
78017869 Sudley Road, Manassas, VA 20109 Wawa Sudley Road Manassas Va Wawa had applied to the city to rezone one and a half acres from business office zoning to general commercial zoning to establish the gas station at sudley and digges road. Wawa will open its newest store in manassas on friday. Potomac local news october 17, 2024 at 11:15am. A proposed new wawa on sudley road in manassas is facing. Wawa Sudley Road Manassas Va.
From www.loopnet.com
8644 Sudley Rd, Manassas, VA 20110 Office/Medical for Lease Wawa Sudley Road Manassas Va Wawa will open its newest store in manassas on friday. A proposed new wawa on sudley road in manassas is facing backlash from a neighboring church ahead of its rezoning vote at the city council next month. Potomac local news october 17, 2024 at 11:15am. Wawa had applied to the city to rezone one and a half acres from business. Wawa Sudley Road Manassas Va.
From www.loopnet.com
78007818 Sudley Rd, Manassas, VA 20109 Office/Retail for Lease Wawa Sudley Road Manassas Va Get directions to this store. 4 for a proposed rezoning that would allow the gas. Potomac local news october 17, 2024 at 11:15am. The future wawa is reportedly slated to be built off sudley road in between the manassas baptist church and the novant. The doors at 10691 davidson place, located near the sudley road. Please see this page for. Wawa Sudley Road Manassas Va.
From www.crexi.com
78017869 Sudley Road, Manassas, VA 20109 Wawa Sudley Road Manassas Va 4 for a proposed rezoning that would allow the gas. Potomac local news october 17, 2024 at 11:15am. Get directions to this store. The construction of manassas' first wawa is nearing completion, supporting. Wawa had applied to the city to rezone one and a half acres from business office zoning to general commercial zoning to establish the gas station at. Wawa Sudley Road Manassas Va.
From www.crexi.com
7800 Sudley Road, Manassas, VA 20109 Wawa Sudley Road Manassas Va The city’s planning commission will hold a public hearing aug. Get directions to this store. A proposed new wawa on sudley road in manassas is facing backlash from a neighboring church ahead of its rezoning vote at the city council next month. 4 for a proposed rezoning that would allow the gas. Potomac local news october 17, 2024 at 11:15am.. Wawa Sudley Road Manassas Va.
From www.crexi.com
78017869 Sudley Road, Manassas, VA 20109 Wawa Sudley Road Manassas Va The city’s planning commission will hold a public hearing aug. The construction of manassas' first wawa is nearing completion, supporting. A proposed new wawa on sudley road in manassas is facing backlash from a neighboring church ahead of its rezoning vote at the city council next month. Potomac local news october 17, 2024 at 11:15am. The future wawa is reportedly. Wawa Sudley Road Manassas Va.