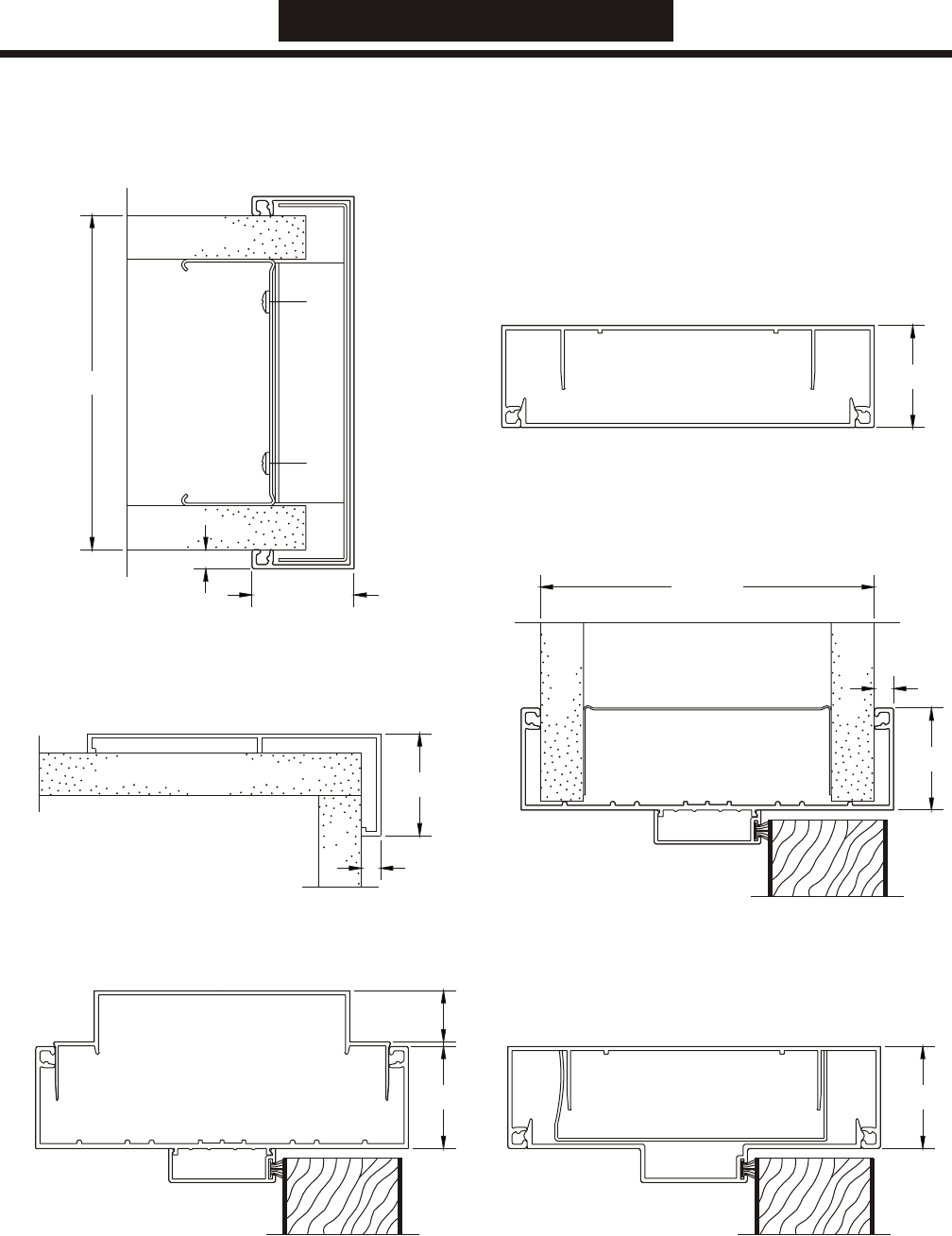
Raco Door Frame Rough Opening . Getting the rough opening size right the first time, will save you from frustration, when installing your doors. How to install and remove trim on a raco solution ii product. Formula for single or double frame rough opening height. Screw strike jamb to frame and sidelight header using ra602 t clip. How to install a horizontal or vertical mullion on a solutions ii frame. Rough opening height = door opening height + 3/4. Inspect frames and doors upon delivery for. Framing rough opening sizes are really. Insert rollers into track c. Place header over drywall and adjust to door opening height. Hold together and butt to rough opening head b. Deliver frames and doors in cartons to provide protection during transit and storage at project site. Drywall at head general installation instructions. Rough opening width = door opening.
from barnmirrorwalldecor.blogspot.com
Hold together and butt to rough opening head b. Framing rough opening sizes are really. Insert rollers into track c. Rough opening width = door opening. Drywall at head general installation instructions. Rough opening height = door opening height + 3/4. Place header over drywall and adjust to door opening height. Getting the rough opening size right the first time, will save you from frustration, when installing your doors. Deliver frames and doors in cartons to provide protection during transit and storage at project site. Screw strike jamb to frame and sidelight header using ra602 t clip.
Raco Door Frames Barn mirror wall decor
Raco Door Frame Rough Opening How to install and remove trim on a raco solution ii product. Rough opening width = door opening. How to install a horizontal or vertical mullion on a solutions ii frame. How to install and remove trim on a raco solution ii product. Insert rollers into track c. Drywall at head general installation instructions. Framing rough opening sizes are really. Rough opening height = door opening height + 3/4. Deliver frames and doors in cartons to provide protection during transit and storage at project site. Formula for single or double frame rough opening height. Screw strike jamb to frame and sidelight header using ra602 t clip. Place header over drywall and adjust to door opening height. Hold together and butt to rough opening head b. Inspect frames and doors upon delivery for. Getting the rough opening size right the first time, will save you from frustration, when installing your doors.
From www.jlconline.com
Framing Rough Openings JLC Online Raco Door Frame Rough Opening Screw strike jamb to frame and sidelight header using ra602 t clip. Inspect frames and doors upon delivery for. Insert rollers into track c. Drywall at head general installation instructions. How to install a horizontal or vertical mullion on a solutions ii frame. Rough opening width = door opening. Rough opening height = door opening height + 3/4. Place header. Raco Door Frame Rough Opening.
From billingsblessingbags.org
What Is The Rough Opening For Interior Doors Raco Door Frame Rough Opening Inspect frames and doors upon delivery for. Drywall at head general installation instructions. Rough opening height = door opening height + 3/4. Hold together and butt to rough opening head b. Getting the rough opening size right the first time, will save you from frustration, when installing your doors. Place header over drywall and adjust to door opening height. Framing. Raco Door Frame Rough Opening.
From reviewhomedecor.co
How To Measure Rough Opening For Interior Doors Review Home Decor Raco Door Frame Rough Opening Hold together and butt to rough opening head b. Rough opening height = door opening height + 3/4. Deliver frames and doors in cartons to provide protection during transit and storage at project site. How to install and remove trim on a raco solution ii product. Place header over drywall and adjust to door opening height. Screw strike jamb to. Raco Door Frame Rough Opening.
From www.youtube.com
Using a jig to set RACO door frames YouTube Raco Door Frame Rough Opening Screw strike jamb to frame and sidelight header using ra602 t clip. Deliver frames and doors in cartons to provide protection during transit and storage at project site. Hold together and butt to rough opening head b. How to install and remove trim on a raco solution ii product. Formula for single or double frame rough opening height. How to. Raco Door Frame Rough Opening.
From www.secureopeningsystems.com
Raco Interior Aluminum Door Frams & Windows in Indiana, Kentucky, Ohio Raco Door Frame Rough Opening Inspect frames and doors upon delivery for. Hold together and butt to rough opening head b. Getting the rough opening size right the first time, will save you from frustration, when installing your doors. How to install a horizontal or vertical mullion on a solutions ii frame. Framing rough opening sizes are really. Drywall at head general installation instructions. Formula. Raco Door Frame Rough Opening.
From dxocxklsz.blob.core.windows.net
How To Install A Door Frame In A Rough Opening at Carmen Frink blog Raco Door Frame Rough Opening Screw strike jamb to frame and sidelight header using ra602 t clip. Framing rough opening sizes are really. Deliver frames and doors in cartons to provide protection during transit and storage at project site. Drywall at head general installation instructions. Getting the rough opening size right the first time, will save you from frustration, when installing your doors. How to. Raco Door Frame Rough Opening.
From www.secureopeningsystems.com
Raco Interior Aluminum Door Frams & Windows in Indiana, Kentucky, Ohio Raco Door Frame Rough Opening Hold together and butt to rough opening head b. Framing rough opening sizes are really. Screw strike jamb to frame and sidelight header using ra602 t clip. Formula for single or double frame rough opening height. Getting the rough opening size right the first time, will save you from frustration, when installing your doors. Deliver frames and doors in cartons. Raco Door Frame Rough Opening.
From barnmirrorwalldecor.blogspot.com
Raco Door Frames Barn mirror wall decor Raco Door Frame Rough Opening Insert rollers into track c. Formula for single or double frame rough opening height. Rough opening height = door opening height + 3/4. Place header over drywall and adjust to door opening height. Rough opening width = door opening. Hold together and butt to rough opening head b. How to install and remove trim on a raco solution ii product.. Raco Door Frame Rough Opening.
From imagetou.com
Rough Opening Sizes For Knock Down Frames Image to u Raco Door Frame Rough Opening Deliver frames and doors in cartons to provide protection during transit and storage at project site. Getting the rough opening size right the first time, will save you from frustration, when installing your doors. Inspect frames and doors upon delivery for. Place header over drywall and adjust to door opening height. Screw strike jamb to frame and sidelight header using. Raco Door Frame Rough Opening.
From prosoco.com
RGuard Installation DetailRough Opening on CMU Construction Prosoco Raco Door Frame Rough Opening Place header over drywall and adjust to door opening height. Hold together and butt to rough opening head b. Screw strike jamb to frame and sidelight header using ra602 t clip. Insert rollers into track c. How to install and remove trim on a raco solution ii product. Framing rough opening sizes are really. Rough opening height = door opening. Raco Door Frame Rough Opening.
From usermanual.wiki
RACO Classic Catalog Raco Door Frame Rough Opening How to install and remove trim on a raco solution ii product. Deliver frames and doors in cartons to provide protection during transit and storage at project site. Drywall at head general installation instructions. Formula for single or double frame rough opening height. Hold together and butt to rough opening head b. Place header over drywall and adjust to door. Raco Door Frame Rough Opening.
From klayllamf.blob.core.windows.net
What Is The Standard Rough Opening For A Sliding Glass Door at Laurence Raco Door Frame Rough Opening Hold together and butt to rough opening head b. Getting the rough opening size right the first time, will save you from frustration, when installing your doors. Inspect frames and doors upon delivery for. Rough opening height = door opening height + 3/4. Formula for single or double frame rough opening height. Drywall at head general installation instructions. Rough opening. Raco Door Frame Rough Opening.
From usermanual.wiki
RACO Classic Catalog Raco Door Frame Rough Opening Rough opening height = door opening height + 3/4. Inspect frames and doors upon delivery for. Hold together and butt to rough opening head b. Getting the rough opening size right the first time, will save you from frustration, when installing your doors. Place header over drywall and adjust to door opening height. Screw strike jamb to frame and sidelight. Raco Door Frame Rough Opening.
From www.millworkconcepts.com
Door Dimensions and Rough Opening Guide Raco Door Frame Rough Opening Hold together and butt to rough opening head b. Rough opening width = door opening. Place header over drywall and adjust to door opening height. Inspect frames and doors upon delivery for. Formula for single or double frame rough opening height. Screw strike jamb to frame and sidelight header using ra602 t clip. Insert rollers into track c. Framing rough. Raco Door Frame Rough Opening.
From usermanual.wiki
RACO Classic Catalog Raco Door Frame Rough Opening How to install and remove trim on a raco solution ii product. Screw strike jamb to frame and sidelight header using ra602 t clip. Getting the rough opening size right the first time, will save you from frustration, when installing your doors. Inspect frames and doors upon delivery for. Rough opening width = door opening. Rough opening height = door. Raco Door Frame Rough Opening.
From www.secureopeningsystems.com
Raco Interior Aluminum Door Frams & Windows in Indiana, Kentucky, Ohio Raco Door Frame Rough Opening Screw strike jamb to frame and sidelight header using ra602 t clip. Framing rough opening sizes are really. Hold together and butt to rough opening head b. How to install a horizontal or vertical mullion on a solutions ii frame. Place header over drywall and adjust to door opening height. Rough opening width = door opening. Inspect frames and doors. Raco Door Frame Rough Opening.
From usermanual.wiki
RACO Classic Catalog Raco Door Frame Rough Opening How to install a horizontal or vertical mullion on a solutions ii frame. Inspect frames and doors upon delivery for. Insert rollers into track c. Framing rough opening sizes are really. Deliver frames and doors in cartons to provide protection during transit and storage at project site. Place header over drywall and adjust to door opening height. Drywall at head. Raco Door Frame Rough Opening.
From www.jlconline.com
Framing Rough Openings JLC Online Framing, Windows, Doors Raco Door Frame Rough Opening Screw strike jamb to frame and sidelight header using ra602 t clip. Rough opening height = door opening height + 3/4. Place header over drywall and adjust to door opening height. Inspect frames and doors upon delivery for. Formula for single or double frame rough opening height. How to install a horizontal or vertical mullion on a solutions ii frame.. Raco Door Frame Rough Opening.
From frpphils.com.ph
28x80 Pocket Door Rough Opening Big Discounts Raco Door Frame Rough Opening Framing rough opening sizes are really. Place header over drywall and adjust to door opening height. Screw strike jamb to frame and sidelight header using ra602 t clip. Rough opening height = door opening height + 3/4. Formula for single or double frame rough opening height. How to install a horizontal or vertical mullion on a solutions ii frame. Rough. Raco Door Frame Rough Opening.
From recordingstudiostlouis.blogspot.com
Framing Door Rough Opening Raco Door Frame Rough Opening How to install and remove trim on a raco solution ii product. Drywall at head general installation instructions. Formula for single or double frame rough opening height. Place header over drywall and adjust to door opening height. Screw strike jamb to frame and sidelight header using ra602 t clip. Getting the rough opening size right the first time, will save. Raco Door Frame Rough Opening.
From doorframeotri.blogspot.com
Door Frame How To Frame A Door Rough Opening Raco Door Frame Rough Opening Rough opening height = door opening height + 3/4. Formula for single or double frame rough opening height. Screw strike jamb to frame and sidelight header using ra602 t clip. Framing rough opening sizes are really. Rough opening width = door opening. Getting the rough opening size right the first time, will save you from frustration, when installing your doors.. Raco Door Frame Rough Opening.
From www.youtube.com
Raco Classic Single Frame with Sidelite Installation YouTube Raco Door Frame Rough Opening Deliver frames and doors in cartons to provide protection during transit and storage at project site. Getting the rough opening size right the first time, will save you from frustration, when installing your doors. How to install a horizontal or vertical mullion on a solutions ii frame. Place header over drywall and adjust to door opening height. Framing rough opening. Raco Door Frame Rough Opening.
From dxocxklsz.blob.core.windows.net
How To Install A Door Frame In A Rough Opening at Carmen Frink blog Raco Door Frame Rough Opening Rough opening height = door opening height + 3/4. Hold together and butt to rough opening head b. Rough opening width = door opening. How to install and remove trim on a raco solution ii product. Framing rough opening sizes are really. Inspect frames and doors upon delivery for. Deliver frames and doors in cartons to provide protection during transit. Raco Door Frame Rough Opening.
From webframes.org
What Is The Rough Frame Opening For A 36 Door Raco Door Frame Rough Opening Rough opening height = door opening height + 3/4. Rough opening width = door opening. Formula for single or double frame rough opening height. Inspect frames and doors upon delivery for. How to install a horizontal or vertical mullion on a solutions ii frame. Screw strike jamb to frame and sidelight header using ra602 t clip. Place header over drywall. Raco Door Frame Rough Opening.
From www.secureopeningsystems.com
Raco Interior Aluminum Door Frams & Windows in Indiana, Kentucky, Ohio Raco Door Frame Rough Opening Getting the rough opening size right the first time, will save you from frustration, when installing your doors. How to install a horizontal or vertical mullion on a solutions ii frame. Screw strike jamb to frame and sidelight header using ra602 t clip. Inspect frames and doors upon delivery for. Hold together and butt to rough opening head b. Deliver. Raco Door Frame Rough Opening.
From definecivil.com
Rough opening for doors 24”, 28”, 30”, 32”& 36” Opening Sizes Raco Door Frame Rough Opening Screw strike jamb to frame and sidelight header using ra602 t clip. Getting the rough opening size right the first time, will save you from frustration, when installing your doors. Deliver frames and doors in cartons to provide protection during transit and storage at project site. Formula for single or double frame rough opening height. Inspect frames and doors upon. Raco Door Frame Rough Opening.
From www.secureopeningsystems.com
Raco Interior Aluminum Door Frams & Windows in Indiana, Kentucky, Ohio Raco Door Frame Rough Opening Formula for single or double frame rough opening height. Inspect frames and doors upon delivery for. Hold together and butt to rough opening head b. Rough opening width = door opening. Drywall at head general installation instructions. Framing rough opening sizes are really. Screw strike jamb to frame and sidelight header using ra602 t clip. Place header over drywall and. Raco Door Frame Rough Opening.
From www.doorclosersusa.com
How To Measure a Storefront Door Rough Opening? Door Closers USA Raco Door Frame Rough Opening Getting the rough opening size right the first time, will save you from frustration, when installing your doors. Inspect frames and doors upon delivery for. How to install a horizontal or vertical mullion on a solutions ii frame. Screw strike jamb to frame and sidelight header using ra602 t clip. Framing rough opening sizes are really. Place header over drywall. Raco Door Frame Rough Opening.
From billingsblessingbags.org
What Is The Standard Rough Opening Height For An Interior Door Raco Door Frame Rough Opening How to install and remove trim on a raco solution ii product. Formula for single or double frame rough opening height. Screw strike jamb to frame and sidelight header using ra602 t clip. Deliver frames and doors in cartons to provide protection during transit and storage at project site. Hold together and butt to rough opening head b. Getting the. Raco Door Frame Rough Opening.
From directdoorsandhardware.com
Frame Rough Openings Direct Doors & Hardware Raco Door Frame Rough Opening Formula for single or double frame rough opening height. Hold together and butt to rough opening head b. Framing rough opening sizes are really. Getting the rough opening size right the first time, will save you from frustration, when installing your doors. Deliver frames and doors in cartons to provide protection during transit and storage at project site. How to. Raco Door Frame Rough Opening.
From dxocxklsz.blob.core.windows.net
How To Install A Door Frame In A Rough Opening at Carmen Frink blog Raco Door Frame Rough Opening Getting the rough opening size right the first time, will save you from frustration, when installing your doors. Rough opening height = door opening height + 3/4. Drywall at head general installation instructions. Place header over drywall and adjust to door opening height. How to install and remove trim on a raco solution ii product. Rough opening width = door. Raco Door Frame Rough Opening.
From recordingstudiostlouis.blogspot.com
Framing Door Rough Opening Raco Door Frame Rough Opening Inspect frames and doors upon delivery for. Insert rollers into track c. Formula for single or double frame rough opening height. Hold together and butt to rough opening head b. Framing rough opening sizes are really. Getting the rough opening size right the first time, will save you from frustration, when installing your doors. How to install and remove trim. Raco Door Frame Rough Opening.
From barnmirrorwalldecor.blogspot.com
Raco Door Frames Barn mirror wall decor Raco Door Frame Rough Opening Hold together and butt to rough opening head b. Framing rough opening sizes are really. Deliver frames and doors in cartons to provide protection during transit and storage at project site. Drywall at head general installation instructions. Screw strike jamb to frame and sidelight header using ra602 t clip. How to install and remove trim on a raco solution ii. Raco Door Frame Rough Opening.
From www.timelyframes.com
Rough Openings Timely Industries Raco Door Frame Rough Opening Deliver frames and doors in cartons to provide protection during transit and storage at project site. Rough opening width = door opening. Hold together and butt to rough opening head b. Rough opening height = door opening height + 3/4. Formula for single or double frame rough opening height. How to install and remove trim on a raco solution ii. Raco Door Frame Rough Opening.
From www.secureopeningsystems.com
Raco Interior Aluminum Door Frams & Windows in Indiana, Kentucky, Ohio Raco Door Frame Rough Opening Framing rough opening sizes are really. Getting the rough opening size right the first time, will save you from frustration, when installing your doors. Rough opening width = door opening. Drywall at head general installation instructions. Screw strike jamb to frame and sidelight header using ra602 t clip. Formula for single or double frame rough opening height. Rough opening height. Raco Door Frame Rough Opening.