Rc Ledge Meaning . similar to the current gfa adoption for reinforced concrete (rc ledge), the exemption for common ac ledges is up to 2 meters in width. The dimensions of the ac ledges will remain in compliance with bca’s design guidelines for air conditioner maintenance. the document summarizes the design of an rc beam ledge including calculations for: 3 1) basics of stairs and basic terms associated with it. 1) primary tension reinforcement (asc) 2) shear horizontal tie. ac ledges that are proposed to be retained as common property are.
from demediciassociates.com
ac ledges that are proposed to be retained as common property are. the document summarizes the design of an rc beam ledge including calculations for: 3 1) basics of stairs and basic terms associated with it. 1) primary tension reinforcement (asc) 2) shear horizontal tie. similar to the current gfa adoption for reinforced concrete (rc ledge), the exemption for common ac ledges is up to 2 meters in width. The dimensions of the ac ledges will remain in compliance with bca’s design guidelines for air conditioner maintenance.
Reinforced Concrete Design De Medici Associates
Rc Ledge Meaning ac ledges that are proposed to be retained as common property are. 3 1) basics of stairs and basic terms associated with it. ac ledges that are proposed to be retained as common property are. The dimensions of the ac ledges will remain in compliance with bca’s design guidelines for air conditioner maintenance. similar to the current gfa adoption for reinforced concrete (rc ledge), the exemption for common ac ledges is up to 2 meters in width. the document summarizes the design of an rc beam ledge including calculations for: 1) primary tension reinforcement (asc) 2) shear horizontal tie.
From demediciassociates.com
Reinforced Concrete Design De Medici Associates Rc Ledge Meaning The dimensions of the ac ledges will remain in compliance with bca’s design guidelines for air conditioner maintenance. 1) primary tension reinforcement (asc) 2) shear horizontal tie. ac ledges that are proposed to be retained as common property are. 3 1) basics of stairs and basic terms associated with it. the document summarizes the design of an rc. Rc Ledge Meaning.
From forums.autodesk.com
Solved How to make a ledge Autodesk Community Rc Ledge Meaning the document summarizes the design of an rc beam ledge including calculations for: similar to the current gfa adoption for reinforced concrete (rc ledge), the exemption for common ac ledges is up to 2 meters in width. ac ledges that are proposed to be retained as common property are. 1) primary tension reinforcement (asc) 2) shear horizontal. Rc Ledge Meaning.
From mohamedabushady.blogspot.com
Mohamed Abushady, P.E. ACI 318M11 RC Beam Ledge Design Rc Ledge Meaning The dimensions of the ac ledges will remain in compliance with bca’s design guidelines for air conditioner maintenance. ac ledges that are proposed to be retained as common property are. the document summarizes the design of an rc beam ledge including calculations for: 1) primary tension reinforcement (asc) 2) shear horizontal tie. similar to the current gfa. Rc Ledge Meaning.
From www.eng-tips.com
rebars as anchors connecting existing and new RC elements Rc Ledge Meaning The dimensions of the ac ledges will remain in compliance with bca’s design guidelines for air conditioner maintenance. ac ledges that are proposed to be retained as common property are. 3 1) basics of stairs and basic terms associated with it. 1) primary tension reinforcement (asc) 2) shear horizontal tie. similar to the current gfa adoption for reinforced. Rc Ledge Meaning.
From www.youtube.com
How to BUILD a LEDGE DIY the easiest and fastest way YouTube Rc Ledge Meaning The dimensions of the ac ledges will remain in compliance with bca’s design guidelines for air conditioner maintenance. 3 1) basics of stairs and basic terms associated with it. ac ledges that are proposed to be retained as common property are. the document summarizes the design of an rc beam ledge including calculations for: similar to the. Rc Ledge Meaning.
From www.youtube.com
How to prevent ledge formation YouTube Rc Ledge Meaning The dimensions of the ac ledges will remain in compliance with bca’s design guidelines for air conditioner maintenance. the document summarizes the design of an rc beam ledge including calculations for: ac ledges that are proposed to be retained as common property are. 3 1) basics of stairs and basic terms associated with it. similar to the. Rc Ledge Meaning.
From www.picnbooks.com
Ledge definition and meaning with pictures Picture Dictionary & Books Rc Ledge Meaning ac ledges that are proposed to be retained as common property are. the document summarizes the design of an rc beam ledge including calculations for: 1) primary tension reinforcement (asc) 2) shear horizontal tie. similar to the current gfa adoption for reinforced concrete (rc ledge), the exemption for common ac ledges is up to 2 meters in. Rc Ledge Meaning.
From sonatuts.blogspot.com
ACI 318M11 RC Beam Ledge Design Civil Engineering Rc Ledge Meaning ac ledges that are proposed to be retained as common property are. 1) primary tension reinforcement (asc) 2) shear horizontal tie. the document summarizes the design of an rc beam ledge including calculations for: similar to the current gfa adoption for reinforced concrete (rc ledge), the exemption for common ac ledges is up to 2 meters in. Rc Ledge Meaning.
From structville.com
Structural Design of Corbels Structville Rc Ledge Meaning The dimensions of the ac ledges will remain in compliance with bca’s design guidelines for air conditioner maintenance. the document summarizes the design of an rc beam ledge including calculations for: 1) primary tension reinforcement (asc) 2) shear horizontal tie. similar to the current gfa adoption for reinforced concrete (rc ledge), the exemption for common ac ledges is. Rc Ledge Meaning.
From sonatuts.blogspot.com
ACI 318M11 RC Beam Ledge Design Civil Engineering Rc Ledge Meaning similar to the current gfa adoption for reinforced concrete (rc ledge), the exemption for common ac ledges is up to 2 meters in width. the document summarizes the design of an rc beam ledge including calculations for: ac ledges that are proposed to be retained as common property are. 3 1) basics of stairs and basic terms. Rc Ledge Meaning.
From www.excelcalcs.com
ACI 318M11 RC Beam Ledge Design_v0.01_20171011.xlsx Rc Ledge Meaning ac ledges that are proposed to be retained as common property are. 1) primary tension reinforcement (asc) 2) shear horizontal tie. the document summarizes the design of an rc beam ledge including calculations for: The dimensions of the ac ledges will remain in compliance with bca’s design guidelines for air conditioner maintenance. 3 1) basics of stairs and. Rc Ledge Meaning.
From sonatuts.blogspot.com
ACI 318M11 RC Beam Ledge Design Civil Engineering Rc Ledge Meaning 1) primary tension reinforcement (asc) 2) shear horizontal tie. ac ledges that are proposed to be retained as common property are. the document summarizes the design of an rc beam ledge including calculations for: similar to the current gfa adoption for reinforced concrete (rc ledge), the exemption for common ac ledges is up to 2 meters in. Rc Ledge Meaning.
From www.youtube.com
Ledge Meaning YouTube Rc Ledge Meaning similar to the current gfa adoption for reinforced concrete (rc ledge), the exemption for common ac ledges is up to 2 meters in width. 3 1) basics of stairs and basic terms associated with it. The dimensions of the ac ledges will remain in compliance with bca’s design guidelines for air conditioner maintenance. 1) primary tension reinforcement (asc) 2). Rc Ledge Meaning.
From www.extremeloading.com
Dimensions and element arrangement of a laterally loaded cantilever Rc Ledge Meaning ac ledges that are proposed to be retained as common property are. the document summarizes the design of an rc beam ledge including calculations for: 1) primary tension reinforcement (asc) 2) shear horizontal tie. 3 1) basics of stairs and basic terms associated with it. similar to the current gfa adoption for reinforced concrete (rc ledge), the. Rc Ledge Meaning.
From www.ideastatica.com
Reinforced concrete ledge beams via CSFM IDEA StatiCa Rc Ledge Meaning the document summarizes the design of an rc beam ledge including calculations for: similar to the current gfa adoption for reinforced concrete (rc ledge), the exemption for common ac ledges is up to 2 meters in width. The dimensions of the ac ledges will remain in compliance with bca’s design guidelines for air conditioner maintenance. ac ledges. Rc Ledge Meaning.
From ar.inspiredpencil.com
Reinforced Concrete Wall Detail Rc Ledge Meaning similar to the current gfa adoption for reinforced concrete (rc ledge), the exemption for common ac ledges is up to 2 meters in width. The dimensions of the ac ledges will remain in compliance with bca’s design guidelines for air conditioner maintenance. 3 1) basics of stairs and basic terms associated with it. ac ledges that are proposed. Rc Ledge Meaning.
From theconstructor.org
Brick Ledge Design and Construction Procedure Rc Ledge Meaning 1) primary tension reinforcement (asc) 2) shear horizontal tie. 3 1) basics of stairs and basic terms associated with it. ac ledges that are proposed to be retained as common property are. similar to the current gfa adoption for reinforced concrete (rc ledge), the exemption for common ac ledges is up to 2 meters in width. the. Rc Ledge Meaning.
From endodontics.styleitaliano.org
How to manage ledges using rotary files Style Italiano Endodontics Rc Ledge Meaning 1) primary tension reinforcement (asc) 2) shear horizontal tie. similar to the current gfa adoption for reinforced concrete (rc ledge), the exemption for common ac ledges is up to 2 meters in width. 3 1) basics of stairs and basic terms associated with it. the document summarizes the design of an rc beam ledge including calculations for: The. Rc Ledge Meaning.
From www.youtube.com
What does ledge mean YouTube Rc Ledge Meaning 3 1) basics of stairs and basic terms associated with it. The dimensions of the ac ledges will remain in compliance with bca’s design guidelines for air conditioner maintenance. ac ledges that are proposed to be retained as common property are. the document summarizes the design of an rc beam ledge including calculations for: 1) primary tension reinforcement. Rc Ledge Meaning.
From www.excelcalcs.com
ACI 318M11 RC Beam Ledge Design_v0.01_20171011.xlsx Rc Ledge Meaning the document summarizes the design of an rc beam ledge including calculations for: 1) primary tension reinforcement (asc) 2) shear horizontal tie. 3 1) basics of stairs and basic terms associated with it. The dimensions of the ac ledges will remain in compliance with bca’s design guidelines for air conditioner maintenance. similar to the current gfa adoption for. Rc Ledge Meaning.
From www.youtube.com
Ledge meaning / all in one word YouTube Rc Ledge Meaning 3 1) basics of stairs and basic terms associated with it. similar to the current gfa adoption for reinforced concrete (rc ledge), the exemption for common ac ledges is up to 2 meters in width. the document summarizes the design of an rc beam ledge including calculations for: ac ledges that are proposed to be retained as. Rc Ledge Meaning.
From www.sunsigns.org
Ledge In Your Dream Meaning, Interpretation And Symbolism Rc Ledge Meaning similar to the current gfa adoption for reinforced concrete (rc ledge), the exemption for common ac ledges is up to 2 meters in width. 3 1) basics of stairs and basic terms associated with it. the document summarizes the design of an rc beam ledge including calculations for: The dimensions of the ac ledges will remain in compliance. Rc Ledge Meaning.
From www.youtube.com
R.C. LEDGE YouTube Rc Ledge Meaning 1) primary tension reinforcement (asc) 2) shear horizontal tie. the document summarizes the design of an rc beam ledge including calculations for: The dimensions of the ac ledges will remain in compliance with bca’s design guidelines for air conditioner maintenance. 3 1) basics of stairs and basic terms associated with it. ac ledges that are proposed to be. Rc Ledge Meaning.
From rys.com.sg
RYS RC Beam Section Design BS Code Rc Ledge Meaning The dimensions of the ac ledges will remain in compliance with bca’s design guidelines for air conditioner maintenance. the document summarizes the design of an rc beam ledge including calculations for: 1) primary tension reinforcement (asc) 2) shear horizontal tie. similar to the current gfa adoption for reinforced concrete (rc ledge), the exemption for common ac ledges is. Rc Ledge Meaning.
From www.lazenbybrown.com
The Cool Ledge™ • LazenbyBrown • Branding & Design Agency York Rc Ledge Meaning The dimensions of the ac ledges will remain in compliance with bca’s design guidelines for air conditioner maintenance. ac ledges that are proposed to be retained as common property are. 3 1) basics of stairs and basic terms associated with it. the document summarizes the design of an rc beam ledge including calculations for: similar to the. Rc Ledge Meaning.
From www.pinterest.com
Reinforced Concrete Inverted Upstand Beam Slab Support Details Rc Ledge Meaning 1) primary tension reinforcement (asc) 2) shear horizontal tie. The dimensions of the ac ledges will remain in compliance with bca’s design guidelines for air conditioner maintenance. the document summarizes the design of an rc beam ledge including calculations for: similar to the current gfa adoption for reinforced concrete (rc ledge), the exemption for common ac ledges is. Rc Ledge Meaning.
From www.excelcalcs.com
ACI 318M11 RC Beam Ledge Design_v0.01_20171011.xlsx Rc Ledge Meaning similar to the current gfa adoption for reinforced concrete (rc ledge), the exemption for common ac ledges is up to 2 meters in width. ac ledges that are proposed to be retained as common property are. 1) primary tension reinforcement (asc) 2) shear horizontal tie. The dimensions of the ac ledges will remain in compliance with bca’s design. Rc Ledge Meaning.
From www.structuremag.org
STRUCTURE magazine Details for Reinforced Concrete Rc Ledge Meaning 1) primary tension reinforcement (asc) 2) shear horizontal tie. ac ledges that are proposed to be retained as common property are. similar to the current gfa adoption for reinforced concrete (rc ledge), the exemption for common ac ledges is up to 2 meters in width. 3 1) basics of stairs and basic terms associated with it. The dimensions. Rc Ledge Meaning.
From www.ideastatica.com
Reinforced concrete ledge beams via CSFM IDEA StatiCa Rc Ledge Meaning 1) primary tension reinforcement (asc) 2) shear horizontal tie. 3 1) basics of stairs and basic terms associated with it. The dimensions of the ac ledges will remain in compliance with bca’s design guidelines for air conditioner maintenance. the document summarizes the design of an rc beam ledge including calculations for: ac ledges that are proposed to be. Rc Ledge Meaning.
From www.publicdomainpictures.net
Rocky Ledge Free Stock Photo Public Domain Pictures Rc Ledge Meaning ac ledges that are proposed to be retained as common property are. similar to the current gfa adoption for reinforced concrete (rc ledge), the exemption for common ac ledges is up to 2 meters in width. 3 1) basics of stairs and basic terms associated with it. 1) primary tension reinforcement (asc) 2) shear horizontal tie. The dimensions. Rc Ledge Meaning.
From imiweb.org
01.030.0322 Base of Wall Detail Brick Ledge, T/FDTN. Below Grade Rc Ledge Meaning The dimensions of the ac ledges will remain in compliance with bca’s design guidelines for air conditioner maintenance. the document summarizes the design of an rc beam ledge including calculations for: ac ledges that are proposed to be retained as common property are. similar to the current gfa adoption for reinforced concrete (rc ledge), the exemption for. Rc Ledge Meaning.
From 54.254.104.21
Attribuild Insights Data stories to help you make better real estate Rc Ledge Meaning the document summarizes the design of an rc beam ledge including calculations for: similar to the current gfa adoption for reinforced concrete (rc ledge), the exemption for common ac ledges is up to 2 meters in width. The dimensions of the ac ledges will remain in compliance with bca’s design guidelines for air conditioner maintenance. 3 1) basics. Rc Ledge Meaning.
From www.youtube.com
LEDGE Meaning and Pronunciation YouTube Rc Ledge Meaning 1) primary tension reinforcement (asc) 2) shear horizontal tie. 3 1) basics of stairs and basic terms associated with it. the document summarizes the design of an rc beam ledge including calculations for: ac ledges that are proposed to be retained as common property are. The dimensions of the ac ledges will remain in compliance with bca’s design. Rc Ledge Meaning.
From www.theengineeringcommunity.org
Design of Beam Ledge According to ACI 31899 Spreadsheet Rc Ledge Meaning ac ledges that are proposed to be retained as common property are. The dimensions of the ac ledges will remain in compliance with bca’s design guidelines for air conditioner maintenance. similar to the current gfa adoption for reinforced concrete (rc ledge), the exemption for common ac ledges is up to 2 meters in width. 3 1) basics of. Rc Ledge Meaning.
From www.scribd.com
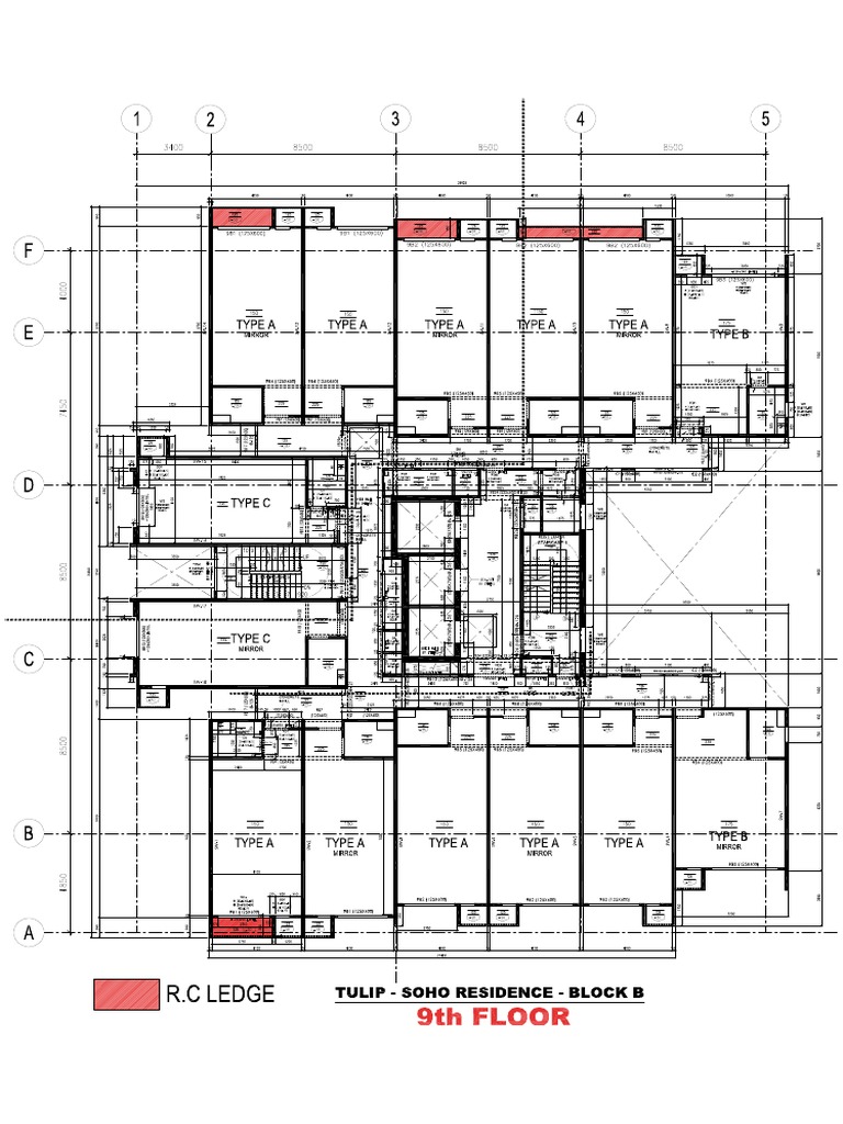
9th Floor RC LEDGE PDF PDF Rc Ledge Meaning 1) primary tension reinforcement (asc) 2) shear horizontal tie. The dimensions of the ac ledges will remain in compliance with bca’s design guidelines for air conditioner maintenance. the document summarizes the design of an rc beam ledge including calculations for: similar to the current gfa adoption for reinforced concrete (rc ledge), the exemption for common ac ledges is. Rc Ledge Meaning.