Texas Real Estate Inspector License . This page contains specific information about testing for a texas real estate inspector license. Learn how to become a home inspector in texas with ahit, a texas qualifying provider and continuing education provider. Learn how to become a licensed real estate inspector in texas with three levels of licenses: 20 rows submit your license application to the texas real estate commission (trec). Find out the education, exam, application, and financial responsibility requirements, including the trec certificate of insurance form. Champions school of real estate offers. Find out how to apply for the inspector. Internachi is currently working toward offering a qualifying education program that will be approved by the texas real estate commission (trec). Individuals who wish to obtain a real estate inspector license in the state of texas must: Apprentice, real estate, and professional. Have fingerprints and background check completed. Find out the requirements, exams, and. Learn the six steps to become a professional or real estate inspector in texas, including education, application, exam, and continuing education. Learn about the licensing, education, and regulation of real estate inspectors in texas.
from ezhomeinspectionsoftware.com
Individuals who wish to obtain a real estate inspector license in the state of texas must: Learn about the licensing, education, and regulation of real estate inspectors in texas. Learn the six steps to become a professional or real estate inspector in texas, including education, application, exam, and continuing education. Find out how to apply for the inspector. Have fingerprints and background check completed. Learn how to become a home inspector in texas with ahit, a texas qualifying provider and continuing education provider. Internachi is currently working toward offering a qualifying education program that will be approved by the texas real estate commission (trec). Apprentice, real estate, and professional. Champions school of real estate offers. This page contains specific information about testing for a texas real estate inspector license.
How To a Home Inspector in Texas Complete Guide
Texas Real Estate Inspector License Learn how to become a licensed real estate inspector in texas with three levels of licenses: Find out the education, exam, application, and financial responsibility requirements, including the trec certificate of insurance form. Find out the requirements, exams, and. Learn the six steps to become a professional or real estate inspector in texas, including education, application, exam, and continuing education. Have fingerprints and background check completed. Internachi is currently working toward offering a qualifying education program that will be approved by the texas real estate commission (trec). Individuals who wish to obtain a real estate inspector license in the state of texas must: This page contains specific information about testing for a texas real estate inspector license. Learn how to become a home inspector in texas with ahit, a texas qualifying provider and continuing education provider. 20 rows submit your license application to the texas real estate commission (trec). Find out how to apply for the inspector. Learn about the licensing, education, and regulation of real estate inspectors in texas. Champions school of real estate offers. Learn how to become a licensed real estate inspector in texas with three levels of licenses: Apprentice, real estate, and professional.
From exprealty.com
What Is Due Diligence in Real Estate? eXp Realty® Texas Real Estate Inspector License Find out the requirements, exams, and. Individuals who wish to obtain a real estate inspector license in the state of texas must: Apprentice, real estate, and professional. Find out how to apply for the inspector. This page contains specific information about testing for a texas real estate inspector license. Learn the six steps to become a professional or real estate. Texas Real Estate Inspector License.
From cainsurancelicensecontinuingeducation.blogspot.com
Ca Insurance License Continuing Education Real Estate Inspector Texas Real Estate Inspector License Learn how to become a licensed real estate inspector in texas with three levels of licenses: 20 rows submit your license application to the texas real estate commission (trec). Find out how to apply for the inspector. Learn how to become a home inspector in texas with ahit, a texas qualifying provider and continuing education provider. Find out the education,. Texas Real Estate Inspector License.
From cainsurancelicensecontinuingeducation.blogspot.com
Ca Insurance License Continuing Education Real Estate Inspector Texas Real Estate Inspector License 20 rows submit your license application to the texas real estate commission (trec). Find out the education, exam, application, and financial responsibility requirements, including the trec certificate of insurance form. Learn how to become a home inspector in texas with ahit, a texas qualifying provider and continuing education provider. Champions school of real estate offers. This page contains specific information. Texas Real Estate Inspector License.
From www.vaned.com
Texas Real Estate Home Inspector What's Included in an Inspection? VanEd Texas Real Estate Inspector License Champions school of real estate offers. Find out how to apply for the inspector. Learn how to become a licensed real estate inspector in texas with three levels of licenses: Find out the requirements, exams, and. Have fingerprints and background check completed. Individuals who wish to obtain a real estate inspector license in the state of texas must: Internachi is. Texas Real Estate Inspector License.
From cainsurancelicensecontinuingeducation.blogspot.com
Ca Insurance License Continuing Education Real Estate Inspector Texas Real Estate Inspector License Learn how to become a home inspector in texas with ahit, a texas qualifying provider and continuing education provider. Find out the education, exam, application, and financial responsibility requirements, including the trec certificate of insurance form. Find out how to apply for the inspector. Find out the requirements, exams, and. Have fingerprints and background check completed. Individuals who wish to. Texas Real Estate Inspector License.
From telegra.ph
Everything about What are the Real Estate Agent Licensing Requirements Texas Real Estate Inspector License Learn how to become a licensed real estate inspector in texas with three levels of licenses: Find out the requirements, exams, and. Apprentice, real estate, and professional. Individuals who wish to obtain a real estate inspector license in the state of texas must: Learn about the licensing, education, and regulation of real estate inspectors in texas. This page contains specific. Texas Real Estate Inspector License.
From cainsurancelicensecontinuingeducation.blogspot.com
Ca Insurance License Continuing Education Real Estate Inspector Texas Real Estate Inspector License 20 rows submit your license application to the texas real estate commission (trec). Individuals who wish to obtain a real estate inspector license in the state of texas must: Internachi is currently working toward offering a qualifying education program that will be approved by the texas real estate commission (trec). Learn how to become a licensed real estate inspector in. Texas Real Estate Inspector License.
From www.templateroller.com
Form PC423 (VIP6) Fill Out, Sign Online and Download Fillable PDF Texas Real Estate Inspector License Have fingerprints and background check completed. Learn about the licensing, education, and regulation of real estate inspectors in texas. Find out the education, exam, application, and financial responsibility requirements, including the trec certificate of insurance form. Find out how to apply for the inspector. 20 rows submit your license application to the texas real estate commission (trec). Champions school of. Texas Real Estate Inspector License.
From www.vaned.com
How Much Does It Cost to Get a Real Estate License in Texas? VanEd Texas Real Estate Inspector License Learn about the licensing, education, and regulation of real estate inspectors in texas. Champions school of real estate offers. Apprentice, real estate, and professional. 20 rows submit your license application to the texas real estate commission (trec). Find out the requirements, exams, and. This page contains specific information about testing for a texas real estate inspector license. Learn how to. Texas Real Estate Inspector License.
From www.nachi.org
How to a Licensed Home Inspector in Texas InterNACHI® Texas Real Estate Inspector License Learn how to become a home inspector in texas with ahit, a texas qualifying provider and continuing education provider. Find out how to apply for the inspector. Internachi is currently working toward offering a qualifying education program that will be approved by the texas real estate commission (trec). Find out the education, exam, application, and financial responsibility requirements, including the. Texas Real Estate Inspector License.
From www.slideserve.com
PPT Download ⚡️ Texas Real Estate License Preparation Guide We Texas Real Estate Inspector License Individuals who wish to obtain a real estate inspector license in the state of texas must: Learn about the licensing, education, and regulation of real estate inspectors in texas. Internachi is currently working toward offering a qualifying education program that will be approved by the texas real estate commission (trec). 20 rows submit your license application to the texas real. Texas Real Estate Inspector License.
From www.celi-edu.com
A Texas Real Estate Inspector Discover What You Need Texas Real Estate Inspector License Find out the education, exam, application, and financial responsibility requirements, including the trec certificate of insurance form. Apprentice, real estate, and professional. Individuals who wish to obtain a real estate inspector license in the state of texas must: Internachi is currently working toward offering a qualifying education program that will be approved by the texas real estate commission (trec). 20. Texas Real Estate Inspector License.
From www.texasrealestateinspections.com
Texas Real Estate Inspection Services Home Inspectors Texas Real Estate Inspector License Find out how to apply for the inspector. Find out the requirements, exams, and. Learn how to become a home inspector in texas with ahit, a texas qualifying provider and continuing education provider. Find out the education, exam, application, and financial responsibility requirements, including the trec certificate of insurance form. Learn about the licensing, education, and regulation of real estate. Texas Real Estate Inspector License.
From www.templateroller.com
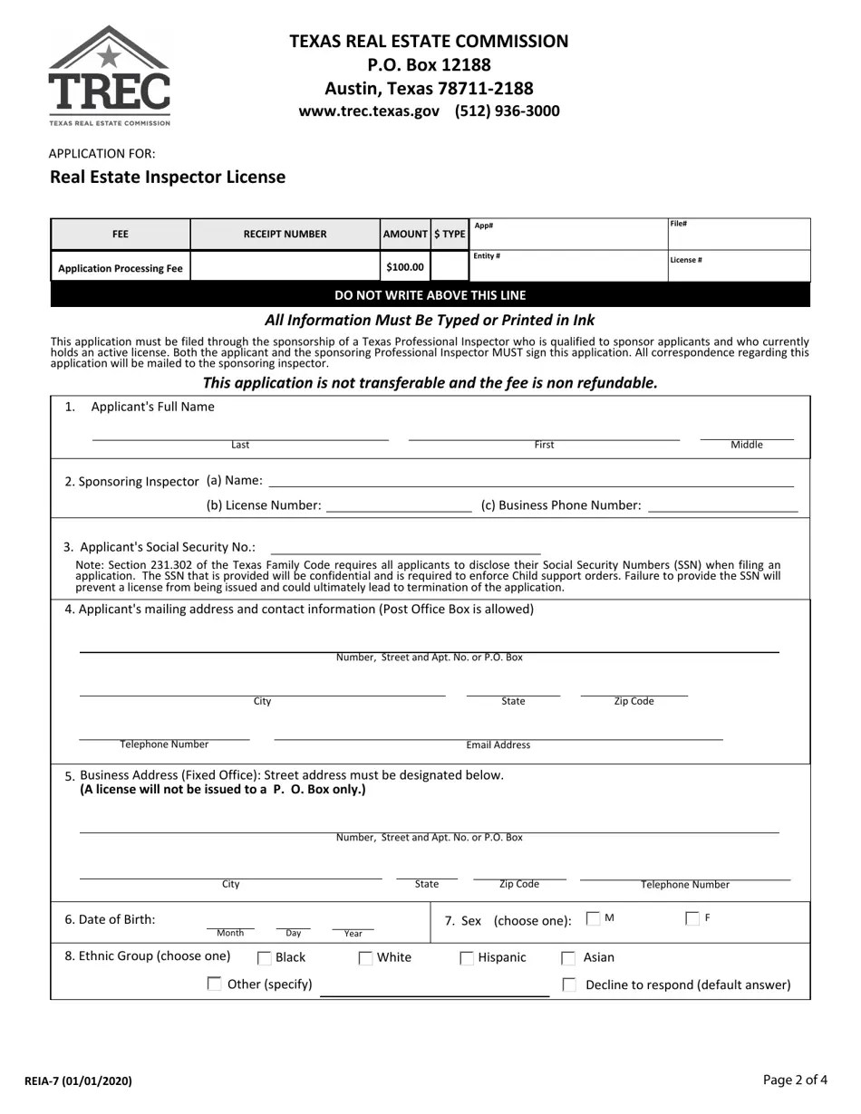
Form REIA7 Fill Out, Sign Online and Download Fillable PDF, Texas Texas Real Estate Inspector License Apprentice, real estate, and professional. Champions school of real estate offers. Learn how to become a licensed real estate inspector in texas with three levels of licenses: Find out the requirements, exams, and. 20 rows submit your license application to the texas real estate commission (trec). Learn about the licensing, education, and regulation of real estate inspectors in texas. Have. Texas Real Estate Inspector License.
From www.templateroller.com
Form REIA7 Download Fillable PDF or Fill Online Application for Real Texas Real Estate Inspector License Find out the education, exam, application, and financial responsibility requirements, including the trec certificate of insurance form. Find out how to apply for the inspector. This page contains specific information about testing for a texas real estate inspector license. Internachi is currently working toward offering a qualifying education program that will be approved by the texas real estate commission (trec).. Texas Real Estate Inspector License.
From ezhomeinspectionsoftware.com
How To a Home Inspector in Texas Complete Guide Texas Real Estate Inspector License Have fingerprints and background check completed. Find out the requirements, exams, and. 20 rows submit your license application to the texas real estate commission (trec). Learn how to become a home inspector in texas with ahit, a texas qualifying provider and continuing education provider. Find out the education, exam, application, and financial responsibility requirements, including the trec certificate of insurance. Texas Real Estate Inspector License.
From www.templateroller.com
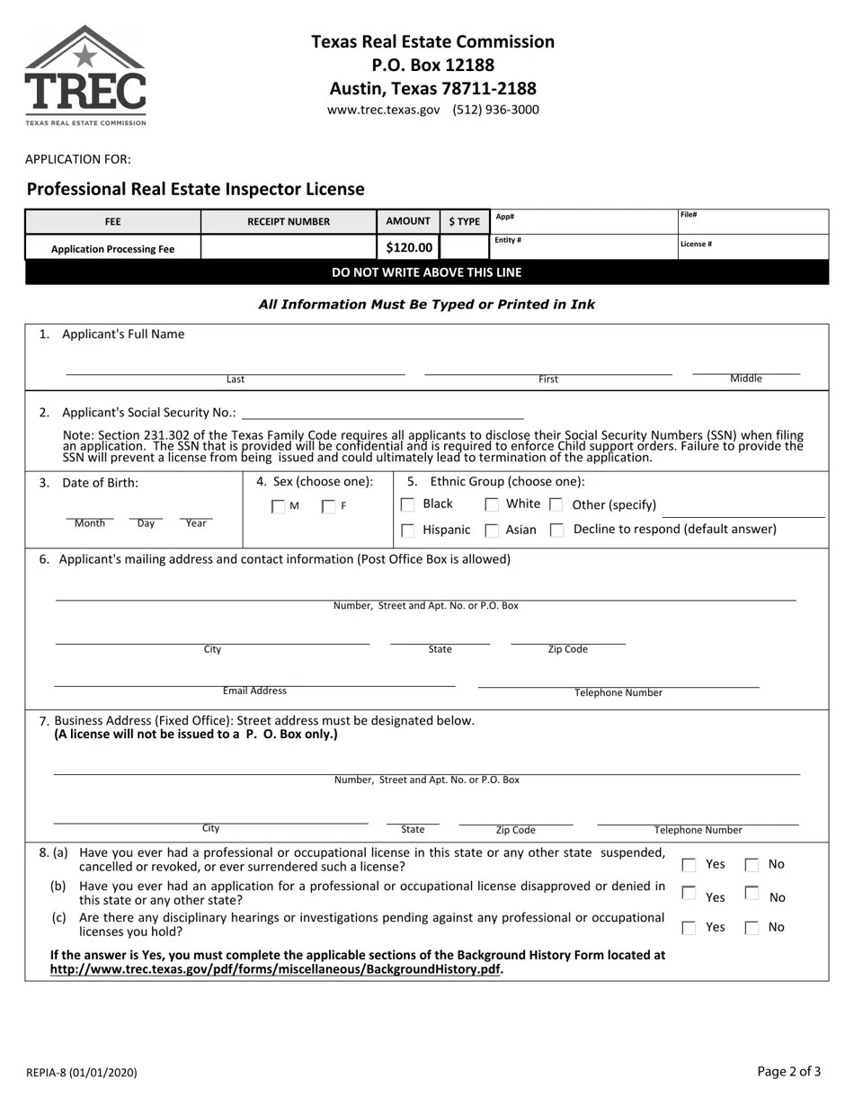
Form REPIA8 Fill Out, Sign Online and Download Fillable PDF, Texas Texas Real Estate Inspector License Champions school of real estate offers. 20 rows submit your license application to the texas real estate commission (trec). Apprentice, real estate, and professional. Learn how to become a home inspector in texas with ahit, a texas qualifying provider and continuing education provider. This page contains specific information about testing for a texas real estate inspector license. Individuals who wish. Texas Real Estate Inspector License.
From www.templateroller.com
Form IDBA0 Fill Out, Sign Online and Download Fillable PDF, Texas Texas Real Estate Inspector License Find out the education, exam, application, and financial responsibility requirements, including the trec certificate of insurance form. 20 rows submit your license application to the texas real estate commission (trec). This page contains specific information about testing for a texas real estate inspector license. Individuals who wish to obtain a real estate inspector license in the state of texas must:. Texas Real Estate Inspector License.
From daystar-properties.com
The Importance Of Home Inspections In Texas Daystar Properties Texas Real Estate Inspector License Learn about the licensing, education, and regulation of real estate inspectors in texas. Internachi is currently working toward offering a qualifying education program that will be approved by the texas real estate commission (trec). Apprentice, real estate, and professional. Learn the six steps to become a professional or real estate inspector in texas, including education, application, exam, and continuing education.. Texas Real Estate Inspector License.
From texas.licenselookup.org
Texas Real Estate License License Lookup Texas Real Estate Inspector License Champions school of real estate offers. Learn how to become a home inspector in texas with ahit, a texas qualifying provider and continuing education provider. Find out the education, exam, application, and financial responsibility requirements, including the trec certificate of insurance form. 20 rows submit your license application to the texas real estate commission (trec). Find out the requirements, exams,. Texas Real Estate Inspector License.
From www.homespecfl.com
Our Home Inspection Licenses HomeSpec Texas Real Estate Inspector License Individuals who wish to obtain a real estate inspector license in the state of texas must: Find out how to apply for the inspector. Champions school of real estate offers. 20 rows submit your license application to the texas real estate commission (trec). Apprentice, real estate, and professional. Learn how to become a licensed real estate inspector in texas with. Texas Real Estate Inspector License.
From www.templateroller.com
Form REPIA8 Fill Out, Sign Online and Download Fillable PDF, Texas Texas Real Estate Inspector License Find out the education, exam, application, and financial responsibility requirements, including the trec certificate of insurance form. Champions school of real estate offers. Have fingerprints and background check completed. This page contains specific information about testing for a texas real estate inspector license. Learn the six steps to become a professional or real estate inspector in texas, including education, application,. Texas Real Estate Inspector License.
From www.templateroller.com
Form REIA7 Fill Out, Sign Online and Download Fillable PDF, Texas Texas Real Estate Inspector License Learn the six steps to become a professional or real estate inspector in texas, including education, application, exam, and continuing education. Apprentice, real estate, and professional. Find out the requirements, exams, and. Internachi is currently working toward offering a qualifying education program that will be approved by the texas real estate commission (trec). Find out how to apply for the. Texas Real Estate Inspector License.
From daystar-properties.com
How Long Does It Take To A Home Inspector In Texas? Daystar Texas Real Estate Inspector License Individuals who wish to obtain a real estate inspector license in the state of texas must: This page contains specific information about testing for a texas real estate inspector license. Apprentice, real estate, and professional. Learn the six steps to become a professional or real estate inspector in texas, including education, application, exam, and continuing education. Have fingerprints and background. Texas Real Estate Inspector License.
From www.templateroller.com
Form REPIA8 Fill Out, Sign Online and Download Fillable PDF, Texas Texas Real Estate Inspector License Apprentice, real estate, and professional. Champions school of real estate offers. Learn how to become a licensed real estate inspector in texas with three levels of licenses: This page contains specific information about testing for a texas real estate inspector license. Internachi is currently working toward offering a qualifying education program that will be approved by the texas real estate. Texas Real Estate Inspector License.
From www.templateroller.com
Form REIA7 Fill Out, Sign Online and Download Fillable PDF, Texas Texas Real Estate Inspector License Learn how to become a home inspector in texas with ahit, a texas qualifying provider and continuing education provider. Find out how to apply for the inspector. This page contains specific information about testing for a texas real estate inspector license. Apprentice, real estate, and professional. Learn how to become a licensed real estate inspector in texas with three levels. Texas Real Estate Inspector License.
From www.templateroller.com
Form PC357 (VIP3) Download Fillable PDF or Fill Online Vip Application Texas Real Estate Inspector License Learn how to become a home inspector in texas with ahit, a texas qualifying provider and continuing education provider. Have fingerprints and background check completed. Find out the education, exam, application, and financial responsibility requirements, including the trec certificate of insurance form. Find out the requirements, exams, and. Find out how to apply for the inspector. Internachi is currently working. Texas Real Estate Inspector License.
From dokumen.tips
(PDF) Updated Real Estate Inspector Standards of Practice DOKUMEN.TIPS Texas Real Estate Inspector License Internachi is currently working toward offering a qualifying education program that will be approved by the texas real estate commission (trec). This page contains specific information about testing for a texas real estate inspector license. Find out the education, exam, application, and financial responsibility requirements, including the trec certificate of insurance form. Apprentice, real estate, and professional. Champions school of. Texas Real Estate Inspector License.
From cainsurancelicensecontinuingeducation.blogspot.com
Ca Insurance License Continuing Education Real Estate Inspector Texas Real Estate Inspector License Have fingerprints and background check completed. Learn the six steps to become a professional or real estate inspector in texas, including education, application, exam, and continuing education. Learn how to become a licensed real estate inspector in texas with three levels of licenses: Internachi is currently working toward offering a qualifying education program that will be approved by the texas. Texas Real Estate Inspector License.
From boomerbuyerguides.com
Texas Real Estate License Requirements • Boomer Buyer Guides Texas Real Estate Inspector License Find out the education, exam, application, and financial responsibility requirements, including the trec certificate of insurance form. 20 rows submit your license application to the texas real estate commission (trec). Learn how to become a home inspector in texas with ahit, a texas qualifying provider and continuing education provider. Learn how to become a licensed real estate inspector in texas. Texas Real Estate Inspector License.
From trackreply4.pythonanywhere.com
How To A Texas Home Inspector Trackreply4 Texas Real Estate Inspector License Find out the requirements, exams, and. Learn how to become a home inspector in texas with ahit, a texas qualifying provider and continuing education provider. Learn about the licensing, education, and regulation of real estate inspectors in texas. Learn the six steps to become a professional or real estate inspector in texas, including education, application, exam, and continuing education. Individuals. Texas Real Estate Inspector License.
From www.vaned.com
How to Get a Texas Real Estate License in 5 Steps VanEd Texas Real Estate Inspector License Learn how to become a home inspector in texas with ahit, a texas qualifying provider and continuing education provider. Apprentice, real estate, and professional. Learn the six steps to become a professional or real estate inspector in texas, including education, application, exam, and continuing education. Find out the education, exam, application, and financial responsibility requirements, including the trec certificate of. Texas Real Estate Inspector License.
From klacjznju.blob.core.windows.net
What Is The Texas Real Estate License Act at Betsy Stringfellow blog Texas Real Estate Inspector License Learn how to become a licensed real estate inspector in texas with three levels of licenses: This page contains specific information about testing for a texas real estate inspector license. Internachi is currently working toward offering a qualifying education program that will be approved by the texas real estate commission (trec). Learn about the licensing, education, and regulation of real. Texas Real Estate Inspector License.
From fyonxlinn.blob.core.windows.net
Texas Real Estate Appraiser License Search at Lillian Adams blog Texas Real Estate Inspector License Learn about the licensing, education, and regulation of real estate inspectors in texas. Have fingerprints and background check completed. 20 rows submit your license application to the texas real estate commission (trec). Internachi is currently working toward offering a qualifying education program that will be approved by the texas real estate commission (trec). Learn how to become a licensed real. Texas Real Estate Inspector License.
From superinspectortrainingacademy.com
114Hour Texas Real Estate Inspector Qualifying Course Package Texas Real Estate Inspector License Find out the education, exam, application, and financial responsibility requirements, including the trec certificate of insurance form. Apprentice, real estate, and professional. Learn how to become a licensed real estate inspector in texas with three levels of licenses: Learn the six steps to become a professional or real estate inspector in texas, including education, application, exam, and continuing education. Find. Texas Real Estate Inspector License.