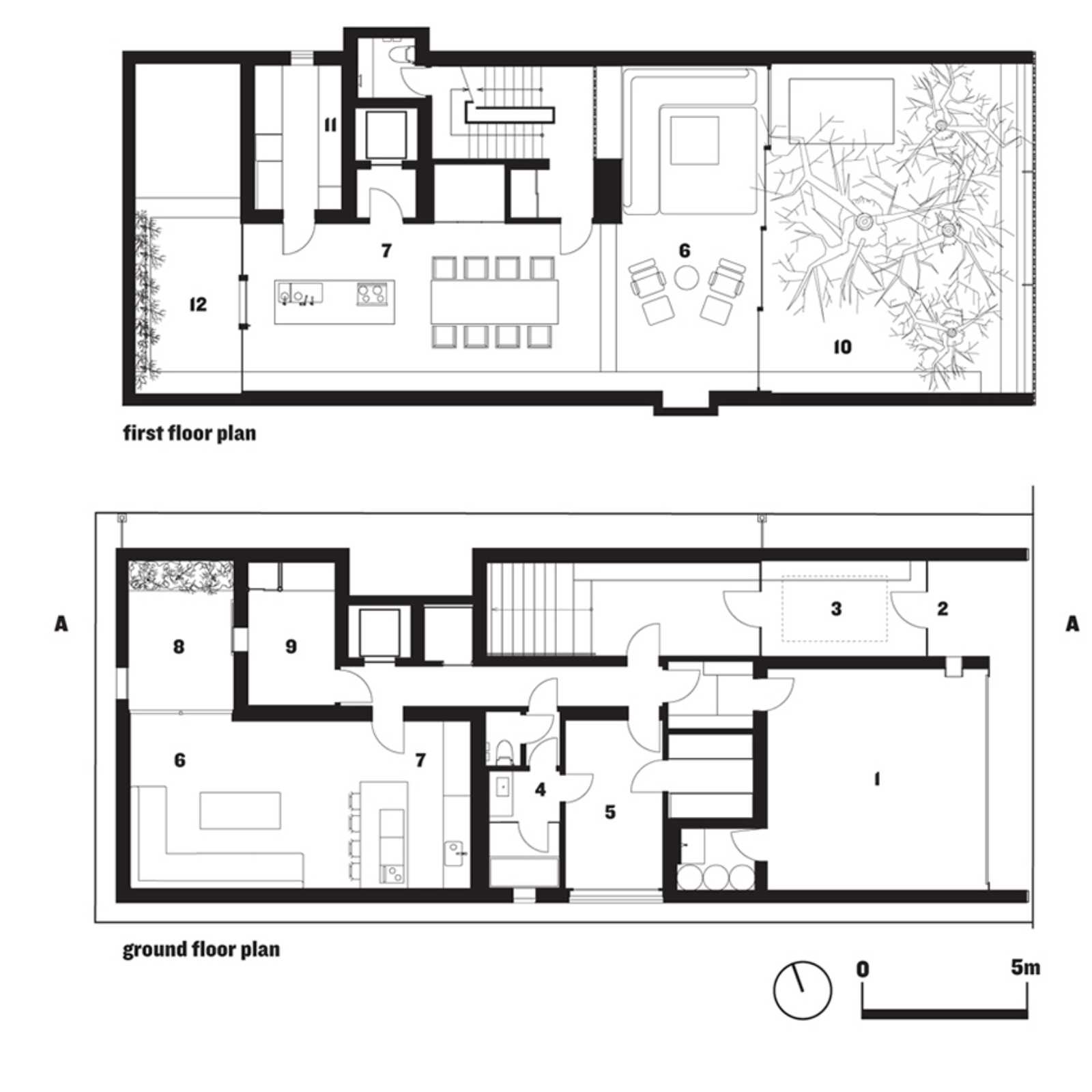
Optical House Japan . Wind chimneys with glassless skylights illuminate care house by hiroshi nakamura & nap in japan The optical glass house animates the street with a dynamic 8.6 x 8.6 metre glass block facade, revealing its material capacity to be both translucent and transparent depending on light conditions. This house is sited among tall buildings in downtown hiroshima, overlooking a street with many passing cars and trams. This house is sited among tall buildings in downtown hiroshima, overlooking a street with many passing cars and trams. Optical glass house, designed by hiroshi nakamura & nap, is sited among tall buildings in downtown hiroshima, overlooking a street with many passing cars and trams, a quite unique situation for designing a private residence. Architecture studio hiroshi nakamura & nap has designed the “optical glass house” in hiroshima, japan, that aims to acoustically protect residents from the main road outside, whilst.
from www.archdaily.com
Optical glass house, designed by hiroshi nakamura & nap, is sited among tall buildings in downtown hiroshima, overlooking a street with many passing cars and trams, a quite unique situation for designing a private residence. The optical glass house animates the street with a dynamic 8.6 x 8.6 metre glass block facade, revealing its material capacity to be both translucent and transparent depending on light conditions. This house is sited among tall buildings in downtown hiroshima, overlooking a street with many passing cars and trams. Architecture studio hiroshi nakamura & nap has designed the “optical glass house” in hiroshima, japan, that aims to acoustically protect residents from the main road outside, whilst. This house is sited among tall buildings in downtown hiroshima, overlooking a street with many passing cars and trams. Wind chimneys with glassless skylights illuminate care house by hiroshi nakamura & nap in japan
Optical Glass House / Hiroshi Nakamura & NAP ArchDaily
Optical House Japan Architecture studio hiroshi nakamura & nap has designed the “optical glass house” in hiroshima, japan, that aims to acoustically protect residents from the main road outside, whilst. The optical glass house animates the street with a dynamic 8.6 x 8.6 metre glass block facade, revealing its material capacity to be both translucent and transparent depending on light conditions. Optical glass house, designed by hiroshi nakamura & nap, is sited among tall buildings in downtown hiroshima, overlooking a street with many passing cars and trams, a quite unique situation for designing a private residence. This house is sited among tall buildings in downtown hiroshima, overlooking a street with many passing cars and trams. Architecture studio hiroshi nakamura & nap has designed the “optical glass house” in hiroshima, japan, that aims to acoustically protect residents from the main road outside, whilst. This house is sited among tall buildings in downtown hiroshima, overlooking a street with many passing cars and trams. Wind chimneys with glassless skylights illuminate care house by hiroshi nakamura & nap in japan
From www.nakam.info
Optical Glass House Hiroshi Nakamura & NAP Optical House Japan This house is sited among tall buildings in downtown hiroshima, overlooking a street with many passing cars and trams. Optical glass house, designed by hiroshi nakamura & nap, is sited among tall buildings in downtown hiroshima, overlooking a street with many passing cars and trams, a quite unique situation for designing a private residence. Wind chimneys with glassless skylights illuminate. Optical House Japan.
From www.nakam.info
Optical Glass House Hiroshi Nakamura & NAP|中村拓志&NAP建築設計事務所 Optical House Japan Architecture studio hiroshi nakamura & nap has designed the “optical glass house” in hiroshima, japan, that aims to acoustically protect residents from the main road outside, whilst. This house is sited among tall buildings in downtown hiroshima, overlooking a street with many passing cars and trams. The optical glass house animates the street with a dynamic 8.6 x 8.6 metre. Optical House Japan.
From www.milimet.com
Optical Glass House design by Hiroshi Nakamura & NAP Optical House Japan Wind chimneys with glassless skylights illuminate care house by hiroshi nakamura & nap in japan The optical glass house animates the street with a dynamic 8.6 x 8.6 metre glass block facade, revealing its material capacity to be both translucent and transparent depending on light conditions. Architecture studio hiroshi nakamura & nap has designed the “optical glass house” in hiroshima,. Optical House Japan.
From www.pinterest.jp
Optical Glass House Hiroshi Nakamura & NAP Glass house, House Optical House Japan Wind chimneys with glassless skylights illuminate care house by hiroshi nakamura & nap in japan Architecture studio hiroshi nakamura & nap has designed the “optical glass house” in hiroshima, japan, that aims to acoustically protect residents from the main road outside, whilst. Optical glass house, designed by hiroshi nakamura & nap, is sited among tall buildings in downtown hiroshima, overlooking. Optical House Japan.
From www.nakam.info
Optical Glass House Hiroshi Nakamura & NAP|中村拓志&NAP建築設計事務所 Optical House Japan This house is sited among tall buildings in downtown hiroshima, overlooking a street with many passing cars and trams. Optical glass house, designed by hiroshi nakamura & nap, is sited among tall buildings in downtown hiroshima, overlooking a street with many passing cars and trams, a quite unique situation for designing a private residence. This house is sited among tall. Optical House Japan.
From www.nakam.info
Optical Glass House Hiroshi Nakamura & NAP|中村拓志&NAP建築設計事務所 Optical House Japan This house is sited among tall buildings in downtown hiroshima, overlooking a street with many passing cars and trams. This house is sited among tall buildings in downtown hiroshima, overlooking a street with many passing cars and trams. Wind chimneys with glassless skylights illuminate care house by hiroshi nakamura & nap in japan The optical glass house animates the street. Optical House Japan.
From www.techeblog.com
Unique Stairway House in Japan Looks Like an Optical Illusion TechEBlog Optical House Japan This house is sited among tall buildings in downtown hiroshima, overlooking a street with many passing cars and trams. This house is sited among tall buildings in downtown hiroshima, overlooking a street with many passing cars and trams. The optical glass house animates the street with a dynamic 8.6 x 8.6 metre glass block facade, revealing its material capacity to. Optical House Japan.
From aasarchitecture.com
OPTICAL GLASS HOUSE BY HIROSHI NAKAMURA & NAP ARCHITECTS aasarchitecture Optical House Japan Architecture studio hiroshi nakamura & nap has designed the “optical glass house” in hiroshima, japan, that aims to acoustically protect residents from the main road outside, whilst. This house is sited among tall buildings in downtown hiroshima, overlooking a street with many passing cars and trams. Wind chimneys with glassless skylights illuminate care house by hiroshi nakamura & nap in. Optical House Japan.
From www.metalocus.es
[II] Optical Glass House by Hiroshi Nakamura & NAP The Strength of Optical House Japan Optical glass house, designed by hiroshi nakamura & nap, is sited among tall buildings in downtown hiroshima, overlooking a street with many passing cars and trams, a quite unique situation for designing a private residence. Architecture studio hiroshi nakamura & nap has designed the “optical glass house” in hiroshima, japan, that aims to acoustically protect residents from the main road. Optical House Japan.
From www.flickriver.com
Optical Glass House, Hiroshima, Japan a photo on Flickriver Optical House Japan The optical glass house animates the street with a dynamic 8.6 x 8.6 metre glass block facade, revealing its material capacity to be both translucent and transparent depending on light conditions. This house is sited among tall buildings in downtown hiroshima, overlooking a street with many passing cars and trams. This house is sited among tall buildings in downtown hiroshima,. Optical House Japan.
From www.archdaily.com
Optical Glass House / Hiroshi Nakamura & NAP ArchDaily Optical House Japan Architecture studio hiroshi nakamura & nap has designed the “optical glass house” in hiroshima, japan, that aims to acoustically protect residents from the main road outside, whilst. Optical glass house, designed by hiroshi nakamura & nap, is sited among tall buildings in downtown hiroshima, overlooking a street with many passing cars and trams, a quite unique situation for designing a. Optical House Japan.
From www.nakam.info
Optical Glass House Hiroshi Nakamura & NAP|中村拓志&NAP建築設計事務所 Optical House Japan Wind chimneys with glassless skylights illuminate care house by hiroshi nakamura & nap in japan The optical glass house animates the street with a dynamic 8.6 x 8.6 metre glass block facade, revealing its material capacity to be both translucent and transparent depending on light conditions. This house is sited among tall buildings in downtown hiroshima, overlooking a street with. Optical House Japan.
From www.archdaily.com
Optical Glass House / Hiroshi Nakamura & NAP ArchDaily Optical House Japan Optical glass house, designed by hiroshi nakamura & nap, is sited among tall buildings in downtown hiroshima, overlooking a street with many passing cars and trams, a quite unique situation for designing a private residence. This house is sited among tall buildings in downtown hiroshima, overlooking a street with many passing cars and trams. Wind chimneys with glassless skylights illuminate. Optical House Japan.
From www.interiornotes.com
Optical glass house a zen oasis in the heart of Hiroshima Interior Notes Optical House Japan This house is sited among tall buildings in downtown hiroshima, overlooking a street with many passing cars and trams. This house is sited among tall buildings in downtown hiroshima, overlooking a street with many passing cars and trams. The optical glass house animates the street with a dynamic 8.6 x 8.6 metre glass block facade, revealing its material capacity to. Optical House Japan.
From www.metalocus.es
[II] Optical Glass House by Hiroshi Nakamura & NAP METALOCUS Optical House Japan Wind chimneys with glassless skylights illuminate care house by hiroshi nakamura & nap in japan Architecture studio hiroshi nakamura & nap has designed the “optical glass house” in hiroshima, japan, that aims to acoustically protect residents from the main road outside, whilst. This house is sited among tall buildings in downtown hiroshima, overlooking a street with many passing cars and. Optical House Japan.
From aasarchitecture.com
OPTICAL GLASS HOUSE BY HIROSHI NAKAMURA & NAP ARCHITECTS aasarchitecture Optical House Japan This house is sited among tall buildings in downtown hiroshima, overlooking a street with many passing cars and trams. Wind chimneys with glassless skylights illuminate care house by hiroshi nakamura & nap in japan Architecture studio hiroshi nakamura & nap has designed the “optical glass house” in hiroshima, japan, that aims to acoustically protect residents from the main road outside,. Optical House Japan.
From www.nakam.info
Optical Glass House Hiroshi Nakamura & NAP|中村拓志&NAP建築設計事務所 Optical House Japan The optical glass house animates the street with a dynamic 8.6 x 8.6 metre glass block facade, revealing its material capacity to be both translucent and transparent depending on light conditions. Architecture studio hiroshi nakamura & nap has designed the “optical glass house” in hiroshima, japan, that aims to acoustically protect residents from the main road outside, whilst. This house. Optical House Japan.
From www.sohomod.com
Optical Glass House in Hiroshima, Japan by Hiroshi Nakamura & NAP Optical House Japan Optical glass house, designed by hiroshi nakamura & nap, is sited among tall buildings in downtown hiroshima, overlooking a street with many passing cars and trams, a quite unique situation for designing a private residence. The optical glass house animates the street with a dynamic 8.6 x 8.6 metre glass block facade, revealing its material capacity to be both translucent. Optical House Japan.
From www.pinterest.com
A garden enclosed by 6000 glass blocks Optical Glass House by Hiroshi Optical House Japan This house is sited among tall buildings in downtown hiroshima, overlooking a street with many passing cars and trams. Optical glass house, designed by hiroshi nakamura & nap, is sited among tall buildings in downtown hiroshima, overlooking a street with many passing cars and trams, a quite unique situation for designing a private residence. The optical glass house animates the. Optical House Japan.
From www.archdaily.com
Optical Glass House / Hiroshi Nakamura & NAP ArchDaily Optical House Japan Architecture studio hiroshi nakamura & nap has designed the “optical glass house” in hiroshima, japan, that aims to acoustically protect residents from the main road outside, whilst. This house is sited among tall buildings in downtown hiroshima, overlooking a street with many passing cars and trams. This house is sited among tall buildings in downtown hiroshima, overlooking a street with. Optical House Japan.
From www.archdaily.com
Optical Glass House / Hiroshi Nakamura & NAP ArchDaily Optical House Japan The optical glass house animates the street with a dynamic 8.6 x 8.6 metre glass block facade, revealing its material capacity to be both translucent and transparent depending on light conditions. Optical glass house, designed by hiroshi nakamura & nap, is sited among tall buildings in downtown hiroshima, overlooking a street with many passing cars and trams, a quite unique. Optical House Japan.
From retaildesignblog.net
» Optical Glass House by NAP Architects, Hiroshima Japan Optical House Japan Wind chimneys with glassless skylights illuminate care house by hiroshi nakamura & nap in japan Architecture studio hiroshi nakamura & nap has designed the “optical glass house” in hiroshima, japan, that aims to acoustically protect residents from the main road outside, whilst. This house is sited among tall buildings in downtown hiroshima, overlooking a street with many passing cars and. Optical House Japan.
From www.designrulz.com
Optical Glass House by Hiroshi Nakamura & NAP, Japan Optical House Japan Wind chimneys with glassless skylights illuminate care house by hiroshi nakamura & nap in japan The optical glass house animates the street with a dynamic 8.6 x 8.6 metre glass block facade, revealing its material capacity to be both translucent and transparent depending on light conditions. Optical glass house, designed by hiroshi nakamura & nap, is sited among tall buildings. Optical House Japan.
From www.designboom.com
hiroshi nakamura & NAP optical glass house Optical House Japan The optical glass house animates the street with a dynamic 8.6 x 8.6 metre glass block facade, revealing its material capacity to be both translucent and transparent depending on light conditions. Optical glass house, designed by hiroshi nakamura & nap, is sited among tall buildings in downtown hiroshima, overlooking a street with many passing cars and trams, a quite unique. Optical House Japan.
From retaildesignblog.net
» Optical Glass House by NAP Architects, Hiroshima Japan Optical House Japan This house is sited among tall buildings in downtown hiroshima, overlooking a street with many passing cars and trams. This house is sited among tall buildings in downtown hiroshima, overlooking a street with many passing cars and trams. Optical glass house, designed by hiroshi nakamura & nap, is sited among tall buildings in downtown hiroshima, overlooking a street with many. Optical House Japan.
From www.nakam.info
Optical Glass House Hiroshi Nakamura & NAP Optical House Japan Wind chimneys with glassless skylights illuminate care house by hiroshi nakamura & nap in japan Architecture studio hiroshi nakamura & nap has designed the “optical glass house” in hiroshima, japan, that aims to acoustically protect residents from the main road outside, whilst. The optical glass house animates the street with a dynamic 8.6 x 8.6 metre glass block facade, revealing. Optical House Japan.
From aida-architecture.blogspot.com
architecture now and The Future OPTICAL GLASS HOUSE BY HIROSHI Optical House Japan Wind chimneys with glassless skylights illuminate care house by hiroshi nakamura & nap in japan The optical glass house animates the street with a dynamic 8.6 x 8.6 metre glass block facade, revealing its material capacity to be both translucent and transparent depending on light conditions. This house is sited among tall buildings in downtown hiroshima, overlooking a street with. Optical House Japan.
From www.metalocus.es
[II] Optical Glass House by Hiroshi Nakamura & NAP The Strength of Optical House Japan The optical glass house animates the street with a dynamic 8.6 x 8.6 metre glass block facade, revealing its material capacity to be both translucent and transparent depending on light conditions. Optical glass house, designed by hiroshi nakamura & nap, is sited among tall buildings in downtown hiroshima, overlooking a street with many passing cars and trams, a quite unique. Optical House Japan.
From www.youtube.com
Optical glass house, Japan YouTube Optical House Japan This house is sited among tall buildings in downtown hiroshima, overlooking a street with many passing cars and trams. Optical glass house, designed by hiroshi nakamura & nap, is sited among tall buildings in downtown hiroshima, overlooking a street with many passing cars and trams, a quite unique situation for designing a private residence. Wind chimneys with glassless skylights illuminate. Optical House Japan.
From newatlas.com
Hiroshima's Optical Glass House constructed using 6,000 glass bricks Optical House Japan The optical glass house animates the street with a dynamic 8.6 x 8.6 metre glass block facade, revealing its material capacity to be both translucent and transparent depending on light conditions. Wind chimneys with glassless skylights illuminate care house by hiroshi nakamura & nap in japan Architecture studio hiroshi nakamura & nap has designed the “optical glass house” in hiroshima,. Optical House Japan.
From www.architectureartdesigns.com
Optical Glass House by Hiroshi Nakamura & NAP in Hiroshima, Japan Optical House Japan The optical glass house animates the street with a dynamic 8.6 x 8.6 metre glass block facade, revealing its material capacity to be both translucent and transparent depending on light conditions. Wind chimneys with glassless skylights illuminate care house by hiroshi nakamura & nap in japan Architecture studio hiroshi nakamura & nap has designed the “optical glass house” in hiroshima,. Optical House Japan.
From www.archdaily.com
Optical Glass House / Hiroshi Nakamura & NAP ArchDaily Optical House Japan Wind chimneys with glassless skylights illuminate care house by hiroshi nakamura & nap in japan The optical glass house animates the street with a dynamic 8.6 x 8.6 metre glass block facade, revealing its material capacity to be both translucent and transparent depending on light conditions. This house is sited among tall buildings in downtown hiroshima, overlooking a street with. Optical House Japan.
From www.interiornotes.com
Optical glass house a zen oasis in the heart of Hiroshima Interior Notes Optical House Japan The optical glass house animates the street with a dynamic 8.6 x 8.6 metre glass block facade, revealing its material capacity to be both translucent and transparent depending on light conditions. Wind chimneys with glassless skylights illuminate care house by hiroshi nakamura & nap in japan Optical glass house, designed by hiroshi nakamura & nap, is sited among tall buildings. Optical House Japan.
From inhabitat.com
Optical Glass House in Hirochima Is Made From 6000 Glass Bricks Optical House Japan Wind chimneys with glassless skylights illuminate care house by hiroshi nakamura & nap in japan Optical glass house, designed by hiroshi nakamura & nap, is sited among tall buildings in downtown hiroshima, overlooking a street with many passing cars and trams, a quite unique situation for designing a private residence. This house is sited among tall buildings in downtown hiroshima,. Optical House Japan.
From www.flickr.com
Optical Glass House, Hiroshima, Japan 中村拓志, Hiroshi Nakamu… Flickr Optical House Japan The optical glass house animates the street with a dynamic 8.6 x 8.6 metre glass block facade, revealing its material capacity to be both translucent and transparent depending on light conditions. This house is sited among tall buildings in downtown hiroshima, overlooking a street with many passing cars and trams. This house is sited among tall buildings in downtown hiroshima,. Optical House Japan.