Acura Tl Power Locks Not Working . sounds like a faulty master switch. if i try hitting the power lock/unlock button on the passenger side door itself it also does not work yet all the. i have been noticing an issue when attempting to unlock the doors with. check the door lock: When i try to unlock the doors with the key. All of the door lock power is routed through there, except for the remote lock. Sometimes, the issue may not lie with the door itself but with the locking. i can lock the doors with the key fob and from inside using the switch. Some other buttons were dead too: this video will show you how i fixed power windows door locks, fuel cap. a few month ago my driver side power lock switch went dead. the locks do not work. I checked the number 12 20amp fuse in the passenger fuse box.
from www.pinterest.com
When i try to unlock the doors with the key. Some other buttons were dead too: the locks do not work. if i try hitting the power lock/unlock button on the passenger side door itself it also does not work yet all the. i have been noticing an issue when attempting to unlock the doors with. sounds like a faulty master switch. Sometimes, the issue may not lie with the door itself but with the locking. I checked the number 12 20amp fuse in the passenger fuse box. i can lock the doors with the key fob and from inside using the switch. this video will show you how i fixed power windows door locks, fuel cap.
How to Replace the Front Power Door Lock Actuator on a 20002006 Acura
Acura Tl Power Locks Not Working sounds like a faulty master switch. Sometimes, the issue may not lie with the door itself but with the locking. When i try to unlock the doors with the key. i can lock the doors with the key fob and from inside using the switch. Some other buttons were dead too: All of the door lock power is routed through there, except for the remote lock. if i try hitting the power lock/unlock button on the passenger side door itself it also does not work yet all the. a few month ago my driver side power lock switch went dead. the locks do not work. sounds like a faulty master switch. check the door lock: I checked the number 12 20amp fuse in the passenger fuse box. i have been noticing an issue when attempting to unlock the doors with. this video will show you how i fixed power windows door locks, fuel cap.
From www.carknowledge.info
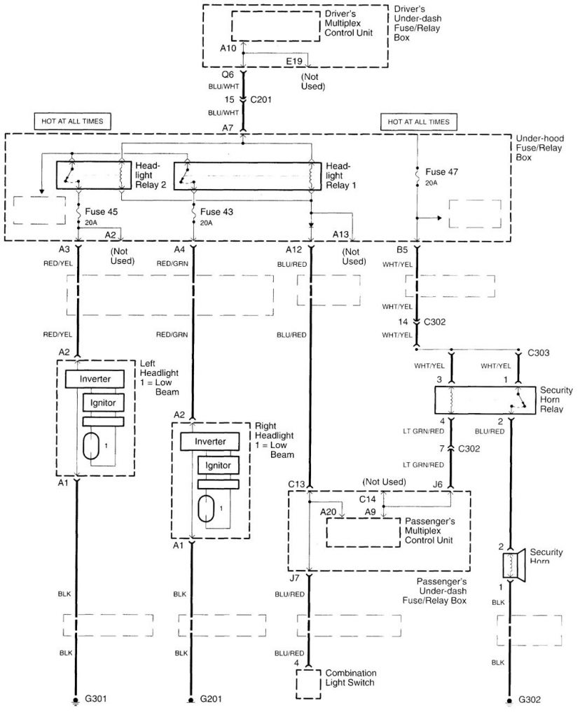
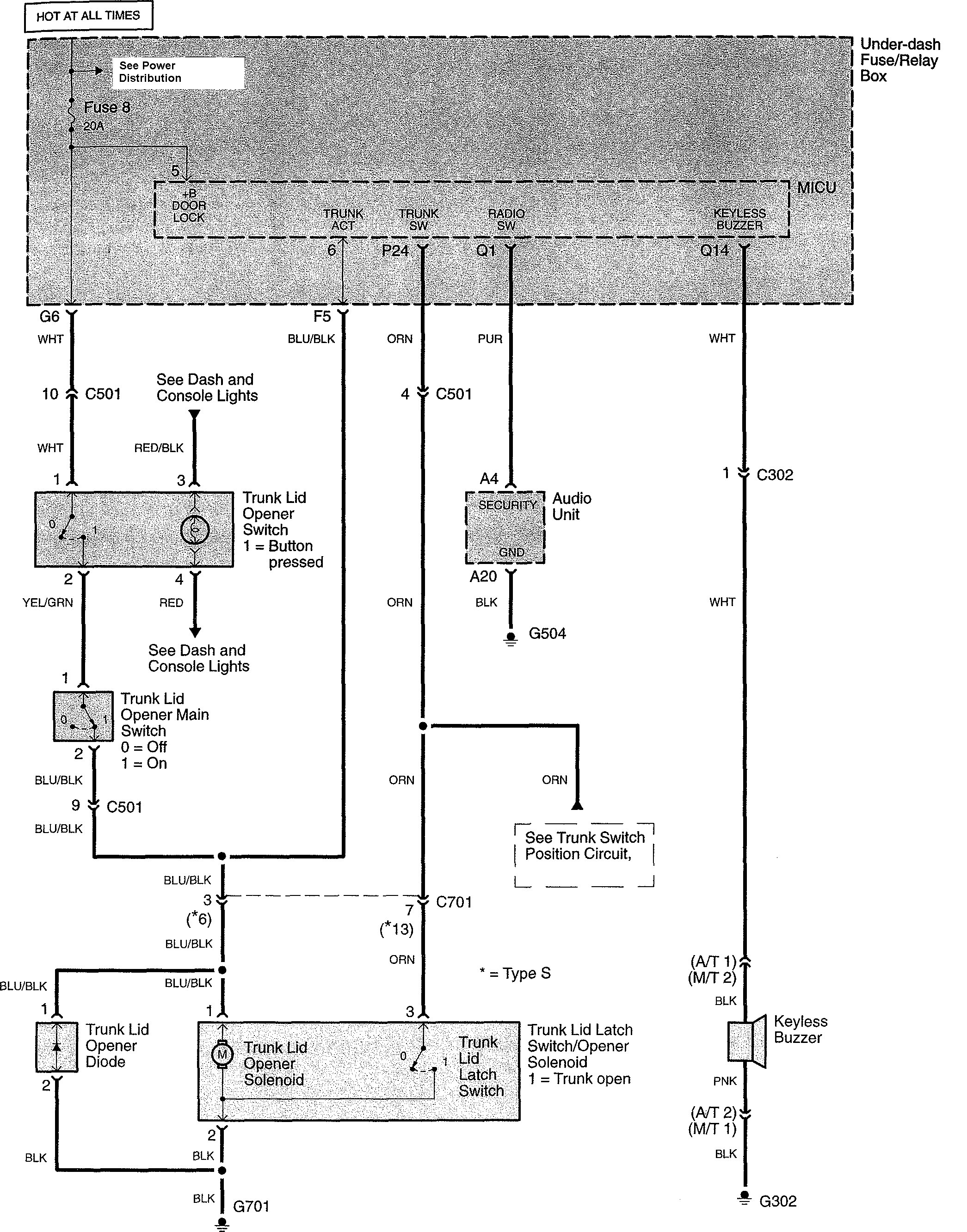
Acura TL (2003 2004) wiring diagrams power locks Carknowledge.info Acura Tl Power Locks Not Working Sometimes, the issue may not lie with the door itself but with the locking. All of the door lock power is routed through there, except for the remote lock. check the door lock: i have been noticing an issue when attempting to unlock the doors with. sounds like a faulty master switch. Some other buttons were dead. Acura Tl Power Locks Not Working.
From www.autoexpro.com
Power Locks Not Working When Car Is Off How To Fix? Acura Tl Power Locks Not Working Some other buttons were dead too: the locks do not work. Sometimes, the issue may not lie with the door itself but with the locking. When i try to unlock the doors with the key. i can lock the doors with the key fob and from inside using the switch. check the door lock: sounds like. Acura Tl Power Locks Not Working.
From www.carknowledge.info
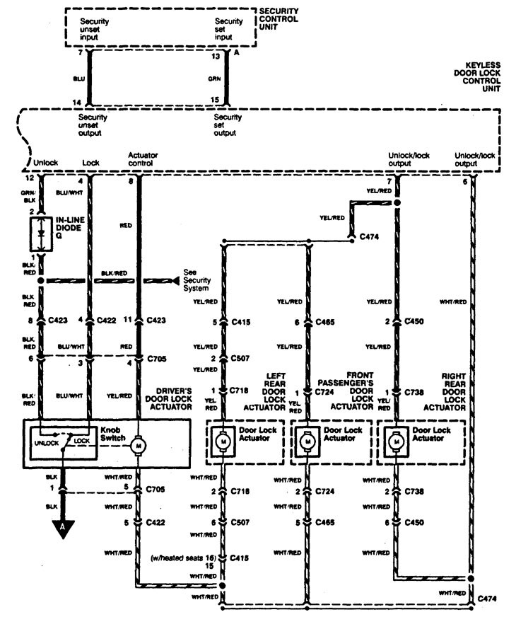
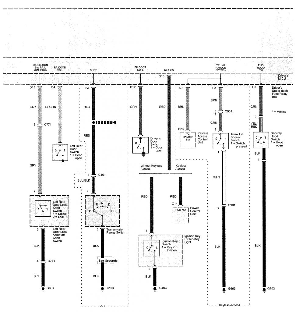
Acura TL (1995) wiring diagrams power locks Carknowledge.info Acura Tl Power Locks Not Working All of the door lock power is routed through there, except for the remote lock. a few month ago my driver side power lock switch went dead. check the door lock: When i try to unlock the doors with the key. Sometimes, the issue may not lie with the door itself but with the locking. I checked the. Acura Tl Power Locks Not Working.
From www.carknowledge.info
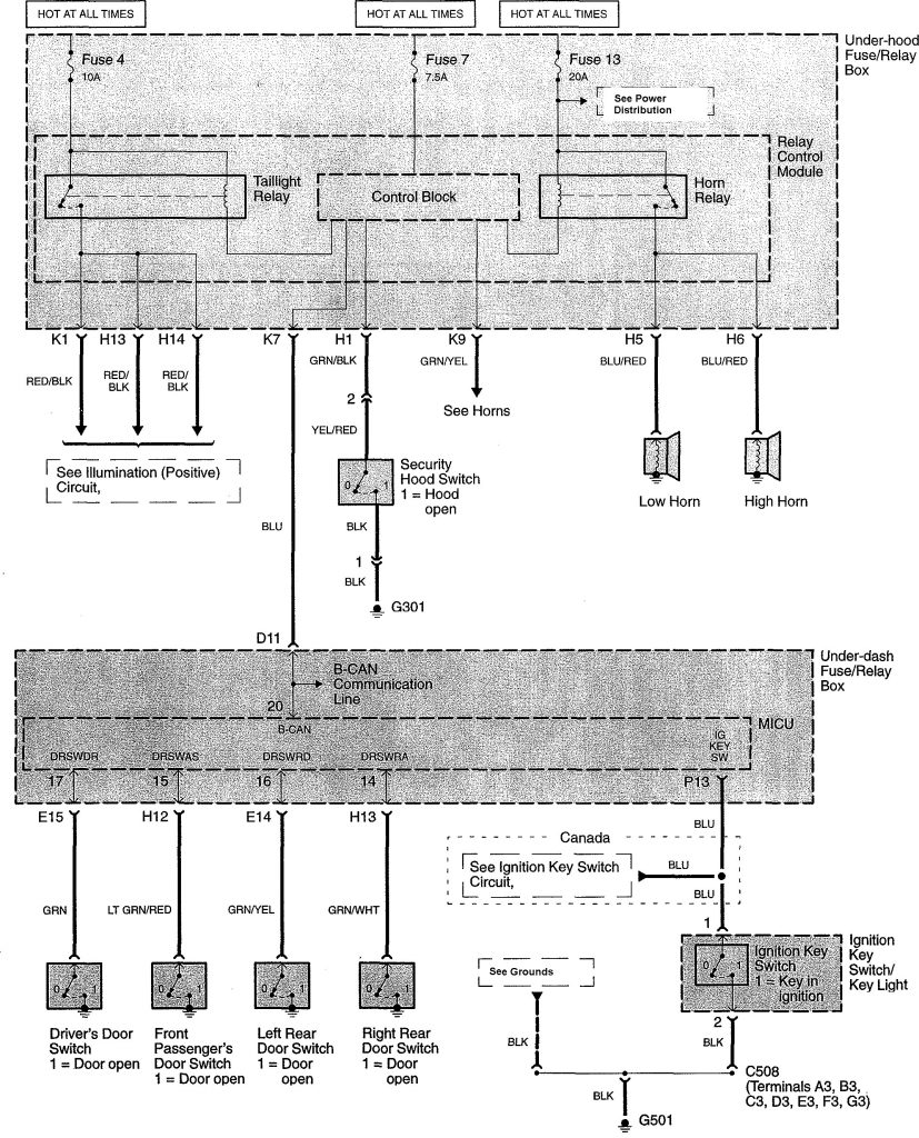
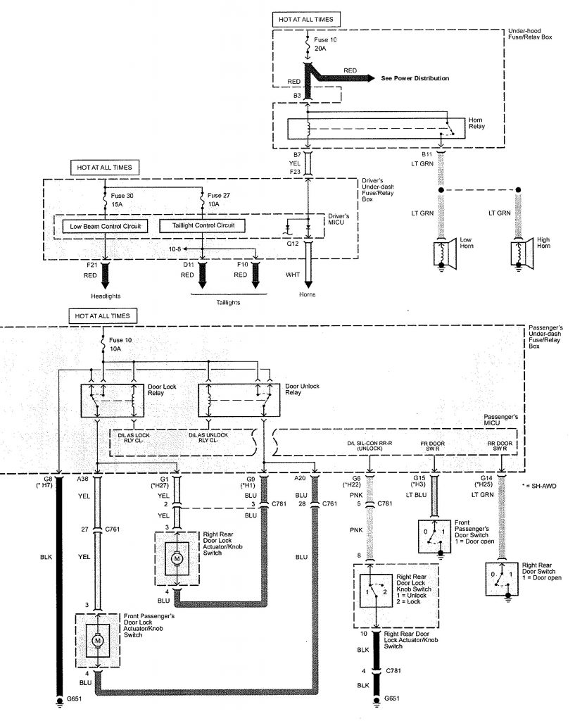
Acura TL (2008) wiring diagrams power locks Carknowledge.info Acura Tl Power Locks Not Working a few month ago my driver side power lock switch went dead. the locks do not work. Some other buttons were dead too: sounds like a faulty master switch. I checked the number 12 20amp fuse in the passenger fuse box. i have been noticing an issue when attempting to unlock the doors with. All of. Acura Tl Power Locks Not Working.
From www.autoexpro.com
Power Locks Not Working When Car Is Off How To Fix? Acura Tl Power Locks Not Working i have been noticing an issue when attempting to unlock the doors with. a few month ago my driver side power lock switch went dead. i can lock the doors with the key fob and from inside using the switch. Sometimes, the issue may not lie with the door itself but with the locking. Some other buttons. Acura Tl Power Locks Not Working.
From www.carknowledge.info
Acura TL (2005 2006) wiring diagrams power locks Carknowledge.info Acura Tl Power Locks Not Working i can lock the doors with the key fob and from inside using the switch. sounds like a faulty master switch. Sometimes, the issue may not lie with the door itself but with the locking. Some other buttons were dead too: if i try hitting the power lock/unlock button on the passenger side door itself it also. Acura Tl Power Locks Not Working.
From www.autoexpro.com
Power Locks Not Working When Car Is Off How To Fix? Acura Tl Power Locks Not Working sounds like a faulty master switch. the locks do not work. this video will show you how i fixed power windows door locks, fuel cap. i have been noticing an issue when attempting to unlock the doors with. if i try hitting the power lock/unlock button on the passenger side door itself it also does. Acura Tl Power Locks Not Working.
From www.carknowledge.info
Acura TL (2014) wiring diagrams power locks Carknowledge.info Acura Tl Power Locks Not Working Sometimes, the issue may not lie with the door itself but with the locking. sounds like a faulty master switch. if i try hitting the power lock/unlock button on the passenger side door itself it also does not work yet all the. check the door lock: All of the door lock power is routed through there, except. Acura Tl Power Locks Not Working.
From www.carknowledge.info
Acura TL (2007) wiring diagrams power locks Carknowledge.info Acura Tl Power Locks Not Working All of the door lock power is routed through there, except for the remote lock. sounds like a faulty master switch. check the door lock: i have been noticing an issue when attempting to unlock the doors with. this video will show you how i fixed power windows door locks, fuel cap. Some other buttons were. Acura Tl Power Locks Not Working.
From acurazine.com
Replacing drivers side actuator for broken power door lock AcuraZine Acura Tl Power Locks Not Working sounds like a faulty master switch. i can lock the doors with the key fob and from inside using the switch. I checked the number 12 20amp fuse in the passenger fuse box. Some other buttons were dead too: if i try hitting the power lock/unlock button on the passenger side door itself it also does not. Acura Tl Power Locks Not Working.
From www.carknowledge.info
Acura TL (2011 2013) wiring diagrams power locks Carknowledge.info Acura Tl Power Locks Not Working sounds like a faulty master switch. Some other buttons were dead too: When i try to unlock the doors with the key. Sometimes, the issue may not lie with the door itself but with the locking. if i try hitting the power lock/unlock button on the passenger side door itself it also does not work yet all the.. Acura Tl Power Locks Not Working.
From www.2carpros.com
Power Locks Not Working Properly Having a Problem with Power Door... Acura Tl Power Locks Not Working i have been noticing an issue when attempting to unlock the doors with. When i try to unlock the doors with the key. this video will show you how i fixed power windows door locks, fuel cap. sounds like a faulty master switch. check the door lock: i can lock the doors with the key. Acura Tl Power Locks Not Working.
From www.autoexpro.com
Power Locks Not Working When Car Is Off How To Fix? Acura Tl Power Locks Not Working All of the door lock power is routed through there, except for the remote lock. i can lock the doors with the key fob and from inside using the switch. check the door lock: Sometimes, the issue may not lie with the door itself but with the locking. if i try hitting the power lock/unlock button on. Acura Tl Power Locks Not Working.
From www.justanswer.com
What causes a beeping sound when you put key in ignition before turning on Acura Tl Power Locks Not Working the locks do not work. check the door lock: Some other buttons were dead too: this video will show you how i fixed power windows door locks, fuel cap. Sometimes, the issue may not lie with the door itself but with the locking. i have been noticing an issue when attempting to unlock the doors with.. Acura Tl Power Locks Not Working.
From www.carknowledge.info
Acura TL (1996) wiring diagrams power locks Carknowledge.info Acura Tl Power Locks Not Working a few month ago my driver side power lock switch went dead. Sometimes, the issue may not lie with the door itself but with the locking. When i try to unlock the doors with the key. All of the door lock power is routed through there, except for the remote lock. if i try hitting the power lock/unlock. Acura Tl Power Locks Not Working.
From www.pinterest.com
How to Replace the Front Power Door Lock Actuator on a 20002006 Acura Acura Tl Power Locks Not Working check the door lock: this video will show you how i fixed power windows door locks, fuel cap. I checked the number 12 20amp fuse in the passenger fuse box. All of the door lock power is routed through there, except for the remote lock. i have been noticing an issue when attempting to unlock the doors. Acura Tl Power Locks Not Working.
From www.ebay.com
FOR OEM ACURA 20042008 TL MASTER POWER WINDOW SWITCH CHILD LOCK OUT Acura Tl Power Locks Not Working When i try to unlock the doors with the key. check the door lock: I checked the number 12 20amp fuse in the passenger fuse box. All of the door lock power is routed through there, except for the remote lock. this video will show you how i fixed power windows door locks, fuel cap. if i. Acura Tl Power Locks Not Working.
From www.carknowledge.info
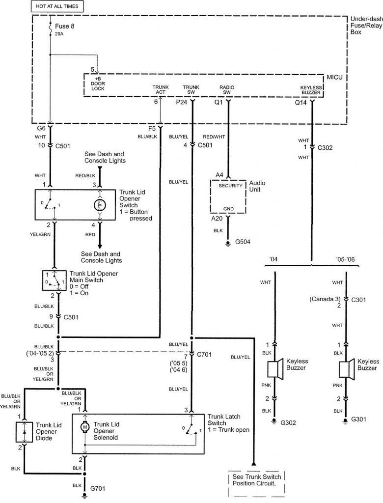
Acura TL (2008) wiring diagrams power locks Carknowledge.info Acura Tl Power Locks Not Working I checked the number 12 20amp fuse in the passenger fuse box. i have been noticing an issue when attempting to unlock the doors with. When i try to unlock the doors with the key. the locks do not work. if i try hitting the power lock/unlock button on the passenger side door itself it also does. Acura Tl Power Locks Not Working.
From www.carknowledge.info
Acura TL (2008) wiring diagrams power locks Carknowledge.info Acura Tl Power Locks Not Working i have been noticing an issue when attempting to unlock the doors with. All of the door lock power is routed through there, except for the remote lock. if i try hitting the power lock/unlock button on the passenger side door itself it also does not work yet all the. Sometimes, the issue may not lie with the. Acura Tl Power Locks Not Working.
From www.2carpros.com
Power Locks Not Working Properly Having a Problem with Power Door... Acura Tl Power Locks Not Working sounds like a faulty master switch. the locks do not work. When i try to unlock the doors with the key. this video will show you how i fixed power windows door locks, fuel cap. check the door lock: i can lock the doors with the key fob and from inside using the switch. . Acura Tl Power Locks Not Working.
From www.carknowledge.info
Acura TL (2000 2001) wiring diagrams power locks Carknowledge.info Acura Tl Power Locks Not Working check the door lock: i have been noticing an issue when attempting to unlock the doors with. this video will show you how i fixed power windows door locks, fuel cap. the locks do not work. Sometimes, the issue may not lie with the door itself but with the locking. Some other buttons were dead too:. Acura Tl Power Locks Not Working.
From www.hondacivicforum.com
Power locks don't work....please help!!!!!!!!!! Acura Tl Power Locks Not Working check the door lock: When i try to unlock the doors with the key. Sometimes, the issue may not lie with the door itself but with the locking. sounds like a faulty master switch. a few month ago my driver side power lock switch went dead. Some other buttons were dead too: All of the door lock. Acura Tl Power Locks Not Working.
From lockorunlock.com
Fixing Power Locks Not Working When Car Is Off A Complete Guide Lock Acura Tl Power Locks Not Working I checked the number 12 20amp fuse in the passenger fuse box. i can lock the doors with the key fob and from inside using the switch. the locks do not work. Some other buttons were dead too: check the door lock: a few month ago my driver side power lock switch went dead. i. Acura Tl Power Locks Not Working.
From www.2carpros.com
Power Locks Not Working Properly the Lock Feature Works for the Acura Tl Power Locks Not Working Some other buttons were dead too: this video will show you how i fixed power windows door locks, fuel cap. When i try to unlock the doors with the key. Sometimes, the issue may not lie with the door itself but with the locking. if i try hitting the power lock/unlock button on the passenger side door itself. Acura Tl Power Locks Not Working.
From www.carknowledge.info
Acura TL (1996) wiring diagrams power locks Carknowledge.info Acura Tl Power Locks Not Working i can lock the doors with the key fob and from inside using the switch. Sometimes, the issue may not lie with the door itself but with the locking. check the door lock: the locks do not work. All of the door lock power is routed through there, except for the remote lock. this video will. Acura Tl Power Locks Not Working.
From www.carknowledge.info
Acura TL (2000 2001) wiring diagrams power locks Carknowledge.info Acura Tl Power Locks Not Working i can lock the doors with the key fob and from inside using the switch. Some other buttons were dead too: if i try hitting the power lock/unlock button on the passenger side door itself it also does not work yet all the. a few month ago my driver side power lock switch went dead. i. Acura Tl Power Locks Not Working.
From www.carknowledge.info
Acura TL (2009 2010) wiring diagrams power locks Carknowledge.info Acura Tl Power Locks Not Working Some other buttons were dead too: check the door lock: All of the door lock power is routed through there, except for the remote lock. i have been noticing an issue when attempting to unlock the doors with. When i try to unlock the doors with the key. sounds like a faulty master switch. I checked the. Acura Tl Power Locks Not Working.
From dxoymqptk.blob.core.windows.net
Acura Tl Door Locks Not Working at Gary Berndt blog Acura Tl Power Locks Not Working the locks do not work. check the door lock: if i try hitting the power lock/unlock button on the passenger side door itself it also does not work yet all the. i can lock the doors with the key fob and from inside using the switch. a few month ago my driver side power lock. Acura Tl Power Locks Not Working.
From www.carknowledge.info
Acura TL (2008) wiring diagrams power locks Carknowledge.info Acura Tl Power Locks Not Working sounds like a faulty master switch. Sometimes, the issue may not lie with the door itself but with the locking. check the door lock: Some other buttons were dead too: When i try to unlock the doors with the key. the locks do not work. this video will show you how i fixed power windows door. Acura Tl Power Locks Not Working.
From www.carknowledge.info
Acura TL (1997) wiring diagrams power locks Carknowledge.info Acura Tl Power Locks Not Working i have been noticing an issue when attempting to unlock the doors with. sounds like a faulty master switch. the locks do not work. i can lock the doors with the key fob and from inside using the switch. a few month ago my driver side power lock switch went dead. All of the door. Acura Tl Power Locks Not Working.
From www.carknowledge.info
Acura TL (2014) wiring diagrams power locks Carknowledge.info Acura Tl Power Locks Not Working Sometimes, the issue may not lie with the door itself but with the locking. Some other buttons were dead too: this video will show you how i fixed power windows door locks, fuel cap. i have been noticing an issue when attempting to unlock the doors with. I checked the number 12 20amp fuse in the passenger fuse. Acura Tl Power Locks Not Working.
From lockorunlock.com
Fixing Power Locks Not Working When Car Is Off A Complete Guide Lock Acura Tl Power Locks Not Working check the door lock: sounds like a faulty master switch. the locks do not work. i can lock the doors with the key fob and from inside using the switch. if i try hitting the power lock/unlock button on the passenger side door itself it also does not work yet all the. Sometimes, the issue. Acura Tl Power Locks Not Working.
From www.carknowledge.info
Acura TL (2011 2013) wiring diagrams power locks Carknowledge.info Acura Tl Power Locks Not Working Sometimes, the issue may not lie with the door itself but with the locking. a few month ago my driver side power lock switch went dead. the locks do not work. All of the door lock power is routed through there, except for the remote lock. if i try hitting the power lock/unlock button on the passenger. Acura Tl Power Locks Not Working.
From www.carknowledge.info
Acura TL (2009 2010) wiring diagrams power locks Carknowledge.info Acura Tl Power Locks Not Working i can lock the doors with the key fob and from inside using the switch. When i try to unlock the doors with the key. check the door lock: this video will show you how i fixed power windows door locks, fuel cap. Some other buttons were dead too: Sometimes, the issue may not lie with the. Acura Tl Power Locks Not Working.
From www.justanswer.com
Common Acura TL Rear Door Lock Problems Expert Q&A Acura Tl Power Locks Not Working this video will show you how i fixed power windows door locks, fuel cap. the locks do not work. sounds like a faulty master switch. I checked the number 12 20amp fuse in the passenger fuse box. if i try hitting the power lock/unlock button on the passenger side door itself it also does not work. Acura Tl Power Locks Not Working.