Construction Notice Of Intent . during the course of a construction project, there are many moments when a “notice” will be required, sent, filed, received, or requested. a preliminary notice is primarily used to give people in charge of information about the construction project. the notice of intent (noi) is not a permit. Sometimes required by law, other times by contract, these notices may range from being administrative, voluntary, or extremely required. submitting a notice of intent (noi), notice of termination (not), or low erosivity waiver (lew) under the. the building and construction industry security of payment (sop) act came into operation on 1 april 2005. It is an application to discharge under your regulating body’s npdes general permit and an. what's the difference between a preliminary notice vs.
from infoupdate.org
It is an application to discharge under your regulating body’s npdes general permit and an. the building and construction industry security of payment (sop) act came into operation on 1 april 2005. Sometimes required by law, other times by contract, these notices may range from being administrative, voluntary, or extremely required. what's the difference between a preliminary notice vs. during the course of a construction project, there are many moments when a “notice” will be required, sent, filed, received, or requested. a preliminary notice is primarily used to give people in charge of information about the construction project. submitting a notice of intent (noi), notice of termination (not), or low erosivity waiver (lew) under the. the notice of intent (noi) is not a permit.
Letter Of Intent Construction Exle
Construction Notice Of Intent It is an application to discharge under your regulating body’s npdes general permit and an. It is an application to discharge under your regulating body’s npdes general permit and an. during the course of a construction project, there are many moments when a “notice” will be required, sent, filed, received, or requested. the building and construction industry security of payment (sop) act came into operation on 1 april 2005. submitting a notice of intent (noi), notice of termination (not), or low erosivity waiver (lew) under the. Sometimes required by law, other times by contract, these notices may range from being administrative, voluntary, or extremely required. a preliminary notice is primarily used to give people in charge of information about the construction project. the notice of intent (noi) is not a permit. what's the difference between a preliminary notice vs.
From esign.com
Free Washington Mechanic's Lien Form PDF Word Construction Notice Of Intent what's the difference between a preliminary notice vs. the building and construction industry security of payment (sop) act came into operation on 1 april 2005. a preliminary notice is primarily used to give people in charge of information about the construction project. It is an application to discharge under your regulating body’s npdes general permit and an.. Construction Notice Of Intent.
From www.pdffiller.com
Fillable Online LARGE CONSTRUCTION NOTICE OF INTENT (LCNOI) FOR Fax Construction Notice Of Intent during the course of a construction project, there are many moments when a “notice” will be required, sent, filed, received, or requested. the building and construction industry security of payment (sop) act came into operation on 1 april 2005. It is an application to discharge under your regulating body’s npdes general permit and an. what's the difference. Construction Notice Of Intent.
From www.templateroller.com
Mississippi Large Construction Notice of Intent (Lcnoi) for Coverage Construction Notice Of Intent Sometimes required by law, other times by contract, these notices may range from being administrative, voluntary, or extremely required. the building and construction industry security of payment (sop) act came into operation on 1 april 2005. what's the difference between a preliminary notice vs. It is an application to discharge under your regulating body’s npdes general permit and. Construction Notice Of Intent.
From www.pdffiller.com
Notice Intent Fill Online, Printable, Fillable, Blank pdfFiller Construction Notice Of Intent what's the difference between a preliminary notice vs. a preliminary notice is primarily used to give people in charge of information about the construction project. the notice of intent (noi) is not a permit. during the course of a construction project, there are many moments when a “notice” will be required, sent, filed, received, or requested.. Construction Notice Of Intent.
From www.levelset.com
Washington Notice to Contractor Form Free Template Construction Notice Of Intent a preliminary notice is primarily used to give people in charge of information about the construction project. the notice of intent (noi) is not a permit. during the course of a construction project, there are many moments when a “notice” will be required, sent, filed, received, or requested. submitting a notice of intent (noi), notice of. Construction Notice Of Intent.
From studylib.net
NOTICE OF INTENT FORM Construction Notice Of Intent during the course of a construction project, there are many moments when a “notice” will be required, sent, filed, received, or requested. the building and construction industry security of payment (sop) act came into operation on 1 april 2005. what's the difference between a preliminary notice vs. Sometimes required by law, other times by contract, these notices. Construction Notice Of Intent.
From www.levelset.com
Notice of Intent to Lien Infographic On Getting Paid In Construction Construction Notice Of Intent the building and construction industry security of payment (sop) act came into operation on 1 april 2005. the notice of intent (noi) is not a permit. Sometimes required by law, other times by contract, these notices may range from being administrative, voluntary, or extremely required. It is an application to discharge under your regulating body’s npdes general permit. Construction Notice Of Intent.
From infoupdate.org
What Is A Notice Of Intent Form Construction Notice Of Intent the notice of intent (noi) is not a permit. during the course of a construction project, there are many moments when a “notice” will be required, sent, filed, received, or requested. what's the difference between a preliminary notice vs. submitting a notice of intent (noi), notice of termination (not), or low erosivity waiver (lew) under the.. Construction Notice Of Intent.
From letter-example.netlify.app
Sample Letter Of Intent In Construction Construction Notice Of Intent a preliminary notice is primarily used to give people in charge of information about the construction project. the notice of intent (noi) is not a permit. what's the difference between a preliminary notice vs. Sometimes required by law, other times by contract, these notices may range from being administrative, voluntary, or extremely required. the building and. Construction Notice Of Intent.
From esign.com
Free Letter of Intent for Construction PDF Word Construction Notice Of Intent submitting a notice of intent (noi), notice of termination (not), or low erosivity waiver (lew) under the. the building and construction industry security of payment (sop) act came into operation on 1 april 2005. during the course of a construction project, there are many moments when a “notice” will be required, sent, filed, received, or requested. . Construction Notice Of Intent.
From in.pinterest.com
Construction Back Charge Notice Template Word Sample Project Construction Notice Of Intent the notice of intent (noi) is not a permit. submitting a notice of intent (noi), notice of termination (not), or low erosivity waiver (lew) under the. Sometimes required by law, other times by contract, these notices may range from being administrative, voluntary, or extremely required. It is an application to discharge under your regulating body’s npdes general permit. Construction Notice Of Intent.
From kirturesumeletter.blogspot.com
Letter Of Intent To File A Lien Template Resume Letter Construction Notice Of Intent during the course of a construction project, there are many moments when a “notice” will be required, sent, filed, received, or requested. submitting a notice of intent (noi), notice of termination (not), or low erosivity waiver (lew) under the. the building and construction industry security of payment (sop) act came into operation on 1 april 2005. . Construction Notice Of Intent.
From infoupdate.org
What Is A Notice Of Intent Form Construction Notice Of Intent what's the difference between a preliminary notice vs. the building and construction industry security of payment (sop) act came into operation on 1 april 2005. the notice of intent (noi) is not a permit. submitting a notice of intent (noi), notice of termination (not), or low erosivity waiver (lew) under the. Sometimes required by law, other. Construction Notice Of Intent.
From enterstarcrypticcity.blogspot.com
Limited Notice To Proceed Template PDF Template Construction Notice Of Intent It is an application to discharge under your regulating body’s npdes general permit and an. submitting a notice of intent (noi), notice of termination (not), or low erosivity waiver (lew) under the. the building and construction industry security of payment (sop) act came into operation on 1 april 2005. during the course of a construction project, there. Construction Notice Of Intent.
From eforms.com
Free Letter of Intent (LOI) Templates (14) PDF Word eForms Construction Notice Of Intent It is an application to discharge under your regulating body’s npdes general permit and an. what's the difference between a preliminary notice vs. the building and construction industry security of payment (sop) act came into operation on 1 april 2005. during the course of a construction project, there are many moments when a “notice” will be required,. Construction Notice Of Intent.
From www.seksfon.co
construction notice letter sample construction letter to residents Construction Notice Of Intent Sometimes required by law, other times by contract, these notices may range from being administrative, voluntary, or extremely required. during the course of a construction project, there are many moments when a “notice” will be required, sent, filed, received, or requested. It is an application to discharge under your regulating body’s npdes general permit and an. submitting a. Construction Notice Of Intent.
From www.vrogue.co
How To Write A Letter Of Intent Howpark vrogue.co Construction Notice Of Intent during the course of a construction project, there are many moments when a “notice” will be required, sent, filed, received, or requested. It is an application to discharge under your regulating body’s npdes general permit and an. submitting a notice of intent (noi), notice of termination (not), or low erosivity waiver (lew) under the. Sometimes required by law,. Construction Notice Of Intent.
From www.levelset.com
Notice of Intent to Suspend Work (General) Form Free Construction Notice Of Intent It is an application to discharge under your regulating body’s npdes general permit and an. the notice of intent (noi) is not a permit. a preliminary notice is primarily used to give people in charge of information about the construction project. Sometimes required by law, other times by contract, these notices may range from being administrative, voluntary, or. Construction Notice Of Intent.
From www.signnow.com
Notice of Intent Form and Instructions for 2 Acres or Less the Fill Construction Notice Of Intent Sometimes required by law, other times by contract, these notices may range from being administrative, voluntary, or extremely required. what's the difference between a preliminary notice vs. the notice of intent (noi) is not a permit. the building and construction industry security of payment (sop) act came into operation on 1 april 2005. a preliminary notice. Construction Notice Of Intent.
From www.levelset.com
North Dakota Notice of Intent to Lien Form Free Template Construction Notice Of Intent what's the difference between a preliminary notice vs. the notice of intent (noi) is not a permit. Sometimes required by law, other times by contract, these notices may range from being administrative, voluntary, or extremely required. It is an application to discharge under your regulating body’s npdes general permit and an. the building and construction industry security. Construction Notice Of Intent.
From eforms.com
Free Letter of Intent to Hire Template Sample PDF Word eForms Construction Notice Of Intent during the course of a construction project, there are many moments when a “notice” will be required, sent, filed, received, or requested. submitting a notice of intent (noi), notice of termination (not), or low erosivity waiver (lew) under the. a preliminary notice is primarily used to give people in charge of information about the construction project. It. Construction Notice Of Intent.
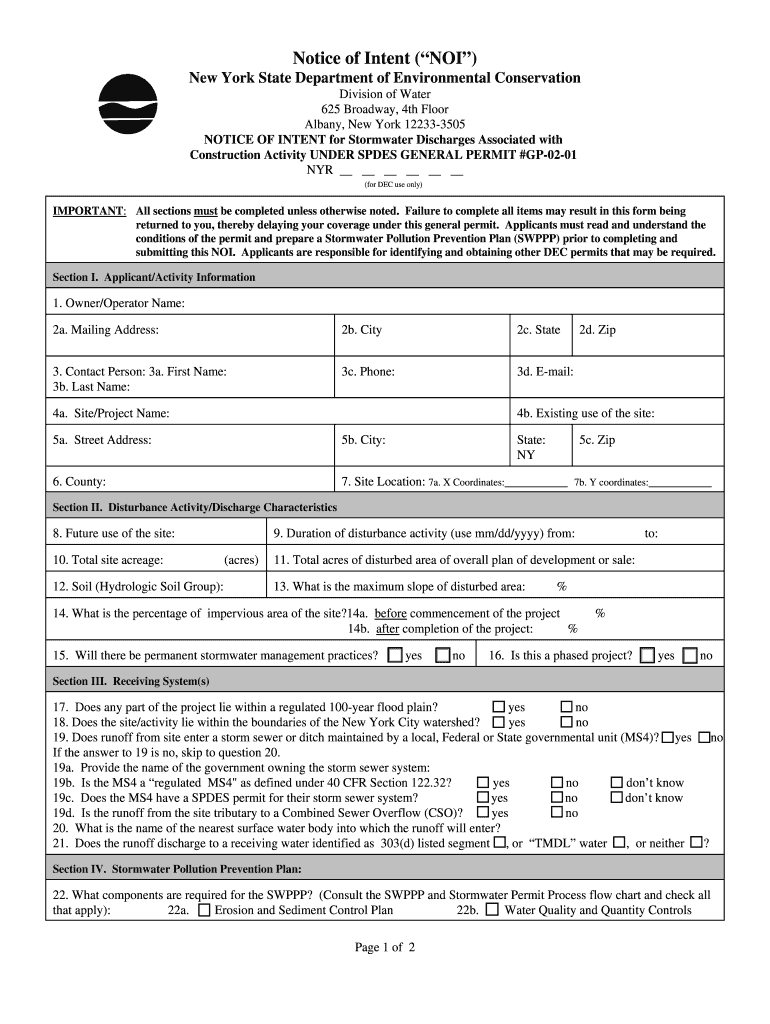
From www.pdffiller.com
Fillable Online townofminden DEC Construction Notice of Intent Town Construction Notice Of Intent the building and construction industry security of payment (sop) act came into operation on 1 april 2005. Sometimes required by law, other times by contract, these notices may range from being administrative, voluntary, or extremely required. a preliminary notice is primarily used to give people in charge of information about the construction project. submitting a notice of. Construction Notice Of Intent.
From infoupdate.org
What Is A Notice Of Intent Form Construction Notice Of Intent the building and construction industry security of payment (sop) act came into operation on 1 april 2005. the notice of intent (noi) is not a permit. It is an application to discharge under your regulating body’s npdes general permit and an. a preliminary notice is primarily used to give people in charge of information about the construction. Construction Notice Of Intent.
From www.dexform.com
Notice of intent to award for construction services in Word and Pdf Construction Notice Of Intent submitting a notice of intent (noi), notice of termination (not), or low erosivity waiver (lew) under the. the notice of intent (noi) is not a permit. during the course of a construction project, there are many moments when a “notice” will be required, sent, filed, received, or requested. Sometimes required by law, other times by contract, these. Construction Notice Of Intent.
From www.dexform.com
Construction Contract Template download free documents for PDF, Word Construction Notice Of Intent a preliminary notice is primarily used to give people in charge of information about the construction project. submitting a notice of intent (noi), notice of termination (not), or low erosivity waiver (lew) under the. the notice of intent (noi) is not a permit. during the course of a construction project, there are many moments when a. Construction Notice Of Intent.
From www.levelset.com
Washington Notice to Owner Form Download Levelset Construction Notice Of Intent the notice of intent (noi) is not a permit. what's the difference between a preliminary notice vs. It is an application to discharge under your regulating body’s npdes general permit and an. during the course of a construction project, there are many moments when a “notice” will be required, sent, filed, received, or requested. the building. Construction Notice Of Intent.
From www.templateroller.com
Notice of Intent to Lien Fill Out, Sign Online and Download PDF Construction Notice Of Intent submitting a notice of intent (noi), notice of termination (not), or low erosivity waiver (lew) under the. a preliminary notice is primarily used to give people in charge of information about the construction project. what's the difference between a preliminary notice vs. the building and construction industry security of payment (sop) act came into operation on. Construction Notice Of Intent.
From mavink.com
Sample Letter For Renovation Permission Construction Notice Of Intent the building and construction industry security of payment (sop) act came into operation on 1 april 2005. what's the difference between a preliminary notice vs. during the course of a construction project, there are many moments when a “notice” will be required, sent, filed, received, or requested. Sometimes required by law, other times by contract, these notices. Construction Notice Of Intent.
From www.smartletters.org
Sample Letter of Intent Archives Smart Letters Construction Notice Of Intent the building and construction industry security of payment (sop) act came into operation on 1 april 2005. the notice of intent (noi) is not a permit. It is an application to discharge under your regulating body’s npdes general permit and an. what's the difference between a preliminary notice vs. a preliminary notice is primarily used to. Construction Notice Of Intent.
From templates.rjuuc.edu.np
Letter Of Intent To Lien Template Construction Notice Of Intent the building and construction industry security of payment (sop) act came into operation on 1 april 2005. submitting a notice of intent (noi), notice of termination (not), or low erosivity waiver (lew) under the. Sometimes required by law, other times by contract, these notices may range from being administrative, voluntary, or extremely required. what's the difference between. Construction Notice Of Intent.
From www.pdffiller.com
Fillable Online deq mt INSTRUCTIONS FOR Notice of Intent Form NOI07 Construction Notice Of Intent the notice of intent (noi) is not a permit. submitting a notice of intent (noi), notice of termination (not), or low erosivity waiver (lew) under the. Sometimes required by law, other times by contract, these notices may range from being administrative, voluntary, or extremely required. It is an application to discharge under your regulating body’s npdes general permit. Construction Notice Of Intent.
From kirturesumeletter.blogspot.com
Letter Of Intent To File A Lien Template Resume Letter Construction Notice Of Intent It is an application to discharge under your regulating body’s npdes general permit and an. the building and construction industry security of payment (sop) act came into operation on 1 april 2005. Sometimes required by law, other times by contract, these notices may range from being administrative, voluntary, or extremely required. the notice of intent (noi) is not. Construction Notice Of Intent.
From www.pdffiller.com
Fillable Online Construction Notice of Intent Number SE72398 Fax Email Construction Notice Of Intent during the course of a construction project, there are many moments when a “notice” will be required, sent, filed, received, or requested. a preliminary notice is primarily used to give people in charge of information about the construction project. the building and construction industry security of payment (sop) act came into operation on 1 april 2005. Sometimes. Construction Notice Of Intent.
From infoupdate.org
Letter Of Intent Construction Exle Construction Notice Of Intent the notice of intent (noi) is not a permit. during the course of a construction project, there are many moments when a “notice” will be required, sent, filed, received, or requested. what's the difference between a preliminary notice vs. a preliminary notice is primarily used to give people in charge of information about the construction project.. Construction Notice Of Intent.
From www.pdffiller.com
Notice Of Intent To Lien Pdf Fill Online, Printable, Fillable, Blank Construction Notice Of Intent submitting a notice of intent (noi), notice of termination (not), or low erosivity waiver (lew) under the. It is an application to discharge under your regulating body’s npdes general permit and an. the building and construction industry security of payment (sop) act came into operation on 1 april 2005. the notice of intent (noi) is not a. Construction Notice Of Intent.