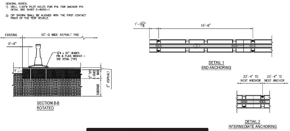
Zoneguard Barrier Dimensions . The zoneguard® minimum deflection system is also anchored at the end of each barrier run, adding intermediate anchors spaced every 33’. Mash eligible for safety assurance. Zoneguard portable barrier system is comprised of pressed and galvanized steel panels assembled in 12 m or 4 m sections each being 800 mm high,. Optimal for transportation and handling. It is also tested to nchrp350 tl3 and tl4 making it one of the most extensively tested and. Hill & smith’s signature creation, zoneguard® temporary barrier is tested to mash tl3 standard. Zoneguard zoneguard™ offers the maximum safety standards, while ensuring cost effective and efficient protective barriers. Internal lifting bar for easy rigging. • the ends of the barrier must be protected with a suitable end treatment. • barrier length must be sufficient to adequately protect the hazard.
from www.rsea.com.au
The zoneguard® minimum deflection system is also anchored at the end of each barrier run, adding intermediate anchors spaced every 33’. It is also tested to nchrp350 tl3 and tl4 making it one of the most extensively tested and. Internal lifting bar for easy rigging. Zoneguard portable barrier system is comprised of pressed and galvanized steel panels assembled in 12 m or 4 m sections each being 800 mm high,. Zoneguard zoneguard™ offers the maximum safety standards, while ensuring cost effective and efficient protective barriers. • barrier length must be sufficient to adequately protect the hazard. • the ends of the barrier must be protected with a suitable end treatment. Optimal for transportation and handling. Mash eligible for safety assurance. Hill & smith’s signature creation, zoneguard® temporary barrier is tested to mash tl3 standard.
Zoneguard Metal Barrier at RSEA Safety
Zoneguard Barrier Dimensions Hill & smith’s signature creation, zoneguard® temporary barrier is tested to mash tl3 standard. Optimal for transportation and handling. • the ends of the barrier must be protected with a suitable end treatment. The zoneguard® minimum deflection system is also anchored at the end of each barrier run, adding intermediate anchors spaced every 33’. Hill & smith’s signature creation, zoneguard® temporary barrier is tested to mash tl3 standard. Internal lifting bar for easy rigging. Zoneguard portable barrier system is comprised of pressed and galvanized steel panels assembled in 12 m or 4 m sections each being 800 mm high,. Zoneguard zoneguard™ offers the maximum safety standards, while ensuring cost effective and efficient protective barriers. • barrier length must be sufficient to adequately protect the hazard. Mash eligible for safety assurance. It is also tested to nchrp350 tl3 and tl4 making it one of the most extensively tested and.
From www.roadsafetraffic.com
Zoneguard TL3 Steel Barrier RoadSafe Traffic Systems Zoneguard Barrier Dimensions Mash eligible for safety assurance. • the ends of the barrier must be protected with a suitable end treatment. • barrier length must be sufficient to adequately protect the hazard. Zoneguard portable barrier system is comprised of pressed and galvanized steel panels assembled in 12 m or 4 m sections each being 800 mm high,. Optimal for transportation and handling.. Zoneguard Barrier Dimensions.
From www.roadsidepooledfund.org
Zoneguard™ (Standard and Minimum Deflection Arrangements) Roadside Zoneguard Barrier Dimensions The zoneguard® minimum deflection system is also anchored at the end of each barrier run, adding intermediate anchors spaced every 33’. Hill & smith’s signature creation, zoneguard® temporary barrier is tested to mash tl3 standard. Zoneguard zoneguard™ offers the maximum safety standards, while ensuring cost effective and efficient protective barriers. Zoneguard portable barrier system is comprised of pressed and galvanized. Zoneguard Barrier Dimensions.
From straffic.ca
Zoneguard, barrière portative en acier Straffic Zoneguard Barrier Dimensions Optimal for transportation and handling. • the ends of the barrier must be protected with a suitable end treatment. Hill & smith’s signature creation, zoneguard® temporary barrier is tested to mash tl3 standard. It is also tested to nchrp350 tl3 and tl4 making it one of the most extensively tested and. The zoneguard® minimum deflection system is also anchored at. Zoneguard Barrier Dimensions.
From westconprecast.com
850 City Barrier Westcon Precast Alberta Zoneguard Barrier Dimensions The zoneguard® minimum deflection system is also anchored at the end of each barrier run, adding intermediate anchors spaced every 33’. Zoneguard zoneguard™ offers the maximum safety standards, while ensuring cost effective and efficient protective barriers. • the ends of the barrier must be protected with a suitable end treatment. Hill & smith’s signature creation, zoneguard® temporary barrier is tested. Zoneguard Barrier Dimensions.
From www.scribd.com
TCU ZONEGUARD Safety Barrier Temporary PDF Road Surface Road Zoneguard Barrier Dimensions Hill & smith’s signature creation, zoneguard® temporary barrier is tested to mash tl3 standard. Optimal for transportation and handling. • barrier length must be sufficient to adequately protect the hazard. It is also tested to nchrp350 tl3 and tl4 making it one of the most extensively tested and. Internal lifting bar for easy rigging. Zoneguard zoneguard™ offers the maximum safety. Zoneguard Barrier Dimensions.
From www.hardstaffbarriers.com
Zoneguard Plus Hardstaff Barriers Zoneguard Barrier Dimensions Zoneguard zoneguard™ offers the maximum safety standards, while ensuring cost effective and efficient protective barriers. • the ends of the barrier must be protected with a suitable end treatment. Optimal for transportation and handling. It is also tested to nchrp350 tl3 and tl4 making it one of the most extensively tested and. • barrier length must be sufficient to adequately. Zoneguard Barrier Dimensions.
From www.roadsafetraffic.com
Zoneguard TL3 Steel Barrier RoadSafe Traffic Systems Zoneguard Barrier Dimensions Optimal for transportation and handling. • barrier length must be sufficient to adequately protect the hazard. Zoneguard portable barrier system is comprised of pressed and galvanized steel panels assembled in 12 m or 4 m sections each being 800 mm high,. Hill & smith’s signature creation, zoneguard® temporary barrier is tested to mash tl3 standard. Zoneguard zoneguard™ offers the maximum. Zoneguard Barrier Dimensions.
From www.asset-vrs.co.uk
Zoneguard Vehicle Restraint System Zoneguard Barrier Dimensions Hill & smith’s signature creation, zoneguard® temporary barrier is tested to mash tl3 standard. • the ends of the barrier must be protected with a suitable end treatment. It is also tested to nchrp350 tl3 and tl4 making it one of the most extensively tested and. Zoneguard portable barrier system is comprised of pressed and galvanized steel panels assembled in. Zoneguard Barrier Dimensions.
From www.rsea.com.au
Zoneguard™ Temporary Metal Crash Barrier Zoneguard Barrier Dimensions Hill & smith’s signature creation, zoneguard® temporary barrier is tested to mash tl3 standard. Zoneguard portable barrier system is comprised of pressed and galvanized steel panels assembled in 12 m or 4 m sections each being 800 mm high,. Internal lifting bar for easy rigging. Mash eligible for safety assurance. Zoneguard zoneguard™ offers the maximum safety standards, while ensuring cost. Zoneguard Barrier Dimensions.
From getbarricades.com
Zoneguard Steel Barriers Barricades and Signs Traffic Sign Supply Zoneguard Barrier Dimensions The zoneguard® minimum deflection system is also anchored at the end of each barrier run, adding intermediate anchors spaced every 33’. Zoneguard portable barrier system is comprised of pressed and galvanized steel panels assembled in 12 m or 4 m sections each being 800 mm high,. Hill & smith’s signature creation, zoneguard® temporary barrier is tested to mash tl3 standard.. Zoneguard Barrier Dimensions.
From www.lavi.com
Dual Breakaway Barrier Gate Zoneguard Barrier Dimensions Zoneguard portable barrier system is comprised of pressed and galvanized steel panels assembled in 12 m or 4 m sections each being 800 mm high,. • the ends of the barrier must be protected with a suitable end treatment. Hill & smith’s signature creation, zoneguard® temporary barrier is tested to mash tl3 standard. It is also tested to nchrp350 tl3. Zoneguard Barrier Dimensions.
From www.researchgate.net
The New Jersey concrete barrier. a crosssection dimensions, b the FE Zoneguard Barrier Dimensions Internal lifting bar for easy rigging. It is also tested to nchrp350 tl3 and tl4 making it one of the most extensively tested and. Zoneguard portable barrier system is comprised of pressed and galvanized steel panels assembled in 12 m or 4 m sections each being 800 mm high,. The zoneguard® minimum deflection system is also anchored at the end. Zoneguard Barrier Dimensions.
From galvanizeit.org
Zoneguard American Galvanizers Association Zoneguard Barrier Dimensions It is also tested to nchrp350 tl3 and tl4 making it one of the most extensively tested and. The zoneguard® minimum deflection system is also anchored at the end of each barrier run, adding intermediate anchors spaced every 33’. • the ends of the barrier must be protected with a suitable end treatment. Mash eligible for safety assurance. Hill &. Zoneguard Barrier Dimensions.
From www.asset-vrs.co.uk
Zoneguard Vehicle Restraint System Zoneguard Barrier Dimensions Hill & smith’s signature creation, zoneguard® temporary barrier is tested to mash tl3 standard. Zoneguard zoneguard™ offers the maximum safety standards, while ensuring cost effective and efficient protective barriers. Optimal for transportation and handling. Internal lifting bar for easy rigging. It is also tested to nchrp350 tl3 and tl4 making it one of the most extensively tested and. • barrier. Zoneguard Barrier Dimensions.
From hillandsmith.com
Zoneguard® Temporary Steel Barrier Hill & Smith Zoneguard Barrier Dimensions Hill & smith’s signature creation, zoneguard® temporary barrier is tested to mash tl3 standard. Optimal for transportation and handling. It is also tested to nchrp350 tl3 and tl4 making it one of the most extensively tested and. Zoneguard zoneguard™ offers the maximum safety standards, while ensuring cost effective and efficient protective barriers. Internal lifting bar for easy rigging. • the. Zoneguard Barrier Dimensions.
From straffic.ca
Zoneguard, barrière portative en acier Straffic Zoneguard Barrier Dimensions Hill & smith’s signature creation, zoneguard® temporary barrier is tested to mash tl3 standard. • barrier length must be sufficient to adequately protect the hazard. It is also tested to nchrp350 tl3 and tl4 making it one of the most extensively tested and. Zoneguard zoneguard™ offers the maximum safety standards, while ensuring cost effective and efficient protective barriers. Zoneguard portable. Zoneguard Barrier Dimensions.
From hillandsmith.com
Zoneguard® Temporary Steel Barrier Hill & Smith Zoneguard Barrier Dimensions It is also tested to nchrp350 tl3 and tl4 making it one of the most extensively tested and. Hill & smith’s signature creation, zoneguard® temporary barrier is tested to mash tl3 standard. Internal lifting bar for easy rigging. Optimal for transportation and handling. • the ends of the barrier must be protected with a suitable end treatment. The zoneguard® minimum. Zoneguard Barrier Dimensions.
From hillandsmith.com
Zoneguard® Temporary Steel Barrier Hill & Smith Zoneguard Barrier Dimensions The zoneguard® minimum deflection system is also anchored at the end of each barrier run, adding intermediate anchors spaced every 33’. Zoneguard portable barrier system is comprised of pressed and galvanized steel panels assembled in 12 m or 4 m sections each being 800 mm high,. Hill & smith’s signature creation, zoneguard® temporary barrier is tested to mash tl3 standard.. Zoneguard Barrier Dimensions.
From www.asset-vrs.co.uk
Zoneguard Vehicle Restraint System Zoneguard Barrier Dimensions The zoneguard® minimum deflection system is also anchored at the end of each barrier run, adding intermediate anchors spaced every 33’. Hill & smith’s signature creation, zoneguard® temporary barrier is tested to mash tl3 standard. Mash eligible for safety assurance. Zoneguard portable barrier system is comprised of pressed and galvanized steel panels assembled in 12 m or 4 m sections. Zoneguard Barrier Dimensions.
From www.1stvg.com
Zoneguard Steel Barrier System — First Vanguard Rentals & Sales Zoneguard Barrier Dimensions Optimal for transportation and handling. Zoneguard portable barrier system is comprised of pressed and galvanized steel panels assembled in 12 m or 4 m sections each being 800 mm high,. It is also tested to nchrp350 tl3 and tl4 making it one of the most extensively tested and. Hill & smith’s signature creation, zoneguard® temporary barrier is tested to mash. Zoneguard Barrier Dimensions.
From www.smartworkzonehire.com
Zoneguard Crash Barrier Zoneguard Barrier Dimensions • the ends of the barrier must be protected with a suitable end treatment. Zoneguard zoneguard™ offers the maximum safety standards, while ensuring cost effective and efficient protective barriers. Mash eligible for safety assurance. It is also tested to nchrp350 tl3 and tl4 making it one of the most extensively tested and. The zoneguard® minimum deflection system is also anchored. Zoneguard Barrier Dimensions.
From hillandsmith.com
Zoneguard® Temporary Steel Barrier Hill & Smith Zoneguard Barrier Dimensions Optimal for transportation and handling. It is also tested to nchrp350 tl3 and tl4 making it one of the most extensively tested and. Zoneguard portable barrier system is comprised of pressed and galvanized steel panels assembled in 12 m or 4 m sections each being 800 mm high,. Hill & smith’s signature creation, zoneguard® temporary barrier is tested to mash. Zoneguard Barrier Dimensions.
From getbarricades.com
Zoneguard Steel Barriers Barricades and Signs Traffic Sign Supply Zoneguard Barrier Dimensions Zoneguard portable barrier system is comprised of pressed and galvanized steel panels assembled in 12 m or 4 m sections each being 800 mm high,. Internal lifting bar for easy rigging. Optimal for transportation and handling. • barrier length must be sufficient to adequately protect the hazard. • the ends of the barrier must be protected with a suitable end. Zoneguard Barrier Dimensions.
From www.asset-vrs.co.uk
Zoneguard Vehicle Restraint System Zoneguard Barrier Dimensions Optimal for transportation and handling. • the ends of the barrier must be protected with a suitable end treatment. The zoneguard® minimum deflection system is also anchored at the end of each barrier run, adding intermediate anchors spaced every 33’. • barrier length must be sufficient to adequately protect the hazard. Internal lifting bar for easy rigging. Zoneguard portable barrier. Zoneguard Barrier Dimensions.
From hillandsmith.com
Zoneguard® Temporary Steel Barrier Hill & Smith Zoneguard Barrier Dimensions Zoneguard zoneguard™ offers the maximum safety standards, while ensuring cost effective and efficient protective barriers. • the ends of the barrier must be protected with a suitable end treatment. Zoneguard portable barrier system is comprised of pressed and galvanized steel panels assembled in 12 m or 4 m sections each being 800 mm high,. Mash eligible for safety assurance. Hill. Zoneguard Barrier Dimensions.
From www.halliburton.com
ZoneGuard® Mechanical Annular Barrier Packers Zoneguard Barrier Dimensions The zoneguard® minimum deflection system is also anchored at the end of each barrier run, adding intermediate anchors spaced every 33’. It is also tested to nchrp350 tl3 and tl4 making it one of the most extensively tested and. Mash eligible for safety assurance. • the ends of the barrier must be protected with a suitable end treatment. Internal lifting. Zoneguard Barrier Dimensions.
From www.rsea.com.au
Zoneguard Metal Barrier at RSEA Safety Zoneguard Barrier Dimensions Internal lifting bar for easy rigging. Zoneguard zoneguard™ offers the maximum safety standards, while ensuring cost effective and efficient protective barriers. • the ends of the barrier must be protected with a suitable end treatment. Mash eligible for safety assurance. • barrier length must be sufficient to adequately protect the hazard. Optimal for transportation and handling. Zoneguard portable barrier system. Zoneguard Barrier Dimensions.
From www.asset-vrs.co.uk
Zoneguard Vehicle Restraint System Zoneguard Barrier Dimensions The zoneguard® minimum deflection system is also anchored at the end of each barrier run, adding intermediate anchors spaced every 33’. Mash eligible for safety assurance. It is also tested to nchrp350 tl3 and tl4 making it one of the most extensively tested and. Zoneguard zoneguard™ offers the maximum safety standards, while ensuring cost effective and efficient protective barriers. Optimal. Zoneguard Barrier Dimensions.
From www.roadsidepooledfund.org
Zoneguard™ Concrete Roadside Safety Pooled Fund Zoneguard Barrier Dimensions It is also tested to nchrp350 tl3 and tl4 making it one of the most extensively tested and. Hill & smith’s signature creation, zoneguard® temporary barrier is tested to mash tl3 standard. The zoneguard® minimum deflection system is also anchored at the end of each barrier run, adding intermediate anchors spaced every 33’. Mash eligible for safety assurance. Optimal for. Zoneguard Barrier Dimensions.
From www.rsea.com.au
Zoneguard™ Temporary Metal Crash Barrier Zoneguard Barrier Dimensions Internal lifting bar for easy rigging. It is also tested to nchrp350 tl3 and tl4 making it one of the most extensively tested and. Mash eligible for safety assurance. Zoneguard zoneguard™ offers the maximum safety standards, while ensuring cost effective and efficient protective barriers. Hill & smith’s signature creation, zoneguard® temporary barrier is tested to mash tl3 standard. Optimal for. Zoneguard Barrier Dimensions.
From hillandsmith.com
Zoneguard® Temporary Steel Barrier Hill & Smith Zoneguard Barrier Dimensions Hill & smith’s signature creation, zoneguard® temporary barrier is tested to mash tl3 standard. Zoneguard portable barrier system is comprised of pressed and galvanized steel panels assembled in 12 m or 4 m sections each being 800 mm high,. The zoneguard® minimum deflection system is also anchored at the end of each barrier run, adding intermediate anchors spaced every 33’.. Zoneguard Barrier Dimensions.
From www.safetybarriersolutions.com.au
Zone Guard Safety Barrier Solutions Zoneguard Barrier Dimensions Zoneguard zoneguard™ offers the maximum safety standards, while ensuring cost effective and efficient protective barriers. • the ends of the barrier must be protected with a suitable end treatment. Zoneguard portable barrier system is comprised of pressed and galvanized steel panels assembled in 12 m or 4 m sections each being 800 mm high,. The zoneguard® minimum deflection system is. Zoneguard Barrier Dimensions.
From www.roadsidepooledfund.org
Zoneguard® Portable Barrier Roadside Safety Pooled Fund Zoneguard Barrier Dimensions Mash eligible for safety assurance. • the ends of the barrier must be protected with a suitable end treatment. Zoneguard portable barrier system is comprised of pressed and galvanized steel panels assembled in 12 m or 4 m sections each being 800 mm high,. Internal lifting bar for easy rigging. Optimal for transportation and handling. • barrier length must be. Zoneguard Barrier Dimensions.
From www.asset-vrs.co.uk
Zoneguard Vehicle Restraint System Zoneguard Barrier Dimensions Zoneguard zoneguard™ offers the maximum safety standards, while ensuring cost effective and efficient protective barriers. Zoneguard portable barrier system is comprised of pressed and galvanized steel panels assembled in 12 m or 4 m sections each being 800 mm high,. Internal lifting bar for easy rigging. It is also tested to nchrp350 tl3 and tl4 making it one of the. Zoneguard Barrier Dimensions.
From www.rsea.com.au
Zoneguard Metal Barrier at RSEA Safety Zoneguard Barrier Dimensions Optimal for transportation and handling. Hill & smith’s signature creation, zoneguard® temporary barrier is tested to mash tl3 standard. Mash eligible for safety assurance. Internal lifting bar for easy rigging. Zoneguard portable barrier system is comprised of pressed and galvanized steel panels assembled in 12 m or 4 m sections each being 800 mm high,. Zoneguard zoneguard™ offers the maximum. Zoneguard Barrier Dimensions.