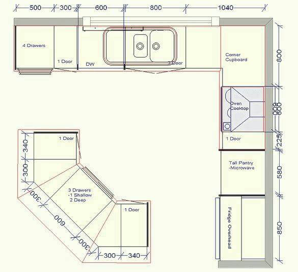
Standard Kitchen Layout Dimensions . Then use standard appliance and cabinet sizes to plug in different combinations to create your ultimate kitchen layout. They're based on recommendations for the united states but standards for other modern countries won't be far off. This page deals with kitchen dimensions and kitchen planning guidelines for kitchen layouts. Kitchen layouts are designed considering the work triangle concept, which connects the three primary work areas: The goal is to facilitate easy. Start with room dimensions measure the length and height of your kitchen walls and any windows. Key measurements to help you design your kitchen get the ideal kitchen setup by understanding spatial relationships, building dimensions and work zones The stove, sink, and refrigerator. In accessible kitchens, the recommended grabbing height range for shelves typically ranges between 40 cm and 140 cm. To begin designing your kitchen, take exact measurements of available floor space, then place the basic elements using the following guidelines.
from engineeringdiscoveries.com
Kitchen layouts are designed considering the work triangle concept, which connects the three primary work areas: The goal is to facilitate easy. To begin designing your kitchen, take exact measurements of available floor space, then place the basic elements using the following guidelines. Key measurements to help you design your kitchen get the ideal kitchen setup by understanding spatial relationships, building dimensions and work zones The stove, sink, and refrigerator. Start with room dimensions measure the length and height of your kitchen walls and any windows. This page deals with kitchen dimensions and kitchen planning guidelines for kitchen layouts. Then use standard appliance and cabinet sizes to plug in different combinations to create your ultimate kitchen layout. In accessible kitchens, the recommended grabbing height range for shelves typically ranges between 40 cm and 140 cm. They're based on recommendations for the united states but standards for other modern countries won't be far off.
Amazing Standard Kitchen Dimensions Engineering Discoveries
Standard Kitchen Layout Dimensions Kitchen layouts are designed considering the work triangle concept, which connects the three primary work areas: The goal is to facilitate easy. The stove, sink, and refrigerator. This page deals with kitchen dimensions and kitchen planning guidelines for kitchen layouts. Key measurements to help you design your kitchen get the ideal kitchen setup by understanding spatial relationships, building dimensions and work zones Then use standard appliance and cabinet sizes to plug in different combinations to create your ultimate kitchen layout. In accessible kitchens, the recommended grabbing height range for shelves typically ranges between 40 cm and 140 cm. They're based on recommendations for the united states but standards for other modern countries won't be far off. Kitchen layouts are designed considering the work triangle concept, which connects the three primary work areas: To begin designing your kitchen, take exact measurements of available floor space, then place the basic elements using the following guidelines. Start with room dimensions measure the length and height of your kitchen walls and any windows.
From engineeringdiscoveries.com
Useful Kitchen Dimensions And Layout Engineering Discoveries Standard Kitchen Layout Dimensions To begin designing your kitchen, take exact measurements of available floor space, then place the basic elements using the following guidelines. Then use standard appliance and cabinet sizes to plug in different combinations to create your ultimate kitchen layout. In accessible kitchens, the recommended grabbing height range for shelves typically ranges between 40 cm and 140 cm. Kitchen layouts are. Standard Kitchen Layout Dimensions.
From engineeringdiscoveries.com
Useful Kitchen Dimensions And Layout Engineering Discoveries Standard Kitchen Layout Dimensions To begin designing your kitchen, take exact measurements of available floor space, then place the basic elements using the following guidelines. In accessible kitchens, the recommended grabbing height range for shelves typically ranges between 40 cm and 140 cm. The stove, sink, and refrigerator. They're based on recommendations for the united states but standards for other modern countries won't be. Standard Kitchen Layout Dimensions.
From www.dimensions.com
Kitchen Layouts Dimensions & Drawings Standard Kitchen Layout Dimensions Key measurements to help you design your kitchen get the ideal kitchen setup by understanding spatial relationships, building dimensions and work zones Then use standard appliance and cabinet sizes to plug in different combinations to create your ultimate kitchen layout. They're based on recommendations for the united states but standards for other modern countries won't be far off. The stove,. Standard Kitchen Layout Dimensions.
From engineeringdiscoveries.com
Standard Kitchen Dimensions And Sizes Engineering Discoveries Standard Kitchen Layout Dimensions The goal is to facilitate easy. This page deals with kitchen dimensions and kitchen planning guidelines for kitchen layouts. In accessible kitchens, the recommended grabbing height range for shelves typically ranges between 40 cm and 140 cm. The stove, sink, and refrigerator. Start with room dimensions measure the length and height of your kitchen walls and any windows. To begin. Standard Kitchen Layout Dimensions.
From www.fantasticeng.com
Standard Kitchen Dimensions And Layout FantasticEng Standard Kitchen Layout Dimensions To begin designing your kitchen, take exact measurements of available floor space, then place the basic elements using the following guidelines. Kitchen layouts are designed considering the work triangle concept, which connects the three primary work areas: This page deals with kitchen dimensions and kitchen planning guidelines for kitchen layouts. They're based on recommendations for the united states but standards. Standard Kitchen Layout Dimensions.
From www.pinterest.ca
10 X 12 Kitchen Layout 10 x 10 Standard Kitchen Dimensions Standard Kitchen Layout Dimensions Start with room dimensions measure the length and height of your kitchen walls and any windows. To begin designing your kitchen, take exact measurements of available floor space, then place the basic elements using the following guidelines. They're based on recommendations for the united states but standards for other modern countries won't be far off. Then use standard appliance and. Standard Kitchen Layout Dimensions.
From postdigitalarchitecture.com
Kitchen and Dining Area Measurements and Standards Guide Standard Kitchen Layout Dimensions Key measurements to help you design your kitchen get the ideal kitchen setup by understanding spatial relationships, building dimensions and work zones The goal is to facilitate easy. This page deals with kitchen dimensions and kitchen planning guidelines for kitchen layouts. To begin designing your kitchen, take exact measurements of available floor space, then place the basic elements using the. Standard Kitchen Layout Dimensions.
From engineeringdiscoveries.com
Useful Kitchen Dimensions And Layout Engineering Discoveries Standard Kitchen Layout Dimensions This page deals with kitchen dimensions and kitchen planning guidelines for kitchen layouts. The goal is to facilitate easy. Start with room dimensions measure the length and height of your kitchen walls and any windows. Then use standard appliance and cabinet sizes to plug in different combinations to create your ultimate kitchen layout. To begin designing your kitchen, take exact. Standard Kitchen Layout Dimensions.
From www.pinterest.ie
Kitchen Layout Plans, Kitchen Layout, Kitchen Room Design, Home Standard Kitchen Layout Dimensions This page deals with kitchen dimensions and kitchen planning guidelines for kitchen layouts. The goal is to facilitate easy. The stove, sink, and refrigerator. Then use standard appliance and cabinet sizes to plug in different combinations to create your ultimate kitchen layout. To begin designing your kitchen, take exact measurements of available floor space, then place the basic elements using. Standard Kitchen Layout Dimensions.
From www.engineeringdiscoveries.net
Standard Kitchen Dimensions And Layout Engineering Discoveries Standard Kitchen Layout Dimensions To begin designing your kitchen, take exact measurements of available floor space, then place the basic elements using the following guidelines. Then use standard appliance and cabinet sizes to plug in different combinations to create your ultimate kitchen layout. Key measurements to help you design your kitchen get the ideal kitchen setup by understanding spatial relationships, building dimensions and work. Standard Kitchen Layout Dimensions.
From sadhabit28.gitlab.io
Breathtaking Kitchen Plan With Dimensions Island Seating On 2 Sides Standard Kitchen Layout Dimensions To begin designing your kitchen, take exact measurements of available floor space, then place the basic elements using the following guidelines. Start with room dimensions measure the length and height of your kitchen walls and any windows. They're based on recommendations for the united states but standards for other modern countries won't be far off. Key measurements to help you. Standard Kitchen Layout Dimensions.
From www.dimensions.guide
Kitchen Layouts Dimensions & Drawings Dimensions.Guide Standard Kitchen Layout Dimensions Kitchen layouts are designed considering the work triangle concept, which connects the three primary work areas: The goal is to facilitate easy. The stove, sink, and refrigerator. Key measurements to help you design your kitchen get the ideal kitchen setup by understanding spatial relationships, building dimensions and work zones This page deals with kitchen dimensions and kitchen planning guidelines for. Standard Kitchen Layout Dimensions.
From blog.buildllc.com
5 Modern Kitchen Designs & Principles BUILD Blog Standard Kitchen Layout Dimensions They're based on recommendations for the united states but standards for other modern countries won't be far off. Kitchen layouts are designed considering the work triangle concept, which connects the three primary work areas: The goal is to facilitate easy. In accessible kitchens, the recommended grabbing height range for shelves typically ranges between 40 cm and 140 cm. To begin. Standard Kitchen Layout Dimensions.
From www.hpdconsult.com
Kitchen Dimensions Useful Kitchen Design Measurements Standard Kitchen Layout Dimensions To begin designing your kitchen, take exact measurements of available floor space, then place the basic elements using the following guidelines. Then use standard appliance and cabinet sizes to plug in different combinations to create your ultimate kitchen layout. In accessible kitchens, the recommended grabbing height range for shelves typically ranges between 40 cm and 140 cm. The goal is. Standard Kitchen Layout Dimensions.
From www.dimensions.guide
Kitchen Layouts Dimensions & Drawings Dimensions.Guide Standard Kitchen Layout Dimensions In accessible kitchens, the recommended grabbing height range for shelves typically ranges between 40 cm and 140 cm. Start with room dimensions measure the length and height of your kitchen walls and any windows. The stove, sink, and refrigerator. They're based on recommendations for the united states but standards for other modern countries won't be far off. The goal is. Standard Kitchen Layout Dimensions.
From www.fantasticeng.com
Standard Kitchen Dimensions And Layout FantasticEng Standard Kitchen Layout Dimensions The goal is to facilitate easy. They're based on recommendations for the united states but standards for other modern countries won't be far off. Key measurements to help you design your kitchen get the ideal kitchen setup by understanding spatial relationships, building dimensions and work zones The stove, sink, and refrigerator. In accessible kitchens, the recommended grabbing height range for. Standard Kitchen Layout Dimensions.
From www.pinterest.cl
Standard Kitchen Dimensions And Layout Engineering Discoveries Standard Kitchen Layout Dimensions In accessible kitchens, the recommended grabbing height range for shelves typically ranges between 40 cm and 140 cm. Start with room dimensions measure the length and height of your kitchen walls and any windows. Key measurements to help you design your kitchen get the ideal kitchen setup by understanding spatial relationships, building dimensions and work zones This page deals with. Standard Kitchen Layout Dimensions.
From engineeringdiscoveries.com
Useful Kitchen Dimensions And Layout Engineering Discoveries Standard Kitchen Layout Dimensions In accessible kitchens, the recommended grabbing height range for shelves typically ranges between 40 cm and 140 cm. The stove, sink, and refrigerator. They're based on recommendations for the united states but standards for other modern countries won't be far off. The goal is to facilitate easy. Key measurements to help you design your kitchen get the ideal kitchen setup. Standard Kitchen Layout Dimensions.
From mavink.com
Standard Kitchen Layout Dimensions Standard Kitchen Layout Dimensions To begin designing your kitchen, take exact measurements of available floor space, then place the basic elements using the following guidelines. Key measurements to help you design your kitchen get the ideal kitchen setup by understanding spatial relationships, building dimensions and work zones Start with room dimensions measure the length and height of your kitchen walls and any windows. The. Standard Kitchen Layout Dimensions.
From engineeringdiscoveries.com
Useful Kitchen Dimensions And Layout Engineering Discoveries Standard Kitchen Layout Dimensions Start with room dimensions measure the length and height of your kitchen walls and any windows. The goal is to facilitate easy. Kitchen layouts are designed considering the work triangle concept, which connects the three primary work areas: To begin designing your kitchen, take exact measurements of available floor space, then place the basic elements using the following guidelines. In. Standard Kitchen Layout Dimensions.
From authorsatthevirtualpark.blogspot.com
Kitchen Layouts Dimension Home Design Ideas Essentials Standard Kitchen Layout Dimensions Key measurements to help you design your kitchen get the ideal kitchen setup by understanding spatial relationships, building dimensions and work zones They're based on recommendations for the united states but standards for other modern countries won't be far off. The goal is to facilitate easy. Start with room dimensions measure the length and height of your kitchen walls and. Standard Kitchen Layout Dimensions.
From www.engineeringdiscoveries.net
Standard Kitchen Dimensions And Layout Engineering Discoveries Standard Kitchen Layout Dimensions The goal is to facilitate easy. The stove, sink, and refrigerator. Key measurements to help you design your kitchen get the ideal kitchen setup by understanding spatial relationships, building dimensions and work zones To begin designing your kitchen, take exact measurements of available floor space, then place the basic elements using the following guidelines. They're based on recommendations for the. Standard Kitchen Layout Dimensions.
From www.engineeringdiscoveries.net
Standard Kitchen Dimensions And Layout Engineering Discoveries Standard Kitchen Layout Dimensions To begin designing your kitchen, take exact measurements of available floor space, then place the basic elements using the following guidelines. Start with room dimensions measure the length and height of your kitchen walls and any windows. This page deals with kitchen dimensions and kitchen planning guidelines for kitchen layouts. Key measurements to help you design your kitchen get the. Standard Kitchen Layout Dimensions.
From www.refreshrenovations.co.nz
Key measurements for a kitchen renovation Inspiration & Advice Standard Kitchen Layout Dimensions The stove, sink, and refrigerator. Then use standard appliance and cabinet sizes to plug in different combinations to create your ultimate kitchen layout. In accessible kitchens, the recommended grabbing height range for shelves typically ranges between 40 cm and 140 cm. To begin designing your kitchen, take exact measurements of available floor space, then place the basic elements using the. Standard Kitchen Layout Dimensions.
From engineeringdiscoveries.com
Amazing Standard Kitchen Dimensions Engineering Discoveries Standard Kitchen Layout Dimensions Kitchen layouts are designed considering the work triangle concept, which connects the three primary work areas: In accessible kitchens, the recommended grabbing height range for shelves typically ranges between 40 cm and 140 cm. They're based on recommendations for the united states but standards for other modern countries won't be far off. To begin designing your kitchen, take exact measurements. Standard Kitchen Layout Dimensions.
From www.engineeringdiscoveries.net
Standard Kitchen Dimensions And Layout Engineering Discoveries Standard Kitchen Layout Dimensions Start with room dimensions measure the length and height of your kitchen walls and any windows. The stove, sink, and refrigerator. The goal is to facilitate easy. They're based on recommendations for the united states but standards for other modern countries won't be far off. Then use standard appliance and cabinet sizes to plug in different combinations to create your. Standard Kitchen Layout Dimensions.
From dailyengineering.com
Standard Kitchen Dimensions And Layout Daily Engineering Standard Kitchen Layout Dimensions They're based on recommendations for the united states but standards for other modern countries won't be far off. In accessible kitchens, the recommended grabbing height range for shelves typically ranges between 40 cm and 140 cm. Start with room dimensions measure the length and height of your kitchen walls and any windows. The stove, sink, and refrigerator. Kitchen layouts are. Standard Kitchen Layout Dimensions.
From www.engineeringdiscoveries.net
Standard Kitchen Dimensions And Layout Engineering Discoveries Standard Kitchen Layout Dimensions The goal is to facilitate easy. Then use standard appliance and cabinet sizes to plug in different combinations to create your ultimate kitchen layout. The stove, sink, and refrigerator. In accessible kitchens, the recommended grabbing height range for shelves typically ranges between 40 cm and 140 cm. To begin designing your kitchen, take exact measurements of available floor space, then. Standard Kitchen Layout Dimensions.
From www.designcafe.com
Standard Kitchen Dimensions For Your Dream Kitchen Design Cafe Standard Kitchen Layout Dimensions The goal is to facilitate easy. They're based on recommendations for the united states but standards for other modern countries won't be far off. This page deals with kitchen dimensions and kitchen planning guidelines for kitchen layouts. Then use standard appliance and cabinet sizes to plug in different combinations to create your ultimate kitchen layout. Kitchen layouts are designed considering. Standard Kitchen Layout Dimensions.
From www.engineeringdiscoveries.net
Standard Kitchen Dimensions And Layout Engineering Discoveries Standard Kitchen Layout Dimensions This page deals with kitchen dimensions and kitchen planning guidelines for kitchen layouts. To begin designing your kitchen, take exact measurements of available floor space, then place the basic elements using the following guidelines. They're based on recommendations for the united states but standards for other modern countries won't be far off. Key measurements to help you design your kitchen. Standard Kitchen Layout Dimensions.
From engineeringdiscoveries.com
Amazing Standard Kitchen Dimensions Engineering Discoveries Standard Kitchen Layout Dimensions In accessible kitchens, the recommended grabbing height range for shelves typically ranges between 40 cm and 140 cm. This page deals with kitchen dimensions and kitchen planning guidelines for kitchen layouts. Then use standard appliance and cabinet sizes to plug in different combinations to create your ultimate kitchen layout. Key measurements to help you design your kitchen get the ideal. Standard Kitchen Layout Dimensions.
From www.engineeringdiscoveries.net
Standard Kitchen Dimensions And Layout Engineering Discoveries Standard Kitchen Layout Dimensions In accessible kitchens, the recommended grabbing height range for shelves typically ranges between 40 cm and 140 cm. This page deals with kitchen dimensions and kitchen planning guidelines for kitchen layouts. Then use standard appliance and cabinet sizes to plug in different combinations to create your ultimate kitchen layout. Kitchen layouts are designed considering the work triangle concept, which connects. Standard Kitchen Layout Dimensions.
From inspectapedia.com
Typical Kitchen Design Layouts Standard Kitchen Layout Dimensions Key measurements to help you design your kitchen get the ideal kitchen setup by understanding spatial relationships, building dimensions and work zones They're based on recommendations for the united states but standards for other modern countries won't be far off. The stove, sink, and refrigerator. Kitchen layouts are designed considering the work triangle concept, which connects the three primary work. Standard Kitchen Layout Dimensions.
From www.engineeringdiscoveries.net
Standard Kitchen Dimensions And Layout Engineering Discoveries Standard Kitchen Layout Dimensions They're based on recommendations for the united states but standards for other modern countries won't be far off. This page deals with kitchen dimensions and kitchen planning guidelines for kitchen layouts. Then use standard appliance and cabinet sizes to plug in different combinations to create your ultimate kitchen layout. The goal is to facilitate easy. Kitchen layouts are designed considering. Standard Kitchen Layout Dimensions.
From www.pinterest.com
Kitchen Layout Planning Important Measurements You Need to Know Standard Kitchen Layout Dimensions Start with room dimensions measure the length and height of your kitchen walls and any windows. To begin designing your kitchen, take exact measurements of available floor space, then place the basic elements using the following guidelines. Then use standard appliance and cabinet sizes to plug in different combinations to create your ultimate kitchen layout. Kitchen layouts are designed considering. Standard Kitchen Layout Dimensions.