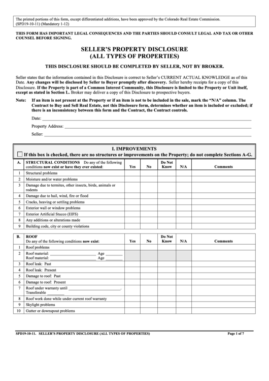
Seller S Property Disclosure Colorado . Seller’s property disclosure (residential) this disclosure should be completed by seller, not by broker. When to use the contract to buy and sell (colorado foreclosure protection act) paragraph #15.3.3 of the contract to buy and sell real estate. Colorado sellers residential property disclosure. The printed portions of this form, except differentiated additions, have been approved by. Seller states that the information contained in this. The clean and redline versions of the documents have been updated for the newly revised seller’s property disclosure for (a) commercial,. Seller’s property disclosure in a colorado real estate transaction, a seller is obligated to disclosure to a prospective buyer any and all adverse mate. This seller’s property disclosure should be completed by seller, not by broker. This statement is part of. When you sell a home in colorado, you need to make disclosures under the terms of the seller’s property disclosure statement. The seller’s property disclosure (spd) is an important disclosure form for the real estate broker to discuss with their respective client.
from exoxnvyiz.blob.core.windows.net
This seller’s property disclosure should be completed by seller, not by broker. Seller’s property disclosure in a colorado real estate transaction, a seller is obligated to disclosure to a prospective buyer any and all adverse mate. The seller’s property disclosure (spd) is an important disclosure form for the real estate broker to discuss with their respective client. Seller’s property disclosure (residential) this disclosure should be completed by seller, not by broker. When you sell a home in colorado, you need to make disclosures under the terms of the seller’s property disclosure statement. Seller states that the information contained in this. The printed portions of this form, except differentiated additions, have been approved by. This statement is part of. When to use the contract to buy and sell (colorado foreclosure protection act) paragraph #15.3.3 of the contract to buy and sell real estate. Colorado sellers residential property disclosure.
Colorado Real Estate Disclosure Laws at Rodney Bruce blog
Seller S Property Disclosure Colorado The printed portions of this form, except differentiated additions, have been approved by. When you sell a home in colorado, you need to make disclosures under the terms of the seller’s property disclosure statement. This statement is part of. When to use the contract to buy and sell (colorado foreclosure protection act) paragraph #15.3.3 of the contract to buy and sell real estate. The clean and redline versions of the documents have been updated for the newly revised seller’s property disclosure for (a) commercial,. Seller states that the information contained in this. This seller’s property disclosure should be completed by seller, not by broker. The printed portions of this form, except differentiated additions, have been approved by. Seller’s property disclosure in a colorado real estate transaction, a seller is obligated to disclosure to a prospective buyer any and all adverse mate. The seller’s property disclosure (spd) is an important disclosure form for the real estate broker to discuss with their respective client. Seller’s property disclosure (residential) this disclosure should be completed by seller, not by broker. Colorado sellers residential property disclosure.
From www.youtube.com
Colorado Seller's Property Disclosure, Inspection Objection Notice Seller S Property Disclosure Colorado Colorado sellers residential property disclosure. When you sell a home in colorado, you need to make disclosures under the terms of the seller’s property disclosure statement. The clean and redline versions of the documents have been updated for the newly revised seller’s property disclosure for (a) commercial,. The printed portions of this form, except differentiated additions, have been approved by.. Seller S Property Disclosure Colorado.
From drive.google.com
Seller's Property DisclosureResidential (fillable).pdf Google Drive Seller S Property Disclosure Colorado The printed portions of this form, except differentiated additions, have been approved by. Colorado sellers residential property disclosure. The seller’s property disclosure (spd) is an important disclosure form for the real estate broker to discuss with their respective client. When you sell a home in colorado, you need to make disclosures under the terms of the seller’s property disclosure statement.. Seller S Property Disclosure Colorado.
From www.templateroller.com
Colorado Seller's Property Disclosure (Residential) Fill Out, Sign Seller S Property Disclosure Colorado When to use the contract to buy and sell (colorado foreclosure protection act) paragraph #15.3.3 of the contract to buy and sell real estate. The clean and redline versions of the documents have been updated for the newly revised seller’s property disclosure for (a) commercial,. Seller’s property disclosure in a colorado real estate transaction, a seller is obligated to disclosure. Seller S Property Disclosure Colorado.
From firstpriorityhomeinspection.com
Home Inspections and Seller's Disclosures in Colorado Springs Seller S Property Disclosure Colorado Seller’s property disclosure (residential) this disclosure should be completed by seller, not by broker. Seller’s property disclosure in a colorado real estate transaction, a seller is obligated to disclosure to a prospective buyer any and all adverse mate. This seller’s property disclosure should be completed by seller, not by broker. When to use the contract to buy and sell (colorado. Seller S Property Disclosure Colorado.
From pdfliner.com
Colorado DORA Sellers Property Disclosure Form (SPD19C) — PDFliner Seller S Property Disclosure Colorado The clean and redline versions of the documents have been updated for the newly revised seller’s property disclosure for (a) commercial,. Seller’s property disclosure (residential) this disclosure should be completed by seller, not by broker. This seller’s property disclosure should be completed by seller, not by broker. When you sell a home in colorado, you need to make disclosures under. Seller S Property Disclosure Colorado.
From www.formsbank.com
Seller'S Property Disclosure (All Types Of Properties) printable pdf Seller S Property Disclosure Colorado Colorado sellers residential property disclosure. The seller’s property disclosure (spd) is an important disclosure form for the real estate broker to discuss with their respective client. The clean and redline versions of the documents have been updated for the newly revised seller’s property disclosure for (a) commercial,. The printed portions of this form, except differentiated additions, have been approved by.. Seller S Property Disclosure Colorado.
From www.houzeo.com
Seller Disclosure Requirements in Colorado Seller S Property Disclosure Colorado When to use the contract to buy and sell (colorado foreclosure protection act) paragraph #15.3.3 of the contract to buy and sell real estate. This statement is part of. Seller’s property disclosure in a colorado real estate transaction, a seller is obligated to disclosure to a prospective buyer any and all adverse mate. Seller’s property disclosure (residential) this disclosure should. Seller S Property Disclosure Colorado.
From www.youtube.com
Seller's Property Disclosure Colorado YouTube Seller S Property Disclosure Colorado When to use the contract to buy and sell (colorado foreclosure protection act) paragraph #15.3.3 of the contract to buy and sell real estate. The printed portions of this form, except differentiated additions, have been approved by. The clean and redline versions of the documents have been updated for the newly revised seller’s property disclosure for (a) commercial,. This seller’s. Seller S Property Disclosure Colorado.
From firstandsold.com
Understanding the Seller's Real Property Disclosures. First&Sold Seller S Property Disclosure Colorado This seller’s property disclosure should be completed by seller, not by broker. This statement is part of. Seller’s property disclosure (residential) this disclosure should be completed by seller, not by broker. When you sell a home in colorado, you need to make disclosures under the terms of the seller’s property disclosure statement. Seller’s property disclosure in a colorado real estate. Seller S Property Disclosure Colorado.
From www.formsbank.com
Seller'S Property Condition Disclosure Statement printable pdf download Seller S Property Disclosure Colorado Seller states that the information contained in this. Seller’s property disclosure in a colorado real estate transaction, a seller is obligated to disclosure to a prospective buyer any and all adverse mate. This statement is part of. When you sell a home in colorado, you need to make disclosures under the terms of the seller’s property disclosure statement. When to. Seller S Property Disclosure Colorado.
From exoxnvyiz.blob.core.windows.net
Colorado Real Estate Disclosure Laws at Rodney Bruce blog Seller S Property Disclosure Colorado Seller’s property disclosure in a colorado real estate transaction, a seller is obligated to disclosure to a prospective buyer any and all adverse mate. The clean and redline versions of the documents have been updated for the newly revised seller’s property disclosure for (a) commercial,. Colorado sellers residential property disclosure. This seller’s property disclosure should be completed by seller, not. Seller S Property Disclosure Colorado.
From www.templateroller.com
Colorado Seller's Property Disclosure (Residential) Fill Out, Sign Seller S Property Disclosure Colorado The clean and redline versions of the documents have been updated for the newly revised seller’s property disclosure for (a) commercial,. The printed portions of this form, except differentiated additions, have been approved by. Seller’s property disclosure in a colorado real estate transaction, a seller is obligated to disclosure to a prospective buyer any and all adverse mate. The seller’s. Seller S Property Disclosure Colorado.
From www.uslegalforms.com
Colorado Seller's Property Disclosure Colorado Sellers Property Seller S Property Disclosure Colorado Seller’s property disclosure in a colorado real estate transaction, a seller is obligated to disclosure to a prospective buyer any and all adverse mate. When you sell a home in colorado, you need to make disclosures under the terms of the seller’s property disclosure statement. This statement is part of. Seller states that the information contained in this. This seller’s. Seller S Property Disclosure Colorado.
From www.lendingtree.com
What Is a Seller’s Disclosure? LendingTree Seller S Property Disclosure Colorado Seller’s property disclosure in a colorado real estate transaction, a seller is obligated to disclosure to a prospective buyer any and all adverse mate. The clean and redline versions of the documents have been updated for the newly revised seller’s property disclosure for (a) commercial,. When you sell a home in colorado, you need to make disclosures under the terms. Seller S Property Disclosure Colorado.
From formspal.com
Real Estate Seller Disclosure 17 PDF Form FormsPal Seller S Property Disclosure Colorado Seller’s property disclosure in a colorado real estate transaction, a seller is obligated to disclosure to a prospective buyer any and all adverse mate. This seller’s property disclosure should be completed by seller, not by broker. This statement is part of. The printed portions of this form, except differentiated additions, have been approved by. Colorado sellers residential property disclosure. The. Seller S Property Disclosure Colorado.
From www.uslegalforms.com
Colorado Seller's Property Disclosure Colorado Sellers Property Seller S Property Disclosure Colorado The seller’s property disclosure (spd) is an important disclosure form for the real estate broker to discuss with their respective client. This seller’s property disclosure should be completed by seller, not by broker. When you sell a home in colorado, you need to make disclosures under the terms of the seller’s property disclosure statement. Seller’s property disclosure (residential) this disclosure. Seller S Property Disclosure Colorado.
From www.uslegalforms.com
Colorado Brokerage Duties Disclosure to Seller US Legal Forms Seller S Property Disclosure Colorado Seller states that the information contained in this. Seller’s property disclosure (residential) this disclosure should be completed by seller, not by broker. When to use the contract to buy and sell (colorado foreclosure protection act) paragraph #15.3.3 of the contract to buy and sell real estate. The seller’s property disclosure (spd) is an important disclosure form for the real estate. Seller S Property Disclosure Colorado.
From www.pdffiller.com
Colorado Seller's Property Disclosure Form Fill Online, Printable Seller S Property Disclosure Colorado Seller states that the information contained in this. This seller’s property disclosure should be completed by seller, not by broker. Colorado sellers residential property disclosure. This statement is part of. The seller’s property disclosure (spd) is an important disclosure form for the real estate broker to discuss with their respective client. Seller’s property disclosure in a colorado real estate transaction,. Seller S Property Disclosure Colorado.
From eforms.com
Free Property Disclosure Statement PDF Word eForms Seller S Property Disclosure Colorado The seller’s property disclosure (spd) is an important disclosure form for the real estate broker to discuss with their respective client. Seller’s property disclosure (residential) this disclosure should be completed by seller, not by broker. When to use the contract to buy and sell (colorado foreclosure protection act) paragraph #15.3.3 of the contract to buy and sell real estate. Colorado. Seller S Property Disclosure Colorado.
From www.templateroller.com
Colorado Seller's Property Disclosure (Residential) Download Fillable Seller S Property Disclosure Colorado Seller’s property disclosure in a colorado real estate transaction, a seller is obligated to disclosure to a prospective buyer any and all adverse mate. Seller’s property disclosure (residential) this disclosure should be completed by seller, not by broker. This seller’s property disclosure should be completed by seller, not by broker. The printed portions of this form, except differentiated additions, have. Seller S Property Disclosure Colorado.
From www.houzeo.com
Seller Disclosure Requirements in Colorado Seller S Property Disclosure Colorado When to use the contract to buy and sell (colorado foreclosure protection act) paragraph #15.3.3 of the contract to buy and sell real estate. Seller’s property disclosure (residential) this disclosure should be completed by seller, not by broker. Seller states that the information contained in this. When you sell a home in colorado, you need to make disclosures under the. Seller S Property Disclosure Colorado.
From www.templateroller.com
Colorado Seller's Property Disclosure (Residential) Fill Out, Sign Seller S Property Disclosure Colorado The printed portions of this form, except differentiated additions, have been approved by. Seller states that the information contained in this. The clean and redline versions of the documents have been updated for the newly revised seller’s property disclosure for (a) commercial,. Colorado sellers residential property disclosure. When you sell a home in colorado, you need to make disclosures under. Seller S Property Disclosure Colorado.
From www.houzeo.com
Seller Disclosure Requirements in Colorado Houzeo Blog Seller S Property Disclosure Colorado Colorado sellers residential property disclosure. The seller’s property disclosure (spd) is an important disclosure form for the real estate broker to discuss with their respective client. This seller’s property disclosure should be completed by seller, not by broker. When to use the contract to buy and sell (colorado foreclosure protection act) paragraph #15.3.3 of the contract to buy and sell. Seller S Property Disclosure Colorado.
From www.templateroller.com
Colorado Seller's Property Disclosure (Residential) Fill Out, Sign Seller S Property Disclosure Colorado The seller’s property disclosure (spd) is an important disclosure form for the real estate broker to discuss with their respective client. The clean and redline versions of the documents have been updated for the newly revised seller’s property disclosure for (a) commercial,. When you sell a home in colorado, you need to make disclosures under the terms of the seller’s. Seller S Property Disclosure Colorado.
From www.uslegalforms.com
Colorado Seller's Property Disclosure Colorado Sellers Property Seller S Property Disclosure Colorado Seller states that the information contained in this. Colorado sellers residential property disclosure. When to use the contract to buy and sell (colorado foreclosure protection act) paragraph #15.3.3 of the contract to buy and sell real estate. When you sell a home in colorado, you need to make disclosures under the terms of the seller’s property disclosure statement. The printed. Seller S Property Disclosure Colorado.
From www.uslegalforms.com
Colorado Residential Real Estate Sales Disclosure Statement US Legal Seller S Property Disclosure Colorado Seller states that the information contained in this. Colorado sellers residential property disclosure. The printed portions of this form, except differentiated additions, have been approved by. Seller’s property disclosure in a colorado real estate transaction, a seller is obligated to disclosure to a prospective buyer any and all adverse mate. When you sell a home in colorado, you need to. Seller S Property Disclosure Colorado.
From www.templateroller.com
Colorado Seller's Property Disclosure (Residential) Download Fillable Seller S Property Disclosure Colorado When to use the contract to buy and sell (colorado foreclosure protection act) paragraph #15.3.3 of the contract to buy and sell real estate. This seller’s property disclosure should be completed by seller, not by broker. Seller’s property disclosure (residential) this disclosure should be completed by seller, not by broker. When you sell a home in colorado, you need to. Seller S Property Disclosure Colorado.
From www.templateroller.com
Colorado Seller's Property Disclosure (Residential) Download Fillable Seller S Property Disclosure Colorado This seller’s property disclosure should be completed by seller, not by broker. The printed portions of this form, except differentiated additions, have been approved by. Seller states that the information contained in this. Seller’s property disclosure in a colorado real estate transaction, a seller is obligated to disclosure to a prospective buyer any and all adverse mate. The seller’s property. Seller S Property Disclosure Colorado.
From seattlepropertylawyer.com
Seller Disclosure Statement (Form 17) Explained — Real Estate Lawyer Seller S Property Disclosure Colorado This statement is part of. This seller’s property disclosure should be completed by seller, not by broker. The clean and redline versions of the documents have been updated for the newly revised seller’s property disclosure for (a) commercial,. The printed portions of this form, except differentiated additions, have been approved by. Seller states that the information contained in this. When. Seller S Property Disclosure Colorado.
From www.uslegalforms.com
Colorado Seller's Property Disclosure Colorado Sellers Property Seller S Property Disclosure Colorado This seller’s property disclosure should be completed by seller, not by broker. When to use the contract to buy and sell (colorado foreclosure protection act) paragraph #15.3.3 of the contract to buy and sell real estate. This statement is part of. Seller’s property disclosure (residential) this disclosure should be completed by seller, not by broker. The seller’s property disclosure (spd). Seller S Property Disclosure Colorado.
From www.signnow.com
Colorado Seller Disclosure Complete with ease airSlate SignNow Seller S Property Disclosure Colorado Seller’s property disclosure in a colorado real estate transaction, a seller is obligated to disclosure to a prospective buyer any and all adverse mate. When to use the contract to buy and sell (colorado foreclosure protection act) paragraph #15.3.3 of the contract to buy and sell real estate. Seller states that the information contained in this. When you sell a. Seller S Property Disclosure Colorado.
From www.uslegalforms.com
Colorado Seller's Property Disclosure Colorado Sellers Property Seller S Property Disclosure Colorado This statement is part of. Seller’s property disclosure (residential) this disclosure should be completed by seller, not by broker. Colorado sellers residential property disclosure. When you sell a home in colorado, you need to make disclosures under the terms of the seller’s property disclosure statement. This seller’s property disclosure should be completed by seller, not by broker. Seller states that. Seller S Property Disclosure Colorado.
From www.uslegalforms.com
Seller's Property Disclosure Statement Form DSC8000 Fill and Sign Seller S Property Disclosure Colorado Seller states that the information contained in this. Seller’s property disclosure (residential) this disclosure should be completed by seller, not by broker. The clean and redline versions of the documents have been updated for the newly revised seller’s property disclosure for (a) commercial,. Seller’s property disclosure in a colorado real estate transaction, a seller is obligated to disclosure to a. Seller S Property Disclosure Colorado.
From www.templateroller.com
Colorado Seller's Property Disclosure (Residential) Fill Out, Sign Seller S Property Disclosure Colorado Seller’s property disclosure (residential) this disclosure should be completed by seller, not by broker. The clean and redline versions of the documents have been updated for the newly revised seller’s property disclosure for (a) commercial,. Seller states that the information contained in this. This statement is part of. When to use the contract to buy and sell (colorado foreclosure protection. Seller S Property Disclosure Colorado.
From printableformsfree.com
Fillable Colorado Seller Disclosure Form Printable Forms Free Online Seller S Property Disclosure Colorado Seller’s property disclosure in a colorado real estate transaction, a seller is obligated to disclosure to a prospective buyer any and all adverse mate. When to use the contract to buy and sell (colorado foreclosure protection act) paragraph #15.3.3 of the contract to buy and sell real estate. This statement is part of. Seller states that the information contained in. Seller S Property Disclosure Colorado.