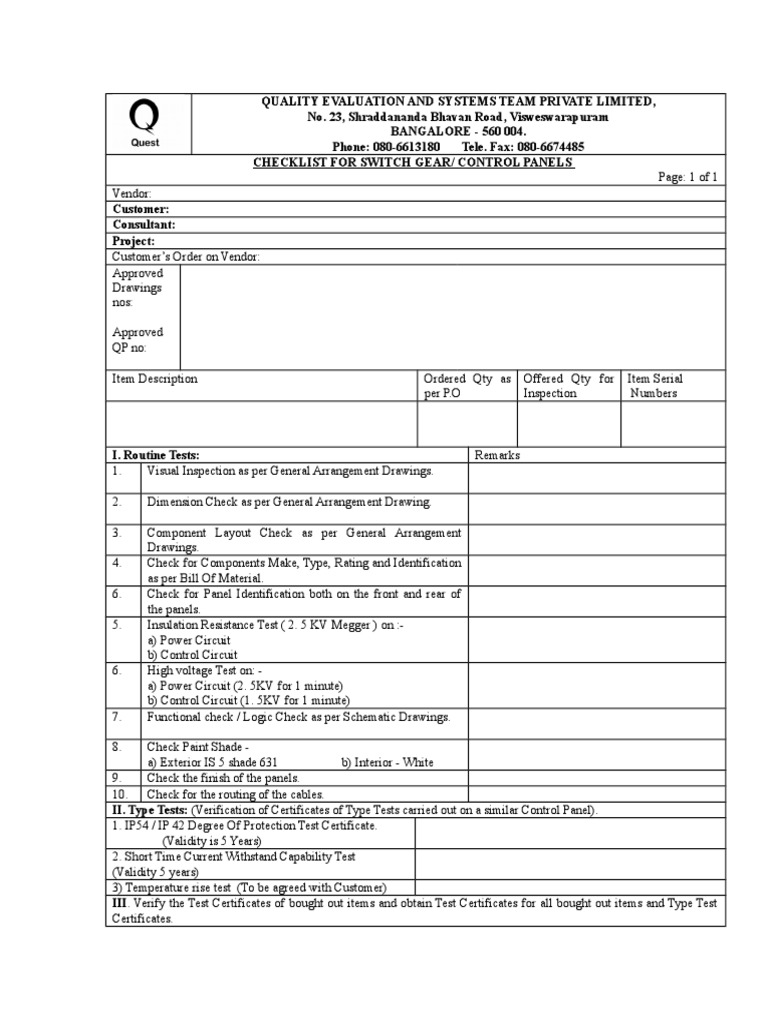
Control Panel Installation Checklist . Use this checklist to easily inspect control systems, wiring, sensors, field control devices, and the site communications network. This checklist includes system configuration, visual. A properly conducted checklist is essential for making sure the plc panel performs exactly as intended. These are some of inspection points which need to be witnessed, checked, monitored and reviewed by third party inspector in control panel. To give an idea of the many components, equipment, accessories, and devices available to complete an automation control system and. In this post, we share a free electrical panel inspection checklist for technicians to use during electrical installations, inspections, or maintenance visits. I leave it to the reader to use. The goal is to produce a panel that is logically arranged and easy to maintain for the life of control panel. A panel builder’s component checklist.
from www.scribd.com
Use this checklist to easily inspect control systems, wiring, sensors, field control devices, and the site communications network. A properly conducted checklist is essential for making sure the plc panel performs exactly as intended. To give an idea of the many components, equipment, accessories, and devices available to complete an automation control system and. I leave it to the reader to use. This checklist includes system configuration, visual. These are some of inspection points which need to be witnessed, checked, monitored and reviewed by third party inspector in control panel. The goal is to produce a panel that is logically arranged and easy to maintain for the life of control panel. A panel builder’s component checklist. In this post, we share a free electrical panel inspection checklist for technicians to use during electrical installations, inspections, or maintenance visits.
Electrical Panel Checklist PDF
Control Panel Installation Checklist Use this checklist to easily inspect control systems, wiring, sensors, field control devices, and the site communications network. I leave it to the reader to use. The goal is to produce a panel that is logically arranged and easy to maintain for the life of control panel. A panel builder’s component checklist. To give an idea of the many components, equipment, accessories, and devices available to complete an automation control system and. In this post, we share a free electrical panel inspection checklist for technicians to use during electrical installations, inspections, or maintenance visits. Use this checklist to easily inspect control systems, wiring, sensors, field control devices, and the site communications network. A properly conducted checklist is essential for making sure the plc panel performs exactly as intended. These are some of inspection points which need to be witnessed, checked, monitored and reviewed by third party inspector in control panel. This checklist includes system configuration, visual.
From energypedia.info
FileInstallation Control Checklist.pdf energypedia Control Panel Installation Checklist The goal is to produce a panel that is logically arranged and easy to maintain for the life of control panel. This checklist includes system configuration, visual. These are some of inspection points which need to be witnessed, checked, monitored and reviewed by third party inspector in control panel. In this post, we share a free electrical panel inspection checklist. Control Panel Installation Checklist.
From www.researchgate.net
TOOLING CONTROL CHECKLIST Download Table Control Panel Installation Checklist The goal is to produce a panel that is logically arranged and easy to maintain for the life of control panel. These are some of inspection points which need to be witnessed, checked, monitored and reviewed by third party inspector in control panel. I leave it to the reader to use. A properly conducted checklist is essential for making sure. Control Panel Installation Checklist.
From mavink.com
Equipment Installation Checklist Template Control Panel Installation Checklist The goal is to produce a panel that is logically arranged and easy to maintain for the life of control panel. These are some of inspection points which need to be witnessed, checked, monitored and reviewed by third party inspector in control panel. A panel builder’s component checklist. In this post, we share a free electrical panel inspection checklist for. Control Panel Installation Checklist.
From sitemate.com
HVAC Inspection Checklist Template Better Than Excel or PDF Control Panel Installation Checklist To give an idea of the many components, equipment, accessories, and devices available to complete an automation control system and. These are some of inspection points which need to be witnessed, checked, monitored and reviewed by third party inspector in control panel. A panel builder’s component checklist. In this post, we share a free electrical panel inspection checklist for technicians. Control Panel Installation Checklist.
From www.scribd.com
Commissioning Checklist 3.11.10 Hvac Architectural Design Control Panel Installation Checklist These are some of inspection points which need to be witnessed, checked, monitored and reviewed by third party inspector in control panel. This checklist includes system configuration, visual. Use this checklist to easily inspect control systems, wiring, sensors, field control devices, and the site communications network. A panel builder’s component checklist. A properly conducted checklist is essential for making sure. Control Panel Installation Checklist.
From www.uslegalforms.com
Switchboard Inspection Checklist Fill and Sign Printable Template Control Panel Installation Checklist These are some of inspection points which need to be witnessed, checked, monitored and reviewed by third party inspector in control panel. The goal is to produce a panel that is logically arranged and easy to maintain for the life of control panel. To give an idea of the many components, equipment, accessories, and devices available to complete an automation. Control Panel Installation Checklist.
From www.designingbuildings.co.uk
Quality checklist Designing Buildings Control Panel Installation Checklist To give an idea of the many components, equipment, accessories, and devices available to complete an automation control system and. These are some of inspection points which need to be witnessed, checked, monitored and reviewed by third party inspector in control panel. In this post, we share a free electrical panel inspection checklist for technicians to use during electrical installations,. Control Panel Installation Checklist.
From sitemate.com
Electrical Tool Inspection Checklist (Free to use and customisable) Control Panel Installation Checklist To give an idea of the many components, equipment, accessories, and devices available to complete an automation control system and. This checklist includes system configuration, visual. A panel builder’s component checklist. In this post, we share a free electrical panel inspection checklist for technicians to use during electrical installations, inspections, or maintenance visits. The goal is to produce a panel. Control Panel Installation Checklist.
From thesolarhub.org
The Solar Hub Installation Control Checklist Solar Pumping Control Panel Installation Checklist Use this checklist to easily inspect control systems, wiring, sensors, field control devices, and the site communications network. The goal is to produce a panel that is logically arranged and easy to maintain for the life of control panel. A panel builder’s component checklist. These are some of inspection points which need to be witnessed, checked, monitored and reviewed by. Control Panel Installation Checklist.
From www.finnleyelectrical.com.au
Electrical Inspection Checklist [Free Download] Finnley Electrical Control Panel Installation Checklist A panel builder’s component checklist. In this post, we share a free electrical panel inspection checklist for technicians to use during electrical installations, inspections, or maintenance visits. Use this checklist to easily inspect control systems, wiring, sensors, field control devices, and the site communications network. These are some of inspection points which need to be witnessed, checked, monitored and reviewed. Control Panel Installation Checklist.
From www.lceted.com
Quality inspection checklist for Electrical works Installation of Control Panel Installation Checklist I leave it to the reader to use. These are some of inspection points which need to be witnessed, checked, monitored and reviewed by third party inspector in control panel. This checklist includes system configuration, visual. In this post, we share a free electrical panel inspection checklist for technicians to use during electrical installations, inspections, or maintenance visits. A panel. Control Panel Installation Checklist.
From forumautomation.com
Checklist download Field Instrumentation Control Panel Installation Checklist In this post, we share a free electrical panel inspection checklist for technicians to use during electrical installations, inspections, or maintenance visits. A properly conducted checklist is essential for making sure the plc panel performs exactly as intended. I leave it to the reader to use. Use this checklist to easily inspect control systems, wiring, sensors, field control devices, and. Control Panel Installation Checklist.
From hsseworld.com
Electrical Inspection Checklists Control Panel Installation Checklist Use this checklist to easily inspect control systems, wiring, sensors, field control devices, and the site communications network. A properly conducted checklist is essential for making sure the plc panel performs exactly as intended. In this post, we share a free electrical panel inspection checklist for technicians to use during electrical installations, inspections, or maintenance visits. The goal is to. Control Panel Installation Checklist.
From manuallistcantabank.z21.web.core.windows.net
Electrical Control Panel Inspection Checklist Control Panel Installation Checklist I leave it to the reader to use. In this post, we share a free electrical panel inspection checklist for technicians to use during electrical installations, inspections, or maintenance visits. A properly conducted checklist is essential for making sure the plc panel performs exactly as intended. The goal is to produce a panel that is logically arranged and easy to. Control Panel Installation Checklist.
From www.signnow.com
Installation Checklist Template Complete with ease airSlate SignNow Control Panel Installation Checklist These are some of inspection points which need to be witnessed, checked, monitored and reviewed by third party inspector in control panel. A panel builder’s component checklist. To give an idea of the many components, equipment, accessories, and devices available to complete an automation control system and. A properly conducted checklist is essential for making sure the plc panel performs. Control Panel Installation Checklist.
From www.scribd.com
Panel Check List Control Panel Installation Checklist The goal is to produce a panel that is logically arranged and easy to maintain for the life of control panel. Use this checklist to easily inspect control systems, wiring, sensors, field control devices, and the site communications network. These are some of inspection points which need to be witnessed, checked, monitored and reviewed by third party inspector in control. Control Panel Installation Checklist.
From templates.rjuuc.edu.np
Hvac Install Checklist Template Control Panel Installation Checklist These are some of inspection points which need to be witnessed, checked, monitored and reviewed by third party inspector in control panel. In this post, we share a free electrical panel inspection checklist for technicians to use during electrical installations, inspections, or maintenance visits. A properly conducted checklist is essential for making sure the plc panel performs exactly as intended.. Control Panel Installation Checklist.
From inspectionandtestplan.com
Full ITP for MCC's & Switchgear Installation with Checklists [Editable] Control Panel Installation Checklist These are some of inspection points which need to be witnessed, checked, monitored and reviewed by third party inspector in control panel. The goal is to produce a panel that is logically arranged and easy to maintain for the life of control panel. This checklist includes system configuration, visual. I leave it to the reader to use. Use this checklist. Control Panel Installation Checklist.
From www.scribd.com
Electrical Panel Checklist PDF Control Panel Installation Checklist Use this checklist to easily inspect control systems, wiring, sensors, field control devices, and the site communications network. In this post, we share a free electrical panel inspection checklist for technicians to use during electrical installations, inspections, or maintenance visits. To give an idea of the many components, equipment, accessories, and devices available to complete an automation control system and.. Control Panel Installation Checklist.
From sitemate.com
Electrical Quality Control Checklist [Free and editable template] Control Panel Installation Checklist The goal is to produce a panel that is logically arranged and easy to maintain for the life of control panel. To give an idea of the many components, equipment, accessories, and devices available to complete an automation control system and. Use this checklist to easily inspect control systems, wiring, sensors, field control devices, and the site communications network. These. Control Panel Installation Checklist.
From electrical-engineering-portal.com
Electrical Inspection Checklists (Checking, Verifying and Reviewing Control Panel Installation Checklist The goal is to produce a panel that is logically arranged and easy to maintain for the life of control panel. A properly conducted checklist is essential for making sure the plc panel performs exactly as intended. A panel builder’s component checklist. These are some of inspection points which need to be witnessed, checked, monitored and reviewed by third party. Control Panel Installation Checklist.
From www.scribd.com
Electrical Wiring Control Panel Installation Checklist Use this checklist to easily inspect control systems, wiring, sensors, field control devices, and the site communications network. A properly conducted checklist is essential for making sure the plc panel performs exactly as intended. This checklist includes system configuration, visual. I leave it to the reader to use. To give an idea of the many components, equipment, accessories, and devices. Control Panel Installation Checklist.
From sitemate.com
Electrical Quality Control Checklist [Free and editable template] Control Panel Installation Checklist This checklist includes system configuration, visual. These are some of inspection points which need to be witnessed, checked, monitored and reviewed by third party inspector in control panel. I leave it to the reader to use. To give an idea of the many components, equipment, accessories, and devices available to complete an automation control system and. The goal is to. Control Panel Installation Checklist.
From www.maitzhomeservices.com
Electrical Preventive Maintenance Checklist 2023 Control Panel Installation Checklist I leave it to the reader to use. In this post, we share a free electrical panel inspection checklist for technicians to use during electrical installations, inspections, or maintenance visits. These are some of inspection points which need to be witnessed, checked, monitored and reviewed by third party inspector in control panel. Use this checklist to easily inspect control systems,. Control Panel Installation Checklist.
From www.scribd.com
Checklist Control Panel PDF Control Panel Installation Checklist To give an idea of the many components, equipment, accessories, and devices available to complete an automation control system and. These are some of inspection points which need to be witnessed, checked, monitored and reviewed by third party inspector in control panel. A properly conducted checklist is essential for making sure the plc panel performs exactly as intended. The goal. Control Panel Installation Checklist.
From www.signnow.com
Electrical Panel Inspection Checklist in Excel 20142024 Form Fill Control Panel Installation Checklist This checklist includes system configuration, visual. A panel builder’s component checklist. The goal is to produce a panel that is logically arranged and easy to maintain for the life of control panel. A properly conducted checklist is essential for making sure the plc panel performs exactly as intended. These are some of inspection points which need to be witnessed, checked,. Control Panel Installation Checklist.
From inspectionandtestplan.com
Full ITP for MCC's & Switchgear Installation with Checklists [Editable] Control Panel Installation Checklist In this post, we share a free electrical panel inspection checklist for technicians to use during electrical installations, inspections, or maintenance visits. To give an idea of the many components, equipment, accessories, and devices available to complete an automation control system and. This checklist includes system configuration, visual. A panel builder’s component checklist. These are some of inspection points which. Control Panel Installation Checklist.
From energypedia.info
FileInstallation Control Checklist.pdf energypedia.info Control Panel Installation Checklist Use this checklist to easily inspect control systems, wiring, sensors, field control devices, and the site communications network. These are some of inspection points which need to be witnessed, checked, monitored and reviewed by third party inspector in control panel. This checklist includes system configuration, visual. I leave it to the reader to use. A properly conducted checklist is essential. Control Panel Installation Checklist.
From www.files.construction
QAQC Checklist Drywall Ceilings Construction Documents And Templates Control Panel Installation Checklist The goal is to produce a panel that is logically arranged and easy to maintain for the life of control panel. This checklist includes system configuration, visual. A panel builder’s component checklist. These are some of inspection points which need to be witnessed, checked, monitored and reviewed by third party inspector in control panel. In this post, we share a. Control Panel Installation Checklist.
From www.slideshare.net
Panel checklist Control Panel Installation Checklist In this post, we share a free electrical panel inspection checklist for technicians to use during electrical installations, inspections, or maintenance visits. Use this checklist to easily inspect control systems, wiring, sensors, field control devices, and the site communications network. This checklist includes system configuration, visual. I leave it to the reader to use. The goal is to produce a. Control Panel Installation Checklist.
From automationforum.co
Comprehensive PLC Panel Installation and Commissioning Checklist Control Panel Installation Checklist I leave it to the reader to use. The goal is to produce a panel that is logically arranged and easy to maintain for the life of control panel. To give an idea of the many components, equipment, accessories, and devices available to complete an automation control system and. A properly conducted checklist is essential for making sure the plc. Control Panel Installation Checklist.
From www.scribd.com
Checklist of Panels 00047 New PDF Electrical Connector Components Control Panel Installation Checklist To give an idea of the many components, equipment, accessories, and devices available to complete an automation control system and. The goal is to produce a panel that is logically arranged and easy to maintain for the life of control panel. Use this checklist to easily inspect control systems, wiring, sensors, field control devices, and the site communications network. A. Control Panel Installation Checklist.
From electricalengineering123.com
Inspection checklist for LV panels installations Electrical Control Panel Installation Checklist Use this checklist to easily inspect control systems, wiring, sensors, field control devices, and the site communications network. In this post, we share a free electrical panel inspection checklist for technicians to use during electrical installations, inspections, or maintenance visits. I leave it to the reader to use. A panel builder’s component checklist. These are some of inspection points which. Control Panel Installation Checklist.
From www.scribd.com
Checklist Control Panel Control Panel Installation Checklist The goal is to produce a panel that is logically arranged and easy to maintain for the life of control panel. To give an idea of the many components, equipment, accessories, and devices available to complete an automation control system and. Use this checklist to easily inspect control systems, wiring, sensors, field control devices, and the site communications network. A. Control Panel Installation Checklist.
From inspectionandtestplan.com
Full ITP for Instrument Control Panels, Consoles & Desks Installation Control Panel Installation Checklist To give an idea of the many components, equipment, accessories, and devices available to complete an automation control system and. The goal is to produce a panel that is logically arranged and easy to maintain for the life of control panel. These are some of inspection points which need to be witnessed, checked, monitored and reviewed by third party inspector. Control Panel Installation Checklist.