Washington County Oregon Property Tax Exemption . A complete list of exemption and special assessment programs can be found in the property tax section (chapter 2) of the current. We can help you understand the county's appraisal and assessment of your property, paying your property taxes, getting a marriage license, passports, recording. Learn about state programs to defer or reduce property tax obligations for various groups and situations. The city of hillsboro administers this program and coordinates closely with the washington county office of. Find links to eligibility criteria,. Each person qualifying for the exemption under ors 307.286 (homestead exemption) shall file with the county assessor, on forms supplied by. To qualify for this exemption, the lessee, sublessee, or entity in possession of the property must be using the property for their exempt. If you qualify for the program, oregon department of revenue will pay your county property taxes on november 15 of each year.
from www.lendingtree.com
A complete list of exemption and special assessment programs can be found in the property tax section (chapter 2) of the current. Find links to eligibility criteria,. To qualify for this exemption, the lessee, sublessee, or entity in possession of the property must be using the property for their exempt. Learn about state programs to defer or reduce property tax obligations for various groups and situations. Each person qualifying for the exemption under ors 307.286 (homestead exemption) shall file with the county assessor, on forms supplied by. If you qualify for the program, oregon department of revenue will pay your county property taxes on november 15 of each year. The city of hillsboro administers this program and coordinates closely with the washington county office of. We can help you understand the county's appraisal and assessment of your property, paying your property taxes, getting a marriage license, passports, recording.
What Is a Homestead Exemption and How Does It Work? LendingTree
Washington County Oregon Property Tax Exemption If you qualify for the program, oregon department of revenue will pay your county property taxes on november 15 of each year. Learn about state programs to defer or reduce property tax obligations for various groups and situations. If you qualify for the program, oregon department of revenue will pay your county property taxes on november 15 of each year. The city of hillsboro administers this program and coordinates closely with the washington county office of. To qualify for this exemption, the lessee, sublessee, or entity in possession of the property must be using the property for their exempt. Find links to eligibility criteria,. Each person qualifying for the exemption under ors 307.286 (homestead exemption) shall file with the county assessor, on forms supplied by. We can help you understand the county's appraisal and assessment of your property, paying your property taxes, getting a marriage license, passports, recording. A complete list of exemption and special assessment programs can be found in the property tax section (chapter 2) of the current.
From www.templateroller.com
Download Instructions for Form ORW4, 150101402 Oregon Withholding Washington County Oregon Property Tax Exemption A complete list of exemption and special assessment programs can be found in the property tax section (chapter 2) of the current. Each person qualifying for the exemption under ors 307.286 (homestead exemption) shall file with the county assessor, on forms supplied by. To qualify for this exemption, the lessee, sublessee, or entity in possession of the property must be. Washington County Oregon Property Tax Exemption.
From www.formsbank.com
Top 21 Property Tax Exemption Form Templates free to download in PDF format Washington County Oregon Property Tax Exemption To qualify for this exemption, the lessee, sublessee, or entity in possession of the property must be using the property for their exempt. We can help you understand the county's appraisal and assessment of your property, paying your property taxes, getting a marriage license, passports, recording. The city of hillsboro administers this program and coordinates closely with the washington county. Washington County Oregon Property Tax Exemption.
From itrfoundation.org
Credit Versus Exemption in Homestead Property Tax Relief ITR Foundation Washington County Oregon Property Tax Exemption Find links to eligibility criteria,. Learn about state programs to defer or reduce property tax obligations for various groups and situations. We can help you understand the county's appraisal and assessment of your property, paying your property taxes, getting a marriage license, passports, recording. Each person qualifying for the exemption under ors 307.286 (homestead exemption) shall file with the county. Washington County Oregon Property Tax Exemption.
From www.templateroller.com
Download Instructions for Form ORAOOAH, 150310667 Application for Washington County Oregon Property Tax Exemption We can help you understand the county's appraisal and assessment of your property, paying your property taxes, getting a marriage license, passports, recording. If you qualify for the program, oregon department of revenue will pay your county property taxes on november 15 of each year. Each person qualifying for the exemption under ors 307.286 (homestead exemption) shall file with the. Washington County Oregon Property Tax Exemption.
From www.oregonlive.com
Property tax rates in Oregon's 36 counties, ranked Washington County Oregon Property Tax Exemption We can help you understand the county's appraisal and assessment of your property, paying your property taxes, getting a marriage license, passports, recording. The city of hillsboro administers this program and coordinates closely with the washington county office of. Learn about state programs to defer or reduce property tax obligations for various groups and situations. A complete list of exemption. Washington County Oregon Property Tax Exemption.
From taxfoundation.org
Does Your State Have an Estate Tax or Inheritance Tax? Tax Foundation Washington County Oregon Property Tax Exemption Learn about state programs to defer or reduce property tax obligations for various groups and situations. A complete list of exemption and special assessment programs can be found in the property tax section (chapter 2) of the current. If you qualify for the program, oregon department of revenue will pay your county property taxes on november 15 of each year.. Washington County Oregon Property Tax Exemption.
From www.youtube.com
Understanding Oregon Property Taxes YouTube Washington County Oregon Property Tax Exemption Find links to eligibility criteria,. The city of hillsboro administers this program and coordinates closely with the washington county office of. A complete list of exemption and special assessment programs can be found in the property tax section (chapter 2) of the current. To qualify for this exemption, the lessee, sublessee, or entity in possession of the property must be. Washington County Oregon Property Tax Exemption.
From leadershipcraft.com
Discover The Ins And Outs Of Washington County Property Taxes Washington County Oregon Property Tax Exemption A complete list of exemption and special assessment programs can be found in the property tax section (chapter 2) of the current. Learn about state programs to defer or reduce property tax obligations for various groups and situations. We can help you understand the county's appraisal and assessment of your property, paying your property taxes, getting a marriage license, passports,. Washington County Oregon Property Tax Exemption.
From www.templateroller.com
Form 150310091 Download Fillable PDF or Fill Online Application for Washington County Oregon Property Tax Exemption If you qualify for the program, oregon department of revenue will pay your county property taxes on november 15 of each year. A complete list of exemption and special assessment programs can be found in the property tax section (chapter 2) of the current. The city of hillsboro administers this program and coordinates closely with the washington county office of.. Washington County Oregon Property Tax Exemption.
From www.mossadams.com
Oregon Property Tax Exemption for Machinery and Equipment Washington County Oregon Property Tax Exemption The city of hillsboro administers this program and coordinates closely with the washington county office of. To qualify for this exemption, the lessee, sublessee, or entity in possession of the property must be using the property for their exempt. Each person qualifying for the exemption under ors 307.286 (homestead exemption) shall file with the county assessor, on forms supplied by.. Washington County Oregon Property Tax Exemption.
From www.exemptform.com
FREE 8 Sample Tax Exemption Forms In PDF MS Word Washington County Oregon Property Tax Exemption If you qualify for the program, oregon department of revenue will pay your county property taxes on november 15 of each year. A complete list of exemption and special assessment programs can be found in the property tax section (chapter 2) of the current. We can help you understand the county's appraisal and assessment of your property, paying your property. Washington County Oregon Property Tax Exemption.
From www.youtube.com
Where Can I Find Washington County, Oregon Property Records Washington County Oregon Property Tax Exemption A complete list of exemption and special assessment programs can be found in the property tax section (chapter 2) of the current. The city of hillsboro administers this program and coordinates closely with the washington county office of. To qualify for this exemption, the lessee, sublessee, or entity in possession of the property must be using the property for their. Washington County Oregon Property Tax Exemption.
From www.oregonlive.com
Property tax rates in Oregon's 36 counties, ranked Washington County Oregon Property Tax Exemption Find links to eligibility criteria,. If you qualify for the program, oregon department of revenue will pay your county property taxes on november 15 of each year. Learn about state programs to defer or reduce property tax obligations for various groups and situations. The city of hillsboro administers this program and coordinates closely with the washington county office of. We. Washington County Oregon Property Tax Exemption.
From www.reddit.com
Property Tax Exemptions available to Plano Homeowners r/plano Washington County Oregon Property Tax Exemption If you qualify for the program, oregon department of revenue will pay your county property taxes on november 15 of each year. To qualify for this exemption, the lessee, sublessee, or entity in possession of the property must be using the property for their exempt. We can help you understand the county's appraisal and assessment of your property, paying your. Washington County Oregon Property Tax Exemption.
From www.pdffiller.com
Washington County Transfer Tax Exemption Form Fill Online, Printable Washington County Oregon Property Tax Exemption A complete list of exemption and special assessment programs can be found in the property tax section (chapter 2) of the current. Each person qualifying for the exemption under ors 307.286 (homestead exemption) shall file with the county assessor, on forms supplied by. Find links to eligibility criteria,. Learn about state programs to defer or reduce property tax obligations for. Washington County Oregon Property Tax Exemption.
From www.sampleforms.com
FREE 10+ Sample Tax Exemption Forms in PDF MS Word Washington County Oregon Property Tax Exemption To qualify for this exemption, the lessee, sublessee, or entity in possession of the property must be using the property for their exempt. Each person qualifying for the exemption under ors 307.286 (homestead exemption) shall file with the county assessor, on forms supplied by. If you qualify for the program, oregon department of revenue will pay your county property taxes. Washington County Oregon Property Tax Exemption.
From studylib.net
Residential Property Tax Exemption Program, Residential Property Washington County Oregon Property Tax Exemption If you qualify for the program, oregon department of revenue will pay your county property taxes on november 15 of each year. Find links to eligibility criteria,. A complete list of exemption and special assessment programs can be found in the property tax section (chapter 2) of the current. To qualify for this exemption, the lessee, sublessee, or entity in. Washington County Oregon Property Tax Exemption.
From www.charlescitypress.com
Senior homeowners urged to apply for new property tax exemption before Washington County Oregon Property Tax Exemption Each person qualifying for the exemption under ors 307.286 (homestead exemption) shall file with the county assessor, on forms supplied by. The city of hillsboro administers this program and coordinates closely with the washington county office of. To qualify for this exemption, the lessee, sublessee, or entity in possession of the property must be using the property for their exempt.. Washington County Oregon Property Tax Exemption.
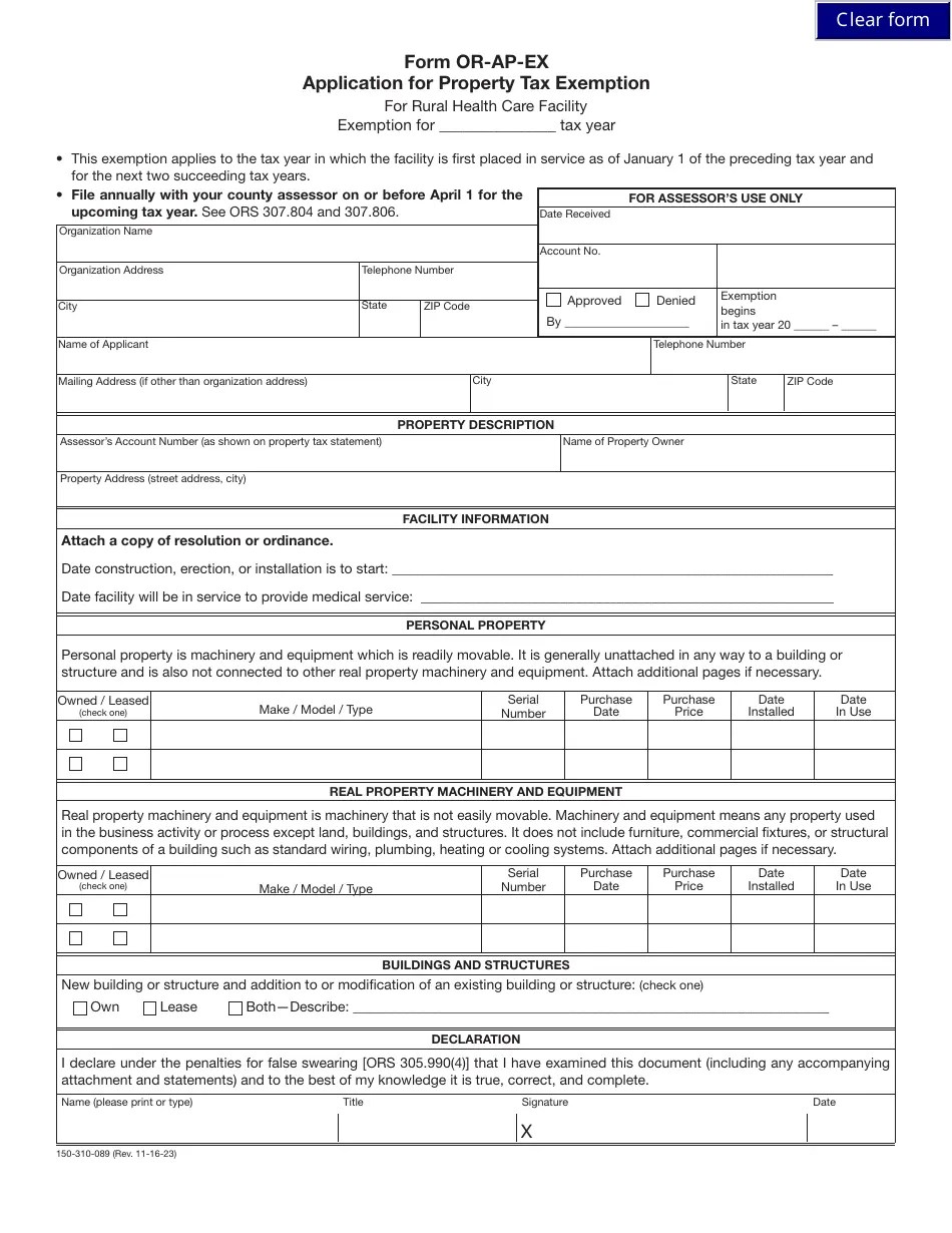
From www.templateroller.com
Form ORAPEX (150310089) Fill Out, Sign Online and Download Washington County Oregon Property Tax Exemption Find links to eligibility criteria,. We can help you understand the county's appraisal and assessment of your property, paying your property taxes, getting a marriage license, passports, recording. To qualify for this exemption, the lessee, sublessee, or entity in possession of the property must be using the property for their exempt. Learn about state programs to defer or reduce property. Washington County Oregon Property Tax Exemption.
From www.signnow.com
Personal Property Tax Jefferson County Mo 20192024 Form Fill Out and Washington County Oregon Property Tax Exemption We can help you understand the county's appraisal and assessment of your property, paying your property taxes, getting a marriage license, passports, recording. A complete list of exemption and special assessment programs can be found in the property tax section (chapter 2) of the current. Learn about state programs to defer or reduce property tax obligations for various groups and. Washington County Oregon Property Tax Exemption.
From www.exemptform.com
State Tax Exemption Form Oregon Washington County Oregon Property Tax Exemption To qualify for this exemption, the lessee, sublessee, or entity in possession of the property must be using the property for their exempt. Find links to eligibility criteria,. Each person qualifying for the exemption under ors 307.286 (homestead exemption) shall file with the county assessor, on forms supplied by. A complete list of exemption and special assessment programs can be. Washington County Oregon Property Tax Exemption.
From portlandrealestateblog.com
Washington County Property Taxes Portland Real Estate Blog Lovejoy Washington County Oregon Property Tax Exemption We can help you understand the county's appraisal and assessment of your property, paying your property taxes, getting a marriage license, passports, recording. If you qualify for the program, oregon department of revenue will pay your county property taxes on november 15 of each year. The city of hillsboro administers this program and coordinates closely with the washington county office. Washington County Oregon Property Tax Exemption.
From www.formsbank.com
Property Tax Exemptions For Senior Citizens And Disabled Persons Washington County Oregon Property Tax Exemption Learn about state programs to defer or reduce property tax obligations for various groups and situations. Find links to eligibility criteria,. If you qualify for the program, oregon department of revenue will pay your county property taxes on november 15 of each year. Each person qualifying for the exemption under ors 307.286 (homestead exemption) shall file with the county assessor,. Washington County Oregon Property Tax Exemption.
From www.exemptform.com
State Tax Exemption Form Oregon Washington County Oregon Property Tax Exemption The city of hillsboro administers this program and coordinates closely with the washington county office of. Find links to eligibility criteria,. To qualify for this exemption, the lessee, sublessee, or entity in possession of the property must be using the property for their exempt. A complete list of exemption and special assessment programs can be found in the property tax. Washington County Oregon Property Tax Exemption.
From taxfoundation.org
Property Taxes by State & County Median Property Tax Bills Washington County Oregon Property Tax Exemption We can help you understand the county's appraisal and assessment of your property, paying your property taxes, getting a marriage license, passports, recording. Each person qualifying for the exemption under ors 307.286 (homestead exemption) shall file with the county assessor, on forms supplied by. Learn about state programs to defer or reduce property tax obligations for various groups and situations.. Washington County Oregon Property Tax Exemption.
From slideplayer.com
Property Tax Reform The League of Oregon Cities is committed to Washington County Oregon Property Tax Exemption The city of hillsboro administers this program and coordinates closely with the washington county office of. To qualify for this exemption, the lessee, sublessee, or entity in possession of the property must be using the property for their exempt. We can help you understand the county's appraisal and assessment of your property, paying your property taxes, getting a marriage license,. Washington County Oregon Property Tax Exemption.
From www.exemptform.com
Oregon Sales Tax Exemption Form Washington County Oregon Property Tax Exemption If you qualify for the program, oregon department of revenue will pay your county property taxes on november 15 of each year. To qualify for this exemption, the lessee, sublessee, or entity in possession of the property must be using the property for their exempt. Each person qualifying for the exemption under ors 307.286 (homestead exemption) shall file with the. Washington County Oregon Property Tax Exemption.
From www.sampletemplates.com
FREE 10+ Sample Tax Exemption Forms in PDF Washington County Oregon Property Tax Exemption Find links to eligibility criteria,. To qualify for this exemption, the lessee, sublessee, or entity in possession of the property must be using the property for their exempt. We can help you understand the county's appraisal and assessment of your property, paying your property taxes, getting a marriage license, passports, recording. A complete list of exemption and special assessment programs. Washington County Oregon Property Tax Exemption.
From www.formsbank.com
Fillable Short Form Property Tax Exemption For Seniors 2017 Washington County Oregon Property Tax Exemption A complete list of exemption and special assessment programs can be found in the property tax section (chapter 2) of the current. If you qualify for the program, oregon department of revenue will pay your county property taxes on november 15 of each year. Each person qualifying for the exemption under ors 307.286 (homestead exemption) shall file with the county. Washington County Oregon Property Tax Exemption.
From www.exemptform.com
What Is A Tax Exemption Form Washington County Oregon Property Tax Exemption Learn about state programs to defer or reduce property tax obligations for various groups and situations. If you qualify for the program, oregon department of revenue will pay your county property taxes on november 15 of each year. Find links to eligibility criteria,. A complete list of exemption and special assessment programs can be found in the property tax section. Washington County Oregon Property Tax Exemption.
From www.formsbank.com
Application For Property Tax And Leasehold Excise Tax Exemption Form Washington County Oregon Property Tax Exemption A complete list of exemption and special assessment programs can be found in the property tax section (chapter 2) of the current. If you qualify for the program, oregon department of revenue will pay your county property taxes on november 15 of each year. We can help you understand the county's appraisal and assessment of your property, paying your property. Washington County Oregon Property Tax Exemption.
From www.lendingtree.com
What Is a Homestead Exemption and How Does It Work? LendingTree Washington County Oregon Property Tax Exemption If you qualify for the program, oregon department of revenue will pay your county property taxes on november 15 of each year. Each person qualifying for the exemption under ors 307.286 (homestead exemption) shall file with the county assessor, on forms supplied by. Find links to eligibility criteria,. The city of hillsboro administers this program and coordinates closely with the. Washington County Oregon Property Tax Exemption.
From www.templateroller.com
Form ORAOOAH (150310667) Download Fillable PDF or Fill Online Washington County Oregon Property Tax Exemption Learn about state programs to defer or reduce property tax obligations for various groups and situations. We can help you understand the county's appraisal and assessment of your property, paying your property taxes, getting a marriage license, passports, recording. The city of hillsboro administers this program and coordinates closely with the washington county office of. Each person qualifying for the. Washington County Oregon Property Tax Exemption.
From www.slideserve.com
PPT An Overview of Oregon’s property Tax System PowerPoint Washington County Oregon Property Tax Exemption A complete list of exemption and special assessment programs can be found in the property tax section (chapter 2) of the current. To qualify for this exemption, the lessee, sublessee, or entity in possession of the property must be using the property for their exempt. Find links to eligibility criteria,. We can help you understand the county's appraisal and assessment. Washington County Oregon Property Tax Exemption.
From www.formsbank.com
Application For Real And Personal Property Tax Exemption Form Oregon Washington County Oregon Property Tax Exemption Learn about state programs to defer or reduce property tax obligations for various groups and situations. A complete list of exemption and special assessment programs can be found in the property tax section (chapter 2) of the current. The city of hillsboro administers this program and coordinates closely with the washington county office of. Each person qualifying for the exemption. Washington County Oregon Property Tax Exemption.