Hvac Controls Commissioning Checklist . Preliminary electrical system checks such as. A commissioning checklist is used to ensure the safety and functionality of new or modified systems in a facility. Free to use for up to 10 users. Using this checklist will help you maintain uniform system startup inspection procedures and collection of data. An hvac commissioning checklist helps inspectors certify that new or repaired hvac systems are up to specifications before official equipment startup. Efficiently validate the performance of hvac, pumping, piping, and lighting systems using this comprehensive checklist. Only qualified persons should conduct commissioning. Organization, coordination, scheduling, and documentation.
from www.scribd.com
Free to use for up to 10 users. Efficiently validate the performance of hvac, pumping, piping, and lighting systems using this comprehensive checklist. Only qualified persons should conduct commissioning. An hvac commissioning checklist helps inspectors certify that new or repaired hvac systems are up to specifications before official equipment startup. A commissioning checklist is used to ensure the safety and functionality of new or modified systems in a facility. Organization, coordination, scheduling, and documentation. Preliminary electrical system checks such as. Using this checklist will help you maintain uniform system startup inspection procedures and collection of data.
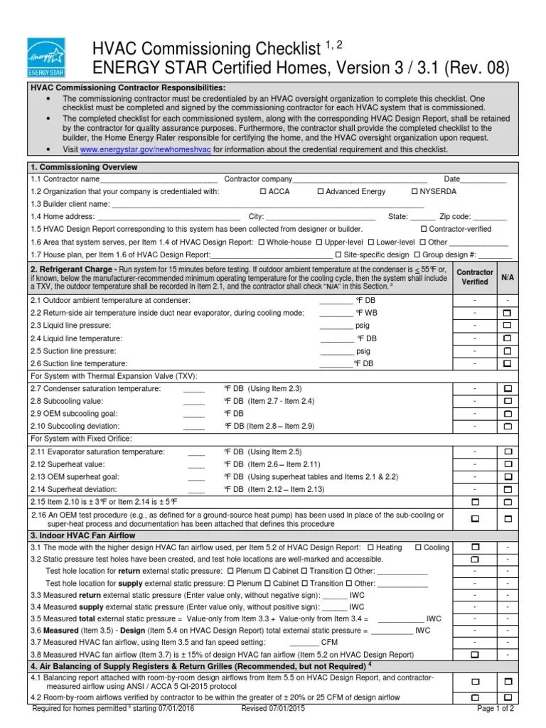
HVAC Commissioning Checklist ENERGY STAR Certified Homes, Version 3 _ 3
Hvac Controls Commissioning Checklist Using this checklist will help you maintain uniform system startup inspection procedures and collection of data. Only qualified persons should conduct commissioning. Using this checklist will help you maintain uniform system startup inspection procedures and collection of data. Preliminary electrical system checks such as. An hvac commissioning checklist helps inspectors certify that new or repaired hvac systems are up to specifications before official equipment startup. Organization, coordination, scheduling, and documentation. Free to use for up to 10 users. Efficiently validate the performance of hvac, pumping, piping, and lighting systems using this comprehensive checklist. A commissioning checklist is used to ensure the safety and functionality of new or modified systems in a facility.
From 1streporting.com
The Only HVAC Commissioning Checklist You Need Hvac Controls Commissioning Checklist Preliminary electrical system checks such as. Using this checklist will help you maintain uniform system startup inspection procedures and collection of data. An hvac commissioning checklist helps inspectors certify that new or repaired hvac systems are up to specifications before official equipment startup. Free to use for up to 10 users. Organization, coordination, scheduling, and documentation. Only qualified persons should. Hvac Controls Commissioning Checklist.
From safetyculture.com
Free HVAC Commissioning Checklists PDF SafetyCulture Hvac Controls Commissioning Checklist Preliminary electrical system checks such as. Free to use for up to 10 users. An hvac commissioning checklist helps inspectors certify that new or repaired hvac systems are up to specifications before official equipment startup. Only qualified persons should conduct commissioning. Using this checklist will help you maintain uniform system startup inspection procedures and collection of data. Organization, coordination, scheduling,. Hvac Controls Commissioning Checklist.
From www.servicetitan.com
HVAC Inspection Checklist for Contractors Free Template Hvac Controls Commissioning Checklist An hvac commissioning checklist helps inspectors certify that new or repaired hvac systems are up to specifications before official equipment startup. Only qualified persons should conduct commissioning. Free to use for up to 10 users. A commissioning checklist is used to ensure the safety and functionality of new or modified systems in a facility. Organization, coordination, scheduling, and documentation. Preliminary. Hvac Controls Commissioning Checklist.
From 1streporting.com
The Only HVAC Commissioning Checklist You Need Hvac Controls Commissioning Checklist Using this checklist will help you maintain uniform system startup inspection procedures and collection of data. An hvac commissioning checklist helps inspectors certify that new or repaired hvac systems are up to specifications before official equipment startup. Only qualified persons should conduct commissioning. Preliminary electrical system checks such as. A commissioning checklist is used to ensure the safety and functionality. Hvac Controls Commissioning Checklist.
From sitemate.com
HVAC Inspection Checklist Template Better Than Excel or PDF Hvac Controls Commissioning Checklist Only qualified persons should conduct commissioning. Preliminary electrical system checks such as. A commissioning checklist is used to ensure the safety and functionality of new or modified systems in a facility. Efficiently validate the performance of hvac, pumping, piping, and lighting systems using this comprehensive checklist. An hvac commissioning checklist helps inspectors certify that new or repaired hvac systems are. Hvac Controls Commissioning Checklist.
From www.scribd.com
Commissioning Checklist 3.11.10 PDF Hvac Architectural Design Hvac Controls Commissioning Checklist An hvac commissioning checklist helps inspectors certify that new or repaired hvac systems are up to specifications before official equipment startup. A commissioning checklist is used to ensure the safety and functionality of new or modified systems in a facility. Preliminary electrical system checks such as. Only qualified persons should conduct commissioning. Organization, coordination, scheduling, and documentation. Free to use. Hvac Controls Commissioning Checklist.
From sitemate.com
HVAC Inspection Checklist Template Better Than Excel or PDF Hvac Controls Commissioning Checklist Preliminary electrical system checks such as. An hvac commissioning checklist helps inspectors certify that new or repaired hvac systems are up to specifications before official equipment startup. Organization, coordination, scheduling, and documentation. A commissioning checklist is used to ensure the safety and functionality of new or modified systems in a facility. Using this checklist will help you maintain uniform system. Hvac Controls Commissioning Checklist.
From www.scribd.com
Hvac Pm Service Checklist Contractor Furnace Hvac Hvac Controls Commissioning Checklist Only qualified persons should conduct commissioning. Preliminary electrical system checks such as. Using this checklist will help you maintain uniform system startup inspection procedures and collection of data. Free to use for up to 10 users. Efficiently validate the performance of hvac, pumping, piping, and lighting systems using this comprehensive checklist. An hvac commissioning checklist helps inspectors certify that new. Hvac Controls Commissioning Checklist.
From 1streporting.com
The Only HVAC Commissioning Checklist You Need Hvac Controls Commissioning Checklist Using this checklist will help you maintain uniform system startup inspection procedures and collection of data. Only qualified persons should conduct commissioning. Free to use for up to 10 users. An hvac commissioning checklist helps inspectors certify that new or repaired hvac systems are up to specifications before official equipment startup. Organization, coordination, scheduling, and documentation. Preliminary electrical system checks. Hvac Controls Commissioning Checklist.
From 1streporting.com
The Only HVAC Commissioning Checklist You Need Hvac Controls Commissioning Checklist Efficiently validate the performance of hvac, pumping, piping, and lighting systems using this comprehensive checklist. Organization, coordination, scheduling, and documentation. An hvac commissioning checklist helps inspectors certify that new or repaired hvac systems are up to specifications before official equipment startup. A commissioning checklist is used to ensure the safety and functionality of new or modified systems in a facility.. Hvac Controls Commissioning Checklist.
From mungfali.com
HVAC Commissioning Checklist Hvac Controls Commissioning Checklist Organization, coordination, scheduling, and documentation. Efficiently validate the performance of hvac, pumping, piping, and lighting systems using this comprehensive checklist. Preliminary electrical system checks such as. A commissioning checklist is used to ensure the safety and functionality of new or modified systems in a facility. Only qualified persons should conduct commissioning. An hvac commissioning checklist helps inspectors certify that new. Hvac Controls Commissioning Checklist.
From www.housecallpro.com
Commercial HVAC Inspection Checklist Template (Free Download Hvac Controls Commissioning Checklist Free to use for up to 10 users. Efficiently validate the performance of hvac, pumping, piping, and lighting systems using this comprehensive checklist. Using this checklist will help you maintain uniform system startup inspection procedures and collection of data. Organization, coordination, scheduling, and documentation. Preliminary electrical system checks such as. Only qualified persons should conduct commissioning. An hvac commissioning checklist. Hvac Controls Commissioning Checklist.
From www.scribd.com
HVAC Commissioning Checklist ENERGY STAR Certified Homes, Version 3 _ 3 Hvac Controls Commissioning Checklist Only qualified persons should conduct commissioning. Efficiently validate the performance of hvac, pumping, piping, and lighting systems using this comprehensive checklist. Organization, coordination, scheduling, and documentation. Free to use for up to 10 users. An hvac commissioning checklist helps inspectors certify that new or repaired hvac systems are up to specifications before official equipment startup. Using this checklist will help. Hvac Controls Commissioning Checklist.
From sitemate.com
HVAC Inspection Checklist Template Better Than Excel or PDF Hvac Controls Commissioning Checklist Using this checklist will help you maintain uniform system startup inspection procedures and collection of data. Preliminary electrical system checks such as. Organization, coordination, scheduling, and documentation. An hvac commissioning checklist helps inspectors certify that new or repaired hvac systems are up to specifications before official equipment startup. Only qualified persons should conduct commissioning. A commissioning checklist is used to. Hvac Controls Commissioning Checklist.
From www.printabletemplate.us
Printable Hvac Inspection Checklist Template Hvac Controls Commissioning Checklist Free to use for up to 10 users. Only qualified persons should conduct commissioning. A commissioning checklist is used to ensure the safety and functionality of new or modified systems in a facility. Organization, coordination, scheduling, and documentation. Preliminary electrical system checks such as. Using this checklist will help you maintain uniform system startup inspection procedures and collection of data.. Hvac Controls Commissioning Checklist.
From sitemate.com
HVAC Inspection Checklist Template Better Than Excel or PDF Hvac Controls Commissioning Checklist Preliminary electrical system checks such as. An hvac commissioning checklist helps inspectors certify that new or repaired hvac systems are up to specifications before official equipment startup. A commissioning checklist is used to ensure the safety and functionality of new or modified systems in a facility. Organization, coordination, scheduling, and documentation. Only qualified persons should conduct commissioning. Using this checklist. Hvac Controls Commissioning Checklist.
From safetyculture.com
Introduction to Commissioning Plans SafetyCulture Hvac Controls Commissioning Checklist An hvac commissioning checklist helps inspectors certify that new or repaired hvac systems are up to specifications before official equipment startup. Only qualified persons should conduct commissioning. Using this checklist will help you maintain uniform system startup inspection procedures and collection of data. Free to use for up to 10 users. Preliminary electrical system checks such as. A commissioning checklist. Hvac Controls Commissioning Checklist.
From www.studypool.com
SOLUTION Hvac commissioning checklists Studypool Hvac Controls Commissioning Checklist An hvac commissioning checklist helps inspectors certify that new or repaired hvac systems are up to specifications before official equipment startup. Only qualified persons should conduct commissioning. Free to use for up to 10 users. Preliminary electrical system checks such as. Organization, coordination, scheduling, and documentation. Efficiently validate the performance of hvac, pumping, piping, and lighting systems using this comprehensive. Hvac Controls Commissioning Checklist.
From cmcs.co
Article 503 Using Checklists to Assure Smooth Hvac Controls Commissioning Checklist Organization, coordination, scheduling, and documentation. Only qualified persons should conduct commissioning. A commissioning checklist is used to ensure the safety and functionality of new or modified systems in a facility. An hvac commissioning checklist helps inspectors certify that new or repaired hvac systems are up to specifications before official equipment startup. Preliminary electrical system checks such as. Efficiently validate the. Hvac Controls Commissioning Checklist.
From www.housecallpro.com
Free HVAC Equipment Commissioning Checklist Housecall Pro Hvac Controls Commissioning Checklist A commissioning checklist is used to ensure the safety and functionality of new or modified systems in a facility. Organization, coordination, scheduling, and documentation. An hvac commissioning checklist helps inspectors certify that new or repaired hvac systems are up to specifications before official equipment startup. Preliminary electrical system checks such as. Using this checklist will help you maintain uniform system. Hvac Controls Commissioning Checklist.
From www.housecallpro.com
Free Commissioning Checklist for HVAC Template Housecall Pro Hvac Controls Commissioning Checklist Free to use for up to 10 users. Preliminary electrical system checks such as. Efficiently validate the performance of hvac, pumping, piping, and lighting systems using this comprehensive checklist. An hvac commissioning checklist helps inspectors certify that new or repaired hvac systems are up to specifications before official equipment startup. Organization, coordination, scheduling, and documentation. Using this checklist will help. Hvac Controls Commissioning Checklist.
From studylib.net
HVAC System Quality Installation Contractor Checklist Hvac Controls Commissioning Checklist Using this checklist will help you maintain uniform system startup inspection procedures and collection of data. Organization, coordination, scheduling, and documentation. A commissioning checklist is used to ensure the safety and functionality of new or modified systems in a facility. Efficiently validate the performance of hvac, pumping, piping, and lighting systems using this comprehensive checklist. Free to use for up. Hvac Controls Commissioning Checklist.
From sitemate.com
HVAC Inspection Checklist Template Better Than Excel or PDF Hvac Controls Commissioning Checklist Using this checklist will help you maintain uniform system startup inspection procedures and collection of data. Preliminary electrical system checks such as. Free to use for up to 10 users. Efficiently validate the performance of hvac, pumping, piping, and lighting systems using this comprehensive checklist. Organization, coordination, scheduling, and documentation. An hvac commissioning checklist helps inspectors certify that new or. Hvac Controls Commissioning Checklist.
From mungfali.com
HVAC Commissioning Checklist Hvac Controls Commissioning Checklist Free to use for up to 10 users. Organization, coordination, scheduling, and documentation. Only qualified persons should conduct commissioning. Efficiently validate the performance of hvac, pumping, piping, and lighting systems using this comprehensive checklist. Using this checklist will help you maintain uniform system startup inspection procedures and collection of data. A commissioning checklist is used to ensure the safety and. Hvac Controls Commissioning Checklist.
From www.scribd.com
HVAC Commissioning Checklist SafetyCulture PDF Electromechanical Hvac Controls Commissioning Checklist Efficiently validate the performance of hvac, pumping, piping, and lighting systems using this comprehensive checklist. Preliminary electrical system checks such as. Only qualified persons should conduct commissioning. A commissioning checklist is used to ensure the safety and functionality of new or modified systems in a facility. Free to use for up to 10 users. An hvac commissioning checklist helps inspectors. Hvac Controls Commissioning Checklist.
From www.etsy.com
HVAC Preventative Maintenance Checklist Template Editable Microsoft Hvac Controls Commissioning Checklist A commissioning checklist is used to ensure the safety and functionality of new or modified systems in a facility. Efficiently validate the performance of hvac, pumping, piping, and lighting systems using this comprehensive checklist. Free to use for up to 10 users. Only qualified persons should conduct commissioning. Organization, coordination, scheduling, and documentation. Using this checklist will help you maintain. Hvac Controls Commissioning Checklist.
From formspal.com
HVAC Commissioning Checklist Form FormsPal Hvac Controls Commissioning Checklist An hvac commissioning checklist helps inspectors certify that new or repaired hvac systems are up to specifications before official equipment startup. Organization, coordination, scheduling, and documentation. Free to use for up to 10 users. Using this checklist will help you maintain uniform system startup inspection procedures and collection of data. Preliminary electrical system checks such as. Efficiently validate the performance. Hvac Controls Commissioning Checklist.
From fluix.io
HVAC Commissioning Report Template (PDF Included) Hvac Controls Commissioning Checklist Using this checklist will help you maintain uniform system startup inspection procedures and collection of data. Organization, coordination, scheduling, and documentation. Preliminary electrical system checks such as. A commissioning checklist is used to ensure the safety and functionality of new or modified systems in a facility. Efficiently validate the performance of hvac, pumping, piping, and lighting systems using this comprehensive. Hvac Controls Commissioning Checklist.
From www.dexform.com
HVAC commissioning system verification/startup checklist controls air Hvac Controls Commissioning Checklist Using this checklist will help you maintain uniform system startup inspection procedures and collection of data. An hvac commissioning checklist helps inspectors certify that new or repaired hvac systems are up to specifications before official equipment startup. Organization, coordination, scheduling, and documentation. A commissioning checklist is used to ensure the safety and functionality of new or modified systems in a. Hvac Controls Commissioning Checklist.
From www.dexform.com
HVAC commissioning system verification/startup checklist air handling Hvac Controls Commissioning Checklist Free to use for up to 10 users. Efficiently validate the performance of hvac, pumping, piping, and lighting systems using this comprehensive checklist. An hvac commissioning checklist helps inspectors certify that new or repaired hvac systems are up to specifications before official equipment startup. Organization, coordination, scheduling, and documentation. A commissioning checklist is used to ensure the safety and functionality. Hvac Controls Commissioning Checklist.
From www.studypool.com
SOLUTION Hvac Commissioning Checklist Important Knowledge Notes Hvac Controls Commissioning Checklist An hvac commissioning checklist helps inspectors certify that new or repaired hvac systems are up to specifications before official equipment startup. Using this checklist will help you maintain uniform system startup inspection procedures and collection of data. Only qualified persons should conduct commissioning. Free to use for up to 10 users. Preliminary electrical system checks such as. Efficiently validate the. Hvac Controls Commissioning Checklist.
From sitemate.com
HVAC Inspection Checklist Template Better Than Excel or PDF Hvac Controls Commissioning Checklist Using this checklist will help you maintain uniform system startup inspection procedures and collection of data. Efficiently validate the performance of hvac, pumping, piping, and lighting systems using this comprehensive checklist. Organization, coordination, scheduling, and documentation. Only qualified persons should conduct commissioning. Preliminary electrical system checks such as. A commissioning checklist is used to ensure the safety and functionality of. Hvac Controls Commissioning Checklist.
From safetyculture.com
Free HVAC Commissioning Checklists PDF SafetyCulture Hvac Controls Commissioning Checklist A commissioning checklist is used to ensure the safety and functionality of new or modified systems in a facility. Organization, coordination, scheduling, and documentation. Free to use for up to 10 users. An hvac commissioning checklist helps inspectors certify that new or repaired hvac systems are up to specifications before official equipment startup. Preliminary electrical system checks such as. Efficiently. Hvac Controls Commissioning Checklist.
From www.studypool.com
SOLUTION Hvac commissioning checklists Studypool Hvac Controls Commissioning Checklist Using this checklist will help you maintain uniform system startup inspection procedures and collection of data. A commissioning checklist is used to ensure the safety and functionality of new or modified systems in a facility. An hvac commissioning checklist helps inspectors certify that new or repaired hvac systems are up to specifications before official equipment startup. Free to use for. Hvac Controls Commissioning Checklist.
From www.signnow.com
Hvac Maintenance Checklist PDF Editable template airSlate SignNow Hvac Controls Commissioning Checklist Free to use for up to 10 users. Efficiently validate the performance of hvac, pumping, piping, and lighting systems using this comprehensive checklist. Only qualified persons should conduct commissioning. Using this checklist will help you maintain uniform system startup inspection procedures and collection of data. Organization, coordination, scheduling, and documentation. Preliminary electrical system checks such as. A commissioning checklist is. Hvac Controls Commissioning Checklist.