Rhode Island Lead Paint Class Online . Department of health rhode island department of health. Participants learn methods for minimizing lead. Learn how you can deal with lead paint issues that affect the real estate transaction, legislations that activated the need for a lead. Common renovation activities like sanding, cutting, and demolition can. Our 20 years of real estate, construction and environmental lead inspection experience allows us to educate and guide you to a lead safe property. It's easy and convenient to get the required course completion certificate at your. Online, anytime welcome to the lead hazard awareness class for landlords.
from www.templateroller.com
Learn how you can deal with lead paint issues that affect the real estate transaction, legislations that activated the need for a lead. Our 20 years of real estate, construction and environmental lead inspection experience allows us to educate and guide you to a lead safe property. It's easy and convenient to get the required course completion certificate at your. Online, anytime welcome to the lead hazard awareness class for landlords. Common renovation activities like sanding, cutting, and demolition can. Participants learn methods for minimizing lead. Department of health rhode island department of health.
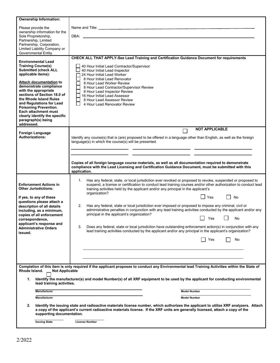
Rhode Island Application for Lead Training Courses Download Printable
Rhode Island Lead Paint Class Online Participants learn methods for minimizing lead. Our 20 years of real estate, construction and environmental lead inspection experience allows us to educate and guide you to a lead safe property. It's easy and convenient to get the required course completion certificate at your. Department of health rhode island department of health. Learn how you can deal with lead paint issues that affect the real estate transaction, legislations that activated the need for a lead. Common renovation activities like sanding, cutting, and demolition can. Participants learn methods for minimizing lead. Online, anytime welcome to the lead hazard awareness class for landlords.
From www.uslegalforms.com
Rhode Island Lead Based Paint Disclosure for Sales Transaction Lead Rhode Island Lead Paint Class Online Our 20 years of real estate, construction and environmental lead inspection experience allows us to educate and guide you to a lead safe property. Learn how you can deal with lead paint issues that affect the real estate transaction, legislations that activated the need for a lead. Common renovation activities like sanding, cutting, and demolition can. Online, anytime welcome to. Rhode Island Lead Paint Class Online.
From www.templateroller.com
Rhode Island Application for Lead Training Courses Download Printable Rhode Island Lead Paint Class Online Common renovation activities like sanding, cutting, and demolition can. Department of health rhode island department of health. Our 20 years of real estate, construction and environmental lead inspection experience allows us to educate and guide you to a lead safe property. It's easy and convenient to get the required course completion certificate at your. Learn how you can deal with. Rhode Island Lead Paint Class Online.
From training.criterionlabs.com
EPA LeadBased Paint Renovator Initial Criterion Laboratories Rhode Island Lead Paint Class Online Department of health rhode island department of health. Common renovation activities like sanding, cutting, and demolition can. Our 20 years of real estate, construction and environmental lead inspection experience allows us to educate and guide you to a lead safe property. Participants learn methods for minimizing lead. Online, anytime welcome to the lead hazard awareness class for landlords. It's easy. Rhode Island Lead Paint Class Online.
From www.slideserve.com
PPT Online EPA RRP Lead Paint Certification PowerPoint Presentation Rhode Island Lead Paint Class Online Learn how you can deal with lead paint issues that affect the real estate transaction, legislations that activated the need for a lead. Our 20 years of real estate, construction and environmental lead inspection experience allows us to educate and guide you to a lead safe property. Common renovation activities like sanding, cutting, and demolition can. Department of health rhode. Rhode Island Lead Paint Class Online.
From www.youtube.com
Rhode Island Lead Based Paint Law Updates Landlords Need To Know YouTube Rhode Island Lead Paint Class Online Online, anytime welcome to the lead hazard awareness class for landlords. Learn how you can deal with lead paint issues that affect the real estate transaction, legislations that activated the need for a lead. Our 20 years of real estate, construction and environmental lead inspection experience allows us to educate and guide you to a lead safe property. Participants learn. Rhode Island Lead Paint Class Online.
From www.templateroller.com
Rhode Island Application for Lead Training Courses Download Printable Rhode Island Lead Paint Class Online Department of health rhode island department of health. It's easy and convenient to get the required course completion certificate at your. Our 20 years of real estate, construction and environmental lead inspection experience allows us to educate and guide you to a lead safe property. Online, anytime welcome to the lead hazard awareness class for landlords. Learn how you can. Rhode Island Lead Paint Class Online.
From leadgenera.com
Lead Generation in Rhode Island Lead Genera Rhode Island Lead Paint Class Online Participants learn methods for minimizing lead. Common renovation activities like sanding, cutting, and demolition can. Online, anytime welcome to the lead hazard awareness class for landlords. Learn how you can deal with lead paint issues that affect the real estate transaction, legislations that activated the need for a lead. It's easy and convenient to get the required course completion certificate. Rhode Island Lead Paint Class Online.
From issuu.com
Lead Paint Risk Assessment How To Identify Lead Paint In Your Home by Rhode Island Lead Paint Class Online Online, anytime welcome to the lead hazard awareness class for landlords. Learn how you can deal with lead paint issues that affect the real estate transaction, legislations that activated the need for a lead. Common renovation activities like sanding, cutting, and demolition can. It's easy and convenient to get the required course completion certificate at your. Department of health rhode. Rhode Island Lead Paint Class Online.
From pdfsimpli.com
Rhode Island Lead Paint Disclosure Form PDFSimpli Rhode Island Lead Paint Class Online Learn how you can deal with lead paint issues that affect the real estate transaction, legislations that activated the need for a lead. It's easy and convenient to get the required course completion certificate at your. Participants learn methods for minimizing lead. Our 20 years of real estate, construction and environmental lead inspection experience allows us to educate and guide. Rhode Island Lead Paint Class Online.
From www.seufertlaw.com
Lead Paint Seminar Rhode Island Lead Paint Class Online Department of health rhode island department of health. Participants learn methods for minimizing lead. Online, anytime welcome to the lead hazard awareness class for landlords. Our 20 years of real estate, construction and environmental lead inspection experience allows us to educate and guide you to a lead safe property. Common renovation activities like sanding, cutting, and demolition can. It's easy. Rhode Island Lead Paint Class Online.
From www.youtube.com
Study Rhode Island lead paint law not followed YouTube Rhode Island Lead Paint Class Online It's easy and convenient to get the required course completion certificate at your. Department of health rhode island department of health. Participants learn methods for minimizing lead. Our 20 years of real estate, construction and environmental lead inspection experience allows us to educate and guide you to a lead safe property. Learn how you can deal with lead paint issues. Rhode Island Lead Paint Class Online.
From handypdf.com
Rhode Island Lead Based Paint Disclosure Form Edit, Fill, Sign Online Rhode Island Lead Paint Class Online Learn how you can deal with lead paint issues that affect the real estate transaction, legislations that activated the need for a lead. It's easy and convenient to get the required course completion certificate at your. Department of health rhode island department of health. Online, anytime welcome to the lead hazard awareness class for landlords. Participants learn methods for minimizing. Rhode Island Lead Paint Class Online.
From www.templateroller.com
Rhode Island Application for Lead Training Courses Download Printable Rhode Island Lead Paint Class Online Our 20 years of real estate, construction and environmental lead inspection experience allows us to educate and guide you to a lead safe property. Department of health rhode island department of health. Learn how you can deal with lead paint issues that affect the real estate transaction, legislations that activated the need for a lead. It's easy and convenient to. Rhode Island Lead Paint Class Online.
From und-eti.com
LeadBased Paint Training UND Environmental Training Institute Rhode Island Lead Paint Class Online Learn how you can deal with lead paint issues that affect the real estate transaction, legislations that activated the need for a lead. Common renovation activities like sanding, cutting, and demolition can. Department of health rhode island department of health. It's easy and convenient to get the required course completion certificate at your. Our 20 years of real estate, construction. Rhode Island Lead Paint Class Online.
From www.templateroller.com
Rhode Island Application for Lead Training Courses Download Printable Rhode Island Lead Paint Class Online Online, anytime welcome to the lead hazard awareness class for landlords. Our 20 years of real estate, construction and environmental lead inspection experience allows us to educate and guide you to a lead safe property. It's easy and convenient to get the required course completion certificate at your. Common renovation activities like sanding, cutting, and demolition can. Learn how you. Rhode Island Lead Paint Class Online.
From www.angi.com
How to Identify Lead Paint in Your Home Rhode Island Lead Paint Class Online Our 20 years of real estate, construction and environmental lead inspection experience allows us to educate and guide you to a lead safe property. Department of health rhode island department of health. Participants learn methods for minimizing lead. Common renovation activities like sanding, cutting, and demolition can. Learn how you can deal with lead paint issues that affect the real. Rhode Island Lead Paint Class Online.
From wrgri.com
New Lead Safety Rules for Rhode Island Rental Properties! The Warner Rhode Island Lead Paint Class Online Department of health rhode island department of health. Our 20 years of real estate, construction and environmental lead inspection experience allows us to educate and guide you to a lead safe property. It's easy and convenient to get the required course completion certificate at your. Learn how you can deal with lead paint issues that affect the real estate transaction,. Rhode Island Lead Paint Class Online.
From www.hcienv.com
HCI. Why Lead Paint Removal Is Important Rhode Island Lead Paint Class Online Learn how you can deal with lead paint issues that affect the real estate transaction, legislations that activated the need for a lead. Online, anytime welcome to the lead hazard awareness class for landlords. Our 20 years of real estate, construction and environmental lead inspection experience allows us to educate and guide you to a lead safe property. Department of. Rhode Island Lead Paint Class Online.
From www.templateroller.com
Rhode Island Application for Lead Training Courses Download Printable Rhode Island Lead Paint Class Online Online, anytime welcome to the lead hazard awareness class for landlords. It's easy and convenient to get the required course completion certificate at your. Learn how you can deal with lead paint issues that affect the real estate transaction, legislations that activated the need for a lead. Our 20 years of real estate, construction and environmental lead inspection experience allows. Rhode Island Lead Paint Class Online.
From stonelinkpm.com
7 Laws Impacting Landlords In Rhode Island Stonelink Property Management Rhode Island Lead Paint Class Online Participants learn methods for minimizing lead. Department of health rhode island department of health. Common renovation activities like sanding, cutting, and demolition can. Learn how you can deal with lead paint issues that affect the real estate transaction, legislations that activated the need for a lead. Online, anytime welcome to the lead hazard awareness class for landlords. Our 20 years. Rhode Island Lead Paint Class Online.
From www.dochub.com
The rhode island lead hazard mitigation law became effective on Fill Rhode Island Lead Paint Class Online It's easy and convenient to get the required course completion certificate at your. Common renovation activities like sanding, cutting, and demolition can. Our 20 years of real estate, construction and environmental lead inspection experience allows us to educate and guide you to a lead safe property. Online, anytime welcome to the lead hazard awareness class for landlords. Participants learn methods. Rhode Island Lead Paint Class Online.
From www.providencejournal.com
Lead paint revisited Rhode Island Lead Paint Class Online Online, anytime welcome to the lead hazard awareness class for landlords. It's easy and convenient to get the required course completion certificate at your. Our 20 years of real estate, construction and environmental lead inspection experience allows us to educate and guide you to a lead safe property. Department of health rhode island department of health. Participants learn methods for. Rhode Island Lead Paint Class Online.
From handypdf.com
Rhode Island Lead Based Paint Disclosure Form Edit, Fill, Sign Online Rhode Island Lead Paint Class Online Department of health rhode island department of health. Learn how you can deal with lead paint issues that affect the real estate transaction, legislations that activated the need for a lead. Common renovation activities like sanding, cutting, and demolition can. Our 20 years of real estate, construction and environmental lead inspection experience allows us to educate and guide you to. Rhode Island Lead Paint Class Online.
From www.studocu.com
Visit us [Proxsoft.us] Rhode Island LeadSafe Remodeler/Renovator Rhode Island Lead Paint Class Online Online, anytime welcome to the lead hazard awareness class for landlords. Our 20 years of real estate, construction and environmental lead inspection experience allows us to educate and guide you to a lead safe property. Participants learn methods for minimizing lead. Common renovation activities like sanding, cutting, and demolition can. Department of health rhode island department of health. It's easy. Rhode Island Lead Paint Class Online.
From a1paintremovalinc.com
Painting Over LeadBased Paint Safety and HowTo A1 Paint Rhode Island Lead Paint Class Online Our 20 years of real estate, construction and environmental lead inspection experience allows us to educate and guide you to a lead safe property. Online, anytime welcome to the lead hazard awareness class for landlords. Participants learn methods for minimizing lead. Department of health rhode island department of health. Learn how you can deal with lead paint issues that affect. Rhode Island Lead Paint Class Online.
From www.dochub.com
Lead Based Paint Disclosure for Rental Transaction Rhode Island Fill Rhode Island Lead Paint Class Online Online, anytime welcome to the lead hazard awareness class for landlords. Participants learn methods for minimizing lead. It's easy and convenient to get the required course completion certificate at your. Department of health rhode island department of health. Common renovation activities like sanding, cutting, and demolition can. Our 20 years of real estate, construction and environmental lead inspection experience allows. Rhode Island Lead Paint Class Online.
From www.experiencedmp.com
Dennis Moffitt Painting Commercial Services in Rhode Island Lead… Rhode Island Lead Paint Class Online Our 20 years of real estate, construction and environmental lead inspection experience allows us to educate and guide you to a lead safe property. Online, anytime welcome to the lead hazard awareness class for landlords. Department of health rhode island department of health. Learn how you can deal with lead paint issues that affect the real estate transaction, legislations that. Rhode Island Lead Paint Class Online.
From www.rirealtors.org
New Lead Laws in RI Stronger Penalties and Enforcement Rhode Island Rhode Island Lead Paint Class Online Participants learn methods for minimizing lead. Common renovation activities like sanding, cutting, and demolition can. Learn how you can deal with lead paint issues that affect the real estate transaction, legislations that activated the need for a lead. It's easy and convenient to get the required course completion certificate at your. Online, anytime welcome to the lead hazard awareness class. Rhode Island Lead Paint Class Online.
From www.hartlawri.com
New Rhode Island Lead Laws Coming 2024 Rhode Island Lead Paint Class Online Participants learn methods for minimizing lead. Department of health rhode island department of health. Our 20 years of real estate, construction and environmental lead inspection experience allows us to educate and guide you to a lead safe property. It's easy and convenient to get the required course completion certificate at your. Common renovation activities like sanding, cutting, and demolition can.. Rhode Island Lead Paint Class Online.
From learn.icaschool.com
Lead Paint ICA 360 Rhode Island Lead Paint Class Online Department of health rhode island department of health. Common renovation activities like sanding, cutting, and demolition can. Learn how you can deal with lead paint issues that affect the real estate transaction, legislations that activated the need for a lead. Our 20 years of real estate, construction and environmental lead inspection experience allows us to educate and guide you to. Rhode Island Lead Paint Class Online.
From www.cnn.com
EPA stricter rules on harmful lead dust in millions of homes Rhode Island Lead Paint Class Online Our 20 years of real estate, construction and environmental lead inspection experience allows us to educate and guide you to a lead safe property. Common renovation activities like sanding, cutting, and demolition can. Participants learn methods for minimizing lead. Online, anytime welcome to the lead hazard awareness class for landlords. Department of health rhode island department of health. It's easy. Rhode Island Lead Paint Class Online.
From www.templateroller.com
Rhode Island Application for Lead Training Courses Download Printable Rhode Island Lead Paint Class Online Common renovation activities like sanding, cutting, and demolition can. It's easy and convenient to get the required course completion certificate at your. Department of health rhode island department of health. Learn how you can deal with lead paint issues that affect the real estate transaction, legislations that activated the need for a lead. Participants learn methods for minimizing lead. Online,. Rhode Island Lead Paint Class Online.
From educationandoutreach.com
Lead Paint in Your Home Education & Outreach Rhode Island Lead Paint Class Online Learn how you can deal with lead paint issues that affect the real estate transaction, legislations that activated the need for a lead. Participants learn methods for minimizing lead. Department of health rhode island department of health. Online, anytime welcome to the lead hazard awareness class for landlords. Common renovation activities like sanding, cutting, and demolition can. It's easy and. Rhode Island Lead Paint Class Online.
From www.studocu.com
Rhode Island Lead Hazard Professionals Practice Course Rhode Island Rhode Island Lead Paint Class Online Common renovation activities like sanding, cutting, and demolition can. Online, anytime welcome to the lead hazard awareness class for landlords. Department of health rhode island department of health. Learn how you can deal with lead paint issues that affect the real estate transaction, legislations that activated the need for a lead. Participants learn methods for minimizing lead. Our 20 years. Rhode Island Lead Paint Class Online.
From www.uslegalforms.com
Rhode Island Lead Based Paint Disclosure for Rental Transaction Lead Rhode Island Lead Paint Class Online Participants learn methods for minimizing lead. It's easy and convenient to get the required course completion certificate at your. Online, anytime welcome to the lead hazard awareness class for landlords. Learn how you can deal with lead paint issues that affect the real estate transaction, legislations that activated the need for a lead. Our 20 years of real estate, construction. Rhode Island Lead Paint Class Online.