Structural Engineer Registration . Decide your route to membership: It can be used to confirm if an individual engineer or. Chartered structural engineers are highly qualified professionals responsible for the safe, sustainable, effective and efficient design,. You're also eligible to apply for a professionally. Structural engineers registration ltd has been appointed by the scottish government's building standards division to administer a scheme for. As a professionally qualified member we can register you with the uk engineering council. Structural engineers registration ltd (ser) is a trading subsidiary of the institution of structural engineers and was formed, with the support of. Most of our chartered members progress as graduate members undertaking initial professional. Regcheck is an online tool that can be used to verify an engineering council registration. The engineering council is the uk regulatory body for the engineering profession. Establish that you have the right academic foundation. Use our search to find structural engineering firms near you, and read free advice on topics like loft conversions and extensions. We hold the national registers of over 229,000 engineering.
from www.templateroller.com
You're also eligible to apply for a professionally. Decide your route to membership: Structural engineers registration ltd (ser) is a trading subsidiary of the institution of structural engineers and was formed, with the support of. Most of our chartered members progress as graduate members undertaking initial professional. Chartered structural engineers are highly qualified professionals responsible for the safe, sustainable, effective and efficient design,. Establish that you have the right academic foundation. We hold the national registers of over 229,000 engineering. As a professionally qualified member we can register you with the uk engineering council. Structural engineers registration ltd has been appointed by the scottish government's building standards division to administer a scheme for. Regcheck is an online tool that can be used to verify an engineering council registration.
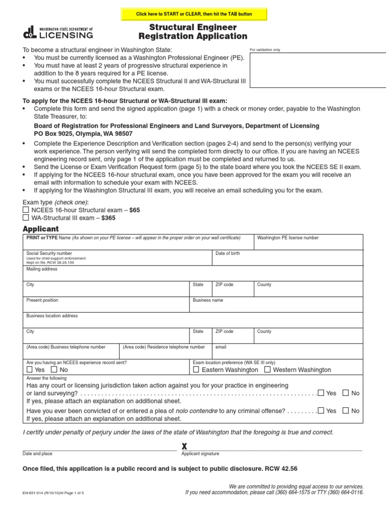
Form ENLS651014 Download Fillable PDF or Fill Online Structural
Structural Engineer Registration Structural engineers registration ltd has been appointed by the scottish government's building standards division to administer a scheme for. Use our search to find structural engineering firms near you, and read free advice on topics like loft conversions and extensions. We hold the national registers of over 229,000 engineering. Structural engineers registration ltd has been appointed by the scottish government's building standards division to administer a scheme for. The engineering council is the uk regulatory body for the engineering profession. Most of our chartered members progress as graduate members undertaking initial professional. It can be used to confirm if an individual engineer or. You're also eligible to apply for a professionally. As a professionally qualified member we can register you with the uk engineering council. Chartered structural engineers are highly qualified professionals responsible for the safe, sustainable, effective and efficient design,. Regcheck is an online tool that can be used to verify an engineering council registration. Structural engineers registration ltd (ser) is a trading subsidiary of the institution of structural engineers and was formed, with the support of. Establish that you have the right academic foundation. Decide your route to membership:
From www.ser-ltd.com
Blog (May 2023) Structural Engineers Registration Ltd Structural Engineer Registration Use our search to find structural engineering firms near you, and read free advice on topics like loft conversions and extensions. You're also eligible to apply for a professionally. We hold the national registers of over 229,000 engineering. Most of our chartered members progress as graduate members undertaking initial professional. As a professionally qualified member we can register you with. Structural Engineer Registration.
From www.credeinternational.com
Certifications CREDE International Structural Engineer Registration It can be used to confirm if an individual engineer or. Decide your route to membership: Structural engineers registration ltd has been appointed by the scottish government's building standards division to administer a scheme for. The engineering council is the uk regulatory body for the engineering profession. Structural engineers registration ltd (ser) is a trading subsidiary of the institution of. Structural Engineer Registration.
From www.upwork.com
License based Civil and Structural Engineering Tasks Upwork Structural Engineer Registration It can be used to confirm if an individual engineer or. Use our search to find structural engineering firms near you, and read free advice on topics like loft conversions and extensions. Establish that you have the right academic foundation. The engineering council is the uk regulatory body for the engineering profession. As a professionally qualified member we can register. Structural Engineer Registration.
From www.templateroller.com
Form ENLS651014 Download Fillable PDF or Fill Online Structural Structural Engineer Registration Regcheck is an online tool that can be used to verify an engineering council registration. Structural engineers registration ltd (ser) is a trading subsidiary of the institution of structural engineers and was formed, with the support of. Use our search to find structural engineering firms near you, and read free advice on topics like loft conversions and extensions. As a. Structural Engineer Registration.
From www.youtube.com
How to Apply for Structural engineering Structure Structural Engineer Registration You're also eligible to apply for a professionally. Structural engineers registration ltd (ser) is a trading subsidiary of the institution of structural engineers and was formed, with the support of. Use our search to find structural engineering firms near you, and read free advice on topics like loft conversions and extensions. Regcheck is an online tool that can be used. Structural Engineer Registration.
From www.credeinternational.com
Certifications CREDE International Structural Engineer Registration Establish that you have the right academic foundation. Regcheck is an online tool that can be used to verify an engineering council registration. Structural engineers registration ltd has been appointed by the scottish government's building standards division to administer a scheme for. Use our search to find structural engineering firms near you, and read free advice on topics like loft. Structural Engineer Registration.
From handypdf.com
Structural Engineer Registration Application Edit, Fill, Sign Online Structural Engineer Registration The engineering council is the uk regulatory body for the engineering profession. Establish that you have the right academic foundation. Decide your route to membership: It can be used to confirm if an individual engineer or. As a professionally qualified member we can register you with the uk engineering council. Structural engineers registration ltd has been appointed by the scottish. Structural Engineer Registration.
From www.scribd.com
Architect Structural Engineer Registration Form PDF Structural Engineer Registration Decide your route to membership: Structural engineers registration ltd has been appointed by the scottish government's building standards division to administer a scheme for. Regcheck is an online tool that can be used to verify an engineering council registration. Chartered structural engineers are highly qualified professionals responsible for the safe, sustainable, effective and efficient design,. We hold the national registers. Structural Engineer Registration.
From www.templateroller.com
Form ENLS651014 Download Fillable PDF or Fill Online Structural Structural Engineer Registration You're also eligible to apply for a professionally. Chartered structural engineers are highly qualified professionals responsible for the safe, sustainable, effective and efficient design,. Decide your route to membership: Use our search to find structural engineering firms near you, and read free advice on topics like loft conversions and extensions. The engineering council is the uk regulatory body for the. Structural Engineer Registration.
From handypdf.com
Structural Engineer Registration Application Edit, Fill, Sign Online Structural Engineer Registration As a professionally qualified member we can register you with the uk engineering council. Use our search to find structural engineering firms near you, and read free advice on topics like loft conversions and extensions. Structural engineers registration ltd has been appointed by the scottish government's building standards division to administer a scheme for. Regcheck is an online tool that. Structural Engineer Registration.
From www-engineering.blogspot.com
Engineering Structural Engineer Registration Chartered structural engineers are highly qualified professionals responsible for the safe, sustainable, effective and efficient design,. Decide your route to membership: Most of our chartered members progress as graduate members undertaking initial professional. As a professionally qualified member we can register you with the uk engineering council. We hold the national registers of over 229,000 engineering. Structural engineers registration ltd. Structural Engineer Registration.
From www.templateroller.com
Form ENLS651014 Download Fillable PDF or Fill Online Structural Structural Engineer Registration You're also eligible to apply for a professionally. As a professionally qualified member we can register you with the uk engineering council. Regcheck is an online tool that can be used to verify an engineering council registration. Structural engineers registration ltd (ser) is a trading subsidiary of the institution of structural engineers and was formed, with the support of. Decide. Structural Engineer Registration.
From dokumen.tips
(PDF) Structural Engineer Registration Application DOKUMEN.TIPS Structural Engineer Registration Use our search to find structural engineering firms near you, and read free advice on topics like loft conversions and extensions. As a professionally qualified member we can register you with the uk engineering council. Establish that you have the right academic foundation. You're also eligible to apply for a professionally. The engineering council is the uk regulatory body for. Structural Engineer Registration.
From www.youtube.com
Structural Engineer & registration Online Structural Engineer Registration Structural engineers registration ltd has been appointed by the scottish government's building standards division to administer a scheme for. Establish that you have the right academic foundation. Regcheck is an online tool that can be used to verify an engineering council registration. You're also eligible to apply for a professionally. The engineering council is the uk regulatory body for the. Structural Engineer Registration.
From www.templateroller.com
Form ENLS651014 Download Fillable PDF or Fill Online Structural Structural Engineer Registration Use our search to find structural engineering firms near you, and read free advice on topics like loft conversions and extensions. You're also eligible to apply for a professionally. We hold the national registers of over 229,000 engineering. It can be used to confirm if an individual engineer or. As a professionally qualified member we can register you with the. Structural Engineer Registration.
From lseng.net
About / Services LEONARDS STRUCTURAL ENGINEERING Structural Engineer Registration Use our search to find structural engineering firms near you, and read free advice on topics like loft conversions and extensions. Chartered structural engineers are highly qualified professionals responsible for the safe, sustainable, effective and efficient design,. You're also eligible to apply for a professionally. As a professionally qualified member we can register you with the uk engineering council. Regcheck. Structural Engineer Registration.
From www.amazon.com
Structural Engineer Registration Problems and Solutions Williams Structural Engineer Registration Regcheck is an online tool that can be used to verify an engineering council registration. Establish that you have the right academic foundation. Structural engineers registration ltd (ser) is a trading subsidiary of the institution of structural engineers and was formed, with the support of. We hold the national registers of over 229,000 engineering. Decide your route to membership: Use. Structural Engineer Registration.
From www.youtube.com
Structural Engineer Registration YouTube Structural Engineer Registration The engineering council is the uk regulatory body for the engineering profession. Structural engineers registration ltd has been appointed by the scottish government's building standards division to administer a scheme for. Structural engineers registration ltd (ser) is a trading subsidiary of the institution of structural engineers and was formed, with the support of. As a professionally qualified member we can. Structural Engineer Registration.
From beltengineering.com
When Do You Need A Structural Engineer? Tampa, FL Belt Engineering Structural Engineer Registration Structural engineers registration ltd has been appointed by the scottish government's building standards division to administer a scheme for. Structural engineers registration ltd (ser) is a trading subsidiary of the institution of structural engineers and was formed, with the support of. Establish that you have the right academic foundation. Most of our chartered members progress as graduate members undertaking initial. Structural Engineer Registration.
From eurotowersintl.com
Structural Certification for Vivaldi Residences Davao Euro Towers Structural Engineer Registration Regcheck is an online tool that can be used to verify an engineering council registration. Structural engineers registration ltd has been appointed by the scottish government's building standards division to administer a scheme for. We hold the national registers of over 229,000 engineering. Establish that you have the right academic foundation. You're also eligible to apply for a professionally. Chartered. Structural Engineer Registration.
From www.templateroller.com
Form ENLS651014 Download Fillable PDF or Fill Online Structural Structural Engineer Registration As a professionally qualified member we can register you with the uk engineering council. Decide your route to membership: Most of our chartered members progress as graduate members undertaking initial professional. Chartered structural engineers are highly qualified professionals responsible for the safe, sustainable, effective and efficient design,. Structural engineers registration ltd has been appointed by the scottish government's building standards. Structural Engineer Registration.
From handypdf.com
Structural Engineer Registration Application Edit, Fill, Sign Online Structural Engineer Registration Structural engineers registration ltd has been appointed by the scottish government's building standards division to administer a scheme for. Chartered structural engineers are highly qualified professionals responsible for the safe, sustainable, effective and efficient design,. You're also eligible to apply for a professionally. Establish that you have the right academic foundation. Use our search to find structural engineering firms near. Structural Engineer Registration.
From www.youtube.com
Structural Mechanics 120+ Most Important MCQs Crash Course License Structural Engineer Registration Chartered structural engineers are highly qualified professionals responsible for the safe, sustainable, effective and efficient design,. Most of our chartered members progress as graduate members undertaking initial professional. Structural engineers registration ltd has been appointed by the scottish government's building standards division to administer a scheme for. As a professionally qualified member we can register you with the uk engineering. Structural Engineer Registration.
From www.ser-ltd.com
Blog (August 2023) Structural Engineers Registration Ltd Structural Engineer Registration Decide your route to membership: It can be used to confirm if an individual engineer or. As a professionally qualified member we can register you with the uk engineering council. The engineering council is the uk regulatory body for the engineering profession. Structural engineers registration ltd (ser) is a trading subsidiary of the institution of structural engineers and was formed,. Structural Engineer Registration.
From www.templateroller.com
Form ENLS651014 Download Fillable PDF or Fill Online Structural Structural Engineer Registration We hold the national registers of over 229,000 engineering. The engineering council is the uk regulatory body for the engineering profession. As a professionally qualified member we can register you with the uk engineering council. Establish that you have the right academic foundation. Decide your route to membership: Use our search to find structural engineering firms near you, and read. Structural Engineer Registration.
From handypdf.com
Structural Engineer Registration Application Edit, Fill, Sign Online Structural Engineer Registration Most of our chartered members progress as graduate members undertaking initial professional. Decide your route to membership: Use our search to find structural engineering firms near you, and read free advice on topics like loft conversions and extensions. Structural engineers registration ltd (ser) is a trading subsidiary of the institution of structural engineers and was formed, with the support of.. Structural Engineer Registration.
From www.templateroller.com
Form ENLS651014 Download Fillable PDF or Fill Online Structural Structural Engineer Registration Structural engineers registration ltd (ser) is a trading subsidiary of the institution of structural engineers and was formed, with the support of. You're also eligible to apply for a professionally. Structural engineers registration ltd has been appointed by the scottish government's building standards division to administer a scheme for. Use our search to find structural engineering firms near you, and. Structural Engineer Registration.
From www-engineering.blogspot.com
Engineering Structural Engineer Registration The engineering council is the uk regulatory body for the engineering profession. Chartered structural engineers are highly qualified professionals responsible for the safe, sustainable, effective and efficient design,. It can be used to confirm if an individual engineer or. Structural engineers registration ltd has been appointed by the scottish government's building standards division to administer a scheme for. Structural engineers. Structural Engineer Registration.
From www.ser-ltd.com
Blog (May 2021) Structural Engineers Registration Ltd Structural Engineer Registration Structural engineers registration ltd has been appointed by the scottish government's building standards division to administer a scheme for. It can be used to confirm if an individual engineer or. As a professionally qualified member we can register you with the uk engineering council. Establish that you have the right academic foundation. Structural engineers registration ltd (ser) is a trading. Structural Engineer Registration.
From handypdf.com
Structural Engineer Registration Application Edit, Fill, Sign Online Structural Engineer Registration Use our search to find structural engineering firms near you, and read free advice on topics like loft conversions and extensions. The engineering council is the uk regulatory body for the engineering profession. Decide your route to membership: Establish that you have the right academic foundation. Most of our chartered members progress as graduate members undertaking initial professional. It can. Structural Engineer Registration.
From pdfslide.net
(PDF) ISTRUCTE(EXAMINATION(PREPARATION(COURSE(((( · PDF fileThe Structural Engineer Registration Most of our chartered members progress as graduate members undertaking initial professional. Structural engineers registration ltd has been appointed by the scottish government's building standards division to administer a scheme for. Chartered structural engineers are highly qualified professionals responsible for the safe, sustainable, effective and efficient design,. As a professionally qualified member we can register you with the uk engineering. Structural Engineer Registration.
From www.scribd.com
Structural Engineer Registration Application PDF Licensure Engineer Structural Engineer Registration As a professionally qualified member we can register you with the uk engineering council. Decide your route to membership: It can be used to confirm if an individual engineer or. Establish that you have the right academic foundation. Regcheck is an online tool that can be used to verify an engineering council registration. Chartered structural engineers are highly qualified professionals. Structural Engineer Registration.
From www.youtube.com
Structural Engineer Licence License of Nagar Palika Mahanagar Palika Structural Engineer Registration We hold the national registers of over 229,000 engineering. It can be used to confirm if an individual engineer or. Structural engineers registration ltd has been appointed by the scottish government's building standards division to administer a scheme for. Structural engineers registration ltd (ser) is a trading subsidiary of the institution of structural engineers and was formed, with the support. Structural Engineer Registration.
From ascelibrary.org
Joachim G. Giaver Champion of Structural Engineer Registration Laws Structural Engineer Registration We hold the national registers of over 229,000 engineering. Chartered structural engineers are highly qualified professionals responsible for the safe, sustainable, effective and efficient design,. Structural engineers registration ltd (ser) is a trading subsidiary of the institution of structural engineers and was formed, with the support of. It can be used to confirm if an individual engineer or. Use our. Structural Engineer Registration.
From www.iastructe.co.in
CSEIAStructE Accreditation Indian Association of Structural Engineers Structural Engineer Registration Structural engineers registration ltd has been appointed by the scottish government's building standards division to administer a scheme for. Regcheck is an online tool that can be used to verify an engineering council registration. Most of our chartered members progress as graduate members undertaking initial professional. Chartered structural engineers are highly qualified professionals responsible for the safe, sustainable, effective and. Structural Engineer Registration.