Grinding Machine Risk Assessment . Puwer requires employers whose employees use grinding machinery to carry out a risk assessment of the machinery and processes involved. Where possible, the use of grinders shall be avoided e.g. Always ensure machine is turned off at the power source before attempting to change cutting wheels. That you communicate with in the space of your activities them review this document with all hazards are. Download our angle grinder risk assessment example for a quick start to the common health and safety risks and suitable control measures for cutting, grinding, buffing and polishing in the. Cutting carried out by saw or cnc machine grinding. Always use both hands when. A risk assessments for a pedestal or bench grinder always includes a core set of recognized hazards and requirements. This guide will focus on four principal hazards associated with the use of abrasives in the workplace and.
        
        from www.thesecularparent.com 
     
        
        A risk assessments for a pedestal or bench grinder always includes a core set of recognized hazards and requirements. Where possible, the use of grinders shall be avoided e.g. Puwer requires employers whose employees use grinding machinery to carry out a risk assessment of the machinery and processes involved. Always ensure machine is turned off at the power source before attempting to change cutting wheels. Always use both hands when. Download our angle grinder risk assessment example for a quick start to the common health and safety risks and suitable control measures for cutting, grinding, buffing and polishing in the. That you communicate with in the space of your activities them review this document with all hazards are. This guide will focus on four principal hazards associated with the use of abrasives in the workplace and. Cutting carried out by saw or cnc machine grinding.
    
    	
            
	
		 
         
    Machinery Machine Risk Assessment Template Templates2 Resume Examples 
    Grinding Machine Risk Assessment  This guide will focus on four principal hazards associated with the use of abrasives in the workplace and. Always use both hands when. Download our angle grinder risk assessment example for a quick start to the common health and safety risks and suitable control measures for cutting, grinding, buffing and polishing in the. Puwer requires employers whose employees use grinding machinery to carry out a risk assessment of the machinery and processes involved. This guide will focus on four principal hazards associated with the use of abrasives in the workplace and. A risk assessments for a pedestal or bench grinder always includes a core set of recognized hazards and requirements. Where possible, the use of grinders shall be avoided e.g. That you communicate with in the space of your activities them review this document with all hazards are. Always ensure machine is turned off at the power source before attempting to change cutting wheels. Cutting carried out by saw or cnc machine grinding.
            
	
		 
         
 
    
        From www.hsedot.com 
                    Very useful 5 Nos Risk Assessment Sheet (Part04) Grinding Machine Risk Assessment  Always ensure machine is turned off at the power source before attempting to change cutting wheels. Download our angle grinder risk assessment example for a quick start to the common health and safety risks and suitable control measures for cutting, grinding, buffing and polishing in the. Puwer requires employers whose employees use grinding machinery to carry out a risk assessment. Grinding Machine Risk Assessment.
     
    
        From www.scribd.com 
                    Risk Assessment of Grinding Objects Being Cut Falling Staff, Public Grinding Machine Risk Assessment  Always ensure machine is turned off at the power source before attempting to change cutting wheels. Cutting carried out by saw or cnc machine grinding. Puwer requires employers whose employees use grinding machinery to carry out a risk assessment of the machinery and processes involved. Where possible, the use of grinders shall be avoided e.g. This guide will focus on. Grinding Machine Risk Assessment.
     
    
        From safeti.com 
                    Angle Grinder Risk Assessment Download PLUS Training Grinding Machine Risk Assessment  Always ensure machine is turned off at the power source before attempting to change cutting wheels. A risk assessments for a pedestal or bench grinder always includes a core set of recognized hazards and requirements. Download our angle grinder risk assessment example for a quick start to the common health and safety risks and suitable control measures for cutting, grinding,. Grinding Machine Risk Assessment.
     
    
        From 12designandtechnology-cole.weebly.com 
                    Risk Assessments Elsie Cole Grinding Machine Risk Assessment  Download our angle grinder risk assessment example for a quick start to the common health and safety risks and suitable control measures for cutting, grinding, buffing and polishing in the. Puwer requires employers whose employees use grinding machinery to carry out a risk assessment of the machinery and processes involved. Always use both hands when. This guide will focus on. Grinding Machine Risk Assessment.
     
    
        From www.hsedocuments.com 
                    RISK ASSESSMENT FOR WELDING, CUTTING, GRINDING HSE Documents Grinding Machine Risk Assessment  Always use both hands when. This guide will focus on four principal hazards associated with the use of abrasives in the workplace and. That you communicate with in the space of your activities them review this document with all hazards are. Where possible, the use of grinders shall be avoided e.g. Always ensure machine is turned off at the power. Grinding Machine Risk Assessment.
     
    
        From www.scribd.com 
                    M05 F05 Machine Risk Assessment Grinder1 PDF Risk Grinding Grinding Machine Risk Assessment  Download our angle grinder risk assessment example for a quick start to the common health and safety risks and suitable control measures for cutting, grinding, buffing and polishing in the. Always use both hands when. Always ensure machine is turned off at the power source before attempting to change cutting wheels. Cutting carried out by saw or cnc machine grinding.. Grinding Machine Risk Assessment.
     
    
        From www.thesecularparent.com 
                    Machinery Machine Risk Assessment Template Templates2 Resume Examples Grinding Machine Risk Assessment  Puwer requires employers whose employees use grinding machinery to carry out a risk assessment of the machinery and processes involved. This guide will focus on four principal hazards associated with the use of abrasives in the workplace and. Where possible, the use of grinders shall be avoided e.g. Always use both hands when. Cutting carried out by saw or cnc. Grinding Machine Risk Assessment.
     
    
        From www.slideserve.com 
                    PPT P15482 Breadfruit Shredder and Grinder PowerPoint Presentation Grinding Machine Risk Assessment  Puwer requires employers whose employees use grinding machinery to carry out a risk assessment of the machinery and processes involved. Where possible, the use of grinders shall be avoided e.g. Download our angle grinder risk assessment example for a quick start to the common health and safety risks and suitable control measures for cutting, grinding, buffing and polishing in the.. Grinding Machine Risk Assessment.
     
    
        From www.hseprof.com 
                    HSE Docs Download HSE Risk Assesment for Welding activities Grinding Machine Risk Assessment  That you communicate with in the space of your activities them review this document with all hazards are. Always use both hands when. Always ensure machine is turned off at the power source before attempting to change cutting wheels. Cutting carried out by saw or cnc machine grinding. Puwer requires employers whose employees use grinding machinery to carry out a. Grinding Machine Risk Assessment.
     
    
        From www.scribd.com 
                    Risk Assessment No. 35 USING GRINDER Rev 0 PDF Personal Protective Grinding Machine Risk Assessment  Always ensure machine is turned off at the power source before attempting to change cutting wheels. Puwer requires employers whose employees use grinding machinery to carry out a risk assessment of the machinery and processes involved. That you communicate with in the space of your activities them review this document with all hazards are. Where possible, the use of grinders. Grinding Machine Risk Assessment.
     
    
        From www.scribd.com 
                    Hazards Identification Risk Assessment Control Download Free PDF Grinding Machine Risk Assessment  Cutting carried out by saw or cnc machine grinding. Always use both hands when. Always ensure machine is turned off at the power source before attempting to change cutting wheels. Where possible, the use of grinders shall be avoided e.g. Puwer requires employers whose employees use grinding machinery to carry out a risk assessment of the machinery and processes involved.. Grinding Machine Risk Assessment.
     
    
        From www.hsedot.com 
                    Very useful 5 Nos Risk Assessment Sheet (Part04) Grinding Machine Risk Assessment  Where possible, the use of grinders shall be avoided e.g. A risk assessments for a pedestal or bench grinder always includes a core set of recognized hazards and requirements. Always use both hands when. Download our angle grinder risk assessment example for a quick start to the common health and safety risks and suitable control measures for cutting, grinding, buffing. Grinding Machine Risk Assessment.
     
    
        From sitemate.com 
                    Grinder Inspection Checklist (For angle, portable and bench grinders) Grinding Machine Risk Assessment  This guide will focus on four principal hazards associated with the use of abrasives in the workplace and. Where possible, the use of grinders shall be avoided e.g. Download our angle grinder risk assessment example for a quick start to the common health and safety risks and suitable control measures for cutting, grinding, buffing and polishing in the. Puwer requires. Grinding Machine Risk Assessment.
     
    
        From www.scribd.com 
                    Risk Assessment No. 39 WELDING IN GENERAL Rev. 02 20.03.09.doc Grinding Machine Risk Assessment  That you communicate with in the space of your activities them review this document with all hazards are. Always use both hands when. Always ensure machine is turned off at the power source before attempting to change cutting wheels. Where possible, the use of grinders shall be avoided e.g. Cutting carried out by saw or cnc machine grinding. A risk. Grinding Machine Risk Assessment.
     
    
        From www.riskpal.com 
                    Risk Assessment Matrices Tools to Visualise Risk Grinding Machine Risk Assessment  This guide will focus on four principal hazards associated with the use of abrasives in the workplace and. Cutting carried out by saw or cnc machine grinding. Puwer requires employers whose employees use grinding machinery to carry out a risk assessment of the machinery and processes involved. Always ensure machine is turned off at the power source before attempting to. Grinding Machine Risk Assessment.
     
    
        From www.anyrgb.com 
                    Hs Direct, coshh, risk Analysis, risk Assessment, Grinding, risk Grinding Machine Risk Assessment  Download our angle grinder risk assessment example for a quick start to the common health and safety risks and suitable control measures for cutting, grinding, buffing and polishing in the. Puwer requires employers whose employees use grinding machinery to carry out a risk assessment of the machinery and processes involved. This guide will focus on four principal hazards associated with. Grinding Machine Risk Assessment.
     
    
        From safeti.com 
                    Risk Assessment Archives Safeti Grinding Machine Risk Assessment  Puwer requires employers whose employees use grinding machinery to carry out a risk assessment of the machinery and processes involved. Cutting carried out by saw or cnc machine grinding. Always use both hands when. A risk assessments for a pedestal or bench grinder always includes a core set of recognized hazards and requirements. Always ensure machine is turned off at. Grinding Machine Risk Assessment.
     
    
        From www.haspod.com 
                    Angle Grinder Risk Assessment Template HASpod Grinding Machine Risk Assessment  Cutting carried out by saw or cnc machine grinding. Puwer requires employers whose employees use grinding machinery to carry out a risk assessment of the machinery and processes involved. That you communicate with in the space of your activities them review this document with all hazards are. A risk assessments for a pedestal or bench grinder always includes a core. Grinding Machine Risk Assessment.
     
    
        From weldingblos.netlify.app 
                    Welding Cutting Grinding Risk Assessment Grinding Machine Risk Assessment  Download our angle grinder risk assessment example for a quick start to the common health and safety risks and suitable control measures for cutting, grinding, buffing and polishing in the. Puwer requires employers whose employees use grinding machinery to carry out a risk assessment of the machinery and processes involved. Cutting carried out by saw or cnc machine grinding. This. Grinding Machine Risk Assessment.
     
    
        From sitemate.com 
                    Angle Grinder Safe Work Method Statement (SWMS) Free and editable Grinding Machine Risk Assessment  That you communicate with in the space of your activities them review this document with all hazards are. Puwer requires employers whose employees use grinding machinery to carry out a risk assessment of the machinery and processes involved. Where possible, the use of grinders shall be avoided e.g. Always ensure machine is turned off at the power source before attempting. Grinding Machine Risk Assessment.
     
    
        From studylib.net 
                    Plant and Equipment Risk Management Form Grinding Machine Risk Assessment  Puwer requires employers whose employees use grinding machinery to carry out a risk assessment of the machinery and processes involved. That you communicate with in the space of your activities them review this document with all hazards are. Download our angle grinder risk assessment example for a quick start to the common health and safety risks and suitable control measures. Grinding Machine Risk Assessment.
     
    
        From www.scribd.com 
                    10. Using bench grinder (WS).xlsx Risk Assessment Mill (Grinding) Grinding Machine Risk Assessment  A risk assessments for a pedestal or bench grinder always includes a core set of recognized hazards and requirements. Where possible, the use of grinders shall be avoided e.g. Puwer requires employers whose employees use grinding machinery to carry out a risk assessment of the machinery and processes involved. This guide will focus on four principal hazards associated with the. Grinding Machine Risk Assessment.
     
    
        From hsseworld.com 
                    Machine Safety and 43Equipment Inspection Checklists Grinding Machine Risk Assessment  Always ensure machine is turned off at the power source before attempting to change cutting wheels. Always use both hands when. Puwer requires employers whose employees use grinding machinery to carry out a risk assessment of the machinery and processes involved. Download our angle grinder risk assessment example for a quick start to the common health and safety risks and. Grinding Machine Risk Assessment.
     
    
        From safeti.com 
                    Angle Grinder Risk Assessment Download PLUS Training Grinding Machine Risk Assessment  A risk assessments for a pedestal or bench grinder always includes a core set of recognized hazards and requirements. Where possible, the use of grinders shall be avoided e.g. Cutting carried out by saw or cnc machine grinding. This guide will focus on four principal hazards associated with the use of abrasives in the workplace and. Download our angle grinder. Grinding Machine Risk Assessment.
     
    
        From makesafetools.com 
                    Bench Grinder Risk Assessments and Safety MAKESafe Tools Grinding Machine Risk Assessment  Download our angle grinder risk assessment example for a quick start to the common health and safety risks and suitable control measures for cutting, grinding, buffing and polishing in the. Puwer requires employers whose employees use grinding machinery to carry out a risk assessment of the machinery and processes involved. That you communicate with in the space of your activities. Grinding Machine Risk Assessment.
     
    
        From studylib.net 
                    SRC equipment risk assessment 2013 Grinding Machine Risk Assessment  Download our angle grinder risk assessment example for a quick start to the common health and safety risks and suitable control measures for cutting, grinding, buffing and polishing in the. A risk assessments for a pedestal or bench grinder always includes a core set of recognized hazards and requirements. This guide will focus on four principal hazards associated with the. Grinding Machine Risk Assessment.
     
    
        From hams-gps.net 
                    machinery risk assessment software Safety of machinery and Risk Grinding Machine Risk Assessment  Download our angle grinder risk assessment example for a quick start to the common health and safety risks and suitable control measures for cutting, grinding, buffing and polishing in the. That you communicate with in the space of your activities them review this document with all hazards are. Always ensure machine is turned off at the power source before attempting. Grinding Machine Risk Assessment.
     
    
        From atelier-yuwa.ciao.jp 
                    Angle Grinder Risk Assessment atelieryuwa.ciao.jp Grinding Machine Risk Assessment  A risk assessments for a pedestal or bench grinder always includes a core set of recognized hazards and requirements. This guide will focus on four principal hazards associated with the use of abrasives in the workplace and. Where possible, the use of grinders shall be avoided e.g. Cutting carried out by saw or cnc machine grinding. Always use both hands. Grinding Machine Risk Assessment.
     
    
        From mavink.com 
                    Excavator Risk Assessment Template Grinding Machine Risk Assessment  Always ensure machine is turned off at the power source before attempting to change cutting wheels. Download our angle grinder risk assessment example for a quick start to the common health and safety risks and suitable control measures for cutting, grinding, buffing and polishing in the. Cutting carried out by saw or cnc machine grinding. Puwer requires employers whose employees. Grinding Machine Risk Assessment.
     
    
        From www.scribd.com 
                    HSE Risk Assessment To The Activity of Welding Cutting & Grinding PDF Grinding Machine Risk Assessment  A risk assessments for a pedestal or bench grinder always includes a core set of recognized hazards and requirements. Download our angle grinder risk assessment example for a quick start to the common health and safety risks and suitable control measures for cutting, grinding, buffing and polishing in the. This guide will focus on four principal hazards associated with the. Grinding Machine Risk Assessment.
     
    
        From www.cobotsmachinerysafety.co.uk 
                    Machinery Risk Assessments Machinery Compliance Safety Assessment CMS Grinding Machine Risk Assessment  Always use both hands when. Where possible, the use of grinders shall be avoided e.g. That you communicate with in the space of your activities them review this document with all hazards are. Download our angle grinder risk assessment example for a quick start to the common health and safety risks and suitable control measures for cutting, grinding, buffing and. Grinding Machine Risk Assessment.
     
    
        From safeti.com 
                    Angle Grinder Risk Assessment Download PLUS Training Grinding Machine Risk Assessment  This guide will focus on four principal hazards associated with the use of abrasives in the workplace and. Download our angle grinder risk assessment example for a quick start to the common health and safety risks and suitable control measures for cutting, grinding, buffing and polishing in the. Always use both hands when. That you communicate with in the space. Grinding Machine Risk Assessment.
     
    
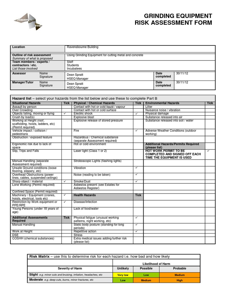
        From www.scribd.com 
                    Grinding Equipment Risk Assessment Risk Safety Free 30day Trial Grinding Machine Risk Assessment  Always use both hands when. Where possible, the use of grinders shall be avoided e.g. Always ensure machine is turned off at the power source before attempting to change cutting wheels. Cutting carried out by saw or cnc machine grinding. Download our angle grinder risk assessment example for a quick start to the common health and safety risks and suitable. Grinding Machine Risk Assessment.
     
    
        From studylib.net 
                    RA_MW05_surface_grinding_machines Grinding Machine Risk Assessment  That you communicate with in the space of your activities them review this document with all hazards are. This guide will focus on four principal hazards associated with the use of abrasives in the workplace and. Download our angle grinder risk assessment example for a quick start to the common health and safety risks and suitable control measures for cutting,. Grinding Machine Risk Assessment.
     
    
        From www.scribd.com 
                    M05 F05 Machine Risk Assessment Grinding Plane PDF Grinding Machine Risk Assessment  A risk assessments for a pedestal or bench grinder always includes a core set of recognized hazards and requirements. Where possible, the use of grinders shall be avoided e.g. This guide will focus on four principal hazards associated with the use of abrasives in the workplace and. Always use both hands when. Cutting carried out by saw or cnc machine. Grinding Machine Risk Assessment.