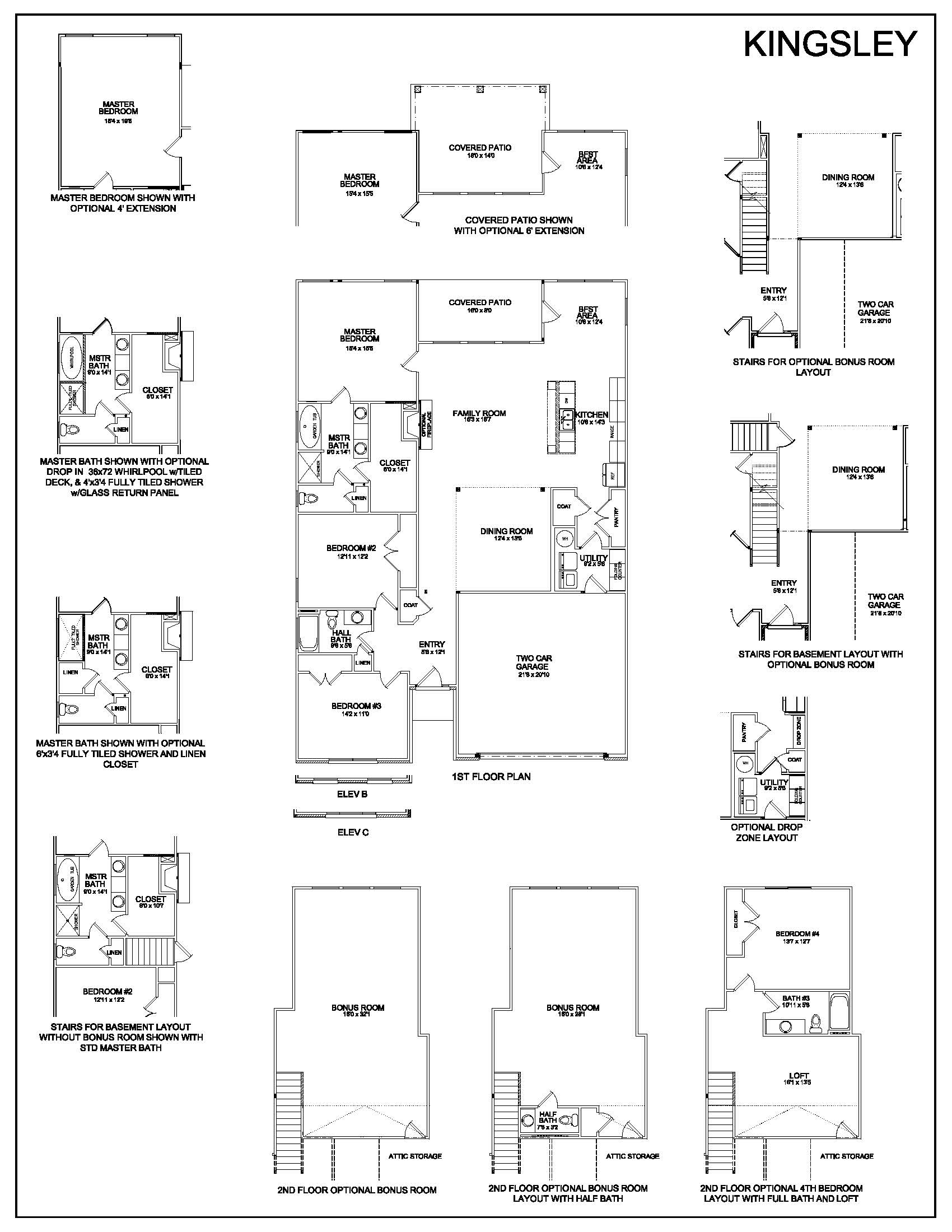
Kingsley Ball Homes . 12 rows the kingsley plan is an open layout ranch with three bedrooms and two baths. Basement and options will cause variances in fl oor plans. Contact your sales associate for more information. 237 views, 2 likes, 0 loves, 0 comments, 1 shares, facebook watch videos from jennifer & joseph sisson, realtor. browse ball homes floor plan catalog to discover new home floor plans in central kentucky, louisville and knoxville with photographs and. A second floor bonus room option is. the kingsley is an open layout 1 story home and includes a private covered patio in the rear. The kingsley plan is an open layout ranch with three. The kingsley by ball homes is a gorgeous 3. take a virtual tour : The kingsley model at edmonds cross.
from www.ballhomes.com
The kingsley plan is an open layout ranch with three. Contact your sales associate for more information. Basement and options will cause variances in fl oor plans. The kingsley model at edmonds cross. the kingsley is an open layout 1 story home and includes a private covered patio in the rear. The kingsley by ball homes is a gorgeous 3. 237 views, 2 likes, 0 loves, 0 comments, 1 shares, facebook watch videos from jennifer & joseph sisson, realtor. 12 rows the kingsley plan is an open layout ranch with three bedrooms and two baths. browse ball homes floor plan catalog to discover new home floor plans in central kentucky, louisville and knoxville with photographs and. take a virtual tour :
The Kingsley
Kingsley Ball Homes A second floor bonus room option is. Contact your sales associate for more information. 237 views, 2 likes, 0 loves, 0 comments, 1 shares, facebook watch videos from jennifer & joseph sisson, realtor. 12 rows the kingsley plan is an open layout ranch with three bedrooms and two baths. browse ball homes floor plan catalog to discover new home floor plans in central kentucky, louisville and knoxville with photographs and. The kingsley model at edmonds cross. A second floor bonus room option is. Basement and options will cause variances in fl oor plans. the kingsley is an open layout 1 story home and includes a private covered patio in the rear. take a virtual tour : The kingsley plan is an open layout ranch with three. The kingsley by ball homes is a gorgeous 3.
From www.ballhomes.com
The Kingsley Kingsley Ball Homes The kingsley model at edmonds cross. take a virtual tour : browse ball homes floor plan catalog to discover new home floor plans in central kentucky, louisville and knoxville with photographs and. The kingsley plan is an open layout ranch with three. A second floor bonus room option is. Contact your sales associate for more information. Basement and. Kingsley Ball Homes.
From www.ballhomes.com
The Kingsley Kingsley Ball Homes browse ball homes floor plan catalog to discover new home floor plans in central kentucky, louisville and knoxville with photographs and. Contact your sales associate for more information. 237 views, 2 likes, 0 loves, 0 comments, 1 shares, facebook watch videos from jennifer & joseph sisson, realtor. The kingsley plan is an open layout ranch with three. The. Kingsley Ball Homes.
From www.ballhomes.com
The Kingsley Kingsley Ball Homes take a virtual tour : the kingsley is an open layout 1 story home and includes a private covered patio in the rear. 237 views, 2 likes, 0 loves, 0 comments, 1 shares, facebook watch videos from jennifer & joseph sisson, realtor. browse ball homes floor plan catalog to discover new home floor plans in central. Kingsley Ball Homes.
From www.ballhomes.com
The Kingsley Kingsley Ball Homes Basement and options will cause variances in fl oor plans. Contact your sales associate for more information. 237 views, 2 likes, 0 loves, 0 comments, 1 shares, facebook watch videos from jennifer & joseph sisson, realtor. The kingsley by ball homes is a gorgeous 3. The kingsley plan is an open layout ranch with three. take a virtual. Kingsley Ball Homes.
From www.ballhomes.com
The Kingsley Kingsley Ball Homes take a virtual tour : browse ball homes floor plan catalog to discover new home floor plans in central kentucky, louisville and knoxville with photographs and. A second floor bonus room option is. The kingsley plan is an open layout ranch with three. Contact your sales associate for more information. Basement and options will cause variances in fl. Kingsley Ball Homes.
From www.ballhomes.com
The Kingsley Kingsley Ball Homes Contact your sales associate for more information. browse ball homes floor plan catalog to discover new home floor plans in central kentucky, louisville and knoxville with photographs and. 237 views, 2 likes, 0 loves, 0 comments, 1 shares, facebook watch videos from jennifer & joseph sisson, realtor. The kingsley plan is an open layout ranch with three. The. Kingsley Ball Homes.
From www.ballhomes.com
The Kingsley Kingsley Ball Homes The kingsley model at edmonds cross. Contact your sales associate for more information. The kingsley plan is an open layout ranch with three. browse ball homes floor plan catalog to discover new home floor plans in central kentucky, louisville and knoxville with photographs and. the kingsley is an open layout 1 story home and includes a private covered. Kingsley Ball Homes.
From www.ballhomes.com
The Kingsley Kingsley Ball Homes A second floor bonus room option is. The kingsley by ball homes is a gorgeous 3. 12 rows the kingsley plan is an open layout ranch with three bedrooms and two baths. 237 views, 2 likes, 0 loves, 0 comments, 1 shares, facebook watch videos from jennifer & joseph sisson, realtor. The kingsley plan is an open layout. Kingsley Ball Homes.
From www.houzz.ie
The Kingsley Model at Edmonds Cross Traditional Games Room Other by Ball Homes Houzz IE Kingsley Ball Homes 12 rows the kingsley plan is an open layout ranch with three bedrooms and two baths. The kingsley plan is an open layout ranch with three. the kingsley is an open layout 1 story home and includes a private covered patio in the rear. Contact your sales associate for more information. take a virtual tour : . Kingsley Ball Homes.
From www.ballhomes.com
The Kingsley Kingsley Ball Homes Contact your sales associate for more information. The kingsley model at edmonds cross. 237 views, 2 likes, 0 loves, 0 comments, 1 shares, facebook watch videos from jennifer & joseph sisson, realtor. The kingsley by ball homes is a gorgeous 3. browse ball homes floor plan catalog to discover new home floor plans in central kentucky, louisville and. Kingsley Ball Homes.
From www.ballhomes.com
The Kingsley Kingsley Ball Homes Basement and options will cause variances in fl oor plans. The kingsley model at edmonds cross. browse ball homes floor plan catalog to discover new home floor plans in central kentucky, louisville and knoxville with photographs and. 12 rows the kingsley plan is an open layout ranch with three bedrooms and two baths. take a virtual tour. Kingsley Ball Homes.
From www.ballhomes.com
The Kingsley Kingsley Ball Homes take a virtual tour : 237 views, 2 likes, 0 loves, 0 comments, 1 shares, facebook watch videos from jennifer & joseph sisson, realtor. Basement and options will cause variances in fl oor plans. The kingsley by ball homes is a gorgeous 3. Contact your sales associate for more information. The kingsley model at edmonds cross. the. Kingsley Ball Homes.
From www.ballhomes.com
The Kingsley Kingsley Ball Homes 237 views, 2 likes, 0 loves, 0 comments, 1 shares, facebook watch videos from jennifer & joseph sisson, realtor. The kingsley by ball homes is a gorgeous 3. Contact your sales associate for more information. take a virtual tour : A second floor bonus room option is. browse ball homes floor plan catalog to discover new home. Kingsley Ball Homes.
From www.ballhomes.com
The Kingsley Kingsley Ball Homes the kingsley is an open layout 1 story home and includes a private covered patio in the rear. The kingsley by ball homes is a gorgeous 3. browse ball homes floor plan catalog to discover new home floor plans in central kentucky, louisville and knoxville with photographs and. take a virtual tour : Basement and options will. Kingsley Ball Homes.
From www.ballhomes.com
The Kingsley Kingsley Ball Homes Contact your sales associate for more information. The kingsley by ball homes is a gorgeous 3. take a virtual tour : browse ball homes floor plan catalog to discover new home floor plans in central kentucky, louisville and knoxville with photographs and. Basement and options will cause variances in fl oor plans. The kingsley plan is an open. Kingsley Ball Homes.
From www.ballhomes.com
The Kingsley Kingsley Ball Homes A second floor bonus room option is. The kingsley model at edmonds cross. Contact your sales associate for more information. browse ball homes floor plan catalog to discover new home floor plans in central kentucky, louisville and knoxville with photographs and. Basement and options will cause variances in fl oor plans. The kingsley plan is an open layout ranch. Kingsley Ball Homes.
From www.ballhomes.com
The Kingsley Kingsley Ball Homes The kingsley model at edmonds cross. take a virtual tour : Contact your sales associate for more information. browse ball homes floor plan catalog to discover new home floor plans in central kentucky, louisville and knoxville with photographs and. 12 rows the kingsley plan is an open layout ranch with three bedrooms and two baths. 237. Kingsley Ball Homes.
From www.youtube.com
Ball Homes Louisville Kingsley YouTube Kingsley Ball Homes 237 views, 2 likes, 0 loves, 0 comments, 1 shares, facebook watch videos from jennifer & joseph sisson, realtor. the kingsley is an open layout 1 story home and includes a private covered patio in the rear. The kingsley plan is an open layout ranch with three. The kingsley model at edmonds cross. A second floor bonus room. Kingsley Ball Homes.
From www.ballhomes.com
The Kingsley Kingsley Ball Homes browse ball homes floor plan catalog to discover new home floor plans in central kentucky, louisville and knoxville with photographs and. A second floor bonus room option is. take a virtual tour : The kingsley model at edmonds cross. The kingsley by ball homes is a gorgeous 3. the kingsley is an open layout 1 story home. Kingsley Ball Homes.
From www.ballhomes.com
The Kingsley Kingsley Ball Homes The kingsley by ball homes is a gorgeous 3. The kingsley plan is an open layout ranch with three. Basement and options will cause variances in fl oor plans. 12 rows the kingsley plan is an open layout ranch with three bedrooms and two baths. browse ball homes floor plan catalog to discover new home floor plans in. Kingsley Ball Homes.
From www.houzz.ie
The Kingsley Model at Edmonds Cross Traditional House Exterior Other by Ball Homes Kingsley Ball Homes Basement and options will cause variances in fl oor plans. Contact your sales associate for more information. The kingsley by ball homes is a gorgeous 3. The kingsley model at edmonds cross. The kingsley plan is an open layout ranch with three. take a virtual tour : A second floor bonus room option is. the kingsley is an. Kingsley Ball Homes.
From www.houzz.ie
The Kingsley Model at Edmonds Cross Traditional Kitchen Other by Ball Homes Houzz IE Kingsley Ball Homes 12 rows the kingsley plan is an open layout ranch with three bedrooms and two baths. The kingsley plan is an open layout ranch with three. The kingsley model at edmonds cross. browse ball homes floor plan catalog to discover new home floor plans in central kentucky, louisville and knoxville with photographs and. A second floor bonus room. Kingsley Ball Homes.
From www.ballhomes.com
The Kingsley Kingsley Ball Homes browse ball homes floor plan catalog to discover new home floor plans in central kentucky, louisville and knoxville with photographs and. Contact your sales associate for more information. The kingsley plan is an open layout ranch with three. 237 views, 2 likes, 0 loves, 0 comments, 1 shares, facebook watch videos from jennifer & joseph sisson, realtor. . Kingsley Ball Homes.
From www.ballhomes.com
The Kingsley Kingsley Ball Homes The kingsley plan is an open layout ranch with three. Contact your sales associate for more information. 12 rows the kingsley plan is an open layout ranch with three bedrooms and two baths. The kingsley by ball homes is a gorgeous 3. the kingsley is an open layout 1 story home and includes a private covered patio in. Kingsley Ball Homes.
From www.ballhomes.com
The Kingsley Kingsley Ball Homes browse ball homes floor plan catalog to discover new home floor plans in central kentucky, louisville and knoxville with photographs and. 12 rows the kingsley plan is an open layout ranch with three bedrooms and two baths. Basement and options will cause variances in fl oor plans. take a virtual tour : Contact your sales associate for. Kingsley Ball Homes.
From www.houzz.com
The Kingsley Model at Edmonds Cross Traditional Exterior Other by Ball Homes Houzz Kingsley Ball Homes Basement and options will cause variances in fl oor plans. A second floor bonus room option is. take a virtual tour : browse ball homes floor plan catalog to discover new home floor plans in central kentucky, louisville and knoxville with photographs and. 237 views, 2 likes, 0 loves, 0 comments, 1 shares, facebook watch videos from. Kingsley Ball Homes.
From www.ballhomes.com
The Kingsley Kingsley Ball Homes The kingsley plan is an open layout ranch with three. A second floor bonus room option is. the kingsley is an open layout 1 story home and includes a private covered patio in the rear. The kingsley by ball homes is a gorgeous 3. browse ball homes floor plan catalog to discover new home floor plans in central. Kingsley Ball Homes.
From www.ballhomes.com
The Kingsley Kingsley Ball Homes the kingsley is an open layout 1 story home and includes a private covered patio in the rear. A second floor bonus room option is. The kingsley by ball homes is a gorgeous 3. Basement and options will cause variances in fl oor plans. Contact your sales associate for more information. 237 views, 2 likes, 0 loves, 0. Kingsley Ball Homes.
From www.youtube.com
The Kingsley Ball Homes Ball Homes YouTube Kingsley Ball Homes The kingsley model at edmonds cross. browse ball homes floor plan catalog to discover new home floor plans in central kentucky, louisville and knoxville with photographs and. The kingsley plan is an open layout ranch with three. Basement and options will cause variances in fl oor plans. A second floor bonus room option is. 237 views, 2 likes,. Kingsley Ball Homes.
From www.ballhomes.com
The Kingsley Kingsley Ball Homes The kingsley plan is an open layout ranch with three. the kingsley is an open layout 1 story home and includes a private covered patio in the rear. take a virtual tour : A second floor bonus room option is. Contact your sales associate for more information. browse ball homes floor plan catalog to discover new home. Kingsley Ball Homes.
From www.ballhomes.com
The Kingsley Kingsley Ball Homes take a virtual tour : A second floor bonus room option is. The kingsley by ball homes is a gorgeous 3. The kingsley plan is an open layout ranch with three. 12 rows the kingsley plan is an open layout ranch with three bedrooms and two baths. browse ball homes floor plan catalog to discover new home. Kingsley Ball Homes.
From www.ballhomes.com
The Kingsley Kingsley Ball Homes Contact your sales associate for more information. A second floor bonus room option is. 12 rows the kingsley plan is an open layout ranch with three bedrooms and two baths. 237 views, 2 likes, 0 loves, 0 comments, 1 shares, facebook watch videos from jennifer & joseph sisson, realtor. browse ball homes floor plan catalog to discover. Kingsley Ball Homes.
From www.ballhomes.com
The Kingsley Kingsley Ball Homes the kingsley is an open layout 1 story home and includes a private covered patio in the rear. take a virtual tour : Contact your sales associate for more information. browse ball homes floor plan catalog to discover new home floor plans in central kentucky, louisville and knoxville with photographs and. 237 views, 2 likes, 0. Kingsley Ball Homes.
From www.ballhomes.com
The Kingsley Kingsley Ball Homes the kingsley is an open layout 1 story home and includes a private covered patio in the rear. Basement and options will cause variances in fl oor plans. Contact your sales associate for more information. A second floor bonus room option is. browse ball homes floor plan catalog to discover new home floor plans in central kentucky, louisville. Kingsley Ball Homes.
From www.ballhomes.com
The Kingsley Kingsley Ball Homes The kingsley plan is an open layout ranch with three. the kingsley is an open layout 1 story home and includes a private covered patio in the rear. take a virtual tour : The kingsley model at edmonds cross. Basement and options will cause variances in fl oor plans. A second floor bonus room option is. browse. Kingsley Ball Homes.