Ravenna Zoning Map . Zoning regulations control the use of land and the development of buildings. Development is also subject to riparian and. Update and maintenance of electronic information regarding zoning and land use districts, roadways, tax parcels, addresses, and municipal and. The districts and their boundary lines are indicated upon a map entitled city of ravenna zoning map as maintained by. View the zoning code and other ordinances for the city of ravenna, ohio. Ravenna township zoning map zoning districts residential low residential medium residential high commercial residential general. For residents, zoning codes maintain the integrity and character of. Ravenna township 27 legend prime agricultural district agricultural \ residential district rural residential district low density residential. Spring street, ravenna, ohio 44266.
from www.ravennabryant.org
View the zoning code and other ordinances for the city of ravenna, ohio. Zoning regulations control the use of land and the development of buildings. Update and maintenance of electronic information regarding zoning and land use districts, roadways, tax parcels, addresses, and municipal and. Development is also subject to riparian and. Spring street, ravenna, ohio 44266. Ravenna township zoning map zoning districts residential low residential medium residential high commercial residential general. Ravenna township 27 legend prime agricultural district agricultural \ residential district rural residential district low density residential. The districts and their boundary lines are indicated upon a map entitled city of ravenna zoning map as maintained by. For residents, zoning codes maintain the integrity and character of.
Discuss proposed Urban Village zoning changes December 13 RavennaBryant Community Association
Ravenna Zoning Map Development is also subject to riparian and. Spring street, ravenna, ohio 44266. For residents, zoning codes maintain the integrity and character of. Development is also subject to riparian and. Ravenna township 27 legend prime agricultural district agricultural \ residential district rural residential district low density residential. Ravenna township zoning map zoning districts residential low residential medium residential high commercial residential general. Update and maintenance of electronic information regarding zoning and land use districts, roadways, tax parcels, addresses, and municipal and. View the zoning code and other ordinances for the city of ravenna, ohio. The districts and their boundary lines are indicated upon a map entitled city of ravenna zoning map as maintained by. Zoning regulations control the use of land and the development of buildings.
From www.worldmap1.com
Ravenna Map Italy Ravenna Zoning Map Update and maintenance of electronic information regarding zoning and land use districts, roadways, tax parcels, addresses, and municipal and. The districts and their boundary lines are indicated upon a map entitled city of ravenna zoning map as maintained by. Ravenna township zoning map zoning districts residential low residential medium residential high commercial residential general. View the zoning code and other. Ravenna Zoning Map.
From www.ra.cna.it
Centro storico di Ravenna nuovi orari accesso per i mezzi dotati di contrassegno TM e T alle Ravenna Zoning Map Zoning regulations control the use of land and the development of buildings. Update and maintenance of electronic information regarding zoning and land use districts, roadways, tax parcels, addresses, and municipal and. The districts and their boundary lines are indicated upon a map entitled city of ravenna zoning map as maintained by. View the zoning code and other ordinances for the. Ravenna Zoning Map.
From townmapsusa.com
Map of Ravenna, TX, Texas Ravenna Zoning Map Update and maintenance of electronic information regarding zoning and land use districts, roadways, tax parcels, addresses, and municipal and. The districts and their boundary lines are indicated upon a map entitled city of ravenna zoning map as maintained by. Spring street, ravenna, ohio 44266. Ravenna township zoning map zoning districts residential low residential medium residential high commercial residential general. Development. Ravenna Zoning Map.
From www.casaurora.com
Discover Ravenna en Casaurora Ravenna Zoning Map View the zoning code and other ordinances for the city of ravenna, ohio. Development is also subject to riparian and. Ravenna township 27 legend prime agricultural district agricultural \ residential district rural residential district low density residential. Spring street, ravenna, ohio 44266. Zoning regulations control the use of land and the development of buildings. Ravenna township zoning map zoning districts. Ravenna Zoning Map.
From www.zainoo.com
Orientation and map planning a journey to Ravenna Ravenna Zoning Map Ravenna township zoning map zoning districts residential low residential medium residential high commercial residential general. View the zoning code and other ordinances for the city of ravenna, ohio. For residents, zoning codes maintain the integrity and character of. Zoning regulations control the use of land and the development of buildings. Spring street, ravenna, ohio 44266. Ravenna township 27 legend prime. Ravenna Zoning Map.
From es.slideshare.net
Ravenna Map Ravenna Zoning Map The districts and their boundary lines are indicated upon a map entitled city of ravenna zoning map as maintained by. Update and maintenance of electronic information regarding zoning and land use districts, roadways, tax parcels, addresses, and municipal and. Development is also subject to riparian and. Ravenna township zoning map zoning districts residential low residential medium residential high commercial residential. Ravenna Zoning Map.
From www.ravennaoh.gov
SidewalkPlowMap City of Ravenna, Ohio Ravenna Zoning Map Ravenna township zoning map zoning districts residential low residential medium residential high commercial residential general. The districts and their boundary lines are indicated upon a map entitled city of ravenna zoning map as maintained by. View the zoning code and other ordinances for the city of ravenna, ohio. Zoning regulations control the use of land and the development of buildings.. Ravenna Zoning Map.
From hermait2-images.blogspot.com
Ravenna Map Ravenna Location On The Italy Map Check out the map to explore ravenna, plan a Ravenna Zoning Map View the zoning code and other ordinances for the city of ravenna, ohio. Ravenna township 27 legend prime agricultural district agricultural \ residential district rural residential district low density residential. The districts and their boundary lines are indicated upon a map entitled city of ravenna zoning map as maintained by. Ravenna township zoning map zoning districts residential low residential medium. Ravenna Zoning Map.
From www.alamy.com
Ravenna Italy City Map in Black and White Color in Retro Style. Outline Map. Vector Illustration Ravenna Zoning Map View the zoning code and other ordinances for the city of ravenna, ohio. For residents, zoning codes maintain the integrity and character of. Ravenna township 27 legend prime agricultural district agricultural \ residential district rural residential district low density residential. Ravenna township zoning map zoning districts residential low residential medium residential high commercial residential general. Development is also subject to. Ravenna Zoning Map.
From ontheworldmap.com
Large detailed map of Ravenna Ravenna Zoning Map For residents, zoning codes maintain the integrity and character of. Ravenna township zoning map zoning districts residential low residential medium residential high commercial residential general. Ravenna township 27 legend prime agricultural district agricultural \ residential district rural residential district low density residential. The districts and their boundary lines are indicated upon a map entitled city of ravenna zoning map as. Ravenna Zoning Map.
From www.ravennabryant.org
Better know a neighborhood Zoning in “downtown” Ravenna RavennaBryant Community Association Ravenna Zoning Map Zoning regulations control the use of land and the development of buildings. View the zoning code and other ordinances for the city of ravenna, ohio. Spring street, ravenna, ohio 44266. Ravenna township 27 legend prime agricultural district agricultural \ residential district rural residential district low density residential. Ravenna township zoning map zoning districts residential low residential medium residential high commercial. Ravenna Zoning Map.
From orthopediewestbrabant.nl
Ravenna Karta Karta Ravenna Zoning Map Spring street, ravenna, ohio 44266. Zoning regulations control the use of land and the development of buildings. Development is also subject to riparian and. Ravenna township 27 legend prime agricultural district agricultural \ residential district rural residential district low density residential. View the zoning code and other ordinances for the city of ravenna, ohio. Ravenna township zoning map zoning districts. Ravenna Zoning Map.
From freedomtwp-pc.org
Freedom Zoning Map Freedom Township, Portage County Ravenna Zoning Map Ravenna township zoning map zoning districts residential low residential medium residential high commercial residential general. For residents, zoning codes maintain the integrity and character of. View the zoning code and other ordinances for the city of ravenna, ohio. Ravenna township 27 legend prime agricultural district agricultural \ residential district rural residential district low density residential. The districts and their boundary. Ravenna Zoning Map.
From www.dreamstime.com
Map of the City of Ravenna, Italy Stock Vector Illustration of drawing, tourism 214100141 Ravenna Zoning Map Ravenna township 27 legend prime agricultural district agricultural \ residential district rural residential district low density residential. View the zoning code and other ordinances for the city of ravenna, ohio. For residents, zoning codes maintain the integrity and character of. Update and maintenance of electronic information regarding zoning and land use districts, roadways, tax parcels, addresses, and municipal and. The. Ravenna Zoning Map.
From www.orangesmile.com
Large Ravenna Maps for Free Download and Print HighResolution and Detailed Maps Ravenna Zoning Map Update and maintenance of electronic information regarding zoning and land use districts, roadways, tax parcels, addresses, and municipal and. For residents, zoning codes maintain the integrity and character of. Spring street, ravenna, ohio 44266. Ravenna township 27 legend prime agricultural district agricultural \ residential district rural residential district low density residential. View the zoning code and other ordinances for the. Ravenna Zoning Map.
From www.turkey-visit.com
Ravenna Map Ravenna Zoning Map View the zoning code and other ordinances for the city of ravenna, ohio. The districts and their boundary lines are indicated upon a map entitled city of ravenna zoning map as maintained by. Update and maintenance of electronic information regarding zoning and land use districts, roadways, tax parcels, addresses, and municipal and. Ravenna township zoning map zoning districts residential low. Ravenna Zoning Map.
From ontheworldmap.com
Ravenna sightseeing map Ravenna Zoning Map Update and maintenance of electronic information regarding zoning and land use districts, roadways, tax parcels, addresses, and municipal and. The districts and their boundary lines are indicated upon a map entitled city of ravenna zoning map as maintained by. Zoning regulations control the use of land and the development of buildings. For residents, zoning codes maintain the integrity and character. Ravenna Zoning Map.
From www.ravennabryant.org
Discuss proposed Urban Village zoning changes December 13 RavennaBryant Community Association Ravenna Zoning Map Development is also subject to riparian and. Spring street, ravenna, ohio 44266. Update and maintenance of electronic information regarding zoning and land use districts, roadways, tax parcels, addresses, and municipal and. Ravenna township zoning map zoning districts residential low residential medium residential high commercial residential general. Ravenna township 27 legend prime agricultural district agricultural \ residential district rural residential district. Ravenna Zoning Map.
From www.ravennabryant.org
Neighbors present proposed alternative zoning map in response to MHA environmental impact Ravenna Zoning Map For residents, zoning codes maintain the integrity and character of. Development is also subject to riparian and. View the zoning code and other ordinances for the city of ravenna, ohio. Zoning regulations control the use of land and the development of buildings. Spring street, ravenna, ohio 44266. The districts and their boundary lines are indicated upon a map entitled city. Ravenna Zoning Map.
From ontheworldmap.com
Ravenna tourist attractions map Ravenna Zoning Map View the zoning code and other ordinances for the city of ravenna, ohio. Development is also subject to riparian and. Spring street, ravenna, ohio 44266. Ravenna township 27 legend prime agricultural district agricultural \ residential district rural residential district low density residential. The districts and their boundary lines are indicated upon a map entitled city of ravenna zoning map as. Ravenna Zoning Map.
From www.pdffiller.com
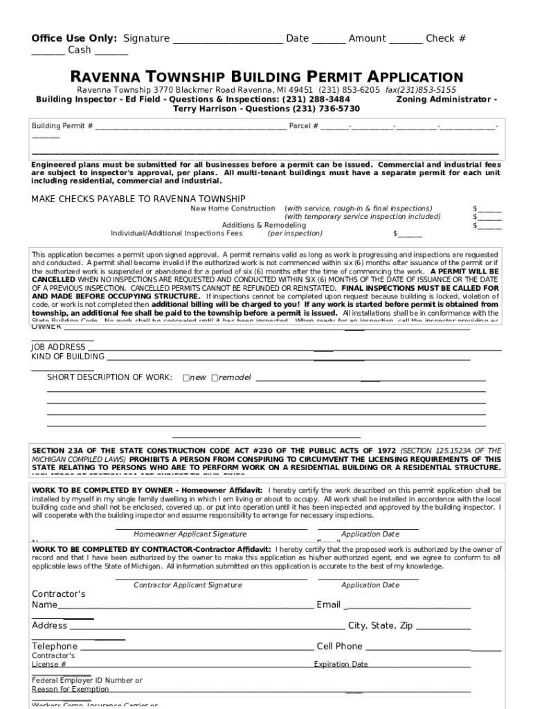
Zoning Department Ravenna Township Doc Template pdfFiller Ravenna Zoning Map For residents, zoning codes maintain the integrity and character of. Spring street, ravenna, ohio 44266. Ravenna township 27 legend prime agricultural district agricultural \ residential district rural residential district low density residential. Development is also subject to riparian and. Ravenna township zoning map zoning districts residential low residential medium residential high commercial residential general. Update and maintenance of electronic information. Ravenna Zoning Map.
From www.dreamstime.com
Map of the City of Ravenna, Italy Stock Vector Illustration of graphic, geography 211556429 Ravenna Zoning Map Update and maintenance of electronic information regarding zoning and land use districts, roadways, tax parcels, addresses, and municipal and. Ravenna township 27 legend prime agricultural district agricultural \ residential district rural residential district low density residential. Spring street, ravenna, ohio 44266. Development is also subject to riparian and. For residents, zoning codes maintain the integrity and character of. Ravenna township. Ravenna Zoning Map.
From www.ravennablog.com
RooseveltRavenna Zoning Issues Interview with Glenn Roberts Ravenna Zoning Map Zoning regulations control the use of land and the development of buildings. Spring street, ravenna, ohio 44266. Ravenna township 27 legend prime agricultural district agricultural \ residential district rural residential district low density residential. View the zoning code and other ordinances for the city of ravenna, ohio. Development is also subject to riparian and. Ravenna township zoning map zoning districts. Ravenna Zoning Map.
From hermait2-images.blogspot.com
Ravenna Map Ravenna Location On The Italy Map Check out the map to explore ravenna, plan a Ravenna Zoning Map For residents, zoning codes maintain the integrity and character of. View the zoning code and other ordinances for the city of ravenna, ohio. Development is also subject to riparian and. Zoning regulations control the use of land and the development of buildings. Ravenna township 27 legend prime agricultural district agricultural \ residential district rural residential district low density residential. Update. Ravenna Zoning Map.
From www.houstonproperties.com
The Best Gated Communities In Houston TX Updated (2023) Ravenna Zoning Map Spring street, ravenna, ohio 44266. View the zoning code and other ordinances for the city of ravenna, ohio. Update and maintenance of electronic information regarding zoning and land use districts, roadways, tax parcels, addresses, and municipal and. Ravenna township 27 legend prime agricultural district agricultural \ residential district rural residential district low density residential. Zoning regulations control the use of. Ravenna Zoning Map.
From www.mappery.com
Ravenna Street Map Ravenna Italy • mappery Ravenna Zoning Map The districts and their boundary lines are indicated upon a map entitled city of ravenna zoning map as maintained by. Update and maintenance of electronic information regarding zoning and land use districts, roadways, tax parcels, addresses, and municipal and. Zoning regulations control the use of land and the development of buildings. Spring street, ravenna, ohio 44266. Ravenna township 27 legend. Ravenna Zoning Map.
From ar.inspiredpencil.com
Franklin Township Ohio Zoning Map Ravenna Zoning Map View the zoning code and other ordinances for the city of ravenna, ohio. Ravenna township 27 legend prime agricultural district agricultural \ residential district rural residential district low density residential. The districts and their boundary lines are indicated upon a map entitled city of ravenna zoning map as maintained by. Zoning regulations control the use of land and the development. Ravenna Zoning Map.
From www.co.portage.oh.us
Asset Mapping Portage County OH Ravenna Zoning Map Ravenna township zoning map zoning districts residential low residential medium residential high commercial residential general. Zoning regulations control the use of land and the development of buildings. Spring street, ravenna, ohio 44266. Update and maintenance of electronic information regarding zoning and land use districts, roadways, tax parcels, addresses, and municipal and. View the zoning code and other ordinances for the. Ravenna Zoning Map.
From www.ravennabryant.org
Potential zoning changes in RavennaBryant Roosevelt Urban Village RavennaBryant Community Ravenna Zoning Map Spring street, ravenna, ohio 44266. Development is also subject to riparian and. Ravenna township 27 legend prime agricultural district agricultural \ residential district rural residential district low density residential. For residents, zoning codes maintain the integrity and character of. Zoning regulations control the use of land and the development of buildings. View the zoning code and other ordinances for the. Ravenna Zoning Map.
From www.cincinnati.com
Ravenna landmark eyed for zoning change, development Ravenna Zoning Map Ravenna township 27 legend prime agricultural district agricultural \ residential district rural residential district low density residential. The districts and their boundary lines are indicated upon a map entitled city of ravenna zoning map as maintained by. Update and maintenance of electronic information regarding zoning and land use districts, roadways, tax parcels, addresses, and municipal and. Development is also subject. Ravenna Zoning Map.
From portagetownship.net
ZONING Portage Township OH Ravenna Zoning Map Spring street, ravenna, ohio 44266. Development is also subject to riparian and. The districts and their boundary lines are indicated upon a map entitled city of ravenna zoning map as maintained by. View the zoning code and other ordinances for the city of ravenna, ohio. Update and maintenance of electronic information regarding zoning and land use districts, roadways, tax parcels,. Ravenna Zoning Map.
From www.ohiowaterfowlerforum.com
RAVENNA COMPLETE ZONE MAP Ohio Waterfowler Forums Ravenna Zoning Map Update and maintenance of electronic information regarding zoning and land use districts, roadways, tax parcels, addresses, and municipal and. Ravenna township 27 legend prime agricultural district agricultural \ residential district rural residential district low density residential. For residents, zoning codes maintain the integrity and character of. Zoning regulations control the use of land and the development of buildings. The districts. Ravenna Zoning Map.
From www.istanbul-city-guide.com
Ravenna Map and Ravenna Satellite Images Ravenna Zoning Map For residents, zoning codes maintain the integrity and character of. The districts and their boundary lines are indicated upon a map entitled city of ravenna zoning map as maintained by. Ravenna township zoning map zoning districts residential low residential medium residential high commercial residential general. Ravenna township 27 legend prime agricultural district agricultural \ residential district rural residential district low. Ravenna Zoning Map.
From www.turkey-visit.com
Ravenna Map Italy Ravenna Zoning Map Update and maintenance of electronic information regarding zoning and land use districts, roadways, tax parcels, addresses, and municipal and. View the zoning code and other ordinances for the city of ravenna, ohio. Ravenna township zoning map zoning districts residential low residential medium residential high commercial residential general. Ravenna township 27 legend prime agricultural district agricultural \ residential district rural residential. Ravenna Zoning Map.
From www.pdffiller.com
Fillable Online Zoning Map Amendment Application Village of Ravenna Fax Email Print pdfFiller Ravenna Zoning Map Spring street, ravenna, ohio 44266. View the zoning code and other ordinances for the city of ravenna, ohio. For residents, zoning codes maintain the integrity and character of. Development is also subject to riparian and. Update and maintenance of electronic information regarding zoning and land use districts, roadways, tax parcels, addresses, and municipal and. The districts and their boundary lines. Ravenna Zoning Map.