Bc Safety Authority Electrical Declaration Form . Apply and pay for a permit through your online services account or using this online form. “i __________________________________________________, a field safety representative for the above. British columbia safety authority (bcsa) maintains this system so that electrical contractors can obtain installation permits and. If you use the form, you will have to. You can submit a declaration either through your online account or as a guest by selecting the appropriate form below. Please note that checking this box and submitting this form to technical safety bc constitutes your declaration as the field safety representative. Electrical contractor authorization and declaration of compliance electrical inspection request. Electrical inspection division q:\forms\forms for the web\electrical contractor declaration. While some forms can be completed and submitted through your online services account, others need to be downloaded. Find the form you need using search or the filters provided.
from electricalsafetygorokoto.blogspot.com
Find the form you need using search or the filters provided. You can submit a declaration either through your online account or as a guest by selecting the appropriate form below. If you use the form, you will have to. “i __________________________________________________, a field safety representative for the above. Apply and pay for a permit through your online services account or using this online form. Please note that checking this box and submitting this form to technical safety bc constitutes your declaration as the field safety representative. While some forms can be completed and submitted through your online services account, others need to be downloaded. Electrical contractor authorization and declaration of compliance electrical inspection request. British columbia safety authority (bcsa) maintains this system so that electrical contractors can obtain installation permits and. Electrical inspection division q:\forms\forms for the web\electrical contractor declaration.
Electrical Safety Bc Electrical Safety Authority
Bc Safety Authority Electrical Declaration Form “i __________________________________________________, a field safety representative for the above. Please note that checking this box and submitting this form to technical safety bc constitutes your declaration as the field safety representative. British columbia safety authority (bcsa) maintains this system so that electrical contractors can obtain installation permits and. While some forms can be completed and submitted through your online services account, others need to be downloaded. Find the form you need using search or the filters provided. You can submit a declaration either through your online account or as a guest by selecting the appropriate form below. If you use the form, you will have to. Electrical inspection division q:\forms\forms for the web\electrical contractor declaration. Electrical contractor authorization and declaration of compliance electrical inspection request. Apply and pay for a permit through your online services account or using this online form. “i __________________________________________________, a field safety representative for the above.
From slidesdocs.com
Insured Personnel Information Correction Declaration Form Excel Bc Safety Authority Electrical Declaration Form British columbia safety authority (bcsa) maintains this system so that electrical contractors can obtain installation permits and. Electrical contractor authorization and declaration of compliance electrical inspection request. If you use the form, you will have to. Please note that checking this box and submitting this form to technical safety bc constitutes your declaration as the field safety representative. Apply and. Bc Safety Authority Electrical Declaration Form.
From studylib.net
directive BC Safety Authority Bc Safety Authority Electrical Declaration Form Electrical contractor authorization and declaration of compliance electrical inspection request. While some forms can be completed and submitted through your online services account, others need to be downloaded. Please note that checking this box and submitting this form to technical safety bc constitutes your declaration as the field safety representative. Find the form you need using search or the filters. Bc Safety Authority Electrical Declaration Form.
From www.signnow.com
Electrical Inspection Report Template Word Complete with ease Bc Safety Authority Electrical Declaration Form British columbia safety authority (bcsa) maintains this system so that electrical contractors can obtain installation permits and. While some forms can be completed and submitted through your online services account, others need to be downloaded. Electrical inspection division q:\forms\forms for the web\electrical contractor declaration. You can submit a declaration either through your online account or as a guest by selecting. Bc Safety Authority Electrical Declaration Form.
From www.pdffiller.com
Fillable Online Electrical Installation BC Safety Authority Fax Bc Safety Authority Electrical Declaration Form Please note that checking this box and submitting this form to technical safety bc constitutes your declaration as the field safety representative. You can submit a declaration either through your online account or as a guest by selecting the appropriate form below. If you use the form, you will have to. Find the form you need using search or the. Bc Safety Authority Electrical Declaration Form.
From www.niklsonecall.com
Electrical Operating Permits for Technical Safety BC & Municipal Bc Safety Authority Electrical Declaration Form While some forms can be completed and submitted through your online services account, others need to be downloaded. Apply and pay for a permit through your online services account or using this online form. Electrical inspection division q:\forms\forms for the web\electrical contractor declaration. You can submit a declaration either through your online account or as a guest by selecting the. Bc Safety Authority Electrical Declaration Form.
From 123formbuilder.polarbuildingcleaning.net
Free Safety Declaration Form Template 123FormBuilder Bc Safety Authority Electrical Declaration Form Electrical contractor authorization and declaration of compliance electrical inspection request. If you use the form, you will have to. Find the form you need using search or the filters provided. You can submit a declaration either through your online account or as a guest by selecting the appropriate form below. British columbia safety authority (bcsa) maintains this system so that. Bc Safety Authority Electrical Declaration Form.
From www.templateroller.com
Form IMM5409 Download Fillable PDF or Fill Online Statutory Declaration Bc Safety Authority Electrical Declaration Form Electrical contractor authorization and declaration of compliance electrical inspection request. Electrical inspection division q:\forms\forms for the web\electrical contractor declaration. If you use the form, you will have to. “i __________________________________________________, a field safety representative for the above. Please note that checking this box and submitting this form to technical safety bc constitutes your declaration as the field safety representative. Find. Bc Safety Authority Electrical Declaration Form.
From klafoppfa.blob.core.windows.net
Legal Forms And Documents at Lawrence Noble blog Bc Safety Authority Electrical Declaration Form You can submit a declaration either through your online account or as a guest by selecting the appropriate form below. Please note that checking this box and submitting this form to technical safety bc constitutes your declaration as the field safety representative. Electrical contractor authorization and declaration of compliance electrical inspection request. While some forms can be completed and submitted. Bc Safety Authority Electrical Declaration Form.
From electricalsafetygorokoto.blogspot.com
Electrical Safety Bc Electrical Safety Authority Bc Safety Authority Electrical Declaration Form British columbia safety authority (bcsa) maintains this system so that electrical contractors can obtain installation permits and. Electrical contractor authorization and declaration of compliance electrical inspection request. Electrical inspection division q:\forms\forms for the web\electrical contractor declaration. Apply and pay for a permit through your online services account or using this online form. You can submit a declaration either through your. Bc Safety Authority Electrical Declaration Form.
From formspal.com
Canada PDF Forms Fillable and Printable Bc Safety Authority Electrical Declaration Form Find the form you need using search or the filters provided. “i __________________________________________________, a field safety representative for the above. Apply and pay for a permit through your online services account or using this online form. While some forms can be completed and submitted through your online services account, others need to be downloaded. If you use the form, you. Bc Safety Authority Electrical Declaration Form.
From www.signnow.com
Canada Declaration Form PDF Complete with ease airSlate SignNow Bc Safety Authority Electrical Declaration Form While some forms can be completed and submitted through your online services account, others need to be downloaded. Electrical inspection division q:\forms\forms for the web\electrical contractor declaration. Please note that checking this box and submitting this form to technical safety bc constitutes your declaration as the field safety representative. “i __________________________________________________, a field safety representative for the above. Find the. Bc Safety Authority Electrical Declaration Form.
From www.yumpu.com
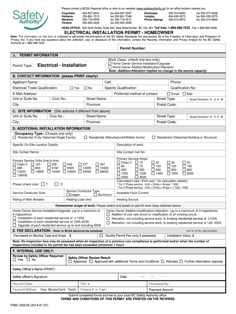
ELECTRICAL INSTALLATION FORM BC Safety Authority Bc Safety Authority Electrical Declaration Form British columbia safety authority (bcsa) maintains this system so that electrical contractors can obtain installation permits and. Electrical inspection division q:\forms\forms for the web\electrical contractor declaration. While some forms can be completed and submitted through your online services account, others need to be downloaded. Find the form you need using search or the filters provided. “i __________________________________________________, a field safety. Bc Safety Authority Electrical Declaration Form.
From studylib.net
Submittal Form (Word) Electrical Safety Authority Bc Safety Authority Electrical Declaration Form Electrical inspection division q:\forms\forms for the web\electrical contractor declaration. While some forms can be completed and submitted through your online services account, others need to be downloaded. “i __________________________________________________, a field safety representative for the above. You can submit a declaration either through your online account or as a guest by selecting the appropriate form below. Electrical contractor authorization and. Bc Safety Authority Electrical Declaration Form.
From printableformsfree.com
Fillable Statutory Declaration Form Printable Forms Free Online Bc Safety Authority Electrical Declaration Form If you use the form, you will have to. You can submit a declaration either through your online account or as a guest by selecting the appropriate form below. Apply and pay for a permit through your online services account or using this online form. Please note that checking this box and submitting this form to technical safety bc constitutes. Bc Safety Authority Electrical Declaration Form.
From www.uslegalforms.com
Canada ICBC MV2943 British Columbia 20182022 Fill and Sign Bc Safety Authority Electrical Declaration Form Find the form you need using search or the filters provided. Apply and pay for a permit through your online services account or using this online form. British columbia safety authority (bcsa) maintains this system so that electrical contractors can obtain installation permits and. While some forms can be completed and submitted through your online services account, others need to. Bc Safety Authority Electrical Declaration Form.
From www.canadalightingandsign.com
Canada Lighting and Sign Service Official Logo Bc Safety Authority Electrical Declaration Form “i __________________________________________________, a field safety representative for the above. Find the form you need using search or the filters provided. You can submit a declaration either through your online account or as a guest by selecting the appropriate form below. British columbia safety authority (bcsa) maintains this system so that electrical contractors can obtain installation permits and. Electrical inspection division. Bc Safety Authority Electrical Declaration Form.
From www.sampleforms.com
FREE 11+ Sample Employee Declaration Forms in PDF Excel Word Bc Safety Authority Electrical Declaration Form Apply and pay for a permit through your online services account or using this online form. If you use the form, you will have to. “i __________________________________________________, a field safety representative for the above. While some forms can be completed and submitted through your online services account, others need to be downloaded. Find the form you need using search or. Bc Safety Authority Electrical Declaration Form.
From studylib.net
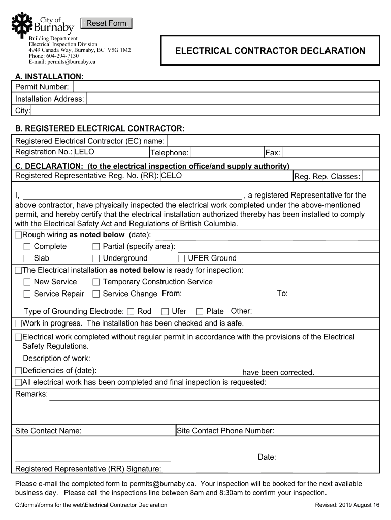
Electrical Contractor Authorization and Declaration Form 206 Bc Safety Authority Electrical Declaration Form Electrical contractor authorization and declaration of compliance electrical inspection request. While some forms can be completed and submitted through your online services account, others need to be downloaded. “i __________________________________________________, a field safety representative for the above. If you use the form, you will have to. You can submit a declaration either through your online account or as a guest. Bc Safety Authority Electrical Declaration Form.
From slidesdocs.com
Municipal Capital Construction Project Declaration Form Excel Template Bc Safety Authority Electrical Declaration Form Find the form you need using search or the filters provided. Electrical contractor authorization and declaration of compliance electrical inspection request. British columbia safety authority (bcsa) maintains this system so that electrical contractors can obtain installation permits and. If you use the form, you will have to. “i __________________________________________________, a field safety representative for the above. Please note that checking. Bc Safety Authority Electrical Declaration Form.
From www.pdffiller.com
Esa Authority Examination Form Template Fill Online, Printable Bc Safety Authority Electrical Declaration Form Find the form you need using search or the filters provided. Electrical contractor authorization and declaration of compliance electrical inspection request. Apply and pay for a permit through your online services account or using this online form. Electrical inspection division q:\forms\forms for the web\electrical contractor declaration. Please note that checking this box and submitting this form to technical safety bc. Bc Safety Authority Electrical Declaration Form.
From www.pdffiller.com
20192024 Form Canada Electrical Contractor Declaration City of Bc Safety Authority Electrical Declaration Form Find the form you need using search or the filters provided. Please note that checking this box and submitting this form to technical safety bc constitutes your declaration as the field safety representative. “i __________________________________________________, a field safety representative for the above. Apply and pay for a permit through your online services account or using this online form. While some. Bc Safety Authority Electrical Declaration Form.
From printableformsfree.com
Fillable Cbp 6059b Form Printable Forms Free Online Bc Safety Authority Electrical Declaration Form If you use the form, you will have to. British columbia safety authority (bcsa) maintains this system so that electrical contractors can obtain installation permits and. Apply and pay for a permit through your online services account or using this online form. “i __________________________________________________, a field safety representative for the above. While some forms can be completed and submitted through. Bc Safety Authority Electrical Declaration Form.
From www.sampleforms.com
FREE 14+ Legal Declaration Forms in PDF Word Bc Safety Authority Electrical Declaration Form Find the form you need using search or the filters provided. You can submit a declaration either through your online account or as a guest by selecting the appropriate form below. While some forms can be completed and submitted through your online services account, others need to be downloaded. Electrical inspection division q:\forms\forms for the web\electrical contractor declaration. Please note. Bc Safety Authority Electrical Declaration Form.
From sitemate.com
Safe Work Method Statement for Electrical Works (Editable template) Bc Safety Authority Electrical Declaration Form You can submit a declaration either through your online account or as a guest by selecting the appropriate form below. Electrical inspection division q:\forms\forms for the web\electrical contractor declaration. British columbia safety authority (bcsa) maintains this system so that electrical contractors can obtain installation permits and. Please note that checking this box and submitting this form to technical safety bc. Bc Safety Authority Electrical Declaration Form.
From www.pwu.ca
electricalsafetyauthoritylogo Power Workers' Union Bc Safety Authority Electrical Declaration Form Find the form you need using search or the filters provided. Apply and pay for a permit through your online services account or using this online form. While some forms can be completed and submitted through your online services account, others need to be downloaded. Electrical inspection division q:\forms\forms for the web\electrical contractor declaration. British columbia safety authority (bcsa) maintains. Bc Safety Authority Electrical Declaration Form.
From www.dochub.com
Canada declaration form Fill out & sign online DocHub Bc Safety Authority Electrical Declaration Form You can submit a declaration either through your online account or as a guest by selecting the appropriate form below. Please note that checking this box and submitting this form to technical safety bc constitutes your declaration as the field safety representative. Apply and pay for a permit through your online services account or using this online form. While some. Bc Safety Authority Electrical Declaration Form.
From www.scribd.com
Electrical Safety Inspection Checklist PDF Electrical Wiring Bc Safety Authority Electrical Declaration Form If you use the form, you will have to. Electrical inspection division q:\forms\forms for the web\electrical contractor declaration. Find the form you need using search or the filters provided. Apply and pay for a permit through your online services account or using this online form. “i __________________________________________________, a field safety representative for the above. Electrical contractor authorization and declaration of. Bc Safety Authority Electrical Declaration Form.
From www.uslegalforms.com
Electrical Installation Certificate Editable Pdf 20202022 Fill and Bc Safety Authority Electrical Declaration Form Electrical inspection division q:\forms\forms for the web\electrical contractor declaration. While some forms can be completed and submitted through your online services account, others need to be downloaded. Please note that checking this box and submitting this form to technical safety bc constitutes your declaration as the field safety representative. Find the form you need using search or the filters provided.. Bc Safety Authority Electrical Declaration Form.
From www.scribd.com
Electrical Certificate of Compliance and Electrical Safety Certificate Bc Safety Authority Electrical Declaration Form You can submit a declaration either through your online account or as a guest by selecting the appropriate form below. Electrical inspection division q:\forms\forms for the web\electrical contractor declaration. If you use the form, you will have to. Electrical contractor authorization and declaration of compliance electrical inspection request. Please note that checking this box and submitting this form to technical. Bc Safety Authority Electrical Declaration Form.
From www.formsbank.com
Fillable Electrical Safety Certificate Of Compliance Template Bc Safety Authority Electrical Declaration Form British columbia safety authority (bcsa) maintains this system so that electrical contractors can obtain installation permits and. While some forms can be completed and submitted through your online services account, others need to be downloaded. Electrical contractor authorization and declaration of compliance electrical inspection request. You can submit a declaration either through your online account or as a guest by. Bc Safety Authority Electrical Declaration Form.
From printableformsfree.com
Printable Statutory Declaration Form Printable Forms Free Online Bc Safety Authority Electrical Declaration Form Find the form you need using search or the filters provided. You can submit a declaration either through your online account or as a guest by selecting the appropriate form below. Please note that checking this box and submitting this form to technical safety bc constitutes your declaration as the field safety representative. Electrical contractor authorization and declaration of compliance. Bc Safety Authority Electrical Declaration Form.
From www.mcnamarapowerline.com
Electrical Contractor Registration Agency of the Electrical Safety Bc Safety Authority Electrical Declaration Form Please note that checking this box and submitting this form to technical safety bc constitutes your declaration as the field safety representative. While some forms can be completed and submitted through your online services account, others need to be downloaded. Apply and pay for a permit through your online services account or using this online form. “i __________________________________________________, a field. Bc Safety Authority Electrical Declaration Form.
From www.finnleyelectrical.com.au
What Is A Certificate Of Compliance For Electrical Work? Bc Safety Authority Electrical Declaration Form Electrical inspection division q:\forms\forms for the web\electrical contractor declaration. You can submit a declaration either through your online account or as a guest by selecting the appropriate form below. British columbia safety authority (bcsa) maintains this system so that electrical contractors can obtain installation permits and. Find the form you need using search or the filters provided. While some forms. Bc Safety Authority Electrical Declaration Form.
From www.dochub.com
Electrical safety authority reviews Fill out & sign online DocHub Bc Safety Authority Electrical Declaration Form “i __________________________________________________, a field safety representative for the above. British columbia safety authority (bcsa) maintains this system so that electrical contractors can obtain installation permits and. Apply and pay for a permit through your online services account or using this online form. You can submit a declaration either through your online account or as a guest by selecting the appropriate. Bc Safety Authority Electrical Declaration Form.
From printableformsfree.com
Fillable Statutory Declaration Form Printable Forms Free Online Bc Safety Authority Electrical Declaration Form You can submit a declaration either through your online account or as a guest by selecting the appropriate form below. If you use the form, you will have to. Find the form you need using search or the filters provided. “i __________________________________________________, a field safety representative for the above. While some forms can be completed and submitted through your online. Bc Safety Authority Electrical Declaration Form.