What Is A Plan View Drawing . We get a bird’s eye perspective of the home’s interior, including room layout with clearly marked entrances, windows, furniture, partitions, etc. This type of drawing is also sometimes called a top view or an overhead view. what is a plan view? A plan view is a type of drawing used in construction and architectural design that. a plan view is the perspective of viewing a building from above without the obstruction of a roof. plan view drawings are essential for architects, engineers, contractors and others to communicate design intent and construction. the plan view is a type of drawing that shows an object from above. The plan view is the most common floor drawing in interior design. what is a plan view?
from www.pinterest.com
what is a plan view? A plan view is a type of drawing used in construction and architectural design that. We get a bird’s eye perspective of the home’s interior, including room layout with clearly marked entrances, windows, furniture, partitions, etc. The plan view is the most common floor drawing in interior design. the plan view is a type of drawing that shows an object from above. what is a plan view? This type of drawing is also sometimes called a top view or an overhead view. a plan view is the perspective of viewing a building from above without the obstruction of a roof. plan view drawings are essential for architects, engineers, contractors and others to communicate design intent and construction.
Architectural Graphics 101 Wall Types Life of an Architect
What Is A Plan View Drawing The plan view is the most common floor drawing in interior design. the plan view is a type of drawing that shows an object from above. what is a plan view? This type of drawing is also sometimes called a top view or an overhead view. The plan view is the most common floor drawing in interior design. a plan view is the perspective of viewing a building from above without the obstruction of a roof. what is a plan view? A plan view is a type of drawing used in construction and architectural design that. We get a bird’s eye perspective of the home’s interior, including room layout with clearly marked entrances, windows, furniture, partitions, etc. plan view drawings are essential for architects, engineers, contractors and others to communicate design intent and construction.
From www.pinterest.com
Orthographic draw Autocad Drawing, Technical Drawing, Orthographic What Is A Plan View Drawing the plan view is a type of drawing that shows an object from above. plan view drawings are essential for architects, engineers, contractors and others to communicate design intent and construction. We get a bird’s eye perspective of the home’s interior, including room layout with clearly marked entrances, windows, furniture, partitions, etc. A plan view is a type. What Is A Plan View Drawing.
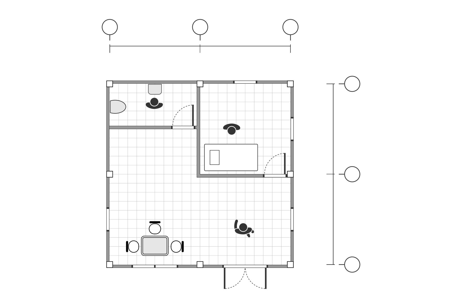
From the2d3dfloorplancompany.com
Foundation plan drawing How to draw, Steps, AutoCAD, raft, strip What Is A Plan View Drawing A plan view is a type of drawing used in construction and architectural design that. This type of drawing is also sometimes called a top view or an overhead view. a plan view is the perspective of viewing a building from above without the obstruction of a roof. the plan view is a type of drawing that shows. What Is A Plan View Drawing.
From imagetou.com
Examples Of Architectural Drawings Image to u What Is A Plan View Drawing We get a bird’s eye perspective of the home’s interior, including room layout with clearly marked entrances, windows, furniture, partitions, etc. the plan view is a type of drawing that shows an object from above. what is a plan view? plan view drawings are essential for architects, engineers, contractors and others to communicate design intent and construction.. What Is A Plan View Drawing.
From douroubi.blogspot.com
House Front Design Drawing Douroubi What Is A Plan View Drawing a plan view is the perspective of viewing a building from above without the obstruction of a roof. the plan view is a type of drawing that shows an object from above. We get a bird’s eye perspective of the home’s interior, including room layout with clearly marked entrances, windows, furniture, partitions, etc. what is a plan. What Is A Plan View Drawing.
From cadbull.com
Elevation drawing of a house design with detail dimension in AutoCAD What Is A Plan View Drawing a plan view is the perspective of viewing a building from above without the obstruction of a roof. what is a plan view? what is a plan view? A plan view is a type of drawing used in construction and architectural design that. The plan view is the most common floor drawing in interior design. This type. What Is A Plan View Drawing.
From therese-den-lille.blogspot.com
elevation plan view drawing Have A Substantial Biog Picture Galleries What Is A Plan View Drawing what is a plan view? the plan view is a type of drawing that shows an object from above. We get a bird’s eye perspective of the home’s interior, including room layout with clearly marked entrances, windows, furniture, partitions, etc. A plan view is a type of drawing used in construction and architectural design that. This type of. What Is A Plan View Drawing.
From www.perceptiverendering.com
Floor Plan and Elevation Drawings What You Need to Know for a What Is A Plan View Drawing A plan view is a type of drawing used in construction and architectural design that. a plan view is the perspective of viewing a building from above without the obstruction of a roof. the plan view is a type of drawing that shows an object from above. This type of drawing is also sometimes called a top view. What Is A Plan View Drawing.
From floorplans.click
Architecture Floor Plan Drawing floorplans.click What Is A Plan View Drawing what is a plan view? the plan view is a type of drawing that shows an object from above. A plan view is a type of drawing used in construction and architectural design that. We get a bird’s eye perspective of the home’s interior, including room layout with clearly marked entrances, windows, furniture, partitions, etc. plan view. What Is A Plan View Drawing.
From www.vecteezy.com
Top view, black and white outline drawing, home plan simple flat with What Is A Plan View Drawing what is a plan view? The plan view is the most common floor drawing in interior design. a plan view is the perspective of viewing a building from above without the obstruction of a roof. plan view drawings are essential for architects, engineers, contractors and others to communicate design intent and construction. what is a plan. What Is A Plan View Drawing.
From getdrawings.com
Building Drawing Plan Elevation Section Pdf at GetDrawings Free download What Is A Plan View Drawing This type of drawing is also sometimes called a top view or an overhead view. plan view drawings are essential for architects, engineers, contractors and others to communicate design intent and construction. the plan view is a type of drawing that shows an object from above. what is a plan view? a plan view is the. What Is A Plan View Drawing.
From fontanarchitecture.com
Plan, Section, Elevation Architectural Drawings Explained · Fontan What Is A Plan View Drawing a plan view is the perspective of viewing a building from above without the obstruction of a roof. The plan view is the most common floor drawing in interior design. the plan view is a type of drawing that shows an object from above. A plan view is a type of drawing used in construction and architectural design. What Is A Plan View Drawing.
From drawing.wonderhowto.com
How to Draw a plan view « Drawing & Illustration WonderHowTo What Is A Plan View Drawing The plan view is the most common floor drawing in interior design. the plan view is a type of drawing that shows an object from above. This type of drawing is also sometimes called a top view or an overhead view. A plan view is a type of drawing used in construction and architectural design that. plan view. What Is A Plan View Drawing.
From www.youtube.com
How to Identify Plan, Elevation and Section in a Drawing? YouTube What Is A Plan View Drawing a plan view is the perspective of viewing a building from above without the obstruction of a roof. This type of drawing is also sometimes called a top view or an overhead view. the plan view is a type of drawing that shows an object from above. what is a plan view? what is a plan. What Is A Plan View Drawing.
From www.mangangroup.com
How to Read Floor Plans — Mangan Group Architects Residential and What Is A Plan View Drawing plan view drawings are essential for architects, engineers, contractors and others to communicate design intent and construction. what is a plan view? This type of drawing is also sometimes called a top view or an overhead view. the plan view is a type of drawing that shows an object from above. a plan view is the. What Is A Plan View Drawing.
From the2d3dfloorplancompany.com
Why 2D Floor Plan Drawings Are Important For Building New Houses? What Is A Plan View Drawing A plan view is a type of drawing used in construction and architectural design that. plan view drawings are essential for architects, engineers, contractors and others to communicate design intent and construction. We get a bird’s eye perspective of the home’s interior, including room layout with clearly marked entrances, windows, furniture, partitions, etc. This type of drawing is also. What Is A Plan View Drawing.
From www.lifeofanarchitect.com
The Cabin Project Technical Drawings Life of an Architect What Is A Plan View Drawing what is a plan view? the plan view is a type of drawing that shows an object from above. a plan view is the perspective of viewing a building from above without the obstruction of a roof. plan view drawings are essential for architects, engineers, contractors and others to communicate design intent and construction. A plan. What Is A Plan View Drawing.
From aestheticdrawingideas.netlify.app
Plan View Drawing Meaning Aesthetic Drawing What Is A Plan View Drawing what is a plan view? a plan view is the perspective of viewing a building from above without the obstruction of a roof. what is a plan view? the plan view is a type of drawing that shows an object from above. We get a bird’s eye perspective of the home’s interior, including room layout with. What Is A Plan View Drawing.
From butohrmolpst.blogspot.com
plan view drawing meaning Mose Shinn What Is A Plan View Drawing what is a plan view? what is a plan view? the plan view is a type of drawing that shows an object from above. This type of drawing is also sometimes called a top view or an overhead view. plan view drawings are essential for architects, engineers, contractors and others to communicate design intent and construction.. What Is A Plan View Drawing.
From paintingvalley.com
House Sketch Plan at Explore collection of House What Is A Plan View Drawing a plan view is the perspective of viewing a building from above without the obstruction of a roof. We get a bird’s eye perspective of the home’s interior, including room layout with clearly marked entrances, windows, furniture, partitions, etc. The plan view is the most common floor drawing in interior design. what is a plan view? what. What Is A Plan View Drawing.
From paintingvalley.com
Tree Plan Drawing at Explore collection of Tree What Is A Plan View Drawing A plan view is a type of drawing used in construction and architectural design that. This type of drawing is also sometimes called a top view or an overhead view. the plan view is a type of drawing that shows an object from above. what is a plan view? a plan view is the perspective of viewing. What Is A Plan View Drawing.
From www.pinterest.com
Architectural Graphic Standards Life of an Architect How to plan What Is A Plan View Drawing what is a plan view? A plan view is a type of drawing used in construction and architectural design that. This type of drawing is also sometimes called a top view or an overhead view. plan view drawings are essential for architects, engineers, contractors and others to communicate design intent and construction. the plan view is a. What Is A Plan View Drawing.
From houseplanphotos.blogspot.com
55+ Isometric View House Plan, House Plan Ideas! What Is A Plan View Drawing what is a plan view? This type of drawing is also sometimes called a top view or an overhead view. what is a plan view? plan view drawings are essential for architects, engineers, contractors and others to communicate design intent and construction. the plan view is a type of drawing that shows an object from above.. What Is A Plan View Drawing.
From jhmrad.com
House Elevation Drawing Planning Drawings JHMRad 21734 What Is A Plan View Drawing plan view drawings are essential for architects, engineers, contractors and others to communicate design intent and construction. We get a bird’s eye perspective of the home’s interior, including room layout with clearly marked entrances, windows, furniture, partitions, etc. the plan view is a type of drawing that shows an object from above. what is a plan view?. What Is A Plan View Drawing.
From thebagukeep.blogspot.com
plan view drawing tool Goes Very Well Blogsphere Picture Galleries What Is A Plan View Drawing The plan view is the most common floor drawing in interior design. what is a plan view? We get a bird’s eye perspective of the home’s interior, including room layout with clearly marked entrances, windows, furniture, partitions, etc. the plan view is a type of drawing that shows an object from above. A plan view is a type. What Is A Plan View Drawing.
From www.pinterest.com
Architectural Graphics 101 Wall Types Life of an Architect What Is A Plan View Drawing what is a plan view? what is a plan view? We get a bird’s eye perspective of the home’s interior, including room layout with clearly marked entrances, windows, furniture, partitions, etc. A plan view is a type of drawing used in construction and architectural design that. plan view drawings are essential for architects, engineers, contractors and others. What Is A Plan View Drawing.
From www.pinterest.com
structural drawing Google keresés Architecture drawing plan What Is A Plan View Drawing This type of drawing is also sometimes called a top view or an overhead view. The plan view is the most common floor drawing in interior design. a plan view is the perspective of viewing a building from above without the obstruction of a roof. plan view drawings are essential for architects, engineers, contractors and others to communicate. What Is A Plan View Drawing.
From www.fantasticeng.com
How to make House Floor Plan in AutoCAD FantasticEng What Is A Plan View Drawing what is a plan view? plan view drawings are essential for architects, engineers, contractors and others to communicate design intent and construction. A plan view is a type of drawing used in construction and architectural design that. a plan view is the perspective of viewing a building from above without the obstruction of a roof. what. What Is A Plan View Drawing.
From imagetou.com
Drawing A Site Plan Template Image to u What Is A Plan View Drawing plan view drawings are essential for architects, engineers, contractors and others to communicate design intent and construction. The plan view is the most common floor drawing in interior design. A plan view is a type of drawing used in construction and architectural design that. what is a plan view? the plan view is a type of drawing. What Is A Plan View Drawing.
From www.pinterest.ca
What Is A Building Elevation Plan Drawing house plans, Architecture What Is A Plan View Drawing what is a plan view? We get a bird’s eye perspective of the home’s interior, including room layout with clearly marked entrances, windows, furniture, partitions, etc. This type of drawing is also sometimes called a top view or an overhead view. plan view drawings are essential for architects, engineers, contractors and others to communicate design intent and construction.. What Is A Plan View Drawing.
From easydrawingidea.netlify.app
Plan View Drawing Tool DRAWING IDEAS What Is A Plan View Drawing The plan view is the most common floor drawing in interior design. This type of drawing is also sometimes called a top view or an overhead view. what is a plan view? We get a bird’s eye perspective of the home’s interior, including room layout with clearly marked entrances, windows, furniture, partitions, etc. the plan view is a. What Is A Plan View Drawing.
From learn.lboro.ac.uk
Engineering Drawings What Is A Plan View Drawing what is a plan view? what is a plan view? We get a bird’s eye perspective of the home’s interior, including room layout with clearly marked entrances, windows, furniture, partitions, etc. The plan view is the most common floor drawing in interior design. plan view drawings are essential for architects, engineers, contractors and others to communicate design. What Is A Plan View Drawing.
From www.livehome3d.com
The 2D Plan View Live Home 3D for iOS and iPadOS What Is A Plan View Drawing what is a plan view? The plan view is the most common floor drawing in interior design. This type of drawing is also sometimes called a top view or an overhead view. what is a plan view? We get a bird’s eye perspective of the home’s interior, including room layout with clearly marked entrances, windows, furniture, partitions, etc.. What Is A Plan View Drawing.
From www.pinterest.com
Rendered Floor Plan Hand Rendered Using Prismacolor Pencils Done What Is A Plan View Drawing plan view drawings are essential for architects, engineers, contractors and others to communicate design intent and construction. This type of drawing is also sometimes called a top view or an overhead view. a plan view is the perspective of viewing a building from above without the obstruction of a roof. We get a bird’s eye perspective of the. What Is A Plan View Drawing.
From www.lifeofanarchitect.com
The Cabin Project Technical Drawings Life of an Architect What Is A Plan View Drawing what is a plan view? The plan view is the most common floor drawing in interior design. plan view drawings are essential for architects, engineers, contractors and others to communicate design intent and construction. We get a bird’s eye perspective of the home’s interior, including room layout with clearly marked entrances, windows, furniture, partitions, etc. the plan. What Is A Plan View Drawing.
From www.pinterest.ca
Desenho de arquitetura, Desenho de arquitetura paisagística What Is A Plan View Drawing what is a plan view? A plan view is a type of drawing used in construction and architectural design that. plan view drawings are essential for architects, engineers, contractors and others to communicate design intent and construction. The plan view is the most common floor drawing in interior design. what is a plan view? a plan. What Is A Plan View Drawing.