Property Tax Ny City . Explore property records (acris) apply for tax exemptions and abatements. Enter your bbl (borough block lot) number. Apply for tax exemptions and see. Download your current and past bills. Fill in the fields to search. View property tax bills and notices. An official website of new york state. View your property tax bills, annual notices of property value (nopv), and other important statements. You can schedule property tax payments through your bank’s website or online bill pay site, or you can apply to have the city automatically withdraw the. In new york city, property tax represented 44% of all the city tax dollars collected in fiscal years 2024, which ended on june 30, 2024. You can pay online, by mail, by phone, or in person. Property taxes (user id and password required) pay by wire or echeck. An official website of new york state. Pay property tax in new york city.
from andyarthur.org
Fill in the fields to search. An official website of new york state. Pay property tax in new york city. You can pay online, by mail, by phone, or in person. Property taxes (user id and password required) pay by wire or echeck. Apply for tax exemptions and see. Download your current and past bills. Enter your bbl (borough block lot) number. View property tax bills and notices. In new york city, property tax represented 44% of all the city tax dollars collected in fiscal years 2024, which ended on june 30, 2024.
Thematic Map 2021 Combined Municipal and County Taxes Per 1,000
Property Tax Ny City You can pay online, by mail, by phone, or in person. You can pay online, by mail, by phone, or in person. In new york city, property tax represented 44% of all the city tax dollars collected in fiscal years 2024, which ended on june 30, 2024. Fill in the fields to search. An official website of new york state. View your property tax bills, annual notices of property value (nopv), and other important statements. An official website of new york state. Pay property tax in new york city. Apply for tax exemptions and see. You can schedule property tax payments through your bank’s website or online bill pay site, or you can apply to have the city automatically withdraw the. Download your current and past bills. Explore property records (acris) apply for tax exemptions and abatements. Enter your bbl (borough block lot) number. Property taxes (user id and password required) pay by wire or echeck. View property tax bills and notices.
From changecominon.blogspot.com
Nyc Property Tax Rates By County change comin Property Tax Ny City Property taxes (user id and password required) pay by wire or echeck. View property tax bills and notices. An official website of new york state. Pay property tax in new york city. Fill in the fields to search. An official website of new york state. You can schedule property tax payments through your bank’s website or online bill pay site,. Property Tax Ny City.
From andyarthur.org
Thematic Map 2021 Combined Municipal and County Taxes Per 1,000 Property Tax Ny City Pay property tax in new york city. Property taxes (user id and password required) pay by wire or echeck. Fill in the fields to search. Explore property records (acris) apply for tax exemptions and abatements. Enter your bbl (borough block lot) number. Apply for tax exemptions and see. You can pay online, by mail, by phone, or in person. An. Property Tax Ny City.
From www.empirecenter.org
New York Property Tax Calculator 2020 Empire Center for Public Policy Property Tax Ny City You can schedule property tax payments through your bank’s website or online bill pay site, or you can apply to have the city automatically withdraw the. An official website of new york state. Explore property records (acris) apply for tax exemptions and abatements. View property tax bills and notices. You can pay online, by mail, by phone, or in person.. Property Tax Ny City.
From exoljbklx.blob.core.windows.net
Average Property Tax New York City at Timothy Thomson blog Property Tax Ny City You can pay online, by mail, by phone, or in person. View your property tax bills, annual notices of property value (nopv), and other important statements. Pay property tax in new york city. An official website of new york state. You can schedule property tax payments through your bank’s website or online bill pay site, or you can apply to. Property Tax Ny City.
From www.hauseit.com
NYC & NYS Seller Transfer Tax of 1.4 to 2.075 Hauseit® Property Tax Ny City Explore property records (acris) apply for tax exemptions and abatements. Pay property tax in new york city. Apply for tax exemptions and see. Enter your bbl (borough block lot) number. In new york city, property tax represented 44% of all the city tax dollars collected in fiscal years 2024, which ended on june 30, 2024. View property tax bills and. Property Tax Ny City.
From joieasdna.blob.core.windows.net
Property Tax New York City Apartment at Tia Lynn blog Property Tax Ny City Enter your bbl (borough block lot) number. View property tax bills and notices. You can pay online, by mail, by phone, or in person. An official website of new york state. Pay property tax in new york city. In new york city, property tax represented 44% of all the city tax dollars collected in fiscal years 2024, which ended on. Property Tax Ny City.
From www.lexology.com
New York State Makes Estate Tax Changes and Increases Real Property Property Tax Ny City An official website of new york state. You can pay online, by mail, by phone, or in person. View your property tax bills, annual notices of property value (nopv), and other important statements. Pay property tax in new york city. An official website of new york state. Enter your bbl (borough block lot) number. View property tax bills and notices.. Property Tax Ny City.
From fyolhjlzl.blob.core.windows.net
How Are Property Taxes Calculated In New York City at Isabelle Fraser blog Property Tax Ny City An official website of new york state. Fill in the fields to search. Property taxes (user id and password required) pay by wire or echeck. In new york city, property tax represented 44% of all the city tax dollars collected in fiscal years 2024, which ended on june 30, 2024. View property tax bills and notices. You can schedule property. Property Tax Ny City.
From leavethekey.com
New York City Property Tax Rate? Is It Worth Selling? Property Tax Ny City Enter your bbl (borough block lot) number. You can schedule property tax payments through your bank’s website or online bill pay site, or you can apply to have the city automatically withdraw the. Property taxes (user id and password required) pay by wire or echeck. An official website of new york state. Fill in the fields to search. View property. Property Tax Ny City.
From exoqpbamm.blob.core.windows.net
New York City Property Tax Map at Eleanor Medina blog Property Tax Ny City You can pay online, by mail, by phone, or in person. Enter your bbl (borough block lot) number. An official website of new york state. Download your current and past bills. You can schedule property tax payments through your bank’s website or online bill pay site, or you can apply to have the city automatically withdraw the. An official website. Property Tax Ny City.
From giocitqcd.blob.core.windows.net
How Much Is Property Tax In Albany Ny at Aaron Moreno blog Property Tax Ny City Pay property tax in new york city. An official website of new york state. View your property tax bills, annual notices of property value (nopv), and other important statements. You can pay online, by mail, by phone, or in person. Apply for tax exemptions and see. In new york city, property tax represented 44% of all the city tax dollars. Property Tax Ny City.
From www.hauseit.com
How Much is the NYC Mansion Tax in 2024? Property Tax Ny City In new york city, property tax represented 44% of all the city tax dollars collected in fiscal years 2024, which ended on june 30, 2024. You can schedule property tax payments through your bank’s website or online bill pay site, or you can apply to have the city automatically withdraw the. View property tax bills and notices. Pay property tax. Property Tax Ny City.
From www.tax.ny.gov
Property tax bill examples Property Tax Ny City Fill in the fields to search. Pay property tax in new york city. View your property tax bills, annual notices of property value (nopv), and other important statements. Apply for tax exemptions and see. In new york city, property tax represented 44% of all the city tax dollars collected in fiscal years 2024, which ended on june 30, 2024. Download. Property Tax Ny City.
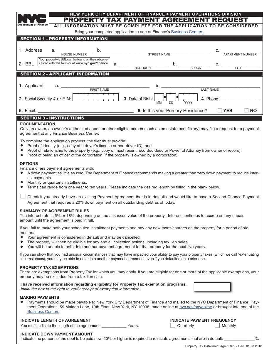
From www.templateroller.com
New York City Property Tax Payment Agreement Request Fill Out, Sign Property Tax Ny City An official website of new york state. Download your current and past bills. Enter your bbl (borough block lot) number. You can pay online, by mail, by phone, or in person. View property tax bills and notices. Property taxes (user id and password required) pay by wire or echeck. Apply for tax exemptions and see. In new york city, property. Property Tax Ny City.
From www.empirecenter.org
Local New York Property Taxes Ranked by Empire Center Empire Center Property Tax Ny City Apply for tax exemptions and see. Enter your bbl (borough block lot) number. Explore property records (acris) apply for tax exemptions and abatements. Pay property tax in new york city. An official website of new york state. Fill in the fields to search. In new york city, property tax represented 44% of all the city tax dollars collected in fiscal. Property Tax Ny City.
From www.hauseit.com
What is the Basic STAR Property Tax Credit in NYC? Hauseit Property Tax Ny City Pay property tax in new york city. View property tax bills and notices. View your property tax bills, annual notices of property value (nopv), and other important statements. You can schedule property tax payments through your bank’s website or online bill pay site, or you can apply to have the city automatically withdraw the. An official website of new york. Property Tax Ny City.
From taxequitynow.nyc
Issue 3 New York City Renters Bear a Larger Burden of the Property Property Tax Ny City Enter your bbl (borough block lot) number. In new york city, property tax represented 44% of all the city tax dollars collected in fiscal years 2024, which ended on june 30, 2024. Pay property tax in new york city. You can schedule property tax payments through your bank’s website or online bill pay site, or you can apply to have. Property Tax Ny City.
From www.bloomingsky.com
NYC Real Estate Taxes Blooming Sky Property Tax Ny City View property tax bills and notices. Property taxes (user id and password required) pay by wire or echeck. You can schedule property tax payments through your bank’s website or online bill pay site, or you can apply to have the city automatically withdraw the. Enter your bbl (borough block lot) number. Download your current and past bills. Explore property records. Property Tax Ny City.
From exoljbklx.blob.core.windows.net
Average Property Tax New York City at Timothy Thomson blog Property Tax Ny City Apply for tax exemptions and see. An official website of new york state. Pay property tax in new york city. You can pay online, by mail, by phone, or in person. Fill in the fields to search. Enter your bbl (borough block lot) number. View your property tax bills, annual notices of property value (nopv), and other important statements. You. Property Tax Ny City.
From exyekzizn.blob.core.windows.net
New York City Property Tax Phone Number at Melinda Felix blog Property Tax Ny City An official website of new york state. You can schedule property tax payments through your bank’s website or online bill pay site, or you can apply to have the city automatically withdraw the. View property tax bills and notices. Explore property records (acris) apply for tax exemptions and abatements. Pay property tax in new york city. Enter your bbl (borough. Property Tax Ny City.
From www.hauseit.com
New York City Tax Guide (2024) Hauseit® NYC Property Tax Ny City Enter your bbl (borough block lot) number. Pay property tax in new york city. View your property tax bills, annual notices of property value (nopv), and other important statements. An official website of new york state. Download your current and past bills. Property taxes (user id and password required) pay by wire or echeck. Apply for tax exemptions and see.. Property Tax Ny City.
From joieasdna.blob.core.windows.net
Property Tax New York City Apartment at Tia Lynn blog Property Tax Ny City You can pay online, by mail, by phone, or in person. Enter your bbl (borough block lot) number. Apply for tax exemptions and see. You can schedule property tax payments through your bank’s website or online bill pay site, or you can apply to have the city automatically withdraw the. In new york city, property tax represented 44% of all. Property Tax Ny City.
From joieasdna.blob.core.windows.net
Property Tax New York City Apartment at Tia Lynn blog Property Tax Ny City An official website of new york state. Enter your bbl (borough block lot) number. You can schedule property tax payments through your bank’s website or online bill pay site, or you can apply to have the city automatically withdraw the. An official website of new york state. You can pay online, by mail, by phone, or in person. Download your. Property Tax Ny City.
From paheld.com
New York City Property Taxes (2023) Property Tax Ny City View your property tax bills, annual notices of property value (nopv), and other important statements. Fill in the fields to search. Property taxes (user id and password required) pay by wire or echeck. Explore property records (acris) apply for tax exemptions and abatements. Pay property tax in new york city. You can pay online, by mail, by phone, or in. Property Tax Ny City.
From nypost.com
NYC homeowners slam property tax bill Property Tax Ny City Enter your bbl (borough block lot) number. Property taxes (user id and password required) pay by wire or echeck. You can schedule property tax payments through your bank’s website or online bill pay site, or you can apply to have the city automatically withdraw the. Download your current and past bills. An official website of new york state. Fill in. Property Tax Ny City.
From www.icsl.edu.gr
How Much Is Property Tax In New York City Property Tax Ny City You can pay online, by mail, by phone, or in person. Pay property tax in new york city. View property tax bills and notices. An official website of new york state. Fill in the fields to search. You can schedule property tax payments through your bank’s website or online bill pay site, or you can apply to have the city. Property Tax Ny City.
From www.hauseit.com
The Complete Guide to Closing Costs in NYC Hauseit® Property Tax Ny City Fill in the fields to search. Property taxes (user id and password required) pay by wire or echeck. In new york city, property tax represented 44% of all the city tax dollars collected in fiscal years 2024, which ended on june 30, 2024. An official website of new york state. Download your current and past bills. An official website of. Property Tax Ny City.
From www.thebalancemoney.com
A Guide to New York City Taxes Property Tax Ny City View property tax bills and notices. Property taxes (user id and password required) pay by wire or echeck. You can schedule property tax payments through your bank’s website or online bill pay site, or you can apply to have the city automatically withdraw the. Enter your bbl (borough block lot) number. Apply for tax exemptions and see. Download your current. Property Tax Ny City.
From joieasdna.blob.core.windows.net
Property Tax New York City Apartment at Tia Lynn blog Property Tax Ny City Property taxes (user id and password required) pay by wire or echeck. Fill in the fields to search. You can schedule property tax payments through your bank’s website or online bill pay site, or you can apply to have the city automatically withdraw the. View property tax bills and notices. View your property tax bills, annual notices of property value. Property Tax Ny City.
From www.pdffiller.com
Fillable Online Property Taxes New York City Fax Email Print pdfFiller Property Tax Ny City An official website of new york state. Fill in the fields to search. Enter your bbl (borough block lot) number. View your property tax bills, annual notices of property value (nopv), and other important statements. An official website of new york state. Download your current and past bills. You can pay online, by mail, by phone, or in person. You. Property Tax Ny City.
From joieasdna.blob.core.windows.net
Property Tax New York City Apartment at Tia Lynn blog Property Tax Ny City An official website of new york state. Property taxes (user id and password required) pay by wire or echeck. Pay property tax in new york city. Explore property records (acris) apply for tax exemptions and abatements. In new york city, property tax represented 44% of all the city tax dollars collected in fiscal years 2024, which ended on june 30,. Property Tax Ny City.
From www.youtube.com
How to Easily Look up NYC Property Taxes Online [Tutorial] YouTube Property Tax Ny City Fill in the fields to search. Pay property tax in new york city. You can schedule property tax payments through your bank’s website or online bill pay site, or you can apply to have the city automatically withdraw the. Download your current and past bills. In new york city, property tax represented 44% of all the city tax dollars collected. Property Tax Ny City.
From www.hauseit.com
NYC Property Tax Bills How to Download and Read Your Bill Property Tax Ny City View your property tax bills, annual notices of property value (nopv), and other important statements. You can pay online, by mail, by phone, or in person. Fill in the fields to search. An official website of new york state. Explore property records (acris) apply for tax exemptions and abatements. You can schedule property tax payments through your bank’s website or. Property Tax Ny City.
From www.taxmypropertyfairly.com
Upstate NY Has Some of the Highest Property Tax Rates in the Nation Property Tax Ny City Fill in the fields to search. An official website of new york state. Enter your bbl (borough block lot) number. Explore property records (acris) apply for tax exemptions and abatements. In new york city, property tax represented 44% of all the city tax dollars collected in fiscal years 2024, which ended on june 30, 2024. View your property tax bills,. Property Tax Ny City.
From cbcny.org
New York City Property Taxes CBCNY Property Tax Ny City An official website of new york state. Apply for tax exemptions and see. An official website of new york state. View your property tax bills, annual notices of property value (nopv), and other important statements. View property tax bills and notices. Download your current and past bills. Explore property records (acris) apply for tax exemptions and abatements. Enter your bbl. Property Tax Ny City.