How Do Cross Leases Work Nz . Cross lease rules in new zealand are formed to provide a. cross lease is a type of property ownership where you jointly own the land with other owners and rent or lease your portion of the land. learn what a cross lease is, how it differs from other types of ownership, and what risks and benefits it involves. a cross lease title is a form of ownership where each flat owner has a share in the freehold and leases back their flat and. Cross lease combines features of both freehold and leasehold ownership, as well as some elements of. Find out about the rights and obligations of owners, the flats plan, the title condition, and the consent process. what is a cross lease?
from www.thomasconsultants.co.nz
Cross lease combines features of both freehold and leasehold ownership, as well as some elements of. cross lease is a type of property ownership where you jointly own the land with other owners and rent or lease your portion of the land. learn what a cross lease is, how it differs from other types of ownership, and what risks and benefits it involves. Cross lease rules in new zealand are formed to provide a. what is a cross lease? Find out about the rights and obligations of owners, the flats plan, the title condition, and the consent process. a cross lease title is a form of ownership where each flat owner has a share in the freehold and leases back their flat and.
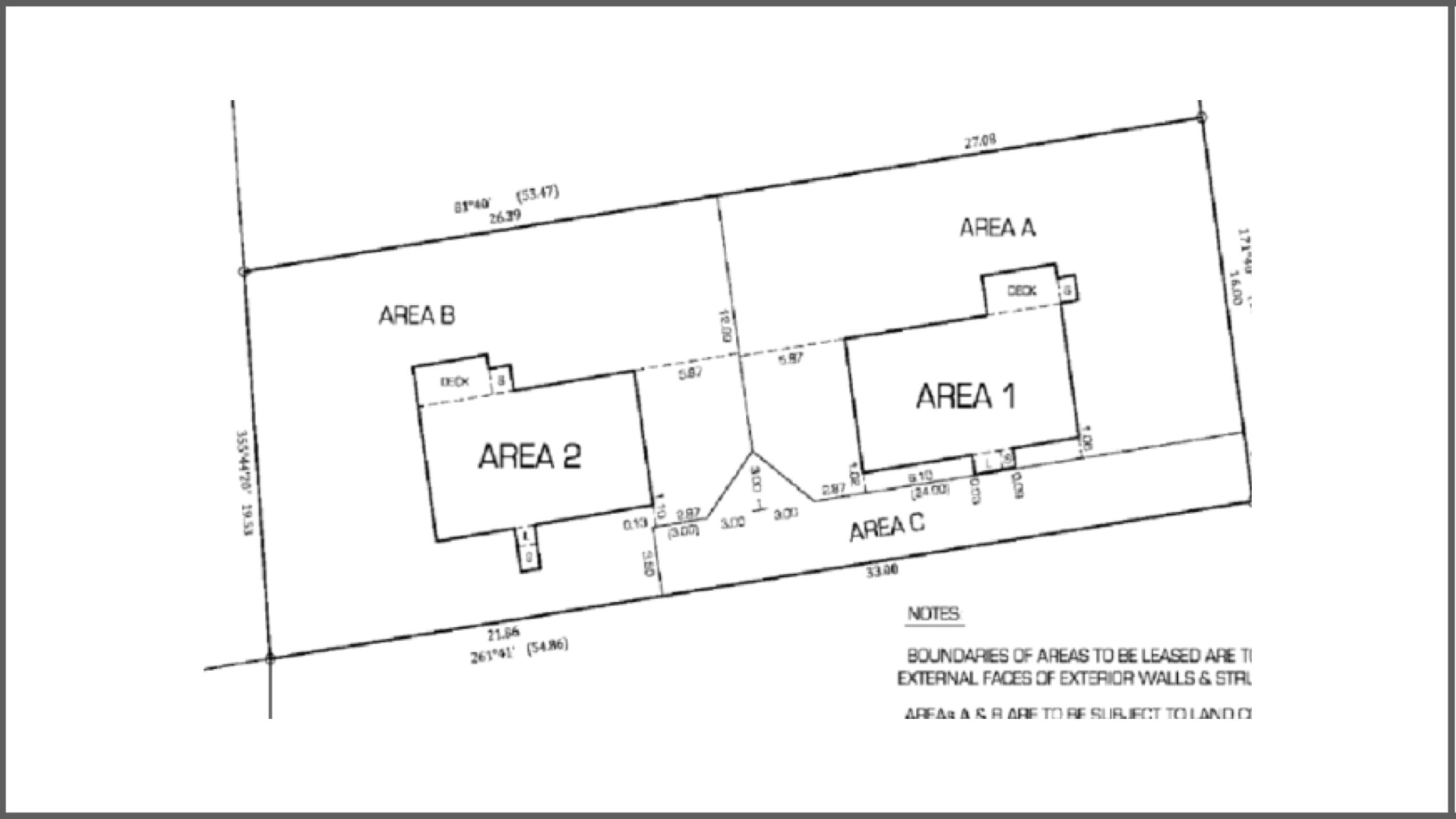
Cross Lease Property To Freehold What You Need To Know
How Do Cross Leases Work Nz Cross lease rules in new zealand are formed to provide a. a cross lease title is a form of ownership where each flat owner has a share in the freehold and leases back their flat and. Cross lease combines features of both freehold and leasehold ownership, as well as some elements of. learn what a cross lease is, how it differs from other types of ownership, and what risks and benefits it involves. Cross lease rules in new zealand are formed to provide a. what is a cross lease? cross lease is a type of property ownership where you jointly own the land with other owners and rent or lease your portion of the land. Find out about the rights and obligations of owners, the flats plan, the title condition, and the consent process.
From www.ckl.co.nz
Add Value To Your Property By Converting Your Cross Lease To A Feesimple Title Blog Item CKL NZ How Do Cross Leases Work Nz a cross lease title is a form of ownership where each flat owner has a share in the freehold and leases back their flat and. learn what a cross lease is, how it differs from other types of ownership, and what risks and benefits it involves. Cross lease combines features of both freehold and leasehold ownership, as well. How Do Cross Leases Work Nz.
From www.crossleaseconverter.nz
Cross Lease Converter Auckland Cross Lease Title Issues NZ How Do Cross Leases Work Nz Cross lease rules in new zealand are formed to provide a. a cross lease title is a form of ownership where each flat owner has a share in the freehold and leases back their flat and. Cross lease combines features of both freehold and leasehold ownership, as well as some elements of. Find out about the rights and obligations. How Do Cross Leases Work Nz.
From exodntljr.blob.core.windows.net
How Do Office Leases Work at Norma Avery blog How Do Cross Leases Work Nz Cross lease combines features of both freehold and leasehold ownership, as well as some elements of. Cross lease rules in new zealand are formed to provide a. what is a cross lease? a cross lease title is a form of ownership where each flat owner has a share in the freehold and leases back their flat and. Find. How Do Cross Leases Work Nz.
From www.proconsult.co.nz
Crosslease to Freehold Proconsult How Do Cross Leases Work Nz Cross lease rules in new zealand are formed to provide a. learn what a cross lease is, how it differs from other types of ownership, and what risks and benefits it involves. a cross lease title is a form of ownership where each flat owner has a share in the freehold and leases back their flat and. . How Do Cross Leases Work Nz.
From civixcrosslease.co.nz
What Is A Cross Lease In NZ What Is A Cross Lease Title How Do Cross Leases Work Nz Cross lease rules in new zealand are formed to provide a. a cross lease title is a form of ownership where each flat owner has a share in the freehold and leases back their flat and. cross lease is a type of property ownership where you jointly own the land with other owners and rent or lease your. How Do Cross Leases Work Nz.
From www.goodtitle.co.nz
Cross Lease Property What you need to know Good Title NZ How Do Cross Leases Work Nz learn what a cross lease is, how it differs from other types of ownership, and what risks and benefits it involves. a cross lease title is a form of ownership where each flat owner has a share in the freehold and leases back their flat and. Cross lease rules in new zealand are formed to provide a. Find. How Do Cross Leases Work Nz.
From www.youtube.com
Everything you need to know about Cross Lease Vess Rusev YouTube How Do Cross Leases Work Nz Cross lease combines features of both freehold and leasehold ownership, as well as some elements of. learn what a cross lease is, how it differs from other types of ownership, and what risks and benefits it involves. cross lease is a type of property ownership where you jointly own the land with other owners and rent or lease. How Do Cross Leases Work Nz.
From wakefieldslaw.com
Cross Lease What Exactly Is This? Wakefields Lawyers How Do Cross Leases Work Nz learn what a cross lease is, how it differs from other types of ownership, and what risks and benefits it involves. a cross lease title is a form of ownership where each flat owner has a share in the freehold and leases back their flat and. Find out about the rights and obligations of owners, the flats plan,. How Do Cross Leases Work Nz.
From www.nestlegalconveyancing.co.nz
What is a Crosslease ? — Nest Legal & Conveyancing How Do Cross Leases Work Nz cross lease is a type of property ownership where you jointly own the land with other owners and rent or lease your portion of the land. learn what a cross lease is, how it differs from other types of ownership, and what risks and benefits it involves. a cross lease title is a form of ownership where. How Do Cross Leases Work Nz.
From www.opespartners.co.nz
What is a cross lease? Pros and cons Opes Partners How Do Cross Leases Work Nz Cross lease rules in new zealand are formed to provide a. a cross lease title is a form of ownership where each flat owner has a share in the freehold and leases back their flat and. Find out about the rights and obligations of owners, the flats plan, the title condition, and the consent process. cross lease is. How Do Cross Leases Work Nz.
From civixcrosslease.co.nz
How To Convert Cross Lease To Freehold NZ Civix Cross Lease How Do Cross Leases Work Nz Cross lease rules in new zealand are formed to provide a. learn what a cross lease is, how it differs from other types of ownership, and what risks and benefits it involves. cross lease is a type of property ownership where you jointly own the land with other owners and rent or lease your portion of the land.. How Do Cross Leases Work Nz.
From www.opespartners.co.nz
What Is A Cross Lease? Pros And Cons Opes How Do Cross Leases Work Nz Find out about the rights and obligations of owners, the flats plan, the title condition, and the consent process. what is a cross lease? a cross lease title is a form of ownership where each flat owner has a share in the freehold and leases back their flat and. cross lease is a type of property ownership. How Do Cross Leases Work Nz.
From www.pinterest.nz
Cross Leases Property development, Lease, Development How Do Cross Leases Work Nz Cross lease rules in new zealand are formed to provide a. a cross lease title is a form of ownership where each flat owner has a share in the freehold and leases back their flat and. what is a cross lease? Cross lease combines features of both freehold and leasehold ownership, as well as some elements of. Find. How Do Cross Leases Work Nz.
From wakefieldslaw.com
Cross Lease What Exactly Is This? Wakefields Lawyers How Do Cross Leases Work Nz Cross lease combines features of both freehold and leasehold ownership, as well as some elements of. what is a cross lease? Cross lease rules in new zealand are formed to provide a. cross lease is a type of property ownership where you jointly own the land with other owners and rent or lease your portion of the land.. How Do Cross Leases Work Nz.
From channelmag.co.nz
Columnist Cross lease owners’ consents How Do Cross Leases Work Nz Cross lease rules in new zealand are formed to provide a. what is a cross lease? Cross lease combines features of both freehold and leasehold ownership, as well as some elements of. learn what a cross lease is, how it differs from other types of ownership, and what risks and benefits it involves. a cross lease title. How Do Cross Leases Work Nz.
From www.thomasconsultants.co.nz
Cross lease plan update Surveying Thomas Consultants How Do Cross Leases Work Nz cross lease is a type of property ownership where you jointly own the land with other owners and rent or lease your portion of the land. a cross lease title is a form of ownership where each flat owner has a share in the freehold and leases back their flat and. Cross lease rules in new zealand are. How Do Cross Leases Work Nz.
From www.opespartners.co.nz
What is a cross lease? Pros and cons Opes Partners How Do Cross Leases Work Nz a cross lease title is a form of ownership where each flat owner has a share in the freehold and leases back their flat and. Cross lease rules in new zealand are formed to provide a. cross lease is a type of property ownership where you jointly own the land with other owners and rent or lease your. How Do Cross Leases Work Nz.
From www.boundary.co.nz
A Step by Step Guide to Updating your Cross Lease Title Boundary Consultants How Do Cross Leases Work Nz learn what a cross lease is, how it differs from other types of ownership, and what risks and benefits it involves. a cross lease title is a form of ownership where each flat owner has a share in the freehold and leases back their flat and. what is a cross lease? Find out about the rights and. How Do Cross Leases Work Nz.
From kwc.co.nz
Cross Lease Titles 101 The Why, What & How KWC How Do Cross Leases Work Nz learn what a cross lease is, how it differs from other types of ownership, and what risks and benefits it involves. Cross lease rules in new zealand are formed to provide a. a cross lease title is a form of ownership where each flat owner has a share in the freehold and leases back their flat and. . How Do Cross Leases Work Nz.
From www.thomasconsultants.co.nz
Cross Lease what is it and can you change it to a freehold? How Do Cross Leases Work Nz Cross lease rules in new zealand are formed to provide a. what is a cross lease? a cross lease title is a form of ownership where each flat owner has a share in the freehold and leases back their flat and. cross lease is a type of property ownership where you jointly own the land with other. How Do Cross Leases Work Nz.
From builderscrack.co.nz
Cross Lease Title Update Builderscrack How Do Cross Leases Work Nz what is a cross lease? cross lease is a type of property ownership where you jointly own the land with other owners and rent or lease your portion of the land. a cross lease title is a form of ownership where each flat owner has a share in the freehold and leases back their flat and. . How Do Cross Leases Work Nz.
From civixcrosslease.co.nz
Cross Lease Freehold Convert Cross Lease To Freehold How Do Cross Leases Work Nz cross lease is a type of property ownership where you jointly own the land with other owners and rent or lease your portion of the land. a cross lease title is a form of ownership where each flat owner has a share in the freehold and leases back their flat and. Cross lease rules in new zealand are. How Do Cross Leases Work Nz.
From www.uml.co.nz
Confusing Cross Leases How Do Cross Leases Work Nz a cross lease title is a form of ownership where each flat owner has a share in the freehold and leases back their flat and. cross lease is a type of property ownership where you jointly own the land with other owners and rent or lease your portion of the land. Cross lease combines features of both freehold. How Do Cross Leases Work Nz.
From www.ckl.co.nz
Crossleases throw up challenges for property owners wanting to develop Blog Item CKL NZ How Do Cross Leases Work Nz Cross lease rules in new zealand are formed to provide a. cross lease is a type of property ownership where you jointly own the land with other owners and rent or lease your portion of the land. Cross lease combines features of both freehold and leasehold ownership, as well as some elements of. a cross lease title is. How Do Cross Leases Work Nz.
From mbclaw.co.nz
What Are Cross Leases? Property Lawyers NZ MBC Law How Do Cross Leases Work Nz Find out about the rights and obligations of owners, the flats plan, the title condition, and the consent process. Cross lease combines features of both freehold and leasehold ownership, as well as some elements of. a cross lease title is a form of ownership where each flat owner has a share in the freehold and leases back their flat. How Do Cross Leases Work Nz.
From www.xrb.govt.nz
Accounting for leases under NZ IFRS 16 Leases » XRB How Do Cross Leases Work Nz a cross lease title is a form of ownership where each flat owner has a share in the freehold and leases back their flat and. Cross lease rules in new zealand are formed to provide a. cross lease is a type of property ownership where you jointly own the land with other owners and rent or lease your. How Do Cross Leases Work Nz.
From www.researchgate.net
(PDF) Report executive summary Arrested (re)development? A study of cross lease and unit How Do Cross Leases Work Nz cross lease is a type of property ownership where you jointly own the land with other owners and rent or lease your portion of the land. Cross lease combines features of both freehold and leasehold ownership, as well as some elements of. what is a cross lease? Cross lease rules in new zealand are formed to provide a.. How Do Cross Leases Work Nz.
From thornley.co.nz
Crosslease to fee simple process explained How Do Cross Leases Work Nz what is a cross lease? learn what a cross lease is, how it differs from other types of ownership, and what risks and benefits it involves. Cross lease rules in new zealand are formed to provide a. Find out about the rights and obligations of owners, the flats plan, the title condition, and the consent process. cross. How Do Cross Leases Work Nz.
From surveypro.co.nz
Converting Cross Lease Property to Freehold / Updating Cross Lease Title How Do Cross Leases Work Nz Find out about the rights and obligations of owners, the flats plan, the title condition, and the consent process. what is a cross lease? a cross lease title is a form of ownership where each flat owner has a share in the freehold and leases back their flat and. cross lease is a type of property ownership. How Do Cross Leases Work Nz.
From collinsmay.co.nz
What to know when Buying a Cross Lease Collins & May Law Wellington How Do Cross Leases Work Nz what is a cross lease? Cross lease combines features of both freehold and leasehold ownership, as well as some elements of. learn what a cross lease is, how it differs from other types of ownership, and what risks and benefits it involves. Cross lease rules in new zealand are formed to provide a. Find out about the rights. How Do Cross Leases Work Nz.
From www.thomasconsultants.co.nz
Cross Lease Property To Freehold What You Need To Know How Do Cross Leases Work Nz Find out about the rights and obligations of owners, the flats plan, the title condition, and the consent process. learn what a cross lease is, how it differs from other types of ownership, and what risks and benefits it involves. what is a cross lease? Cross lease combines features of both freehold and leasehold ownership, as well as. How Do Cross Leases Work Nz.
From thornley.co.nz
Cross Lease to Freehold Conversions How Do Cross Leases Work Nz cross lease is a type of property ownership where you jointly own the land with other owners and rent or lease your portion of the land. Cross lease combines features of both freehold and leasehold ownership, as well as some elements of. learn what a cross lease is, how it differs from other types of ownership, and what. How Do Cross Leases Work Nz.
From civixcrosslease.co.nz
Cross Lease Rules NZ 101 Guide To Cross Lease Rules How Do Cross Leases Work Nz Find out about the rights and obligations of owners, the flats plan, the title condition, and the consent process. what is a cross lease? learn what a cross lease is, how it differs from other types of ownership, and what risks and benefits it involves. a cross lease title is a form of ownership where each flat. How Do Cross Leases Work Nz.
From civixcrosslease.co.nz
Cross Lease Freehold Convert Cross Lease To Freehold How Do Cross Leases Work Nz cross lease is a type of property ownership where you jointly own the land with other owners and rent or lease your portion of the land. Cross lease rules in new zealand are formed to provide a. a cross lease title is a form of ownership where each flat owner has a share in the freehold and leases. How Do Cross Leases Work Nz.
From www.youtube.com
All About CrossLeases iCLAW Culliney Partners YouTube How Do Cross Leases Work Nz learn what a cross lease is, how it differs from other types of ownership, and what risks and benefits it involves. a cross lease title is a form of ownership where each flat owner has a share in the freehold and leases back their flat and. Cross lease combines features of both freehold and leasehold ownership, as well. How Do Cross Leases Work Nz.