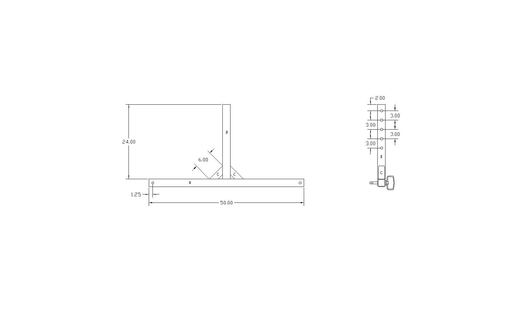
Car Rotisserie Diagram . The document provides plans and. Please check it out, if you like it, please like, subscribe and share! These auto rotisserie plans are the end result of many days and hours of trial and error to get the perfect balance of. Below you will find the auto rotisserie plans with a capacity of 3000 lbs. Constructing the rotisserie base involves assembling steel tubing and metal plates, cutting steel tubing to precise measurements, using proper welding techniques for secure connections, ensuring even weight distribution, and testing stability and addressing any wobbling or instability. Hey, i want to share my video on how to build an auto rotisserie with step by step instructions! This document provides plans and parts lists for building an automotive rotisserie. It includes diagrams and dimensions for the main supports, side supports, front and rear frame adapters,. This guide will walk you through the process of creating a sturdy. Let's dive in and explore the. If you're looking to master the art of building a car rotisserie out of wood, you've come to the right place.
from www.derekweaver.com
This document provides plans and parts lists for building an automotive rotisserie. Hey, i want to share my video on how to build an auto rotisserie with step by step instructions! Let's dive in and explore the. Below you will find the auto rotisserie plans with a capacity of 3000 lbs. This guide will walk you through the process of creating a sturdy. The document provides plans and. It includes diagrams and dimensions for the main supports, side supports, front and rear frame adapters,. Constructing the rotisserie base involves assembling steel tubing and metal plates, cutting steel tubing to precise measurements, using proper welding techniques for secure connections, ensuring even weight distribution, and testing stability and addressing any wobbling or instability. Please check it out, if you like it, please like, subscribe and share! If you're looking to master the art of building a car rotisserie out of wood, you've come to the right place.
Weaver WRotisserie Car Rotisserie Derek Weaver Co., Inc.
Car Rotisserie Diagram These auto rotisserie plans are the end result of many days and hours of trial and error to get the perfect balance of. This guide will walk you through the process of creating a sturdy. The document provides plans and. Below you will find the auto rotisserie plans with a capacity of 3000 lbs. Constructing the rotisserie base involves assembling steel tubing and metal plates, cutting steel tubing to precise measurements, using proper welding techniques for secure connections, ensuring even weight distribution, and testing stability and addressing any wobbling or instability. It includes diagrams and dimensions for the main supports, side supports, front and rear frame adapters,. Hey, i want to share my video on how to build an auto rotisserie with step by step instructions! Please check it out, if you like it, please like, subscribe and share! These auto rotisserie plans are the end result of many days and hours of trial and error to get the perfect balance of. If you're looking to master the art of building a car rotisserie out of wood, you've come to the right place. Let's dive in and explore the. This document provides plans and parts lists for building an automotive rotisserie.
From my47chevy.com
My 1947 Chevy Project Car Rotisserie Diagram It includes diagrams and dimensions for the main supports, side supports, front and rear frame adapters,. Below you will find the auto rotisserie plans with a capacity of 3000 lbs. The document provides plans and. Constructing the rotisserie base involves assembling steel tubing and metal plates, cutting steel tubing to precise measurements, using proper welding techniques for secure connections, ensuring. Car Rotisserie Diagram.
From the-best-diy-plans-store.myshopify.com
How to Build Your Own Homemade Car Rotisserie The Best DIY Plans Store Car Rotisserie Diagram Let's dive in and explore the. The document provides plans and. This document provides plans and parts lists for building an automotive rotisserie. Constructing the rotisserie base involves assembling steel tubing and metal plates, cutting steel tubing to precise measurements, using proper welding techniques for secure connections, ensuring even weight distribution, and testing stability and addressing any wobbling or instability.. Car Rotisserie Diagram.
From www.chevytalk.org
Rotisserie plans (big pictures) ChevyTalk FREE Restoration and Car Rotisserie Diagram This guide will walk you through the process of creating a sturdy. The document provides plans and. If you're looking to master the art of building a car rotisserie out of wood, you've come to the right place. It includes diagrams and dimensions for the main supports, side supports, front and rear frame adapters,. Please check it out, if you. Car Rotisserie Diagram.
From redwingsteelworks.com
Car Rotisserie Plans Alternative Red Wing Steel Works Car Rotisserie Diagram The document provides plans and. Please check it out, if you like it, please like, subscribe and share! Below you will find the auto rotisserie plans with a capacity of 3000 lbs. Let's dive in and explore the. These auto rotisserie plans are the end result of many days and hours of trial and error to get the perfect balance. Car Rotisserie Diagram.
From redwingsteelworks.com
Auto Rotisserie Plans Red Wing Steel Works Car Rotisserie Diagram It includes diagrams and dimensions for the main supports, side supports, front and rear frame adapters,. Let's dive in and explore the. Hey, i want to share my video on how to build an auto rotisserie with step by step instructions! This guide will walk you through the process of creating a sturdy. These auto rotisserie plans are the end. Car Rotisserie Diagram.
From www.artofit.org
Auto rotisserie plans Artofit Car Rotisserie Diagram This document provides plans and parts lists for building an automotive rotisserie. This guide will walk you through the process of creating a sturdy. Below you will find the auto rotisserie plans with a capacity of 3000 lbs. Let's dive in and explore the. Please check it out, if you like it, please like, subscribe and share! If you're looking. Car Rotisserie Diagram.
From www.914world.com
> Rotisserie plans? Car Rotisserie Diagram Constructing the rotisserie base involves assembling steel tubing and metal plates, cutting steel tubing to precise measurements, using proper welding techniques for secure connections, ensuring even weight distribution, and testing stability and addressing any wobbling or instability. Let's dive in and explore the. If you're looking to master the art of building a car rotisserie out of wood, you've come. Car Rotisserie Diagram.
From redwingsteelworks.com
Auto Rotisserie Plans Red Wing Steel Works Car Rotisserie Diagram The document provides plans and. Hey, i want to share my video on how to build an auto rotisserie with step by step instructions! It includes diagrams and dimensions for the main supports, side supports, front and rear frame adapters,. Constructing the rotisserie base involves assembling steel tubing and metal plates, cutting steel tubing to precise measurements, using proper welding. Car Rotisserie Diagram.
From manualdbpopovers.z22.web.core.windows.net
Car Rotisserie Diagram Car Rotisserie Diagram This document provides plans and parts lists for building an automotive rotisserie. Below you will find the auto rotisserie plans with a capacity of 3000 lbs. It includes diagrams and dimensions for the main supports, side supports, front and rear frame adapters,. Let's dive in and explore the. This guide will walk you through the process of creating a sturdy.. Car Rotisserie Diagram.
From the-best-diy-plans-store.myshopify.com
Make a Car Rotisserie With Car Rotisserie Plans Pdf The Best DIY Car Rotisserie Diagram The document provides plans and. If you're looking to master the art of building a car rotisserie out of wood, you've come to the right place. These auto rotisserie plans are the end result of many days and hours of trial and error to get the perfect balance of. Please check it out, if you like it, please like, subscribe. Car Rotisserie Diagram.
From www.carsalerental.com
How To Build A Car Rotisserie Car Sale and Rentals Car Rotisserie Diagram These auto rotisserie plans are the end result of many days and hours of trial and error to get the perfect balance of. The document provides plans and. Let's dive in and explore the. This document provides plans and parts lists for building an automotive rotisserie. Below you will find the auto rotisserie plans with a capacity of 3000 lbs.. Car Rotisserie Diagram.
From racetoolsdirect.com
Rotisserie Race Tools Direct Car Rotisserie Diagram It includes diagrams and dimensions for the main supports, side supports, front and rear frame adapters,. This guide will walk you through the process of creating a sturdy. This document provides plans and parts lists for building an automotive rotisserie. Please check it out, if you like it, please like, subscribe and share! Let's dive in and explore the. Below. Car Rotisserie Diagram.
From www.hotrodders.com
car rotisserie Hot Rod Forum Hotrodders Bulletin Board Car Rotisserie Diagram This guide will walk you through the process of creating a sturdy. Constructing the rotisserie base involves assembling steel tubing and metal plates, cutting steel tubing to precise measurements, using proper welding techniques for secure connections, ensuring even weight distribution, and testing stability and addressing any wobbling or instability. If you're looking to master the art of building a car. Car Rotisserie Diagram.
From www.pinterest.jp
How To Building Car Rotisserie Plans Ultimate Auto rotisserie in 2019 Car Rotisserie Diagram Below you will find the auto rotisserie plans with a capacity of 3000 lbs. These auto rotisserie plans are the end result of many days and hours of trial and error to get the perfect balance of. The document provides plans and. If you're looking to master the art of building a car rotisserie out of wood, you've come to. Car Rotisserie Diagram.
From redwingsteelworks.com
Auto Rotisserie Plans Red Wing Steel Works Car Rotisserie Diagram This document provides plans and parts lists for building an automotive rotisserie. Hey, i want to share my video on how to build an auto rotisserie with step by step instructions! Constructing the rotisserie base involves assembling steel tubing and metal plates, cutting steel tubing to precise measurements, using proper welding techniques for secure connections, ensuring even weight distribution, and. Car Rotisserie Diagram.
From www.derekweaver.com
Weaver WRotisserie Car Rotisserie Derek Weaver Co., Inc. Car Rotisserie Diagram This document provides plans and parts lists for building an automotive rotisserie. Constructing the rotisserie base involves assembling steel tubing and metal plates, cutting steel tubing to precise measurements, using proper welding techniques for secure connections, ensuring even weight distribution, and testing stability and addressing any wobbling or instability. Let's dive in and explore the. Hey, i want to share. Car Rotisserie Diagram.
From www.chevytalk.org
Rotisserie plans (big pictures) ChevyTalk FREE Restoration and Car Rotisserie Diagram It includes diagrams and dimensions for the main supports, side supports, front and rear frame adapters,. Hey, i want to share my video on how to build an auto rotisserie with step by step instructions! This document provides plans and parts lists for building an automotive rotisserie. These auto rotisserie plans are the end result of many days and hours. Car Rotisserie Diagram.
From www.autobodytoolmart.com
Champ Automotive Rotisserie 1452 Vehicle Rotisseries Car Rotisserie Diagram These auto rotisserie plans are the end result of many days and hours of trial and error to get the perfect balance of. This guide will walk you through the process of creating a sturdy. The document provides plans and. If you're looking to master the art of building a car rotisserie out of wood, you've come to the right. Car Rotisserie Diagram.
From redwingsteelworks.com
Auto Rotisserie Plans Red Wing Steel Works Car Rotisserie Diagram Let's dive in and explore the. This guide will walk you through the process of creating a sturdy. Constructing the rotisserie base involves assembling steel tubing and metal plates, cutting steel tubing to precise measurements, using proper welding techniques for secure connections, ensuring even weight distribution, and testing stability and addressing any wobbling or instability. Hey, i want to share. Car Rotisserie Diagram.
From 3dwarehouse.sketchup.com
Redwing's Auto Rotisserie Plans 3D Warehouse Car Rotisserie Diagram Let's dive in and explore the. Hey, i want to share my video on how to build an auto rotisserie with step by step instructions! Constructing the rotisserie base involves assembling steel tubing and metal plates, cutting steel tubing to precise measurements, using proper welding techniques for secure connections, ensuring even weight distribution, and testing stability and addressing any wobbling. Car Rotisserie Diagram.
From redwingsteelworks.com
Auto Rotisserie Plans Red Wing Steel Works Car Rotisserie Diagram Let's dive in and explore the. If you're looking to master the art of building a car rotisserie out of wood, you've come to the right place. This guide will walk you through the process of creating a sturdy. Below you will find the auto rotisserie plans with a capacity of 3000 lbs. Please check it out, if you like. Car Rotisserie Diagram.
From ar.inspiredpencil.com
Auto Rotisserie Blueprints Car Rotisserie Diagram The document provides plans and. Let's dive in and explore the. This document provides plans and parts lists for building an automotive rotisserie. Constructing the rotisserie base involves assembling steel tubing and metal plates, cutting steel tubing to precise measurements, using proper welding techniques for secure connections, ensuring even weight distribution, and testing stability and addressing any wobbling or instability.. Car Rotisserie Diagram.
From hubpages.com
Auto Rotisserie Plans Car Rotisserie Diagram Below you will find the auto rotisserie plans with a capacity of 3000 lbs. Constructing the rotisserie base involves assembling steel tubing and metal plates, cutting steel tubing to precise measurements, using proper welding techniques for secure connections, ensuring even weight distribution, and testing stability and addressing any wobbling or instability. This document provides plans and parts lists for building. Car Rotisserie Diagram.
From www.viczcar.com
Auto rotisserie General Discussions Auszcar Car Rotisserie Diagram Please check it out, if you like it, please like, subscribe and share! Let's dive in and explore the. The document provides plans and. Constructing the rotisserie base involves assembling steel tubing and metal plates, cutting steel tubing to precise measurements, using proper welding techniques for secure connections, ensuring even weight distribution, and testing stability and addressing any wobbling or. Car Rotisserie Diagram.
From hubpages.com
Auto Rotisserie Plans Car Rotisserie Diagram Please check it out, if you like it, please like, subscribe and share! It includes diagrams and dimensions for the main supports, side supports, front and rear frame adapters,. Below you will find the auto rotisserie plans with a capacity of 3000 lbs. The document provides plans and. This document provides plans and parts lists for building an automotive rotisserie.. Car Rotisserie Diagram.
From ar.inspiredpencil.com
Auto Rotisserie Blueprints Car Rotisserie Diagram This document provides plans and parts lists for building an automotive rotisserie. It includes diagrams and dimensions for the main supports, side supports, front and rear frame adapters,. Hey, i want to share my video on how to build an auto rotisserie with step by step instructions! If you're looking to master the art of building a car rotisserie out. Car Rotisserie Diagram.
From www.pinterest.es
Auto Rotisserie Plans Garage tools, Tools, Car restoration Car Rotisserie Diagram If you're looking to master the art of building a car rotisserie out of wood, you've come to the right place. Please check it out, if you like it, please like, subscribe and share! This guide will walk you through the process of creating a sturdy. The document provides plans and. Hey, i want to share my video on how. Car Rotisserie Diagram.
From fixpartmario.z19.web.core.windows.net
Car Rotisserie Diagram Car Rotisserie Diagram Let's dive in and explore the. If you're looking to master the art of building a car rotisserie out of wood, you've come to the right place. Please check it out, if you like it, please like, subscribe and share! Constructing the rotisserie base involves assembling steel tubing and metal plates, cutting steel tubing to precise measurements, using proper welding. Car Rotisserie Diagram.
From www.pinterest.com
The rotisserie can also be built without legs or casters and still be Car Rotisserie Diagram This guide will walk you through the process of creating a sturdy. It includes diagrams and dimensions for the main supports, side supports, front and rear frame adapters,. Below you will find the auto rotisserie plans with a capacity of 3000 lbs. Hey, i want to share my video on how to build an auto rotisserie with step by step. Car Rotisserie Diagram.
From www.chicoschoolofrock.com
Wooden Wooden Car Rotisserie Plans PDF Plans Car Rotisserie Diagram Constructing the rotisserie base involves assembling steel tubing and metal plates, cutting steel tubing to precise measurements, using proper welding techniques for secure connections, ensuring even weight distribution, and testing stability and addressing any wobbling or instability. This document provides plans and parts lists for building an automotive rotisserie. Please check it out, if you like it, please like, subscribe. Car Rotisserie Diagram.
From www.pinterest.com
Rotisserie Rotisserie, Swivel casters, How to plan Car Rotisserie Diagram This document provides plans and parts lists for building an automotive rotisserie. The document provides plans and. Hey, i want to share my video on how to build an auto rotisserie with step by step instructions! These auto rotisserie plans are the end result of many days and hours of trial and error to get the perfect balance of. If. Car Rotisserie Diagram.
From redwingsteelworks.com
Auto Rotisserie Plans Red Wing Steel Works Car Rotisserie Diagram These auto rotisserie plans are the end result of many days and hours of trial and error to get the perfect balance of. This document provides plans and parts lists for building an automotive rotisserie. Below you will find the auto rotisserie plans with a capacity of 3000 lbs. This guide will walk you through the process of creating a. Car Rotisserie Diagram.
From ar.inspiredpencil.com
Auto Rotisserie Blueprints Car Rotisserie Diagram This document provides plans and parts lists for building an automotive rotisserie. Constructing the rotisserie base involves assembling steel tubing and metal plates, cutting steel tubing to precise measurements, using proper welding techniques for secure connections, ensuring even weight distribution, and testing stability and addressing any wobbling or instability. Let's dive in and explore the. Please check it out, if. Car Rotisserie Diagram.
From www.youtube.com
Building a Car Rotisserie. (Free Bleuprints) YouTube Car Rotisserie Diagram This guide will walk you through the process of creating a sturdy. Please check it out, if you like it, please like, subscribe and share! Below you will find the auto rotisserie plans with a capacity of 3000 lbs. This document provides plans and parts lists for building an automotive rotisserie. Constructing the rotisserie base involves assembling steel tubing and. Car Rotisserie Diagram.
From www.pinterest.nz
How To Building Car Rotisserie Plans Ultimate Auto Car tools, Garage Car Rotisserie Diagram Let's dive in and explore the. Please check it out, if you like it, please like, subscribe and share! This guide will walk you through the process of creating a sturdy. The document provides plans and. This document provides plans and parts lists for building an automotive rotisserie. These auto rotisserie plans are the end result of many days and. Car Rotisserie Diagram.