Plans For Metal Carport . this collection of carport plans features all the drawings, supply lists and information you need to build a carport you can use year around. Find out the essential factors to consider before your project, the types of. — discover the essential first step in building your own metal carport in these 10 easy steps, ensuring a successful project from start to finish. Find out the dimensions, materials, tools, and tips for. — learn how to construct your own metal carport kit with this detailed guide. — from choosing the right size and material to considering local weather conditions, i'll provide expert tips to ensure your metal carport frame.
from carportidea.blogspot.com
— learn how to construct your own metal carport kit with this detailed guide. this collection of carport plans features all the drawings, supply lists and information you need to build a carport you can use year around. — discover the essential first step in building your own metal carport in these 10 easy steps, ensuring a successful project from start to finish. Find out the dimensions, materials, tools, and tips for. Find out the essential factors to consider before your project, the types of. — from choosing the right size and material to considering local weather conditions, i'll provide expert tips to ensure your metal carport frame.
Metal Carport Plans Free Download Carport Idea
Plans For Metal Carport Find out the dimensions, materials, tools, and tips for. — learn how to construct your own metal carport kit with this detailed guide. this collection of carport plans features all the drawings, supply lists and information you need to build a carport you can use year around. Find out the essential factors to consider before your project, the types of. Find out the dimensions, materials, tools, and tips for. — from choosing the right size and material to considering local weather conditions, i'll provide expert tips to ensure your metal carport frame. — discover the essential first step in building your own metal carport in these 10 easy steps, ensuring a successful project from start to finish.
From carportbuildersmelbourne.com
Benefits of a Steel Carport Melbourne Carport Builders Melbourne Plans For Metal Carport — discover the essential first step in building your own metal carport in these 10 easy steps, ensuring a successful project from start to finish. — from choosing the right size and material to considering local weather conditions, i'll provide expert tips to ensure your metal carport frame. this collection of carport plans features all the drawings,. Plans For Metal Carport.
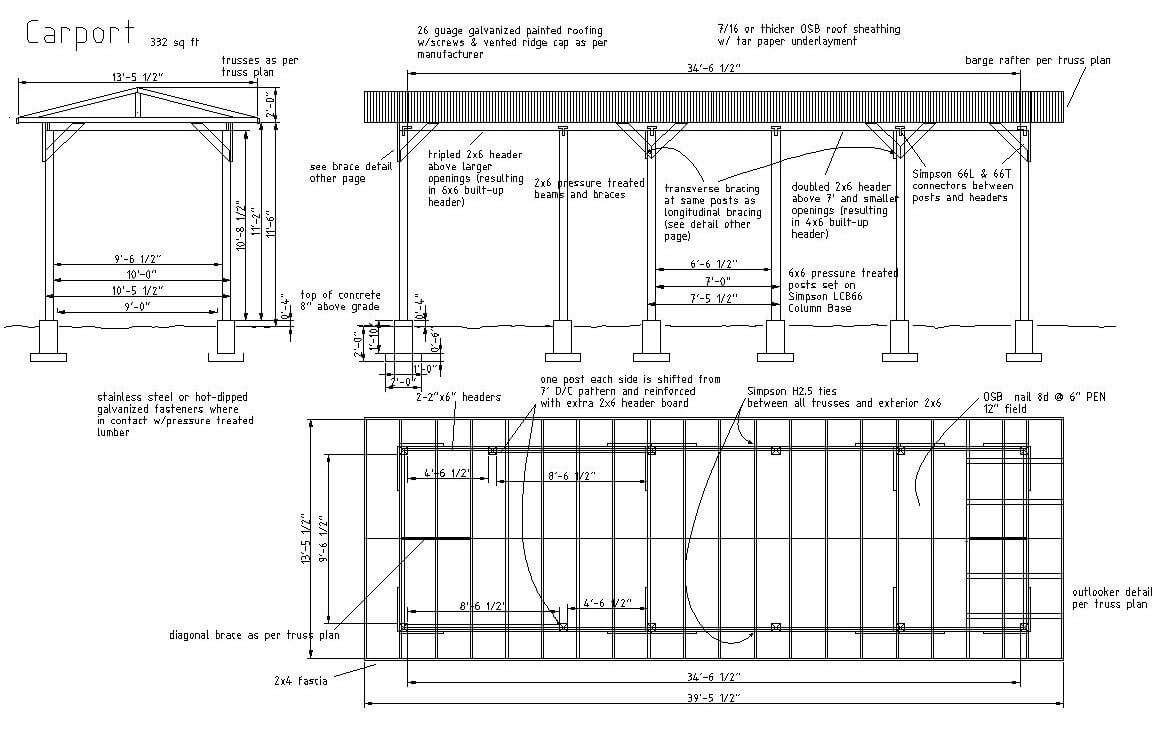
From www.doerksenconstruction.com
Metal Carports Midland, TX Metal Carport Construction Custom Metal Plans For Metal Carport this collection of carport plans features all the drawings, supply lists and information you need to build a carport you can use year around. — discover the essential first step in building your own metal carport in these 10 easy steps, ensuring a successful project from start to finish. Find out the essential factors to consider before your. Plans For Metal Carport.
From a-zinteriorwork.blogspot.com
Image 80 of How To Build A Steel Carport azinteriorwork Plans For Metal Carport — learn how to construct your own metal carport kit with this detailed guide. — from choosing the right size and material to considering local weather conditions, i'll provide expert tips to ensure your metal carport frame. — discover the essential first step in building your own metal carport in these 10 easy steps, ensuring a successful. Plans For Metal Carport.
From hngideas.com
37 Free Carport PlansBuild a DIY Carport On A Budget Home And Plans For Metal Carport this collection of carport plans features all the drawings, supply lists and information you need to build a carport you can use year around. Find out the essential factors to consider before your project, the types of. — learn how to construct your own metal carport kit with this detailed guide. — from choosing the right size. Plans For Metal Carport.
From hcisteelbuildings.com
Metal Carports HCI Steel Buildings Plans For Metal Carport — discover the essential first step in building your own metal carport in these 10 easy steps, ensuring a successful project from start to finish. Find out the essential factors to consider before your project, the types of. this collection of carport plans features all the drawings, supply lists and information you need to build a carport you. Plans For Metal Carport.
From exotaaxyp.blob.core.windows.net
How To Build Your Own Carport at Morton Benton blog Plans For Metal Carport this collection of carport plans features all the drawings, supply lists and information you need to build a carport you can use year around. — from choosing the right size and material to considering local weather conditions, i'll provide expert tips to ensure your metal carport frame. — learn how to construct your own metal carport kit. Plans For Metal Carport.
From www.pinterest.com
Steel Carport Design Plans PDF Woodworking Metal carport kits, Metal Plans For Metal Carport — from choosing the right size and material to considering local weather conditions, i'll provide expert tips to ensure your metal carport frame. — learn how to construct your own metal carport kit with this detailed guide. — discover the essential first step in building your own metal carport in these 10 easy steps, ensuring a successful. Plans For Metal Carport.
From metalcarport.com
What Is A Metal Carport Kit? (Pros, Cons, And Cost) Plans For Metal Carport — learn how to construct your own metal carport kit with this detailed guide. — discover the essential first step in building your own metal carport in these 10 easy steps, ensuring a successful project from start to finish. Find out the dimensions, materials, tools, and tips for. Find out the essential factors to consider before your project,. Plans For Metal Carport.
From tablogalerimiz.com
PDF Metal Lean To Carport Plans Free Plans For Metal Carport — from choosing the right size and material to considering local weather conditions, i'll provide expert tips to ensure your metal carport frame. Find out the essential factors to consider before your project, the types of. this collection of carport plans features all the drawings, supply lists and information you need to build a carport you can use. Plans For Metal Carport.
From 173-254-32-136.unifiedlayer.com
Download Carport Design Metal PDF cedar pergola building plans woodplans Plans For Metal Carport this collection of carport plans features all the drawings, supply lists and information you need to build a carport you can use year around. Find out the dimensions, materials, tools, and tips for. — learn how to construct your own metal carport kit with this detailed guide. Find out the essential factors to consider before your project, the. Plans For Metal Carport.
From carportidea.blogspot.com
Metal Carport Plans Free Download Carport Idea Plans For Metal Carport — from choosing the right size and material to considering local weather conditions, i'll provide expert tips to ensure your metal carport frame. — learn how to construct your own metal carport kit with this detailed guide. — discover the essential first step in building your own metal carport in these 10 easy steps, ensuring a successful. Plans For Metal Carport.
From norcalcarports.com
Advanced Plans And Calculations For Metal Carports Plans For Metal Carport Find out the dimensions, materials, tools, and tips for. Find out the essential factors to consider before your project, the types of. — discover the essential first step in building your own metal carport in these 10 easy steps, ensuring a successful project from start to finish. this collection of carport plans features all the drawings, supply lists. Plans For Metal Carport.
From www.youtube.com
Building a Metal Carport Part 2 YouTube Plans For Metal Carport — from choosing the right size and material to considering local weather conditions, i'll provide expert tips to ensure your metal carport frame. this collection of carport plans features all the drawings, supply lists and information you need to build a carport you can use year around. Find out the dimensions, materials, tools, and tips for. Find out. Plans For Metal Carport.
From www.youtube.com
How To Build An All Metal Carport From Start To Finish YouTube Plans For Metal Carport — learn how to construct your own metal carport kit with this detailed guide. Find out the dimensions, materials, tools, and tips for. this collection of carport plans features all the drawings, supply lists and information you need to build a carport you can use year around. Find out the essential factors to consider before your project, the. Plans For Metal Carport.
From www.futurebuildings.com
Carport Kits Your Best Guide 5 DIY Steel Carport Tips Plans For Metal Carport — from choosing the right size and material to considering local weather conditions, i'll provide expert tips to ensure your metal carport frame. — learn how to construct your own metal carport kit with this detailed guide. Find out the essential factors to consider before your project, the types of. Find out the dimensions, materials, tools, and tips. Plans For Metal Carport.
From www.metalcarports.com
Metal Carports Steel Carports Plans For Metal Carport Find out the essential factors to consider before your project, the types of. Find out the dimensions, materials, tools, and tips for. — from choosing the right size and material to considering local weather conditions, i'll provide expert tips to ensure your metal carport frame. this collection of carport plans features all the drawings, supply lists and information. Plans For Metal Carport.
From howtospecialist.com
Flat roof double carport plans PDF Download Plans For Metal Carport Find out the essential factors to consider before your project, the types of. this collection of carport plans features all the drawings, supply lists and information you need to build a carport you can use year around. — discover the essential first step in building your own metal carport in these 10 easy steps, ensuring a successful project. Plans For Metal Carport.
From howtobuildacarport.blogspot.com
How to Build a Carport Free Carport Plans How to Build a Carport Plans For Metal Carport Find out the essential factors to consider before your project, the types of. — discover the essential first step in building your own metal carport in these 10 easy steps, ensuring a successful project from start to finish. — learn how to construct your own metal carport kit with this detailed guide. this collection of carport plans. Plans For Metal Carport.
From 99carportideas.netlify.app
16++ Building permit metal carport inspirations 99carportideas Plans For Metal Carport Find out the essential factors to consider before your project, the types of. — learn how to construct your own metal carport kit with this detailed guide. — from choosing the right size and material to considering local weather conditions, i'll provide expert tips to ensure your metal carport frame. Find out the dimensions, materials, tools, and tips. Plans For Metal Carport.
From hngideas.com
23 Free Carport PlansBuild a DIY Carport On A Budget Home And Plans For Metal Carport — from choosing the right size and material to considering local weather conditions, i'll provide expert tips to ensure your metal carport frame. — learn how to construct your own metal carport kit with this detailed guide. — discover the essential first step in building your own metal carport in these 10 easy steps, ensuring a successful. Plans For Metal Carport.
From plan-maison-plain-pied.com
Plan complet de carport galvanisé Plans & maisons Plans For Metal Carport — learn how to construct your own metal carport kit with this detailed guide. Find out the dimensions, materials, tools, and tips for. Find out the essential factors to consider before your project, the types of. — from choosing the right size and material to considering local weather conditions, i'll provide expert tips to ensure your metal carport. Plans For Metal Carport.
From pergolasofdistinction.com.au
Flat roof steel carport Adelaide Plans For Metal Carport this collection of carport plans features all the drawings, supply lists and information you need to build a carport you can use year around. Find out the dimensions, materials, tools, and tips for. — learn how to construct your own metal carport kit with this detailed guide. — discover the essential first step in building your own. Plans For Metal Carport.
From www.diskworks.com
Metal Carport / Metal Garage Pictures by Disk Works Of South Jersey Plans For Metal Carport — discover the essential first step in building your own metal carport in these 10 easy steps, ensuring a successful project from start to finish. Find out the dimensions, materials, tools, and tips for. this collection of carport plans features all the drawings, supply lists and information you need to build a carport you can use year around.. Plans For Metal Carport.
From workshopgrandiose.z13.web.core.windows.net
Carports Metal Carport Kits Installed Plans For Metal Carport Find out the essential factors to consider before your project, the types of. — from choosing the right size and material to considering local weather conditions, i'll provide expert tips to ensure your metal carport frame. Find out the dimensions, materials, tools, and tips for. — discover the essential first step in building your own metal carport in. Plans For Metal Carport.
From www.pinterest.ca
Shop Steel carports, Diy carport, Carport designs Plans For Metal Carport — learn how to construct your own metal carport kit with this detailed guide. this collection of carport plans features all the drawings, supply lists and information you need to build a carport you can use year around. Find out the essential factors to consider before your project, the types of. — from choosing the right size. Plans For Metal Carport.
From carportimg.netlify.app
36+ Metal carport plans free download ideas in 2021 Plans For Metal Carport Find out the essential factors to consider before your project, the types of. — discover the essential first step in building your own metal carport in these 10 easy steps, ensuring a successful project from start to finish. this collection of carport plans features all the drawings, supply lists and information you need to build a carport you. Plans For Metal Carport.
From getinthetrailer.com
Build Your Own Metal Carport Plans Cheap Get in The Trailer Plans For Metal Carport this collection of carport plans features all the drawings, supply lists and information you need to build a carport you can use year around. — from choosing the right size and material to considering local weather conditions, i'll provide expert tips to ensure your metal carport frame. Find out the dimensions, materials, tools, and tips for. Find out. Plans For Metal Carport.
From carportidea.blogspot.com
Metal Carport Plans Free Download Carport Idea Plans For Metal Carport — from choosing the right size and material to considering local weather conditions, i'll provide expert tips to ensure your metal carport frame. Find out the dimensions, materials, tools, and tips for. this collection of carport plans features all the drawings, supply lists and information you need to build a carport you can use year around. Find out. Plans For Metal Carport.
From www.homedesigndirectory.com.au
DIY Attached Carport Plans For Metal Carport — from choosing the right size and material to considering local weather conditions, i'll provide expert tips to ensure your metal carport frame. this collection of carport plans features all the drawings, supply lists and information you need to build a carport you can use year around. Find out the essential factors to consider before your project, the. Plans For Metal Carport.
From carportidea.blogspot.com
Metal Carport Plans Free Download Carport Idea Plans For Metal Carport — from choosing the right size and material to considering local weather conditions, i'll provide expert tips to ensure your metal carport frame. Find out the dimensions, materials, tools, and tips for. — discover the essential first step in building your own metal carport in these 10 easy steps, ensuring a successful project from start to finish. Find. Plans For Metal Carport.
From kalecos.blogspot.com
How To Build Your Own Metal Carport KALECOS Plans For Metal Carport — from choosing the right size and material to considering local weather conditions, i'll provide expert tips to ensure your metal carport frame. this collection of carport plans features all the drawings, supply lists and information you need to build a carport you can use year around. — discover the essential first step in building your own. Plans For Metal Carport.
From www.theshedcompany.com.au
Steel Carports & DIY Carport Kits The Shed Company Call 1800 821 033 Plans For Metal Carport — discover the essential first step in building your own metal carport in these 10 easy steps, ensuring a successful project from start to finish. Find out the essential factors to consider before your project, the types of. Find out the dimensions, materials, tools, and tips for. — from choosing the right size and material to considering local. Plans For Metal Carport.
From kalecos.blogspot.com
Diy Steel Carport Plans KALECOS Plans For Metal Carport this collection of carport plans features all the drawings, supply lists and information you need to build a carport you can use year around. Find out the dimensions, materials, tools, and tips for. — learn how to construct your own metal carport kit with this detailed guide. — from choosing the right size and material to considering. Plans For Metal Carport.
From ceilingbricks.com
how to build metal carport Carport build diy kit side metal plans Plans For Metal Carport this collection of carport plans features all the drawings, supply lists and information you need to build a carport you can use year around. — discover the essential first step in building your own metal carport in these 10 easy steps, ensuring a successful project from start to finish. Find out the dimensions, materials, tools, and tips for.. Plans For Metal Carport.
From s3-us-west-1.amazonaws.com
Woodwork Attached Metal Carport PDF Plans Plans For Metal Carport Find out the essential factors to consider before your project, the types of. — from choosing the right size and material to considering local weather conditions, i'll provide expert tips to ensure your metal carport frame. Find out the dimensions, materials, tools, and tips for. this collection of carport plans features all the drawings, supply lists and information. Plans For Metal Carport.