Downton Abbey House Floor Plan . The architect had just finished building the houses of parliament. First floor (main house) attic (servants' wing) highclere castle second floor plan. Floor plans of highclere, rooms, corridors, pics of the original building before the victorian renovation… a great resource. These drawings, apart possibly from the ground floor (main house), are completely invented. Highclere floor plan and more. As viewers of downton abbey, we think we have gotten to know highclere castle and its setting well. Sir barry remodelled highclere castle for the third earl of carnarvon from 1839 to 1842. This is the most amazing link! Fans of the period drama downton abbey will surely recognize highclere castle as the primary setting of the show. Here ad revisits the historic. Second floor (main house) roof (servants' wing) highclere.
from www.grandhomes.com
First floor (main house) attic (servants' wing) highclere castle second floor plan. Second floor (main house) roof (servants' wing) highclere. Fans of the period drama downton abbey will surely recognize highclere castle as the primary setting of the show. These drawings, apart possibly from the ground floor (main house), are completely invented. Highclere floor plan and more. Here ad revisits the historic. As viewers of downton abbey, we think we have gotten to know highclere castle and its setting well. Floor plans of highclere, rooms, corridors, pics of the original building before the victorian renovation… a great resource. Sir barry remodelled highclere castle for the third earl of carnarvon from 1839 to 1842. This is the most amazing link!
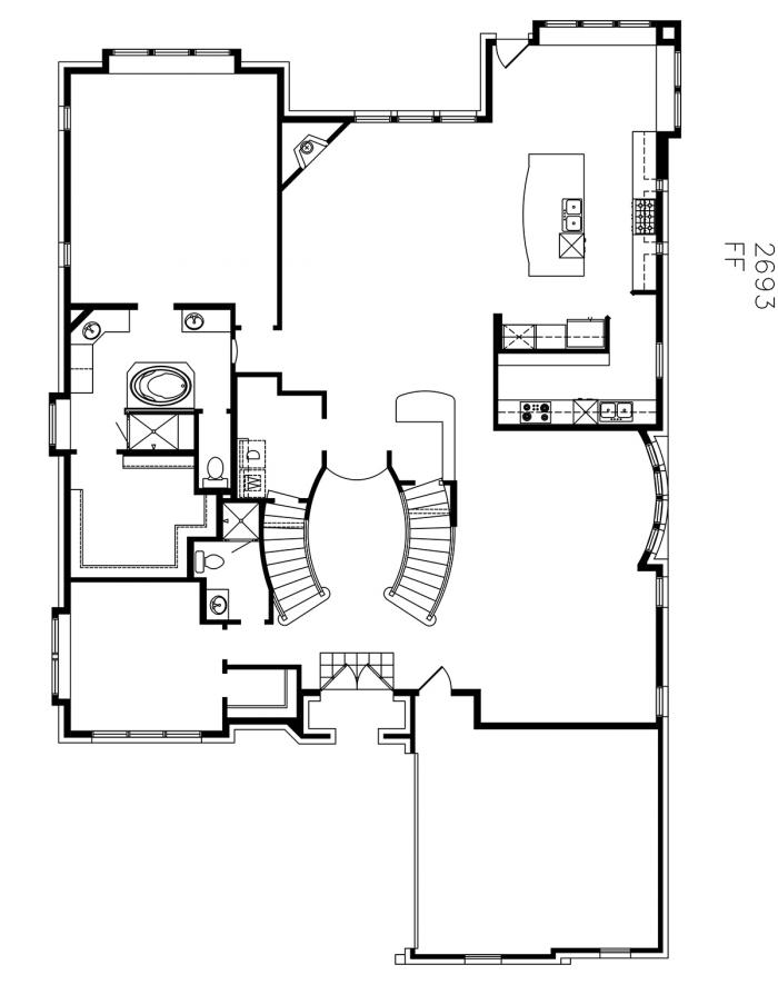
New Home Floor Plans Custom Downton Abbey 3 Car
Downton Abbey House Floor Plan Second floor (main house) roof (servants' wing) highclere. Here ad revisits the historic. This is the most amazing link! These drawings, apart possibly from the ground floor (main house), are completely invented. Highclere floor plan and more. Second floor (main house) roof (servants' wing) highclere. First floor (main house) attic (servants' wing) highclere castle second floor plan. The architect had just finished building the houses of parliament. As viewers of downton abbey, we think we have gotten to know highclere castle and its setting well. Floor plans of highclere, rooms, corridors, pics of the original building before the victorian renovation… a great resource. Sir barry remodelled highclere castle for the third earl of carnarvon from 1839 to 1842. Fans of the period drama downton abbey will surely recognize highclere castle as the primary setting of the show.
From www.grandhomes.com
New Home Floor Plans Downton Abbey 213501 in Mansfield Texas Downton Abbey House Floor Plan As viewers of downton abbey, we think we have gotten to know highclere castle and its setting well. Sir barry remodelled highclere castle for the third earl of carnarvon from 1839 to 1842. Floor plans of highclere, rooms, corridors, pics of the original building before the victorian renovation… a great resource. The architect had just finished building the houses of. Downton Abbey House Floor Plan.
From www.pinterest.com
Highclere Castle. aka Downton Abbey. (NOTE i adapted this plan to Downton Abbey House Floor Plan Second floor (main house) roof (servants' wing) highclere. This is the most amazing link! Sir barry remodelled highclere castle for the third earl of carnarvon from 1839 to 1842. Highclere floor plan and more. The architect had just finished building the houses of parliament. These drawings, apart possibly from the ground floor (main house), are completely invented. First floor (main. Downton Abbey House Floor Plan.
From maquiavelos.blogspot.com
Downton Abbey Floor Plan House Plan Downton Abbey House Floor Plan Here ad revisits the historic. These drawings, apart possibly from the ground floor (main house), are completely invented. Sir barry remodelled highclere castle for the third earl of carnarvon from 1839 to 1842. Highclere floor plan and more. Fans of the period drama downton abbey will surely recognize highclere castle as the primary setting of the show. As viewers of. Downton Abbey House Floor Plan.
From www.pinterest.com
Pin by Ryan on D&D mins and other fantasy Castle floor plan Downton Abbey House Floor Plan The architect had just finished building the houses of parliament. Second floor (main house) roof (servants' wing) highclere. Fans of the period drama downton abbey will surely recognize highclere castle as the primary setting of the show. Sir barry remodelled highclere castle for the third earl of carnarvon from 1839 to 1842. As viewers of downton abbey, we think we. Downton Abbey House Floor Plan.
From www.archisyllogy.com
Highclere Castle (Downton Abbey) — Archisyllogy Downton Abbey House Floor Plan As viewers of downton abbey, we think we have gotten to know highclere castle and its setting well. Here ad revisits the historic. Fans of the period drama downton abbey will surely recognize highclere castle as the primary setting of the show. Sir barry remodelled highclere castle for the third earl of carnarvon from 1839 to 1842. This is the. Downton Abbey House Floor Plan.
From www.fantasyfloorplans.com
Downton Abbey Layout Downton Abbey Floor Plan Downton Abbey House Floor Plan This is the most amazing link! As viewers of downton abbey, we think we have gotten to know highclere castle and its setting well. Fans of the period drama downton abbey will surely recognize highclere castle as the primary setting of the show. Sir barry remodelled highclere castle for the third earl of carnarvon from 1839 to 1842. Floor plans. Downton Abbey House Floor Plan.
From www.archisyllogy.com
Highclere Castle (Downton Abbey) — Archisyllogy Downton Abbey House Floor Plan Here ad revisits the historic. Fans of the period drama downton abbey will surely recognize highclere castle as the primary setting of the show. Second floor (main house) roof (servants' wing) highclere. First floor (main house) attic (servants' wing) highclere castle second floor plan. Sir barry remodelled highclere castle for the third earl of carnarvon from 1839 to 1842. Highclere. Downton Abbey House Floor Plan.
From www.archisyllogy.com
Highclere Castle (Downton Abbey) — Archisyllogy Downton Abbey House Floor Plan The architect had just finished building the houses of parliament. First floor (main house) attic (servants' wing) highclere castle second floor plan. Sir barry remodelled highclere castle for the third earl of carnarvon from 1839 to 1842. Here ad revisits the historic. Highclere floor plan and more. Second floor (main house) roof (servants' wing) highclere. As viewers of downton abbey,. Downton Abbey House Floor Plan.
From www.grandhomes.com
New Home Floor Plans Custom Downton Abbey 3 Car Downton Abbey House Floor Plan Sir barry remodelled highclere castle for the third earl of carnarvon from 1839 to 1842. Here ad revisits the historic. Floor plans of highclere, rooms, corridors, pics of the original building before the victorian renovation… a great resource. These drawings, apart possibly from the ground floor (main house), are completely invented. This is the most amazing link! First floor (main. Downton Abbey House Floor Plan.
From modthesims.info
Mod The Sims Downton Abbey [No CC] Downton Abbey House Floor Plan Fans of the period drama downton abbey will surely recognize highclere castle as the primary setting of the show. Sir barry remodelled highclere castle for the third earl of carnarvon from 1839 to 1842. First floor (main house) attic (servants' wing) highclere castle second floor plan. Highclere floor plan and more. This is the most amazing link! Here ad revisits. Downton Abbey House Floor Plan.
From viewfloor.co
What Is The Floor Plan Of Downton Abbey House Viewfloor.co Downton Abbey House Floor Plan Fans of the period drama downton abbey will surely recognize highclere castle as the primary setting of the show. First floor (main house) attic (servants' wing) highclere castle second floor plan. Sir barry remodelled highclere castle for the third earl of carnarvon from 1839 to 1842. Second floor (main house) roof (servants' wing) highclere. The architect had just finished building. Downton Abbey House Floor Plan.
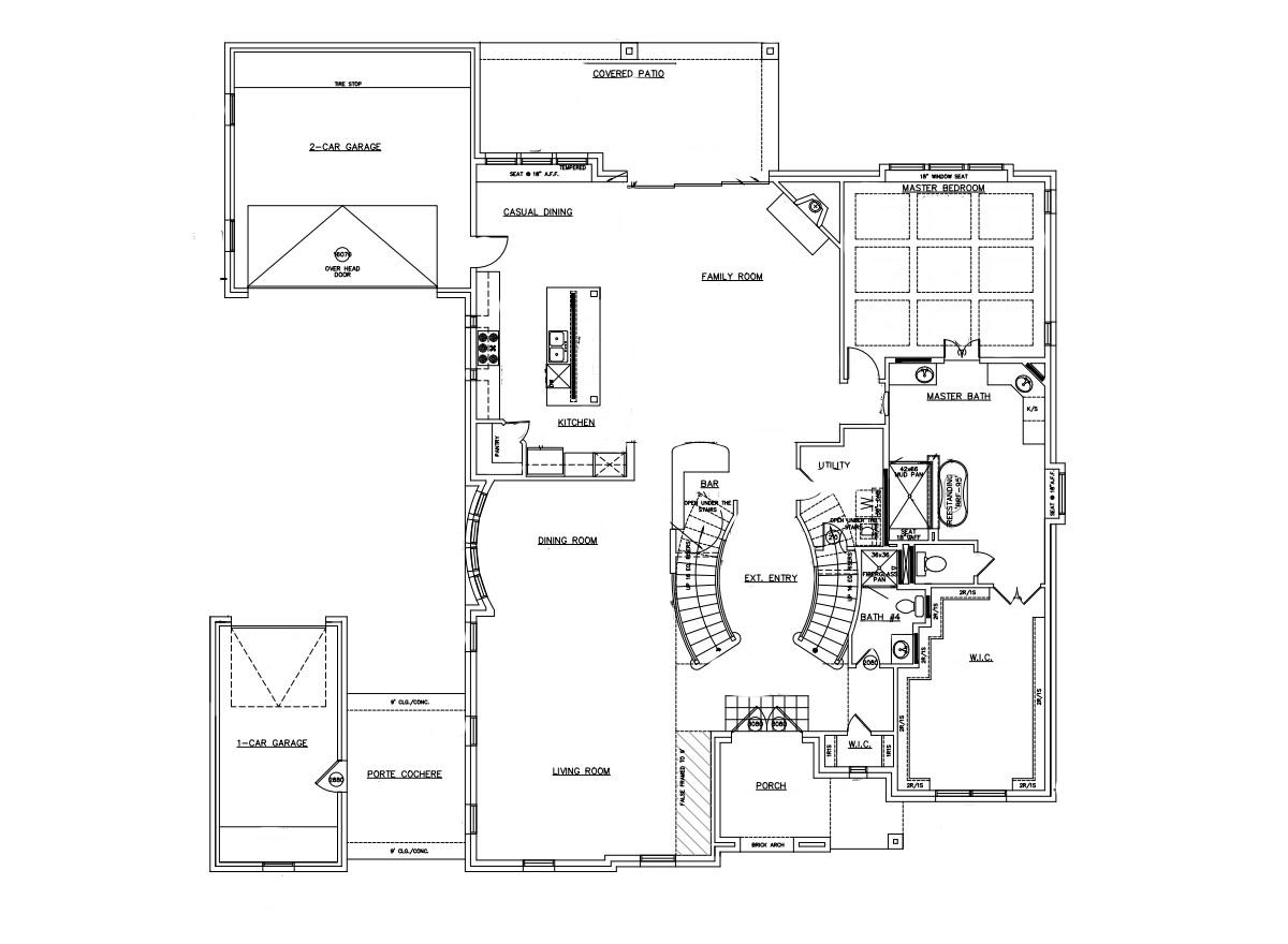
From www.grandhomes.com
New Home Floor Plans Downton Abbey 201152 Downton Abbey House Floor Plan Highclere floor plan and more. Sir barry remodelled highclere castle for the third earl of carnarvon from 1839 to 1842. As viewers of downton abbey, we think we have gotten to know highclere castle and its setting well. Floor plans of highclere, rooms, corridors, pics of the original building before the victorian renovation… a great resource. This is the most. Downton Abbey House Floor Plan.
From www.grandhomes.com
New Home Floor Plans Downton Abbey in Mansfield Texas Downton Abbey House Floor Plan Floor plans of highclere, rooms, corridors, pics of the original building before the victorian renovation… a great resource. Second floor (main house) roof (servants' wing) highclere. As viewers of downton abbey, we think we have gotten to know highclere castle and its setting well. Fans of the period drama downton abbey will surely recognize highclere castle as the primary setting. Downton Abbey House Floor Plan.
From www.pinterest.com
Pin by Julian Nicole on Downton Abbey Castle floor plan, Highclere Downton Abbey House Floor Plan This is the most amazing link! Floor plans of highclere, rooms, corridors, pics of the original building before the victorian renovation… a great resource. These drawings, apart possibly from the ground floor (main house), are completely invented. Fans of the period drama downton abbey will surely recognize highclere castle as the primary setting of the show. The architect had just. Downton Abbey House Floor Plan.
From viewfloor.co
What Is The Floor Plan Of Downton Abbey House Viewfloor.co Downton Abbey House Floor Plan Here ad revisits the historic. This is the most amazing link! These drawings, apart possibly from the ground floor (main house), are completely invented. As viewers of downton abbey, we think we have gotten to know highclere castle and its setting well. The architect had just finished building the houses of parliament. Floor plans of highclere, rooms, corridors, pics of. Downton Abbey House Floor Plan.
From www.pinterest.com
Downton Abbey House, The Real Downton Abbey, Downton Abbey Fashion Downton Abbey House Floor Plan Second floor (main house) roof (servants' wing) highclere. These drawings, apart possibly from the ground floor (main house), are completely invented. Here ad revisits the historic. First floor (main house) attic (servants' wing) highclere castle second floor plan. Highclere floor plan and more. Fans of the period drama downton abbey will surely recognize highclere castle as the primary setting of. Downton Abbey House Floor Plan.
From www.countrylife.co.uk
The 'Welsh Downton Abbey' is about to be auctioned off for a song Downton Abbey House Floor Plan This is the most amazing link! Sir barry remodelled highclere castle for the third earl of carnarvon from 1839 to 1842. These drawings, apart possibly from the ground floor (main house), are completely invented. Second floor (main house) roof (servants' wing) highclere. The architect had just finished building the houses of parliament. Floor plans of highclere, rooms, corridors, pics of. Downton Abbey House Floor Plan.
From uk.pinterest.com
english country houses Google Search English country house plans Downton Abbey House Floor Plan Second floor (main house) roof (servants' wing) highclere. As viewers of downton abbey, we think we have gotten to know highclere castle and its setting well. First floor (main house) attic (servants' wing) highclere castle second floor plan. Floor plans of highclere, rooms, corridors, pics of the original building before the victorian renovation… a great resource. These drawings, apart possibly. Downton Abbey House Floor Plan.
From ar.inspiredpencil.com
Highclere Castle Dining Room Downton Abbey House Floor Plan Floor plans of highclere, rooms, corridors, pics of the original building before the victorian renovation… a great resource. Highclere floor plan and more. Here ad revisits the historic. These drawings, apart possibly from the ground floor (main house), are completely invented. The architect had just finished building the houses of parliament. First floor (main house) attic (servants' wing) highclere castle. Downton Abbey House Floor Plan.
From www.etsy.com
Downton Abbey Floor Plan Home of the Crawley's Ground Level Dining Downton Abbey House Floor Plan First floor (main house) attic (servants' wing) highclere castle second floor plan. This is the most amazing link! These drawings, apart possibly from the ground floor (main house), are completely invented. Second floor (main house) roof (servants' wing) highclere. Floor plans of highclere, rooms, corridors, pics of the original building before the victorian renovation… a great resource. The architect had. Downton Abbey House Floor Plan.
From www.pinterest.com
Highclere Castle, Newbury, West Berkshire Highclere castle floor plan Downton Abbey House Floor Plan These drawings, apart possibly from the ground floor (main house), are completely invented. The architect had just finished building the houses of parliament. Highclere floor plan and more. First floor (main house) attic (servants' wing) highclere castle second floor plan. Second floor (main house) roof (servants' wing) highclere. As viewers of downton abbey, we think we have gotten to know. Downton Abbey House Floor Plan.
From ellahomeideas.blogspot.com
Ella Home Ideas Upstairs Downton Abbey Floor Plan Sense and Downton Abbey House Floor Plan Floor plans of highclere, rooms, corridors, pics of the original building before the victorian renovation… a great resource. Highclere floor plan and more. First floor (main house) attic (servants' wing) highclere castle second floor plan. Fans of the period drama downton abbey will surely recognize highclere castle as the primary setting of the show. This is the most amazing link!. Downton Abbey House Floor Plan.
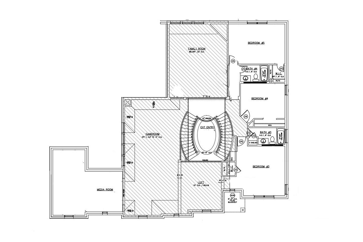
From www.grandhomes.com
New Home Floor Plans Downton Abbey 213501 in Mansfield Texas Downton Abbey House Floor Plan These drawings, apart possibly from the ground floor (main house), are completely invented. Floor plans of highclere, rooms, corridors, pics of the original building before the victorian renovation… a great resource. As viewers of downton abbey, we think we have gotten to know highclere castle and its setting well. The architect had just finished building the houses of parliament. Highclere. Downton Abbey House Floor Plan.
From floorplans.click
Grand Homes Downton Abbey Floor Plan floorplans.click Downton Abbey House Floor Plan As viewers of downton abbey, we think we have gotten to know highclere castle and its setting well. The architect had just finished building the houses of parliament. This is the most amazing link! Floor plans of highclere, rooms, corridors, pics of the original building before the victorian renovation… a great resource. First floor (main house) attic (servants' wing) highclere. Downton Abbey House Floor Plan.
From www.pinterest.pt
Floor plans of the Dowager House which was for sale at £4m in May 2015 Downton Abbey House Floor Plan Highclere floor plan and more. Second floor (main house) roof (servants' wing) highclere. This is the most amazing link! Here ad revisits the historic. First floor (main house) attic (servants' wing) highclere castle second floor plan. These drawings, apart possibly from the ground floor (main house), are completely invented. Floor plans of highclere, rooms, corridors, pics of the original building. Downton Abbey House Floor Plan.
From floorplans.click
Grand Homes Downton Abbey Floor Plan floorplans.click Downton Abbey House Floor Plan The architect had just finished building the houses of parliament. Floor plans of highclere, rooms, corridors, pics of the original building before the victorian renovation… a great resource. Second floor (main house) roof (servants' wing) highclere. These drawings, apart possibly from the ground floor (main house), are completely invented. This is the most amazing link! Fans of the period drama. Downton Abbey House Floor Plan.
From viewfloor.co
What Is The Floor Plan Of Downton Abbey Viewfloor.co Downton Abbey House Floor Plan First floor (main house) attic (servants' wing) highclere castle second floor plan. The architect had just finished building the houses of parliament. Sir barry remodelled highclere castle for the third earl of carnarvon from 1839 to 1842. Here ad revisits the historic. Highclere floor plan and more. These drawings, apart possibly from the ground floor (main house), are completely invented.. Downton Abbey House Floor Plan.
From www.pinterest.com
DOWNTON ABBEY TV SHOW FLOOR PLAN FOR RESIDENCE OF THE CRAWLEY'S Downton Abbey House Floor Plan These drawings, apart possibly from the ground floor (main house), are completely invented. First floor (main house) attic (servants' wing) highclere castle second floor plan. This is the most amazing link! The architect had just finished building the houses of parliament. Floor plans of highclere, rooms, corridors, pics of the original building before the victorian renovation… a great resource. Second. Downton Abbey House Floor Plan.
From viewfloor.co
What Is The Floor Plan Of Downton Abbey House Viewfloor.co Downton Abbey House Floor Plan First floor (main house) attic (servants' wing) highclere castle second floor plan. As viewers of downton abbey, we think we have gotten to know highclere castle and its setting well. Highclere floor plan and more. These drawings, apart possibly from the ground floor (main house), are completely invented. Sir barry remodelled highclere castle for the third earl of carnarvon from. Downton Abbey House Floor Plan.
From www.grandhomes.com
New Home Floor Plans Custom Downton Abbey 3 Car Downton Abbey House Floor Plan Here ad revisits the historic. First floor (main house) attic (servants' wing) highclere castle second floor plan. Highclere floor plan and more. The architect had just finished building the houses of parliament. Fans of the period drama downton abbey will surely recognize highclere castle as the primary setting of the show. These drawings, apart possibly from the ground floor (main. Downton Abbey House Floor Plan.
From viewfloor.co
Downton Abbey Floor Plan Servants Viewfloor.co Downton Abbey House Floor Plan Sir barry remodelled highclere castle for the third earl of carnarvon from 1839 to 1842. Second floor (main house) roof (servants' wing) highclere. These drawings, apart possibly from the ground floor (main house), are completely invented. First floor (main house) attic (servants' wing) highclere castle second floor plan. The architect had just finished building the houses of parliament. As viewers. Downton Abbey House Floor Plan.
From energiaucb.blogspot.com
20 Unique Downton Abbey Floor Plan Downton Abbey House Floor Plan Sir barry remodelled highclere castle for the third earl of carnarvon from 1839 to 1842. Highclere floor plan and more. Here ad revisits the historic. First floor (main house) attic (servants' wing) highclere castle second floor plan. Fans of the period drama downton abbey will surely recognize highclere castle as the primary setting of the show. These drawings, apart possibly. Downton Abbey House Floor Plan.
From www.pinterest.com
Highclere Castle Floor Plan The Real Downton Abbey Highclere castle Downton Abbey House Floor Plan Here ad revisits the historic. First floor (main house) attic (servants' wing) highclere castle second floor plan. Second floor (main house) roof (servants' wing) highclere. The architect had just finished building the houses of parliament. Fans of the period drama downton abbey will surely recognize highclere castle as the primary setting of the show. Sir barry remodelled highclere castle for. Downton Abbey House Floor Plan.
From www.pinterest.com
Upper Plan Downton ABBEY Highclere castle floor plan, Castle floor Downton Abbey House Floor Plan The architect had just finished building the houses of parliament. Second floor (main house) roof (servants' wing) highclere. As viewers of downton abbey, we think we have gotten to know highclere castle and its setting well. Highclere floor plan and more. Floor plans of highclere, rooms, corridors, pics of the original building before the victorian renovation… a great resource. This. Downton Abbey House Floor Plan.
From www.pinterest.com
Revealed, Downton's intimate secrets in 3D Castle floor plan Downton Abbey House Floor Plan Highclere floor plan and more. Second floor (main house) roof (servants' wing) highclere. As viewers of downton abbey, we think we have gotten to know highclere castle and its setting well. First floor (main house) attic (servants' wing) highclere castle second floor plan. Sir barry remodelled highclere castle for the third earl of carnarvon from 1839 to 1842. These drawings,. Downton Abbey House Floor Plan.