Commercial Kitchen Blueprints . But there’s so much more to designing your kitchen than layout. Continue reading to learn the basics of designing your commercial kitchen. Design your commercial kitchen’s floor plan with this blueprint and floor plan guide. The right commercial kitchen layout enables a boh team to do their best work safely and efficiently, resulting in lower staff turnover and higher customer satisfaction. Creating the ultimate dining experience starts in the kitchen. There’s a lot to consider, from food prep areas to storage space, from functionality and throughput to aesthetics. Strategic design makes a kitchen functional and safe. According to the certified food service professionals handbook, there are six guidelines you should follow when creating a. Choosing the right commercial kitchen layout for your restaurant. Find the ideal layout required for peak efficiency of food production.
from www.touchbistro.com
Find the ideal layout required for peak efficiency of food production. Creating the ultimate dining experience starts in the kitchen. According to the certified food service professionals handbook, there are six guidelines you should follow when creating a. But there’s so much more to designing your kitchen than layout. Design your commercial kitchen’s floor plan with this blueprint and floor plan guide. Continue reading to learn the basics of designing your commercial kitchen. Choosing the right commercial kitchen layout for your restaurant. Strategic design makes a kitchen functional and safe. The right commercial kitchen layout enables a boh team to do their best work safely and efficiently, resulting in lower staff turnover and higher customer satisfaction. There’s a lot to consider, from food prep areas to storage space, from functionality and throughput to aesthetics.
6 Commercial Kitchen Layout Examples & Ideas for Restaurants
Commercial Kitchen Blueprints According to the certified food service professionals handbook, there are six guidelines you should follow when creating a. Strategic design makes a kitchen functional and safe. But there’s so much more to designing your kitchen than layout. The right commercial kitchen layout enables a boh team to do their best work safely and efficiently, resulting in lower staff turnover and higher customer satisfaction. Creating the ultimate dining experience starts in the kitchen. According to the certified food service professionals handbook, there are six guidelines you should follow when creating a. There’s a lot to consider, from food prep areas to storage space, from functionality and throughput to aesthetics. Continue reading to learn the basics of designing your commercial kitchen. Choosing the right commercial kitchen layout for your restaurant. Find the ideal layout required for peak efficiency of food production. Design your commercial kitchen’s floor plan with this blueprint and floor plan guide.
From www.downloadkitchen.com
professionally designed commercial kitchen plans and packages Commercial Kitchen Blueprints The right commercial kitchen layout enables a boh team to do their best work safely and efficiently, resulting in lower staff turnover and higher customer satisfaction. According to the certified food service professionals handbook, there are six guidelines you should follow when creating a. Choosing the right commercial kitchen layout for your restaurant. Find the ideal layout required for peak. Commercial Kitchen Blueprints.
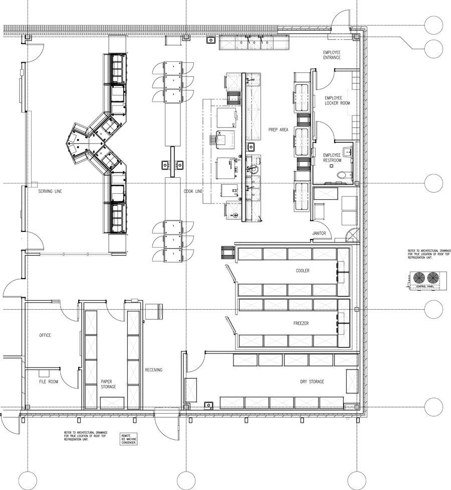
From www.pinterest.com
Kitchen Plan Example Restaurant Restaurant floor plan, Commercial kitchen design, Kitchen Commercial Kitchen Blueprints Find the ideal layout required for peak efficiency of food production. Creating the ultimate dining experience starts in the kitchen. The right commercial kitchen layout enables a boh team to do their best work safely and efficiently, resulting in lower staff turnover and higher customer satisfaction. According to the certified food service professionals handbook, there are six guidelines you should. Commercial Kitchen Blueprints.
From www.contekpro.com
Commercial Kitchen Design The 6 Design Principles You Should Know Commercial Kitchen Blueprints The right commercial kitchen layout enables a boh team to do their best work safely and efficiently, resulting in lower staff turnover and higher customer satisfaction. Continue reading to learn the basics of designing your commercial kitchen. But there’s so much more to designing your kitchen than layout. Strategic design makes a kitchen functional and safe. Creating the ultimate dining. Commercial Kitchen Blueprints.
From www.botonair.com
General Design Principle of Public Commercial Kitchen Layout Commercial Kitchen Blueprints There’s a lot to consider, from food prep areas to storage space, from functionality and throughput to aesthetics. But there’s so much more to designing your kitchen than layout. Design your commercial kitchen’s floor plan with this blueprint and floor plan guide. Find the ideal layout required for peak efficiency of food production. Creating the ultimate dining experience starts in. Commercial Kitchen Blueprints.
From senaterace2012.com
Impressive 19 Commercial Kitchen Layout Plans For Your Perfect Needs Home Plans & Blueprints Commercial Kitchen Blueprints According to the certified food service professionals handbook, there are six guidelines you should follow when creating a. The right commercial kitchen layout enables a boh team to do their best work safely and efficiently, resulting in lower staff turnover and higher customer satisfaction. Design your commercial kitchen’s floor plan with this blueprint and floor plan guide. Strategic design makes. Commercial Kitchen Blueprints.
From biyopos.com
Commercial Kitchen Blueprints Efficient and Compliant Design Biyo POS Commercial Kitchen Blueprints Find the ideal layout required for peak efficiency of food production. The right commercial kitchen layout enables a boh team to do their best work safely and efficiently, resulting in lower staff turnover and higher customer satisfaction. Choosing the right commercial kitchen layout for your restaurant. There’s a lot to consider, from food prep areas to storage space, from functionality. Commercial Kitchen Blueprints.
From www.touchbistro.com
6 Commercial Kitchen Layout Examples & Ideas for Restaurants Commercial Kitchen Blueprints There’s a lot to consider, from food prep areas to storage space, from functionality and throughput to aesthetics. Choosing the right commercial kitchen layout for your restaurant. Continue reading to learn the basics of designing your commercial kitchen. According to the certified food service professionals handbook, there are six guidelines you should follow when creating a. Find the ideal layout. Commercial Kitchen Blueprints.
From superiorkitchens.homestead.com
Commercial Kitchen Equipment Commerical Kitchen Design Denver Engineering Commercial Kitchen Blueprints Continue reading to learn the basics of designing your commercial kitchen. Find the ideal layout required for peak efficiency of food production. There’s a lot to consider, from food prep areas to storage space, from functionality and throughput to aesthetics. Design your commercial kitchen’s floor plan with this blueprint and floor plan guide. Choosing the right commercial kitchen layout for. Commercial Kitchen Blueprints.
From eurotecfm.co.uk
A Beginners Guide to Commercial Kitchen Design Eurotec FM Commercial Kitchen Blueprints Find the ideal layout required for peak efficiency of food production. Creating the ultimate dining experience starts in the kitchen. There’s a lot to consider, from food prep areas to storage space, from functionality and throughput to aesthetics. According to the certified food service professionals handbook, there are six guidelines you should follow when creating a. Design your commercial kitchen’s. Commercial Kitchen Blueprints.
From www.pinterest.com
Restaurant Floor Plans with Dimensions Kitchen Commercial Kitchen Design Layouts Modern Flo Commercial Kitchen Blueprints But there’s so much more to designing your kitchen than layout. Design your commercial kitchen’s floor plan with this blueprint and floor plan guide. According to the certified food service professionals handbook, there are six guidelines you should follow when creating a. Continue reading to learn the basics of designing your commercial kitchen. Creating the ultimate dining experience starts in. Commercial Kitchen Blueprints.
From www.pinterest.com
Download Kitchen Professionally Designed Commercial Kitchen Plans Kitchen plans, Kitchen Commercial Kitchen Blueprints Choosing the right commercial kitchen layout for your restaurant. The right commercial kitchen layout enables a boh team to do their best work safely and efficiently, resulting in lower staff turnover and higher customer satisfaction. Strategic design makes a kitchen functional and safe. There’s a lot to consider, from food prep areas to storage space, from functionality and throughput to. Commercial Kitchen Blueprints.
From buildeo.co.uk
How to Design an Efficient and Functional Commercial Kitchen Buildeo Commercial Kitchen Blueprints But there’s so much more to designing your kitchen than layout. Find the ideal layout required for peak efficiency of food production. Strategic design makes a kitchen functional and safe. There’s a lot to consider, from food prep areas to storage space, from functionality and throughput to aesthetics. Choosing the right commercial kitchen layout for your restaurant. The right commercial. Commercial Kitchen Blueprints.
From www.indiamart.com
Commercial Kitchen Layout in Coimbatore, Nallampalayam by Sabari Kitchen Services Private Commercial Kitchen Blueprints Choosing the right commercial kitchen layout for your restaurant. Design your commercial kitchen’s floor plan with this blueprint and floor plan guide. According to the certified food service professionals handbook, there are six guidelines you should follow when creating a. Creating the ultimate dining experience starts in the kitchen. There’s a lot to consider, from food prep areas to storage. Commercial Kitchen Blueprints.
From senaterace2012.com
Commercial Kitchen Designs Layouts Afreakatheart Home Plans & Blueprints 179140 Commercial Kitchen Blueprints Choosing the right commercial kitchen layout for your restaurant. But there’s so much more to designing your kitchen than layout. Find the ideal layout required for peak efficiency of food production. Continue reading to learn the basics of designing your commercial kitchen. Creating the ultimate dining experience starts in the kitchen. There’s a lot to consider, from food prep areas. Commercial Kitchen Blueprints.
From freecadfloorplans.com
Full Commercial Kitchen Layout, AutoCAD Block Free Cad Floor Plans Commercial Kitchen Blueprints But there’s so much more to designing your kitchen than layout. The right commercial kitchen layout enables a boh team to do their best work safely and efficiently, resulting in lower staff turnover and higher customer satisfaction. According to the certified food service professionals handbook, there are six guidelines you should follow when creating a. Creating the ultimate dining experience. Commercial Kitchen Blueprints.
From phenergandm.com
Commercial Kitchen Floor Plans Examples Flooring Tips Commercial Kitchen Blueprints Find the ideal layout required for peak efficiency of food production. According to the certified food service professionals handbook, there are six guidelines you should follow when creating a. There’s a lot to consider, from food prep areas to storage space, from functionality and throughput to aesthetics. The right commercial kitchen layout enables a boh team to do their best. Commercial Kitchen Blueprints.
From www.pinterest.com
Commercial Kitchen Design Layout Commercial kitchen design, Kitchen layout plans, Restaurant Commercial Kitchen Blueprints Strategic design makes a kitchen functional and safe. Find the ideal layout required for peak efficiency of food production. Creating the ultimate dining experience starts in the kitchen. But there’s so much more to designing your kitchen than layout. There’s a lot to consider, from food prep areas to storage space, from functionality and throughput to aesthetics. Design your commercial. Commercial Kitchen Blueprints.
From www.arcwestarchitects.com
Commercial Kitchen Planning and Design Considerations ArcWest Architects Commercial Kitchen Blueprints Creating the ultimate dining experience starts in the kitchen. There’s a lot to consider, from food prep areas to storage space, from functionality and throughput to aesthetics. Continue reading to learn the basics of designing your commercial kitchen. But there’s so much more to designing your kitchen than layout. Strategic design makes a kitchen functional and safe. The right commercial. Commercial Kitchen Blueprints.
From www.inoxkitchendesign.com
Commercial Kitchen Layout And Design, Explained With Floor Plans INOX KITCHEN DESIGN Commercial Kitchen Blueprints Continue reading to learn the basics of designing your commercial kitchen. There’s a lot to consider, from food prep areas to storage space, from functionality and throughput to aesthetics. Find the ideal layout required for peak efficiency of food production. But there’s so much more to designing your kitchen than layout. According to the certified food service professionals handbook, there. Commercial Kitchen Blueprints.
From www.downloadkitchen.com
professionally designed commercial kitchen plans and packages Commercial Kitchen Blueprints But there’s so much more to designing your kitchen than layout. The right commercial kitchen layout enables a boh team to do their best work safely and efficiently, resulting in lower staff turnover and higher customer satisfaction. Continue reading to learn the basics of designing your commercial kitchen. Design your commercial kitchen’s floor plan with this blueprint and floor plan. Commercial Kitchen Blueprints.
From www.downloadkitchen.com
professionally designed commercial kitchen plans and packages Commercial Kitchen Blueprints Choosing the right commercial kitchen layout for your restaurant. There’s a lot to consider, from food prep areas to storage space, from functionality and throughput to aesthetics. But there’s so much more to designing your kitchen than layout. Strategic design makes a kitchen functional and safe. Find the ideal layout required for peak efficiency of food production. The right commercial. Commercial Kitchen Blueprints.
From minimalisthomedesignn.blogspot.com
22+ Commercial Kitchen Design Plans Pdf Commercial Kitchen Blueprints But there’s so much more to designing your kitchen than layout. Strategic design makes a kitchen functional and safe. Choosing the right commercial kitchen layout for your restaurant. Design your commercial kitchen’s floor plan with this blueprint and floor plan guide. There’s a lot to consider, from food prep areas to storage space, from functionality and throughput to aesthetics. The. Commercial Kitchen Blueprints.
From www.viahouse.com
Stunning Modern Style Floor Plan Commercial Kitchen Design Commercial Kitchen Blueprints Find the ideal layout required for peak efficiency of food production. According to the certified food service professionals handbook, there are six guidelines you should follow when creating a. There’s a lot to consider, from food prep areas to storage space, from functionality and throughput to aesthetics. Creating the ultimate dining experience starts in the kitchen. Choosing the right commercial. Commercial Kitchen Blueprints.
From phenergandm.com
Commercial Kitchen Floor Plans Free Flooring Tips Commercial Kitchen Blueprints According to the certified food service professionals handbook, there are six guidelines you should follow when creating a. Creating the ultimate dining experience starts in the kitchen. Strategic design makes a kitchen functional and safe. Continue reading to learn the basics of designing your commercial kitchen. There’s a lot to consider, from food prep areas to storage space, from functionality. Commercial Kitchen Blueprints.
From www.touchbistro.com
6 Commercial Kitchen Layout Examples & Ideas for Restaurants Commercial Kitchen Blueprints But there’s so much more to designing your kitchen than layout. Continue reading to learn the basics of designing your commercial kitchen. Design your commercial kitchen’s floor plan with this blueprint and floor plan guide. The right commercial kitchen layout enables a boh team to do their best work safely and efficiently, resulting in lower staff turnover and higher customer. Commercial Kitchen Blueprints.
From ipipeline.net
Commercial Kitchen Floor Plans Examples Things In The Kitchen Commercial Kitchen Blueprints There’s a lot to consider, from food prep areas to storage space, from functionality and throughput to aesthetics. But there’s so much more to designing your kitchen than layout. Creating the ultimate dining experience starts in the kitchen. Continue reading to learn the basics of designing your commercial kitchen. According to the certified food service professionals handbook, there are six. Commercial Kitchen Blueprints.
From www.downloadkitchen.com
professionally designed commercial kitchen plans and packages Commercial Kitchen Blueprints But there’s so much more to designing your kitchen than layout. Creating the ultimate dining experience starts in the kitchen. According to the certified food service professionals handbook, there are six guidelines you should follow when creating a. There’s a lot to consider, from food prep areas to storage space, from functionality and throughput to aesthetics. Design your commercial kitchen’s. Commercial Kitchen Blueprints.
From www.pinterest.com
Commercial Kitchen Blueprints The right commercial kitchen layout enables a boh team to do their best work safely and efficiently, resulting in lower staff turnover and higher customer satisfaction. Design your commercial kitchen’s floor plan with this blueprint and floor plan guide. Find the ideal layout required for peak efficiency of food production. Creating the ultimate dining experience starts in the kitchen. According. Commercial Kitchen Blueprints.
From www.pinterest.com
Commercial Kitchen Design Articles Commercial kitchen design, Commercial kitchen, Kitchen Commercial Kitchen Blueprints Design your commercial kitchen’s floor plan with this blueprint and floor plan guide. Strategic design makes a kitchen functional and safe. But there’s so much more to designing your kitchen than layout. Continue reading to learn the basics of designing your commercial kitchen. Find the ideal layout required for peak efficiency of food production. There’s a lot to consider, from. Commercial Kitchen Blueprints.
From tips-to-toes.blogspot.com.ar
Small Commercial Kitchen Design Layout Home Decor and Interior Design Commercial Kitchen Blueprints Choosing the right commercial kitchen layout for your restaurant. Continue reading to learn the basics of designing your commercial kitchen. Creating the ultimate dining experience starts in the kitchen. According to the certified food service professionals handbook, there are six guidelines you should follow when creating a. The right commercial kitchen layout enables a boh team to do their best. Commercial Kitchen Blueprints.
From www.pinterest.jp
Blueprints of Restaurant Kitchen Designs Restaurant kitchen design, Commercial kitchen design Commercial Kitchen Blueprints Design your commercial kitchen’s floor plan with this blueprint and floor plan guide. Continue reading to learn the basics of designing your commercial kitchen. Find the ideal layout required for peak efficiency of food production. The right commercial kitchen layout enables a boh team to do their best work safely and efficiently, resulting in lower staff turnover and higher customer. Commercial Kitchen Blueprints.
From inoxkitchendesign.com
Small Commercial Kitchen Layout Floor Plan 0508201 INOX KITCHEN DESIGN Commercial Kitchen Blueprints According to the certified food service professionals handbook, there are six guidelines you should follow when creating a. Continue reading to learn the basics of designing your commercial kitchen. Choosing the right commercial kitchen layout for your restaurant. The right commercial kitchen layout enables a boh team to do their best work safely and efficiently, resulting in lower staff turnover. Commercial Kitchen Blueprints.
From www.hirerush.com
How to plan a commercial kitchen design? HireRush Commercial Kitchen Blueprints Choosing the right commercial kitchen layout for your restaurant. Strategic design makes a kitchen functional and safe. Creating the ultimate dining experience starts in the kitchen. Design your commercial kitchen’s floor plan with this blueprint and floor plan guide. According to the certified food service professionals handbook, there are six guidelines you should follow when creating a. There’s a lot. Commercial Kitchen Blueprints.
From www.pinterest.jp
Restaurant Kitchen Layout Approach Part 1 Restaurant kitchen design, Commercial kitchen design Commercial Kitchen Blueprints Design your commercial kitchen’s floor plan with this blueprint and floor plan guide. The right commercial kitchen layout enables a boh team to do their best work safely and efficiently, resulting in lower staff turnover and higher customer satisfaction. Creating the ultimate dining experience starts in the kitchen. Choosing the right commercial kitchen layout for your restaurant. According to the. Commercial Kitchen Blueprints.
From www.downloadkitchen.com
professionally designed commercial kitchen plans and packages Commercial Kitchen Blueprints Find the ideal layout required for peak efficiency of food production. Continue reading to learn the basics of designing your commercial kitchen. There’s a lot to consider, from food prep areas to storage space, from functionality and throughput to aesthetics. According to the certified food service professionals handbook, there are six guidelines you should follow when creating a. Design your. Commercial Kitchen Blueprints.