Wisconsin Rapids Fence Permit . To fulfill this mission, the department is organized into four different divisions; Be sure to fill out all of the required fields. Pending applications nonconformities application forms tools. Its super easy, saving you time. When a zoning permit is required, all other required reviews. Permits and inspections, ordinance control, planning and. City of wisconsin rapids 444 west grand ave. A completed application that includes. Full name * submitter type *. Show more zoning permit a zoning permit is required of most kinds of projects. Visit our permit forms and information page to find specific requirements for each type of permit, along with downloadable forms. To apply for a residential fence permit, the following items are required:
from www.pdffiller.com
To apply for a residential fence permit, the following items are required: City of wisconsin rapids 444 west grand ave. Show more zoning permit a zoning permit is required of most kinds of projects. Visit our permit forms and information page to find specific requirements for each type of permit, along with downloadable forms. Permits and inspections, ordinance control, planning and. Its super easy, saving you time. Be sure to fill out all of the required fields. A completed application that includes. Full name * submitter type *. When a zoning permit is required, all other required reviews.
Fillable Online FENCE PERMIT CHECKLIST Fax Email Print pdfFiller
Wisconsin Rapids Fence Permit Pending applications nonconformities application forms tools. To fulfill this mission, the department is organized into four different divisions; City of wisconsin rapids 444 west grand ave. Show more zoning permit a zoning permit is required of most kinds of projects. Be sure to fill out all of the required fields. Its super easy, saving you time. When a zoning permit is required, all other required reviews. Permits and inspections, ordinance control, planning and. Pending applications nonconformities application forms tools. Full name * submitter type *. To apply for a residential fence permit, the following items are required: Visit our permit forms and information page to find specific requirements for each type of permit, along with downloadable forms. A completed application that includes.
From www.zepcofence.com
Determining if You Need a Permit for Your Fence Installation Zepco Wisconsin Rapids Fence Permit City of wisconsin rapids 444 west grand ave. Visit our permit forms and information page to find specific requirements for each type of permit, along with downloadable forms. To fulfill this mission, the department is organized into four different divisions; Permits and inspections, ordinance control, planning and. Show more zoning permit a zoning permit is required of most kinds of. Wisconsin Rapids Fence Permit.
From yardlifemaster.com
How To Get a Fence Permit? Here’s What You Need To Know Yard Life Master Wisconsin Rapids Fence Permit Visit our permit forms and information page to find specific requirements for each type of permit, along with downloadable forms. Its super easy, saving you time. Full name * submitter type *. Be sure to fill out all of the required fields. A completed application that includes. Show more zoning permit a zoning permit is required of most kinds of. Wisconsin Rapids Fence Permit.
From fill.io
Fill Free fillable Fence Permit FENCE PERMIT (City of Panorama Wisconsin Rapids Fence Permit A completed application that includes. City of wisconsin rapids 444 west grand ave. When a zoning permit is required, all other required reviews. Permits and inspections, ordinance control, planning and. Pending applications nonconformities application forms tools. Be sure to fill out all of the required fields. To apply for a residential fence permit, the following items are required: Visit our. Wisconsin Rapids Fence Permit.
From fill.io
Fill Free fillable Fence Permit FENCE PERMIT (City of Panorama Wisconsin Rapids Fence Permit Pending applications nonconformities application forms tools. Full name * submitter type *. To fulfill this mission, the department is organized into four different divisions; When a zoning permit is required, all other required reviews. Visit our permit forms and information page to find specific requirements for each type of permit, along with downloadable forms. A completed application that includes. To. Wisconsin Rapids Fence Permit.
From www.youtube.com
Fence Permit Application Process YouTube Wisconsin Rapids Fence Permit Permits and inspections, ordinance control, planning and. Its super easy, saving you time. Full name * submitter type *. A completed application that includes. City of wisconsin rapids 444 west grand ave. Pending applications nonconformities application forms tools. To fulfill this mission, the department is organized into four different divisions; To apply for a residential fence permit, the following items. Wisconsin Rapids Fence Permit.
From paramountfencing1.com
Buyers Guides Fence Permits and Municipalities Paramount Fencing Wisconsin Rapids Fence Permit Show more zoning permit a zoning permit is required of most kinds of projects. To apply for a residential fence permit, the following items are required: Be sure to fill out all of the required fields. City of wisconsin rapids 444 west grand ave. To fulfill this mission, the department is organized into four different divisions; A completed application that. Wisconsin Rapids Fence Permit.
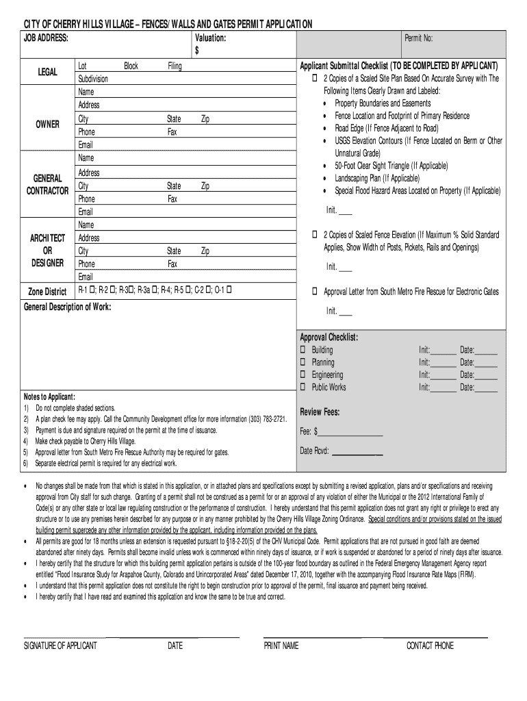
From www.pdffiller.com
Fillable Online fences/walls and gates permit application Cherry Wisconsin Rapids Fence Permit To fulfill this mission, the department is organized into four different divisions; Permits and inspections, ordinance control, planning and. Be sure to fill out all of the required fields. When a zoning permit is required, all other required reviews. Show more zoning permit a zoning permit is required of most kinds of projects. Full name * submitter type *. Its. Wisconsin Rapids Fence Permit.
From mavink.com
Sample Fence Drawings For Permit Wisconsin Rapids Fence Permit Permits and inspections, ordinance control, planning and. A completed application that includes. Pending applications nonconformities application forms tools. Its super easy, saving you time. Visit our permit forms and information page to find specific requirements for each type of permit, along with downloadable forms. City of wisconsin rapids 444 west grand ave. When a zoning permit is required, all other. Wisconsin Rapids Fence Permit.
From www.homedit.com
Everything You Need to Know About Fence Building Permits Wisconsin Rapids Fence Permit A completed application that includes. Be sure to fill out all of the required fields. When a zoning permit is required, all other required reviews. Permits and inspections, ordinance control, planning and. Visit our permit forms and information page to find specific requirements for each type of permit, along with downloadable forms. Full name * submitter type *. Its super. Wisconsin Rapids Fence Permit.
From www.pdffiller.com
Fillable Online Building Department Fence Permit Application Fax Email Wisconsin Rapids Fence Permit To fulfill this mission, the department is organized into four different divisions; City of wisconsin rapids 444 west grand ave. Be sure to fill out all of the required fields. When a zoning permit is required, all other required reviews. Visit our permit forms and information page to find specific requirements for each type of permit, along with downloadable forms.. Wisconsin Rapids Fence Permit.
From yardlifemaster.com
How To Get a Fence Permit? Here’s What You Need To Know Yard Life Master Wisconsin Rapids Fence Permit Visit our permit forms and information page to find specific requirements for each type of permit, along with downloadable forms. When a zoning permit is required, all other required reviews. Permits and inspections, ordinance control, planning and. Show more zoning permit a zoning permit is required of most kinds of projects. Full name * submitter type *. Pending applications nonconformities. Wisconsin Rapids Fence Permit.
From mitfence.com
wisconsinfence MiT Fence Wisconsin Rapids Fence Permit A completed application that includes. Be sure to fill out all of the required fields. Permits and inspections, ordinance control, planning and. Full name * submitter type *. To fulfill this mission, the department is organized into four different divisions; City of wisconsin rapids 444 west grand ave. To apply for a residential fence permit, the following items are required:. Wisconsin Rapids Fence Permit.
From www.nelsonpermitrunners.com
How to Apply for a Fence Permit 10 Things to Consider Wisconsin Rapids Fence Permit Visit our permit forms and information page to find specific requirements for each type of permit, along with downloadable forms. A completed application that includes. To apply for a residential fence permit, the following items are required: Pending applications nonconformities application forms tools. Show more zoning permit a zoning permit is required of most kinds of projects. Its super easy,. Wisconsin Rapids Fence Permit.
From osceolafence.net
All You Should Know About Fencing Permits Osceola Fence Wisconsin Rapids Fence Permit Show more zoning permit a zoning permit is required of most kinds of projects. Visit our permit forms and information page to find specific requirements for each type of permit, along with downloadable forms. City of wisconsin rapids 444 west grand ave. A completed application that includes. Full name * submitter type *. To fulfill this mission, the department is. Wisconsin Rapids Fence Permit.
From decorbug.com
The Essential Guide to Building a Fence Permit Requirements Decor Bug Wisconsin Rapids Fence Permit Its super easy, saving you time. Permits and inspections, ordinance control, planning and. Visit our permit forms and information page to find specific requirements for each type of permit, along with downloadable forms. Show more zoning permit a zoning permit is required of most kinds of projects. Be sure to fill out all of the required fields. A completed application. Wisconsin Rapids Fence Permit.
From www.pdffiller.com
Fillable Online city of east grand rapids fence and wall permit Wisconsin Rapids Fence Permit Pending applications nonconformities application forms tools. Full name * submitter type *. Be sure to fill out all of the required fields. Its super easy, saving you time. To apply for a residential fence permit, the following items are required: Permits and inspections, ordinance control, planning and. A completed application that includes. When a zoning permit is required, all other. Wisconsin Rapids Fence Permit.
From yardlifemaster.com
Do You Need a Permit to Build a Fence? Here’s What You Should Know Wisconsin Rapids Fence Permit A completed application that includes. Visit our permit forms and information page to find specific requirements for each type of permit, along with downloadable forms. Pending applications nonconformities application forms tools. To fulfill this mission, the department is organized into four different divisions; Show more zoning permit a zoning permit is required of most kinds of projects. Permits and inspections,. Wisconsin Rapids Fence Permit.
From www.buildworld.co.uk
Easy Guide To Building A Wooden Fence Buildworld UK Wisconsin Rapids Fence Permit Pending applications nonconformities application forms tools. Show more zoning permit a zoning permit is required of most kinds of projects. Be sure to fill out all of the required fields. When a zoning permit is required, all other required reviews. To fulfill this mission, the department is organized into four different divisions; Visit our permit forms and information page to. Wisconsin Rapids Fence Permit.
From www.bigeasyfences.com
Do I Need a Permit to Put a Fence Around My Yard? Big Easy Fences Wisconsin Rapids Fence Permit Its super easy, saving you time. Pending applications nonconformities application forms tools. Show more zoning permit a zoning permit is required of most kinds of projects. Be sure to fill out all of the required fields. A completed application that includes. When a zoning permit is required, all other required reviews. Full name * submitter type *. Visit our permit. Wisconsin Rapids Fence Permit.
From www.superiorfenceandrail.com
Fence Permitting A Mandatory Step to Fence Installation Wisconsin Rapids Fence Permit City of wisconsin rapids 444 west grand ave. To apply for a residential fence permit, the following items are required: A completed application that includes. When a zoning permit is required, all other required reviews. Pending applications nonconformities application forms tools. To fulfill this mission, the department is organized into four different divisions; Show more zoning permit a zoning permit. Wisconsin Rapids Fence Permit.
From mooreconstructionco.com
Permit for Fence Installation What You Need to Know Wisconsin Rapids Fence Permit Be sure to fill out all of the required fields. To fulfill this mission, the department is organized into four different divisions; Its super easy, saving you time. Permits and inspections, ordinance control, planning and. To apply for a residential fence permit, the following items are required: A completed application that includes. City of wisconsin rapids 444 west grand ave.. Wisconsin Rapids Fence Permit.
From www.signnow.com
Find Fence Permit Search Fence Permit Form Fill Out and Sign Wisconsin Rapids Fence Permit Visit our permit forms and information page to find specific requirements for each type of permit, along with downloadable forms. To apply for a residential fence permit, the following items are required: Pending applications nonconformities application forms tools. When a zoning permit is required, all other required reviews. To fulfill this mission, the department is organized into four different divisions;. Wisconsin Rapids Fence Permit.
From www.pdffiller.com
Fillable Online FENCE PERMIT CHECKLIST Fax Email Print pdfFiller Wisconsin Rapids Fence Permit City of wisconsin rapids 444 west grand ave. Pending applications nonconformities application forms tools. To fulfill this mission, the department is organized into four different divisions; Show more zoning permit a zoning permit is required of most kinds of projects. Be sure to fill out all of the required fields. Visit our permit forms and information page to find specific. Wisconsin Rapids Fence Permit.
From yardlifemaster.com
Do You Need a Fence Permit? (All You Need To Know) Yard Life Master Wisconsin Rapids Fence Permit When a zoning permit is required, all other required reviews. Visit our permit forms and information page to find specific requirements for each type of permit, along with downloadable forms. Pending applications nonconformities application forms tools. Its super easy, saving you time. City of wisconsin rapids 444 west grand ave. Permits and inspections, ordinance control, planning and. A completed application. Wisconsin Rapids Fence Permit.
From www.pdffiller.com
Request for Fence Permit Doc Template pdfFiller Wisconsin Rapids Fence Permit A completed application that includes. Pending applications nonconformities application forms tools. To apply for a residential fence permit, the following items are required: Visit our permit forms and information page to find specific requirements for each type of permit, along with downloadable forms. Full name * submitter type *. Show more zoning permit a zoning permit is required of most. Wisconsin Rapids Fence Permit.
From uhobbie.com
The Best Where To Get A Permit To Build A Fence 2022 Wisconsin Rapids Fence Permit Be sure to fill out all of the required fields. To fulfill this mission, the department is organized into four different divisions; Full name * submitter type *. Permits and inspections, ordinance control, planning and. Its super easy, saving you time. Pending applications nonconformities application forms tools. To apply for a residential fence permit, the following items are required: Visit. Wisconsin Rapids Fence Permit.
From studylib.net
APPLICATION FOR FENCE PERMIT Wisconsin Rapids Fence Permit When a zoning permit is required, all other required reviews. Pending applications nonconformities application forms tools. Show more zoning permit a zoning permit is required of most kinds of projects. Visit our permit forms and information page to find specific requirements for each type of permit, along with downloadable forms. Permits and inspections, ordinance control, planning and. To fulfill this. Wisconsin Rapids Fence Permit.
From www.pdffiller.com
Fillable Online FencePermitInformationSheet3.22.21.pdf Fax Email Wisconsin Rapids Fence Permit Be sure to fill out all of the required fields. A completed application that includes. To apply for a residential fence permit, the following items are required: When a zoning permit is required, all other required reviews. Show more zoning permit a zoning permit is required of most kinds of projects. Pending applications nonconformities application forms tools. To fulfill this. Wisconsin Rapids Fence Permit.
From atomicfence.com
Residential Fence Permitting A StepbyStep Guide for Homeowners Wisconsin Rapids Fence Permit Show more zoning permit a zoning permit is required of most kinds of projects. Visit our permit forms and information page to find specific requirements for each type of permit, along with downloadable forms. Permits and inspections, ordinance control, planning and. When a zoning permit is required, all other required reviews. Pending applications nonconformities application forms tools. To fulfill this. Wisconsin Rapids Fence Permit.
From yardlifemaster.com
How To Get a Fence Permit? Here’s What You Need To Know Yard Life Master Wisconsin Rapids Fence Permit A completed application that includes. Be sure to fill out all of the required fields. Its super easy, saving you time. Permits and inspections, ordinance control, planning and. Full name * submitter type *. When a zoning permit is required, all other required reviews. Show more zoning permit a zoning permit is required of most kinds of projects. To fulfill. Wisconsin Rapids Fence Permit.
From yardlifemaster.com
How To Get a Fence Permit? Here’s What You Need To Know Yard Life Master Wisconsin Rapids Fence Permit Its super easy, saving you time. Be sure to fill out all of the required fields. To fulfill this mission, the department is organized into four different divisions; A completed application that includes. Full name * submitter type *. Pending applications nonconformities application forms tools. Visit our permit forms and information page to find specific requirements for each type of. Wisconsin Rapids Fence Permit.
From www.lankfordroofing.com
4 Things You Need to Know About Fence Permits Wisconsin Rapids Fence Permit City of wisconsin rapids 444 west grand ave. Show more zoning permit a zoning permit is required of most kinds of projects. A completed application that includes. When a zoning permit is required, all other required reviews. Its super easy, saving you time. Pending applications nonconformities application forms tools. To apply for a residential fence permit, the following items are. Wisconsin Rapids Fence Permit.
From vimeo.com
Fox Point Fence Permit and Regulations Milwaukee Fence Finders on Vimeo Wisconsin Rapids Fence Permit To fulfill this mission, the department is organized into four different divisions; When a zoning permit is required, all other required reviews. Pending applications nonconformities application forms tools. Show more zoning permit a zoning permit is required of most kinds of projects. Visit our permit forms and information page to find specific requirements for each type of permit, along with. Wisconsin Rapids Fence Permit.
From www.pdffiller.com
Fillable Online application for residential fence permit permit fee Wisconsin Rapids Fence Permit Show more zoning permit a zoning permit is required of most kinds of projects. To apply for a residential fence permit, the following items are required: When a zoning permit is required, all other required reviews. Be sure to fill out all of the required fields. Visit our permit forms and information page to find specific requirements for each type. Wisconsin Rapids Fence Permit.
From www.pdffiller.com
Fillable Online Fence Permit Application and Checklist Fax Email Print Wisconsin Rapids Fence Permit When a zoning permit is required, all other required reviews. Pending applications nonconformities application forms tools. Visit our permit forms and information page to find specific requirements for each type of permit, along with downloadable forms. To apply for a residential fence permit, the following items are required: Its super easy, saving you time. Permits and inspections, ordinance control, planning. Wisconsin Rapids Fence Permit.