Center Hung Pivot Installation . Install door portion of pivot per template. view and download dormakaba ed250 installation instructions manual online. Offset pivots ensure balance and weight. Unlike offset pivots, they provide a symmetrical appearance when the door is closed. installation instructions heavy duty center hung top pivot for use with hd8062 1.1 install pivot 1.1.1 prepare door and header. 1.1.1 determine the clearance between the door and header and adjust the projection of the pivot pin, if. Install jamb portion of top pivot in frame per template.
from www.onwardhardware.com
Unlike offset pivots, they provide a symmetrical appearance when the door is closed. Install door portion of pivot per template. Install jamb portion of top pivot in frame per template. Offset pivots ensure balance and weight. view and download dormakaba ed250 installation instructions manual online. installation instructions heavy duty center hung top pivot for use with hd8062 1.1 install pivot 1.1.1 prepare door and header. 1.1.1 determine the clearance between the door and header and adjust the projection of the pivot pin, if.
Dorma Center Hung Pivot Onward Hardware
Center Hung Pivot Installation Install door portion of pivot per template. Offset pivots ensure balance and weight. Unlike offset pivots, they provide a symmetrical appearance when the door is closed. installation instructions heavy duty center hung top pivot for use with hd8062 1.1 install pivot 1.1.1 prepare door and header. Install door portion of pivot per template. view and download dormakaba ed250 installation instructions manual online. 1.1.1 determine the clearance between the door and header and adjust the projection of the pivot pin, if. Install jamb portion of top pivot in frame per template.
From www.hardwaresource.com
Frame Mounted Center Hung Pivot Set HardwareSource Center Hung Pivot Installation installation instructions heavy duty center hung top pivot for use with hd8062 1.1 install pivot 1.1.1 prepare door and header. Offset pivots ensure balance and weight. Unlike offset pivots, they provide a symmetrical appearance when the door is closed. view and download dormakaba ed250 installation instructions manual online. Install jamb portion of top pivot in frame per template.. Center Hung Pivot Installation.
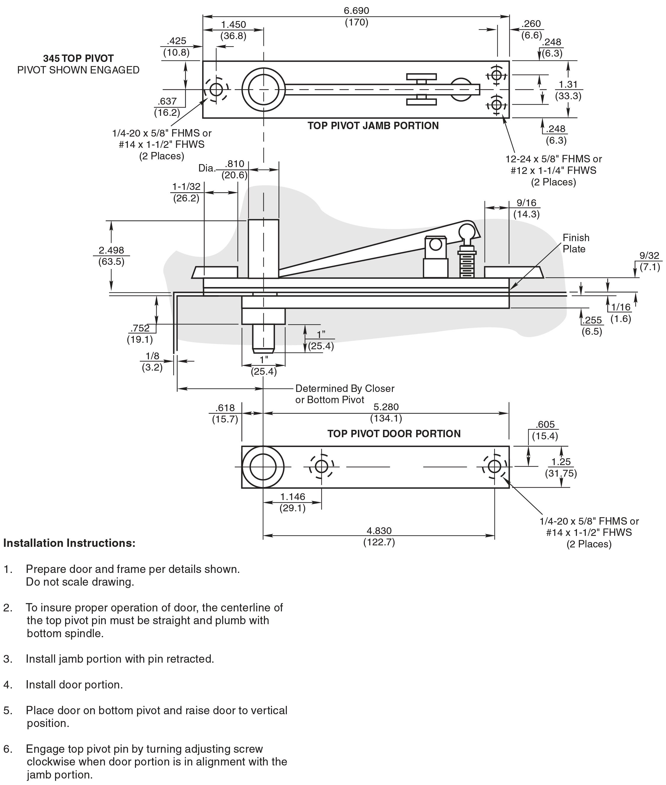
From www.abhmfg.com
0370 Pivot Set Center Hung. Architectural Builders Hardware Mfg. Inc. Center Hung Pivot Installation view and download dormakaba ed250 installation instructions manual online. Offset pivots ensure balance and weight. Install door portion of pivot per template. 1.1.1 determine the clearance between the door and header and adjust the projection of the pivot pin, if. Install jamb portion of top pivot in frame per template. installation instructions heavy duty center hung top pivot. Center Hung Pivot Installation.
From www.abhmfg.com
0128 Pivot Set Center Hung. Architectural Builders Hardware Mfg. Inc. Center Hung Pivot Installation view and download dormakaba ed250 installation instructions manual online. 1.1.1 determine the clearance between the door and header and adjust the projection of the pivot pin, if. Install door portion of pivot per template. installation instructions heavy duty center hung top pivot for use with hd8062 1.1 install pivot 1.1.1 prepare door and header. Install jamb portion of. Center Hung Pivot Installation.
From www.hafele.com
Door Hinge, Center Hung, Top Pivot Häfele Center Hung Pivot Installation Offset pivots ensure balance and weight. installation instructions heavy duty center hung top pivot for use with hd8062 1.1 install pivot 1.1.1 prepare door and header. 1.1.1 determine the clearance between the door and header and adjust the projection of the pivot pin, if. Unlike offset pivots, they provide a symmetrical appearance when the door is closed. Install door. Center Hung Pivot Installation.
From www.tmhardware.com
Rixson Center Hung Top Pivot for Extra Tall Doors. Trademark Hardware Inc. Center Hung Pivot Installation view and download dormakaba ed250 installation instructions manual online. 1.1.1 determine the clearance between the door and header and adjust the projection of the pivot pin, if. installation instructions heavy duty center hung top pivot for use with hd8062 1.1 install pivot 1.1.1 prepare door and header. Offset pivots ensure balance and weight. Install jamb portion of top. Center Hung Pivot Installation.
From www.rajack.com
RAJACK Center Hung Pivot Hinge Center Hung Pivot Installation installation instructions heavy duty center hung top pivot for use with hd8062 1.1 install pivot 1.1.1 prepare door and header. Unlike offset pivots, they provide a symmetrical appearance when the door is closed. Install jamb portion of top pivot in frame per template. Offset pivots ensure balance and weight. view and download dormakaba ed250 installation instructions manual online.. Center Hung Pivot Installation.
From www.americanbuildersoutlet.com
Rixson 270 Center Hung Pivot Set (includes Special Top Pivot) Center Hung Pivot Installation Install door portion of pivot per template. Unlike offset pivots, they provide a symmetrical appearance when the door is closed. 1.1.1 determine the clearance between the door and header and adjust the projection of the pivot pin, if. Install jamb portion of top pivot in frame per template. Offset pivots ensure balance and weight. view and download dormakaba ed250. Center Hung Pivot Installation.
From www.rajack.com
RAJACK Center Hung Pivot Hinge Center Hung Pivot Installation Unlike offset pivots, they provide a symmetrical appearance when the door is closed. installation instructions heavy duty center hung top pivot for use with hd8062 1.1 install pivot 1.1.1 prepare door and header. Install door portion of pivot per template. Install jamb portion of top pivot in frame per template. view and download dormakaba ed250 installation instructions manual. Center Hung Pivot Installation.
From www.epivots.com
Rixson 370 Center Hung Pivot Set Center Hung Pivot Installation Install jamb portion of top pivot in frame per template. Offset pivots ensure balance and weight. view and download dormakaba ed250 installation instructions manual online. installation instructions heavy duty center hung top pivot for use with hd8062 1.1 install pivot 1.1.1 prepare door and header. Unlike offset pivots, they provide a symmetrical appearance when the door is closed.. Center Hung Pivot Installation.
From www.epivots.com
Rixson 370 Center Hung Door Pivot Set Epivots Center Hung Pivot Installation 1.1.1 determine the clearance between the door and header and adjust the projection of the pivot pin, if. Offset pivots ensure balance and weight. Install jamb portion of top pivot in frame per template. installation instructions heavy duty center hung top pivot for use with hd8062 1.1 install pivot 1.1.1 prepare door and header. Install door portion of pivot. Center Hung Pivot Installation.
From sweets.construction.com
Features/Specification Center Hung Pivot Installation Unlike offset pivots, they provide a symmetrical appearance when the door is closed. view and download dormakaba ed250 installation instructions manual online. Install jamb portion of top pivot in frame per template. installation instructions heavy duty center hung top pivot for use with hd8062 1.1 install pivot 1.1.1 prepare door and header. Install door portion of pivot per. Center Hung Pivot Installation.
From www.rajack.com
RAJACK Center Hung Pivot Hinge Center Hung Pivot Installation 1.1.1 determine the clearance between the door and header and adjust the projection of the pivot pin, if. installation instructions heavy duty center hung top pivot for use with hd8062 1.1 install pivot 1.1.1 prepare door and header. Install jamb portion of top pivot in frame per template. Install door portion of pivot per template. view and download. Center Hung Pivot Installation.
From productspec.co.nz
Ives 7253 Center Hung Pivot Set Center Hung Pivot Installation Unlike offset pivots, they provide a symmetrical appearance when the door is closed. installation instructions heavy duty center hung top pivot for use with hd8062 1.1 install pivot 1.1.1 prepare door and header. Install door portion of pivot per template. Install jamb portion of top pivot in frame per template. 1.1.1 determine the clearance between the door and header. Center Hung Pivot Installation.
From www.doorclosersusa.com
Kawneer Bottom Center Pivot Assembly For Center Hung Storefront Doors Center Hung Pivot Installation Install door portion of pivot per template. 1.1.1 determine the clearance between the door and header and adjust the projection of the pivot pin, if. Offset pivots ensure balance and weight. installation instructions heavy duty center hung top pivot for use with hd8062 1.1 install pivot 1.1.1 prepare door and header. Unlike offset pivots, they provide a symmetrical appearance. Center Hung Pivot Installation.
From www.hardwaresource.com
Center Hung Pivot Set, 250 lbs HardwareSource Center Hung Pivot Installation Unlike offset pivots, they provide a symmetrical appearance when the door is closed. view and download dormakaba ed250 installation instructions manual online. Offset pivots ensure balance and weight. Install jamb portion of top pivot in frame per template. Install door portion of pivot per template. 1.1.1 determine the clearance between the door and header and adjust the projection of. Center Hung Pivot Installation.
From www.epivots.com
FritsJurgens System One Center Hung Pivot Set Center Hung Pivot Installation Unlike offset pivots, they provide a symmetrical appearance when the door is closed. view and download dormakaba ed250 installation instructions manual online. installation instructions heavy duty center hung top pivot for use with hd8062 1.1 install pivot 1.1.1 prepare door and header. Offset pivots ensure balance and weight. 1.1.1 determine the clearance between the door and header and. Center Hung Pivot Installation.
From cookandboardman.com
Rixson 1283/4, Center Hung Pivot Set, 250lb Door Center Hung Pivot Installation view and download dormakaba ed250 installation instructions manual online. Install jamb portion of top pivot in frame per template. Offset pivots ensure balance and weight. Install door portion of pivot per template. 1.1.1 determine the clearance between the door and header and adjust the projection of the pivot pin, if. Unlike offset pivots, they provide a symmetrical appearance when. Center Hung Pivot Installation.
From www.tmhardware.com
Rixson Center Hung Heavy Duty Top Door Pivot for Extra Tall Doors Center Hung Pivot Installation 1.1.1 determine the clearance between the door and header and adjust the projection of the pivot pin, if. Install jamb portion of top pivot in frame per template. Offset pivots ensure balance and weight. Install door portion of pivot per template. installation instructions heavy duty center hung top pivot for use with hd8062 1.1 install pivot 1.1.1 prepare door. Center Hung Pivot Installation.
From www.abhmfg.com
CME0340 Electrified Top Pivot Center Hung. Architectural Builders Center Hung Pivot Installation installation instructions heavy duty center hung top pivot for use with hd8062 1.1 install pivot 1.1.1 prepare door and header. view and download dormakaba ed250 installation instructions manual online. Install door portion of pivot per template. Offset pivots ensure balance and weight. 1.1.1 determine the clearance between the door and header and adjust the projection of the pivot. Center Hung Pivot Installation.
From www.epivots.com
Dorma CP1000 HeavyDuty Center Hung Pivot Set Center Hung Pivot Installation Install door portion of pivot per template. Install jamb portion of top pivot in frame per template. Unlike offset pivots, they provide a symmetrical appearance when the door is closed. Offset pivots ensure balance and weight. view and download dormakaba ed250 installation instructions manual online. installation instructions heavy duty center hung top pivot for use with hd8062 1.1. Center Hung Pivot Installation.
From www.youtube.com
ABH 0370 Center Hung Pivot Set YouTube Center Hung Pivot Installation Offset pivots ensure balance and weight. view and download dormakaba ed250 installation instructions manual online. Install jamb portion of top pivot in frame per template. Install door portion of pivot per template. Unlike offset pivots, they provide a symmetrical appearance when the door is closed. installation instructions heavy duty center hung top pivot for use with hd8062 1.1. Center Hung Pivot Installation.
From www.rajack.com
RAJACK Center Hung Pivot Hinge Center Hung Pivot Installation installation instructions heavy duty center hung top pivot for use with hd8062 1.1 install pivot 1.1.1 prepare door and header. Install jamb portion of top pivot in frame per template. 1.1.1 determine the clearance between the door and header and adjust the projection of the pivot pin, if. view and download dormakaba ed250 installation instructions manual online. Install. Center Hung Pivot Installation.
From www.abhmfg.com
0117.75 Pivot Set Center Hung. Architectural Builders Hardware Mfg. Inc. Center Hung Pivot Installation Unlike offset pivots, they provide a symmetrical appearance when the door is closed. Install door portion of pivot per template. Offset pivots ensure balance and weight. view and download dormakaba ed250 installation instructions manual online. Install jamb portion of top pivot in frame per template. installation instructions heavy duty center hung top pivot for use with hd8062 1.1. Center Hung Pivot Installation.
From locksandsafes.com
ABH E0370 Electrified Center Hung Heavy Duty Pivot Set Center Hung Pivot Installation Install jamb portion of top pivot in frame per template. Install door portion of pivot per template. Unlike offset pivots, they provide a symmetrical appearance when the door is closed. 1.1.1 determine the clearance between the door and header and adjust the projection of the pivot pin, if. Offset pivots ensure balance and weight. installation instructions heavy duty center. Center Hung Pivot Installation.
From www.rajack.com
RAJACK Center Hung Pivot Hinge Center Hung Pivot Installation Unlike offset pivots, they provide a symmetrical appearance when the door is closed. Install door portion of pivot per template. installation instructions heavy duty center hung top pivot for use with hd8062 1.1 install pivot 1.1.1 prepare door and header. 1.1.1 determine the clearance between the door and header and adjust the projection of the pivot pin, if. . Center Hung Pivot Installation.
From www.epivots.com
Rixson 176 Center Hung Pivot Set Center Hung Pivot Installation Unlike offset pivots, they provide a symmetrical appearance when the door is closed. installation instructions heavy duty center hung top pivot for use with hd8062 1.1 install pivot 1.1.1 prepare door and header. 1.1.1 determine the clearance between the door and header and adjust the projection of the pivot pin, if. Install jamb portion of top pivot in frame. Center Hung Pivot Installation.
From cookandboardman.com
Door Hardware Pivots Center Hung Pivots Page 1 Center Hung Pivot Installation Install jamb portion of top pivot in frame per template. Install door portion of pivot per template. Offset pivots ensure balance and weight. view and download dormakaba ed250 installation instructions manual online. Unlike offset pivots, they provide a symmetrical appearance when the door is closed. installation instructions heavy duty center hung top pivot for use with hd8062 1.1. Center Hung Pivot Installation.
From kilianhardware.com
Rixson Center Hung Pivot Set Center Hung Pivot Installation installation instructions heavy duty center hung top pivot for use with hd8062 1.1 install pivot 1.1.1 prepare door and header. Install jamb portion of top pivot in frame per template. Offset pivots ensure balance and weight. 1.1.1 determine the clearance between the door and header and adjust the projection of the pivot pin, if. Unlike offset pivots, they provide. Center Hung Pivot Installation.
From doorcloser.com
Ives 7255 Complete Center Hung Pivot Set (300 LBS) Center Hung Pivot Installation Install door portion of pivot per template. installation instructions heavy duty center hung top pivot for use with hd8062 1.1 install pivot 1.1.1 prepare door and header. Unlike offset pivots, they provide a symmetrical appearance when the door is closed. Offset pivots ensure balance and weight. view and download dormakaba ed250 installation instructions manual online. 1.1.1 determine the. Center Hung Pivot Installation.
From www.craftmasterhardware.com
Rixson 12834626 1283/4626 Center Hung Pivot Set, Includes Top Pivot Center Hung Pivot Installation view and download dormakaba ed250 installation instructions manual online. 1.1.1 determine the clearance between the door and header and adjust the projection of the pivot pin, if. Install jamb portion of top pivot in frame per template. Unlike offset pivots, they provide a symmetrical appearance when the door is closed. installation instructions heavy duty center hung top pivot. Center Hung Pivot Installation.
From www.swingingcafedoors.com
Rixon Heavy Duty Center Hung Pivot Hinge Pivot Door Hardware Center Hung Pivot Installation Offset pivots ensure balance and weight. view and download dormakaba ed250 installation instructions manual online. Install door portion of pivot per template. Unlike offset pivots, they provide a symmetrical appearance when the door is closed. Install jamb portion of top pivot in frame per template. installation instructions heavy duty center hung top pivot for use with hd8062 1.1. Center Hung Pivot Installation.
From www.hardwaresource.com
Frame Mounted Center Hung Pivot Set, 250 lbs HardwareSource Center Hung Pivot Installation Install door portion of pivot per template. installation instructions heavy duty center hung top pivot for use with hd8062 1.1 install pivot 1.1.1 prepare door and header. Install jamb portion of top pivot in frame per template. Unlike offset pivots, they provide a symmetrical appearance when the door is closed. Offset pivots ensure balance and weight. view and. Center Hung Pivot Installation.
From www.abhmfg.com
0117.75 Pivot Set Center Hung. Architectural Builders Hardware Mfg. Inc. Center Hung Pivot Installation Install door portion of pivot per template. 1.1.1 determine the clearance between the door and header and adjust the projection of the pivot pin, if. Install jamb portion of top pivot in frame per template. view and download dormakaba ed250 installation instructions manual online. installation instructions heavy duty center hung top pivot for use with hd8062 1.1 install. Center Hung Pivot Installation.
From assa-abloy.ghost.io
Understanding Offset and CenterHung Pivots Center Hung Pivot Installation Unlike offset pivots, they provide a symmetrical appearance when the door is closed. Install door portion of pivot per template. Install jamb portion of top pivot in frame per template. installation instructions heavy duty center hung top pivot for use with hd8062 1.1 install pivot 1.1.1 prepare door and header. view and download dormakaba ed250 installation instructions manual. Center Hung Pivot Installation.
From www.onwardhardware.com
Dorma Center Hung Pivot Onward Hardware Center Hung Pivot Installation view and download dormakaba ed250 installation instructions manual online. Install jamb portion of top pivot in frame per template. installation instructions heavy duty center hung top pivot for use with hd8062 1.1 install pivot 1.1.1 prepare door and header. 1.1.1 determine the clearance between the door and header and adjust the projection of the pivot pin, if. Offset. Center Hung Pivot Installation.