Elevator Installation Checklist . Lifting equipment must be inspected at intervals stated by the manufacturer or by the qualified competent person. Here, we’ll cover what items to include in your elevator maintenance. A comprehensive elevator inspection checklist can help ensure the safety of users and cut costs on lift repairs. Elevator installation is a multifaceted process that blends technology, design, safety, and functionality. Schindler 3300 traction elevator installation checklist. It lists requirements that must be completed.
from www.pdffiller.com
Lifting equipment must be inspected at intervals stated by the manufacturer or by the qualified competent person. Elevator installation is a multifaceted process that blends technology, design, safety, and functionality. It lists requirements that must be completed. A comprehensive elevator inspection checklist can help ensure the safety of users and cut costs on lift repairs. Here, we’ll cover what items to include in your elevator maintenance. Schindler 3300 traction elevator installation checklist.
Aerial Lift Inspection Form Fill Online, Printable, Fillable, Blank
Elevator Installation Checklist It lists requirements that must be completed. Lifting equipment must be inspected at intervals stated by the manufacturer or by the qualified competent person. A comprehensive elevator inspection checklist can help ensure the safety of users and cut costs on lift repairs. It lists requirements that must be completed. Schindler 3300 traction elevator installation checklist. Elevator installation is a multifaceted process that blends technology, design, safety, and functionality. Here, we’ll cover what items to include in your elevator maintenance.
From mungfali.com
Elevator Maintenance Checklist Fill Out And Sign Printable Pdf 74F Elevator Installation Checklist A comprehensive elevator inspection checklist can help ensure the safety of users and cut costs on lift repairs. Lifting equipment must be inspected at intervals stated by the manufacturer or by the qualified competent person. It lists requirements that must be completed. Here, we’ll cover what items to include in your elevator maintenance. Schindler 3300 traction elevator installation checklist. Elevator. Elevator Installation Checklist.
From www.scribd.com
AerialScissor Lift Checklist Elevator Technology & Engineering Elevator Installation Checklist Here, we’ll cover what items to include in your elevator maintenance. A comprehensive elevator inspection checklist can help ensure the safety of users and cut costs on lift repairs. Elevator installation is a multifaceted process that blends technology, design, safety, and functionality. Schindler 3300 traction elevator installation checklist. It lists requirements that must be completed. Lifting equipment must be inspected. Elevator Installation Checklist.
From www.scribd.com
Checklist Lift PDF Elevator Door Elevator Installation Checklist Lifting equipment must be inspected at intervals stated by the manufacturer or by the qualified competent person. It lists requirements that must be completed. A comprehensive elevator inspection checklist can help ensure the safety of users and cut costs on lift repairs. Here, we’ll cover what items to include in your elevator maintenance. Elevator installation is a multifaceted process that. Elevator Installation Checklist.
From www.templateroller.com
Nevada Contractor Pre Elevator Inspection Checklist Fill Out, Sign Elevator Installation Checklist Schindler 3300 traction elevator installation checklist. Here, we’ll cover what items to include in your elevator maintenance. Lifting equipment must be inspected at intervals stated by the manufacturer or by the qualified competent person. Elevator installation is a multifaceted process that blends technology, design, safety, and functionality. It lists requirements that must be completed. A comprehensive elevator inspection checklist can. Elevator Installation Checklist.
From www.signnow.com
Monthly Elevator Inspection Form Complete with ease airSlate SignNow Elevator Installation Checklist Elevator installation is a multifaceted process that blends technology, design, safety, and functionality. Here, we’ll cover what items to include in your elevator maintenance. Lifting equipment must be inspected at intervals stated by the manufacturer or by the qualified competent person. It lists requirements that must be completed. Schindler 3300 traction elevator installation checklist. A comprehensive elevator inspection checklist can. Elevator Installation Checklist.
From www.scribd.com
Elevator PM Checklist PDF Elevator Door Elevator Installation Checklist Here, we’ll cover what items to include in your elevator maintenance. A comprehensive elevator inspection checklist can help ensure the safety of users and cut costs on lift repairs. Lifting equipment must be inspected at intervals stated by the manufacturer or by the qualified competent person. It lists requirements that must be completed. Schindler 3300 traction elevator installation checklist. Elevator. Elevator Installation Checklist.
From www.scribd.com
DAILY ELEVATOR INSPECTION CHECKLIST PDF Elevator Installation Checklist Lifting equipment must be inspected at intervals stated by the manufacturer or by the qualified competent person. It lists requirements that must be completed. Here, we’ll cover what items to include in your elevator maintenance. Elevator installation is a multifaceted process that blends technology, design, safety, and functionality. Schindler 3300 traction elevator installation checklist. A comprehensive elevator inspection checklist can. Elevator Installation Checklist.
From www.xenia.team
Scissor Lift Inspection Checklist Xenia Templates Elevator Installation Checklist It lists requirements that must be completed. Elevator installation is a multifaceted process that blends technology, design, safety, and functionality. Here, we’ll cover what items to include in your elevator maintenance. Schindler 3300 traction elevator installation checklist. Lifting equipment must be inspected at intervals stated by the manufacturer or by the qualified competent person. A comprehensive elevator inspection checklist can. Elevator Installation Checklist.
From formspal.com
Elevator Inspection Checklist PDF Form FormsPal Elevator Installation Checklist Elevator installation is a multifaceted process that blends technology, design, safety, and functionality. It lists requirements that must be completed. Here, we’ll cover what items to include in your elevator maintenance. Schindler 3300 traction elevator installation checklist. Lifting equipment must be inspected at intervals stated by the manufacturer or by the qualified competent person. A comprehensive elevator inspection checklist can. Elevator Installation Checklist.
From www.elevators.com
Elevator Inspection Checklist Elevators Nationwide Lifts Elevator Installation Checklist It lists requirements that must be completed. A comprehensive elevator inspection checklist can help ensure the safety of users and cut costs on lift repairs. Lifting equipment must be inspected at intervals stated by the manufacturer or by the qualified competent person. Here, we’ll cover what items to include in your elevator maintenance. Schindler 3300 traction elevator installation checklist. Elevator. Elevator Installation Checklist.
From mungfali.com
Elevator Inspection Checklist Template Elevator Installation Checklist Elevator installation is a multifaceted process that blends technology, design, safety, and functionality. A comprehensive elevator inspection checklist can help ensure the safety of users and cut costs on lift repairs. Here, we’ll cover what items to include in your elevator maintenance. It lists requirements that must be completed. Schindler 3300 traction elevator installation checklist. Lifting equipment must be inspected. Elevator Installation Checklist.
From www.devicemagic.com
What to Include on Your Elevator Maintenance Checklist Device Magic Elevator Installation Checklist Schindler 3300 traction elevator installation checklist. It lists requirements that must be completed. Elevator installation is a multifaceted process that blends technology, design, safety, and functionality. Lifting equipment must be inspected at intervals stated by the manufacturer or by the qualified competent person. A comprehensive elevator inspection checklist can help ensure the safety of users and cut costs on lift. Elevator Installation Checklist.
From mungfali.com
Elevator Inspection Checklist Template Elevator Installation Checklist It lists requirements that must be completed. Here, we’ll cover what items to include in your elevator maintenance. Elevator installation is a multifaceted process that blends technology, design, safety, and functionality. Lifting equipment must be inspected at intervals stated by the manufacturer or by the qualified competent person. A comprehensive elevator inspection checklist can help ensure the safety of users. Elevator Installation Checklist.
From www.scribd.com
Hydraulic Elevator Installation Checklist Schindler 330A PDF Elevator Installation Checklist Lifting equipment must be inspected at intervals stated by the manufacturer or by the qualified competent person. Here, we’ll cover what items to include in your elevator maintenance. Schindler 3300 traction elevator installation checklist. Elevator installation is a multifaceted process that blends technology, design, safety, and functionality. It lists requirements that must be completed. A comprehensive elevator inspection checklist can. Elevator Installation Checklist.
From mungfali.com
Elevator Inspection Checklist Template Elevator Installation Checklist Here, we’ll cover what items to include in your elevator maintenance. Elevator installation is a multifaceted process that blends technology, design, safety, and functionality. Lifting equipment must be inspected at intervals stated by the manufacturer or by the qualified competent person. A comprehensive elevator inspection checklist can help ensure the safety of users and cut costs on lift repairs. Schindler. Elevator Installation Checklist.
From exceldownloads.com
[Free] Elevator Inspection Checklist Excel Template Elevator Installation Checklist Elevator installation is a multifaceted process that blends technology, design, safety, and functionality. Here, we’ll cover what items to include in your elevator maintenance. Schindler 3300 traction elevator installation checklist. A comprehensive elevator inspection checklist can help ensure the safety of users and cut costs on lift repairs. Lifting equipment must be inspected at intervals stated by the manufacturer or. Elevator Installation Checklist.
From pdfslide.net
OTIS LIFT PM Checklist Elevator Installation Checklist Elevator installation is a multifaceted process that blends technology, design, safety, and functionality. Here, we’ll cover what items to include in your elevator maintenance. Lifting equipment must be inspected at intervals stated by the manufacturer or by the qualified competent person. A comprehensive elevator inspection checklist can help ensure the safety of users and cut costs on lift repairs. Schindler. Elevator Installation Checklist.
From mavink.com
Elevator Inspection Checklist Elevator Installation Checklist It lists requirements that must be completed. A comprehensive elevator inspection checklist can help ensure the safety of users and cut costs on lift repairs. Here, we’ll cover what items to include in your elevator maintenance. Lifting equipment must be inspected at intervals stated by the manufacturer or by the qualified competent person. Schindler 3300 traction elevator installation checklist. Elevator. Elevator Installation Checklist.
From www.doforms.com
Elevator Inspection Checklist 19 Essential Checklist Items Elevator Installation Checklist Schindler 3300 traction elevator installation checklist. Elevator installation is a multifaceted process that blends technology, design, safety, and functionality. Lifting equipment must be inspected at intervals stated by the manufacturer or by the qualified competent person. A comprehensive elevator inspection checklist can help ensure the safety of users and cut costs on lift repairs. It lists requirements that must be. Elevator Installation Checklist.
From es.scribd.com
ElevatorInstallationChecklist en Es PDF Ascensor Bienes Elevator Installation Checklist A comprehensive elevator inspection checklist can help ensure the safety of users and cut costs on lift repairs. Schindler 3300 traction elevator installation checklist. It lists requirements that must be completed. Lifting equipment must be inspected at intervals stated by the manufacturer or by the qualified competent person. Elevator installation is a multifaceted process that blends technology, design, safety, and. Elevator Installation Checklist.
From safetyculture.com
Free Elevator Maintenance Checklists PDF SafetyCulture Elevator Installation Checklist Lifting equipment must be inspected at intervals stated by the manufacturer or by the qualified competent person. Here, we’ll cover what items to include in your elevator maintenance. Schindler 3300 traction elevator installation checklist. A comprehensive elevator inspection checklist can help ensure the safety of users and cut costs on lift repairs. Elevator installation is a multifaceted process that blends. Elevator Installation Checklist.
From www.desertcart.in
Buy Elevator Inspection Checklist Elevator Inspection Report Book Elevator Installation Checklist Here, we’ll cover what items to include in your elevator maintenance. Schindler 3300 traction elevator installation checklist. Elevator installation is a multifaceted process that blends technology, design, safety, and functionality. It lists requirements that must be completed. A comprehensive elevator inspection checklist can help ensure the safety of users and cut costs on lift repairs. Lifting equipment must be inspected. Elevator Installation Checklist.
From www.scribd.com
Elevator Inspection Check List 1 PDF Elevator Installation Checklist Lifting equipment must be inspected at intervals stated by the manufacturer or by the qualified competent person. It lists requirements that must be completed. A comprehensive elevator inspection checklist can help ensure the safety of users and cut costs on lift repairs. Schindler 3300 traction elevator installation checklist. Here, we’ll cover what items to include in your elevator maintenance. Elevator. Elevator Installation Checklist.
From www.pdffiller.com
Passenger Lift Inspection Checklist Pdf Fill Online, Printable Elevator Installation Checklist Elevator installation is a multifaceted process that blends technology, design, safety, and functionality. Here, we’ll cover what items to include in your elevator maintenance. It lists requirements that must be completed. Lifting equipment must be inspected at intervals stated by the manufacturer or by the qualified competent person. A comprehensive elevator inspection checklist can help ensure the safety of users. Elevator Installation Checklist.
From www.scribd.com
OTIS LIFT PM Checklist Elevator Mechanical Engineering Elevator Installation Checklist A comprehensive elevator inspection checklist can help ensure the safety of users and cut costs on lift repairs. Lifting equipment must be inspected at intervals stated by the manufacturer or by the qualified competent person. Here, we’ll cover what items to include in your elevator maintenance. It lists requirements that must be completed. Elevator installation is a multifaceted process that. Elevator Installation Checklist.
From mungfali.com
Elevator Maintenance Checklist Fill Out And Sign Printable Pdf 74F Elevator Installation Checklist Lifting equipment must be inspected at intervals stated by the manufacturer or by the qualified competent person. A comprehensive elevator inspection checklist can help ensure the safety of users and cut costs on lift repairs. Schindler 3300 traction elevator installation checklist. It lists requirements that must be completed. Here, we’ll cover what items to include in your elevator maintenance. Elevator. Elevator Installation Checklist.
From www.pdffiller.com
Aerial Lift Inspection Form Fill Online, Printable, Fillable, Blank Elevator Installation Checklist Lifting equipment must be inspected at intervals stated by the manufacturer or by the qualified competent person. It lists requirements that must be completed. A comprehensive elevator inspection checklist can help ensure the safety of users and cut costs on lift repairs. Here, we’ll cover what items to include in your elevator maintenance. Elevator installation is a multifaceted process that. Elevator Installation Checklist.
From www.atticoelevators.com
Checklist of Elevator Essentials for Residential buildings Elevator Installation Checklist Elevator installation is a multifaceted process that blends technology, design, safety, and functionality. Lifting equipment must be inspected at intervals stated by the manufacturer or by the qualified competent person. Here, we’ll cover what items to include in your elevator maintenance. Schindler 3300 traction elevator installation checklist. A comprehensive elevator inspection checklist can help ensure the safety of users and. Elevator Installation Checklist.
From www.pdffiller.com
Aerial Lift Inspection Form Fill Online, Printable, Fillable, Blank Elevator Installation Checklist A comprehensive elevator inspection checklist can help ensure the safety of users and cut costs on lift repairs. Lifting equipment must be inspected at intervals stated by the manufacturer or by the qualified competent person. Schindler 3300 traction elevator installation checklist. Here, we’ll cover what items to include in your elevator maintenance. Elevator installation is a multifaceted process that blends. Elevator Installation Checklist.
From www.scribd.com
Sample Pm Checklist Elevator Transmission (Mechanics) Elevator Installation Checklist A comprehensive elevator inspection checklist can help ensure the safety of users and cut costs on lift repairs. Elevator installation is a multifaceted process that blends technology, design, safety, and functionality. Here, we’ll cover what items to include in your elevator maintenance. Schindler 3300 traction elevator installation checklist. Lifting equipment must be inspected at intervals stated by the manufacturer or. Elevator Installation Checklist.
From mungfali.com
Elevator Inspection Checklist Template Elevator Installation Checklist Lifting equipment must be inspected at intervals stated by the manufacturer or by the qualified competent person. Elevator installation is a multifaceted process that blends technology, design, safety, and functionality. A comprehensive elevator inspection checklist can help ensure the safety of users and cut costs on lift repairs. Here, we’ll cover what items to include in your elevator maintenance. It. Elevator Installation Checklist.
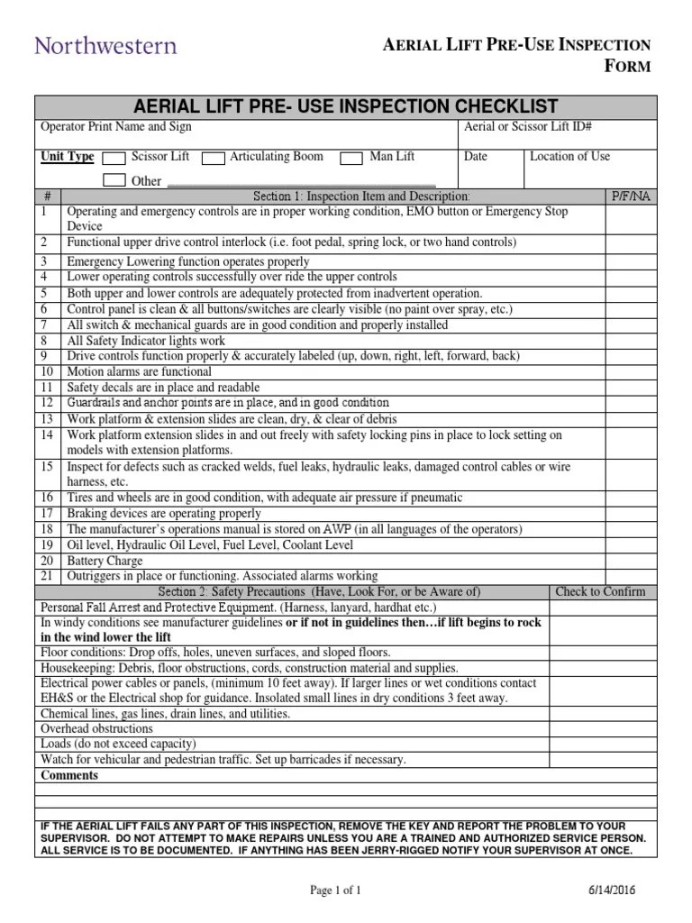
From www.scribd.com
Aerial Lift Pre Use Inspection Checklist Elevator Mechanical Elevator Installation Checklist Schindler 3300 traction elevator installation checklist. Here, we’ll cover what items to include in your elevator maintenance. Elevator installation is a multifaceted process that blends technology, design, safety, and functionality. It lists requirements that must be completed. A comprehensive elevator inspection checklist can help ensure the safety of users and cut costs on lift repairs. Lifting equipment must be inspected. Elevator Installation Checklist.
From www.templateroller.com
Nevada Contractor Pre Elevator Inspection Checklist Download Fillable Elevator Installation Checklist It lists requirements that must be completed. Schindler 3300 traction elevator installation checklist. Elevator installation is a multifaceted process that blends technology, design, safety, and functionality. A comprehensive elevator inspection checklist can help ensure the safety of users and cut costs on lift repairs. Here, we’ll cover what items to include in your elevator maintenance. Lifting equipment must be inspected. Elevator Installation Checklist.
From www.scribd.com
Elevator Pre Inspection Checklist PDF Elevator Building Engineering Elevator Installation Checklist Lifting equipment must be inspected at intervals stated by the manufacturer or by the qualified competent person. Elevator installation is a multifaceted process that blends technology, design, safety, and functionality. It lists requirements that must be completed. Here, we’ll cover what items to include in your elevator maintenance. A comprehensive elevator inspection checklist can help ensure the safety of users. Elevator Installation Checklist.
From issuu.com
Schindler 3300 traction elevator installation checklist by Elevator Installation Checklist Elevator installation is a multifaceted process that blends technology, design, safety, and functionality. Here, we’ll cover what items to include in your elevator maintenance. Schindler 3300 traction elevator installation checklist. Lifting equipment must be inspected at intervals stated by the manufacturer or by the qualified competent person. A comprehensive elevator inspection checklist can help ensure the safety of users and. Elevator Installation Checklist.