How To Calculate Material For Roof . So if you divide your answer. For a buffer, you might require 33 roof squares (a roof square is a 10×10 foot area). To get a 100% free roof quote, enter your zip code above and fill out a simple estimate request form on the next page. Find the square footage of the roof. The length (l) times the height (h) of a triangle is twice its area (a2). The roof shingle calculator takes these two values and uses them to. Input the width and the length of the roof (as presented in the illustration) in the correct fields. Calculate your roof’s size and estimate how many bundles of shingles, rolls of felt, and squares of roofing material you need for a new roof. Our calculator results show your roof area, material details and their cost per square foot, plus the total estimated cost of a new roof including materials and installation expense. 1 roof square = 100 square feet; The estimated price could be around $14,998,. Measure the length and width of each portion of the roof, multiply length by width for each.
from www.roofcalc.org
To get a 100% free roof quote, enter your zip code above and fill out a simple estimate request form on the next page. For a buffer, you might require 33 roof squares (a roof square is a 10×10 foot area). So if you divide your answer. 1 roof square = 100 square feet; Measure the length and width of each portion of the roof, multiply length by width for each. Find the square footage of the roof. The length (l) times the height (h) of a triangle is twice its area (a2). Calculate your roof’s size and estimate how many bundles of shingles, rolls of felt, and squares of roofing material you need for a new roof. Input the width and the length of the roof (as presented in the illustration) in the correct fields. The estimated price could be around $14,998,.
Metal Roof Cost Calculator Estimate Metal Roofing Prices
How To Calculate Material For Roof Find the square footage of the roof. Calculate your roof’s size and estimate how many bundles of shingles, rolls of felt, and squares of roofing material you need for a new roof. For a buffer, you might require 33 roof squares (a roof square is a 10×10 foot area). Find the square footage of the roof. Input the width and the length of the roof (as presented in the illustration) in the correct fields. The roof shingle calculator takes these two values and uses them to. Our calculator results show your roof area, material details and their cost per square foot, plus the total estimated cost of a new roof including materials and installation expense. 1 roof square = 100 square feet; Measure the length and width of each portion of the roof, multiply length by width for each. So if you divide your answer. The length (l) times the height (h) of a triangle is twice its area (a2). To get a 100% free roof quote, enter your zip code above and fill out a simple estimate request form on the next page. The estimated price could be around $14,998,.
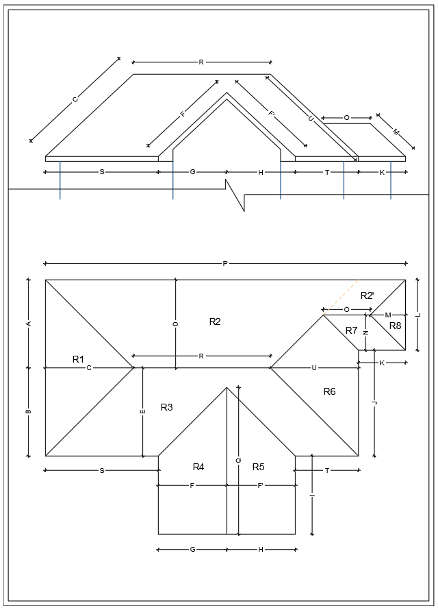
From www.hpdconsult.com
Roofing Materials How to Calculate Roofing Sheets needed Guide How To Calculate Material For Roof To get a 100% free roof quote, enter your zip code above and fill out a simple estimate request form on the next page. The roof shingle calculator takes these two values and uses them to. For a buffer, you might require 33 roof squares (a roof square is a 10×10 foot area). The length (l) times the height (h). How To Calculate Material For Roof.
From trentonroofing.com
How to Calculate Roofing Material for Your Home How To Calculate Material For Roof 1 roof square = 100 square feet; The estimated price could be around $14,998,. The length (l) times the height (h) of a triangle is twice its area (a2). To get a 100% free roof quote, enter your zip code above and fill out a simple estimate request form on the next page. Measure the length and width of each. How To Calculate Material For Roof.
From constructionfactz.blogspot.com
How To Practically Calculate The Quantity (m2) Of Roofing Sheet Required How To Calculate Material For Roof The estimated price could be around $14,998,. The length (l) times the height (h) of a triangle is twice its area (a2). Input the width and the length of the roof (as presented in the illustration) in the correct fields. To get a 100% free roof quote, enter your zip code above and fill out a simple estimate request form. How To Calculate Material For Roof.
From www.homedit.com
Roofing Calculator for Sloped Roof How To Calculate Material For Roof The estimated price could be around $14,998,. Input the width and the length of the roof (as presented in the illustration) in the correct fields. Calculate your roof’s size and estimate how many bundles of shingles, rolls of felt, and squares of roofing material you need for a new roof. So if you divide your answer. For a buffer, you. How To Calculate Material For Roof.
From judge.me
Roofer Knowledge Roofing Materials Anatomy Of A Roof Truss How To Calculate Material For Roof 1 roof square = 100 square feet; The roof shingle calculator takes these two values and uses them to. The estimated price could be around $14,998,. Our calculator results show your roof area, material details and their cost per square foot, plus the total estimated cost of a new roof including materials and installation expense. Input the width and the. How To Calculate Material For Roof.
From constructionfactz.blogspot.com
How To Practically Calculate The Quantity (m2) Of Roofing Sheet Required How To Calculate Material For Roof Calculate your roof’s size and estimate how many bundles of shingles, rolls of felt, and squares of roofing material you need for a new roof. For a buffer, you might require 33 roof squares (a roof square is a 10×10 foot area). So if you divide your answer. Measure the length and width of each portion of the roof, multiply. How To Calculate Material For Roof.
From freeroofestimatecolumbiascpataigi.blogspot.com
Free Roof Estimate Columbia Sc Calculate Roofing Materials How To Calculate Material For Roof Input the width and the length of the roof (as presented in the illustration) in the correct fields. So if you divide your answer. The estimated price could be around $14,998,. Calculate your roof’s size and estimate how many bundles of shingles, rolls of felt, and squares of roofing material you need for a new roof. Find the square footage. How To Calculate Material For Roof.
From www.quantity-takeoff.com
Roofing Estimate Sheet How to estimate roofing cost How To Calculate Material For Roof To get a 100% free roof quote, enter your zip code above and fill out a simple estimate request form on the next page. The estimated price could be around $14,998,. For a buffer, you might require 33 roof squares (a roof square is a 10×10 foot area). So if you divide your answer. The length (l) times the height. How To Calculate Material For Roof.
From myrooff.com
Hip Roof Calculator How To Calculate Material For Roof The roof shingle calculator takes these two values and uses them to. Find the square footage of the roof. Calculate your roof’s size and estimate how many bundles of shingles, rolls of felt, and squares of roofing material you need for a new roof. The estimated price could be around $14,998,. To get a 100% free roof quote, enter your. How To Calculate Material For Roof.
From www.lceted.com
Gypsum Board Partition Material Calculation Drywall Material How To Calculate Material For Roof Input the width and the length of the roof (as presented in the illustration) in the correct fields. The length (l) times the height (h) of a triangle is twice its area (a2). So if you divide your answer. Our calculator results show your roof area, material details and their cost per square foot, plus the total estimated cost of. How To Calculate Material For Roof.
From engineeringdiscoveries.com
Download Building Materials Cost Estimate Sheet Engineering Discoveries How To Calculate Material For Roof Measure the length and width of each portion of the roof, multiply length by width for each. 1 roof square = 100 square feet; Find the square footage of the roof. The roof shingle calculator takes these two values and uses them to. Input the width and the length of the roof (as presented in the illustration) in the correct. How To Calculate Material For Roof.
From roof.techinfus.com
Calculation of the roof of the house material, coatings, how to How To Calculate Material For Roof Calculate your roof’s size and estimate how many bundles of shingles, rolls of felt, and squares of roofing material you need for a new roof. So if you divide your answer. The length (l) times the height (h) of a triangle is twice its area (a2). Input the width and the length of the roof (as presented in the illustration). How To Calculate Material For Roof.
From blog.dandkmotorsports.com
Steel Truss Weight Calculator Blog Dandk How To Calculate Material For Roof The roof shingle calculator takes these two values and uses them to. 1 roof square = 100 square feet; The estimated price could be around $14,998,. The length (l) times the height (h) of a triangle is twice its area (a2). Calculate your roof’s size and estimate how many bundles of shingles, rolls of felt, and squares of roofing material. How To Calculate Material For Roof.
From portlandqualityroofing.com
Roof Size Calculator Portland Quality Roofing Inc How To Calculate Material For Roof Find the square footage of the roof. Our calculator results show your roof area, material details and their cost per square foot, plus the total estimated cost of a new roof including materials and installation expense. The roof shingle calculator takes these two values and uses them to. To get a 100% free roof quote, enter your zip code above. How To Calculate Material For Roof.
From www.louisvillehomesblog.com
Your Guide to Roofing Materials Louisville Homes Blog How To Calculate Material For Roof Our calculator results show your roof area, material details and their cost per square foot, plus the total estimated cost of a new roof including materials and installation expense. Measure the length and width of each portion of the roof, multiply length by width for each. To get a 100% free roof quote, enter your zip code above and fill. How To Calculate Material For Roof.
From www.coursehero.com
[Solved] Calculate the height of a leanto roof that has a slanted How To Calculate Material For Roof 1 roof square = 100 square feet; Calculate your roof’s size and estimate how many bundles of shingles, rolls of felt, and squares of roofing material you need for a new roof. The roof shingle calculator takes these two values and uses them to. Find the square footage of the roof. Measure the length and width of each portion of. How To Calculate Material For Roof.
From www.pinterest.jp
Account for roof pitch when calculating the roof dimensions, the chart How To Calculate Material For Roof The estimated price could be around $14,998,. Measure the length and width of each portion of the roof, multiply length by width for each. Input the width and the length of the roof (as presented in the illustration) in the correct fields. Find the square footage of the roof. Our calculator results show your roof area, material details and their. How To Calculate Material For Roof.
From tolunaydundar.com
Roofing Estimate Template ≡ Fill Out Printable PDF Forms Online How To Calculate Material For Roof The length (l) times the height (h) of a triangle is twice its area (a2). Our calculator results show your roof area, material details and their cost per square foot, plus the total estimated cost of a new roof including materials and installation expense. Measure the length and width of each portion of the roof, multiply length by width for. How To Calculate Material For Roof.
From www.youtube.com
How To Calculate Materials for Roofing YouTube How To Calculate Material For Roof The estimated price could be around $14,998,. Find the square footage of the roof. For a buffer, you might require 33 roof squares (a roof square is a 10×10 foot area). The length (l) times the height (h) of a triangle is twice its area (a2). 1 roof square = 100 square feet; To get a 100% free roof quote,. How To Calculate Material For Roof.
From canadianmetalroofing.ca
Calculating Materials Archives Metal Roofing Canada How To Calculate Material For Roof Input the width and the length of the roof (as presented in the illustration) in the correct fields. For a buffer, you might require 33 roof squares (a roof square is a 10×10 foot area). The roof shingle calculator takes these two values and uses them to. So if you divide your answer. The length (l) times the height (h). How To Calculate Material For Roof.
From www.nachi.org
Roof Area Calculations Inspection Gallery InterNACHI® How To Calculate Material For Roof To get a 100% free roof quote, enter your zip code above and fill out a simple estimate request form on the next page. Find the square footage of the roof. So if you divide your answer. Our calculator results show your roof area, material details and their cost per square foot, plus the total estimated cost of a new. How To Calculate Material For Roof.
From www.roofcalc.org
Metal Roof Cost Calculator Estimate Metal Roofing Prices How To Calculate Material For Roof The length (l) times the height (h) of a triangle is twice its area (a2). To get a 100% free roof quote, enter your zip code above and fill out a simple estimate request form on the next page. Our calculator results show your roof area, material details and their cost per square foot, plus the total estimated cost of. How To Calculate Material For Roof.
From www.youtube.com
How To Accurately Calculate the Number of Roofing Sheets YouTube How To Calculate Material For Roof The estimated price could be around $14,998,. Our calculator results show your roof area, material details and their cost per square foot, plus the total estimated cost of a new roof including materials and installation expense. Measure the length and width of each portion of the roof, multiply length by width for each. The roof shingle calculator takes these two. How To Calculate Material For Roof.
From guardianconstructors.com
Updated Method In Calculating the Number Of Roofing Sheets Needed For How To Calculate Material For Roof Input the width and the length of the roof (as presented in the illustration) in the correct fields. To get a 100% free roof quote, enter your zip code above and fill out a simple estimate request form on the next page. The length (l) times the height (h) of a triangle is twice its area (a2). Measure the length. How To Calculate Material For Roof.
From www.pinterest.com
Roofing Calculator Estimate Roof Costs in 2021 How To Calculate Material For Roof So if you divide your answer. Input the width and the length of the roof (as presented in the illustration) in the correct fields. Find the square footage of the roof. Calculate your roof’s size and estimate how many bundles of shingles, rolls of felt, and squares of roofing material you need for a new roof. Measure the length and. How To Calculate Material For Roof.
From www.pinterest.com
Roof calculator Roofing calculator, Pitched roof, Rafter How To Calculate Material For Roof The length (l) times the height (h) of a triangle is twice its area (a2). Measure the length and width of each portion of the roof, multiply length by width for each. To get a 100% free roof quote, enter your zip code above and fill out a simple estimate request form on the next page. Input the width and. How To Calculate Material For Roof.
From www.youtube.com
Jobber 6 Construction Calculator Solving Hip and Valley Roof Systems How To Calculate Material For Roof Calculate your roof’s size and estimate how many bundles of shingles, rolls of felt, and squares of roofing material you need for a new roof. Measure the length and width of each portion of the roof, multiply length by width for each. For a buffer, you might require 33 roof squares (a roof square is a 10×10 foot area). Find. How To Calculate Material For Roof.
From www.roofingcalculator.org
Roof Pitch Calculator How To Calculate Material For Roof So if you divide your answer. Find the square footage of the roof. Our calculator results show your roof area, material details and their cost per square foot, plus the total estimated cost of a new roof including materials and installation expense. To get a 100% free roof quote, enter your zip code above and fill out a simple estimate. How To Calculate Material For Roof.
From www.pinterest.com
Roofing Estimate Templates Printable Estimate template, Roofing How To Calculate Material For Roof 1 roof square = 100 square feet; To get a 100% free roof quote, enter your zip code above and fill out a simple estimate request form on the next page. Input the width and the length of the roof (as presented in the illustration) in the correct fields. The length (l) times the height (h) of a triangle is. How To Calculate Material For Roof.
From www.roofingcalc.com
Roofing Shingles Calculator Estimate Roofing Materials and Roof Costs How To Calculate Material For Roof So if you divide your answer. For a buffer, you might require 33 roof squares (a roof square is a 10×10 foot area). The length (l) times the height (h) of a triangle is twice its area (a2). The estimated price could be around $14,998,. Our calculator results show your roof area, material details and their cost per square foot,. How To Calculate Material For Roof.
From www.pinterest.com
Roof Calculator With this price calculator you can calculate materials How To Calculate Material For Roof Calculate your roof’s size and estimate how many bundles of shingles, rolls of felt, and squares of roofing material you need for a new roof. Our calculator results show your roof area, material details and their cost per square foot, plus the total estimated cost of a new roof including materials and installation expense. Input the width and the length. How To Calculate Material For Roof.
From www.bossupsolutions.com
StepbyStep Guide Building a Roof and Calculating Materials How To Calculate Material For Roof Our calculator results show your roof area, material details and their cost per square foot, plus the total estimated cost of a new roof including materials and installation expense. Calculate your roof’s size and estimate how many bundles of shingles, rolls of felt, and squares of roofing material you need for a new roof. The estimated price could be around. How To Calculate Material For Roof.
From www.youtube.com
ROOF FRAMING CALCULATIONS YouTube How To Calculate Material For Roof Our calculator results show your roof area, material details and their cost per square foot, plus the total estimated cost of a new roof including materials and installation expense. The roof shingle calculator takes these two values and uses them to. Measure the length and width of each portion of the roof, multiply length by width for each. The estimated. How To Calculate Material For Roof.
From giooirgoe.blob.core.windows.net
Is Roof Square Footage Same As House at Fern Walton blog How To Calculate Material For Roof Find the square footage of the roof. To get a 100% free roof quote, enter your zip code above and fill out a simple estimate request form on the next page. For a buffer, you might require 33 roof squares (a roof square is a 10×10 foot area). So if you divide your answer. Our calculator results show your roof. How To Calculate Material For Roof.
From www.artofit.org
Reinforcement detailing of isolated footing Artofit How To Calculate Material For Roof Measure the length and width of each portion of the roof, multiply length by width for each. The estimated price could be around $14,998,. For a buffer, you might require 33 roof squares (a roof square is a 10×10 foot area). 1 roof square = 100 square feet; The length (l) times the height (h) of a triangle is twice. How To Calculate Material For Roof.