Houseboat For Sale Surbiton . Find house boats for sale in. Houseboat for sale in portsmouth road, surbiton kt6 from absolute homes. Visit primelocation.com for property details Browse the luxury house boats being offered by both professional brokers and individuals on boats and outboards today. 1 bed houseboat for sale in portsmouth road, surbiton kt6, selling for £125,000 from water side residential. Visit primelocation.com for property details Houseboat for sale in portsmouth road, surbiton kt6 from water side residential. Search properties to buy from leading estate agents. We currently have a stunning. Residential moorings | stewart marine and trading co ltd | surbiton. Marketed by absolute homes, staines See property details on zoopla or. Search properties to buy from leading. Widebeam 60x12'6 with residential mooring for sale. 1 bedroom house boat for sale in portsmouth road, surbiton, surrey, kt6 for £125,000.
from boats.waa2.com
Search properties to buy from leading estate agents. 1 bedroom house boat for sale in portsmouth road, surbiton, surrey, kt6 for £125,000. Visit primelocation.com for property details Browse the luxury house boats being offered by both professional brokers and individuals on boats and outboards today. See property details on zoopla or. We currently have a stunning. Find house boats for sale in. Residential moorings | stewart marine and trading co ltd | surbiton. Widebeam 60x12'6 with residential mooring for sale. Visit primelocation.com for property details
12m Custom Houseboat Luxury Floating Waterfront Apartment Boat For Sale
Houseboat For Sale Surbiton Residential moorings | stewart marine and trading co ltd | surbiton. Browse the luxury house boats being offered by both professional brokers and individuals on boats and outboards today. Widebeam 60x12'6 with residential mooring for sale. See property details on zoopla or. Search properties to buy from leading. Search properties to buy from leading estate agents. 1 bedroom house boat for sale in portsmouth road, surbiton, surrey, kt6 for £125,000. Find house boats for sale in. 1 bed houseboat for sale in portsmouth road, surbiton kt6, selling for £125,000 from water side residential. Residential moorings | stewart marine and trading co ltd | surbiton. We currently have a stunning. Marketed by absolute homes, staines Visit primelocation.com for property details Houseboat for sale in portsmouth road, surbiton kt6 from water side residential. Houseboat for sale in portsmouth road, surbiton kt6 from absolute homes. Visit primelocation.com for property details
From www.getsurrey.co.uk
Houseboat opposite Bushy Park and Hampton Court Palace on sale for £ Houseboat For Sale Surbiton Houseboat for sale in portsmouth road, surbiton kt6 from water side residential. Marketed by absolute homes, staines Search properties to buy from leading estate agents. 1 bedroom house boat for sale in portsmouth road, surbiton, surrey, kt6 for £125,000. Visit primelocation.com for property details See property details on zoopla or. Find house boats for sale in. We currently have a. Houseboat For Sale Surbiton.
From www.smartmarineguide.com
Houseboats for sale in North Carolina Houseboat For Sale Surbiton 1 bed houseboat for sale in portsmouth road, surbiton kt6, selling for £125,000 from water side residential. We currently have a stunning. Residential moorings | stewart marine and trading co ltd | surbiton. Visit primelocation.com for property details See property details on zoopla or. Browse the luxury house boats being offered by both professional brokers and individuals on boats and. Houseboat For Sale Surbiton.
From bluetechwaterfrontsolutions.co.uk
Waterlodge Houseboats Bluetech Waterfront Solutions Limited Houseboat For Sale Surbiton Houseboat for sale in portsmouth road, surbiton kt6 from water side residential. Find house boats for sale in. Browse the luxury house boats being offered by both professional brokers and individuals on boats and outboards today. Widebeam 60x12'6 with residential mooring for sale. 1 bed houseboat for sale in portsmouth road, surbiton kt6, selling for £125,000 from water side residential.. Houseboat For Sale Surbiton.
From www.onthemarket.com
Portsmouth Road, Surbiton, KT6 1 bed houseboat £125,000 Houseboat For Sale Surbiton We currently have a stunning. Houseboat for sale in portsmouth road, surbiton kt6 from water side residential. 1 bedroom house boat for sale in portsmouth road, surbiton, surrey, kt6 for £125,000. Visit primelocation.com for property details Browse the luxury house boats being offered by both professional brokers and individuals on boats and outboards today. Find house boats for sale in.. Houseboat For Sale Surbiton.
From dailyboats.com
1968 Seagoing Houseboat for sale. View price, photos and Buy 1968 Houseboat For Sale Surbiton Visit primelocation.com for property details Marketed by absolute homes, staines Visit primelocation.com for property details Search properties to buy from leading estate agents. Residential moorings | stewart marine and trading co ltd | surbiton. We currently have a stunning. 1 bedroom house boat for sale in portsmouth road, surbiton, surrey, kt6 for £125,000. Find house boats for sale in. 1. Houseboat For Sale Surbiton.
From boats-fs.com
Houseboat by STARDUST for sale Houseboat For Sale Surbiton Houseboat for sale in portsmouth road, surbiton kt6 from absolute homes. Houseboat for sale in portsmouth road, surbiton kt6 from water side residential. See property details on zoopla or. Residential moorings | stewart marine and trading co ltd | surbiton. 1 bed houseboat for sale in portsmouth road, surbiton kt6, selling for £125,000 from water side residential. Search properties to. Houseboat For Sale Surbiton.
From oldhousesunder50k.com
FSBO 1940 River Queen 40' Houseboat For Sale Under 24K Sold Houseboat For Sale Surbiton Houseboat for sale in portsmouth road, surbiton kt6 from water side residential. Widebeam 60x12'6 with residential mooring for sale. Browse the luxury house boats being offered by both professional brokers and individuals on boats and outboards today. Search properties to buy from leading estate agents. Residential moorings | stewart marine and trading co ltd | surbiton. Find house boats for. Houseboat For Sale Surbiton.
From www.yachtworld.co.uk
1994 Houseboat HOUSEBOAT House for sale YachtWorld Houseboat For Sale Surbiton Visit primelocation.com for property details Visit primelocation.com for property details Marketed by absolute homes, staines Search properties to buy from leading estate agents. Search properties to buy from leading. Houseboat for sale in portsmouth road, surbiton kt6 from water side residential. Residential moorings | stewart marine and trading co ltd | surbiton. 1 bedroom house boat for sale in portsmouth. Houseboat For Sale Surbiton.
From www.youtube.com
36ft Narrowboat canal river liveaboard houseboat For Sale £13,950 YouTube Houseboat For Sale Surbiton Marketed by absolute homes, staines 1 bed houseboat for sale in portsmouth road, surbiton kt6, selling for £125,000 from water side residential. Houseboat for sale in portsmouth road, surbiton kt6 from absolute homes. See property details on zoopla or. Search properties to buy from leading estate agents. 1 bedroom house boat for sale in portsmouth road, surbiton, surrey, kt6 for. Houseboat For Sale Surbiton.
From www.dailymail.co.uk
Six houseboats for sale starting from £30,000 Daily Mail Online Houseboat For Sale Surbiton 1 bed houseboat for sale in portsmouth road, surbiton kt6, selling for £125,000 from water side residential. Search properties to buy from leading estate agents. Visit primelocation.com for property details Houseboat for sale in portsmouth road, surbiton kt6 from water side residential. Widebeam 60x12'6 with residential mooring for sale. Visit primelocation.com for property details Marketed by absolute homes, staines Houseboat. Houseboat For Sale Surbiton.
From www.botentekoop.com
Used 1963 Houseboat 65 Strasbourg, 67 BasRhin 105,000 € 67 Bas Houseboat For Sale Surbiton Search properties to buy from leading estate agents. Residential moorings | stewart marine and trading co ltd | surbiton. Browse the luxury house boats being offered by both professional brokers and individuals on boats and outboards today. See property details on zoopla or. Widebeam 60x12'6 with residential mooring for sale. 1 bedroom house boat for sale in portsmouth road, surbiton,. Houseboat For Sale Surbiton.
From www.boattrader.com
New 2005 Horizon 18x88 Houseboat, 37922 Knoxville Boat Trader Houseboat For Sale Surbiton Visit primelocation.com for property details Search properties to buy from leading estate agents. Find house boats for sale in. See property details on zoopla or. Houseboat for sale in portsmouth road, surbiton kt6 from absolute homes. Marketed by absolute homes, staines Visit primelocation.com for property details Browse the luxury house boats being offered by both professional brokers and individuals on. Houseboat For Sale Surbiton.
From www.boatsonline.com.au
Custom House Boats Boats Online for Sale Steel Boats Online Houseboat For Sale Surbiton Houseboat for sale in portsmouth road, surbiton kt6 from water side residential. We currently have a stunning. Residential moorings | stewart marine and trading co ltd | surbiton. Widebeam 60x12'6 with residential mooring for sale. Search properties to buy from leading. Marketed by absolute homes, staines 1 bed houseboat for sale in portsmouth road, surbiton kt6, selling for £125,000 from. Houseboat For Sale Surbiton.
From www.seattlemet.com
This Lake Union Houseboat Has a Walkin Closet and a Macklemore Video Houseboat For Sale Surbiton Browse the luxury house boats being offered by both professional brokers and individuals on boats and outboards today. See property details on zoopla or. Widebeam 60x12'6 with residential mooring for sale. Visit primelocation.com for property details Houseboat for sale in portsmouth road, surbiton kt6 from absolute homes. Residential moorings | stewart marine and trading co ltd | surbiton. Houseboat for. Houseboat For Sale Surbiton.
From www.powerboatlistings.com
1989 Hilburn 14X60 Houseboat powerboat for sale in Houseboat For Sale Surbiton Find house boats for sale in. Search properties to buy from leading estate agents. Residential moorings | stewart marine and trading co ltd | surbiton. Visit primelocation.com for property details 1 bedroom house boat for sale in portsmouth road, surbiton, surrey, kt6 for £125,000. Visit primelocation.com for property details Marketed by absolute homes, staines Browse the luxury house boats being. Houseboat For Sale Surbiton.
From www.trulia.com
6 Houseboats For Sale Right Now Life At Home Trulia Blog Houseboat For Sale Surbiton Visit primelocation.com for property details See property details on zoopla or. Search properties to buy from leading. Visit primelocation.com for property details Residential moorings | stewart marine and trading co ltd | surbiton. Browse the luxury house boats being offered by both professional brokers and individuals on boats and outboards today. 1 bedroom house boat for sale in portsmouth road,. Houseboat For Sale Surbiton.
From boats-from.co.uk
Bespoke Widebeam Houseboat for sale from United Kingdom Houseboat For Sale Surbiton Widebeam 60x12'6 with residential mooring for sale. See property details on zoopla or. We currently have a stunning. Browse the luxury house boats being offered by both professional brokers and individuals on boats and outboards today. Find house boats for sale in. Search properties to buy from leading estate agents. Residential moorings | stewart marine and trading co ltd |. Houseboat For Sale Surbiton.
From www.boatsonline.com.au
Barbaralane House Boats Boats Online for Sale Steel Boats Online Houseboat For Sale Surbiton Find house boats for sale in. Houseboat for sale in portsmouth road, surbiton kt6 from water side residential. Visit primelocation.com for property details Browse the luxury house boats being offered by both professional brokers and individuals on boats and outboards today. 1 bedroom house boat for sale in portsmouth road, surbiton, surrey, kt6 for £125,000. Search properties to buy from. Houseboat For Sale Surbiton.
From oldhousesunder50k.com
Sold c.1967 Stardust Houseboat For Sale in Norris, TN Under 8K Houseboat For Sale Surbiton Search properties to buy from leading estate agents. Residential moorings | stewart marine and trading co ltd | surbiton. Visit primelocation.com for property details 1 bed houseboat for sale in portsmouth road, surbiton kt6, selling for £125,000 from water side residential. Houseboat for sale in portsmouth road, surbiton kt6 from water side residential. Browse the luxury house boats being offered. Houseboat For Sale Surbiton.
From caloundrahouseboats.au
Caloundra Houseboats Houseboat For Sale Surbiton See property details on zoopla or. Widebeam 60x12'6 with residential mooring for sale. We currently have a stunning. Houseboat for sale in portsmouth road, surbiton kt6 from water side residential. Residential moorings | stewart marine and trading co ltd | surbiton. Search properties to buy from leading estate agents. Houseboat for sale in portsmouth road, surbiton kt6 from absolute homes.. Houseboat For Sale Surbiton.
From www.popsells.com
Sold Myacht 3512 Boat in Hallandale Beach, FL 333301 Pop Sells Houseboat For Sale Surbiton Find house boats for sale in. Search properties to buy from leading. Visit primelocation.com for property details Houseboat for sale in portsmouth road, surbiton kt6 from absolute homes. Search properties to buy from leading estate agents. Browse the luxury house boats being offered by both professional brokers and individuals on boats and outboards today. We currently have a stunning. Visit. Houseboat For Sale Surbiton.
From boats-from.co.uk
Widebeam Narrowboat Barge Houseboat Liveaboard for sale from United Kingdom Houseboat For Sale Surbiton Marketed by absolute homes, staines Browse the luxury house boats being offered by both professional brokers and individuals on boats and outboards today. Houseboat for sale in portsmouth road, surbiton kt6 from absolute homes. Houseboat for sale in portsmouth road, surbiton kt6 from water side residential. 1 bed houseboat for sale in portsmouth road, surbiton kt6, selling for £125,000 from. Houseboat For Sale Surbiton.
From www.getsurrey.co.uk
Houseboat opposite Bushy Park and Hampton Court Palace on sale for £ Houseboat For Sale Surbiton Marketed by absolute homes, staines Houseboat for sale in portsmouth road, surbiton kt6 from water side residential. Houseboat for sale in portsmouth road, surbiton kt6 from absolute homes. Find house boats for sale in. Search properties to buy from leading estate agents. Browse the luxury house boats being offered by both professional brokers and individuals on boats and outboards today.. Houseboat For Sale Surbiton.
From www.waterways-boats.com
1935 Barge Houseboat Mulberry For Sale € Waterways Boats Houseboat For Sale Surbiton We currently have a stunning. 1 bedroom house boat for sale in portsmouth road, surbiton, surrey, kt6 for £125,000. Marketed by absolute homes, staines Browse the luxury house boats being offered by both professional brokers and individuals on boats and outboards today. Find house boats for sale in. 1 bed houseboat for sale in portsmouth road, surbiton kt6, selling for. Houseboat For Sale Surbiton.
From www.knightfrank.co.uk
house for sale in Lower Sand Hills, Long Ditton, Surbiton, Surrey, KT6 Houseboat For Sale Surbiton 1 bedroom house boat for sale in portsmouth road, surbiton, surrey, kt6 for £125,000. Widebeam 60x12'6 with residential mooring for sale. Houseboat for sale in portsmouth road, surbiton kt6 from water side residential. Marketed by absolute homes, staines Visit primelocation.com for property details Search properties to buy from leading estate agents. Browse the luxury house boats being offered by both. Houseboat For Sale Surbiton.
From www.yachtworld.com
2023 Waterlodge Modern 11 House for sale YachtWorld Houseboat For Sale Surbiton Find house boats for sale in. Houseboat for sale in portsmouth road, surbiton kt6 from water side residential. Browse the luxury house boats being offered by both professional brokers and individuals on boats and outboards today. We currently have a stunning. Marketed by absolute homes, staines 1 bed houseboat for sale in portsmouth road, surbiton kt6, selling for £125,000 from. Houseboat For Sale Surbiton.
From www.zoopla.co.uk
1 bed houseboat for sale in Portsmouth Road, Surbiton KT6, £125,000 Houseboat For Sale Surbiton Marketed by absolute homes, staines 1 bed houseboat for sale in portsmouth road, surbiton kt6, selling for £125,000 from water side residential. Visit primelocation.com for property details Residential moorings | stewart marine and trading co ltd | surbiton. Search properties to buy from leading. Find house boats for sale in. Widebeam 60x12'6 with residential mooring for sale. We currently have. Houseboat For Sale Surbiton.
From dailyboats.com
La Mare Houseboats Apartboat for sale. View price, photos and Buy La Houseboat For Sale Surbiton Visit primelocation.com for property details Houseboat for sale in portsmouth road, surbiton kt6 from absolute homes. Browse the luxury house boats being offered by both professional brokers and individuals on boats and outboards today. Find house boats for sale in. Widebeam 60x12'6 with residential mooring for sale. See property details on zoopla or. Search properties to buy from leading. We. Houseboat For Sale Surbiton.
From oldhousesunder50k.com
houseboats Archives Old Houses Under 50K and Beyond Houseboat For Sale Surbiton Browse the luxury house boats being offered by both professional brokers and individuals on boats and outboards today. Widebeam 60x12'6 with residential mooring for sale. Visit primelocation.com for property details 1 bed houseboat for sale in portsmouth road, surbiton kt6, selling for £125,000 from water side residential. We currently have a stunning. Houseboat for sale in portsmouth road, surbiton kt6. Houseboat For Sale Surbiton.
From www.boatsonline.com.au
Homecruiser 40 House Boats Boats Online for Sale Fibreglass/grp Houseboat For Sale Surbiton Find house boats for sale in. Visit primelocation.com for property details 1 bedroom house boat for sale in portsmouth road, surbiton, surrey, kt6 for £125,000. Visit primelocation.com for property details Browse the luxury house boats being offered by both professional brokers and individuals on boats and outboards today. Marketed by absolute homes, staines Houseboat for sale in portsmouth road, surbiton. Houseboat For Sale Surbiton.
From boats.waa2.com
12m Custom Houseboat Luxury Floating Waterfront Apartment Boat For Sale Houseboat For Sale Surbiton Houseboat for sale in portsmouth road, surbiton kt6 from water side residential. Houseboat for sale in portsmouth road, surbiton kt6 from absolute homes. Find house boats for sale in. Visit primelocation.com for property details Visit primelocation.com for property details We currently have a stunning. 1 bed houseboat for sale in portsmouth road, surbiton kt6, selling for £125,000 from water side. Houseboat For Sale Surbiton.
From www.sailabrationhouseboats.com
Sailabration Houseboats Custom Houseboat Manufacturer Powell, Tn Houseboat For Sale Surbiton Visit primelocation.com for property details Browse the luxury house boats being offered by both professional brokers and individuals on boats and outboards today. Search properties to buy from leading estate agents. Visit primelocation.com for property details 1 bed houseboat for sale in portsmouth road, surbiton kt6, selling for £125,000 from water side residential. Houseboat for sale in portsmouth road, surbiton. Houseboat For Sale Surbiton.
From oldhousesunder50k.com
1961 37' Houseboat For Sale By Owner in Texas 28K Old Houses Under 50K Houseboat For Sale Surbiton See property details on zoopla or. Search properties to buy from leading. Visit primelocation.com for property details 1 bedroom house boat for sale in portsmouth road, surbiton, surrey, kt6 for £125,000. We currently have a stunning. Marketed by absolute homes, staines Houseboat for sale in portsmouth road, surbiton kt6 from water side residential. Houseboat for sale in portsmouth road, surbiton. Houseboat For Sale Surbiton.
From www.zoopla.co.uk
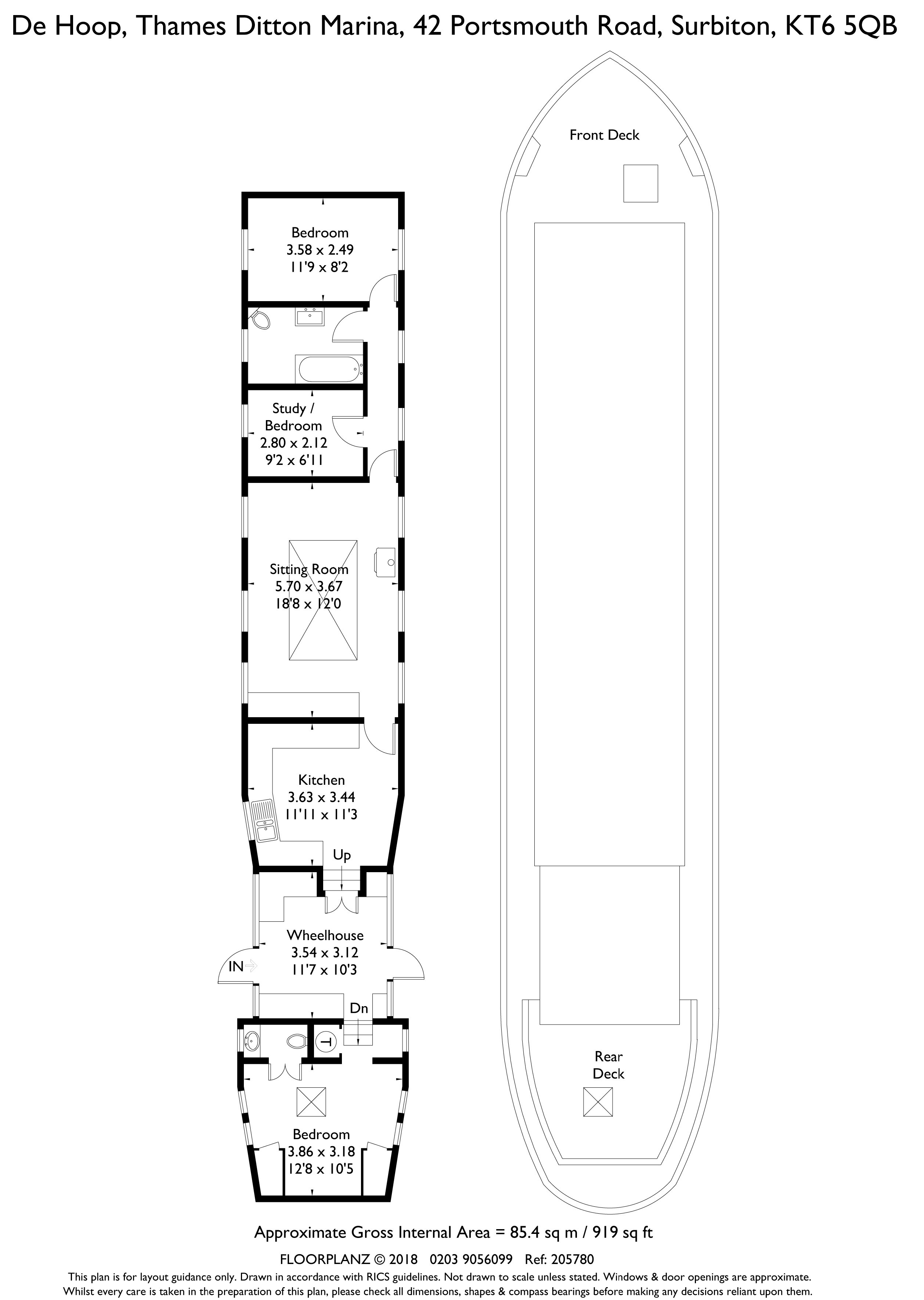
3 bed houseboat for sale in Thames Ditton Marina, Surbiton KT6 Zoopla Houseboat For Sale Surbiton We currently have a stunning. Residential moorings | stewart marine and trading co ltd | surbiton. 1 bed houseboat for sale in portsmouth road, surbiton kt6, selling for £125,000 from water side residential. Visit primelocation.com for property details See property details on zoopla or. Marketed by absolute homes, staines Widebeam 60x12'6 with residential mooring for sale. Houseboat for sale in. Houseboat For Sale Surbiton.
From www.yachtworld.co.uk
Houseboat Thames Lighter Barge Narrow Houseboat for sale YachtWorld Houseboat For Sale Surbiton 1 bed houseboat for sale in portsmouth road, surbiton kt6, selling for £125,000 from water side residential. Houseboat for sale in portsmouth road, surbiton kt6 from water side residential. Visit primelocation.com for property details Search properties to buy from leading estate agents. Browse the luxury house boats being offered by both professional brokers and individuals on boats and outboards today.. Houseboat For Sale Surbiton.