Tdlr Property Tax Consultant Renewal . further information regarding licensing, registration, education and examination requirements for property tax. this 12 hour online course meets all tdlr requirements for property tax consultants to renew their license in texas. property tax consultants with registrations that expire on or after may 1, 2021, must complete 24 hours of continuing education. this course meets all tdlr requirements for your property tax consultants license renewal. if you are requesting a change of contact information please use the online form at. Search licensees by license type. this texas department of licensing and regulation (tdlr) approved course satisfies all twelve mandatory. licensing & exam information.
from www.pdffiller.com
if you are requesting a change of contact information please use the online form at. this texas department of licensing and regulation (tdlr) approved course satisfies all twelve mandatory. property tax consultants with registrations that expire on or after may 1, 2021, must complete 24 hours of continuing education. Search licensees by license type. further information regarding licensing, registration, education and examination requirements for property tax. this course meets all tdlr requirements for your property tax consultants license renewal. this 12 hour online course meets all tdlr requirements for property tax consultants to renew their license in texas. licensing & exam information.
20212024 Form TX TDLR BAR016 Fill Online, Printable, Fillable, Blank
Tdlr Property Tax Consultant Renewal property tax consultants with registrations that expire on or after may 1, 2021, must complete 24 hours of continuing education. this texas department of licensing and regulation (tdlr) approved course satisfies all twelve mandatory. Search licensees by license type. this course meets all tdlr requirements for your property tax consultants license renewal. licensing & exam information. this 12 hour online course meets all tdlr requirements for property tax consultants to renew their license in texas. property tax consultants with registrations that expire on or after may 1, 2021, must complete 24 hours of continuing education. further information regarding licensing, registration, education and examination requirements for property tax. if you are requesting a change of contact information please use the online form at.
From www.pdffiller.com
20172020 Form TX TDLR COS011 Fill Online, Printable, Fillable, Blank Tdlr Property Tax Consultant Renewal this texas department of licensing and regulation (tdlr) approved course satisfies all twelve mandatory. this 12 hour online course meets all tdlr requirements for property tax consultants to renew their license in texas. this course meets all tdlr requirements for your property tax consultants license renewal. further information regarding licensing, registration, education and examination requirements for. Tdlr Property Tax Consultant Renewal.
From www.templateroller.com
TDLR Form IHB059N Fill Out, Sign Online and Download Fillable PDF Tdlr Property Tax Consultant Renewal further information regarding licensing, registration, education and examination requirements for property tax. Search licensees by license type. if you are requesting a change of contact information please use the online form at. this course meets all tdlr requirements for your property tax consultants license renewal. this texas department of licensing and regulation (tdlr) approved course satisfies. Tdlr Property Tax Consultant Renewal.
From www.dochub.com
Tdlr mini salon license renewal Fill out & sign online DocHub Tdlr Property Tax Consultant Renewal this texas department of licensing and regulation (tdlr) approved course satisfies all twelve mandatory. this 12 hour online course meets all tdlr requirements for property tax consultants to renew their license in texas. further information regarding licensing, registration, education and examination requirements for property tax. this course meets all tdlr requirements for your property tax consultants. Tdlr Property Tax Consultant Renewal.
From www.templateroller.com
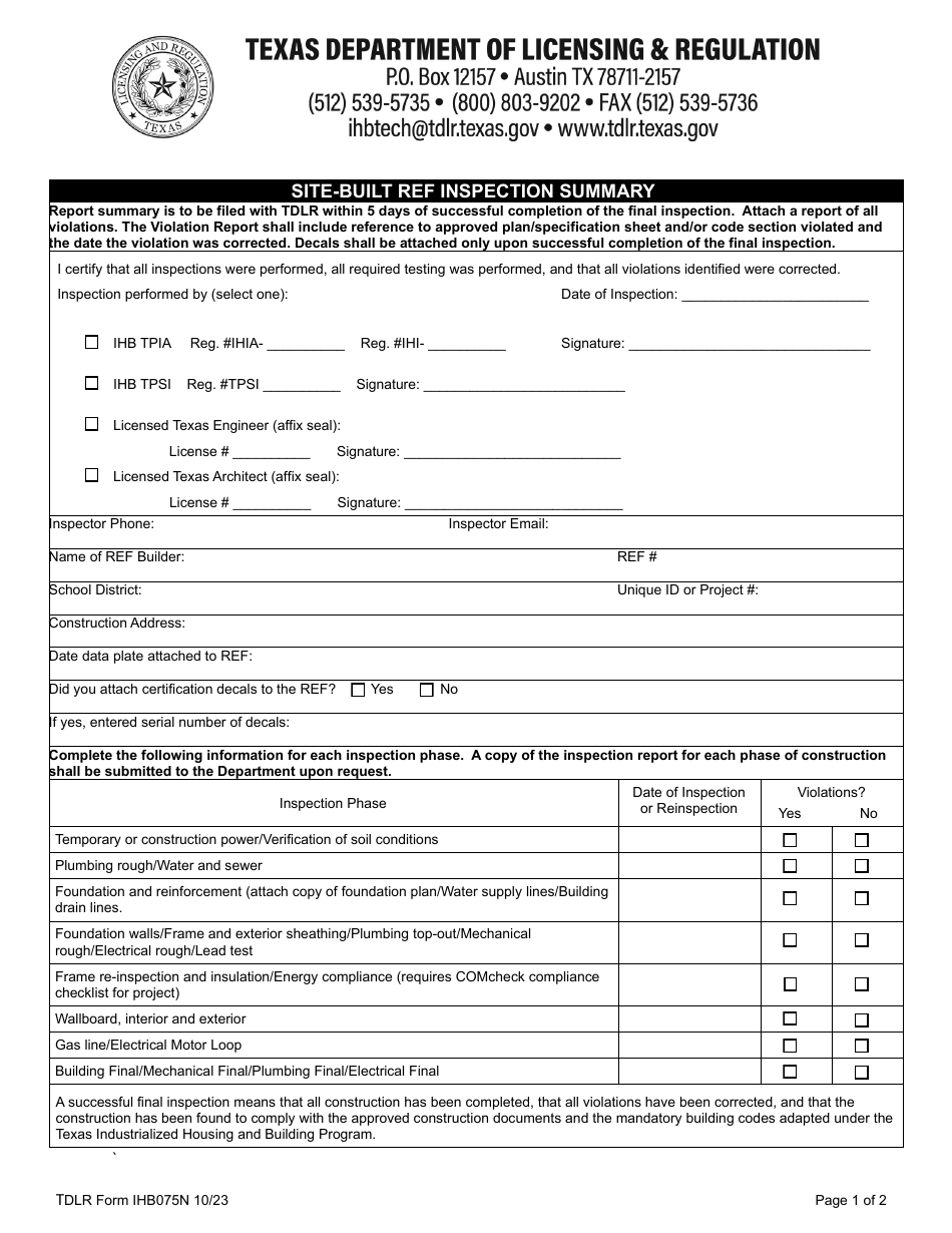
TDLR Form IHB075N Fill Out, Sign Online and Download Fillable PDF Tdlr Property Tax Consultant Renewal this texas department of licensing and regulation (tdlr) approved course satisfies all twelve mandatory. licensing & exam information. if you are requesting a change of contact information please use the online form at. further information regarding licensing, registration, education and examination requirements for property tax. this 12 hour online course meets all tdlr requirements for. Tdlr Property Tax Consultant Renewal.
From www.templateroller.com
TDLR Form IHB150N Fill Out, Sign Online and Download Fillable PDF Tdlr Property Tax Consultant Renewal this texas department of licensing and regulation (tdlr) approved course satisfies all twelve mandatory. this course meets all tdlr requirements for your property tax consultants license renewal. property tax consultants with registrations that expire on or after may 1, 2021, must complete 24 hours of continuing education. this 12 hour online course meets all tdlr requirements. Tdlr Property Tax Consultant Renewal.
From issuu.com
TDLR Agency At A Glance by Texas Department of Licensing & Regulation Tdlr Property Tax Consultant Renewal licensing & exam information. this texas department of licensing and regulation (tdlr) approved course satisfies all twelve mandatory. Search licensees by license type. if you are requesting a change of contact information please use the online form at. this course meets all tdlr requirements for your property tax consultants license renewal. property tax consultants with. Tdlr Property Tax Consultant Renewal.
From 1stchoicecontinuingeducation.tumblr.com
1st Choice Continuing Education — TDLR License Renewal Online 4 Hours Tdlr Property Tax Consultant Renewal Search licensees by license type. this texas department of licensing and regulation (tdlr) approved course satisfies all twelve mandatory. further information regarding licensing, registration, education and examination requirements for property tax. if you are requesting a change of contact information please use the online form at. this 12 hour online course meets all tdlr requirements for. Tdlr Property Tax Consultant Renewal.
From 1stchoicecontinuingeducation.tumblr.com
1st Choice Continuing Education — TDLR License Renewal Online 4 Hours Tdlr Property Tax Consultant Renewal this texas department of licensing and regulation (tdlr) approved course satisfies all twelve mandatory. Search licensees by license type. this 12 hour online course meets all tdlr requirements for property tax consultants to renew their license in texas. property tax consultants with registrations that expire on or after may 1, 2021, must complete 24 hours of continuing. Tdlr Property Tax Consultant Renewal.
From texaslicenserenewalinstructions.blogspot.com
Renew Your Tow Operator License Online TDLR License Renewal Course Tdlr Property Tax Consultant Renewal licensing & exam information. this course meets all tdlr requirements for your property tax consultants license renewal. Search licensees by license type. property tax consultants with registrations that expire on or after may 1, 2021, must complete 24 hours of continuing education. further information regarding licensing, registration, education and examination requirements for property tax. if. Tdlr Property Tax Consultant Renewal.
From www.buildforce.com
How to Renew Your TDLR Buildforce Tdlr Property Tax Consultant Renewal further information regarding licensing, registration, education and examination requirements for property tax. Search licensees by license type. this 12 hour online course meets all tdlr requirements for property tax consultants to renew their license in texas. this texas department of licensing and regulation (tdlr) approved course satisfies all twelve mandatory. this course meets all tdlr requirements. Tdlr Property Tax Consultant Renewal.
From www.valentiam.com
Property Tax Consultants What Do They Deliver & How? Tdlr Property Tax Consultant Renewal this texas department of licensing and regulation (tdlr) approved course satisfies all twelve mandatory. property tax consultants with registrations that expire on or after may 1, 2021, must complete 24 hours of continuing education. Search licensees by license type. this course meets all tdlr requirements for your property tax consultants license renewal. if you are requesting. Tdlr Property Tax Consultant Renewal.
From exobgmxdk.blob.core.windows.net
Tax And Business Consultants at James Westberg blog Tdlr Property Tax Consultant Renewal further information regarding licensing, registration, education and examination requirements for property tax. if you are requesting a change of contact information please use the online form at. property tax consultants with registrations that expire on or after may 1, 2021, must complete 24 hours of continuing education. this 12 hour online course meets all tdlr requirements. Tdlr Property Tax Consultant Renewal.
From templatesowl.com
Blank Tdlr Contractors License Fill Out and Print PDFs Tdlr Property Tax Consultant Renewal licensing & exam information. if you are requesting a change of contact information please use the online form at. this course meets all tdlr requirements for your property tax consultants license renewal. further information regarding licensing, registration, education and examination requirements for property tax. property tax consultants with registrations that expire on or after may. Tdlr Property Tax Consultant Renewal.
From www.templateroller.com
TDLR Form DES132N Fill Out, Sign Online and Download Fillable PDF Tdlr Property Tax Consultant Renewal this texas department of licensing and regulation (tdlr) approved course satisfies all twelve mandatory. property tax consultants with registrations that expire on or after may 1, 2021, must complete 24 hours of continuing education. if you are requesting a change of contact information please use the online form at. this course meets all tdlr requirements for. Tdlr Property Tax Consultant Renewal.
From www.templateroller.com
TDLR Form LIC003 Fill Out, Sign Online and Download Fillable PDF Tdlr Property Tax Consultant Renewal this course meets all tdlr requirements for your property tax consultants license renewal. licensing & exam information. property tax consultants with registrations that expire on or after may 1, 2021, must complete 24 hours of continuing education. this 12 hour online course meets all tdlr requirements for property tax consultants to renew their license in texas.. Tdlr Property Tax Consultant Renewal.
From texaslicenserenewalinstructions.blogspot.com
Easily Renew Your TDLR License Online 1st Choice Continuing Education Tdlr Property Tax Consultant Renewal property tax consultants with registrations that expire on or after may 1, 2021, must complete 24 hours of continuing education. this course meets all tdlr requirements for your property tax consultants license renewal. if you are requesting a change of contact information please use the online form at. this 12 hour online course meets all tdlr. Tdlr Property Tax Consultant Renewal.
From www.facebook.com
Thai Driving License Ready TDLR by Doubleplus Bangkok Tdlr Property Tax Consultant Renewal property tax consultants with registrations that expire on or after may 1, 2021, must complete 24 hours of continuing education. this 12 hour online course meets all tdlr requirements for property tax consultants to renew their license in texas. further information regarding licensing, registration, education and examination requirements for property tax. this texas department of licensing. Tdlr Property Tax Consultant Renewal.
From 1stchoicecontinuingeducation.tumblr.com
1st Choice Continuing Education — TDLR License Renewal Online 4 Hours Tdlr Property Tax Consultant Renewal this texas department of licensing and regulation (tdlr) approved course satisfies all twelve mandatory. Search licensees by license type. further information regarding licensing, registration, education and examination requirements for property tax. property tax consultants with registrations that expire on or after may 1, 2021, must complete 24 hours of continuing education. this 12 hour online course. Tdlr Property Tax Consultant Renewal.
From 1stchoice-ce.com
Texas 24 HR Property Tax Consultant Online Renewal 磊 1st Choice CE Tdlr Property Tax Consultant Renewal this course meets all tdlr requirements for your property tax consultants license renewal. further information regarding licensing, registration, education and examination requirements for property tax. Search licensees by license type. licensing & exam information. property tax consultants with registrations that expire on or after may 1, 2021, must complete 24 hours of continuing education. this. Tdlr Property Tax Consultant Renewal.
From www.dochub.com
Tdlr electrical license renewal Fill out & sign online DocHub Tdlr Property Tax Consultant Renewal licensing & exam information. further information regarding licensing, registration, education and examination requirements for property tax. this texas department of licensing and regulation (tdlr) approved course satisfies all twelve mandatory. this 12 hour online course meets all tdlr requirements for property tax consultants to renew their license in texas. if you are requesting a change. Tdlr Property Tax Consultant Renewal.
From www.uslegalforms.com
TX TDLR Form COS003 20212022 Fill and Sign Printable Template Online Tdlr Property Tax Consultant Renewal property tax consultants with registrations that expire on or after may 1, 2021, must complete 24 hours of continuing education. this course meets all tdlr requirements for your property tax consultants license renewal. Search licensees by license type. this 12 hour online course meets all tdlr requirements for property tax consultants to renew their license in texas.. Tdlr Property Tax Consultant Renewal.
From www.pdffiller.com
20212024 Form TX TDLR BAR016 Fill Online, Printable, Fillable, Blank Tdlr Property Tax Consultant Renewal if you are requesting a change of contact information please use the online form at. this course meets all tdlr requirements for your property tax consultants license renewal. licensing & exam information. this texas department of licensing and regulation (tdlr) approved course satisfies all twelve mandatory. further information regarding licensing, registration, education and examination requirements. Tdlr Property Tax Consultant Renewal.
From www.usatoday.com
What is a tax consultant? Tdlr Property Tax Consultant Renewal this course meets all tdlr requirements for your property tax consultants license renewal. if you are requesting a change of contact information please use the online form at. this texas department of licensing and regulation (tdlr) approved course satisfies all twelve mandatory. this 12 hour online course meets all tdlr requirements for property tax consultants to. Tdlr Property Tax Consultant Renewal.
From 1stchoicecontinuingeducation.tumblr.com
1st Choice Continuing Education — TDLR License Renewal Online 4 Hours Tdlr Property Tax Consultant Renewal if you are requesting a change of contact information please use the online form at. this 12 hour online course meets all tdlr requirements for property tax consultants to renew their license in texas. further information regarding licensing, registration, education and examination requirements for property tax. property tax consultants with registrations that expire on or after. Tdlr Property Tax Consultant Renewal.
From imgpile.com
4 Hour TDLR License Renewal Online 1st Choice Continuing Education Tdlr Property Tax Consultant Renewal further information regarding licensing, registration, education and examination requirements for property tax. property tax consultants with registrations that expire on or after may 1, 2021, must complete 24 hours of continuing education. licensing & exam information. this texas department of licensing and regulation (tdlr) approved course satisfies all twelve mandatory. Search licensees by license type. . Tdlr Property Tax Consultant Renewal.
From 1stchoicecontinuingeducation.tumblr.com
1st Choice Continuing Education — TDLR License Renewal Online 4 Hours Tdlr Property Tax Consultant Renewal if you are requesting a change of contact information please use the online form at. this course meets all tdlr requirements for your property tax consultants license renewal. this texas department of licensing and regulation (tdlr) approved course satisfies all twelve mandatory. further information regarding licensing, registration, education and examination requirements for property tax. this. Tdlr Property Tax Consultant Renewal.
From searviceposteer.blogspot.com
service poster Property Tax Consulting Business Contest Property Taxes Tdlr Property Tax Consultant Renewal further information regarding licensing, registration, education and examination requirements for property tax. Search licensees by license type. this texas department of licensing and regulation (tdlr) approved course satisfies all twelve mandatory. this 12 hour online course meets all tdlr requirements for property tax consultants to renew their license in texas. licensing & exam information. if. Tdlr Property Tax Consultant Renewal.
From www.tdlr.texas.gov
Graphics Files Media Relations TDLR Texas.gov Tdlr Property Tax Consultant Renewal Search licensees by license type. if you are requesting a change of contact information please use the online form at. further information regarding licensing, registration, education and examination requirements for property tax. this course meets all tdlr requirements for your property tax consultants license renewal. this texas department of licensing and regulation (tdlr) approved course satisfies. Tdlr Property Tax Consultant Renewal.
From 1stchoicecontinuingeducation.tumblr.com
1st Choice Continuing Education — TDLR License Renewal Online 4 Hours Tdlr Property Tax Consultant Renewal Search licensees by license type. this texas department of licensing and regulation (tdlr) approved course satisfies all twelve mandatory. licensing & exam information. this 12 hour online course meets all tdlr requirements for property tax consultants to renew their license in texas. property tax consultants with registrations that expire on or after may 1, 2021, must. Tdlr Property Tax Consultant Renewal.
From texaslicenserenewalinstructions.blogspot.com
Easily Renew Your TDLR License Online 1st Choice Continuing Education Tdlr Property Tax Consultant Renewal if you are requesting a change of contact information please use the online form at. Search licensees by license type. further information regarding licensing, registration, education and examination requirements for property tax. this 12 hour online course meets all tdlr requirements for property tax consultants to renew their license in texas. property tax consultants with registrations. Tdlr Property Tax Consultant Renewal.
From www.slideserve.com
PPT Online Courses For Tow Operator License Renewal TDLR License Tdlr Property Tax Consultant Renewal Search licensees by license type. property tax consultants with registrations that expire on or after may 1, 2021, must complete 24 hours of continuing education. this texas department of licensing and regulation (tdlr) approved course satisfies all twelve mandatory. further information regarding licensing, registration, education and examination requirements for property tax. licensing & exam information. . Tdlr Property Tax Consultant Renewal.
From www.tdlr.texas.gov
Graphics Files Media Relations TDLR Texas.gov Tdlr Property Tax Consultant Renewal this course meets all tdlr requirements for your property tax consultants license renewal. licensing & exam information. property tax consultants with registrations that expire on or after may 1, 2021, must complete 24 hours of continuing education. this texas department of licensing and regulation (tdlr) approved course satisfies all twelve mandatory. Search licensees by license type.. Tdlr Property Tax Consultant Renewal.
From www.accessibletexas.com
Index of /wpcontent/uploads/2022/08 Tdlr Property Tax Consultant Renewal further information regarding licensing, registration, education and examination requirements for property tax. this course meets all tdlr requirements for your property tax consultants license renewal. this 12 hour online course meets all tdlr requirements for property tax consultants to renew their license in texas. licensing & exam information. if you are requesting a change of. Tdlr Property Tax Consultant Renewal.
From www.templateroller.com
TDLR Form IHB074N Fill Out, Sign Online and Download Fillable PDF Tdlr Property Tax Consultant Renewal licensing & exam information. this course meets all tdlr requirements for your property tax consultants license renewal. further information regarding licensing, registration, education and examination requirements for property tax. this 12 hour online course meets all tdlr requirements for property tax consultants to renew their license in texas. Search licensees by license type. if you. Tdlr Property Tax Consultant Renewal.
From 1stchoicecontinuingeducation.tumblr.com
1st Choice Continuing Education — TDLR License Renewal Online 4 Hours Tdlr Property Tax Consultant Renewal this texas department of licensing and regulation (tdlr) approved course satisfies all twelve mandatory. this course meets all tdlr requirements for your property tax consultants license renewal. this 12 hour online course meets all tdlr requirements for property tax consultants to renew their license in texas. further information regarding licensing, registration, education and examination requirements for. Tdlr Property Tax Consultant Renewal.