Equipment General Arrangement Drawing . — this post gives introduction to piping general arrangement drawings, like inputs required for generating any piping. — a general arrangement drawing (ga drawing) is a contract document, which records information needed to understand the general. — discover what a general arrangement drawing (ga drawing) is, why it's vital in construction projects, and how. what is general arrangement drawing? General arrangement drawing (gad) provide an overview of an object such as a building, showing how its components fit together to form a whole. They differ from detailed sketches, which focus on specific parts. general arrangement (g/a) drawings present the overall composition of a plant, skid, building, or piece of equipment. These drawings indicate the locations of. general arrangement drawings for piping systems and equipments are developed by piping designers.
from rconengineers.com
— this post gives introduction to piping general arrangement drawings, like inputs required for generating any piping. general arrangement (g/a) drawings present the overall composition of a plant, skid, building, or piece of equipment. — a general arrangement drawing (ga drawing) is a contract document, which records information needed to understand the general. General arrangement drawing (gad) provide an overview of an object such as a building, showing how its components fit together to form a whole. — discover what a general arrangement drawing (ga drawing) is, why it's vital in construction projects, and how. These drawings indicate the locations of. They differ from detailed sketches, which focus on specific parts. general arrangement drawings for piping systems and equipments are developed by piping designers. what is general arrangement drawing?
flow sheets and general arrangements — rCon Engineers
Equipment General Arrangement Drawing general arrangement (g/a) drawings present the overall composition of a plant, skid, building, or piece of equipment. General arrangement drawing (gad) provide an overview of an object such as a building, showing how its components fit together to form a whole. what is general arrangement drawing? These drawings indicate the locations of. — a general arrangement drawing (ga drawing) is a contract document, which records information needed to understand the general. general arrangement (g/a) drawings present the overall composition of a plant, skid, building, or piece of equipment. They differ from detailed sketches, which focus on specific parts. — discover what a general arrangement drawing (ga drawing) is, why it's vital in construction projects, and how. general arrangement drawings for piping systems and equipments are developed by piping designers. — this post gives introduction to piping general arrangement drawings, like inputs required for generating any piping.
From support.tekla.com
Examples of general arrangement drawings Tekla User Assistance Equipment General Arrangement Drawing General arrangement drawing (gad) provide an overview of an object such as a building, showing how its components fit together to form a whole. general arrangement (g/a) drawings present the overall composition of a plant, skid, building, or piece of equipment. These drawings indicate the locations of. what is general arrangement drawing? — a general arrangement drawing. Equipment General Arrangement Drawing.
From pecconsultinggroup.com
Guidelines for Review of General Arrangement Drawings PEC Consulting Equipment General Arrangement Drawing These drawings indicate the locations of. general arrangement drawings for piping systems and equipments are developed by piping designers. — this post gives introduction to piping general arrangement drawings, like inputs required for generating any piping. They differ from detailed sketches, which focus on specific parts. — a general arrangement drawing (ga drawing) is a contract document,. Equipment General Arrangement Drawing.
From www.advenser.com
Precise Assembly Drawings Advenser Engineering Services Equipment General Arrangement Drawing — this post gives introduction to piping general arrangement drawings, like inputs required for generating any piping. These drawings indicate the locations of. General arrangement drawing (gad) provide an overview of an object such as a building, showing how its components fit together to form a whole. They differ from detailed sketches, which focus on specific parts. —. Equipment General Arrangement Drawing.
From eneca.nl
General arangement drawing for steel structures Equipment General Arrangement Drawing General arrangement drawing (gad) provide an overview of an object such as a building, showing how its components fit together to form a whole. general arrangement drawings for piping systems and equipments are developed by piping designers. — discover what a general arrangement drawing (ga drawing) is, why it's vital in construction projects, and how. These drawings indicate. Equipment General Arrangement Drawing.
From thepiping.com
What Is Equipment Layout Equipment General Arrangement Drawing They differ from detailed sketches, which focus on specific parts. general arrangement (g/a) drawings present the overall composition of a plant, skid, building, or piece of equipment. General arrangement drawing (gad) provide an overview of an object such as a building, showing how its components fit together to form a whole. — a general arrangement drawing (ga drawing). Equipment General Arrangement Drawing.
From rconengineers.com
flow sheets and general arrangements — rCon Engineers Equipment General Arrangement Drawing — a general arrangement drawing (ga drawing) is a contract document, which records information needed to understand the general. general arrangement drawings for piping systems and equipments are developed by piping designers. — discover what a general arrangement drawing (ga drawing) is, why it's vital in construction projects, and how. what is general arrangement drawing? General. Equipment General Arrangement Drawing.
From www.adhyatama.com
Jasa Gambar General Arrangement Piping and Tank Layout KURSUS AUTOCAD Equipment General Arrangement Drawing They differ from detailed sketches, which focus on specific parts. general arrangement drawings for piping systems and equipments are developed by piping designers. — this post gives introduction to piping general arrangement drawings, like inputs required for generating any piping. General arrangement drawing (gad) provide an overview of an object such as a building, showing how its components. Equipment General Arrangement Drawing.
From wermac.org
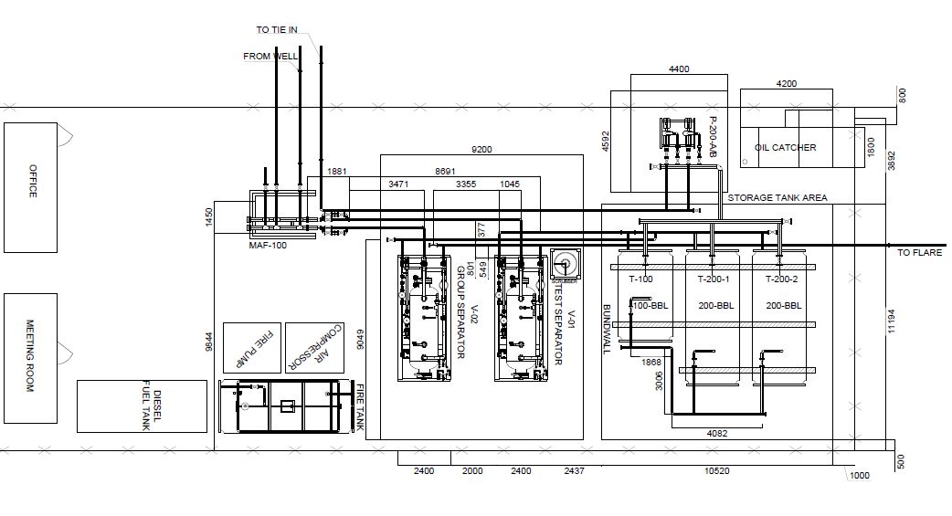
Piping Coordination System Plot Plans and Equipment Arrangements Equipment General Arrangement Drawing — this post gives introduction to piping general arrangement drawings, like inputs required for generating any piping. General arrangement drawing (gad) provide an overview of an object such as a building, showing how its components fit together to form a whole. They differ from detailed sketches, which focus on specific parts. general arrangement (g/a) drawings present the overall. Equipment General Arrangement Drawing.
From www.youtube.com
Equipment General Arrangement YouTube Equipment General Arrangement Drawing general arrangement drawings for piping systems and equipments are developed by piping designers. General arrangement drawing (gad) provide an overview of an object such as a building, showing how its components fit together to form a whole. These drawings indicate the locations of. general arrangement (g/a) drawings present the overall composition of a plant, skid, building, or piece. Equipment General Arrangement Drawing.
From rconengineers.com
flow sheets and general arrangements — rCon Engineers Equipment General Arrangement Drawing They differ from detailed sketches, which focus on specific parts. general arrangement (g/a) drawings present the overall composition of a plant, skid, building, or piece of equipment. — this post gives introduction to piping general arrangement drawings, like inputs required for generating any piping. — discover what a general arrangement drawing (ga drawing) is, why it's vital. Equipment General Arrangement Drawing.
From www.pinterest.com.au
Pressure Vessel General Arrangement Drawing Equipment General Arrangement Drawing — discover what a general arrangement drawing (ga drawing) is, why it's vital in construction projects, and how. They differ from detailed sketches, which focus on specific parts. general arrangement (g/a) drawings present the overall composition of a plant, skid, building, or piece of equipment. General arrangement drawing (gad) provide an overview of an object such as a. Equipment General Arrangement Drawing.
From punchlistzero.com
General Arrangement (G/A) Drawings Understanding the Basics Equipment General Arrangement Drawing General arrangement drawing (gad) provide an overview of an object such as a building, showing how its components fit together to form a whole. — a general arrangement drawing (ga drawing) is a contract document, which records information needed to understand the general. — this post gives introduction to piping general arrangement drawings, like inputs required for generating. Equipment General Arrangement Drawing.
From www.slideserve.com
PPT Plant Design Integration, General Arrangement Drawings PowerPoint Equipment General Arrangement Drawing — this post gives introduction to piping general arrangement drawings, like inputs required for generating any piping. They differ from detailed sketches, which focus on specific parts. general arrangement (g/a) drawings present the overall composition of a plant, skid, building, or piece of equipment. general arrangement drawings for piping systems and equipments are developed by piping designers.. Equipment General Arrangement Drawing.
From www.youtube.com
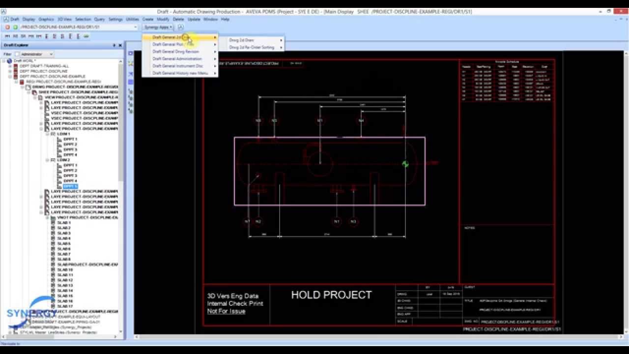
General Arrangement Drawing (GAD) Legend Piping & Equipment’s YouTube Equipment General Arrangement Drawing General arrangement drawing (gad) provide an overview of an object such as a building, showing how its components fit together to form a whole. They differ from detailed sketches, which focus on specific parts. what is general arrangement drawing? general arrangement drawings for piping systems and equipments are developed by piping designers. These drawings indicate the locations of.. Equipment General Arrangement Drawing.
From www.nbowleydraughtsmenservices.co.uk
General Arrangement Drawings Equipment General Arrangement Drawing General arrangement drawing (gad) provide an overview of an object such as a building, showing how its components fit together to form a whole. — this post gives introduction to piping general arrangement drawings, like inputs required for generating any piping. general arrangement (g/a) drawings present the overall composition of a plant, skid, building, or piece of equipment.. Equipment General Arrangement Drawing.
From libreriacad.com
General Layout Drawing Of Steel Water Tank In AutoCAD CAD library Equipment General Arrangement Drawing General arrangement drawing (gad) provide an overview of an object such as a building, showing how its components fit together to form a whole. general arrangement drawings for piping systems and equipments are developed by piping designers. — a general arrangement drawing (ga drawing) is a contract document, which records information needed to understand the general. They differ. Equipment General Arrangement Drawing.
From www.youtube.com
New drawing styles for creating general arrangement drawings YouTube Equipment General Arrangement Drawing general arrangement (g/a) drawings present the overall composition of a plant, skid, building, or piece of equipment. General arrangement drawing (gad) provide an overview of an object such as a building, showing how its components fit together to form a whole. They differ from detailed sketches, which focus on specific parts. These drawings indicate the locations of. —. Equipment General Arrangement Drawing.
From enggcyclopedia.com
General Arrangement (GA) Drawings for Piping EnggCyclopedia Equipment General Arrangement Drawing These drawings indicate the locations of. General arrangement drawing (gad) provide an overview of an object such as a building, showing how its components fit together to form a whole. They differ from detailed sketches, which focus on specific parts. — this post gives introduction to piping general arrangement drawings, like inputs required for generating any piping. general. Equipment General Arrangement Drawing.
From support.tekla.com
Examples of general arrangement drawings Tekla User Assistance Equipment General Arrangement Drawing — a general arrangement drawing (ga drawing) is a contract document, which records information needed to understand the general. General arrangement drawing (gad) provide an overview of an object such as a building, showing how its components fit together to form a whole. general arrangement drawings for piping systems and equipments are developed by piping designers. —. Equipment General Arrangement Drawing.
From www.researchgate.net
General arrangement drawing Download Scientific Diagram Equipment General Arrangement Drawing They differ from detailed sketches, which focus on specific parts. general arrangement drawings for piping systems and equipments are developed by piping designers. — discover what a general arrangement drawing (ga drawing) is, why it's vital in construction projects, and how. what is general arrangement drawing? general arrangement (g/a) drawings present the overall composition of a. Equipment General Arrangement Drawing.
From candyne.com
Engineering & Design CanDyne Pump Services Equipment General Arrangement Drawing General arrangement drawing (gad) provide an overview of an object such as a building, showing how its components fit together to form a whole. general arrangement (g/a) drawings present the overall composition of a plant, skid, building, or piece of equipment. — this post gives introduction to piping general arrangement drawings, like inputs required for generating any piping.. Equipment General Arrangement Drawing.
From support.tekla.com
Examples of general arrangement drawings Tekla User Assistance Equipment General Arrangement Drawing General arrangement drawing (gad) provide an overview of an object such as a building, showing how its components fit together to form a whole. general arrangement drawings for piping systems and equipments are developed by piping designers. — discover what a general arrangement drawing (ga drawing) is, why it's vital in construction projects, and how. They differ from. Equipment General Arrangement Drawing.
From lectures-nd-notes.blogspot.com
Lecture Notes Engineering Drawing Part 5 Equipment General Arrangement Drawing general arrangement (g/a) drawings present the overall composition of a plant, skid, building, or piece of equipment. These drawings indicate the locations of. general arrangement drawings for piping systems and equipments are developed by piping designers. — this post gives introduction to piping general arrangement drawings, like inputs required for generating any piping. — a general. Equipment General Arrangement Drawing.
From www.youtube.com
General Arrangement Drawings View, Dimension, and Mark Settings YouTube Equipment General Arrangement Drawing General arrangement drawing (gad) provide an overview of an object such as a building, showing how its components fit together to form a whole. — a general arrangement drawing (ga drawing) is a contract document, which records information needed to understand the general. These drawings indicate the locations of. — discover what a general arrangement drawing (ga drawing). Equipment General Arrangement Drawing.
From www.youtube.com
Creating General Arrangement Drawings for Concrete Structures YouTube Equipment General Arrangement Drawing They differ from detailed sketches, which focus on specific parts. General arrangement drawing (gad) provide an overview of an object such as a building, showing how its components fit together to form a whole. These drawings indicate the locations of. what is general arrangement drawing? — discover what a general arrangement drawing (ga drawing) is, why it's vital. Equipment General Arrangement Drawing.
From electrical-engineering-portal.com
Learn how to draft the layout and arrangement drawing of 33/11 kV Equipment General Arrangement Drawing general arrangement (g/a) drawings present the overall composition of a plant, skid, building, or piece of equipment. — this post gives introduction to piping general arrangement drawings, like inputs required for generating any piping. what is general arrangement drawing? General arrangement drawing (gad) provide an overview of an object such as a building, showing how its components. Equipment General Arrangement Drawing.
From support.tekla.com
Examples of general arrangement drawings Tekla User Assistance Equipment General Arrangement Drawing General arrangement drawing (gad) provide an overview of an object such as a building, showing how its components fit together to form a whole. These drawings indicate the locations of. what is general arrangement drawing? — this post gives introduction to piping general arrangement drawings, like inputs required for generating any piping. general arrangement drawings for piping. Equipment General Arrangement Drawing.
From cathy.devdungeon.com
General Arrangement Drawings Equipment General Arrangement Drawing what is general arrangement drawing? — discover what a general arrangement drawing (ga drawing) is, why it's vital in construction projects, and how. These drawings indicate the locations of. General arrangement drawing (gad) provide an overview of an object such as a building, showing how its components fit together to form a whole. They differ from detailed sketches,. Equipment General Arrangement Drawing.
From www.jensen-consulting.co.uk
General Assembly Column Beam Staircase Drawing Examples Equipment General Arrangement Drawing These drawings indicate the locations of. — discover what a general arrangement drawing (ga drawing) is, why it's vital in construction projects, and how. general arrangement drawings for piping systems and equipments are developed by piping designers. They differ from detailed sketches, which focus on specific parts. — a general arrangement drawing (ga drawing) is a contract. Equipment General Arrangement Drawing.
From www.youtube.com
Piping General Arrangement Drawing (E3D) YouTube Equipment General Arrangement Drawing what is general arrangement drawing? These drawings indicate the locations of. — a general arrangement drawing (ga drawing) is a contract document, which records information needed to understand the general. They differ from detailed sketches, which focus on specific parts. — this post gives introduction to piping general arrangement drawings, like inputs required for generating any piping.. Equipment General Arrangement Drawing.
From astri.vercel.app
Equipment General Arrangement Drawing General assembly drawing gives Equipment General Arrangement Drawing general arrangement drawings for piping systems and equipments are developed by piping designers. General arrangement drawing (gad) provide an overview of an object such as a building, showing how its components fit together to form a whole. — discover what a general arrangement drawing (ga drawing) is, why it's vital in construction projects, and how. — a. Equipment General Arrangement Drawing.
From www.linkedin.com
How to automate General Arrangement Drawings with SOLIDWORKS Equipment General Arrangement Drawing general arrangement (g/a) drawings present the overall composition of a plant, skid, building, or piece of equipment. — a general arrangement drawing (ga drawing) is a contract document, which records information needed to understand the general. — this post gives introduction to piping general arrangement drawings, like inputs required for generating any piping. These drawings indicate the. Equipment General Arrangement Drawing.
From astri.vercel.app
General Arrangement Drawing Example General arrangement drawings and Equipment General Arrangement Drawing — a general arrangement drawing (ga drawing) is a contract document, which records information needed to understand the general. — this post gives introduction to piping general arrangement drawings, like inputs required for generating any piping. They differ from detailed sketches, which focus on specific parts. what is general arrangement drawing? general arrangement (g/a) drawings present. Equipment General Arrangement Drawing.
From wermac.org
Piping Coordination System Plot Plans and Equipment Arrangements Equipment General Arrangement Drawing general arrangement (g/a) drawings present the overall composition of a plant, skid, building, or piece of equipment. general arrangement drawings for piping systems and equipments are developed by piping designers. General arrangement drawing (gad) provide an overview of an object such as a building, showing how its components fit together to form a whole. what is general. Equipment General Arrangement Drawing.
From fuelchieftanks.com
How To Understand A GA Drawing Fuelchief General Assembly Equipment General Arrangement Drawing — discover what a general arrangement drawing (ga drawing) is, why it's vital in construction projects, and how. General arrangement drawing (gad) provide an overview of an object such as a building, showing how its components fit together to form a whole. These drawings indicate the locations of. They differ from detailed sketches, which focus on specific parts. . Equipment General Arrangement Drawing.