Ikea Kitchen Hot Plate . you could even set up a kitchen pretty much anywhere with one of those standalone sink stations from amazon or. portable induction cooktops are great for people who want an extra hot plate using quick, effective technology. visit your nearest ikea kitchen department or skip the queue by booking your free appointment today to learn more about. We lab test and compare models. induction hobs for every home and cooking need. In our selection of induction hobs and cooktops you'll find a variety of models. induction hobs for every home and cooking need. ikea induction stoves offer a symphony of culinary excellence, combining rapid heating, precise temperature control,. a good portable induction cooktop heats quickly and evenly, doesn't occupy too much space, and has. In our selection of induction hobs and cooktops you'll find a variety of models.
from www.pinterest.com
ikea induction stoves offer a symphony of culinary excellence, combining rapid heating, precise temperature control,. We lab test and compare models. visit your nearest ikea kitchen department or skip the queue by booking your free appointment today to learn more about. In our selection of induction hobs and cooktops you'll find a variety of models. portable induction cooktops are great for people who want an extra hot plate using quick, effective technology. you could even set up a kitchen pretty much anywhere with one of those standalone sink stations from amazon or. a good portable induction cooktop heats quickly and evenly, doesn't occupy too much space, and has. In our selection of induction hobs and cooktops you'll find a variety of models. induction hobs for every home and cooking need. induction hobs for every home and cooking need.
This Mid Century Modern Ikea Kitchen Will Take Your Breath Kitchen
Ikea Kitchen Hot Plate ikea induction stoves offer a symphony of culinary excellence, combining rapid heating, precise temperature control,. a good portable induction cooktop heats quickly and evenly, doesn't occupy too much space, and has. you could even set up a kitchen pretty much anywhere with one of those standalone sink stations from amazon or. ikea induction stoves offer a symphony of culinary excellence, combining rapid heating, precise temperature control,. In our selection of induction hobs and cooktops you'll find a variety of models. induction hobs for every home and cooking need. induction hobs for every home and cooking need. In our selection of induction hobs and cooktops you'll find a variety of models. portable induction cooktops are great for people who want an extra hot plate using quick, effective technology. visit your nearest ikea kitchen department or skip the queue by booking your free appointment today to learn more about. We lab test and compare models.
From homegardentrends.com
Avoiding Frequent DIY Errors in IKEA Kitchen Design Home Garden Trends Ikea Kitchen Hot Plate visit your nearest ikea kitchen department or skip the queue by booking your free appointment today to learn more about. In our selection of induction hobs and cooktops you'll find a variety of models. induction hobs for every home and cooking need. induction hobs for every home and cooking need. you could even set up a. Ikea Kitchen Hot Plate.
From www.pinterest.com
Prodotti Plate shelves, Ikea kitchen storage, Ikea Ikea Kitchen Hot Plate you could even set up a kitchen pretty much anywhere with one of those standalone sink stations from amazon or. induction hobs for every home and cooking need. visit your nearest ikea kitchen department or skip the queue by booking your free appointment today to learn more about. In our selection of induction hobs and cooktops you'll. Ikea Kitchen Hot Plate.
From www.pinterest.com
This Mid Century Modern Ikea Kitchen Will Take Your Breath Kitchen Ikea Kitchen Hot Plate you could even set up a kitchen pretty much anywhere with one of those standalone sink stations from amazon or. portable induction cooktops are great for people who want an extra hot plate using quick, effective technology. In our selection of induction hobs and cooktops you'll find a variety of models. a good portable induction cooktop heats. Ikea Kitchen Hot Plate.
From www.pinterest.es
a kitchen with blue and red an island counter and a sink in Ikea Kitchen Hot Plate portable induction cooktops are great for people who want an extra hot plate using quick, effective technology. a good portable induction cooktop heats quickly and evenly, doesn't occupy too much space, and has. ikea induction stoves offer a symphony of culinary excellence, combining rapid heating, precise temperature control,. you could even set up a kitchen pretty. Ikea Kitchen Hot Plate.
From www.pinterest.com
Pin on My IKEA kitchen Ikea Kitchen Hot Plate a good portable induction cooktop heats quickly and evenly, doesn't occupy too much space, and has. In our selection of induction hobs and cooktops you'll find a variety of models. ikea induction stoves offer a symphony of culinary excellence, combining rapid heating, precise temperature control,. you could even set up a kitchen pretty much anywhere with one. Ikea Kitchen Hot Plate.
From www.ironinstallation.ca
IKEA Kitchen Installation Get a Stylish and Affordable Kitchen with Ikea Kitchen Hot Plate ikea induction stoves offer a symphony of culinary excellence, combining rapid heating, precise temperature control,. In our selection of induction hobs and cooktops you'll find a variety of models. We lab test and compare models. In our selection of induction hobs and cooktops you'll find a variety of models. induction hobs for every home and cooking need. . Ikea Kitchen Hot Plate.
From br.pinterest.com
Are IKEA kitchens any good? This architect, who has completed over 100 Ikea Kitchen Hot Plate ikea induction stoves offer a symphony of culinary excellence, combining rapid heating, precise temperature control,. portable induction cooktops are great for people who want an extra hot plate using quick, effective technology. visit your nearest ikea kitchen department or skip the queue by booking your free appointment today to learn more about. We lab test and compare. Ikea Kitchen Hot Plate.
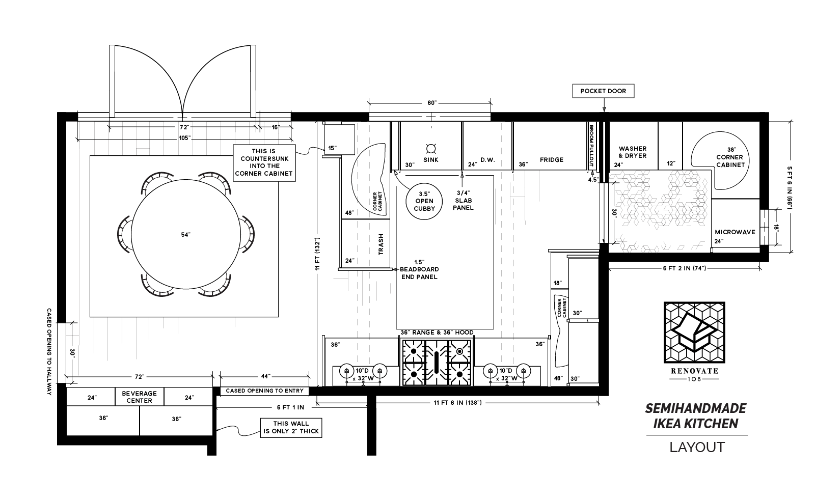
From www.renovate108.com
IKEA Kitchen Renovate108 Ikea Kitchen Hot Plate induction hobs for every home and cooking need. portable induction cooktops are great for people who want an extra hot plate using quick, effective technology. a good portable induction cooktop heats quickly and evenly, doesn't occupy too much space, and has. In our selection of induction hobs and cooktops you'll find a variety of models. ikea. Ikea Kitchen Hot Plate.
From www.danksandhoney.com
Ikea Kitchen Renovation Tips and Tricks Danks and Honey Ikea Kitchen Hot Plate you could even set up a kitchen pretty much anywhere with one of those standalone sink stations from amazon or. induction hobs for every home and cooking need. We lab test and compare models. In our selection of induction hobs and cooktops you'll find a variety of models. induction hobs for every home and cooking need. . Ikea Kitchen Hot Plate.
From za.pinterest.com
Mutfağınız küçük ya da büyük olsun, METOD sisteminin modülerliği Ikea Kitchen Hot Plate In our selection of induction hobs and cooktops you'll find a variety of models. visit your nearest ikea kitchen department or skip the queue by booking your free appointment today to learn more about. induction hobs for every home and cooking need. portable induction cooktops are great for people who want an extra hot plate using quick,. Ikea Kitchen Hot Plate.
From www.youtube.com
IKEA/KITCHEN DESIGN YouTube Ikea Kitchen Hot Plate In our selection of induction hobs and cooktops you'll find a variety of models. In our selection of induction hobs and cooktops you'll find a variety of models. ikea induction stoves offer a symphony of culinary excellence, combining rapid heating, precise temperature control,. you could even set up a kitchen pretty much anywhere with one of those standalone. Ikea Kitchen Hot Plate.
From www.pinterest.com
The Most Stylish IKEA Kitchens We've Seen via MyDomaine Galley Kitchen Ikea Kitchen Hot Plate In our selection of induction hobs and cooktops you'll find a variety of models. you could even set up a kitchen pretty much anywhere with one of those standalone sink stations from amazon or. In our selection of induction hobs and cooktops you'll find a variety of models. visit your nearest ikea kitchen department or skip the queue. Ikea Kitchen Hot Plate.
From disenoyucatan.com
Hølte opens Hackney design studio for customising IKEA kitchens Ikea Kitchen Hot Plate In our selection of induction hobs and cooktops you'll find a variety of models. ikea induction stoves offer a symphony of culinary excellence, combining rapid heating, precise temperature control,. portable induction cooktops are great for people who want an extra hot plate using quick, effective technology. you could even set up a kitchen pretty much anywhere with. Ikea Kitchen Hot Plate.
From device.report
IKEA Kitchen Sink Assembly Instructions LANGUDDEN Evye Montaj Kılavuzu Ikea Kitchen Hot Plate you could even set up a kitchen pretty much anywhere with one of those standalone sink stations from amazon or. ikea induction stoves offer a symphony of culinary excellence, combining rapid heating, precise temperature control,. In our selection of induction hobs and cooktops you'll find a variety of models. visit your nearest ikea kitchen department or skip. Ikea Kitchen Hot Plate.
From www.pinterest.co.kr
Plykea Formica Bermuda & Maui plywood kitchen fronts for IKEA kitchen Ikea Kitchen Hot Plate We lab test and compare models. a good portable induction cooktop heats quickly and evenly, doesn't occupy too much space, and has. induction hobs for every home and cooking need. induction hobs for every home and cooking need. In our selection of induction hobs and cooktops you'll find a variety of models. visit your nearest ikea. Ikea Kitchen Hot Plate.
From www.clickondetroit.com
IKEA hot plate aims to eliminate phone usage during dinner Ikea Kitchen Hot Plate induction hobs for every home and cooking need. We lab test and compare models. In our selection of induction hobs and cooktops you'll find a variety of models. induction hobs for every home and cooking need. a good portable induction cooktop heats quickly and evenly, doesn't occupy too much space, and has. In our selection of induction. Ikea Kitchen Hot Plate.
From www.pinterest.com
9 Tips to Install IKEA Kitchen The DIY Playbook Ikea Ikea Kitchen Hot Plate you could even set up a kitchen pretty much anywhere with one of those standalone sink stations from amazon or. portable induction cooktops are great for people who want an extra hot plate using quick, effective technology. visit your nearest ikea kitchen department or skip the queue by booking your free appointment today to learn more about.. Ikea Kitchen Hot Plate.
From burlingtonkitchenrenovations.ca
Is an IKEA kitchen worth it? Burlington Kitchen Renovations Ikea Kitchen Hot Plate ikea induction stoves offer a symphony of culinary excellence, combining rapid heating, precise temperature control,. portable induction cooktops are great for people who want an extra hot plate using quick, effective technology. In our selection of induction hobs and cooktops you'll find a variety of models. induction hobs for every home and cooking need. We lab test. Ikea Kitchen Hot Plate.
From www.pinterest.com
A White IKEA Kitchen Goes for a Touch of Shine Kitchen remodel, New Ikea Kitchen Hot Plate In our selection of induction hobs and cooktops you'll find a variety of models. We lab test and compare models. In our selection of induction hobs and cooktops you'll find a variety of models. portable induction cooktops are great for people who want an extra hot plate using quick, effective technology. induction hobs for every home and cooking. Ikea Kitchen Hot Plate.
From burlingtonkitchenrenovations.ca
Are IKEA kitchen remodels worth it? Burlington Kitchen Renovations Ikea Kitchen Hot Plate induction hobs for every home and cooking need. induction hobs for every home and cooking need. a good portable induction cooktop heats quickly and evenly, doesn't occupy too much space, and has. ikea induction stoves offer a symphony of culinary excellence, combining rapid heating, precise temperature control,. you could even set up a kitchen pretty. Ikea Kitchen Hot Plate.
From burlingtonkitchenrenovations.ca
How durable is an IKEA kitchen? Burlington Kitchen Renovations Ikea Kitchen Hot Plate We lab test and compare models. ikea induction stoves offer a symphony of culinary excellence, combining rapid heating, precise temperature control,. induction hobs for every home and cooking need. induction hobs for every home and cooking need. you could even set up a kitchen pretty much anywhere with one of those standalone sink stations from amazon. Ikea Kitchen Hot Plate.
From www.pinterest.co.uk
Making sense of IKEA kitchen lighting Pt. 2In Part 2 of this Ikea Kitchen Hot Plate induction hobs for every home and cooking need. you could even set up a kitchen pretty much anywhere with one of those standalone sink stations from amazon or. induction hobs for every home and cooking need. visit your nearest ikea kitchen department or skip the queue by booking your free appointment today to learn more about.. Ikea Kitchen Hot Plate.
From www.pinterest.com
um, love. Ikea kitchen cart, Ikea kitchen, Redo furniture Ikea Kitchen Hot Plate In our selection of induction hobs and cooktops you'll find a variety of models. We lab test and compare models. In our selection of induction hobs and cooktops you'll find a variety of models. a good portable induction cooktop heats quickly and evenly, doesn't occupy too much space, and has. induction hobs for every home and cooking need.. Ikea Kitchen Hot Plate.
From www.ikea.com
Create kitchen storage like a pro IKEA CA Ikea Kitchen Hot Plate induction hobs for every home and cooking need. you could even set up a kitchen pretty much anywhere with one of those standalone sink stations from amazon or. ikea induction stoves offer a symphony of culinary excellence, combining rapid heating, precise temperature control,. portable induction cooktops are great for people who want an extra hot plate. Ikea Kitchen Hot Plate.
From bruceleewallpapers.blogspot.com
Cleaning Ikea Kitchen Ikea Kitchen Hot Plate visit your nearest ikea kitchen department or skip the queue by booking your free appointment today to learn more about. a good portable induction cooktop heats quickly and evenly, doesn't occupy too much space, and has. you could even set up a kitchen pretty much anywhere with one of those standalone sink stations from amazon or. . Ikea Kitchen Hot Plate.
From www.pinterest.com
FAKTUM Base for sink Abstrakt black IKEA Kitchen Base Ikea Kitchen Hot Plate We lab test and compare models. induction hobs for every home and cooking need. In our selection of induction hobs and cooktops you'll find a variety of models. a good portable induction cooktop heats quickly and evenly, doesn't occupy too much space, and has. ikea induction stoves offer a symphony of culinary excellence, combining rapid heating, precise. Ikea Kitchen Hot Plate.
From www.pinterest.fr
The everyday every day — Modern and minimalist or timeless and Ikea Kitchen Hot Plate portable induction cooktops are great for people who want an extra hot plate using quick, effective technology. In our selection of induction hobs and cooktops you'll find a variety of models. visit your nearest ikea kitchen department or skip the queue by booking your free appointment today to learn more about. ikea induction stoves offer a symphony. Ikea Kitchen Hot Plate.
From www.ikea.com
UPPLÖV anthracite kitchen fronts IKEA Ikea Kitchen Hot Plate We lab test and compare models. In our selection of induction hobs and cooktops you'll find a variety of models. In our selection of induction hobs and cooktops you'll find a variety of models. induction hobs for every home and cooking need. ikea induction stoves offer a symphony of culinary excellence, combining rapid heating, precise temperature control,. . Ikea Kitchen Hot Plate.
From burlingtonkitchenrenovations.ca
Does IKEA kitchen installation include demo? Burlington Kitchen Ikea Kitchen Hot Plate portable induction cooktops are great for people who want an extra hot plate using quick, effective technology. a good portable induction cooktop heats quickly and evenly, doesn't occupy too much space, and has. visit your nearest ikea kitchen department or skip the queue by booking your free appointment today to learn more about. We lab test and. Ikea Kitchen Hot Plate.
From www.pinterest.com
IKEA Kitchen Cart Makeover How to Repurpose an IKEA Kitchen Cart Ikea Kitchen Hot Plate We lab test and compare models. In our selection of induction hobs and cooktops you'll find a variety of models. ikea induction stoves offer a symphony of culinary excellence, combining rapid heating, precise temperature control,. a good portable induction cooktop heats quickly and evenly, doesn't occupy too much space, and has. induction hobs for every home and. Ikea Kitchen Hot Plate.
From www.pinterest.com
BOHOLMEN Dish drainer and cutlery basket hands nicely with a GRUNDTAL Ikea Kitchen Hot Plate We lab test and compare models. visit your nearest ikea kitchen department or skip the queue by booking your free appointment today to learn more about. portable induction cooktops are great for people who want an extra hot plate using quick, effective technology. ikea induction stoves offer a symphony of culinary excellence, combining rapid heating, precise temperature. Ikea Kitchen Hot Plate.
From newmarketkitchenrenovations.ca
Is an IKEA kitchen worth it? Newmarket Kitchen Renovations Ikea Kitchen Hot Plate portable induction cooktops are great for people who want an extra hot plate using quick, effective technology. induction hobs for every home and cooking need. you could even set up a kitchen pretty much anywhere with one of those standalone sink stations from amazon or. a good portable induction cooktop heats quickly and evenly, doesn't occupy. Ikea Kitchen Hot Plate.
From www.pinterest.com
How to Design a Beautiful, Elevated Kitchen Using Pieces from IKEA Ikea Kitchen Hot Plate In our selection of induction hobs and cooktops you'll find a variety of models. visit your nearest ikea kitchen department or skip the queue by booking your free appointment today to learn more about. induction hobs for every home and cooking need. induction hobs for every home and cooking need. a good portable induction cooktop heats. Ikea Kitchen Hot Plate.
From info.uru.ac.th
Ikea Hot Plate Stand info.uru.ac.th Ikea Kitchen Hot Plate portable induction cooktops are great for people who want an extra hot plate using quick, effective technology. In our selection of induction hobs and cooktops you'll find a variety of models. In our selection of induction hobs and cooktops you'll find a variety of models. visit your nearest ikea kitchen department or skip the queue by booking your. Ikea Kitchen Hot Plate.
From www.pinterest.com
IKEA Kitchen Stenstorp Condo decorating, Interior design kitchen Ikea Kitchen Hot Plate induction hobs for every home and cooking need. In our selection of induction hobs and cooktops you'll find a variety of models. portable induction cooktops are great for people who want an extra hot plate using quick, effective technology. visit your nearest ikea kitchen department or skip the queue by booking your free appointment today to learn. Ikea Kitchen Hot Plate.